p o r t f o l i o ENGLISH

Page 1


PORTFOLIO

MARIALENA CHASEKIDOU

1. T R U C K

2. LORI 38

3. SYMBIOSIS- AFTER THE EXPLOSION OF THE HOUSE

4. LOVECATS

WORKSHOPS

1. PILE

PROFESSIONAL

1. delfon

Yiannis has always been a truck driver. now he is retired and his needs αre different. his new house design is inspired by the memory of his truck. It represents something which was moving, that became stable. It is placed in a plot of land next to the central street which connects Agria, a region by the sea to the city of Volos. In his new home he can cultivate, work on constructions and patents, and exhibit his work, in the exhibition venue in the front facade of the house. Whenever he has a visit, the dining room becomes the meeting place, where he connects with his guests, and sometimes exchanges one of his creations with something a guest has to offer.

The structure can accliamte to every season. It’s rectangle shape can break into a trapezium and two triangles, trasforming the house into a semi-outdoor space.

It is organized in three zones, the residential one, the exhibition venue, and the movement zone.

It is a self-sufficient house, equiped with solar panels, which transform solar energy into electricity, a tank for rainwater collection and filters, food waste can be used as a fertilizer through composting.

Living in the “Truck” reinforces a way of living in harmony with the earth,the commuity that is living around, and with the possibility of connection to the city.

CHASEKIDOU marialena . TIKI ioanna construction
model photo

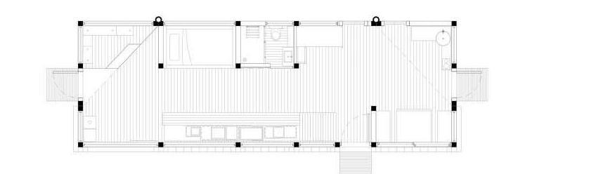
How could life look like living in a ground floor of an apartment building. The proposal presents the creation of a housing situation that combines the privacy of personal space with the possibility of communication with the city, in the edifice of a former store. in the centre of Volos, a small city in Greece.

This project is about creating three types of spaces, within a single space.

Crossing the threshold, an entrance full of plants hanging from a grid that runs through the entire height of the dwelling, by the side of a concrete bench.

On the ground floor, at the lower part of the house, all the work and production activities take place, here the house becomes dirty, wet and therefore it is made of hard materials such as mosaic, metal, etc.

SHOP’S FRONT

The last destination is the loft where the bedroom is located, consisting of different types of mattresses, pillows and a sliding balcony.

Features of the house include a sliding balcony that can be used outside the house, on the pavement, and a sink on a flat staircase, where the residents can wash themselves in order to pass to the ‘dry’ space of the house, as well as a sliding working bench, which can let the working process slide out of the main house to the threshold.

MODEL PHOTOS

SYMBIOSIS . after the explosion of the house

This project is about a situation of symbiosis, of interaction between people, with the space they live in and with the urban environment. the main intentions of the design are the decongestion of sleep from other activities, as well as the attempt to integrate a public aspect into the private one, equally, without the one limiting and encroaching on the other. more specifically, the “symbiosis” project proposes the placement of a five-storey apartment building with the capacity to house around 80 people, in the Toumba area of Thessaloniki. The ground floor of the building functions as a square, open to the neighbourhood and providing indoor activity spaces with free access during the day. from the first to the fourth floor the residences extend, while the building ends in a terrace where there are still some activity spaces. the building is organised in five sections, each of which has a lift and a staircase. the residences are composed of private units (bedroom, bathroom, semi-private space) and communal dining and seating areas. the semi-private part of each private unit can function as an extension of the bedroom and can be used can be used according to the preferences of the user.

Structural Transformations : Lovecats

It is a video clip. We see the space either through the eyes of a cat, or through the eyes of a human. The band members sing and play music in a room with props and cats, real and fake. They wear different clothes/masks, take on strong facial expressions that mimic cats. Main task of this project is to translate elements that consist the audiovisual material, into diagrams and models, in order to see more clearly and analyze the components that consist the video clip.

ΣΥΝΔΥΑΣΤΙΚΑ ΔΙΑΓΡΑΜΜΑΤΑ / combinatory diagrams

SOUND DIAGRAM

SOUND OF BOTTLES DRUMS PIANO SINGING

SOUND DIAGRAM

BASS VIBRAPHONE

/ combinatory diagrams

TRUMPET RYTHMIC SINGING

SOUND OF BOTTLES DRUMS PIANO SINGING

TRUMPET RYTHMIC SINGING

CRAWLING

HUMAN CRAWL REPETITION

LOVECATS

CRAWLING

HUMAN CRAWL REPETITION

LOVECATS

AGENTS DIAGRAM

HUMANS BLACK CLOTHES

CLOTHES WITH

CLOTHES

ANALYTICAL SEQUENCE

CUBE

WORKSHOPS

A seat made of slices of marble, which are placed one upon the other with the assemblage technique. The back consists of two setscrews, screwed on pieces of sheet metal. These pieces are wedged between the marbles. For the better stability of the construction, small wooden wedges and some fabric, are placed in between of the marble slices. All the materials were either found in the city or collected from construction sites and reused.

the process
fabric
sheet metal wood

PROFESSIONAL

Delfon

This project is about creating two smaller apartments of equal size in place of a preexisting bigger one.

MARIALENA CHASEKIDOU

education

email marialenahasekidou@gmail.com mobile +306932191474

2016-2025 departMent of arcHitecture UnivErsity of tHEssaly, UtH, volos GrEECE

2021-2022 ErasMUs sEMEstEr in arcHitecture and arts UnivErsiDaDE

lUsofona, lisBon PortUGal

2010-2016 DEUtsCHE sCHUlE tHEssaloniKi, GerMan scHool of tHessaloniKi

WorKinG eXperience

2023-2024 junior arcHitect arCHitECtUral offiCE “artia ConstrUCtion” in tHEssaloniKi, GrEECE onE yEar ExPEriEnCE of DEsiGn, orGanization, worKinG in a tEaM, inDEPEnDEnt

worKinG MEtHoDs, CoMMUniCation witH sUPPliErs anD CUstoMErs

2017 jUly-aUGUst intEnrsHiP in “MEtEtH” ConstrUCtion CoMPany

WorKsHops

doMestic asseMblaGe, 2022 9Days of lEarninG tECHniqUEs rElatED to ConstrUCtion of fUrnitUrE in wooD anD

MEtal laB of UnivErsity of tHEssaly

city lab WorKsHop - body - arcHitecture - art, scHool of fine arts atHens, 2019

3 Days MEEtinG witH lECtUrEs anD worKsHoPs ConCErninG tHE rElationsHiP BEtwEEn BoDy, arCHitECtUrE,

art anD tECHnoloGy, CrEation of a CollECtivE MoDEl-ProPosal for viCtoria sqUarE, atHEns

coHab atHens “coHabitinG tHe Gaps” seMinars of collectiVe learninG, 2024

a sEriEs of CollaBorativE sEMinars witH PrEsEntations froM varioUs GroUPs aCross EUroPE ConCErninG CooPErativE HoUsinG ProjECts

foreiGn lanGuaGes

EnGlisH, ProffiCiEnCy lEvEl GErMan, aBitUr, GErMan DiPloMa GrEEK, MotHEr lanGUaGE

proGraMs

aDoBE PHotosHoP, inDEsiGn, illUstrator

aUtoCaD rHinoCEros

sKills

arCHitECtUrE DEsiGn, ConCEPtUal DEsiGn, tEaMworK, DrawinG, PaintinG, CollaGE MaKinG, MUltiMEDia art, MoDEl MaKinG, UPCyClinG rEsEarCH, ContEMPorary art, Crafts

Turn static files into dynamic content formats.

Create a flipbook
Issuu converts static files into: digital portfolios, online yearbooks, online catalogs, digital photo albums and more. Sign up and create your flipbook.
p o r t f o l i o ENGLISH by Marialena Chasekidou - Issuu