The Dart (V3)

Page 1

Dart-SpecificationDocument Version2

SpecificationDocument ©LifeSpaceCabins2022 1
SpecificationDocument ©LifeSpaceCabins2022 2

LifeSpaceCabinsdeliverbeautifulandpractical architectureforlife.

Ourdesignsandplayfulthinkingimprovethewaypeople live,workorplay.

TheDartCabinisaninsulated,self-containedlivingspace offeringahighlevelofcomfort,foryear-roundenjoyment.

Thisspecificationintroducesourstandardfinishesresultingin aspacethatislightanduplifting.

Thehigh-qualityconstructioncombinesstyleand practicalityinacontemporarycabinthatisadelightto experience.

SpecificationDocument ©LifeSpaceCabins2022 3
Wecreatebeautiful,practical architecturebuilttolast. Oneplanet.OneLifeSpace.
TheWithywindle-DartCabin (5.4mx3.4m)2personholidayletfullyoffgrid

Contents

● Whoisthiscabinfor?

● ChooseyourDartCabin

○ LengthandOrientation

○ Materials:Interior&Exterior

○ Yourupgrades

● PriceMatrix

● Powerandservicesforyourcabin

● SustainableBuildings,BrilliantlyDesigned-performance

● TechnicalGeneralInformation

● Pricematrix

● Bespokedesignandcustomisationservice

● GeneralNotes

● Howtoorder

SpecificationDocument ©LifeSpaceCabins2022 4
DartCabinTheHideaway(7.8mx3.4m)LuxuryHolidayLet.PhotoCredit:Commotionmedia

WhoisthisCabinfor?

Whetherthecabinisyourprivateretreatoraluxurycabinfor holidayrentalitisessentialtoconsiderhowthespacewillbe used.

Thecabinwillbebuilttolast,buthowthespacewillneedto functionmayvary.

Foraholidaylet,considertheuserexperience,givingyour guestsamemorabletimethattheycan’tgetineverydaylife. Qualitybedlinen,aslide,asaunaorsimplyapizzaoven combinedwithyourlocationcouldbejustperfect.

Ifyouneedthespacetobeextraaccommodationfora familymember,analfrescodiningroom,cinema,homeoffice orapotterystudioconsiderwhataretheessentialsneeds andfunctions.

Letusknowandwecanguideyouthrough.

SpecificationDocument ©LifeSpaceCabins2022 5
ImagecreditBethSquireforCanopyandStars ImagecreditBethSquireforCanopyandStars

Layout&Design

Weareconfidentthatwehavedesignedaflexiblecabinfor multipleuses.

Ifyouwishtorepositionwindowsorflipfloorplansweare happytocustomisetheserequeststosuityourneeds.

TheDartCabinisastandardwidthof3.4mandcomesin3 differentlengths.

Dimensions:from5.4m(L)x3.4m(W)x3.75m(H).

Interiorheight:3.05m.

Exteriorheightfromgroundlevel:3.75m

Chooseyoursize

SpecificationDocument ©LifeSpaceCabins2022 6
Option03:7.8m(L) Option02:6.6m(L) Option01:5.4m(L)
SpecificationDocument ©LifeSpaceCabins2022 7

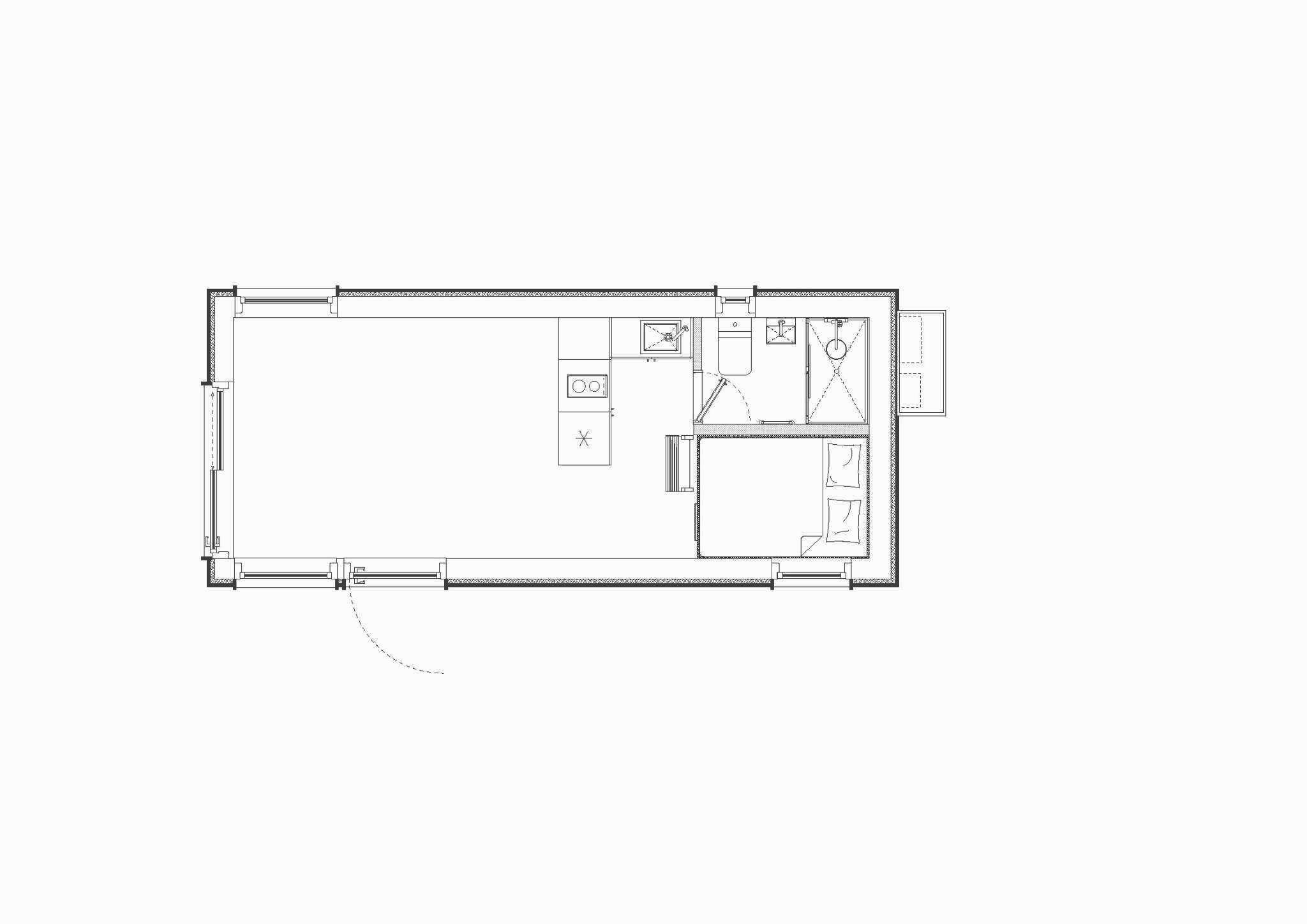
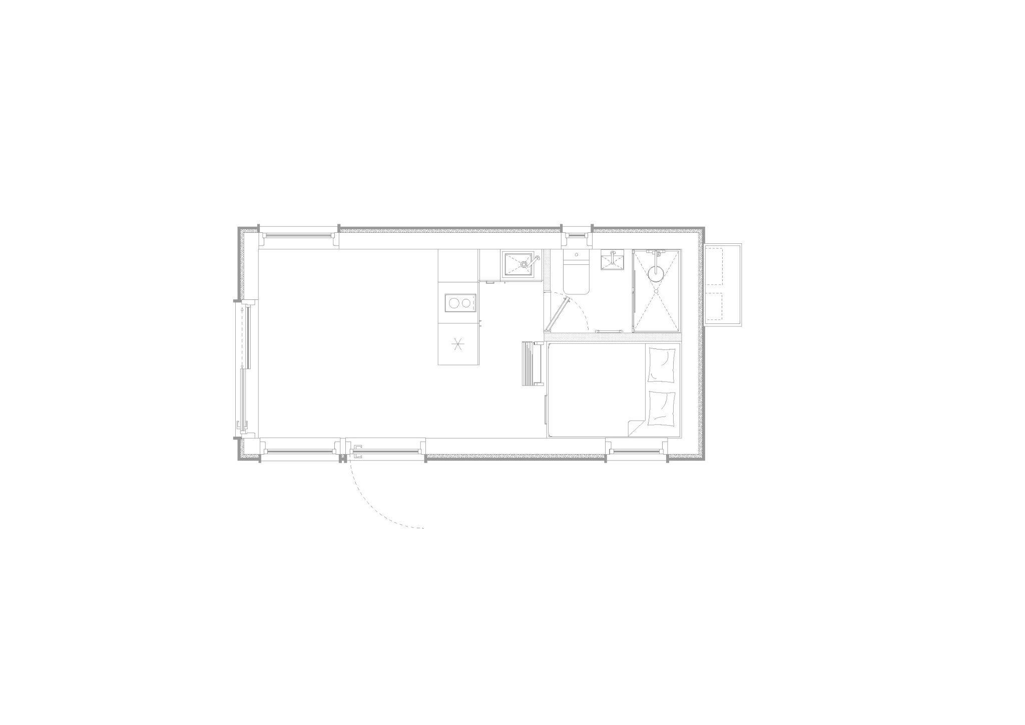
TheDartCabin Option01(5.4mx3.4m)

Specification

Dimensions

External3.4mx5.4m=18.5sqm

Internal14.5sqm

Heightfromgroundlevel=3.75m

Internalceilingheight=3.05m

Usage

● Sleeping*

● Bathing

● Cooking

● Living/Dining

● Working

*Upgrademezzanineoption + Mezzanine~7sqm

MezzanineFloorOption

Orientation

● Allfloorplanscanbe flippedandrotatedto suityourownneeds

● Windowscanbealtered tosuityourlocation

GroundFloor

Indicativelocationofplant cupboardifrequired

Document
Specification
Rotate Flip
SpecificationDocument ©LifeSpaceCabins2022 9
CurvedceilingwithLEDlightwash TheDartCabin Option01(5.4mx3.4m) Fullyfittedbathroom
5.4mLength 7.8mLength 6.6mLength
Fullyfittedkitchen

TheDartCabin Option02(6.6mx3.4m)

Specification

Dimensions

External3.4mx6.6m=22.45sqm

Internal18sqm

Heightfromgroundlevel=3.75m

Internalceilingheight=3.05m

Usage

● Sleeping*

● Bathing

● Cooking

● Living/Dining

● Working

*Upgrademezzanineoption + Mezzanine~7sqm

Sofabedprovidesadditional + (notprovidedbyLSC)

Orientation

● Allfloorplanscanbe flippedandrotatedto suityourownneeds

● Windowscanbealtered tosuityourlocation

MezzanineFloorOption

GroundFloor

Indicativelocationofplant cupboardifrequired

SpecificationDocument
Rotate Flip
SpecificationDocument ©LifeSpaceCabins2022 11
TheDartCabin Option02(6.6mx3.4m) CurvedceilingwithLEDlightwash Fullyfittedbathroom
Length
Length
Length
Fullyfittedkitchen 5.4m
6.6m
7.8m

TheDartCabin Option03(7.8mx

3.4m)

Specification

Dimensions

External3.4mx7.8m=26.5sqm

Internal21.5sqm

Heightfromgroundlevel=3.75m

Internalceilingheight=3.05m

Usage

● Sleeping*

● Bathing

● Cooking

● Living/Dining

● Working

*Upgrademezzanineoption + Mezzanine~7sqm

Sofabedprovidesadditional + (notprovidedbyLSC)

Orientation

● Allfloorplanscanbe flippedandrotatedto suityourownneeds

● Windowscanbealtered tosuityourlocation

SpecificationDocument

MezzanineFloorOption GroundFloor

Indicativelocationofplant cupboardifrequired

Rotate Flip
SpecificationDocument ©LifeSpaceCabins2022 13
5.4mLength CurvedceilingwithLEDlightwash Fullyfittedbathroom Fullyfittedkitchen 6.6mLength 7.8mLength TheDartCabin Option03(7.8mx3.4m)

External Living

SpecificationDocument ©LifeSpaceCabins2022 14
Chooseyourexteriorfinishes 1a.Cladding 1b.Windowsanddoors 1c.Guttering 1d.Lightingandelectrics
02. 03.
Defineyourwall,floorandstorage needs 2a.Internalwallfinish 2b.Internalfloorfinish 2c.InternalElectricsandLighting 2d.Bathroom 2e.Kitchen Makeyourcabinextraspecialwiththeseupgrades 3a.Externalmaterialupgrades 3b.Internalmaterialupgrades 3c.Logburner 3d.Bathroomupgrades 3e.Kitchenupgrades 3f. DeckingandOutdoorbathing 01. LifeSpaceCabinshascarefullyselectedapaletteofmaterialchoicesforexternalandinternalfinishes.
Internal Living Upgrade Options
ChooseYourMaterials
SpecificationDocument ©LifeSpaceCabins2022 15

01a.CladdingMaterials

Allofourtimberisresponsiblysourced(locally, FSCorPEFC certifiedormarkedwherepossible). Weavoidusing materialswherepossiblethathavealargercarbon footprintinfavourofalternativeUKsources. Weleavethe timbertosilvernaturallywhichtakesapproximately12-18 months.Thisreducesmaintenancegivingyourmoretime todowhatyouenjoydoing.

StandardSpecification

Optionsincluded

● Larchtimberlefttosilvernaturally

● Verticalprofiletimbercladdinglefttosilvernaturally

● Hitandmissverticaltimbercladding

● Blackcorrugatedtinontheroof(colouroptionsavailable).

SpecificationDocument ©LifeSpaceCabins2022
Hitandmissverticaltimber Corrugatedcolouroptions Silveredtimber

01b.WindowsandDoors

Ourcabinscomewithhighqualitythermallyefficient windowsanddoorsinachoiceofcolouroptionsasstandard andhavealifeexpectancyof85years. ThewindowscomeinarangeofRALcolourchoicesandwith acomprehensiveaftersalescareservice.Thegeneralunits comewitha5yearwarrantyandthehandlesand mechanismsa1yearwarranty.

StandardSpecification

●DoubleGlazedRationelAluminumCladpaintedtimber

●Dualcolouravailable(insideandoutside)*

●Highspecification

●Highthermalefficiency

●Choiceoffunctions*

●Subjecttoaleadtime

●Buildingregulationscompliant

●Three-pointespagnolettelockingmechanismandSecuredbyDesign rated.

●UpgradetoTripleglazed(85+yearslifeexpectancy.)

●AfterSalesnationalcoverage

BifoldsaremadebySunflexapremiumqualitymanufacturer.

*extrachargesmayapply.Moredetails availableonrequest

DidYouKnow?

Tripleglazedwindows&doors allowyoutohavemoreglassandmaintaina thermallyefficientspace.

SpecificationDocument ©LifeSpaceCabins2022 17
ChoiceofRALcolours Brushednickelhandles

01c.Guttering

Webelieveahighqualityrainwatersystemisimportantwhen creatingsomeofthefinaldetailsofyourcabinexterior

StandardSpecification

● Lindabguttering125mm-75mmdownpipe

● LindabHigh-BuildPolyestercomeswitha15yearguarantee

● Runintosoakawayordrainageinfrastructure (sitedependant)

● Arangeofcolourstochoosefrom*

● Ourpreferred:

-Galvanised

-Black

-Anthracitegrey

Didyouknow?

Thesoundofrainrunningthroughmetalgutteringcanbeextremely comfortingwhencosiedupinsideyourcabin.

*extrachargesmayapplytospecialisedcolours

colouroptions

SpecificationDocument ©LifeSpaceCabins2022

01d.LightingandElectrics-External

Ourstandardspecificationforexteriorlightingallowseasy accesstothecabinthathasanautomaticsensoron approach.Additionallighting*orexternalplugsockets*can beeasilyaddedtoyourcabinforspecificsites.

StandardSpecification

● 2no.ofoutsidelightsIP44rated.Choiceoffinishes*

● PIR(automatic)sensorwithoverrideswitch

● Extralightsandexternalsockets**canbeaddedforanadditional cost

Externallightingchoices

Didyouknow?

Someareasrequirelowerlightlevelstominimisedisturbance tobatsandwildlife.**

*Additionalcostsmayapply

**Pleasenoteplanningapplicationsmayhavelightingconditions.

InternalPIRoverrideswitchto matchswitchgear

SpecificationDocument
1. 1. ExternalwallLight3no.Standard (IP44Rated) 1. 2. 2. PIR270degreesensor-1no.Standard Positionedateitherendofcabin 2.
imagesGardenTrading

02a.InternalWallFinish

StandardSpecificationoptions

●PaintedTongue&Grooveverticalboarding

●Naturalboarding

●Featuredatumstrip

●Internalwindowrevealstomatchinternalcladdingorleft natural

●Tileoptionormultipanel forbathroom

Painted

SpecificationDocument ©LifeSpaceCabins2022 20
Naturalverticaltongueandgroovetimberboarding. timbertongueandgroove boarding Datumstripbetweenceilingwallingcladding

02b.InternalFloorFinish

EngineeredoakT&Gflooring Livingspace/kitchen/mezzanine

StandardSpecifications

●Engineeredoakflooring

●Stoneeffectvinylortileoptionforbathroom

●Shadowgapskirtingdetail

●Highqualitythresholddetailing

●Considerelectricunderfloorheating

●Dependentofsiteservices.

Bathroom:100%waterproofstoneeffectvinyl. Warmunderfoot.

Shadowgapskirtingdetail

Bathroom:Hexagonpodtilefloor-colouroptions

SpecificationDocument ©LifeSpaceCabins2022 21
Imagecredit:MandarinStone

02c.ElectricsandLighting-Internal

Bedroomsidelights.2no. +2no.withmezzanine Paintable,adjustableand independentcontrol.

Bedsidelightoption(upgrade)

WallLight4no.Standard

StandardSpecifications

●Walllights-centralcontrol

●Bedroomsidelights-independentcontrol

●FeatureLEDwashlightondatum

●Choiceofbackplatesandswitches

●450mmhighsocketslocations(orcountertopheight)

●1200mmhighwallswitches

●Extractorforbathroom/kitchen

●Isolatorsforappliancesasrequired

●Optionforelectricunderfloorheatingandthermostat

●OptionforDataWIFIaccesspoint

Forfurtherspecificationseeindividualbreakdownofrooms

Bathroomdownlights FeatureLEDwashlightondatum

Featurependantlights

Customisableswitchgearinblack/brass/brushedchrome combination

Doublesockets-4no. Standard +2no.Wmezzanine

SpecificationDocument ©LifeSpaceCabins2022 22
Imagesareindicative

02d.Bathroom

Asstandardourbathroomscomefittedwithahighquality curatedspecification.

StandardSpecifications

●Whiteshowertray

●Blackmixershowerwith fixed shower head & handset*

●Slidingshowerscreen*

●Achoiceoftiledormultipanel showerenclosure

●Matchingsplashback

●IlluminatedMirroroversink

●Low-levelclosecoupledWC

●Wallhungsmallsinkwithblackmixertap*

●BlackTowelrail*(linkedtoheatingsystem/electric)

●Extractorfan

●LEDdownlights

●Slidingtimberdoor

WallsasstandardareTongue&Grooveboardsuptoshowerenclosure.Enclosuretiledormultipanel. Ceilingpaintedwaterresistantboard

Floor:waterproofstoneeffectvinylortiled

*Achrome/orbrushedmetalcanbeofferedasanalternative(costmayapply)

StandardElectrical

Extractorfan/Lightswitch/2no.

Ceilingspotlights/Extractorand isolator/Electrictowelrail/Mirror andswitch

StandardPlumbing

Basinmixertap/SinkWaste/Mixer showerexternalvalves

SpecificationDocument ©LifeSpaceCabins2022 23
Photo Credit Commotion media

BathroomSpecification

Mirror

Wallhungsmallsink withblackmixertap

Closecoupled toiletwithsoft closeseat

Standardbathroomspecification*finishes maylookslightlydifferentasnaturalmaterials

SpecificationDocument ©LifeSpaceCabins2022 24 02d.
BlackTowelRail Blackslidingshowerscreen frame Blackmixershowerheads (rainshowerandhandheld) Illuminated Optionfortiledshowerenclosure andfloororchoseanotherstandard finish. Downlight

02d.Bathroom

SpecificationDocument ©LifeSpaceCabins2022 25
Standardbathroomspecification*finishesmayvaryduetonaturalmaterials. StandardElectrical Extractorfan/Lightswitch/2no.Ceiling spotlights/Extractorandisolator/Electric towelrail/Mirrorandswitch Tiledshowerenclosureandfloor ChoosefromtiledshowerenclosureandflooralongsideachoiceofT&Gwallfinishes

02e.Kitchen

Asstandardourkitchenscomefittedwithahighquality curatedspecification.

StandardSpecifications

Standardkitchenspecification*finishesmaylookslightly different.

●Highqualitykitchencarcasses

●Choiceofcupboardfrontdesignandfinishesincluding colouroptions.

●Worktopandupstand:SolidOak(OsmoMATTtreated)as standard

●Hob:2-zoneinductionhob

●Fridgeintegrated(electric/240v)

●Sinkandtap:Singlebowl,mixertap

Upgradeoption^

●Integratedcombioven(upgrade)^

●Choiceofworktopsanddoorfinishestosuityourstyle^

StandardElectrical

Twodoublesocket/Extractorfanand Isolator/HobandIsolator/2no.Wall mountedlightsorfeaturependants.

StandardPlumbing

Hotandcoldwaterfeedtomixertap

SinkWaste

SpecificationDocument ©LifeSpaceCabins2022 26
ImagecreditBethSquireforCanopyandStars ImageCredit:CommotionMedia

02e.KitchenSpecification

Shakerstyle Handleless

Hob:2-zoneinductionhob

1.0bowlsink.(stainlesssteel))

Integratedfridgewithiceboxcompartment

Numberofcupboardsanddrawerswillvaryingdependingoncabinsizeand arrangement. Anovenisanupgradeitem.

SpecificationDocument ©LifeSpaceCabins2022 27
Solidbrasshandles Singlefanovenand grill.(upgrade) Blackswanarchmixer tap Cupboarddooroptions. SolidOakworktopandupstand Paintedtimber. (canleleftunpainted)
SpecificationDocument ©LifeSpaceCabins2022 28
ImagecreditBethSquireforCanopyandStars

03.UpgradeOptions

Webelievethefinishingtouchestoacabinis wherethemagichappens.Fromtouchpointslike handlestoambient lightingthisisthepointat whichyouthecustomerinteractswithour spaces.

Herearesomeexamplesofwhatupgrade materialoptionsyoucanrequest.

● ExteriorOptions

● InteriorOptions

● Logburner

● Mezzanine

● Bathroom

● Kitchen

● Externalelements

SpecificationDocument ©LifeSpaceCabins2022 29

03a.ExternalUpgradeOptions

Herearesomeexamplesofwhatupgradematerialoptionsyoucan request.

ExternalUpgradeOptions

● Reclaimedweatheredcorrugated tin

● Shinglecladding

● Pre-silveredtimber

● Upgradedexteriorlighting

Reclaimedorincreasedspecification

Pre-weatheredcorrugatedtin

Shingles

SpecificationDocument ©LifeSpaceCabins2022 30
Brass bulkheadlightoption Pre-silveredtimber

03b.InternalCabinUpgrades

● MezzanineSleepDeckwithladder, additionalegress windowforventilation,2socketsand2lights.

● Handbuiltbedframewithpulloutdrawer

● Bespokependantlighting

● Reclaimedwooden kitchen doorfrontsand architecturalhandles

● Flooringoptionsarewiderangingbothinlookandcost butcancreateauniquelook.

Letuschatthroughyourideas.

LadderOptions

● HandbuiltLadderindouglasfir,oak orplywood

● Paintedfeaturecolour/tomatchinterior

● Simpleunpaintedladder

● Includeaoptionforahandrailandadditional hookandaccessory

SpecificationDocument ©LifeSpaceCabins2022 31
ImagecreditTomRaffield Imagecredit CorstenArchitectural ImagecreditBethSquireforCanopyandStars

03c.LogBurner

Ourcabinsareinsulatedtoahighlevelofspecification performance andreachbuildingregulationrequirements.

Howourspacesareheatedcanbeasimpleasunderfloor heatingormanycustomersliketooptforalogburner. Theseoptionscoverourrecommendationsfromaesthetics/ heatoutputandquality.

AlllogburnersarefittedbyanapprovedHETASengineer.

CharnwoodAire3

●Output3.7kw

●Loworstorestandoption

●Choiceofcolours

●Britishdesignandmade

GoAdventurer5

●Output3.3-5.3kw

●Liftoffovenoptionwithglassdoor

●50mmtocombustiblematerials (withheatshield)

●Britishdesign

SpecificationDocument ©LifeSpaceCabins2022 32
ImagecreditCharnwoodStoves ImagecreditCharlton&Jenrick

03d.BathroomUpgrades

UpgradeSpecification

● Bespokebathroomdesignavailable

● Upgradeonallhardware/appliances/fittings

● Showerwall upgrades/zinc /stone/tiling/

● Custommadeshuttertowindow

● Underfloorheating

● Outsideshower

SpecificationDocument ©LifeSpaceCabins2022 33 ●^
Imagecreditcrosswater.co.uk ImagecreditMandarinStone

03e.KitchenUpgrades

UpgradeSpecification

● Bespokekitchenavailable

● Upgradeonallhardware/appliances/carcasses

● Worktopupgrades/zinc/slate/stone/enamel

● Customdoorcladding/verticalburnttimber/naturalorpainted

● Upgradeonappliancestoincludecombioven,freezer,storage

● Shelving

● Lighting

● Pantrystyledoorsforhidingawayanyclutter.

● Instanthotwatertapsystem

*extrachargesmayapply

SpecificationDocument ©LifeSpaceCabins2022 34
Right Bespokeoption:-BrassandOak KitchenByAtelierCabinets* BottomLeft TimberveneeredKitchen byBjarkeIngels GroupforKlein. TopLeft Bespokeoption:-KitchenByPlykea* ImagecreditDowsing&Reynolds

03f. Externalbathinganddeckingupgrades

UpgradeSpecification

● Outdoorshower

● Outdoorbathtub/hottub

● Deckingcanbecustomisedaroundyoursite requirements.Ourstandardupgradeistoatimber deckinghoweverwealsohavearangeofhighquality premiumcompositeoptions.

● Sleepersteps/inbuiltdeckinglightsallavailableasan upgrade

● Lowlevelpathlighting

● Sauna

● Veranda

● Logstore

● Storage-general

Lowlevelpathlighting

Compositedeckingortimber

SpecificationDocument ©LifeSpaceCabins2022 35
WilliamHollandbathtubcopperandzinc Hikkibathtub.CedartimberandZinc

PowerandServicestoyourCabin

General

Withourcabinshowtheywillbepoweredbecomesoneof thefirstconsiderations. Itisworthconsideringwhattypeof experienceyouwishtocreateandthenwecanguideyouon howthiscanbepowered.

Weaimtocreateahotelroomexperiencewhileplacedin naturewithour‘stay’cabins.Thespacesareverywell insulatedasstandard,soyouandyourguestscancertainly liveorstayinthemyearround.

HotWater

Ourexperiencehasshownthelargestenergydemandona cabinishotwater.

Aguestandyouarelikelytorequireplentifulamountsofhot water.Ifyouareonthethemainsgridthentherearesome moremainstreamsolutionsavailable.Thefurtherawayfrom thegridthemorecreative/expensivethesolutionscould become.

Hotwatercanbegeneratedbyfire,gas,electricorsolar directlyorindirectly.

Wewillhelpguideyouthroughtherightsolutionforyour cabinandpreferredsite.

Water

Italsoisworthmentioningthatallwateriscriticaltocabins. Canyouconnecttothemains? Canwesinkaborehole?Or areyouhappytocarryinyourwaterneeds?Rainwater harvestingorgreywaterrecyclingcouldbeoptionsforyour project.

Waste

Alocalisedtreatmentplantcansolvemostwaterandfoul wasteissuesandgiveyoutheluxuryofaflushingloo.Having saidthat,therearesomegreatalternativesusing‘compost’ loos.Wepromisethattheyhaveimprovedfrom‘shedsover deepholes’!

Offgridpower

Alternativestoaon gridsolutioninvolvesolarorwind generation.Thesetypicallycomewithahigherinitial investmentbutthengiveyoualifeofreturnonthat investment.

Heatingandcooking

Alternativeheatingandcookingsourcescancomeinthe formofalogburner,woodfiredovenorLPG.Alogburnercan comewithasmallovenandheatplateforcookingorthe optionforawoodpoweredrange.

Largerprojects

Ifyouhaveaplantocreateamultiplecabinventurewe wouldsuggestahubforheatandpowergeneration. Consideracentralisedbiomass,air/groundsourcesource heatpumpboostedbysolar/windpowergeneration.

Yourcabin,Oursolution

Wewillhelpguideyouthroughtheoptionsforyourproject.

SpecificationDocument ©LifeSpaceCabins2022 36

SustainableBuildings,BrilliantlyDesigned

Performanceofourcabins

Itisproventhatnotonlyaresustainable,well-designedbuildingsmore durableandstrong,theyarealsohealthierandmorecomfortableplacesto liveandworkin.

Weprideourselvesonbrilliant,architecturaldesignthatisbuilttolast.

1. Insulation

● 150mmRockwoolWalls

● 100mmRockwoolFloors

● 200mmRockwoolRoof

2. Cladding ● 18mmNaturalTimber

● Vertical+Counter batten

● 0.7mmcorrugated profile

3. Membrane

50mm

● Featheredge 4-12mm

● Verticaltreated profile

● Singleorno batten

● ActisBoost‘R’Hybrid (continuousinsulation membranelevel)Taped

● Basic housewrap Noinsulation qualities

R=2.4ms K/W

4. Structural Timbers

● OSBsheathing

● CNCprofiledribs

● Treated/Untreated timberusedas required

● Singlesheathed

● Smalltimber depth

5. VCL

Windows

● Highqualityinternal vapourcontrollayer

● RationelWindow Product

● 85yearlifeexpectancy

● NoVCL

● Singleglazed

● Lowquality doubleglazed

Engineering

● AllofourDartcabins complywith engineeringand structuralcalcs

● Noengineering support

*U-Valuesmaydifferdependingonfinalconfirmedspecification SAPreportcanalsobearrangedforbuildingperformance

1.6 (acceptable minimum)

0.76 (Rationel product Triple glazed)

©LifeSpaceCabins2022
Type OurSpecification ‘TypicalGardenRoom alternatives’ BuildRegs U-Values LifeSpace Cabins Levels*
Walls
Roof
Minimal
insulationPIR Walls0.18 Floor0.13 Roof0.13
0.18 Floor0.13
0.15
5. 1. 1. 3. 3. 4. 4. 1. 2.
4.

GeneralProjectNotes

Costs

Pleasecontactusforthepricelist

Everyprojectandsiteisuniquesoacustomsolutionisoftenrequired tobalanceneedsagainstbudget.Wewillguideyouthroughthe variousconsiderationswhichmayinclude:

Foundations

Weworkwithaspecialistgroundscrewcompanygivingus nationwidecoverage.Inmostcasesgroundscrewsareanideal solutiontofoundations.Theyarequicktoinstall(usuallywithinone daypercabin).Theyareflexibletosuitgroundlevelsandalternative structuressuchasdecking. Noconcreteisneeded-thisisacritical factorforus8%ofglobalemissionscomefromthecementindustry. Webelieveineradicatingaconcretelegacyforourprojects,where possible.

Agroundscrewpulltestisrequiredtodeterminetheground suitability.Thistestischargedandcarriedinadvance. Groundscrewsarewellsuitedtotrickylocations,suchastreeroot zonesandareconsideredapositivesolutionbyarboricultural specialists.Theyalsocomewitha25yearguarantee.

VATsaving

TheDartisdesignedtoconformtothedefinitionofaCaravanor residentiallodgewhichsimplymeansthatyoucanbenefitfroma reducedVATrate.Thespacemusthavecooking,bathing,sleeping, diningprovisionsuppliedbyLifeSpaceCabinsLtdinordertosatisfy thisreduction Pleasenotethatnotallspaceswillbenefitfromthis reducedrate.

SpecificationDocument ©LifeSpaceCabins2022 38

GeneralProjectNotes

Planning

Therearevariousroutesthatcanbeusedtonavigatethroughobtaining planningpermission. Theserouteswillvarydependingongeographicallocation,LocalAuthority andsitefeasibility.

LifeSpaceCabinscanofferalighttouchservicewhereweuseour experienceandexpertisetomakeanappropriateapplicationforyou.Itcan neverbeguaranteedthatpermissionwillbegained.Whereanapplicationis beyondourlevelofknowledgewewillrecommendathirdpartyplanning consultanttojointheteamandguideusthroughtheapplicationprocess. Thiswillgiveusthebestchanceofgettingtherightpermission.

AccessandInstallation

Wetry,wherepossibletoprefabricateourcabinsanddelivernearcomplete spacesintositeforlocalconnectiontoservices.Thismeansthatwewill needtogainaccessforlargevehiclesandcranestofacilitateasmooth delivery.

Whereaccessistightortrickyweareasolutionsfocusedteamandcan usuallycreateastrategyforthedeliveryofaprefabricatedcabin.We haven’tyetneededahelicopterbutonedayIamsurewewill! Wearealsoabletoconstructthecabininpiecesbringingtheelements togetheronsiteinmoduleswhereourskilledcabincreatorteambuildand completethecabin.

Thecostsvarydependingonwhichrouteweneedtotaketoconcludethe installationofyourcabin.

SpecificationDocument ©LifeSpaceCabins2022 39

BespokeDesignandCustomisationService

LifeSpaceCabinsisfoundedontheprincipleofcreatinggreatpiecesofsmall architectureinaresponsibleway. OnePlanet.OneLifeSpace.

Weachievethisthrough4core values; Design;Creative,solutionsfocusedandattentiontodetail Quality;Workmanship,MaterialsandService.

Responsibility;Forthewiderprojectandtheplanet

Fun;Wechosetocreatethiscompanyasalifechoice-weenjoywhatwedo.

Inthebeginningallourcabinprojectsstartedwithablankpieceofpaperanda uniquecabinisformedinresponsetoaclientbrief.Thisskillanddesirehasn’tgone away.

WewillcreateacustomisedversionoftheDartforyouorequallywecancreatea trulybespokesolutionforyou.

Ifyouthinkabespokecabinismoreyourstylethenaskaboutourdesign consultationoption.Wewilldiscusstheoptions,yoursite,yourbudgetandyour wishesandtheneitherlooktotweakaportfoliodesignorcreatesomething completelyuniqueandexciting.

Thisserviceiscarriedoutbyourin-houseteamofdesignersorourcollaborating architects.Onceabriefisdefinedwewillthencreateaproposaloutliningfees, projectstagesandtheoverallprocess.

SpecificationDocument ©LifeSpaceCabins2022 40

GeneralNotes

GeneralExclusions

● SiteVisit(unlessoutlinedinaquote)

● Servicesfeedandconnectiontothecabin(requiresasitevisittocreatea sitespecificsolution)

● Access-subjecttositevisitandsitefeasibility.Weareasolutionsbased company

● Foundationsandspecialistfoundations.Sitespecificdetailsmaybe required

● Groundworkstopreparethesite.

● Sitespecificengineering (stilts,floating,topographic,access)

● Licencetousethedesignbeyondoneuse

● Planningpermissionandfees

● ThirdPartyConsultants

● Buildingregulationsfee(unlessoutlinedinaquote)

● FireSafetyrequirements(specifiedbybuildingregs)

● Off-GridSpecifications-letuschatthroughtheoptions

● Deliveryandinstallation.Distancesover100milesor1.5hoursfromour workshopinSouthDevonwillrequireovernightaccommodationand sustenance.(unlessoutlinedinaquote)

● Landscapingworks(unlessoutlinedinaquote)

● Demolitionandsiteclearance.(unlessoutlinedinaquote)

Pleasenotethatthespecificationsandoptionslistedarecorrectatthetimeof writing.Anyofthesemaybealteredatanytimewithoutnotice.Thisspecification listdoesnotconstituteanycontractorpartofanycontractandisforguidance only.Theexactspecificationofyourcabinwillbeconfirmedinwritingatthetime ofyourorder.

SpecificationDocument ©LifeSpaceCabins2022 41

HowtoOrder

Let’spopthekettleonandmakethisassimpleandasenjoyableaspossible!

● Firstlymakealistofyourchoicesandquestions,thenletusschedule achattogothroughyourneedsandselections.Planningwillfeature aspartofthisdiscussion.

● Ourteamwillthencollateasummarydocumenttoincludeaguide priceforthecabin.

● Wethenrequestapreorderdeposit.Uponpaymentofthedeposit wewillgenerateadesignsheetofyourDARTcabin,carryoutasite visitandstartplanningthemethodforinstallation. Ifapplicable,the planningprocessisusuallycarriedoutatthispoint. Timescaleswill vary-butwewillguideyouthroughastrategyandthelikelytimeline.

● Afinalquotationwillbegeneratedtoincludeasmuchinformation aspossible.Thisispresentedforyourreviewandapproval.Variables willbeclearlyhighlighted.

● Theorderinvoice40%isissued,afterwhichwewillorderthecritical pathitemssuchasthewindowsanddoors(10-12weekleadtime). Theprojectdeliveryteamwillthenbeintouchtoagreeasite delivery/installationplananddate.Asconstructionprogressesin theworkshopthenextinvoicewillbeissued50%.Priortodeliverythe finalinvoicewillbedue10%.Youareverywelcometovisityourcabin beingcreatedatanytimeinourworkshopinSouthDevon.

● Whilethecabinisbeingbuiltwewillbeginsitepreparation(if includedinourscheduleofworks)toincludethefoundations, drainageandinfrastructure.

● Thecabin,onaveragefrompointoforder(postplanning)isusually 4monthstodeliverybutthiscanvarydependentonmaterials supplyandourworkprogramme.Weoperateonafirstcomefirst servedbasisafterthedepositisreceived. Weareasmallteamwhobelieveingettingitright,goodcommunicationand reliability.

Welookforwardtoworkingwithyou.

SpecificationDocument ©LifeSpaceCabins2022 42
Contactusforachat. Wecan’twaittogetstarted. hello@lifespacecabins.co.uk +44(0)1364705057 ThankYou
SpecificationDocument ©LifeSpaceCabins2022 44
TheWorkshop,MoorsheadSawmills, NearHolbeton,Yealmpton. Plymouth,DevonPL82ES

Turn static files into dynamic content formats.

Create a flipbook
Issuu converts static files into: digital portfolios, online yearbooks, online catalogs, digital photo albums and more. Sign up and create your flipbook.
The Dart (V3) by mtcmedia - Issuu