ARCHITECTURE PORTFOLIO - Michika ONO

Page 1

ARCHITECTURE PORTFOLIO

2020-2022

Tokyo Institute of Technology

小野美史Michika ONO

小野美史 Michika ONO

東京工業大学 環境・社会理工学院 建築学系 安田幸一研究室

EXPERIENCE

2000.03     東京都目黒区 生まれ

2015.04     東京都立戸山高等学校 入学

2019.04     東京工業大学 環境・社会理工学院 入学

2020.04     同学院 建築学系 入系

2022.04     同系 安田幸一研究室 配属

2020.06-      赤レンガ卒業設計展 実行委員

2022.02-      日建設計 アルバイト

2022.03-      建築再構企画 アルバイト

SOFTWARE SKILL

Rhinoceros

AutoCAD

Revit

Vectorworks

CLIP STUDIO

OTHERS

ACTIVITY at HIGH SCHOOL

日本建築学会誌「建築雑誌」座談会への参加

SSH スーパーサイエンスハイスクールでの研究活動

日本物理学会第12回Jr.セッション参加 2016ひろしま総文 自然科学部門 発表

研究ポスター

Adobe Illustrator

Adobe Photoshop

Adobe InDesign

LUMION

アメリカ研修参加

2 ARCHITECTURE PORTFOLIO Michika ONO
インテリアコーディネーター 資格取得(2022年2月)
第38回東京都高等学校文化祭 自然科学部門 文化連盟賞 サイエンスキャッスル シンガポール大会でのプレゼンター賞受賞
3 PROFILE 2 EXPERIENCE SOFTWARE SKILL ACTIVITY atHIGHSCHOOL WORKS 4 01.  Re-river -立会川再生計画に伴う水辺の再編2021年度 設計製図第四 意匠スタジオ 建築学縁祭2021~Rokie戦~100選入選  華「ka」2022年号掲載 6 02.  TOKYO ANDON 2021年度 設計製図第三 意匠スタジオ 木下洋介賞受賞 16
2020年度 設計製図第一 住宅課題 華「ka」2021年号掲載 28 05.  書case 2020年度 設計製図第二 図書館課題 34 03.  Reciprocal Park 2021年度 設計製図第三 アーバンデザインスタジオ 華「ka」2022年号掲載 22 07.  Univer-CITY -早稲田大学とその周辺における新たな街の提案2021年度 住環境計画 最終課題 38 08.  Make It, Yours. 創立30周年記念バッグデザイン 40 06.  桟に蕾む -文化振興の主軸としての河口湖美術館再構築計画2021年度 設計製図第四 意匠スタジオ 36
04.  ぷろむなーど・はうす
5 WORKS

2021年度 設計製図第四 意匠スタジオ

Re-river

建築学縁祭2021 〜Rookie選〜 100選選出 華「ka」2022年号掲載

スローネイバーフッド Slow Neighborhood

人類は移動し過ぎていたのではないか

コロナウイルスによる移動の制限は人間の自由を束縛する好ましくない事態と捉えられるが、 移動を少なくすることは必ずしも悪い影響だけではない。自動車交通や航空便が減ることによ り大気汚染や温室効果ガスが抑制されており、今まで人類は移動し過ぎていたのではないか。

徒歩圏都市モデルが現実化しつつある現在の都市を観察して、どこをどのように改変すれば 良いか計画診断をし、その上で新しい暮らし方、働き方、余暇の過ごし方を想定し、新しいタ イプの建築を構想してほしい。

能作文徳建築設計事務所「西大井のあな」を中心に半径1.0kmの範囲をリサーチして敷地を 選定し、スローネイバーフッドのアイデアを提示することが本課題のゴールである。

ー課題ハンドアウトより抜粋

6 ARCHITECTURE PORTFOLIO Michika ONO Re-river
01
敷地:東京都品川区二葉 立会道路 用途:緑道, 住宅, オフィス, 商店など 指導教員:塚本由晴, 能作文徳, Gabriel Kogan ゲストクリティーク:西沢立衛
-立会川再生計画に伴う水辺の再編-

Re-river

/rìː-, riː-/ 《◆強調するときは/ríː-/となる》

接頭辞 [動詞またはその派生語に用いて]再び, 新たに, 繰り返して; 元に| rebound/refine《◆次の音節がeや大文字で始まるときはしばしば, また既成語 と区別するときは通例ハイフンを用いる; 例: re-enforce/re-create (cf.recreate)》 ---------ジーニアス英和辞典 第3版より

8 ARCHITECTURE PORTFOLIO Michika ONO
re-
立会の開渠化、 沿道建物のふるまい再考、 そして、親水空間の再編が始まる。 9 WORKS Re-river 敷地図 1/800

SITE - 東京都品川区二葉 立会道路

古く、立会川は魚やザリガニのいる綺麗な小川で、子供たちの絶好の 遊び場であった。しかし、流域の急激な宅地化により、川は生活排水 で汚れていった。1972 年にはほとんどの部分が暗渠化され、現在では 地上部は立会道路となり、旧立会川は下水道幹線として息を潜めている。

10 ARCHITECTURE PORTFOLIO Michika ONO Re-river
敷地図 1/12500

RESEARCH - 建築の類型 - Typology

暗渠化によって沿道建物は立会道路に対して閉塞的になっている。水辺が再編されれば、それぞれのファサードはふるまいを再考することにな るだろう。そのとき、立会道路沿いの建物を、職と住の関係から、大きく4つのタイプに分けて、その内3タイプに対してリノベーションを行った。

Type A ビルトインガレージタイプ

1階に車庫をもち、車体が建物 を抉っている。玄関は奥まって おり主に2階以上で生活する。

Type B 専用住宅タイプ

一軒家など完全な住宅。

車庫がない、もしくは 建物と分離されている。

1階に仕事場(店)があり、 2階以上は主人もしくは 他人が居住している。

人が住むことを目的としない 建物。商業、産業や公共施設、 厚生施設として利用される。

11 WORKS Re-river Re-river
Type C 職住一体タイプ Type D 非住宅タイプ 敷地図 1/2000
ARCHITECTURE PORTFOLIO Michika ONO

Type A -親水する- hydrophilicity

ビルトインガレージタイプ

車体により歩行空間と居住空間は分断 されていた。親水デッキを構えるこ

とで、親水性をまとい、川へと展く。

プライバシー保護のための厚い ベランダの手すりは、外部との 関わりを遮っている

ビルトインガレージのために 閉塞的な玄関口

自転車と自動車の走る 危険な交通状況

ベタ基礎や暗渠管による

自然水脈の遮断

PRESENT

高木による蒸散により 水循環が促進される

木の根の自由な成長

親水デッキ 完全に分断されていた公私 の境を親水デッキの挿入に より曖昧にする

13 WORKS Re-river
PROPOSAL
断面図 1/100 平面図 1/100

B -循環する- circulation

専用住宅タイプ 目隠しのフェンスで閉ざされていた。表 層をワークスペースとし住空間を奥に することで街に対して開放的になる。

個の籠った居住環境 目隠しのための高いフェンス 細根不良 舗装による土壌通気の遮断

主に居住者のための職の空間が 建物ファサードに設けられる

階段は縦方向の広がりを作り、 川からの空気を上へと押し上げ

循環を促す

川から木へ、土壌から川への 自然な水のやりとり

14 ARCHITECTURE PORTFOLIO Michika ONO
Type
スラブに設けた縦穴浸透孔
PRESENT PROPOSAL 断面図 1/100 平面図 1/100

Type C -馴染む- familiar

職住一体タイプ

公私を上下に積み、敷地いっぱいの建物が 歩行空間を圧迫していた。セットバックに より住民同士のコミュニティを活性化する。

川が流れることで薄れつつある 隣人同士の繋がりをも再生する

PRESENT

セットバックしたファサード にはベンチを設け、公私の境 を曖昧にする

15 WORKS Re-river
小さな開口のみの閉鎖的な ファサード 敷 地 ギ リ ギ リ ま で 迫 る 建 築物は歩行者を圧迫する
1階商業部と2 階居住部の 完全な分離
樹木根による地盤の安定化
PROPOSAL 断面図 1/100 平面図 1/100

2021年度 設計製図第三 意匠スタジオ

TOKYO ANDON

木下洋介賞受賞

敷地:東京都江東区豊洲 指導教員:金箱温春(金箱構造設計事務所), 杉山俊一(日建設計), 奥山信一, 香月歩, 西慶三(日建設計) 用途:劇場, 商業施設 ゲストクリティーク:安田幸一, 木下洋介(木下洋介構造計画), 岡山俊介(金箱構造設計事務所)

大スパン構造を内包する都市建築の設計

都市における大空間とは何か。

建築における大空間の歴史を考えると、宗教のための空間に始まり、劇場等パフォーマンス のための空間を経て駅舎や空港などの交通施設などからさらに大きな発想まで拡がりを見せて きました。なぜ、都市に大空間が必要とされているのか。どんな役割が求められているのか。 だとすればその第空間はどのようなかたちを必要とされるのか。そのためにどのような構造シ ステムで創られることが求められるのか。

世界的感染症を経験する都市・建築において、今その役割の認識がこれまでよりもさらに強 く求められます。逆にその役割の強さを見出すことができれば、今後の大空間形成の一つの軸 になりえるでしょう。これからの都市と建築の在り方とその意義について、大空間づくりを含 めた積極的な提案を通して共に考える機会になればと考えています。

ー課題ハンドアウトより抜粋

16 ARCHITECTURE PORTFOLIO Michika ONO TOKYO ANDON
02

TOKYO ANDON

SITE - 東京都江東区豊洲

屋内外両方の劇場をもつ文化施設の提案。関東大震災の埋立地で長年造船が行われてきた豊洲は、再開発 により若年層が増加している。敷地は豊洲駅前で居住者、訪問者の通り道である。働きに来る人、遊びに 来る人、帰宅する人、それぞれの「道」は多様で集いの場となっているが、動線の交錯が目立つ。東京湾

も近い敷地には海風や波音、潮の香りが流れ込み、豊洲公園や、ららぽーとからの賑わいなど、五感で街 を感じられる場所である。夜には高層ビルや対岸の夜景など視覚的にも刺激的である。街の玄関口である 敷地に、駅から配した主動線は2つの劇場間を通り抜ける。歩行者は両劇場を五感で認知しイベントへの

参加不参加関係なく、 非日常的体験が日常の中へ入り込む。建物にかかる膜の大屋根は、五感を使う体験 的な空間において外部からの風や音を遮ることなく自然に引き込み全体を包み込む。対称に建物内の賑わ いや滞留は外部に溢れ出し、膜屋根に活動が映し出される。膜屋根は大きな灯りとなり豊洲を包み込む。

18 ARCHITECTURE PORTFOLIO Michika ONO
敷地図 1/4000
潮風、人々の賑わいが入り混じる体験的な街

1 ららぽーと方面ペデストリアンデッキ 2 オフィス方面ペデストリアンデッキ

3 屋内劇場

4 屋外ステージ 5 ショップ&カフェ 6 地下駐車場・駐輪場 7 ギャラリースタジオ

断面図 1/500

19 WORKS TOKYO ANDON

STRUCTURE - アーチ × 膜構造-

海風や賑わいなど街を五感で体験的に感じられる敷地には、それらの要素を遮らずに覆う ような架構が適する。駅から配した動線デッキを主軸に街の各所に架け橋を渡すように アーチをかけた。人々はアーチに沿って進む、潜るなどアーチの持つベクトルを感じなが ら空間内を移動する。かけられた膜は柔らかい灯火となって、「行灯」のように街を照らす。

丸鋼アーチ構造の 大スパン架構はアーチ根元の基 礎の両端を地下で結ぶことにより、スラストを負 担する。また架構に細かく取り付けた金物で 膜材 を 吊り下げることで、内外からの膜構造の見え方 の差異を生み出す。大屋根は内側からは雲のよう に、外側からは波のように捉えることができる。

20 ARCHITECTURE PORTFOLIO Michika ONO TOKYO ANDON
断面詳細図 1/100
21 WORKS TOKYO ANDON TOKYO ANDON 1 屋内劇場  2 ららぽーと方面ペデストリアンデッキ  3 オフィス方面ペデストリアンデッキ 4 屋外ステージ  5 屋上広場 6 ホワイエ  7 屋内劇場上部  8 ショップ&カフェ 9 地下駐車場・駐輪場  10 ギャラリースタジオ 3階平面図 1/500 2階平面図 1/900 1階平面図 1/900 地階平面図 1/900

2021年度 設計製図第三 アーバンデザインスタジオ

Reciprocal Park

華「ka」2022年号掲載

敷地:東京都大田区北千束 用途:行政出張所 兼 公園 指導教員:中井検裕, 十代田朗, 津々見崇, 沼田麻美子

持続的に地域の魅力が向上する場の提案

「まち」を読み解く

北千束一丁目にある敷地条件に収まるように、建物の設計、デザインすること。対象地の用 途地域や人口など社会情勢や土地利用、建物の外観を資料やweb等で調査し、街に必要な空間 を把握し、周辺に調和するように設計をすること。

設計を通じて、土地利用から建物の配置や構造、設計・運用まで都市計画と設計の入門的ト レーニングをしてもう。都市計画/まちづくりを展開させる上での問題意識とその結果に触れ、 地域を観察する目を養うとともに、資料収集、現地調査を経て、地域の魅力が向上するような 計画づくりの学習を狙いとする。

ー課題ハンドアウトより抜粋

22 ARCHITECTURE PORTFOLIO Michika ONO Reciprocal Park
03

Reciprocal Park

SITE - 東京都目黒区 大岡山北商店街

大岡山周辺地域では行政と住民の接点が少なく、住民サービスの 提供と享受の機会が少ない。東京工業大学もある文教地区大岡山

は、幅広い住民層が街を形成している。多層で形成された街に は多面的な生活サービスが求められるにも関わらず、目黒線以

北には行政サービス施設がなくサービスを受け難い状況にある。

公助を希望する世代が多く住むこの地域に求められるのは、日常の 中で気軽に利用できる「公の窓口」であると考えた。敷地近くには 目黒区、品川区との区界があり多くの来訪者のあるこの敷地には、

区外の窓口もあると良いと考えた。また玄関先や商店で井戸端会議 をする姿も多く、家と社会の中間の「集いの場」が求められている。

Q. この地域の自然環境を次世代に残したいと思うか

参考:大岡山・千束地区まちづくりニュース28号

そう思う

ややそう思う

どちらとも言えない

あまり思わない

そう思わない

無回答

24 ARCHITECTURE PORTFOLIO Michika ONO
敷地図 1/3000
多層的な住民と 不足する行政サービス

1 行政オフィス

2 カウンター

3 会議室

4 トイレ

5 待合スペース

PFIを用いた、 行政施設と 都市型公園のレイヤード

1階に行政サービス、2階に運動スペースのある公園 を持つ立体公園の提案。現在、都市の人口は上昇、宅 地細分化が大いに問題視されており、これからはよ り一層効率的な土地の使い方が求められる。日頃使 う場所に行政窓口やコミュニケーションの場となる 公園をまとめた。気軽に訪れることのできる公園を 上層階に、行政窓口を1 階に設けることで、利便 性のある親しみの場とする。南北に伸びる長方形敷 地の北東には十字路があり、歩車ともに通行量が多 い。遊歩道を設け、敷地内部に商店街からの流れを引 き込むことで交通量の多い接道上での危険を軽減す ると共に、遊歩道によって分けられた敷地角ではカ フェを営み、通行人がほっとひと息つける場とする。

会社員 通勤退勤に遊歩道を通って コーヒーを購入。

主婦 気軽に行政サービス を利用。

小学生 学校の帰りに運動スペース で遊んで帰る。

6 厨房

7カフェスペース

8 コーヒースタンド

9 小運動スペース

高齢者 散歩に帰りに食事をしたり 井戸端会議をしたり。

25 WORKS Reciprocal Park 1階平面図 1/200 2階平面図 1/200

住民も学生も足を運びやすい上階へのアプローチ

新たな交流拠点は住民の活動を活性化し、相互に混じりあう

敷地内部に遊歩道を設け、交通量の多い接道での危険を軽減

屋上公園に運動スペースを設け地域の緑を育む

Reciprocal Park 26 ARCHITECTURE PORTFOLIO Michika ONO
「商・学・住のまち大岡山」
Reciprocal Park 27 WORKS Reciprocal Park
東立面図 1/150

2020年度 設計製図第一 住宅課題

ぷろむなーど・はうす

華「ka」2021年号掲載

敷地:東京都大田区南千束 用途:二世帯住宅 指導教員:山﨑鯛介, 藤田康仁, 村田涼, 立花美緒

仕事場を持つ独立二世帯住宅の設計

新しいワーク・ライフ・スタイル

敷地は、近年風致地区に組み込まれた良好な環境の住宅地であり、また周辺では歴史を活か したまちづくりが進行中である。

良好な環境の住宅地に家族共有の仕事場を持つ木造の独立住宅を設計する。地域に根ざした 暮らし、心地よい働き方+住まい方を可能にする住宅を提案すること。

ー課題ハンドアウトより抜粋

28 ARCHITECTURE PORTFOLIO Michika ONO ぷろむなーど・はうす
04

敷地周辺の様子

SITE- 東京都大田区南千束

自然と歴史の風致地区

敷地は洗足池の真東に位置し、そのまた東には 勝海舟記念館が建つ。 北側は西郷隆盛留魂詩碑

や勝海舟夫妻の墓もある文化的地区である。当 該敷地での生活には緑と文化の風が吹き抜け、 自然環境と人間生活が共存する場所である。昨 今の生活様式の変化により、今まで分離されて きた「職」と「住」の関係性もが変容した環境 下で我々の「住まい」のあり方を再考した。

計画敷地

勝海舟記念館 敷地西の石畳 勝海舟夫妻の墓 洗足池公園 配置図 1/1250

敷地を巡り、室を結ぶスロープ

「職と住」「共と独」を結ぶ二世帯住宅。敷地を巡るようなスロープに沿って居室を配置し、 スロープを巡りながら散歩などのできるアトラクティブな住まいの提案。昨今の生活環境

の変化により、これまで切り離されたものとして考えられてきた職住が混ざり、公と私の 関係性は変化した。このような環境で人が移動する機会は減少し、住宅内には自分の「好

きな」居場所を選べることがより強く求められるようになった。1本のリボンの様なスロー

プは敷地を巡り居室を壁の共有なく繋ぐ。 機能も居心地も異なる各居室は、

それぞれが独立しながらもスロープによって物語のように滑らかに

結ばれる。居住者は家にいながらもスロープを 辿って散歩をし、変化を楽しむ

ことができる。

30 ARCHITECTURE PORTFOLIO Michika ONO
アイソメトリック図
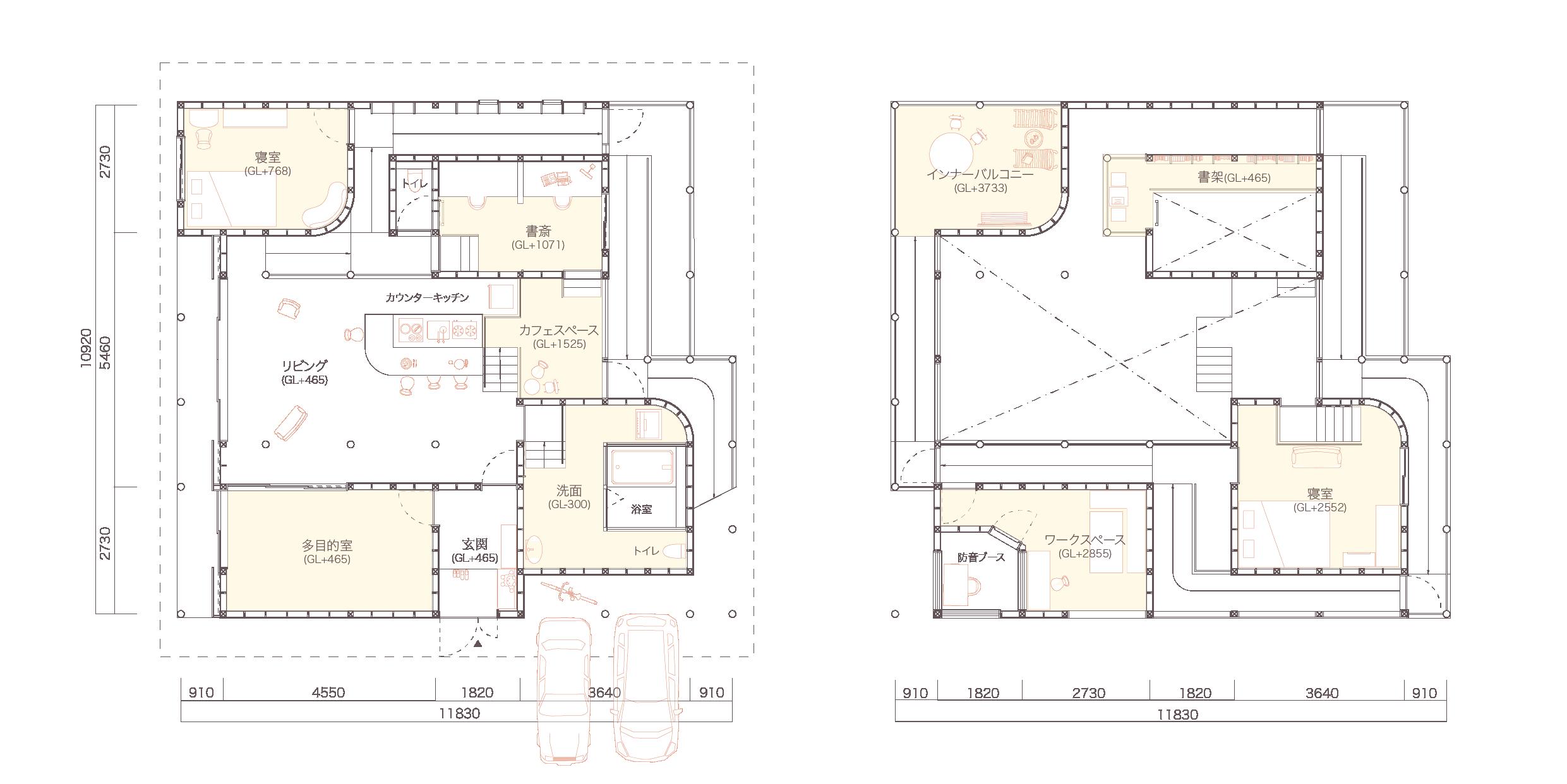
31 WORKS ぷろむなーど・はうす indoor outdoor indoor outdoor リビング インナーバルコニー コレクションを飾る 好きな本を 手にとる カフェを楽しむ 美術館の様に鑑賞する 思い出を残す 1階平面図 1/80 2階平面図 1/80 スロープダイアグラム

屋根:ガルバリウム鋼板 t=0.40 横葺き アスファルトルーフィング

野地板 t=12

天井:クロス張り仕上げ

ラワン合板 t=5.5

グラスウール t=50

手摺:FB-50*5

天井:クロス張り仕上げ

ラワン合板 t=5.5

野縁 40*60mm@303

グラスウール t=50

軒裏:羽目板張り t=18

耐水PB t=12.5    野縁 30*40mm@303

書架床:フローリング桧 t=12

構造用合板 t=24

胴差 120*300mm

小梁105*135mm

書斎内壁:クロス張り仕上げ ラワン合板 t=5.5

寝室内壁:

クロス張り仕上げ

石膏ボード t=12.5

寝室床:フローリング桧 t=18 構造用合板 t=24

大梁 120*240mm     小梁 120*120mm

天井:クロス張り仕上げ

ラワン合板 t=5.5

内壁:

横羽目板張り t=18

ラワン合板 t=12.5

外壁:窯業系サイディング    通気用竪胴縁 20*30mm    アスファルトルーフィング

構造用合板 t=9

内壁:クロス張り仕上げ    ラワン合板 t=5.5    グラスウール t=100

スロープ床:フローリング桧 t=18       構造用合板 t=12       根太 60*60mm@455       スタイロフォーム t=30       梁105*135mm

外壁:窯業系サイディング

20*30mm@303

スタイロフォーム t=25

横胴縁 25*30mm@303    構造用合板 t=9

書斎床:フローリング桧 t=18

構造用合板 t=24

大引 105*105mm

スタイロフォーム t=30

内壁:クロス張り仕上げ ラワン合板 t=5.5

グラスウール t=100

外壁:横羽目板張り t=18

竪胴縁 45*30mm@455    アスファルトルーフィング 18kg

構造用合板 t=9

床:簀子 米ヒバ t=20

根太 70*40mm@303

モルタル金ゴテ仕上げ

32 ARCHITECTURE PORTFOLIO Michika ONO 32 WORKS ぷろむなーど・はうす
通気用竪胴縁
アスファルトルーフィング
寝室 スロープ 浴室 トイレ スロープ 書斎 書架 1212 1779 5300 2450 1071 4500~4700 260 455 260 320 420 270 910 680 750 1137.5 910 2305 2090 240 910 60 60 120 2748 5300 2332 220 ▼トイレGL+220 ▼GL±0 ▼寝室GL+2552 ▼軒高GL+5300 ▼軒高GL+5300 ▼書架GL+3521 ▼書斎GL+1071 ▼GL±0 鋼製束 1011 GL GL 3 10 断面詳細図 1/28
33 WORKS ぷろむなーど・はうす ぷろむなーど・はうす 断面図 1/100 西立面図 1/100 断面図 1/100 南立面図 1/100

設計製図第二 図書館課題

用途:図書館

大佛俊泰, 藤井晴行, 那須聖, 塩崎太伸, 沖拓弥

34 ARCHITECTURE PORTFOLIO Michika ONO
2020年度
敷地:東京都目黒区緑が丘
05
1階平面図 1/400 2階平面図 1/400 アイソメトリック図
書case
指導教員:安田幸一,
「時」の記憶箱としての地域図書館

書籍のデジタル化と紙媒体の衰退

紙書籍主体の読書の世界に電子書籍後登場し大きな変化が訪れた現代、新しい読書環境とは何か、 その変化の中でこれからの公共図書館はどうあるべきか考えた。

文化を繋ぐメディアを大切に守る【書籍の保存】

貴重書籍保存庫とともにより多くの紙書籍を陳列する開花の充実 広く書籍を紹介し【魅力を発信】

円筒形空間にある本棚上段は紙書籍の展示スペース、オープンでアクセスしやすい陳列

【ふれあいの場を提供】

会議や勉強音読やおこもりのための3サイズのコミュニケーションスペース、宝箱を積み重ねたような 建物ボリュームは街ゆく人の好奇心にはたらきかける

【新しいメディアへの対応】

館内では電子書籍専用端末で最大150万冊の電子書籍にアクセス可能、広いAVコーナーは本を音で聴く新しい 読書スタイルに対応、将来的な用途・レイアウト変更に対応するため間仕切り壁を減らし空間の自由度を高める

35 WORKS 書case 書case
断面詳細図 1/75 東立面図 1/300 東断面図 1/300 北立面図 1/300 北断面図 1/300

指導教員:塚本由晴, 西澤徹夫, 佐々木啓 ゲストクリティーク:保坂健二朗(滋賀県立美術館館長)

DIAGNOSE計画診断

現在町にある既存の要素と日常的なふるまいを収斂する ことで河口湖美術館を複合的に再構築する。北岸を結ぶ ウォーキングトレイルと連携し、既存美術館の1階既 存壁を撤去しピロティにし湖畔までの軸線を延長するこ とで建物内で完結していたふるまいは桟へと溢れ出す。

STEP0 既存建物の解体

PROPOSAL処方

既存壁を取り除き湖へのアクセスを直接的にし、 ウォーキングトレイルとの連携不足を解消する 1

RESEARCH

-山梨県富士河口湖町①公共施設の老朽化と来訪者の減少

古い施設の現代ニーズへの適応や、新型コロナウイルス感染

拡大後の「集い方」の変化に合わせた公共施設の更新が必要 ②文化アーカイブ機能の不足

富士山、河口湖、浅間神社など多くの歴史的文化を持ちなが ら、アーカイブ機能不足により発信する環境が乏しい

③五感文化構想をテーマとした町づくり 河口湖町は「五感に訴える」町づくりを目指し、その中でも 河口湖美術館は「視る施設」に分類されている

STEP1 共用部化

STEP2 既存壁の撤去

STEP3

湖へ導く

大通りから湖への軸線上にラーニングプログラム を配置し、美術館含む文化の溢れ出しを創る 2 美術館と新設桟橋を一括管理とすることで制限 された美術館周辺でのふるまいを開放する 3

周辺敷地図 1/2400 アイソメダイアグラム 1/1800

36 ARCHITECTURE PORTFOLIO Michika ONO 桟に蕾む
用途:美術館
桟に蕾む
-文化振興の主軸としての河口湖美術館再構築計画-
2021年度 設計製図第四 意匠スタジオ 敷地:山梨県富士河口湖町
06

河口湖周辺の桟橋は管理ができないため多くが立入禁止だった。釣りや水辺へのふるまいは 桟橋の一体整備・管理により開放され、美術館からの軸線上に活動が展開されるようになる。

現在の河口湖北岸は危険回避のため既存 ウォーキングトレイルから湖へのアプロー チが制限されている箇所が多い。桟橋によ り親水空間を拡張することで訪問者は目的 外のふるまいに触れ、広義での学びを得る。 日本画あとりえでは美術館観賞後に訪問者 が実際に日本画教室に参加するなど伝統文 化を体験できる。富士の芸術は幅広く存在 し、初心者でも気軽に文化を感じ、誰もが立 ち寄り居場所を探せるアトリエを提供する。

37 WORKS 桟に蕾む
制限されていたふるまいのアンロック----
1 桟橋 2 駐車場 3 機械室 4 搬入口 5 学芸員室 6 日本画あとりえ 7 収蔵庫 8 歴史資料室
日本画あとりえ 平面図 1/250 桟橋 平面図 1/250
1階平面図 1/400
断面図 1/400

2021年度 住環境計画 最終課題

Univer-CITY -早稲田大学とその周辺における新たな街の提案-

指導教員:真野洋介

共同製作者:大野杏佳, 尾崎由芽, 矢田部航成

早稲田大学周辺学生街の衰退に対する新たな学生街利用形態の提案

問題提起 -高田馬場周辺学生街の客足減少の原因分析

①悪循環の発生

大学生の学生街利用低下し、商店街の客足が減る。空き店舗や廃業により魅力低下し、さらに学生の利用率低下につながる、といった衰退原因の悪 循環が発生。早稲田大学による「学生生活調査」と、早稲田大学生32人を対象に独自に行なったアンケートから、以下の4つを原因として考えた。

(1)キャンパス利用者数減少 入学者数の減少やコロナ禍におけ るオンライン授業の増加により キャンパスを利用する学生数が減 少している.

早稲田大学「学生生活調査」より

学生は学外の飲食店やテイクア ウトで昼食を取ることが多く、

通学日数の減少により学外飲食 店の利用頻度が低下。

学食や生協を利用する学生も多 いため学外飲食店の顧客減少に 拍車をかけている。

SITE -早稲田大学と周辺学生街 -

早稲田大学「学生生活調査」より

〈大学生協組合の制度とは〉

みんなで出資・みんなで運営・みんなで利用のスローガンの元、 新たな学生街「univer-CITY」では地域の人と大学生が空き家など の地域資源や大学の設備・知識を出資、高田馬場町会に高田馬場 在住問わず大学生が参加したり大学学園祭の運営に地域の人も参 加したりと共に街を運営、そして共に街を利用していく。

(2)一人暮らしの学生数の低下

早稲田大学では自宅から通う学生が多く,コロナ禍でさらに一人暮らしが減少している.

全国大学生協連HPより

JASSO「学生生活調査」より

早稲田大学「学生生活調査」より

(3)魅力が低い 学生街へは治安が悪い/汚い/行きたい店が無いなどマイナスイメージが強く、魅力が知られていない可能性がある。

(4)治安が悪い 駅前ロータリーでの飲酒や犯罪件数が多い(23区平均比)ことから治安の悪いイメージが定着している。

キャンパスを囲う塀や大学建物の高層化により、外からキャンパス 内の様子が分かりにくい。学生サービスを行う飲食店もあるが、大 学の教育や研究を活かした地域連携は少なく、認知されにくい。

早稲田大学生 32 人を対象に行なったアンケートより

早稲田大学生 32 人を対象に行なったアンケートより

早稲田大学の主要学生街として機能してきた高田馬場駅周辺は街区ごとに特性が異なる

解決手法 -街全体をキャンパスと捉える新たな学生街「univer-CITY」の提案 地域が大学を受け入れやすくするため 2022 年→2025 年→2030 年と徐々に大学を挿入する。方法は以下の4種類に分類し、次ページ 地図上に具体的な提案を示す。

38 ARCHITECTURE PORTFOLIO Michika ONO uni-verCITY
②大学が地域に対して閉ざされている
07
39 WORKS uni-verCITY
戸山公園 戸山公園 早稲田大学 早稲田大学 早稲田大学 西早稲田駅 高田馬場駅 早稲田駅
明治通り
早稲田駅 早稲田通り

Make It, Yours.

創立30周年記念バッグデザイン

company 30th anniversary bag design

音が流れるように、 30年の時は経ち、 音が止まることを知らないように、

進み続けるスタジオのために。

08.
©︎ 2022 SUCCEED,Inc. All Rights Reserved.
41 ARCHITECTURE PORTFOLIO Tokyo Institute of Technology 2020-2022 小野美史 Michika ONO
to be continued

Turn static files into dynamic content formats.

Create a flipbook
Issuu converts static files into: digital portfolios, online yearbooks, online catalogs, digital photo albums and more. Sign up and create your flipbook.