







ARCHITECTURE & INTERIOR DESIGN PORTFOLIO
MasterofUrbanDesign(UniversityofHongKong)
BachelorofArchitecture(TechnologicalUniverity, Mandalay,Myanmar)

SINGLEHOUSE-conceptdesign,designdevelopment
Yangon,Myanmar-2023-freelancearchitect






TheNeo-ClassicalResidentialBuildingstandsasabeaconofarchitecturalbeauty andenvironmentalresponsibility.Itstwo-and-a-half-storeystructureshowcasesa facadeadornedwithclassicalelements,whilebeneathliesacommitmentto sustainability.
FacadeDesign:
Theexteriorexudesgrandeurwithsymmetricalproportions,columns,and cornices,allinatimelesspalette.Itcapturestheessenceofneo-classicalelegance, ensuringlastingallure.
GreenTechniques:
Beneaththefacade,innovativegreentechniquesensurethermalcomfortand energyefficiency.High-performanceinsulation,efficientglazing,andnatural ventilationminimizeenvironmentalimpactwhileenhancingoccupantcomfort.




INTERNATIONALSCHOOL-Designdevelopmentpackage
Myanmar-2023-Architect
ArchetypeMyanmar



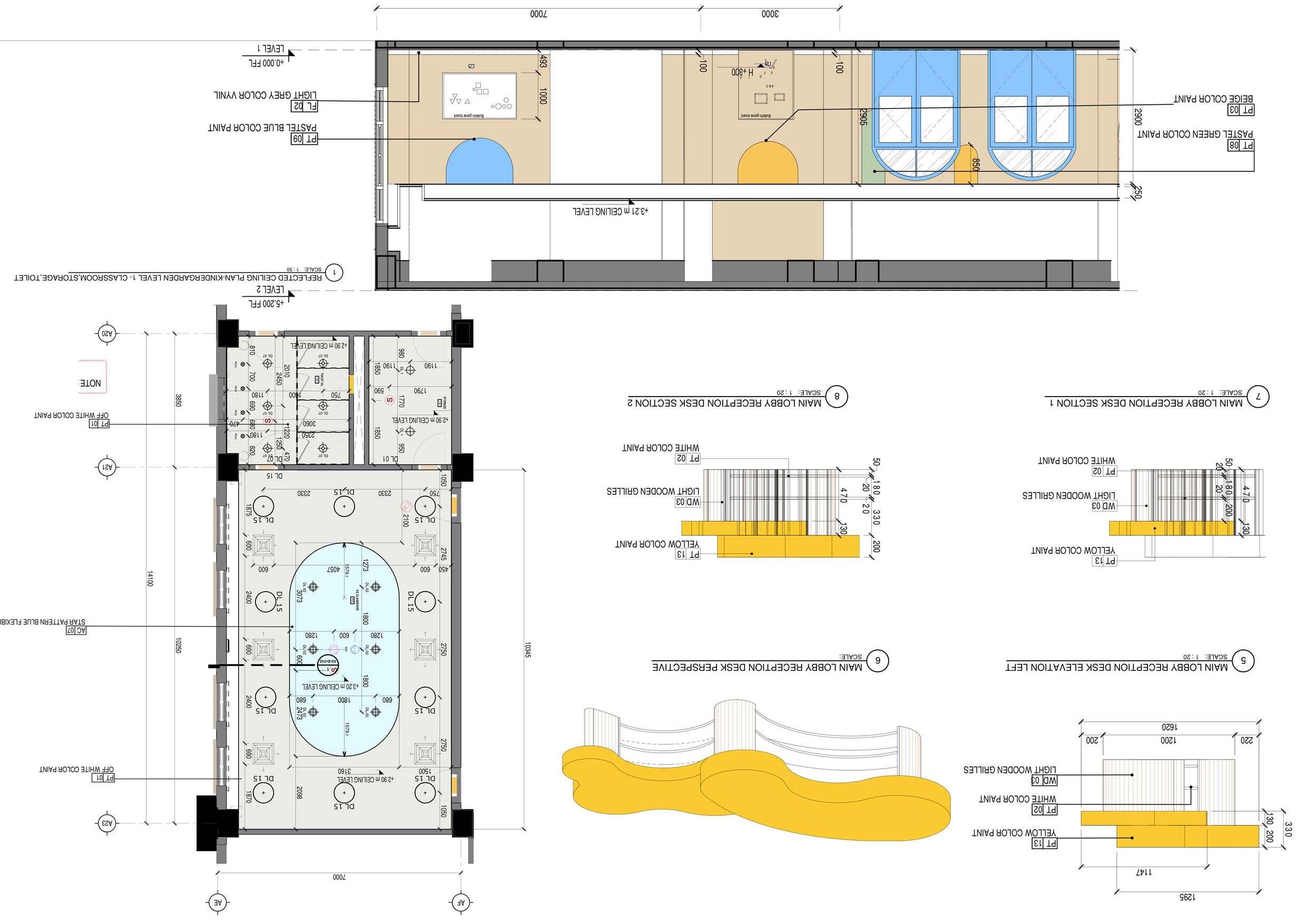
Internationalschoolisplannedfromkindergardento diplomaclasses.Schoolcampushavefootballfield,indoor swimmingpool,canteen,threatreandlibrary.Indesign develpmentpackage,coordinationswithMEP,STRU,detaildesignsandRFIansweringtotheclients. Moldingdetails details


LOGISTICFACTORY-designdevelopment&construcitondwgpackage
Thilawa,Myanmar-2012-Buildingdesignenginner
PentaOceanconstructionco.,Ltd.

Secondfloorforthelogisticofficeandwarehouse areafortherental.Architecturalcoordinationand designcoorditionwithotherStru,MEPand authorities.Productionsforshortdwganddetail designs.





HANTSMAN
PROJECT-schematicdesignpackage
Bangladesh-2023-Architect
ArchetypeMyanmar
FactoryprojectatBangladesh.Productionofschematic design package with revit software from concept design. Coordination with other parties and applied theBangladeshregulations.


DIPLOMATICHOUSING-concept&schematicdesign
Accra,Ghana-2023-Architect
ArchetypeMyanmar

TheDiplomaticResidence&MarketTowerprojectadherestoBureauofOverseasBuildingsOperations(OBO) standards,AmericanswithDisabilitiesAct(ADA)regulations,andtheInternationalBuildingCode(2018).It seamlesslyintegratesadvancedsecuritymeasures,publicrealmfunctionality,andluxuriousamenities. Responsibilitiesincludeguidelineadherence,marketingpreparations,occupancycalculations,andBIMmodeling forschematicpackageproduction.Advancedsecuritydesignsensuresafety,whilevibrantpublicspacesfoster communityengagement.Luxuriousamenitiesandmeticulousoccupancycalculationsoptimizecomfortand functionality.LeveragingBuildingInformationModeling(BIM),theprojectteamcreatescomprehensivedigital modelsforschematicpackageproduction,ensuringstakeholdersgainunparalleledinsightintothedesign.




LANDMARK-Constructiondesign
PackgageProductionforTowerA Yangon,Myanmar-2023-Architect ArchetypeMyanmar

TheconstructiondrawingpackageforTowerAwithinYangon's prestigiousLandmarkprojectembodiesprecisionandinnovation. ResponsibilitiesincludecoordinationwithStruc,MEP,Facade and constructionteams,producingdetailedplans,elevations,wall sections,basebuild,andenlargedunitplans.Seamless collaborationensuresstructuralintegrityandefficiency,while comprehensivedrawingsguidetheconstructionprocesswith clarity.Specialfocusisplacedonbasebuildandenlargedunit plans,servingasthefoundationforTowerA'sarchitectural framework.Withstringentqualityassurancemeasuresinplace, TowerAstandsasabeaconofarchitecturalexcellenceinYangon's skyline.



Thismixed-usedevelopmentexploresadynamicintegrationof residential,commercial,andleisurespaceswithinacohesive urbanenvironment.Theconceptemphasizesfunctionalityand connectivity,blendingmodernarchitecturewithsustainable designstrategiestocreateavibrantcommunityhub.Thedesign focusesonmaximizingefficiency,enhancingpedestrian experiences,andpromotingsocialinteractionwhileresponding sensitivelytothesitecontextandurbanfabric.

