Skip to main content

Interior Design Portfolio

Page 1


INTERIOR DESIGN PORTFOLIO

SELECTED WORKS

Molly Koleosho

CONTACT

PHONE: +44 7464833711

EMAIL: MOLLYKOLEOSHO@GMAIL.COM

A MOTIVATED AND METICULOUS ARCHITECTURE GRADUATE WITH A SOLID ACADEMIC FOUNDATION AND PRACTICAL EXPERIENCE IN CREATIVE DESIGN, PROJECT MANAGEMENT, AND ENVIRONMENTAL SYSTEMS. DEMONSTRATES A STRONG PASSION FOR ARCHITECTURAL DESIGN, WITH THE ABILITY TO ADAPT QUICKLY AND PERFORM EFFECTIVELY IN FAST-PACED, HIGH-PRESSURE SETTINGS. COMMITTED TO CONTRIBUTING TO FORWARD-THINKING, SUSTAINABLE PROJECTS THROUGH BOTH COLLABORATIVE TEAMWORK AND INDEPENDENT INITIATIVE.

MOODBOARDS

DURING MY SHORT INTERNSHIP WITH MELISSA COLLARO DESIGNS, I WAS PRIMARILY RESPONSIBLE FOR CREATING DIFFERENT CONCEPT DESIGNS, ACCORDING TO THE CLIENT’S REQUESTS AND VISION FOR THE RENOVATION. THESE MOOD BOARDS WERE A QUICK WAY TO SHOW THE CLIENT DIFFERENT COLOUR SCHEMES, MATERIALS AND ORIENTATION. THESE CONCEPTS WERE MADE USING PHOTOSHOP AND FURTHER EDITED ON CANVA.

CONCEPT DRAWINGS

AN EXPLORATION OF DIFFERENT SKETCHES OF INTERIORS AND EXTERIORS, DONE IN DIFFERENT MEDIA LIKE PENCIL, WATERCOLOUR, AND ALCOHOL MARKERS.

R O P E R T Y

L A N S

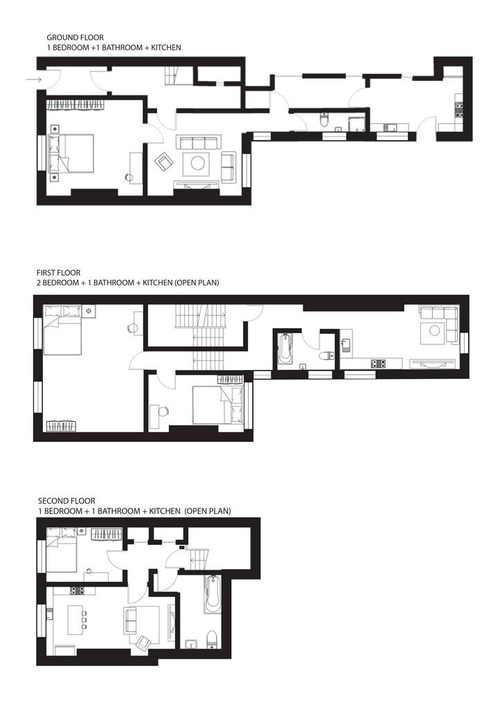
RECENTLY, I HAVE GOTTEN INTO PROPERTY INVESTMENT. MY ROLE WAS TO CREATE PLANS AND ELEVATIONS FOR THE PROPERTY AND UTILISE THE SPACE AS MUCH AS POSSIBLE. INCLUDING TURING A 3-BEDROOM HOUSE INTO A 5-BEDROOM HOUSE, CLASSIFYING IT AS AN HMO. TO MAKE THESE PLANS, I USED AUTOCAD, ILLUSTRATOR AND PHOTOSHOP.

CASA TALLER

THIS IS AN INTERIOR ARCHITECTURAL STUDY OF CASA TALLER, A CONCRETE STRUCTURE IN ARGENTINA. THE STRUCTURE USES A LOT OF NATURAL ELEMENTS AND HAS A MINIMALIST DESIGN AESTHETIC, USING A LOT OF EXPOSED CONCRETE, WOOD AND METAL. THIS VISUALISATION WAS DRAWN ON RHINO AND EDITED ON TWINMOTION

PERSONAL PROJECTS

OPEN PLAN KITCHEN AND LIVING SPACE- A MINIMAL SLEEK DESIGN. THE KITCHEN’S BLACK AND WHITE AESTHETIC CONTRASTS AGAINST THE LIVING SPACE’S GREEN NEUTRAL COLOUR PALETTE.

OPEN PLAN KITCHEN AND LIVING SPACE- A MODERN TAKE ON THE OPEN FLOOR PLAN, AS IT ENCOURAGES COMMUNICATION BETWEEN PEOPLE AND HAS A LOT OF LIGHT. I CHOSE A SLIGHTLY DARKER, CONTEMPORARY COLOUR PALETTE EXPRESSES ITSELF MORE AGAINST THE WHITE WALLS AND WOODEN FLOORS

MASTER BEDROOM – A VERY SIMPLE DESIGN WITH BIG CONTRASTS OF YELLOW AND BROWNS WHICH GIVE THE ROOM A WARM AMBIENCE.

THESE RENDERS WERE MADE WITH TWINMOTION

THESE ARE OLDER PROJECTS I MADE IN MY SPARE TIME. AND EXPERIMENTING WITH DIFFERENT DESIGNS AND STYLES.

END OF DOCUMENT.

Turn static files into dynamic content formats.

Create a flipbook
Interior Design Portfolio by Molly Koleosho - Issuu