Mohamed Nasrat I | Undergraduate Architecture Portfolio

Page 1

I

Manipal School of Architecture and Planning

Selected work 2018- 2022

Mohamed Nasrat

Hi, I'm Mohamed Nasrat I , currently pursuing my 5th year Bachelor degree in Manipal school of architecture and planning, Mahe Manipal.

I'm keen on designing spaces that undergoes through complex layer of preliminary understanding to achieve a simple, functional, contextual design. This portfolio will present my selected academic work and extra curricular work reflecting my passion and interest.

Contacts + 91 8778065067 mohamednasrat03@gmail.com 34 D/7A Katoor Coimbatore, Tamil Nadu Mohamed Nasrat I nasrat_ar 03 /11/1999 MOHAMED NASRAT I
P M A

EDUCATION

2004 – 2018 SSVM Institution, Coimbatore

2018 – 2023 Manipal school of Architecture and planning , Mahe, Manipal

PROFESSIONAL EXPERIENCE

o July 2022 - December 2022

Intern at Murali Architects, Chennai, Tamil Nadu

o Jan 2023 - Present

Intern at Total Environment Building System Pvt Limited

Bangalore, Karnataka

I had the opportunity to work in diverse range of works: Working drawing, Modelling, Photoshop and Presentation

LANGUAGE

English ( Professional ) , Tamil ( Native )

INTEREST

Form development, 3D modelling, Reading , Travelling.

ELECTIVES

Metal workshop , Creative photography, Advanced Building services, Urban development

WORKSHOP AND SEMINARS

o Manu Shilpa mud workshop, Manipal school of architecture and planning (10th to 13th February 2020

o SHAPPED 2020 Conference, International conference : Design for health and well- being (12th to 13th March 2020 )

o 5 Day Parametrized Design Workshop and Design Competition by Equim Education (19th to 22nd November 2020

o IIT Kharagpur Workshop -Service in Large Scale Building ( 2nd to 04th July 2021 )

DISSERTATION

o Study on the Living condition of Onsite Construction Workers –A case of Coimbatore

o A study on walkability in higher educational campus, Manipal

WORK

o Semester 1 - Kiosk , Manipal

o Semester 2 - Swarag Residence , Manipal

o Semester 3 - Euro Skill Kindergarten , Manipal

o Semester 4 - R and D Centre , MIT , Manipal

o Semester 5 - Srishti Space Museum, Hassan

o Semester 6 - Mixed use Apartment

o Semester 7 - Nav Bharat Udhyan , New Delhi

o Semester 8 - Urban food hub , Coimbatore.

COMPETITION

o Search international design competition, a homestead in the sunderbans -2020

o Parametrized design competition, parametric architecture and computational form finding 2020

Secured 1st place (group work )

o Haryana artifact museum façade design competition -2021

Shortlisted to 2nd round (group work )

o Master peace - A meditation & yoga retreat center design challenge – 2021

Honorable mention ( group work)

o Design Competition for Iconic Structure in Nav Bharat Udyan - 2021

TECHNICAL EXPERTISE

DRAFTINGAND3DMODELLING

PRESENTATION

RENDERING

Mixed

INDEX
use development Udupi,Karnataka ResidentialArchitecture Nav Bharat Udyan NewDelhi,India Urban Architecture MIT Food Court Manipal,Karnataka InteriorArchitecture Architecture Competition MasterPeace-Meditation&YogaRetreatCenter HonorableMention Archmello August2021 FacadedevelopmentofthestateArchaeologicalMuseum ShortListedTo2ndRound ASI April2021 ParametrizedDesignCompetitionAndWorkshop 1stPlace Equim December 2020 Working drawing SwaragResidence Manipal,Karnataka Live Project Farmhouse Coimbatore,TamilNadu Internship Works MuraliArchitects,Chennai TotalEnvironmentBuildingSystemPvtLimitedBangalore 01 06- 15 16 - 23 24 - 31 32 - 37 38 - 45 32 - 33 46 - 47 34 - 35 36- 37 48- 55 02 03 04 -06 04 05 06 07 08 09-10

MIXED USE DEVELOPMENT 01 UDUPI,KARNATAKA

Studio : VI Semester

Udupi is a fast-growing educational hub with many educational institutions. Students come here from various parts of the world. There is a constant influx of people from the academic community – scholars, lecturers and students.

The task is to design a high-rise Apartment for the growing demand and the people of Udupi. The targeted user group for this apartment were family, couples and bachelors. Since the site is in prime location of the city, there was a need to achieve maximum F.A.R. for Economic benefit. The site is around 5 acres (20,230 sq.m) located in Bedinagudde. The max. ground coverage permissible is 50% of the site.

RESIDENTIAL ARCHITECTURE 07

CONCEPT :

The project aims to create a strong relationship between private and public spaces. The project tries to achieve the maximum FAR with housing units to meet market and business requirement. At the same time the spaces are zoned in such a way, to promote active green spaces even during covid situation.

STRATEGIES :

Conceptual idea for spacing the activities

Understanding and zoning the spaces with respect to Human proxemics – private , semiprivate and public

Human proxemics Tools used :

Apartments

Commercial –2 floors

Plaza

Basement -1

Basement -2

Activity space GREEN SPACE
Vertical movement Human interaction with view Green spaces Vertical movement
Private Private Public 08 Intimate distance Personal distance Social distance Public distance 0.5 m 0.5 – 1.2 m 1.2 m – 3.7 m 3.7 m -7.6 m Extension of proxemics assuming a person can rotate in 360 degree
Public Semi
Semi Private
Light Colour Pattern Sensory Scale Texture
DESIGN DEVELOPMENT:
ISOMETRIC PERSPECTIVE
3 bhk Apartments Private Balcony
Public Garden Service Core

Site with 6 M wide road on 2 sides

Minimum setback, taken according to local bylaw.

Build up space is raised vertically up in such a way, to use the maximum FAR

Circulation, Road Network , Ramp and Plaza provided. Building is split into 2 – for natural lighting and ventilation

Amenity block is placed between 2 block. Facilities are positioned vertically, making people to move between floors for amenities.

09 RESIDENTIAL ARCHITECTURE
PERSPECTIVE SECTION WITH SITE
10 MASTER PLAN : 0 5 10 20
A A’ SECTION
SCALE : 1:200

DETAILED SECTION :

SLAB DETAIL :

Embedded steel truss Polystyrene voids

Shoring

Concrete column

11 RESIDENTIAL ARCHITECTURE
Beam – 800 mm depth with the width of 800m Filigree plank Filigree beam
SECTION AA’ :
Topping slab

WING A FLOOR PLAN :

GROUND

12
FLOOR
RESIDENTIAL LVL 1 PLAN
RESIDENTIAL LVL 2 PLAN
RESIDENTIAL LVL 3 PLAN
TYPICAL
TYPICAL
TYPICAL
LOBBY LOBBY LOBBY LOBBY

WING B FLOOR PLAN :

GROUND FLOOR

TYPICAL RESIDENTIAL LVL 1 PLAN

TYPICAL RESIDENTIAL LVL 2 PLAN

TYPICAL RESIDENTIAL LVL 3 PLAN

13 RESIDENTIAL ARCHITECTURE
LOBBY LOBBY LOBBY

Solar

that can produce electricity

14
Aluminium composite panel Of 5mm thickness and are placed in parapet wall. Wall panel – with concrete sheet Photovoltaic panels which can produce electricity
:
pins
ELEVATION
15 RESIDENTIAL ARCHITECTURE 3D VIEWS:
PARK AREA ROAD TO WING A PARKING PLAZA JOGGING TRACK

NAV BHARAT UDYAN 02 NEW DELHI,INDIA

Studio / Competition : VII Semester / Central Vista Redevelopment

The Central Vista Revitalization Master Plan aims to transform the area into a world-class public space, restore its architectural landmark status, and improve organizations. The Central Vista Axis will be expanded from 2.9 km to 6.3 km along the eastern bank of the River Yamuna with the New India Garden - Nav Bharat Udyan as part of the New Master Plan, which will be commemorated on India's 75th independence anniversary.

The conic structure is being built in Nav Bharat Udyan to realize Aatmanirbhar Bharat's grand vision of an emerging New India with equitable growth opportunities, rooted in Sabka Saath, Sabka Vikaas, and Sabka Vishwaas values.

Initial study on Morphopolgy , Urban fabrics of Delhi and development of master plan were done as a group of 5. Iconic structure with urban pocket Detailing was done by me in later stage of Semester.

URBAN ARCHITECTURE 17

MASTER PLAN :

CONCEPT :

In this proposal, the major five aspects taken into consideration for India development are infrastructuretechnology and development, governance, inclusivitywomen empowerment, and other factors categorized as drivers.

Each of these drivers' growth is represented in Master Plan using various program .

The iconic structure- Tanirvya brings the pure essence of Indian heritage architecture that points out Tanvi the girl, to be the woman out in power to infrastructure and development being Nirmanika and Vykrithi that ultimately combines to form the iconic structure’s name

Inspired from Stellate plans prevalent in Indian Architecture . This structure is a simplified rendition of the same

SECTION :

View from Photo point
18
Scale bar 1:1000 0 0 20 50 100 200 1 2 3 4 5 6 7 8 9 10 11 12 13 14 15 16
1. Iconic structure
2. Riverside Front 3. Women's Pavilion 4. Tech Pavilion 5. Governance Pavilion
9.
10.
12. Recreational
15.
16.
6. Cultural Hub 7. Amphitheatre 8. Admin Space
Service
Parking 11. Ticket Counter
Park 13. Photo Deck 14. Viewing Gallery
Cycling Path
Pedestrian Path

OBSERVATION DECK

STRUCTURAL

DETAIL :

Viewing deck Restaurant

DIAGRID SYSTEM

Entrance

Zoning of spaces

FLOOR PLAN :

RIVER VIEW RESTAURANT

DUMWAITERS LIFT

FIRE SAFETY STAIRCASE

2 LIFT CAPACITY OF 25 PEOPLE EACH

GALLERY SPACE

Columns Core Diagrid Module at the base

At Lvl +4M

Diagrid system

Ring beams

Glazing system

Iconic structure

Structural systems

Diagrid Module at the Centre

At Lvl +52 M

Diagrid Module at the top At Lvl +86 M

1. The structure have 5 parametric fins bundles to make the shape of star.

2. Each surface of the fin is a diagrid system

3. Each Diagrid system – 2 story, 8 M

Observation deck

Restaurant Area

RAFT FOOTING

PILE FOUNDATION

Entrance Lvl 0.45 M Restaurant Lvl 44 M

Observation Deck Lvl 88 M

Diagrid system

9 M

19 URBAN ARCHITECTURE
View from Riverfront Night View View from Deck View Deck Section Cutting through India Gate to Iconic structure

TANIRVYA – URBAN POCKET DEVELOPMENT

AREA STATEMENT :

1. Entrance – 6080 M^2

2. Plaza – 2250 M^2

Total area – 8330 m^2

Expected visitors : 5000 visitors during peak time

MASTER PLAN LAYERS

DRAIN

ICONIC STRUCTURE

YAMUNA RIVERFRONT

Plaza : Visitors spill out area

ENTRANCE DEVELOPMENT LAYERS

BIOSWALES + STROM WATER SYSTEM :

ROAD LAYOUT :

Ticket counter

Mahatma Gandhi Marg

Site entry :

Entry of 9 m internal road is been proposed

Main entrance gate:

Entry and exit point for the site

Parking for 250 car units

Adding bioswale of 1.8 m wide with gravel impediment to promote the water runoff to the ground

Road of 9 m wide with been proposed. Drop provided.

20

with recycled asphalt is Drop off points, curbs

SERVICES:

SEATING SPACES :

Fountain

FINAL PLAN : Cycling track

Security guard Toilet

Proposal for seating space

Drinking Water

URBAN ARCHITECTURE 21
Final master plan with hawkers' zone, bicycling track of 3 m wide and plaza – spilout area . These seating space provided in pathway promotes walkability and livability of the space
1 22
FLOOR PLAN WITH ACTIVITY MAPPING :
0 10 20 30 40 50
Bioswale GL GL SECTIONS : DETAILS : SHELTER Solar Isometric
Scale bar 1:250
Bioswale
URBAN ARCHITECTURE 23 Water runoff – 2% slope SECTION AA’ SECTION BB’ Pavement Canopy 9 m Wide road Cycling track 14 m wide road GL GL Cycling track 1 Bioswale Front View 3 3 Scale bar 1:100 0 5 10 15 20 SHELTER CANOPY : Plan view Solar panel Isometric view 2 3 ENTRANCE
ONSITE PARKING
STREET FURNITURE
CYCLING STAND
SERVICES : 2
CYCLING TRACK
PLANTATION BOX :

MIT FOOD COURT 03 MANIPAL,INDIA

Studio : VII Semester

The MIT food court is a student favorite because of its comfortable interiors with centralized air conditioned, with its healthy and sanitary cuisine, which is all housed under a single roof.

But there is a disconnect between the architecture of the spaces. Even though the building is situated in the most suitable location on the campus, the interior spaces are not adequate to accommodate all the users.

The proposal of this project is to redesign interior of the food court to provide students with an enhanced overall experience.

INTERIOR ARCHITECTURE 25

USER GROUP :

1. Student

2. Workers

3. Irregular visitor

AREA :

Total area – 4600 M^2

Focus area – 600 M^2

EXISTING FLOOR PLANS :

CONCEPT :

Place making involves designing a space to evoke positive emotions. Since a food court's activity is larger, the area can be segregated to create different zones and identities that people can use to differentiate and find each other.

Interior spaces can be zoned , using different colours, furniture, patterns, connectivity, activity defining, and social interaction defining. Different colours, furniture arrangements, lighting styles, and dispersions can be used to create visually seamless transitional zones.

SOCIAL INTERACTION ZONE

This is an interactive space for larger student groups.

GROUP INTERACTION ZONE

This is an interactive space study groups, discussion groups (clubs, forums, etc.)

FOOD STALL ZONE

An area where students are allowed to make purchases directly from stores.

GROUND FLOOR PLAN

SEMI INTERACTIVE ZONE

This is an interactive space for smaller groups of students, that don’t come to the food court without any agenda.

FIRST FLOOR PLAN

QUIET ZONE

This is a non interactive space for students that come to eat in silence, individual study, etc.

ZONING OF SPACES IN FOOD COURT

ENTERTAINMENT ZONE

TV provision with seating space that promotes interactive environment.

26
INTERIOR ARCHITECTURE MOOD BOARD : 27
Co working space - 400 m^2 Admin space - 112 m^2 Handwash area + toilet - 50 m^2 1 Reception desk 2 Reception seating 3 4 8
COWORKING SPACE :
Coworking seating -1 Coworking seating -1
Coworking seating -3
5 6 Plantation Box Key plan 7 1 2 3 4 5 6 6 7 8 4 4 4 4
in M
– 1:100 0 5 15 A’ A B’ B 28
Coworking seating -4
Storage space All dimension
Scale bar

Hvac duct layout

Pet wave false Ceiling

Pendant Lighting

Brick pattern acoustic panel

Vinyl flooring

Pendant Lighting

Pet wave false Ceiling

Yellow chair and table to create appetite sense

Ceramic flooring

All dimension in M SCALE BAR : 1: 20

INTERIOR ARCHITECTURE 29
G. LVL G. LVL Column treated layer of rockwool with perforated panel Column treated layer of rockwool with perforated panel
01 1 2 3
Section A A’
3 M 0 6 M 0 5 M 3 M 0 . 6 M 0 5 M
Section B B’

CEILING

DETAILS

Waffle wave false ceiling : Preserve an industrial visual with acoustical solution attached to the structure. Made from up to 60% postconsumer recycled PET fibers

Blade : 10 mm thick

Cable : Aluminum suspension bar

And aircraft cables

N.R.C Value :0.85

The change in false ceiling pattern

Table made up of wooden finish laminate

Cable scallop – 50.8 MM x 450 MM

Trough – acts as central spine and provides access to power and data cable T slot leg on either side, that connects the trough and top.

Isometric view

Features

50 MM 1580 MM

720 MM

720 MM 1530M M

The cable trough is having 2 opening of power

2 units – connected 90 MM

PLAN Total 4 module

Connection Between Blade and suspension Bar : 30
FURNITURE DETAILS :
• Supports • Laminate • Power within • 50
can • Modular
Components :
1524 MM for 2 table
distance M^2
Each table set : Length : 1.5 M Depth : 1.5 M Height : 0.76 M
used

Key plan

Supports 2 users

Laminate or veneer tops 1500 MM widths ower and data cable been provided within table

MM gap between tables workstations can be filled with Gap Fillers

Modular and Limited assembly required

Total : module to be used to cover a distance of 36

M^2

INTERIOR ARCHITECTURE 31
32

CENTER DESIGN CHALLENGE 04

MASTERPEACE - A MEDITATION & YOGA RETREAT

HONORABLE MENTION ARCHMELLO AUGUST 2021

Type : Public , Retreat Centre

Site Area : 42,869 SQ.MTS

Site : Alappuzha, Kerala, India (9° 26’32.36", 76°22’36.78“ )

Team : In Partnership with Mirsa Mosa M.T , Hariharan V

Role : Form Development, Master plan, Modelling

The aim of the competition is to promote Retreat centers which have now become the need of the hour in today’s world. The challenge is to design a Meditation & Yoga center catering its services to max. 500-1000 people. The center should have open & enclosed areas for meditation & yoga.

Yoga & Meditation in India were first practiced only by religious monks. Today millions of people worldwide roll out their mats daily to practice and is now a worldwide phenomenon. Dedicated centers & studios for practicing yoga & meditation have added to the popularity of both the art. Meditation & Yoga as a trend are bound to grow at a faster pace as more & more people indulge in these two art in order to find peace & physical fitness.

The site is in Alappuzha ( Referred to as the Venice of the East), is known for its backwaters, for its vast network of waterways, house boats & coir industry.

ARCHITECTURE COMPETITION 33
34

PROPOSAL FOR FACADE DEVELOPMENT OF THE STATE

ARCHAEOLOGICAL MUSEUM AT PANCHKULA, HARYANA 05

SHORT LISTED TO 2ND ROUND ASI APRIL 2021

Type : Public , Museum , Facade Development

Site Area : 20200 SQ.MTS

Site : Panchkula, Haryana India (9° 26’32.36", 76°22’36.78“ )

Team : In Partnership with Shreya Murali , Charan Reddy , Mirsa Mosa M.T , Hariharan V

Role : Form Development, Technical detailing of the Facade

Proposals was invited for innovative architectural façade design for the upcoming State Archaeological Museum at Panchkula (Haryana) and to give it a unique identity reflecting the ethos of the Indus-Saraswati civilization. Valuable artefacts of preHarappan and Harappan sites of Haryana will form the Museum collections. This was an open competition.

Design guidelines:

1. The façade should reflect the ethos of Indus- Saraswathi civilization.

2. Participants must understand inter relationship between closed, open and semi-open spaces and the connectivity of the multiple spaces.

3. Participants not to exceed height more than 30 meters from road level.

4. The design should be original, inviting, iconic and creating a statement of its own

ARCHITECTURE COMPETITION 35
36

EQUIM PARAMETRIZED DESIGN COMPETITION AND WORKSHOP- COMPUTATIONAL FORM FINDING

1ST PLACE EQUIM DECEMBER 2020

Type : Public , Museum

Site Area : 79840 SQ.MTS

Site : Greater Noida , India

Team : In Partnership with Srushti , Charan, Amanrajsinh

Role : Form Development, Modelling

It was a workshop on form finding using computational software that lasted for 5 days. In our teaching process, we were taught to use rhino and grasshopper interchangeably.

Later on , an internal competition has been organized for us to build an art museum that would be in Greater Noida along the Yamuna riverbank. The objective of this competition is to design the museum building and the site landscape using Rhino and Grasshopper.

ARCHITECTURE COMPETITION
06
37

SWARAG RESIDENCE 07

MANIPAL,KARNATAKA

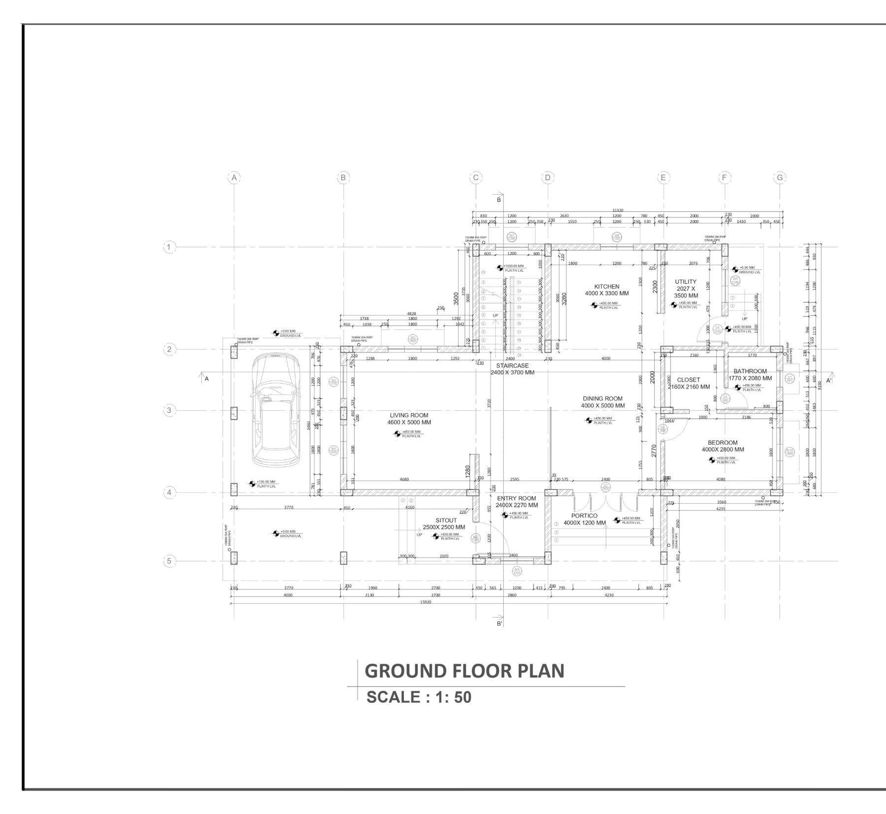
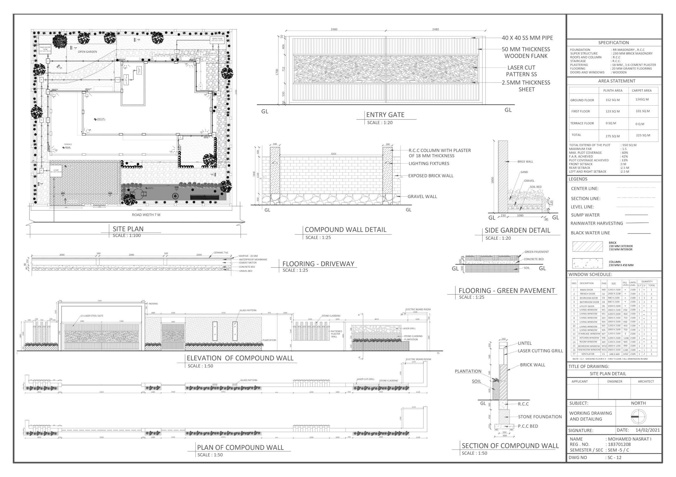
The SWARAG Residence is a three-bedroom, duplex Contemporary home that's been designed in the Udupi District of Karnataka. The project's primary emphasis on the integration of context and spatial layout into simple yet elegant design.

The project's technical drawings will be shown in the following pages.

WORKING DRAWING
Studio : V Semester- WDD Studio
38
39
40
WORKING DRAWING 41
42
WORKING DRAWING 43
44
WORKING DRAWING 45

FARMHOUSE

COIMBATORE,TAMIL NADU

Client : Rudmudeen

Site area : 300 M^2

The brief was to design a contemporary farmhouse floor plan for a couple in their existing 2-acre farmland. the client was provided with house plan, site plan and exterior façade design ( 3d render ) during the phase of construction.

LIVE PROJECT
08
46
47 LIVE PROJECT

RAGHUNATHAN RESIDENCE

THANJAVUR,TAMIL NADU

MURALI ARCHITECTS, CHENNAI

A Beautiful regional traditionalism infused modern house for Mr. Raghunathan & family at Vallam, Thanjavur, a town known for its temple architecture and its locally used construction materials, this city is the cradle for many arts and crafts over the years. The use of local materials such as stone, exposed brick, laterite, and other materials helps in reducing the cost of construction and makes the buildings more responsive to the climate, hence giving us a better atmosphere within the house.

The gathering spaces are provided with built in seating features inspired from traditional Tamil architecture. The freedom and the love for local architecture from the clients always helped in elevating this design.

INTERNSHIP WORKS 48
09
49 INTERNSHIP WORKS SCREEN WALL DETAILS
50
51 INTERNSHIP WORKS SEATER SPACE DETAILS

THE MEADOW DANCE

HYDERABAD,TELANGANA

TOTAL ENVIRONMENT, Bangalore

The Medow Dance is a villa development project in Rajendranagar, Hyderabad. The project has been developed in two phases on a 20-

acre plot with 120 houses. Each house is based on the unique concept of Earth sheltered homes, that is rarely used in large group housing projects.

Curved roofs and Landscaped earth cover keep these homes warm in the winter and cool in the summer. Each house is built around a courtyard and blends in with the surrounding landscape. Each home has been tailored to meet the functional requirements of individual families. Built almost entirely with natural materials, these homes offer an unparalleled living experience that is both inviting and peaceful.

52 INTERNSHIP WORKS
10
53 INTERNSHIP WORKS DOOR DETAILS
54

ELECTRICAL DRAWING FOR A VILLA

55 INTERNSHIP WORKS TERRACE GARDEN RAILING DETAILS
MOHAMED NASRAT I mohamednasrat03@gmail.com

Turn static files into dynamic content formats.

Create a flipbook
Issuu converts static files into: digital portfolios, online yearbooks, online catalogs, digital photo albums and more. Sign up and create your flipbook.