
I
![]()

I
"I am a skilled Facade Design Engineer with a strong history of achieving outstanding results. My expertise includes proficiency in AutoCAD for both 20 and 30 drawing, Microsoft Office, and I have recently begun working with Revit, Rhino, and Inventor.
I possess experience in producing accurate shop drawings and performing quantity surveying for finishing projects. With a meticulous attention to detail and a dedication to quality"
about

my skills in future projects.


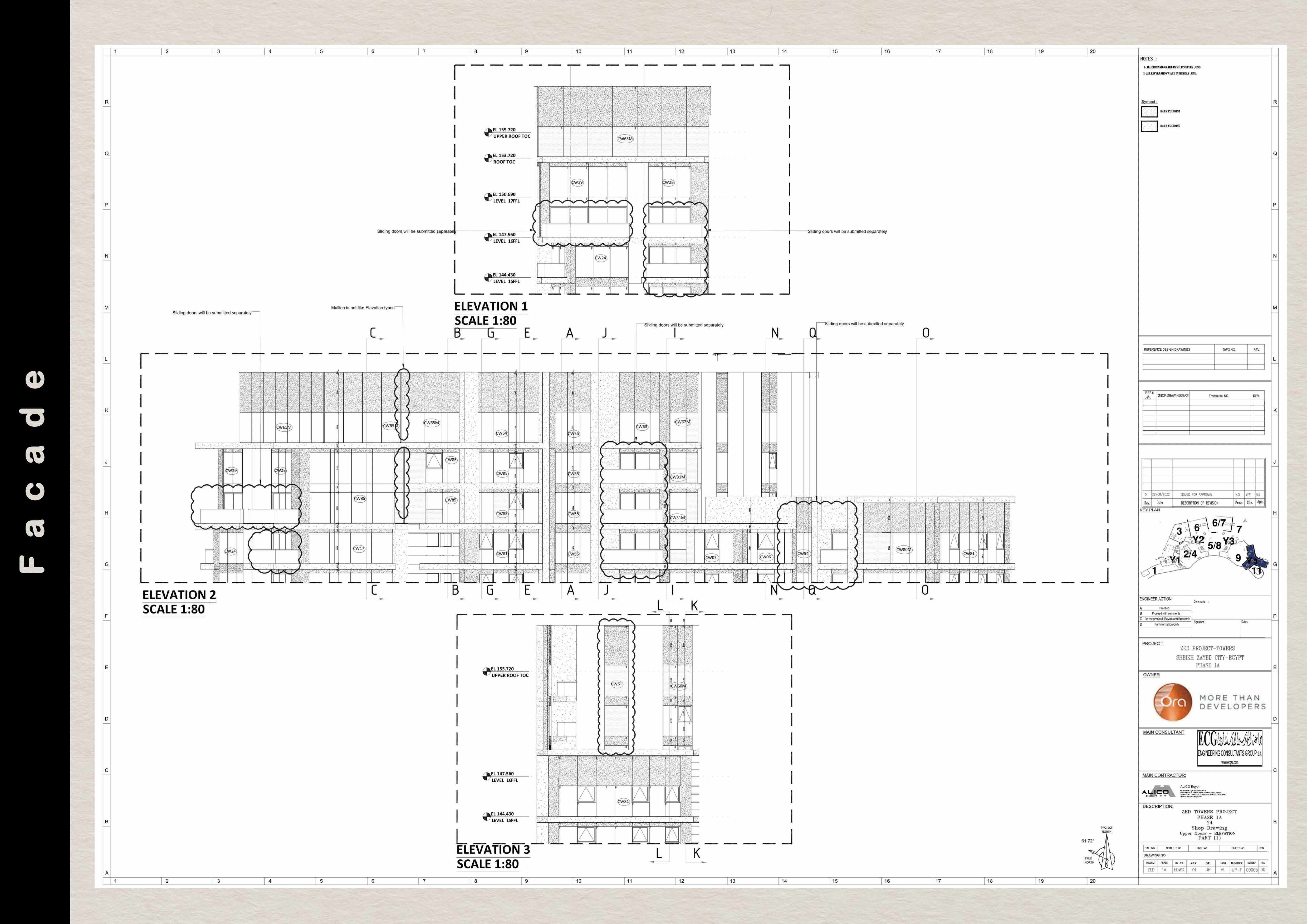
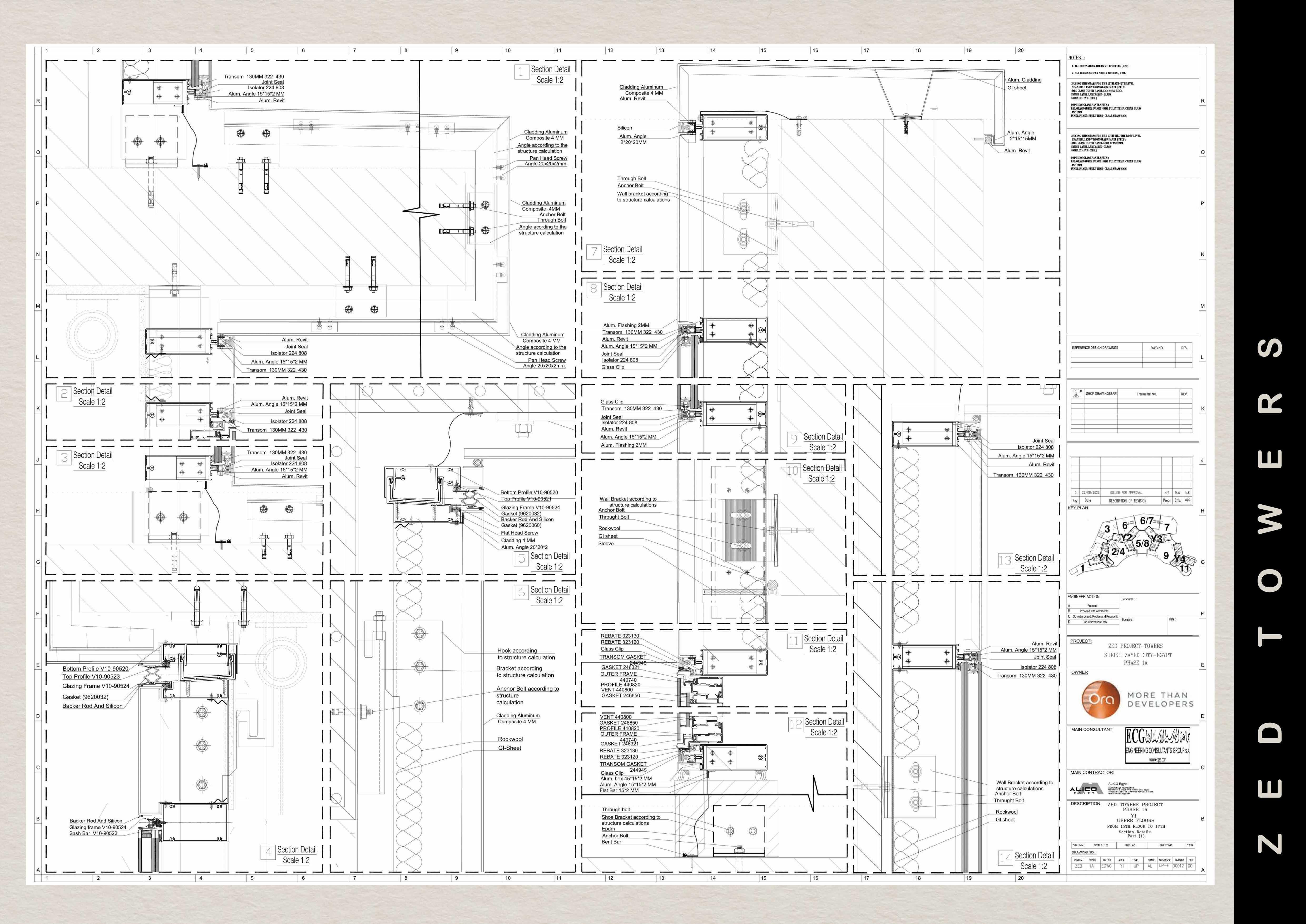
Type : Residential & Commercial
Location: Sheikh Zayed, Egypt
Client: Ora.
Collaborators: Alico Egypt
Status: Completed
Year: 2021

Info: "Creating and Submitting Shop drawings and Fabrication orders for CW's both stick and unitized systems, cladding, louvers , doors and windows. "












































