

PORTFOLIO
Mitchell Johnson
Selected Works
Highlights of recent projects from three different firms.
Located at the Bushwick Inlet in Greenpoint, Brooklyn. A greenhouse, composting facility, and a market converge.

GREENPOINT COMPOST AND MARKET
THE DATASPHERE THE SPONGE INITIATIVE STACKED COMMONS MODULAR INTERVALS
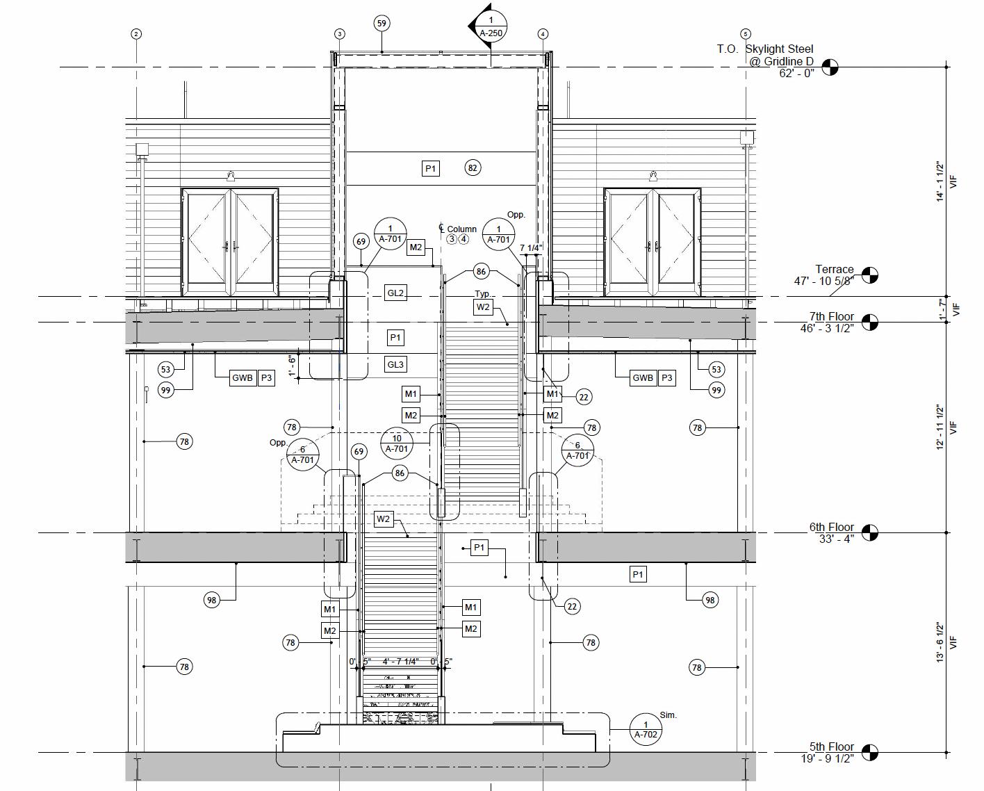
TERRACE AT 19 WEST 23RD
57W57 LOBBY RENNOVATION
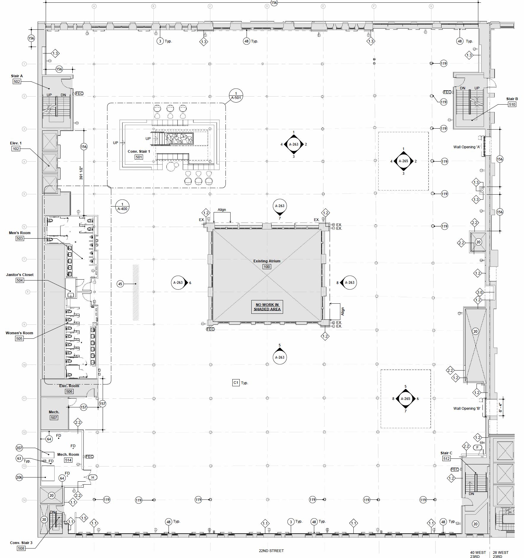
40 W 23RD TRIPLEX
THE CUBE
APPLE BANK STATEN ISLAND
60 HUDSON OFFICE RENOVATION
PAULY’S WINE BAR
FBM MANUFACTURING
ACRISURE AMPITHEATRE
KENTUCKY SENATE TEMPORARY CHAMBERS
NISSIN FOOD PLANT
TOYOTA MANUFACTURING
PLANT
KIDS FOOD BASKET GEORGTOWN
BIG ASS FANS BREAKROOM
LONGSHIP OFFICES
WMP WOOD OFFICES
SG2 ARQUITECTURA
SCOTT STREET PARK
VICTORIAN RENOVATION
NIKE DOWNTOWN LEXINGTON
ARBORETUM PAVILLION TOWN BRANCH COMMONS


The Datasphere The Sponge Initiative
Retrofitting an abandoned Reagan-era infrastructural project to question the future of dormant data storage.
Utilizing Singapore’s “Four National Taps” strategy, A scalable HBD infrastructure emerges.
An extention to the Higgins Hall studio space to connect and engage students and faculty.




CLIENT WORK
PROJECT JOB: SCHEMATIC DESIGN | DESIGN DEVELOPMENT
DENHAM-BLYTHE,PIONEERCONSTRUCTION,GEORGEBOYLEARCHITECTPLLC
LOCATION: NEW YORK, MICHIGAN, KENTUCKY
SOFTWARE: REVIT, ENSCAPE, LUMION, AUTOCAD, SKETCHUP, VECTORWORKS
SELECTED WORK FROM THREE MOST RECENT EMPLOYERS


PROJECT JOB: TRIPLEX & TERRACE AT 23RD STREET
GEORGEBOYLEARCHITECTPLLC
LOCATION: NEW YORK, NEW YORK
SOFTWARE: REVIT, ENSCAPE, LUMION, AUTOCAD, SKETCHUP, VECTORWORKS





NEW STAIRCASE SECTIONS


DENHAM-BLYTHE,PIONEERCONSTRUCTION,GEORGEBOYLEARCHITECTPLLC
LOCATION: NEW YORK, NEW YORK, GRAND RAPIDS, MICHIGAN, KENTUCKY
SOFTWARE: REVIT, ENSCAPE, LUMION, AUTOCAD, SKETCHUP, VECTORWORKS




57 WEST 57TH STREET LOBBY STUDIES




DETAIL EXAMPLE
APPLE BANK STATEN ISLAND


LONGSHIP OFFICE RENDERING


KENTUCKY TEMPORARY SENATE CHAMBERS
WMP EXECUTIVEOFFICES
BIG ASS FANS BREAK ROOM
PAULY’S WINE CAFE PLAN

DETAIL EXAMPLE


GREENPOINT COMPOST & MARKET
PRATT INSTITUTE: DESIGN4:INTEGRATEDSTUDIO
LOCATION: GREENPOINT, NEW YORK
SOFTWARE: REVIT, V-RAY, RHINO, GRASSHOPPER
CONCEPT:
Located on the site of Bushwick Inlet Park in Greenpoint, New York, this project brings together a greenhouse, marketplace, education center, restaurant spaces, and a composting facility—each functioning as its own system—within a landscape that negotiates the boundary between urban infrastructure and natural ecology. A series of new enclosures are inserted




LONG SECTION




WALL SECTION A
WALL SECTION B
THE DATASPHERE
PRATT INSTITUTE: DESIGN5:ADVANCEDDESIGNRESEARCH
Professor: Lindy Roy, Daniel Garcia
LOCATION: WAXAHATCHIE, TEXAS
SOFTWARE: REVIT, RHINO, ADOBE ILLUSTRATOR, GRASSHOPPER, PHOTOSHOP, RUNWAY, V-RAY, JAVASCRIPT
The Datasphere is a network of bio-engineered storage facilities situated within the abandoned shafts of the Superconducting Super Collider (SSC) in Waxahachie, Texas. The project secures sensitive, dormant data by encoding it into plant DNA and housing it within a labyrinth of structural mycelium bricks.


Data Density Study. A visual comparison of traditional hardware versus bio-encoded matter. To meet the demands of the coming ‘Zettabyte Era’ (59 ZB active data), the project utilizes plant DNA to condense warehouse-scale storage into microscopic biological volumes.

Site Analysis: The Subterranean Incubator.
A vertical survey of the SSC shafts reveals a unique atmospheric gradient. While the surface is variable, the deep tunnels (250 ft) maintain 92% humidity and stable temperatures around 68°F. These conditions transform the abandoned infrastructure into a perfect natural growth chamber, fostering rapid mycelial expansion without the need for artificial climate control
Synthetic Biology Workflow. Bridging the gap between the digital and physical worlds. This diagram outlines the six-stage procedure required to migrate active data from electronic circuits into the cellular structure of bio-engineered mycelium, locking information away in a self-repairing, dormant biological format.

Section: The Excavated Growth Zone. Visualizing the infrastructure required to turn code into matter. This chamber provides the necessary environmental controls for data fabrication, featuring integrated steam supply for humidity regulation and a closed-loop decontamination system to manage biological output

Interior Perspective: The Data Vault. Inside the ‘Cooling Labyrinth,’ architecture functions as a machine. The jagged arrangement of the storage creates a high-performance thermal mass, absorbing heat while channeling cool air drawn from the open vertical shafts. This passive system protects the integrity of the DNA-encoded matter without the energy costs of traditional server cooling


Professors Lindy Roy & Daniel Garcia
Animation Elijah Sandrali
Richardson, Mitchell Johnson, &

THE SPONGE INITIATIVE
PRATT INSTITUTE: ARCHIPELOGICS
PROFESSOR:DAVIDERDMAN
LOCATION: BADUK, SINGAPORE
SOFTWARE: REVIT, ENSCAPE, RUNWAY, V-RAY, PREMIER PRO, RHINO, GRASSHOPPER
The Sponge Initiative is a scalable infrastructure project designed to bolster Singapore’s water security by rendering the urban fabric more permeable. Through a transect analysis of the island, the project identifies the Bedok HDB estates as a prime site for hydrological intervention. The strategy retrofits existing housing for on-site water processing and urban farming, while transforming adjacent parks into active retention reservoirs to absorb, filter, and reuse runoff.


HDB Retrofit ITERATION: The Vertical Catchment. An aerial axonometric of the Bedok estate, illustrating how high-density housing is adapted to capture rainfall and support vertical agriculture


HDB ESTATE SITE PLAN

SECTIONS THROUGH THE SINGAPORE ISLAND TRANSECT THROUGH BEDOK

Façade Detail: The Living Machine. A close-up of the retrofit’s active skin. The design layers a secondary infrastructure over the existing HDB face, featuring transparent vertical conduits for rainwater transport and filtration. Integrated into the framework are modular hydroponic planters and micro-turbines, allowing the building envelope to simultaneously generate food and energy while managing water runoff.

Vertical Stratification. This diagram zones the retrofitted tower into three distinct layers: Light Industry at the active base, existing HDB housing in the center, and a solar-optimized Urban Farm on the roof
STACKED COMMONS
PRATT INSTITUTE: ARCH770:CONSTRUCTINGCOMPLEXITIES
PROFESSOR: CRISTOBAL CORREA
LOCATION: BROOKLYN, NEW YORK
SOFTWARE: REVIT, ENSCAPE, V-RAY, RHINO, GRASSHOPPER
This project extends Pratt Institute’s Higgins Hall into the back courtyard by pulling out “drawers” from the building’s central mass to create new floor plates and flexible program space on every level.
Two vertical rods pierce the addition, acting as both structural anchors for a cantilevered diagrid curtain-wall façade and as light shafts that bring daylight deep into the interior. The ground floor merges an expanded gallery with a café/lounge and commons that open directly to the courtyard, while the second and third floors operate as studio extensions that double as lounge, pin-up, and presentation zones during heavier academic periods.
The top floor sits directly beneath the cantilever and becomes an active social hangout with access to the rooftop of central Higgins, offering students a place to decompress, smoke, or step outside. Overall, the design strengthens Higgins Hall with more studio capacity, a stronger public interface, and student-centered social spaces, transforming the courtyard into a vibrant extension of campus life.





Façade Assembly: The Diagrid Module. A breakdown of the building envelope’s primary unit. The design utilizes a custom Steel Frame to hold a tessellated pattern of inserts, alternating between Clear Window Units for views and Opaque Window Units for solar control. Integrated Operable Window Units allow for natural cross-ventilation within the studio spaces.

EXTERIOR AXON FROM COURTYARD


PERSPECTIVE RENDER FROM THE ROOFTOP TERRACE.
Exploded Axonometric: Structural Assembly. Deconstructing the courtyard intervention into its primary systems. The diagram highlights how the Structural Trees anchor the floating program volumes—ranging from the ground-floor Café Area to the Additional Shelved Studio Space—all enclosed within a lightweight Glass Envelope Façade
ROOFTOP TERRACE

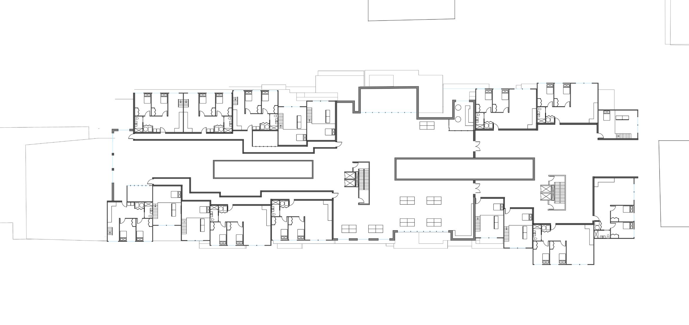
MODULAR INTERVALS
PRATT INSTITUTE: DESIGN3:BUSHWICKHOUSES
PROFESSOR: STEPHANIE BAYARD
LOCATION: BUSHWICK, NEW YORK
SOFTWARE: REVIT, V-RAY, RHINO,
Situated within the NYCHA Bushwick Houses, this proposal introduces a new residential tower composed of three distinct apartment typologies. The units are stacked and interlocked, utilizing a push-pull strategy to generate a dynamic façade of private terraces and passive sun shading. The interior is activated by vertical light wells and shared office amenities, while the ground plane opens into a monumental 25-foot tall courtyard dedicated to local artists and merchants.


Kerry, Uwais, Mitch.

Residential Configurations. Plan studies of the three unit variations. The typologies range from 2-bedroom simplexes to flexible duplex arrangements, all organized within a standard 25’-0” width to ensure structural continuity while maximizing spatial variety.
