Skip to main content

MishelleAbusada-Portfolio2026

Page 1


Mishelle

Abusada Strohmeier +

Sushi Column Project - Photo taken by Naho Kubota

Inversions

Disappearing Architecture (Spring 2024) - Dan Spiegel

Project Type: Agricultural Community Center Area: 96,000 sq.ft

Location: San Francisco, CA [Portola Neighborhood 770 Woolsey St.]

Located in San Francisco’s Portola neighborhood, this agricultural community center seeks to heal the relationship between progress and history. Unique entrances invite and guide visitors through choreographed paths, where moments of inversion stitch together agricultural processes with programmatic community needs. The four buildings exist as separate characters yet form an interconnected network. Opposites— private and public, collective and individual, indoors and outdoors, dark and light, rectilinear and curvilinear, old and new—are in constant dialogue, embracing that one would not exist without the other. It is a careful and beautiful dance of inversions.

Sushi Roll Column

Heterogeneous Construction (Fall 2023)Aaron Forrest & Yasmin Vobis

Project Type: Structural Element

Team: Jose Velasco & Grant Fisher

Consultant Engineer: Brett Schneider

Recycling long and skinny members by strategically filtering and organizing them in order to create an efficient way to build a highly functional column. I was in charge of all architectural drawings shown, as well as leading our construction process, and taking photographs of the process. Jose was in charge of engineering calculations, and Grant was in charge of assembly drawings. We all built the 1-1 model .

Deconstructing the Sushi Roll Column

Project Type: Loft

Area: 50,000 sq.ft

Location: Berkeley, CA

Industrial Sushi Column
Fake Column Curtain
Shear Screen

Level 2

Level 1

Level 2 - Open Curtains

Level 2 - Closed Curtains

Blank Canvas

Abstract and Physical Structure (Spring 2023)Ashley August

Project Type: Recreational Center

Area: 29,400 sq.ft

Location: Oakland, CA

The building’s primary programs of dance, yoga, and art are conceived as fluid fields rather than fixed rooms. An open plan made possible by displacing columns and loadbearing walls to the perimeter. Structure becomes a quiet frame, liberating the interior for movement, gathering, and improvisation. A gently curving geometry organizes circulation as a continuous promenade, softening thresholds between disciplines and allowing visual and acoustic overlap. The plan resists rigid compartmentalization; instead, it choreographs gradients of enclosure and exposure, where moments of collective energy give way to pockets of retreat. In this way, the architecture embodies the ethos of its programs inviting the liberty of expression in a diverse community.

The Introverted

Solid and Void (Fall 2022) - Maria Paz Castro King

Project Type: Office Building

Area: 4,000 sq.ft

Location: Okaland, CA

This faceted office reimagines the conventional workplace through sculptural folds that replace rigid grids with a dynamic spatial landscape. Angled planes carve out zones for focused work while opening into shared areas that encourage collaboration and informal exchange. The geometry acts as both structure and social framework, balancing autonomy and collectivity.

Under One Roof

Living Single Living Together (Fall 2025) - Iman Fayyad

Project Type: Duplex

Area: 3,800 sq.ft

Location: n/a

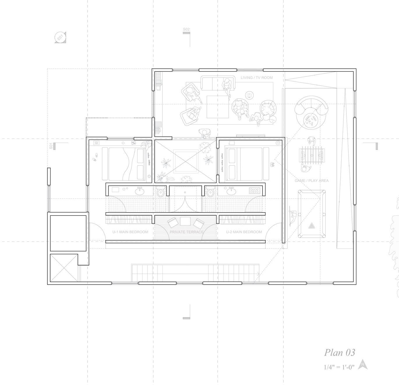
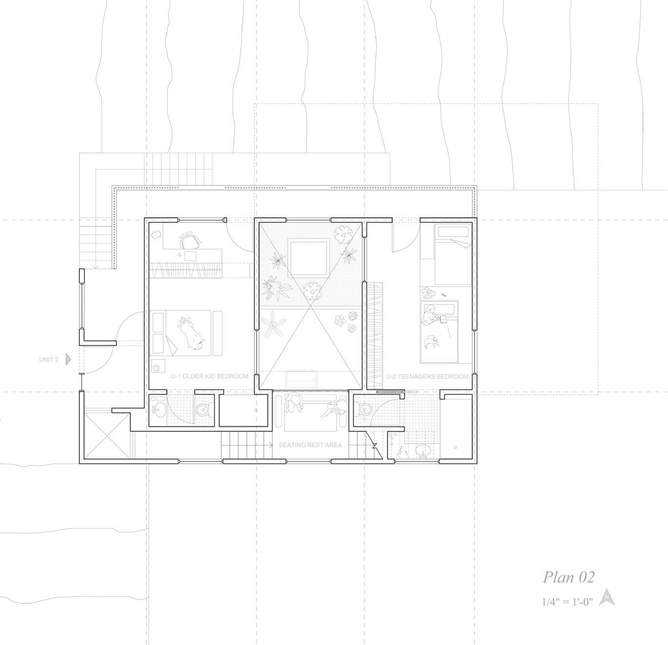
This duplex reconsiders domestic partnership through architecture, proposing a model of cohabitation that preserves autonomy while fostering collective life. Designed for a couple, the project departs from conventional shared dwellings by providing each partner with an independent two-bedroom, two-bathroom unit.

Formally, the duplex presents itself as a single-family house with one roof and a series of gables, its unity emphasized by a vertical elevator core that extends beyond the roofline like a chimney, offering a vernacular inflection. In section, the spatial hierarchy becomes clear: private rooms are discrete and cellular, while public areas are open and fluid, dissolving the boundary between interior and exterior. Yet both readings are mediated by spaces that challenge strict definitions of public and private. A flexible library/dining room transforms through the use of a “Duchampian door,” shifting from an office-adjacent workspace by day to a shared dining room connected to the kitchens in the evening. A private terrace, oriented only toward the sky, offers secluded retreat within the collective envelope. As one moves upward through the plan, the building swells to accommodate increasing shared space, layered incrementally in depth. The migrating courtyard and wrapping circulation stitch these layers together horizontally and vertically.

4-3-2

Spin-Off (Fall 2025) - Iman Fayyad

Project Type: Community Space + Library Area: 7,800 sq.ft

Location: Boston, MA

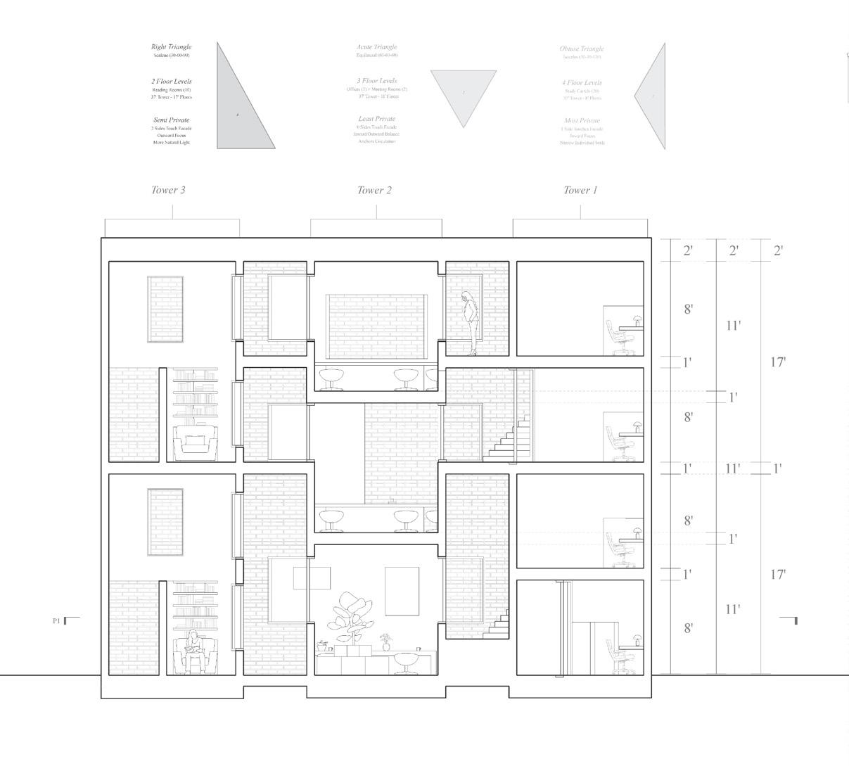
The project begins as a precise act of geometric stitching: three triangular towers of equal height but varying proportion, floors, and program exist within an ordinary square volume and one modest stair. An isosceles obtuse tower rises 4 floors for study carrels (Tower 1), an equilateral acute tower holds 3 floors of meeting rooms and offices (Tower 2), and a scalene right triangle contains 2 floors of reading spaces (Tower 3). Though unified in elevation, the interior is vertically fragmented into a 4–3–2 sectional composition. A triangular stair wraps twice around the central tower, quietly binding these misaligned floorplates into a continuous architectural promenade. Circulation occupies the threshold between inside and outside, making the towers feel like autonomous interiors while movement occurs along their perimeter

The library addition operates as both the twin and inversion of the original. Where the first compresses fragmentation within a rigid frame, the new intervention extracts fragmentation and disperses it across the site. The three distinct floor heights of the original section are translated into singlestory volumes, dissolving the square’s rigidity into a grounded, human-scaled experiential landscape. A mirrored circulation system transforms the contained stair into an expansive ramp that pulls a diagrid structure into space; together, the two structures form a dialogue of whole to part.

The Equalizer

Jump-Cut (Fall 2025) - Iman Fayyad

Project Type: Performance Center

Area: 25,000 sq.ft

Location: North American College Campus

A design that blends sectional and programmatic opposites to rebalance performer/audience hierarchies. The music performance center translates the logic of an audio device into spatial form, acting as a hinge within the urban fabric. Pivoting between institutional, residential, and commercial contexts, it turns to acknowledge each condition.

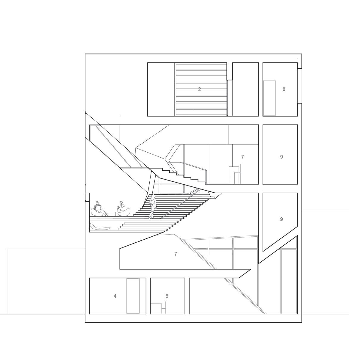
Inside, tight and loose helical stairs counter-rotate around a shared axis while theaters anchor the site. Through this radial organization, movement becomes agency: as bodies ascend and programs revolve, viewer and viewed continuously realign. The building becomes an interplay of vantage points, proximities and thresholds. The project is a spatial equalizer, balancing the many “frequencies” of program: public and private, centrifugal and radial, compression and expansion, movement and pause. The journey through the building becomes its own performance.

A Reciprocal Stage 09

Visual Representation (Fall 2025) - Iman Fayyad

Project Type: Performance Space Team: Ariana Suryo

Ariana and I collaborated on all stages of the project, from geometric development to discretization and model construction. Derived from an Enneper surface, the form is translated into a folded-plate system that enables structural spanning while continuously transitioning between seating, platforms, and roof surfaces. The project organizes two mirrored performance conditions: one with orchestra performers elevated above the audience, and the other inverting this relationship. The depth of the folded plates provides structural rigidity and acoustic separation between the two performance spaces.

SAW

Professional Part-time Work (Sep 2024-May 2026) Spiegel Aihara Workshop

Selected examples of representational drawings, a physical model, and a design charrette board produced during my time at SAW. Work developed using SketchUp, AutoCAD, and Adobe Illustrator.

Quarter-Round House - Details & Section

AA_ADU - Rotating Model System

Nature Play Project - Design Charrette

My Righhand Swing - Image done with rhino, grasshopper, and illustrator

Turn static files into dynamic content formats.

Create a flipbook