

ARCHITECTURE PORTFOLIO
MirellaReyesSalvador

PROYECTOS
01
ProyectoVivienda
Unifamiliar
AutoCADBásico
02 RevitBásico
Recreacióndela Vivienda CasaTT/PsA Architecture
03 TallerIV CentroCultural
04 TallerV Conjunto Habitacional
05 Información CVpersonal
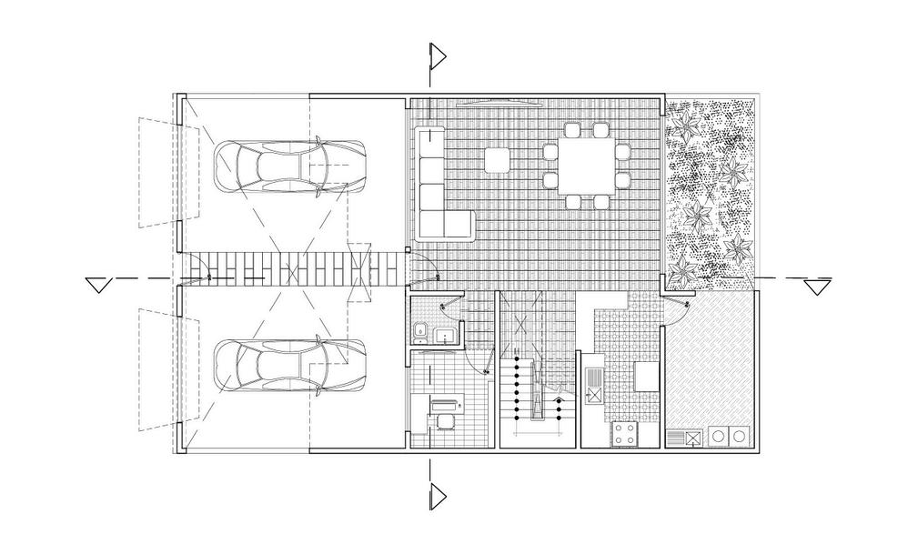
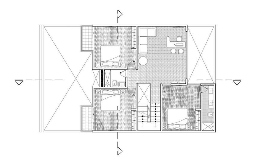
VIVIENDA UNIFAMILIAR
AutoCADBásico

PrimeraPlanta






SegundaPlanta


DetalledeBaño
RecreacióndelaVivienda
CasaTT/PsAArchitecture
RevitBásico
Paralarecreacióndeestetrabajosetrabajolabase delosplanosenAutoCadyellevantamientoen3D, elevaciones, planos, vistas interiores y exteriores, el motorderenderutlizadofueelmismorenderizador deRevitporfactortiempo.
Alolargodelcursosetrabajoconlasherramientas básicas de Revit para poder entender como funcionabaelprogramasinembargoseintegrolos Renderintentandoexplorarelmotorderender.

PrimeraPlanta

ElevaciónEste





ElevaciónOeste ElevaciónNorte


CorteIsométricoLongitudinal

ModeloIsométrico



03
TallerIV
Centro Cultural
El proyecto de Taller IV consistio en diseñar un Centro Cultural, para los planos se utilizo AutoCad ya que se elaboraronamanolosplanosdelMuseo.
En los que constan los render se utilizo el programa de Enscape para poder renderizar de forma rapida y sencilla, para el panel de exposición del concurso se utilizo PhotoshopeIllustratorparalaorganizacióndediagramas. Finalmentelosgráficosyelmodelo3Dfueronelaboradosen SketchUp.


PrimeraPlanta SegundaPlanta






TerceraPlanta CuartaPlanta




Sotano
Render3
Render2
Render1
Gráficos
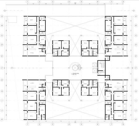
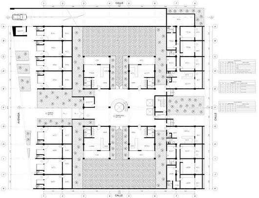
Conjunto Habitacional
TallerV
El proyecto de Taller V consistio en desarrollar un Conjunto Habitacional entrando al Urbanismo como el tema principal del proyecto,seelaboraronlosplanosdelotización en AutoCad y los levantamientos topograficos en 3D en el programa de SketchUp, presentando la primera lámina elaborada en AdobeIllustratordondesevelaprimerafaseel proyecto.

PlanodeAportesdeManzanasegunlaRNE



Elconcep tofinalemp lazadoenelareadelterreno

Planta2-4-6-8



LevantamientoTopograficaen3D
MaquetadeCorteEscantillon1:50y
ConjuntoHabitacional1:500







CV Personal
Estudiante de la Universidad César Vallejo de la carrera de Arquitectura. Persona muy motivada para trabajar en equipo y poder desarrollar proyectos en conjunto que me ayuden a explorar mis habilidades dentro de la Arquitectura.
Además busco aprender nuevas cosas que me ayuden a complementarme como persona y lograr adaptarme en nuevos desafios para la vida laboral.
UNIVERSIDADCÉSARVALLEJO(2021-PRESENTE)
5to.CiclodeArquitectura
COLEGIOPITAGORAS(2015-2019)
Secundaria
COLEGIONUESTRASRA.DELSAGRADOCORAZÓN
Primaria
UNIVERSIDADNACIONALDEINGENIERIA(2023)
AutoCadI-PlanimetríaArquitectónica
UNIVERSIDADNACIONALDEINGENIERIA(2024)
RevitI-PlanimetríayModelado3D-BIM
GRUPOGALK(2023)
SkechtUp-Photoshop-V-Ray
UNIVERSIDADDECAMBRIDGE(2020)
English Level-A2

Revit
Photoshop
Illustrator
SketchUp Enscape V-Ray
Canva
MicrosoftOffice
AutoCad Responsable
Puntual
Perseverante
Comprometida
Liderazgo
Básico-Intermedio
Básico-Intermedio
Básico
Básico-Intermedio
Básico-Intermedio
Básico
Básico
Intermedio-Avanzado
Básico
+51912884272
Teléfono: Kamirslp31@gmail.com
Instagram:
Correo: archivibe _ studio