Skip to main content

Miraval Berkshires | Floorplans & Capacities

Page 1

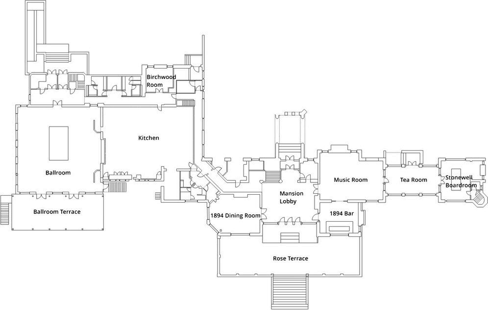
Floorplans & Capacities

MIRAVAL BERKSHIRES & WYNDHURST MANSION

FUNCTION ROOM

SQ. FT.

CLASSROOM

THEATER

BANQUET

RECEPTION

CONF.

U

HOLLOW SQ.

Ballroom

2,750

80

200

180

200

54

36

52

Ballroom Foyer

350

-

-

-

-

-

-

-

Ballroom Terrace

1,320

-

60

56

70

30

-

-

Birchwood Room

204

-

-

8

-

-

-

-

Music Room

1,025

30

72

56

72

24

22

28

Tea Room

578

8

36

30

36

20

14

16

Stonewell Room

450

-

16

14

16

16

-

-

LOWER LEVEL 1894 Lobby Bar

-

-

-

-

20

-

-

-

1894 Bistro

777

-

-

26

25

12

13

26

Berkshire Room

1,696

56

120

96

120

36

27

33

Greylock Room OUTDOOR

500

12

28

28

28

8

10

12

Rose Terrace

2,000

-

140

80

150

42

-

-

Rose Terrace Lawn

4,860

-

200

200

150

-

-

-

English Garden Terrace

1,350

-

80

48

60

18

-

-

MAIN LEVEL

LOWER LEVEL

OUTDOOR

*All sizing is appropriate. F&B, AV, and additional décor needs may affect space capacity.


Turn static files into dynamic content formats.

Create a flipbook
Miraval Berkshires | Floorplans & Capacities by Miraval Resorts & Spas - Issuu