











SCScuplture
TerminaliacatappaIndianalmond
Swieteniamacrophylla/Mahogany
Syzygiummyrtifolium/Redlip
Allamandacathartica/Goldentrumpet
Petuniaintegrifolia/Violetflowerpetunia
Gerberajamesonii/Barbertondaisy
Shrubs




B
GENERAL NOTES
C
PILECAP LINK MESH
PREFABRICATED COLUMN CAGE
HOUSEHOLD SHELTER CORE CAGE D

General Notes show information such as concrete cover, concrete grade, anchorage & lapping requirements



General Notes show information such as concrete cover, concrete grade, anchorage & lapping requirements



The piling plan shows the type, quantity, and location of the pile caps

The pilecap details show the dimensions of the link mesh that is required to be fabricated
LINK MESH (SHOP DRAWING & SCHEDULE)
Examples of the shop drawing and schedule for pilecap link mesh



The floor plan shows the column marking and location of each column; the site engineer would then highlight the columns that are required to be fabricated and their various heights based on the site condition

The column detail shows the column size, number of rebars, size of outer & inner links (if any), and the level at which they shall be terminated

The section/elevation shows the general height of the columns but due to various site conditions, it is part of the “Standard Operating Procedure (SOP)” to check with the site engineers on the exact height that is required.
PREFABRICATED COLUMN CAGE (SHOP DRAWING & SCHEDULE)

Examples of the shop drawing and schedule for prefabricated column cage


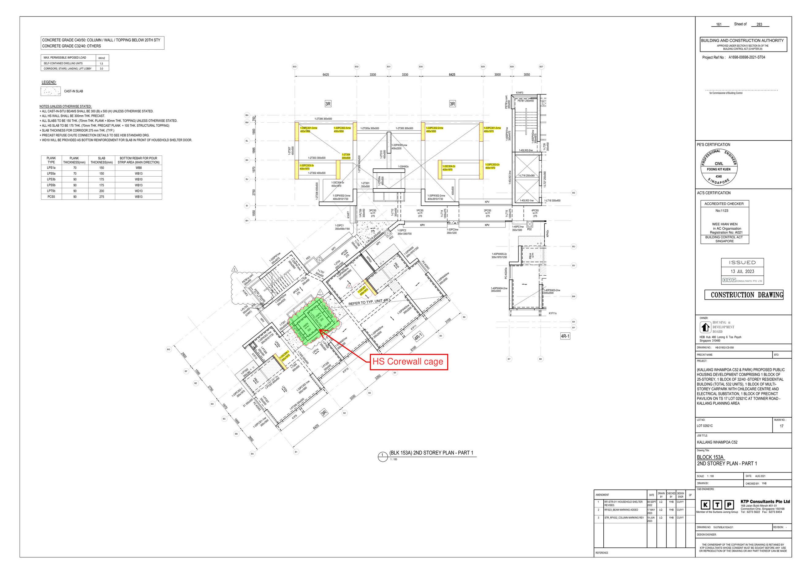
The floor plan shows the location, as well as the markings of the household shelters that require the core cage to be fabricated

From this household shelter details, the levels at which the individual household shelters start and end.

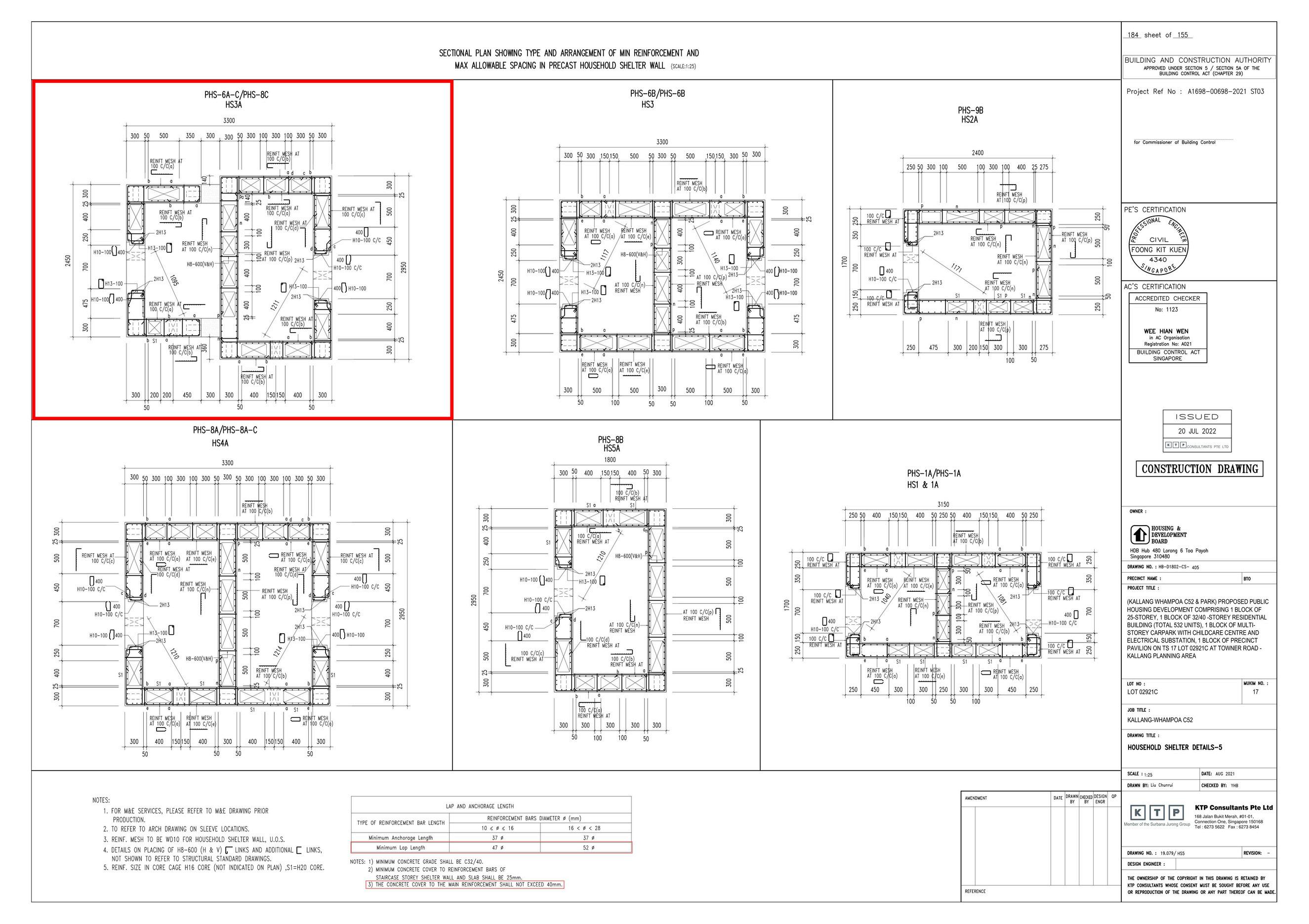
These details show the quantity and type of core cages that are required for fabrication.

Following the Standard Operating Procedure (SOP)”, it is important to check the height from Elevation/Section against the height stated in the Household Shelter Details and inform the site engineers if there are any discrepancies.
HOUSEHOLD
SHELTER CORE CAGE (SHOP DRAWING & SCHEDULE)
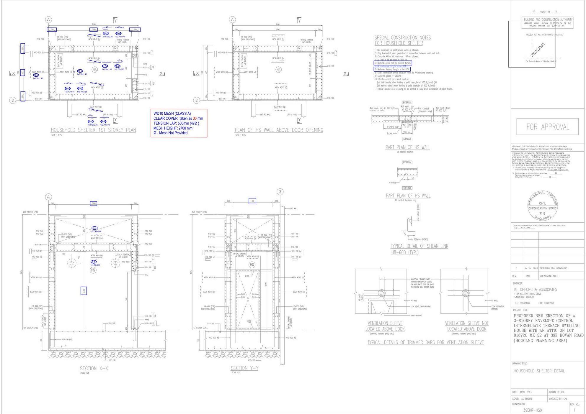
An example of the shop drawing and schedule for Core Cage

GENERAL NOTES

General Notes show information such as concrete cover, concrete grade, anchorage & lapping requirements


General Notes show information such as concrete cover, concrete grade, anchorage & lapping requirements

























