Design Portfolio

Page 1

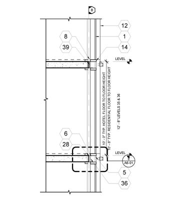
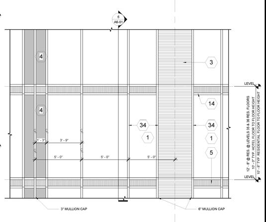
MASONRY CONTROL JOINT. FINISH TO MATCH MORTAR. CJ 4. REFER TO RCP FOR SPECIFICATION OF EXTERIOR LIGHTING 5. MATERIAL MANUFACTURERS AND COLORS INDICATED ON DRAWINGS ARE SUBJECT TO CHANGE DURING THE CONSTRUCTION PROCESS. ANY DEVIATIONS FROM APPROVED PLANS SHALL FOLLOW ESTABLISHED ADMINISTRATIVE PROCEDURES FOR APPROVAL. ELEVATION LEGEND WINDOW/STOREFRONT SYSTEM. REFER TO WINDOW SCHEDULE SHEET FOR SPECIFICATION. EXTERIOR MATERIAL LEGEND BR-1 BRICK VENEER BASIS OF DESIGN: ACME COLOR: MARBLE GRAY MTL-1 PREFINISHED ALUMINUM BASIS OF DESIGN: ALUCOBOND (ACM) or QUEST UNITIZED WINDOW WALL w/ ALUM PANEL or DRI COLOR: CHARCOAL STO-1 STUCCO COLOR 1 STO-2 STUCCO COLOR 2 MTL-2 PREFINISHED ALUMINUM INFILL BASIS OF DESIGN: PERFORATED PANEL OR MESH COLOR: CHARCOAL MTL-3 PREFINISHED ALUMINUM BASIS OF DESIGN: DRI COLOR: CHARCOAL STO-3 STUCCO COLOR 3 LEVEL 05 997'-0" LEVEL 06 1,007'-8" LEVEL 07 1,018'-4" LEVEL 08 1,029'-0" LEVEL 09 1,039'-8" LEVEL 10 1,050'-4" LEVEL 11 1,061'-0" LEVEL 12 1,071'-8" LEVEL 14 1,082'-4" LEVEL 15 1,093'-0" LEVEL 16 1,103'-8" LEVEL 18 1,114'-4" LEVEL 19 1,125'-0" LEVEL 20 1,135'-8" LEVEL 21 (PH) 1,147'-4" LEVEL 22 (PH) 1,159'-0" ROOF 1,170'-8" LEVEL 17 1,109'-0" ARCHITECTURAL PRECAST PANELS WITH PERFORATED PREFINISHED ALUMINUM INFILL PANELS TO ALLOW FOR NATURAL VENTILATION OF GARAGE. PRECAST PANELS TO MATCH BRICK COLOR ON TOWER ABOVE. 42" TALL 8" CIP CRASH WALLS BEYOND METAL PANEL AND ALUMINUM WINDOW WALL SYSTEM GARAGE SCREENING INFILL METAL STUD WALL PANELS WITH PERFORATED PREFINISHED ALUMINUM INFILL PANELS TO ALLOW FOR NATURAL VENTILATION OF GARAGE. 42" TALL 8" CIP CRASHWALLS BEYOND. MTL-1 11'-8" 11'-8" 11'-8" 10'-8" 10'-8" 10'-8" 10'-8" 10'-8" 10'-8" 10'-8" 10'-8" 10'-8" 3-LINE GLASS GUARDRAIL PREFINISHED ALUMINUM GLASS WINDSCREEN SYSTEM A5-2.4 1 BR-1 5'-4" 5'-4" CTRL RM 1,177'-10" PREFINISHED ALUMINUM 3 LINE GLASS GUARDRAIL 6'-0" 3'-6" ISSUED FOR CONSTRUCTION PROJECT NAME REVISIONS CD PERMIT SET 11/12/21 ISSUE FOR ELEVATIONS VANCE ON 14TH EAST ELEVATION NOISSUED FOR DATE STAIR #S02 UP MASONRY CONTROL JOINT. FINISH TO MATCH MORTAR. CJ 2. REFER TO PROJECT MANUAL FOR SPECIFICATIONS. 3. COORDINATE BUILDING SIGNAGE LOCATIONS AND REQUIREMENTS W/ OWNER AND ELECTRICAL PRIOR TO FABRICATION. 4. REFER TO RCP FOR SPECIFICATION OF EXTERIOR LIGHTING 5. MATERIAL MANUFACTURERS AND COLORS INDICATED ON DRAWINGS ARE SUBJECT TO CHANGE DURING THE CONSTRUCTION PROCESS. ANY DEVIATIONS FROM APPROVED PLANS SHALL FOLLOW ESTABLISHED ADMINISTRATIVE PROCEDURES FOR APPROVAL. ELEVATION LEGEND WINDOW/STOREFRONT SYSTEM. REFER TO WINDOW SCHEDULE SHEET FOR SPECIFICATION. X EXTERIOR MATERIAL LEGEND KEY PLAN BRBRICK VENEER BASIS OF DESIGN: ACME COLOR: MARBLE GRAY MTL-1 PREFINISHED ALUMINUM BASIS OF DESIGN: ALUCOBOND (ACM) or QUEST UNITIZED WINDOW WALL w/ ALUM PANEL or DRI COLOR: CHARCOAL STO-1 STUCCO COLOR STO-2 STUCCO COLOR MTL-2 PREFINISHED ALUMINUM INFILL BASIS OF DESIGN: PERFORATED PANEL OR MESH COLOR: CHARCOAL MTL-3 PREFINISHED ALUMINUM BASIS OF DESIGN: DRI COLOR: CHARCOAL STO-3 STUCCO COLOR LOBBY LEVEL 01 935'-3" LEVEL P1 956'-0" LEVEL P2 966'-0" LEVEL P3 976'-0" LEVEL P4 986'-0" LEVEL 05 997'-0" LEVEL 06 1,007'-8" LEVEL 07 1,018'-4" LEVEL 08 1,029'-0" LEVEL 09 1,039'-8" LEVEL 10 1,050'-4" LEVEL 11 1,061'-0" LEVEL 12 1,071'-8" LEVEL 14 1,082'-4" LEVEL 15 1,093'-0" LEVEL 16 1,103'-8" LEVEL 18 1,114'-4" LEVEL 19 1,125'-0" LEVEL 20 1,135'-8" LEVEL 21 (PH) 1,147'-4" LEVEL 22 (PH) 1,159'-0" ROOF 1,170'-8" LEVEL 17 1,109'-0" A5-2.1 GARAGE SCREENING ARCHITECTURAL PRECAST PANELS WITH PERFORATED PREFINISHED ALUMINUM INFILL PANELS TO ALLOW FOR NATURAL VENTILATION OF GARAGE. PRECAST PANELS TO MATCH BRICK COLOR ON TOWER ABOVE. 42" TALL 8" CIP CRASH WALLS BEYOND AT RAMP. METAL PANEL AND ALUMINUM WINDOW WALL SYSTEM GARAGE SCREENING INFILL METAL STUD WALL PANELS WITH STO-3 FINISH. PERFORATED PREFINISHED ALUMINUM INFILL PANELS TO ALLOW FOR NATURAL VENTILATION OF GARAGE. 42" TALL 8" CIP CRASHWALLS BEYOND. MTL-1 11'-8" 11'-8" 11'-8" 10'-8" 10'-8" 10'-8" 10'-8" 10'-8" 10'-8" 10'-8" 10'-8" 10'-8" 3-LINE GLASS GUARDRAIL PREFINISHED ALUMINUM GLASS WINDSCREEN SYSTEM A5-2.4 1 BR-1 5'-4" 5'-4" LOBBY LEVEL 02 939'-0" CTRL RM 1,177'-10" PREFINISHED ALUMINUM LINE GLASS GUARDRAIL 6'-0" 3'-6" © 2021 Brock Hudgins Architects, LLC brockhudgins.com ISSUED FOR CONSTRUCTION PROJECT NAME ADDRESS OWNER SHEET NAME PROJ. NUMBER DATE SHEET REVISIONS CD PERMIT SET 11/12/21 ISSUE FOR A5-1.1 EXTERIOR ELEVATIONSOVERALL 19106 TOLL BROTHERS APARTMENT LIVING 250 14TH ST ATLANTA, GA VANCE ON 14TH 1/16" = 1'-0" 2 EAST ELEVATION 2 1 NOISSUED FOR DATE STAIR #S02 UP DESIGN PORTFOLIO MIHIR PATEL

DESIGN PORTFOLIO

|| Shri Akshar Purushottam Maharaj|| || Pramukh Swami Maharaj || || Mahant Swami Maharaj ||
GEORGIA INSTITUTE OF TECHNOLOGY MASTER OF ARCHITECTURE MAY 2014 BACHELOR OF SCIENCE IN ARCHITECTURE AUGUST 2010 INTERNATIONAL AFFAIRS MINOR
MIHIR PATEL
CONTENTS BROCK-HUDGINS ARCHITECTS PROJECTS SMALLWOOD PROJECTS STUDIO PROJECTS ZERO-ENERGY HOUSING PORTMAN PRIZE FINALIST STAGE BACKDROPS BAPS MANDIR STAGE FOR GRAND OPENING SKETCHES PHOTOGRAPHY OIE PHOTO CONTEST FINALIST 02 10 24 40 42 48

Brock-Hudgins Architects Projects

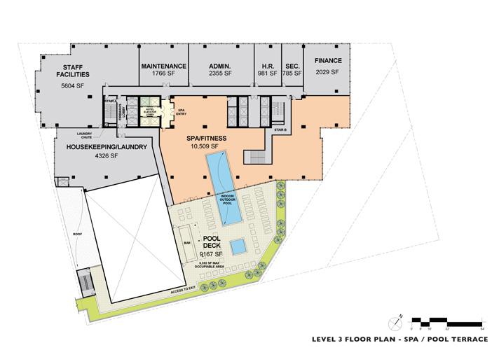
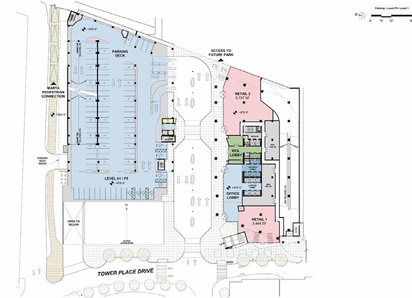
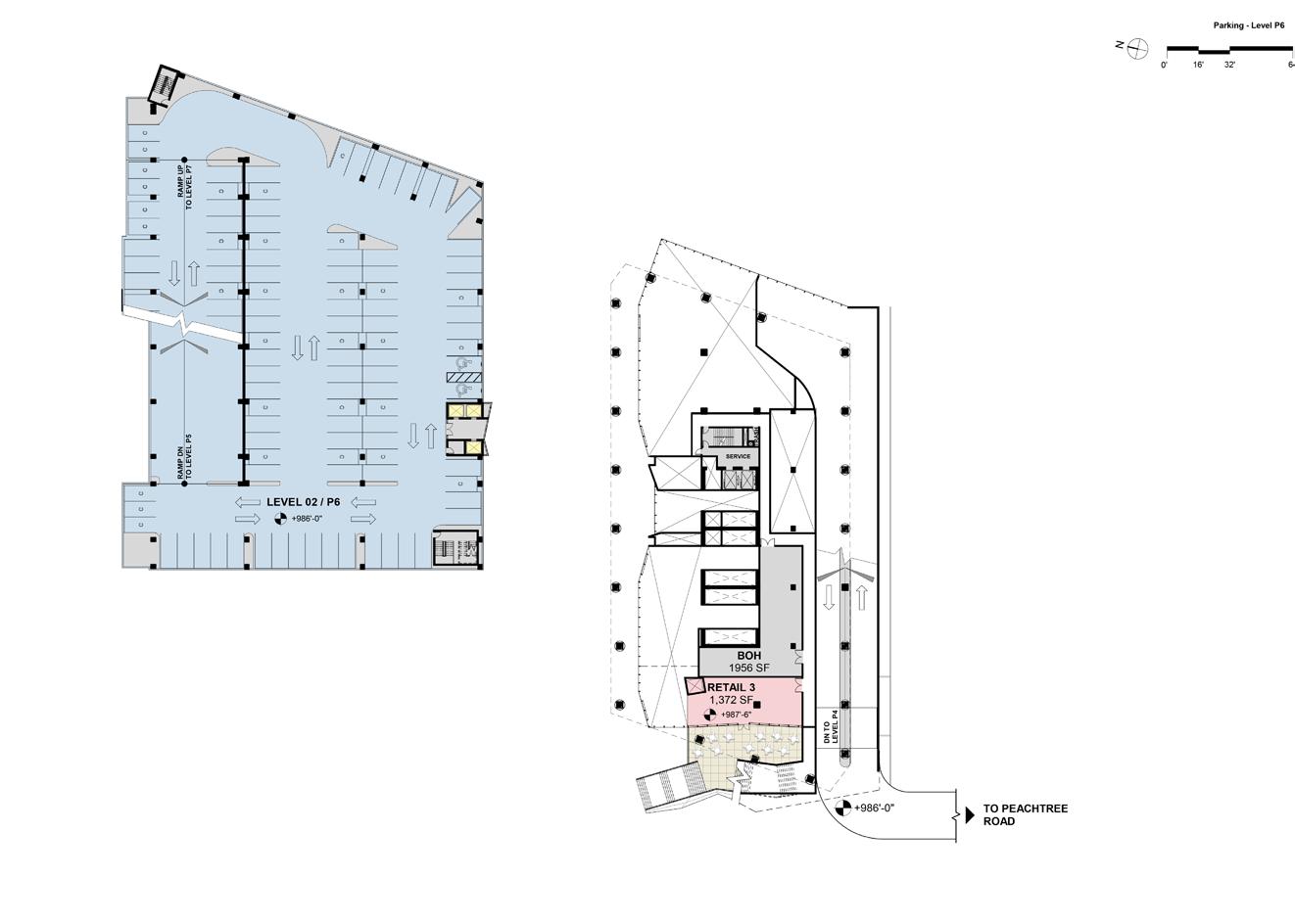
VANCE ON 14TH MULTI-FAMILY APARTMENTS

ATLANTA, GA | 250 14TH STREET

Vance on 14th is a proposed new construction, 22-story multi-family residential building, comprised of 16 residential levels over 4 levels of parking deck. The building takens on a L-shaped parti that towers to a height of 235’-5” from the lobby level to the topmost roof level.

The building contains 172 residential units and 243 parking spaces with three levels of amenity spaces overlooking Piedmont Park, including a outdoor louge area at Level 5, a swimming pool at Level 17 and a spa-pool at Level 18 with an acrylic-edge and waterfall feature cascading down into the lower pool.

The building skin is designed in a supergrid aeshtethic with material and glazing changes that speak to the scale of the surrounding density-types that they face. For example, window wall and metal panel systems are used at the facades facing the urban streets, whereas “punched” window-wall systems in EIFs are used at the facades facing the residential neighborhoods in the area. The mass of the parking deck is also broken up with the use of thin-brick set in precast panels with “punched” perforated metal screens to help with the transition the scale of the building so as to not make it feel like a towering mass over the smaller-scale buildings in the area.

Principal: Ben Hudgins

Project Manager: Ian Fralick

Designer: Mihir Patel, Caroline Roy Isenberg & Carly Todd

RENDERINGS By Others 2 PORTFOLIO MIHIR PATEL 20212023
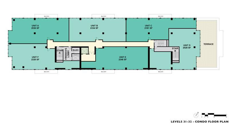
A5B 0607 S3 0613 A2 0615 S2 0617 0619 BD1 0618 0606 B1 0602 B1 0601 A5A AD1 0604 A3 0616 A6 0603-FLOOR PLAN NOTES FLOOR PLAN LEGEND A1 LEVEL PLAN VANCE LEVEL 06 FLOOR PLAN 74.87' 89° 45' 56' W 185.18' 00° 13' 58" 14TH STREET (APPARENT 60' R.O.W.) 14 TH PLACE (APPARENT 30' R.O.W.) 15' ALLEY ADJACENT PROPERTY OWNER: MULTIPLE OWNERS) ADDRESSES: 1160, 1162, 1164, 1166, 1168, 1170, 1172 14th PLACE EXISTING MULTI-FAMILY RESIDENTIAL BUILDING RESIDENTIAL BUILDING 192.30' 00° 00' 16" 14.65' 00° 18' 19"W 89° 58' 21" W 00° 40' 02" 143.74' 89° 55' 59" W 15'20' TRANSITIONAL YARDLOADING -ALLEYSITE PLAN TRANSITIONAL HEIGHT PLANE DIAGRAM MASONRY CONTROL JOINT. FINISH TO MATCH MORTAR. CJ ELEVATION NOTES ALL METAL CAPS, COPING, FLASHING, SCUPPERS, FLASHING, AND OTHER RELATED ROOF ITEMS SHALL BE INSTALLED PER THE LATEST SMACNA REGULATION. 2. REFER TO PROJECT MANUAL FOR SPECIFICATIONS. 3. COORDINATE BUILDING SIGNAGE LOCATIONS AND REQUIREMENTS W/ OWNER AND ELECTRICAL PRIOR TO FABRICATION. 4. REFER TO RCP FOR SPECIFICATION OF EXTERIOR LIGHTING 5. MATERIAL MANUFACTURERS AND COLORS INDICATED ON DRAWINGS ARE SUBJECT TO CHANGE DURING THE CONSTRUCTION PROCESS. ANY DEVIATIONS FROM APPROVED PLANS SHALL FOLLOW ESTABLISHED ADMINISTRATIVE PROCEDURES FOR APPROVAL. ELEVATION LEGEND WINDOW/STOREFRONT SYSTEM. REFER SPECIFICATION. X EXTERIOR MATERIAL LEGEND KEY PLAN BR-1 BRICK VENEER BASIS OF DESIGN: ACME COLOR: MARBLE GRAYPREFINISHED ALUMINUM BASIS OF DESIGN: ALUCOBOND (ACM) or QUEST UNITIZED WINDOW WALL w/ ALUM PANEL or DRI-DESIGN COLOR: CHARCOAL STOSTUCCO COLOR 1 STOSTUCCO COLOR 2 MTLBASIS OF DESIGN: PERFORATED PANEL OR MESH COLOR: CHARCOAL MTLPREFINISHED ALUMINUMCOLOR: CHARCOAL STOSTUCCO COLOR 3 LEVEL P2 A5-2.1 GARAGE SCREENING ARCHITECTURAL PRECAST PANELS WITH PERFORATED PREFINISHED GARAGE. PRECAST PANELS TO MATCH BRICK COLOR ON TOWE ABOVE. GARAGE SCREENING METAL AND GLASS EXPRESSION FROM RESIDENTIAL LEVELS ABOVE AS AN EXTENSION OF ARCHITECTURAL LANGUAGE OF TOWER. SPANDREL GLASS AT 42" CRASH WALL LOCATIONS. METAL PANEL AND ALUMINUM WINDOW WALL SYSTEMPREFINISHED ALUMINUM GLASS WINDSCREEN SYSTEM 3-LINE GLASS GUARDRAIL BRA5-2.3 1 6'-0" 3'-6" MIDRAMP LEVEL ALUMINUM -LINE GLASS GUARDRAIL LEVEL P2 GARAGE SCREENING PERFORATED PREFINISHED ALUMINUM INFILL PANELS TO ALLOW FOR NATURAL VENTILATION OF GARAGE. TOWER ABOVE. 42" TALL 8" CIP CRASH WALLS BEYOND WINDOW WALL SYSTEM GARAGE SCREENING INFILL METAL STUD WALL PANELS WITH PERFORATED PREFINISHED ALUMINUM INFILL PANELS TO ALLOW FOR NATURAL VENTILATION OF GARAGE. PREFINISHED ALUMINUM GLASS WINDSCREEN PREFINISHED ALUMINUM MIDRAMP LEVEL © 2021 Brock Hudgins Architects, LLC brockhudgins.com ISSUED FOR CONSTRUCTION PROJECT NAME ADDRESS OWNER SHEET NAME PROJ. NUMBER DATE SHEET REVISIONS CD PERMIT SET 11/12/21 ISSUE FOR A5-1.1 EXTERIOR ELEVATIONSOVERALL 19106 TOLL BROTHERS APARTMENT LIVING 250 14TH ST ATLANTA, GA VANCE ON 14TH 1/16" = 1'-0" 1 SOUTH ELEVATION 1 MASONRY CONTROL JOINT. FINISH TO MATCH MORTAR. CJ ELEVATION NOTES ALL METAL CAPS, COPING, FLASHING, SCUPPERS, FLASHING, AND OTHER RELATED ROOF ITEMS SHALL BE INSTALLED PER THE LATEST SMACNA REGULATION. 2. REFER TO PROJECT MANUAL FOR SPECIFICATIONS. 3. COORDINATE BUILDING SIGNAGE LOCATIONS AND REQUIREMENTS W/ OWNER AND ELECTRICAL PRIOR TO FABRICATION. 4. REFER TO RCP FOR SPECIFICATION OF EXTERIOR LIGHTING 5. MATERIAL MANUFACTURERS AND COLORS INDICATED ON DRAWINGS ARE SUBJECT TO CHANGE DURING THE CONSTRUCTION PROCESS. ANY DEVIATIONS FROM APPROVED PLANS SHALL FOLLOW ESTABLISHED ADMINISTRATIVE PROCEDURES FOR APPROVAL. ELEVATION LEGEND WINDOW/STOREFRONT SYSTEM. REFER SPECIFICATION. X EXTERIOR MATERIAL LEGEND KEY PLAN BR-1 BRICK VENEER BASIS OF DESIGN: ACME COLOR: MARBLE GRAYPREFINISHED ALUMINUM BASIS OF DESIGN: ALUCOBOND (ACM) or QUEST UNITIZED WINDOW WALL w/ ALUM PANEL or DRI-DESIGN COLOR: CHARCOAL STOSTUCCO COLOR 1 STOSTUCCO COLOR 2 MTLBASIS OF DESIGN: PERFORATED PANEL OR MESH COLOR: CHARCOAL MTLPREFINISHED ALUMINUMCOLOR: CHARCOAL STOSTUCCO COLOR 3 LOBBY LEVEL 01 935'-3" LEVEL P1 956'-0" LEVEL P2 966'-0" LEVEL P3 976'-0" LEVEL P4 986'-0" LEVEL 05 997'-0" LEVEL 06 1,007'-8" 11'-8" 11'-8" 11'-8" 10'-8" 10'-8" 10'-8" 10'-8" 10'-8" 10'-8" 10'-8" 10'-8" 10'-8" 10'-8" 10'-8" 10'-8" 10'-8" 11'-0" 10'-0" 10'-0" 10'-0" 20'-9" LEVEL 07 1,018'-4" LEVEL 08 1,029'-0" LEVEL 09 1,039'-8" LEVEL 10 1,050'-4" LEVEL 11 1,061'-0" LEVEL 12 1,071'-8" LEVEL 14 1,082'-4" LEVEL 15 1,093'-0" LEVEL 16 1,103'-8" LEVEL 18 1,114'-4" LEVEL 19 1,125'-0" LEVEL 20 1,135'-8" LEVEL 21 (PH) 1,147'-4" LEVEL 22 (PH) 1,159'-0" ROOF 1,170'-8" LEVEL 17 1,109'-0" GARAGE SCREENING ARCHITECTURAL PRECAST PANELS WITH PERFORATED PREFINISHED GARAGE. PRECAST PANELS TO MATCH BRICK COLOR ON TOWE ABOVE. GARAGE SCREENING METAL AND GLASS EXPRESSION FROM RESIDENTIAL LEVELS ABOVE AS AN EXTENSION OF ARCHITECTURAL LANGUAGE TOWER. SPANDREL GLASS AT 42" CRASH WALL LOCATIONS. METAL PANEL AND ALUMINUM WINDOW WALL SYSTEMPREFINISHED ALUMINUM GLASS WINDSCREEN SYSTEM 3-LINE GLASS GUARDRAIL BR-1 5'-4" 5'-4" LOBBY LEVEL 02 939'-0" CTRL RM 1,177'-10" 6'-0" 3'-6" MIDRAMP LEVEL 946'-0" ALUMINUM -LINE GLASS GUARDRAIL LOBBY LEVEL 01 935'-3" LEVEL P1 956'-0" LEVEL P2 966'-0" LEVEL P3 976'-0" LEVEL P4 986'-0" LEVEL 05 997'-0" LEVEL 06 1,007'-8" LEVEL 07 1,018'-4" LEVEL 08 1,029'-0" LEVEL 09 1,039'-8" LEVEL 10 1,050'-4" LEVEL 11 1,061'-0" LEVEL 12 1,071'-8" LEVEL 14 1,082'-4" LEVEL 15 1,093'-0" LEVEL 16 1,103'-8" LEVEL 18 1,114'-4" LEVEL 19 1,125'-0" LEVEL 20 1,135'-8" LEVEL 21 (PH) 1,147'-4" LEVEL 22 (PH) 1,159'-0" ROOF 1,170'-8" LEVEL 17 1,109'-0" A5-2.1 1 GARAGE SCREENING ARCHITECTURAL PRECAST PANELS WITH PERFORATED PREFINISHED ALUMINUM INFILL PANELS TO ALLOW FOR NATURAL VENTILATION OF GARAGE. TOWER ABOVE. 42" TALL 8" CIP CRASH WALLS BEYOND AT RAMP. WINDOW WALL SYSTEM GARAGE SCREENING INFILL METAL STUD WALL PANELS WITH STO- FINISH. PERFORATED PREFINISHED ALUMINUM INFILL PANELS TO ALLOW FOR NATURAL VENTILATION OF GARAGE.11'-8" 11'-8" 11'-8" 10'-8" 10'-8" 10'-8" 10'-8" 10'-8" 10'-8" 10'-8" 10'-8" 10'-8" 10'-8" 10'-8" 10'-8" 10'-8" 11'-0" 10'-0" 10'-0" 10'-0" 20'-9" PREFINISHED ALUMINUM GLASS WINDSCREEN SYSTEM A5-2.4 BR5'-4" 5'-4" LOBBY LEVEL 02 939'-0" CTRL RM 1,177'-10" PREFINISHED ALUMINUM 6'-0" 3'-6" MIDRAMP LEVEL 946'-0" © 2021 Brock Hudgins Architects, LLC brockhudgins.com ISSUED FOR CONSTRUCTION PROJECT NAME ADDRESS OWNER SHEET NAME PROJ. NUMBER DATE SHEET REVISIONS CD PERMIT SET 11/12/21 ISSUE FOR A5-1.1 EXTERIOR ELEVATIONSOVERALL 19106 TOLL BROTHERS APARTMENT LIVING 250 14TH ST ATLANTA, GA VANCE ON 14TH 1/16" = 1'-0" 1 SOUTH ELEVATION 1/16" = 1'-0" 2 EAST ELEVATION 2 1 MASONRY CONTROL JOINT. FINISH TO MATCH MORTAR. CJ ELEVATION NOTES ALL METAL CAPS, COPING, FLASHING, SCUPPERS, FLASHING, AND OTHER RELATED ROOF ITEMS SHALL BE INSTALLED PER THE LATEST SMACNA REGULATION. 2. REFER TO PROJECT MANUAL FOR SPECIFICATIONS. 3. COORDINATE BUILDING SIGNAGE LOCATIONS AND REQUIREMENTS W/ OWNER AND ELECTRICAL PRIOR TO FABRICATION. 4. REFER TO RCP FOR SPECIFICATION OF EXTERIOR LIGHTING 5. MATERIAL MANUFACTURERS AND COLORS INDICATED ON DRAWINGS ARE SUBJECT TO CHANGE DURING THE CONSTRUCTION PROCESS. ANY DEVIATIONS FROM APPROVED PLANS SHALL FOLLOW ESTABLISHED ADMINISTRATIVE PROCEDURES FOR APPROVAL. ELEVATION LEGEND WINDOW/STOREFRONT SYSTEM. REFER SPECIFICATION. X EXTERIOR MATERIAL LEGEND KEY PLAN BR-1 BRICK VENEER BASIS OF DESIGN: ACME COLOR: MARBLE GRAYPREFINISHED ALUMINUM BASIS OF DESIGN: ALUCOBOND (ACM) or QUEST UNITIZED WINDOW WALL w/ ALUM PANEL or DRI-DESIGN COLOR: CHARCOAL STO-1 STUCCO COLOR 1 STO-2 STUCCO COLOR 2 MTL-2 BASIS OF DESIGN: PERFORATED PANEL OR MESH COLOR: CHARCOAL MTL-3 PREFINISHED ALUMINUMCOLOR: CHARCOAL STO-3 STUCCO COLOR 3 LOBBY LEVEL 01 935' 3" LEVEL P1 LEVEL P2 LEVEL P3 LEVEL P4 LEVEL 05 LEVEL 06 1,007' LEVEL 07 1,018' LEVEL 08 1,029' LEVEL 09 1,039' LEVEL 10 1,050' LEVEL 11 1,061' LEVEL 12 1,071' LEVEL 14 1,082' LEVEL 15 1,093' LEVEL 16 1,103' LEVEL 18 1,114' LEVEL 19 1,125' LEVEL 20 1,135' LEVEL 21 (PH) 1,147' 4" LEVEL 22 (PH) 1,159' 1,170' LEVEL 17 1,109' A5-2.2 PERFORATED PREFINISHED ALUMINUM INFILL PANEL SYSTEM TO ALLOW FOR NATURAL VENTILATION OF GARAGE ABOVE 42" TALL 8" CAST-IN-PLACE CRASH WALL. CHAINLINK FENCE ON ON STEEL FRAME. OPERABLE GATE PANELS INDICATED. 20'-9" 10'-0" 10'-0" 10'-0" 11'-0" 10'-8" 10'-8" 10'-8" 10'-8" 10'-8" 10'-8" 10'-8" 10'-8" 10'-8" 10'-8" 10'-8" 10'-8" 10'-8" 11'-8" 11'-8" 11'-8" STO-02 MTL-1 STO-1MTL-1 STO-02 PREFINISHED WINDSCREEN SYSTEM 3-LINE GLASS GUARDRAIL 3-LINE GLASS JULIET RAIL MESH GUARDRAIL SCREENING AT RTUS SUPPORTED BY DELEGATED DESIGNED STEEL FRAMES A5-2.5 LOBBY LEVEL 02 CTRL RM 1,177' 6'-0" 3'-6" CMU WALL A B B A B A A B B A8-1.0 MIDRAMP LEVEL 946'-0"STO-1 PREFINISHED ALUMINUM GUARDRAIL STO-3OVERHEAD LOADING DOCK DOOR LOBBY LEVEL 01 935'-3" LEVEL P1 956'-0" LEVEL P2 966'-0" LEVEL P3 976'-0" LEVEL P4 986'-0" LEVEL 05 997'-0" LEVEL 06 1,007'-8" LEVEL 07 1,018'-4" LEVEL 08 1,029'-0" LEVEL 09 1,039'-8" LEVEL 10 1,050'-4" LEVEL 11 1,061'-0" LEVEL 12 1,071'-8" LEVEL 14 1,082'-4" LEVEL 15 1,093'-0" LEVEL 16 1,103'-8" LEVEL 18 1,114'-4" LEVEL 19 1,125'-0" LEVEL 20 1,135'-8" LEVEL 21 (PH) 1,147'-4" LEVEL 22 (PH) 1,159'-0" ROOF 1,170'-8" LEVEL 17 1,109'-0" 3 FINISH. PERFORATED PREFINISHED ALUMINUM INFILL PANELS TO GARAGE SCREENING METAL AND GLASS EXPRESSION FROM RESIDENTIAL LEVELS ABOVE AS AN EXTENSION OF ARCHITECTURAL LANGUAGE OF TOWER. SPANDREL GLASS AT 42" STO SCREENING AT RTUS SUPPORTED BY DELEGATED DESIGNED STEEL FRAMES MTL STO LOBBY LEVEL 02 939'-0" CTRL RM 1,177'-10" MTL GARAGE SCREENING PERFORATED PREFINISHED ALUMINUM INFILL PANEL SYSTEM TO ALLOW FOR NATURAL VENTILATION OF GARAGE ABOVE 42" TALL 8" CAST ALACO 563-PR PARAPET RETURN LADDER OR EQUAL © 2021 Brock Hudgins Architects, LLC ISSUED FOR CONSTRUCTION PROJECT NAME ADDRESS OWNER SHEET NAME PROJ. NUMBER DATE SHEET REVISIONS CD PERMIT SET 11/12/21 ISSUE FOR EXTERIOR ELEVATIONSOVERALL 19106 TOLL BROTHERS APARTMENT LIVING 250 14TH ST ATLANTA, GA VANCE ON 14TH 1/16" = 1'-0" 1 NORTH ELEVATION 1/16" = 1'-0" 2 WEST ELEVATION 2 1 NOISSUED FOR DATE MASONRY CONTROL JOINT. FINISH TO MATCH MORTAR. CJ ELEVATION NOTES ALL METAL CAPS, COPING, FLASHING, SCUPPERS, FLASHING, AND OTHER RELATED ROOF ITEMS SHALL BE INSTALLED PER THE LATES SMACNA REGULATION. 2. REFER TO PROJECT MANUAL FOR SPECIFICATIONS. 3. COORDINATE BUILDING SIGNAGE LOCATIONS AND REQUIREMENTS W/ OWNER AND ELECTRICAL PRIOR TO FABRICATION. 4. REFER TO RCP FOR SPECIFICATION OF EXTERIOR LIGHTING 5. MATERIAL MANUFACTURERS AND COLORS INDICATED ON DRAWINGS ARE SUBJECT TO CHANGE DURING THE CONSTRUCTION PROCESS. ANY DEVIATIONS FROM APPROVED PLANS SHALL FOLLOW ESTABLISHED ADMINISTRATIVE PROCEDURES FOR APPROVAL. ELEVATION LEGEND WINDOW/STOREFRONT SYSTEM. REFER SPECIFICATION. X EXTERIOR MATERIAL LEGEND KEY PLAN BRBRICK VENEER BASIS OF DESIGN: ACME COLOR: MARBLE GRAYPREFINISHED ALUMINUM BASIS OF DESIGN: ALUCOBOND (ACM) or QUEST UNITIZED WINDOW WALL w/ ALUM PANEL or DRI-DESIGN COLOR: CHARCOAL STO-1 STUCCO COLOR STO-2 STUCCO COLOR MTL-2 BASIS OF DESIGN: PERFORATED PANEL OR MESH COLOR: CHARCOAL MTL-3 PREFINISHED ALUMINUMCOLOR: CHARCOAL STO-3 STUCCO COLOR LOBBY LEVEL 01 935'-3" LEVEL P1 956'-0" LEVEL P2 966'-0" LEVEL P3 976'-0" LEVEL P4 986'-0" LEVEL 05 997'-0" LEVEL 06 1,007'-8" LEVEL 07 1,018'-4" LEVEL 08 1,029'-0" LEVEL 09 1,039'-8" LEVEL 10 1,050'-4" LEVEL 11 1,061'-0" LEVEL 12 1,071'-8" LEVEL 14 1,082'-4" LEVEL 15 1,093'-0" LEVEL 16 1,103'-8" LEVEL 18 1,114'-4" LEVEL 19 1,125'-0" LEVEL 20 1,135'-8" LEVEL 21 (PH) 1,147'-4" LEVEL 22 (PH) 1,159'-0" ROOF 1,170'-8" LEVEL 17 1,109'-0" PERFORATED PREFINISHED ALUMINUM INFILL PANEL SYSTEM TO ALLOW FOR NATURAL VENTILATION OF GARAGE ABOVE 42" TALL 8" CAST-IN-PLACE CRASH WALL. CHAINLINK FENCE ON ON STEEL FRAME. OPERABLE GATE PANELS INDICATED. 20'-9" 10'-0" 10'-0" 10'-0" 11'-0" 10'-8" 10'-8" 10'-8" 10'-8" 10'-8" 10'-8" 10'-8" 10'-8" 10'-8" 10'-8" 10'-8" 10'-8" 10'-8" 11'-8" 11'-8" 11'-8" STO-02 MTL-1 STO-1MTL-1 MESH GUARDRAIL SCREENING AT RTUS SUPPORTED BY DELEGATED DESIGNED STEEL FRAMES LOBBY LEVEL 02 939'-0" CTRL RM 1,177'-10" CMU WALL B A A B B A A B B A B B B A8-1.0 MIDRAMP LEVEL 946'-0"PREFINISHED ALUMINUM GUARDRAIL STO-3OVERHEAD LOADING DOCK DOOR LOBBY LEVEL 01 935'-3" LEVEL P1 956'-0" LEVEL P2 966'-0" LEVEL P3 976'-0" LEVEL P4 986'-0" LEVEL 05 997'-0" LEVEL 06 1,007'-8" LEVEL 07 1,018'-4" LEVEL 08 1,029'-0" LEVEL 09 1,039'-8" LEVEL 10 1,050'-4" LEVEL 11 1,061'-0" LEVEL 12 1,071'-8" LEVEL 14 1,082'-4" LEVEL 15 1,093'-0" LEVEL 16 1,103'-8" LEVEL 18 1,114'-4" LEVEL 19 1,125'-0" LEVEL 20 1,135'-8" LEVEL 21 (PH) 1,147'-4" LEVEL 22 (PH) 1,159'-0" ROOF 1,170'-8" 11'-8" 11'-8" 11'-8" 10'-8" 10'-8" 10'-8" 10'-8" 10'-8" 10'-8" 10'-8" 10'-8" 10'-8" 10'-8" 10'-8" 10'-8" 10'-8" 11'-0" 10'-0" 10'-0" 10'-0" 20'-9" LEVEL 17 1,109'-0" A5-2.2 2 GARAGE SCREENING INFILL METAL STUD WALL PANELS WITH STO-3 FINISH. PERFORATED PREFINISHED ALUMINUM INFILL PANELS TO ALLOW FOR NATURAL VENTILATION OF GARAGE. GARAGE SCREENING METAL AND GLASS EXPRESSION FROM RESIDENTIAL LEVELS ABOVE AS AN EXTENSION OF ARCHITECTURAL LANGUAGE OF TOWER. SPANDREL GLASS AT 42" STO-02 SCREENING AT RTUS SUPPORTED BY DELEGATED DESIGNED STEEL FRAMES MTL-1 STO-1 MTLA5-2.6 LOBBY LEVEL 02 939'-0" CTRL RM 1,177'-10" MTL-1 B A A A A B A B A B B A A B A B B A A B A B MIDRAMP LEVEL 946'-0" 20'-1" GARAGE SCREENING PERFORATED PREFINISHED ALUMINUM INFILL PANEL SYSTEM TO ALLOW FOR NATURAL VENTILATION OF GARAGE ABOVE 42" TALL 8" CAST-IN-PLACE CRASH WALL. ALACO 563-PR PARAPET RETURN LADDER OR EQUAL ARCHITECTURAL PRECAST PANEL ELASTOMERIC STO- STO-1 STOPREFINISHED ALUMINUM GUARDRAIL © 2021 Brock Hudgins Architects, LLC ISSUED FOR CONSTRUCTION PROJECT NAME ADDRESS OWNER SHEET NAME PROJ. NUMBER DATE SHEET REVISIONS CD PERMIT SET 11/12/21 ISSUE FOR EXTERIOR ELEVATIONSOVERALL 19106 TOLL BROTHERS APARTMENT LIVING 250 14TH ST ATLANTA, GA VANCE ON 14TH 1/16" = 1'-0" 1 NORTH ELEVATION 1/16" = 1'-0" 2 WEST ELEVATION 2 1 NOISSUED FOR DATE--FLOOR PLAN LEGEND - --A1 LEVEL PLAN APARTMENT VANCE-BD2 1907 A6 1903 AD1 1904 A4 1906 B1 1902 B1 1901------ --A1 LEVEL PLAN ATLANTA, VANCE LEVEL 19 -FLOOR PLAN SOUTH ELEVATION EAST ELEVATION NORTH ELEVATION WEST ELEVATION SITE PLAN LEVELS 6-16 - TYP. RES. LEVEL 17 - POOL LEVEL 19 - SPA 3 MIHIR PATEL PORTFOLIO
20212023
BROCK HUDGINS ARCHITECTS PROJECTS

BROCK HUDGINS ARCHITECTS PROJECTS

LOBBY LEVEL 01 LEVEL P1 956'-0" LEVEL P2 966'-0" LEVEL P3 976'-0" LEVEL P4 986'-0" LEVEL 05 997'-0" LEVEL 06 1,007'-8" 2 A6-2.1B A6-2.1B 10'-8" 11'-0" 10'-0" 10'-0" 10'-0" 20'-9" 2'-0" 5'-6" 3'-6" 1'-0" 5'-6" 3'-6" 1'-0" 5'-6" 3'-6" 1'-0" 5'-6" 3'-6" 1'-0" 5'-6" 6'-3" 8'-0" METAL GARAGE SCREEN: PANELS. MIN 40% PRECAST CONCRETE SILL PREFINISHED ALUMINUM CURTAIN WALL SYSTEM STRUCTRAL STEEL "C" CHANNEL. REF STRUCTURE. ALIGN LEVEL P1 956'-0" LEVEL P2 966'-0" LEVEL P3 976'-0" LEVEL P4 986'-0" LEVEL 05 997'-0" MID-RAMP 946'-0" 11'-0" 10'-0" 10'-0" 10'-0" 20'-9" 10'-1 1/2" 1/2" 9'-4 1/2" OPEN 1/2" 9'-4 1/2" OPEN 1/2" 9'-4 1/2" OPEN 10'-0" OPEN 1/2" 10'-8 1/8" 3 7/8" 8" CAST IN PLACE CRASHWALL TYPICAL 1.3 GSKY PRO GREEN WALL SYSTEM REF. LANDSCAPE PARKING PARKING PARKING PARKING PREFINISHED 3-LINE ALUMINUM GLASS GUARDRAIL 3" CONCRETE TOPPING SLAB WITH TAPERED INSULATION TO DRAIN WITH DRAINAGE MAT & HOT APPLIED WATERPROOFING SYSTEM PROPERTY MANAGER OFFICE TILE ON PEDESTAL PAVERS REF. LANDSCAPE PREFINISHED METAL COPING OVER CONCRETE CURB SPRAY APPLIED CLOSED CELL FOAM INSULATION CEILING REF. INTERIORS BOLLARD 61'-9" 1.2 8 LOBBY LEVEL 01 LEVEL P1 956'-0" LEVEL P2 966'-0" LEVEL P3 976'-0" LEVEL P4 986'-0" 1 LEVEL 05 997'-0" 11'-0" 10'-0" 10'-0" 10'-0" 10'-0" 10'-9" 1.3 PREFINISHED ALUMINUM STOREFRONT GLAZING SYSTEM PARKING PARKING PARKING PARKING ELASTOMERIC PAINTED STEEL CONCRETE CURB WITH OPENINGS FOR DRAINGAGE MID-RAMP LANDING ASST. PROPERTY MANAGER OFFICE STRUCTURAL STEEL SUPPORT & ANGLE AS NEEDED REF. STRUCTURE SPRAY APPLIED CLOSED CELL FOAM INSULATION CEILING REF. INTERIORS PREFINISHED 3-LINE ALUMINUM GLASS GUARDRAIL 3" CONCRETE TOPPING SLAB WITH TAPERED INSULATION TO DRAIN WITH DRAINAGE MAT & HOT APPLIED WATERPROOFING SYSTEM STONE BALLAST & TILE ON PEDESTAL PAVERS REF. LANDSCAPE PREFINISHED METAL COPING OVER CONCRETE CURB GRAVEL REF. LANDSCAPE PREFINISHED METAL COPING PRECAST PANEL THIN-BRICK PRECAST PANELS WITH PERFORATED PREFINISHED ALUMINUM INFILL PANELS BOLLARD 2'-0" 5'-6" 3'-6" 1'-0" 5'-6" 3'-6" 1'-0" 5'-6" 3'-6" 1'-0" 5'-6" 3'-6" 1'-0" 5'-6" 3'-6" 2'-9" 8'-0" MIN. 3'-6" 1.2 A11-2.0 A11-1.0 12 © 2021 Brock Hudgins brockhudgins.com PROJECT NAME ADDRESS OWNER SHEET NAME PROJ. NUMBER DATE SHEET REVISIONS CD PERMIT ISSUE FOR IFC SET A6ENLARGED SECTIONS SOUTH 19106 TOLL BROTHERS APARTMENT 250 14TH ST ATLANTA, VANCE ON ENLARGED GARAGE FACADE 1/4" = 1'-0" SECTION 3 5 NOISSUED FOR 5IFC ADDENDUM WALL SECTIONS & DETAILS AT PARKING DECK AND AMENITY TERRACE 1 5/8" METAL STUD 5" PREFINISHED ALUMINUM WALL PANEL SYSTEM PAINTED 5/8" GYPSUM WALL BOARD SET METAL TRIM IN SEALANT TO AIR/WEATHER BARRIER BATT INSULATION METAL STUD COLUMN 6" 5/8" RIGID DENS GLASS EXTERIOR SELF AIR/WEATHER BATT PAINTED GYPSUM PREFINISHED PANEL WALL WEATHER-AIR BARRIER EXTERIOR SHEATHING BATT INSULATION ROD MID-RAMP 946'-0" PREFINISHED ALUMINUM STOREFRONT GLAZING SYSTEM ELASTOMERIC PAINTED STEEL REF. STRUCTURAL DRAWINGS STRUCTURAL STEEL SUPPORT & ANGLE AS NEEDED REF. STRUCTURE SPRAY APPLIED CLOSED CELL FOAM INSULATION FLUID-APPLIED AIR/WEATHER BARRIER 5/8" T.O.S. 946'-0" 2" RIGID INSULATION IN-FILL BETWEEN STEEL SUPPORTS SELF ADHERED HEAD FLASHING MEMBRANE LAPPED OVER HEAD FLASHING BATT INSULATION PAINTED GYPSUM WALL BOARD REF. INTERIOR DRAWINGS CEILING REF. INTERIOR DRAWINGS AIR GAP 1" HORIZONTAL Z-GIRT AIR BARRIER SEALANT JOINT CONTINUOUS AROUND THE INSIDE PERIMETER OF WINDOW TO AIR/WEATHER BARRIER SILL FLASHING WITH DRIP EDGE PT WOOD BLOCKING CONTINUOUS SILICONE SEALANT PREFINISHED ARCHITECTURAL PRE-CAST PANEL DENS GLASS EXTERIOR SHEATHING STRUCTURAL STEEL SUPPORTS EMBEDDED STEEL SUPPORTS BY PRECAST SUPPLIER SEE STRUCTURAL DRAWINGS FLUID-APPLIED AIR/WEATHER BARRIER LAPPED OVER SELF-ADHERED MEMBRANE PREFINISHED ALUMINUM FLASHING TO MATCH CORRUGATED, PERFORATED METAL PANEL PREFINISHED VERTICALLY-LAYED CORRUGATED, PERFORATED METAL PANEL PREFINISHED METAL PLATE BEHIND CORRUGATED PANEL TO PREVENT WATER INTRUSION SHIM FOR VENTING SHIM FOR VENTING SUBGIRT FLUID-APPLIED AIR/WEATHER BARRIER 1/4" PREFINISHED ARCHITECTURAL PRECAST PANEL PREFINISHED ALUMINUM FLASHING TO MATCH CORRUGATED, PERFORATED METAL PANEL RIVET WOOD BLOCKING SELF-ADHERING FLASHING MEMBRANE DENS GLASS EXTERIOR SHEATHING BATT INSULATION PAINTED GYPSUM WALL BOARD METAL STUDS PREFINISHED ARCHITECTURAL PRECAST PANEL SELF-ADHEREING FLASHING MEMBRANE LAPPED OVER HEAD FLASHING ADHERING 3" = 1'-0" 8 ACM PANEL 3" = 1'-0" 7 ACM PANEL 5 1 1/2" = 1'-0" 12 DETAIL AT PERFORATED METAL PANEL & PRECAST PANEL SEALANT DENS GLASS EXTERIOR SHEATHING SELF-ADHERED AIR/WEATHER BARRIER LAPPED OVER SILL FLASHING BATT INSULATION DENS GLASS EXTERIOR SHEATHING HORIZONTAL Z-GIRT PRE-FINISHED ALUMINUM PANEL WALL SYSTEM COPING SPLICE PLATE PREFINISHED ALUMINUM COPING ROOF MEMBRANE TO OVERLAP FACE OF WALL CONTINUOUS SEALANT COPING SUPPORT SHIM WOOD BLOCK FULLY ADHERED TPO ROOF MEMBRANE BACKER ROD COVER BOARD R25 CONTINUOUS INSULATION TAPERED TO DRAIN RIGID INSULATION LEVEL 05 997'-0" CONCRETE CURB TAPERED INSULATION TO DRAIN DRAINAGE MAT PREFINISHED METAL COPING TO MATCH GUARDRAIL CONCRETE TOPPING SLAB ADHERING MEMBRANE FLASHING W/ ELASTOMERIC SEALANT SELF-ADHERING MEMBRANE FLASHING PERFORATED PREFINISHED ALUMINUM INFILL PANELS TO ALLOW FOR GARAGE VENTILATION STONE BALLAST SEE LANDSCAPE DRAWINGS HOT APPLIED WATERPROOFING ARCHITECTURAL PRECAST PANEL 3 1/2"PT WOOD BLOCKING LEVEL 05 997'-0" CONCRETE CURB TAPERED INSULATION TO DRAIN DRAINAGE MAT TWO-PIECE PREFINISHED METAL COPING TO MATCH GUARDRAIL CONCRETE TOPPING SLAB ADHERING MEMBRANE FLASHING ANCHOR PLATE MOUNTED PREFINISHED ALUMINUM & GLASS GUARDRAIL SEAL PERIMETER ON ANCHOR PLATE W/ ELASTOMERIC SEALANT SELF-ADHERING MEMBRANE FLASHING CMU BLOCK WALL ON TOP OF CAST-IN-PLACE CONCRETE BARRIER WALL TILE ON PEDESTAL PAVERS SEE LANDSCAPE DRAWINGS HOT APPLIED WATERPROOFING FLUID-APPLIED AIR/WEATHER BARRIER PT WOOD BLOCKING 5" GSKY PRO GREENWALL SEE LANDSCAPE DRAWINGS GSKY PRO TOP TRIM SEE LANDSCAPE DRAWINGS 3" = 1'-0" 2 DETAIL 3" = 1'-0" 3 DETAIL 1 1/2" = 1'-0" 5 GUARDRAIL & COPING DETAIL AT LEVEL 5 -AMENITY TERRACE 1 1/2" = 1'-0" 8 GREEN WALL & COPING DETAIL AT LEVEL 5 -AMENITY TERRACE PROVIDE FIRE STOP AROUND DRAIN HOLE DECK CLAMP SUMP RECEIVER R-30 MIN. TAPERED INSULATION; SLOPE 1/4":12" TO DRAIN PROTECTION BOARD TPO ROOFING FULLY ADHERED AT VERTICAL SURFACES, MECHANICALLY FASTENED AND HEAT WELDED AT ALL JOINTS CL 4 M N ROOF STRUCTURE NOTE: TO OBTAIN PROPER DRAINAGE, ROOF DRAINS SHOULD BE LOCATED AT THE ROOF DRAIN - SET IN SUMP BASIN (SEE ROOF PLANS) M A X PROVIDE FIRE STOP AROUND DRAIN HOLE DECK CLAMP SUMP RECEIVER R-30 MIN. TAPERED INSULATION; SLOPE 1/4":12" TO DRAIN PROTECTION BOARD TPO ROOFING FULLY ADHERED AT VERTICAL SURFACES, MECHANICALLY FASTENED AND HEAT WELDED AT ALL JOINTS CL M N ROOF STRUCTURE NOTE: TO OBTAIN PROPER DRAINAGE, ROOF DRAINS SHOULD BE LOCATED AT THE LOWEST POINT OF THE ROOF WITH THE POSITIVE SLOPE OF 1/4" PER 1-0" MIN. TOWARDS THE DRAIN. SEE ROOF PLANS FOR MORE INFORMATION. SEE PLUMBING DWGS. FOR PIPE AND DRAIN TYPE & SIZE ROOF OVERFLOW DRAINSET IN SUMP BASIN (SEE ROOF PLANS) 2 1 LEVEL 05 997'-0" 1.3 1.2 CONCRETE CURB TAPERED INSULATION TO DRAIN DRAINAGE MAT PREFINISHED METAL COPING TO MATCH GUARDRAIL CONCRETE TOPPING SLAB SELF-ADHERING MEMBRANE FLASHING ANCHOR PLATE FACE-MOUNTED PREFINISHED ALUMINUM & GLASS GUARDRAIL SEAL PERIMETER ON ANCHOR PLATE W/ ELASTOMERIC SEALANT SELF-ADHERING MEMBRANE FLASHING PERFORATED PREFINISHED ALUMINUM INFILL PANELS TO ALLOW FOR GARAGE VENTILATION STONE BALLAST SEE LANDSCAPE DRAWINGS HOT APPLIED WATERPROOFING ARCHITECTURAL PRECAST PANEL 3 1/2" 33 PT WOOD BLOCKING 1 LEVEL 05 997'-0" 1.3 1.2 CONCRETE CURB TAPERED INSULATION TO DRAIN DRAINAGE MAT TWO-PIECE PREFINISHED METAL COPING TO MATCH GUARDRAIL CONCRETE TOPPING SLAB SELF-ADHERING MEMBRANE FLASHING ANCHOR PLATE FACE-MOUNTED PREFINISHED ALUMINUM & GLASS GUARDRAIL SEAL PERIMETER ON ANCHOR PLATE W/ ELASTOMERIC SEALANT SELF-ADHERING MEMBRANE FLASHING CMU BLOCK WALL ON TOP OF CAST-IN-PLACE CONCRETE BARRIER WALL TILE ON PEDESTAL PAVERS SEE LANDSCAPE DRAWINGS HOT APPLIED WATERPROOFING FLUID-APPLIED AIR/WEATHER BARRIER PT WOOD BLOCKING 5" GSKY PRO GREENWALL SEE LANDSCAPE DRAWINGS GSKY PRO TOP TRIM SEE LANDSCAPE DRAWINGS brockhudgins.com REVISIONS ISSUE FOR DETAIL -TYP. ROOF DRAIN 3" = 1'-0" 3 DETAIL -TYP. OVERFLOW DRAIN 5 GUARDRAIL & COPING DETAIL AT LEVEL 5 -AMENITY TERRACE GREEN WALL & COPING DETAIL AT LEVEL 5 -AMENITY TERRACE NOISSUED 3GMP ADDENDUM 5IFC ADDENDUM NOTES: 1. WITH MECHANICALLY FASTENED SPEC. MEMBRANE MUST BE MECHANICALLY FASTENED WITH PLATE WASHERS WITH SYSTEM FASTENERS AT 6" O.C. AROUND PROJECTION. 2. DO NOT OVERLAP THE FLANGES OF PIPE FLASHINGS. MIN 2" MIN 2" TYP VENT PIPE CONDUIT STAINLESS STEEL CLAMPING RING W/ SEALING MASTIC ROOF MEMBRANE MFR'S TYP PREMOLDED PIPE FLASHING COVER BOARD OVER 1" MIN. TAPERED INSULATION ROOFING MEMBRANE HEAT WELD AT JOINTS SYSTEM'S WATER BLOCK TPO MANUFACTURER'S SINGLE PLY SEALANT JOINT AT TOP OF BOOT FLASHINGS TO PIPE PENETRATION CLEANED OF ANY BUTYL FROM SURFACE, AS REQUIRED BY MANUFACTURER. CLAMPING RING TPO SYSTEM WATERBLOCK NEOPRENE PAD EQUIPMENT CURB MOUNTING PLATE SEE STRUCT FOR ATTACHEMENT BONDING CEMENT (IF SPECIFIED) LAP CEMENT CIRCULAR ROOF PROJECTION ROOF INSULATION ANCHOR DISC AND FASTENER PREMOLDED PIPE FLASHING NOTES: 1. WITH MECHANICALLY FASTENED SPEC. MEMBRANE MUST BE MECHANICALLY FASTENED WITH PLATE WASHERS AND SYSTEM FASTENERS AT 6" O.C. AROUND PROJECTION. 2. DO NOT OVERLAP THE FLANGES OF PIPE FLASHINGS. DECK CLAMP R-30 MIN. TAPERED INSULATION; SLOPE 1/4":12" TO DRAIN PROTECTION BOARD TPO ROOFING FULLY ADHERED AT VERTICAL SURFACES, MECHANICALLY FASTENED AND HEAT WELDED AT ALL JOINTS CL M N NOTE: TO OBTAIN PROPER DRAINAGE, ROOF DRAINS SHOULD BE LOCATED AT THE LOWEST POINT OF THE ROOF WITH THE POSITIVE SLOPE OF TOWARDS THE DRAIN. SEE ROOF PLANS FOR MORE INFORMATION. SEE PLUMBING DWGS. FOR PIPE AND DRAIN TYPE & SIZE ROOF DRAIN - SET IN SUMP BASIN (SEE ROOF PLANS) 1 M X PROVIDE FIRE STOP AROUND DRAIN HOLE DECK CLAMP SUMP RECEIVER R-30 MIN. TAPERED INSULATION; SLOPE 1/4":12" TO DRAIN PROTECTION BOARD TPO ROOFING FULLY ADHERED AT VERTICAL SURFACES, MECHANICALLY FASTENED AND HEAT WELDED AT ALL JOINTS CL 4 M N ROOF STRUCTURE NOTE: TO OBTAIN PROPER DRAINAGE, ROOF DRAINS SHOULD BE LOCATED AT THE LOWEST POINT OF THE ROOF WITH THE POSITIVE SLOPE OF 1/4" PER 1-0" MIN. TOWARDS THE DRAIN. SEE ROOF PLANS FOR MORE INFORMATION. SEE PLUMBING DWGS. FOR PIPE AND DRAIN TYPE & SIZE ROOF OVERFLOW DRAINSET IN SUMP BASIN (SEE ROOF PLANS) 2 SEALANT DENS GLASS EXTERIOR SHEATHING SELF-ADHERED AIR/WEATHER BARRIER LAPPED OVER SILL FLASHING BATT INSULATION DENS GLASS EXTERIOR SHEATHING HORIZONTAL Z-GIRT PRE-FINISHED ALUMINUM PANEL WALL SYSTEM COPING SPLICE PLATE PREFINISHED ALUMINUM COPING ROOF MEMBRANE TO OVERLAP FACE OF WALL CONTINUOUS SEALANT COPING SUPPORT SHIM WOOD BLOCK FULLY ADHERED TPO ROOF MEMBRANE BACKER ROD COVER BOARD R25 CONTINUOUS INSULATION TAPERED TO DRAIN CONTINOUS SEALANT CONTINOUS SEALANT RIGID INSULATION LEVEL 05 997'-0" 1.3 1.2 CONCRETE CURB TAPERED INSULATION TO DRAIN DRAINAGE MAT PREFINISHED METAL COPING TO MATCH GUARDRAIL CONCRETE TOPPING SLAB SELF-ADHERING MEMBRANE FLASHING ANCHOR PLATE FACE-MOUNTED PREFINISHED ALUMINUM & GLASS GUARDRAIL SEAL PERIMETER ON ANCHOR PLATE W/ ELASTOMERIC SEALANT SELF-ADHERING MEMBRANE FLASHING PERFORATED PREFINISHED ALUMINUM INFILL PANELS TO ALLOW FOR GARAGE VENTILATION STONE BALLAST SEE LANDSCAPE DRAWINGS HOT APPLIED WATERPROOFING ARCHITECTURAL PRECAST PANEL 3 1/2" 1 2 1PT WOOD BLOCKING PLATE OF DRAWINGS © 2021 Brock Hudgins Architects, LLC brockhudgins.com ISSUED FOR CONSTRUCTION PROJECT NAME ADDRESS OWNER SHEET NAME PROJ. NUMBER DATE SHEET REVISIONS CD PERMIT SET11/12/21 01/31/22 A11-2.0 ROOF DETAILS 19106 12/20/21 TOLL BROTHERS APARTMENT LIVING 250 14TH ST ATLANTA, GA VANCE ON 14TH 3" = 1'-0" 1 DETAIL -TYP. ROOF PIPE FLASHING 3" = 1'-0" DETAIL -TYP. ROOF DRAIN 3" = 1'-0" 3 DETAIL -TYP. OVERFLOW DRAIN 3" = 1'-0" 4 TYPICAL TPO ROOF COPING 5 1 1/2" = 1'-0" 5 GUARDRAIL & COPING DETAIL AT LEVEL 5 -AMENITY TERRACE DATE 01/14/22 04/29/22 LOBBY LEVEL 01 935'-3" LEVEL P1 956'-0" LEVEL P2 966'-0" LEVEL P3 976'-0" LEVEL P4 986'-0" LEVEL 05 997'-0" LEVEL 06 1,007'-8" A6-2.1B A6-2.1B 10'-8" 11'-0" 10'-0" 10'-0" 10'-0" 20'-9" ARCHITECTURAL PRECAST PANEL 10'-1 9/16" GSKY PRO GREEN WALL SYSTEM REF. LANDSCAPE 2'-0" 5'-6" 3'-6" 1'-0" 5'-6" 3'-6" 1'-0" 5'-6" 3'-6" 1'-0" 5'-6" 3'-6" 1'-0" 5'-6" 6'-3" 8'-0" METAL GARAGE SCREEN: PERFORATED PREFINISHED ALUMINUM INFILL PANELS. MIN 40% OPENNESS PRECAST CONCRETE SILL PREFINISHED ALUMINUM CURTAIN WALL SYSTEM STRUCTRAL STEEL "C" CHANNEL. REF STRUCTURE. ALIGN LOBBY LEVEL 01 935'-3" LEVEL P1 956'-0" LEVEL P2 966'-0" LEVEL P3 976'-0" LEVEL P4 986'-0" LEVEL 05 997'-0" MID-RAMP 946'-0" 11'-0" 10'-0" 10'-0" 10'-0" 20'-9" 10'-1 1/2" 1/2" 9'-4 1/2" OPEN 1/2" 9'-4 1/2" OPEN 1/2" 9'-4 1/2" OPEN 10'-0" OPEN 1/2" 10'-8 1/8" 7/8" 8" CAST IN PLACE CRASHWALL TYPICAL 1.3 PARKING PARKING PARKING PARKING PREFINISHED 3-LINE ALUMINUM GLASS GUARDRAIL 3" CONCRETE TOPPING SLAB WITH TAPERED INSULATION TO DRAIN WITH DRAINAGE MAT & HOT APPLIED WATERPROOFING SYSTEM PROPERTY MANAGER OFFICE TILE ON PEDESTAL PAVERS REF. LANDSCAPE PREFINISHED METAL COPING OVER CONCRETE CURB SPRAY APPLIED CLOSED CELL FOAM INSULATION CEILING REF. INTERIORS BOLLARD 61'-9" 1.2 A11-2.0 8 LOBBY LEVEL 01 935'-3" LEVEL P1 956'-0" LEVEL P2 966'-0" LEVEL P3 976'-0" LEVEL P4 986'-0" 1 LEVEL 05 997'-0" 11'-0" 10'-0" 10'-0" 10'-0" 10'-0" 10'-9" 1.3 PREFINISHED ALUMINUM STOREFRONT GLAZING SYSTEM PARKING PARKING PARKING PARKING ELASTOMERIC PAINTED STEEL CONCRETE CURB WITH OPENINGS FOR DRAINGAGE MID-RAMP LANDING ASST. PROPERTY MANAGER OFFICE SPRAY APPLIED CLOSED CELL FOAM INSULATION CEILING REF. INTERIORS PREFINISHED 3-LINE ALUMINUM GLASS GUARDRAIL 3" CONCRETE TOPPING SLAB WITH TAPERED INSULATION TO DRAIN WITH DRAINAGE MAT & HOT APPLIED WATERPROOFING SYSTEM STONE BALLAST & TILE ON PEDESTAL PAVERS REF. LANDSCAPE PREFINISHED METAL COPING OVER CONCRETE CURB GRAVEL REF. LANDSCAPE PREFINISHED METAL COPING PRECAST PANEL THIN-BRICK PRECAST PANELS WITH PERFORATED PREFINISHED ALUMINUM INFILL PANELS BOLLARD 2'-0" 5'-6" 3'-6" 1'-0" 5'-6" 3'-6" 1'-0" 5'-6" 3'-6" 1'-0" 5'-6" 3'-6" 1'-0" 5'-6" 3'-6" 2'-9" 8'-0" MIN. 3'-6" 1.2 A11-2.0 A11-1.0 12 © 2021 Brock Hudgins brockhudgins.com PROJECT NAME ADDRESS OWNER SHEET NAME PROJ. NUMBER DATE SHEET REVISIONS CD PERMIT ISSUE FOR IFC SET A6ENLARGED SECTIONS SOUTH 19106 TOLL BROTHERS APARTMENT 250 14TH ST ATLANTA, VANCE ON 1/4" = 1'-0" 1 ENLARGED GARAGE FACADE 1/4" = 1'-0" 2 SECTION 2 1/4" = 1'-0" 3 SECTION 3 5 NOISSUED FOR 5" PREFINISHED ALUMINUM WALL PANEL SYSTEM PAINTED 5/8" GYPSUM WALL BOARD SET METAL TRIM IN SEALANT TO AIR/WEATHER BARRIER BATT INSULATION METAL 5/8" DENS GLASS PAINTED PREFINISHED BATT INSULATION LEVEL P1 956'-0" MID-RAMP 946'-0" PREFINISHED ALUMINUM STOREFRONT GLAZING SYSTEM ELASTOMERIC PAINTED STEEL REF. STRUCTURAL DRAWINGS STRUCTURAL STEEL SUPPORT & ANGLE AS NEEDED REF. STRUCTURE SPRAY APPLIED CLOSED CELL FOAM INSULATION FLUID-APPLIED AIR/WEATHER BARRIER 5/8" T.O.S. 946'-0" 2" RIGID INSULATION IN-FILL BETWEEN STEEL SUPPORTS SELF ADHERED HEAD FLASHING MEMBRANE LAPPED OVER HEAD FLASHING BATT INSULATION PAINTED GYPSUM WALL BOARD REF. INTERIOR DRAWINGS CEILING REF. INTERIOR DRAWINGS AIR GAP 1" HORIZONTAL Z-GIRT AIR BARRIER SEALANT JOINT CONTINUOUS AROUND THE INSIDE PERIMETER OF WINDOW TO AIR/WEATHER BARRIER SILL FLASHING WITH DRIP EDGE PT WOOD BLOCKING CONTINUOUS SILICONE SEALANT PREFINISHED ARCHITECTURAL PRE-CAST PANEL DENS GLASS EXTERIOR SHEATHING STRUCTURAL STEEL SUPPORTS EMBEDDED STEEL SUPPORTS BY PRECAST SUPPLIER SEE STRUCTURAL DRAWINGS FLUID-APPLIED AIR/WEATHER BARRIER LAPPED OVER SELF-ADHERED MEMBRANE PREFINISHED ALUMINUM FLASHING TO MATCH CORRUGATED, PERFORATED METAL PANEL PREFINISHED VERTICALLY-LAYED CORRUGATED, PERFORATED METAL PANEL PREFINISHED METAL PLATE BEHIND CORRUGATED PANEL TO PREVENT WATER INTRUSION SHIM FOR VENTING SHIM FOR VENTING SUBGIRT FLUID-APPLIED AIR/WEATHER BARRIER 2 1/4" PREFINISHED ARCHITECTURAL PRECAST PANEL PREFINISHED ALUMINUM FLASHING TO MATCH CORRUGATED, PERFORATED METAL PANEL RIVET WOOD BLOCKING SELF-ADHERING FLASHING MEMBRANE DENS GLASS EXTERIOR SHEATHING BATT INSULATION PAINTED GYPSUM WALL BOARD METAL STUDS PREFINISHED ARCHITECTURAL PRECAST PANEL SELF-ADHEREING FLASHING MEMBRANE LAPPED OVER HEAD FLASHING VEHICULAR TRAFFIC COATING SYSTEM (BASIS OF DESIGN: PUMA TRAFFIC COATING) LAPPED OVER SELF-ADHERING FLASHING MEMBRANE 3" = 1'-0" 8 ACM PANEL 3" = 1'-0" 7 ACM PANEL 5 5 1 1/2" = 1'-0" 12 DETAIL AT PERFORATED METAL PANEL & PRECAST PANEL 4 PORTFOLIO MIHIR PATEL
20212023

A.G. RHODES MEMORY CARE VILLAGE RENOVATION & ADDITION

MARRIETTA, GA | 900 WYLIE ROAD

A.G. Rhodes Memory Care is a new construction building addition with a connection to and renovation of a portion of an existing building that serves seniors that need longterm rehabilitation or memory care.

This skilled nursing project type consists of approx. 9,500 SF of renovation of the existing building with an addition of 2,000 SF that connects to a new 75,000 SF building that is 3 stories above grade. The new building also has basement level and pedestrian walkway totaling about 1,000 SF to connect the two buildings together.

In order to provide a personalized, intimate nursing care, the new building’s residential levels are organized into households, whereby 12 residential rooms share a common living room, dining room, sunroom, country kitchen and core facilities as well as outdoor patios. Thus, the project contains 72 new residential rooms.

Due to the importance of adhering to code clearances, per the client’s request, as-built drawings were also produced to identify potential conflicts early-on as framing was installed.

Principals: Eric Brock

Project Manager: Ian Fralick

Designers: Carly Todd & Mihir Patel

RENDERINGS By Others (right).

EXISTING PHASE I

EXISTING PHASE II

EXISTING PHASE III

GATE 4 7 7 7 2 12 12 EXISTING BUILDING PHASE EXISTING BUILDING PHASE II EXISTING BUILDING PHASE III NEW BUILDING EXISTING BUILDING - PHASE - BUILDING EXPANSION - CONSTRUCTION OF NEW COMMERCIAL KITCHEN, LOADING DOCK AND DINING ROOM EXISTING BUILDING - PHASE - PHYSICAL THERAPY - DEMO OF EXISTING KITCHEN, CONSTRUCTION OF NEW PHYSICAL THERAPY AREA EXISTING BUILDING - PHASE III - INTERIOR UPGRADES - CORRIDOR FINISH REPLACEMENT AND PUBLIC RESTROOM UPGRADES EXISTING BUILDING - AREA NOT IN SCOPE OF PROJECT NEW BUILDING - CONSTRUCTION OF NEW BUILDING TO OCCUR CONCURRENTLY WITH PHASED CONSTRUCTION OF EXISTING BUILDING PROJECT PHASING LEGEND © 2021 Brock Hudgins Architects, LLC brockhudgins.com REVISIONS PROJECT NAME ADDRESS OWNER SHEET NAME PROJ. NUMBER PHASING DIAGRAM A.G. RHODES HEALTH AND REHABILITATION 900 WYLIE RD SE. MARIETTA, GA. 30067 A.G. RHODES MEMORY CARE VILLAGE 1/16" = 1'-0" 1 PHASING DIAGRAM NOISSUED FOR SITE PLAN IN PHASES
NEWBUILDING
by Ian Fralick
6 PORTFOLIO MIHIR PATEL
20212023
BROCK HUDGINS ARCHITECTS PROJECTS

BROCK HUDGINS ARCHITECTS PROJECTS

400 BISHOP STREET MULTI-FAMILY APARTMENTS

ATLANTA, GA

400 Bishop Street is a new construction, multi-family apartment building with 7 levels of residential units on top of 4 levels of parking deck. The building contains 274 units and an elevated amenity terrace above the parking deck.

The building skin is primarily composed of a varying rhythm of brick and fiber cement boards with some exposed board-formed, concrete finishes for the lower portion of the elevations. The upper portions of the elevations are primarily composed of EIFs. The variety in materials was intentially used to break-up the mass of the building.

Principal: Ben Hudgins

Project Manager: Matt Patterson & Ashley Das

Designers: Dorothy Steinbach & Mihir Patel

T B A 20N 22N 23N 24N 9 10 24S 26S 28S 19N 21N 27S 1 A-614 1 A-613 A-502 2 22S 25S 23S DOG WASH BIKE STORAGE 260 ELEVATOR LOBBY 257 STAIR C 165 2 A-613 7 ' -31/2 23 -111/2" 8 -9" 18 -0" 9 -7 9 -5" 8 -0" 13 ' -0 17 ' -0 56' 0" 9' 0" 20' - 0" 23' 0" 20' - 8" A-333 6 A-340 4 13000 ° 1'0" 16' 7" 1' 3 1/8" 76 35 50 " 385/8 " 3' - 0" 8' - 0" 10" 2' 7 7/8" 1'0" 10800 ° 257 260 1199 / 16" 7' 7" 1'0" 3 ' -71/2 238' - 10" 4' 8 1/2" PAINTABLE AIR & WEATHER BARRIER 2−51 2−51 1 A-615 BOLLARD 4 A-615 2 A-713 A-713 1 SLOPE TO DRAIN SC2 3' 5" 7' 6" 1' 2 5/8" 7' 2 3/8" 1' - 9 5/8" 9" 7' 6" 3' 2" 7' - 6" 1' 1" 2' 4" 7' 6" 3' 5" 7' 6" 2' - 3" 1' 2" 7' 6" 3' - 5" 7' - 6" 1' - 1" 26' 7 7/8" 2−46 1 6 2 0 0 6800° 2−46 1' 2 3/4" 10" 311 110" 1 -10" 2 -8" 2−46 4' - 8 3/8" 7' - 8" 3' - 0" 7' - 8" 3' - 0" 7' - 8" 2' 8" 7' 6" 6 -61/2" 8" 2 -41/2 1 ' -1" 6 -0" 3 -2 6 ' -0" 1 -9 1 -5 6 -0 1 -4" 2 -8 7 -6" 3 -5 7 -6" 2 -101/2 1 -11/2" 5 -0 1 -2" 20S 20S 23S 31A 31A 31A 31A 20A 20A 23C 20C 23C 20C 20C 17C 17C 17C A-713 5 A-121 1 2−46 WWW.BROCKHUDGINS.COM 530 MEANS STREET ATLANTA, GA Phone: (404) 512-5630 4 4 ACCESSORY DRIVE BISHOP STREET SOUT ER RALW Y OP R Y 400 BISHOP STREET TYPE I-B CONSTRUCTION 11 STORIES (7 RESIDENTIAL OVER PARKING) A-098 1 PODIUM SEE C.I.P. ENLARGED LEVEL 2 PLAN LEASING ENTRY CANOPY 8 PORTFOLIO MIHIR PATEL
RENDERING By Others (above).
20212023

Smallwood Projects

3354 PEACHTREE MIXED-USE OFFICE-CONDOMINIUMS

ATLANTA, GA | 3354 PEACHTREE ROAD

3354 Peachtree is a mixed-use project that has gone through many iterations from concept to design development due to complexities in partnerships and stakeholders invested in the project.

This exceptional project consists of a mixed-use officecondo-retail tower, a parking deck with 4 levels below ground, an adjoining 3350 expansion parking deck to recover parking spaces lost on the site’s existing surface lot, and considerations for a future residential apartment building at one corner of the site.

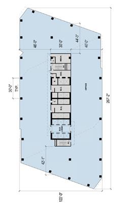
3354 Peachtree’s tower is designed to be one of the tallest buildings in Buckhead. It is a 44-story building reaching 612’-0” in height from the first floor level. The building consists of 2 levels of lobbies, 22 levels of Class A office spaces, 1 transfer level, 1 residential-condo amenity level, and 15 residential levels with a total of 63 condominium units.

A remarkable aspect of the tower is the chiselled nature of the form to not only create outdoor terraces with skyline views, an amenity sought after increasingly by office tenants, but also create a form with unique floor plates.

Principals: Gill Garrison

Design Architect: Greg Bennett

Project Architect: Jim Van Duys

Design Team: Martin Uquillas & Mihir Patel

SITE PLAN

The site is directly across from the Tower Place Park and maintains connections to the public transit system, MARTA.

335 4 P EACH TRE E M I XED U S E DEVELOPMENT • AT L AN TA G A SITE P L A N T o w e r P l a c e D r i v e G A - 4 0 0 O FF IC E & C O ND O PAR K ING D EC K 335 0 PAR K IN G D EC K 335 0 PE AC H TR E E R O A D T O W E R P LA C E 20 0 334 4 PE AC H TR E E R O A D TOW E R P LA C E PAR K M A RTA P EDESTRIA N C ONN E CT O N M A RTA NO RT H T E R M INA L B U C K H E A D S TAT I O N P e a c h t r e e R o a d
RENDERING by Helixscape (above).
10 PORTFOLIO MIHIR PATEL 20182020

3D-PRINT MODEL: SCREENSHOTS

SECT I O N D I A G R A M

SECT I O N D I A G R A M

Three different building orientation & form models. Files prepared by Mihir Patel. Printed by Zager 3D Printing (left).

3350 EXPANSION DECK EXISTING DECK

3350 EXPANSION DECK EXISTING DECK

SECTIONAL DIAGRAM

3354 PARKING DECK
Through below grade parking to show connections through various
parking decks and tower.
3354 PARKING DECK
11 MIHIR PATEL PORTFOLIO SMALLWOOD PROJECTS 20182020

3D-PRINTED MODEL File prepared by Mihir Patel. Printed by Zager 3D Printing.

PLANS by Team SKIN MODELLING by Mihir Patel

335 4 P EACH TRE E M XED USE DEVELOPMENT ATLANTA GA EVE L 5 TOWERPLA Parking & Stormwater Detention Vault 335 4 P EACH TRE E M XED USE DEVELOPMENT ATLANTA GA PARK I N G L EVE L 4 TOWERPLA LEVEL 4 / P8-P10 LEVEL 1 / P5 Plaza Level - Lobby, Retail & Main Deck Entry EVE L 6 EVE L 7 PARK I N G L EVE L S 8- 9 G A P ARK I N G L EVE L 6 PARK I N G L EVE L 6 PARK I N G L EVE L 6 PARK I N G L EVE L 6 EACH TRE E M XED USE DEVELOPMENT ATLANTA GA PARK I N G L EVE L 6 PARK I N G L EVE L 6 RENDERING: GA-400 VIEW by Helixscape RENDERING: PLAZA LEVEL
Helixscape
by
12 SMALLWOOD PROJECTS 20182020 PARK I N G L EVE L 6 PARK I N G L EVE L 6 DEVELOPMENT ATLANTA GA PARK I N G L EVE L 6
LEVEL 26 Office 22 - High-Rise (Executive) LEVEL 28 Amenity E. SVC. T. LEVEL 27 Transfer E. SVC. T. LEVEL 29 Residential 1 E. T. LEVEL 31 Residential 3 E. T. LEVEL 30 Residential 2 E. SVC. T. LEVEL 32 Residential 4 E. T. LEVEL 34 Residential 6 SVC. LEVEL 35 Residential 7 E. SVC. T. LEVEL 37 Residential 9 SVC. LEVEL 36 Residential 8 E. SVC. LEVEL 38 Residential 10 T. LEVEL 40 Residential 12 E. SVC. T. LEVEL 39 Residential 11 LEVEL 43 Residential 15 E. SVC. T. LEVEL 33 Residential 5 SVC. LEVEL 41 Residential 13 SVC. LEVEL 42 Residential 14 LEVEL 5 Office 1 - Low-Rise LEVEL 7 Office 3 - Low-Rise E. SVC. MECH. W.C. LEVEL 6 Office 2 - Low-Rise W.C. E. LOBBY LEVEL 8 Office 4 - Low-Rise W.C. E. LOBBY LEVEL 10 Office 6 - Low-Rise E. SVC. MECH. W.C. LEVEL 9 Office 5 - Low-Rise E. MECH. J. LOBBY LEVEL 11 Office 7 - Low-Rise E. MECH. J. LOBBY LEVEL 13 Office 9 - Low-Rise W.C. E. J. E. LOBBY LEVEL 14 Office 10 - Low-Rise E. MECH. E. LOBBY LEVEL 16 Office 12 - Override W.C. E. E. LOBBY LEVEL 15 Office 11 - Low-Rise W.C. J. E. LOBBY LEVEL 17 Office 13 - High-Rise W.C. SVC. E. W.C. LOBBY LEVEL 19 Office 15 - High-Rise E. MECH. J. LEVEL 18 Office 14 - High-Rise LEVEL 20 Office 16 - High-Rise E. MECH. J. LEVEL 22 Office 18 - High-Rise E. MECH. LEVEL 21 Office 17 - High-Rise E. MECH. J. LEVEL 23 Office 19 - High-Rise E. MECH. LEVEL 25 Office 21 - High-Rise LEVEL 24 Office 20 - High-Rise E. MECH. J. LEVEL 12 Office 8 - Low-Rise 13 MIHIR PATEL PORTFOLIO SMALLWOOD PROJECTS 20172018

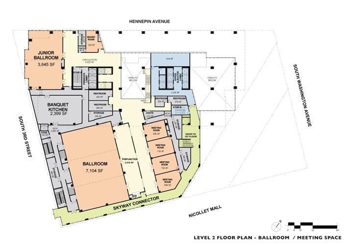
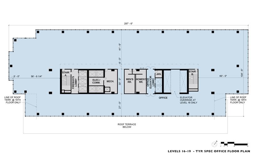
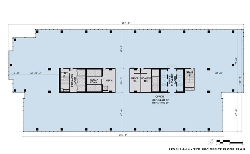
RBC GATEWAY MIXED-USE OFFICE-HOTEL-CONDOMINIUMS

MINNEAPOLIS, MN | 250 NICOLLET MALL

RBC Gateway is a new construction building set to complete in 2022. It is 37-story mixed-use building with 18 levels of Class A office space (approx. 531,000 sf), 8 levels of hotel rooms (approx. 222 keys), 6 levels of private condominiums, one lobby/restaurant level, one ballroom level, one amenity/pool level and 2 mechanical levels. The building also contains 3 levels of below-grade parking with approximately 428 parking spaces.

This building is located at the convergence of three key streets, Hennepin, Nicollet and Washington Avenues in downtown Minneapolis, and sits across from the iconic Marquette Plaza and the Minneapolis Central Library. Considering the cold climate of the region, the building will expand the city’s skyway network by connecting this building to the library via a skyway bridge.

It will stand as the corporate offices of RBC Bank as well as house the city’s first five-star hotel, The Four Seasons Hotel & Resort. Being a mixed-use project provided a number of challenges for the design team in organizing various spatial needs whilst still creating an arrival place unique to each program’s identity.

Principals: Gill Garrison & John Gerondelis

Design Architect: Greg Bennett

Project Architect: Leonard Smith

Design Team: Martin Uquillas & Mihir Patel

Coordination Team: Hojun Yoon & Eric Lowe

ELEVATION STUDIES

© 2017 Smallwood, Reynolds, Stewart, Stewart, & Associates, Inc. This drawing is the property of the architect and may not be reproduced or used without their written permission. GATEWAY MIXED-USE X:\2017\217039.00 - Gateway MXD\1.0 Graphics & Presentation\4.0 Presentations\3.0 Milestone Presentations\2018-05-31 Committee of the Whole Presentation\InDesign
RENDERING by Helixscape (above). Sketch-up massing by Design Architect; Photoshop by Mihir Patel
14
SMALLWOOD PROJECTS 20172018
SECTION Diagramming program stacking & elevator stops.
PORTFOLIO MIHIR PATEL
15 MIHIR PATEL PORTFOLIO SMALLWOOD PROJECTS 20172018
PLANS by Design Architect & Team.
16 PORTFOLIO MIHIR PATEL SMALLWOOD PROJECTS 20172018
ELEVATIONS & DETAILS by Mihir Patel & Hojun Yoon.
17 MIHIR PATEL PORTFOLIO SMALLWOOD PROJECTS 20172018

ICON BUCKHEAD MULTI-FAMILY APARTMENTS

ATLANTA, GA | 3372 PEACHTREE ROAD NE

Icon Buckhead is a new, multi-family apartment project completed in 2019 located at the prominent intersection of Peachtree Road and Stratford Road in Buckhead. It is a 35-story building with 1 level of retail space, 2 levels of office space, 31 levels of apartment units (363 units total), 1 rooftop amenityand-spa level, and an attached precast, parking deck with a pool atop the last parking level.

The building takes advantage of the unique pivot that Peachtree Road makes at this intersection by shaping the tower in the form of two sliding triangles in order to allow it to have nearly three facades fronting the prominent street. In addition, the building’s opposing triangular design is further emphasized with the placement of balconies that wrap the two remaining, opposing corners becoming a feature of the building.

Principals: Chuck Hull

Design Architect: Bob Samolyk

Project Architect: Jeff Purdy

Design & Coordination: Mihir Patel & Eric Lowe

UP ELEC RM TRASH ELEVATOR LOBBY ELEV. ELEV. ELEV. ELEV. STAIR #S01 VRF ROOM TYPICAL RESIDENTIAL PLAN
UPDATED
18 PORTFOLIO MIHIR PATEL SMALLWOOD PROJECTS 20172018
RENDERING by Helixscape.
WITH
CORNER BALCONIES by Mihir Patel (right).
STAIR #S02 UP
SITE PLAN by Design Architect 3D PRINTED MODEL Files prepared by Design Architect & Mihir Patel. Printed by Mihir Patel. PARTI: SLIDING TRIANGLES Conceptual Idea by Design Architect
PeachtreeRoad 19 MIHIR PATEL PORTFOLIO
Stratford Road SMALLWOOD PROJECTS 20172018

ICON MIDTOWN MULTI-FAMILY APARTMENTS ATLANTA, GA | 22 14TH STREET NW

Icon Midtown is a new construction building completed in 2017. It is 39-story residential building with 2 levels of retail, 9 levels of above-grade parking, 27 levels of apartments and a rooftop terrace/amenity level. The rooftop of the parking deck (11th floor) is where the swimming pool and outdoor bar are located.

This project was considered to be the first phase of the overall city-block’s development with a 2nd phase that was developed by another architecture firm. The 2nd phase consisted of a Whole Food grocery, a portion of which slid below this building. As such, this project required some coordination with the other firm and project’s development so as to meet the clients’ needs and agreements.

With the client being an avid patron of the arts, this project serves as a kind of gateway to Atlanta’s Arts District with Marta’s Arts Center Station and some of Atlanta’s prominent museums located nearby, and as such, also commissioned a large art-installation by the local artist Hense to be part of the building facade.

Principal: Chuck Hull

Design Architect: Bob Samolyk

Project Architect: Jeff Purdy

Design & Coordination: Adebisi Oyedeji & Mihir Patel

20 PORTFOLIO MIHIR PATEL SMALLWOOD PROJECTS 20142017
RENDERING by Helixscape (above). ARTWORK ON BUILDING by Hense.
FINAL DESIGN: FIBER REINFORCED PANEL (FRP) FACADE AT PARKING LEVELS A collaboration between the Design Architect, the Project Architect & Mihir Patel. MATERIAL STUDY: TENSILE MESH Rhino & Grasshopper INITIAL DESIGN CONCEPT
LEVEL 01 (W. PEACHTREE) 936' - 6" LEVEL 05 / P4 983' - 9" LEVEL 03 / P2 963' - 3" LEVEL 04 / P3 973' - 6" LEVEL 02 / P1 952' - 6" H Perimeter Rigid Insulation Waterstop Dampproofing Behind Stone Panels Structural Footing Aluminum Curtain Wall System with Low-E Vision Glazing PARKING EIFS System 3" PARKING COMMERCIAL/ RETAIL Spray Insulatoin R-19 2 Hr. Fire Rated Closure Wall Prefinished Metal Panel Canopy with Steel Tube Structural Steel Tube 951' - 3 1/4" Structural Steel Tube 978' - 3 1/2" 978' - 1 1/2" Wheelstop Thermo Plastic Roof Membrane EIFS System Concrete Barrier Concrete Barrier EIFS System PARKING 951' - 3 1/4" Concrete Barrier Vehicular Traffic Coating 2' 9" 2'9" 2'9" Prefinished Metal Panel Foundation Drainage LEVEL 01 (W. PEACHTREE) 936' - 6" LEVEL 05 / P4 983' - 9" LEVEL 03 / P2 963' - 3" LEVEL 04 / P3 973' - 6" LEVEL 02 / P1 952' - 6" G H Aluminum Curtain Wall System with Low-E Vision Glazing PARKING PARKING RESIDENTIAL LOBBY Perimeter Rigid Insulation Spray Insulatoin R-19 2 Hr. Fire Rated Closure Wall Prefinished Metal Panel Canopy with Steel Tube Structural Steel Tube 951' - 3 1/4" Wheelstop PARKING 951' 5 1/2" Wheelstop Wheelstop Concrete Barrier 951' 5 1/2" EIFS System Structural Steel Tube 978' - 3 1/2" 978' - 1 1/2" Thermo Plastic Roof Membrane Concrete Barrier Cable Rail Barrier 970' - 2" Aluminum Curtain Wall System with Low-E Vision Glazing and Shadow Box Prefinished Metal Panel Vehicular Traffic Coating 2' 9" 2'9" 2' 9" Foundation Drainage Metal Flashing Structural Steel Tube LEVEL 01 (W. PEACHTREE) 936' - 6" LEVEL 05 / P4 983' - 9" LEVEL 03 / P2 963' - 3" LEVEL 04 / P3 973' - 6" LEVEL 02 / P1 952' - 6" 4.2 936'-6" 983'-9" 963'-3" 973'-6" 952'-6" LEVEL 01 (W. PEACHTREE) 0' - 0" 27' - 3" LEVEL 02 / P1 17' - 0" LEVEL 05 / P4 47' - 9" LEVEL 04 / P3 37' - 6" SHEET NO. JOB NO. DATE © COPYRIGHT SMALLWOOD, REYNOLDS, STEWART, STEWART & ASSOCIATES, INC. THIS DRAWING IS THE PROPERTY OF THE ARCHITECT AND MAY NOT BE REPRODUCED OR USED WITHOUT HIS WRITTEN 213086.00 A3-11 W A L L S E C T I O N S 14th Street Apartments 2015 REVISIONS PRINTED REV. NO. DATEREMARKS A1-00A3-11 1/2" = 1'-0" WALL SECTION @ EAST ELEVATION 1 1 A1-01A3-11 1/2" = 1'-0" WALL SECTION @ EAST ELEVATION 2 2 H Perimeter Rigid Insulation Waterstop Dampproofing Behind Stone Panels Structural Footing Aluminum Curtain Wall System with Low-E Vision Glazing EIFS System 3" Spray Insulatoin R-19 2 Hr. Fire Rated Closure Wall Prefinished Metal Panel Canopy with Steel Tube Structural Steel Tube 951' 3 1/4" Structural Steel Tube 978' - 3 1/2" 978' - 1 1/2" Wheelstop Thermo Plastic Roof Membrane EIFS System Concrete Barrier Concrete Barrier EIFS System 951' - 3 1/4" Concrete Barrier Vehicular Traffic Coating 2' 9" 2'9" 2'9" Prefinished Metal Panel Foundation Drainage LEVEL 01 (W. PEACHTREE) 936' - 6" LEVEL 05 / P4 983' - 9" LEVEL 03 / P2 963' - 3" LEVEL 04 / P3 973' - 6" LEVEL 02 / P1 952' - 6" G H Aluminum Curtain Wall System with Low-E Vision Glazing PARKING PARKING RESIDENTIAL LOBBY Perimeter Rigid Insulation Spray Insulatoin R-19 2 Hr. Fire Rated Closure Wall Prefinished Metal Panel Canopy with Steel Tube Structural Steel Tube 951' - 3 1/4" Wheelstop PARKING 951' - 5 1/2" Wheelstop Wheelstop Concrete Barrier 951' - 5 1/2" EIFS System Structural Steel Tube 978' 3 1/2" 978' - 1 1/2" Thermo Plastic Roof Membrane Concrete Barrier Cable Rail Barrier 970' - 2" Aluminum Curtain Wall System with Low-E Vision Glazing and Shadow Box Prefinished Metal Panel Vehicular Traffic Coating 2' 9" 2'9" 2' 9" Foundation Drainage Metal Flashing Structural Steel Tube LEVEL 01 (W. PEACHTREE) 936' - 6" LEVEL 05 / P4 983' - 9" LEVEL 03 / P2 963' - 3" LEVEL 04 / P3 973' - 6" LEVEL 02 / P1 952' - 6" 4.2 936'-6" 983'-9" 963'-3" 973'-6" 952'-6" LEVEL 01 (W. PEACHTREE) 0' - 0" 27' - 3" LEVEL 02 / P1 17' - 0" LEVEL 05 / P4 47' - 9" LEVEL 04 / P3 37' - 6" 1 A3-11 A1-00A3-11 1/2" = 1'-0" WALL SECTION @ EAST 1 A1-01A3-11 1/2" = 1'-0" WALL SECTION @ EAST ELEVATION 2 2 H Aluminum Curtain Wall System with Low-E Vision Glazing PARKING PARKING RESIDENTIAL LOBBY Perimeter Rigid Insulation Spray Insulatoin R-19 2 Hr. Fire Rated Closure Wall Prefinished Metal Panel Canopy with Steel Tube Structural Steel Tube 951' - 3 1/4" Wheelstop PARKING 951' - 5 1/2" Wheelstop Wheelstop Concrete Barrier 951' EIFS System Structural Steel Tube 978' - 3 1/2" 978' - 1 1/2" Thermo Plastic Roof Membrane Concrete Barrier Cable Rail Barrier 970' 2" Aluminum Curtain Wall System with Low-E Vision Glazing and Shadow Box Prefinished Metal Panel Vehicular Traffic Coating 2' 9" 2'9" 2' 9" Foundation Drainage Metal Flashing Structural Steel Tube LEVEL 01 (W. PEACHTREE) 936' - 6" LEVEL 05 / P4 983' - 9" LEVEL 03 / P2 963' - 3" LEVEL 04 / P3 973' - 6" LEVEL 02 / P1 952' - 6" 4.2 936'-6" 983'-9" 963'-3" 973'-6" 952'-6" LEVEL 01 (W. PEACHTREE) 0' - 0" 27' - 3" LEVEL 02 / P1 17' - 0" LEVEL 05 / P4 47' - 9" LEVEL 04 / P3 37' - 6" 2 A3-11 1 A3-11 A1-01A3-11 1/2" = 1'-0"
SECTION @ EAST ELEVATION 2 2 A2-01A3-11 1/2" = 1'-0" ENLARGED ELEVATION - EAST 6 3 H Aluminum Curtain Wall System with Low-E Vision Glazing PARKING PARKING RESIDENTIAL LOBBY Perimeter Rigid Insulation Spray Insulatoin R-19 2 Hr. Fire Rated Closure Wall Prefinished Metal Panel Canopy with Steel Tube Structural Steel Tube 951' 3 1/4" Wheelstop PARKING 951' 5 1/2" Wheelstop Wheelstop Concrete Barrier EIFS System Structural Steel Tube 978' - 3 1/2" 978' 1 1/2" Thermo Plastic Roof Membrane Concrete Barrier Cable Rail Barrier 970' - 2" Aluminum Curtain Wall System with Low-E Vision Glazing and Shadow Box Prefinished Metal Panel Vehicular Traffic Coating 2' 9" 2' 9" 2' 9" Foundation Drainage Metal Flashing Structural Steel Tube LEVEL 01 (W. PEACHTREE) 936' - 6" LEVEL 05 / P4 983' - 9" LEVEL 03 / P2 963' - 3" LEVEL 04 / P3 973' - 6" LEVEL 02 / P1 952' - 6" 4.2 936'-6" 983'-9" 963'-3" 973'-6" 952'-6" LEVEL 01 (W. PEACHTREE) 0' - 0" LEVEL 03 / P2 27' - 3" LEVEL 02 / P1 17' - 0" 47' - 9" LEVEL 04 / P3 37' 2 A3-11 1 A3-11 A1-01A3-11 1/2" = 1'-0" WALL SECTION @ EAST ELEVATION 2 2 A2-01A3-11 1/2" = 1'-0" ENLARGED ELEVATION - EAST 6 3 LEVEL PEACHTREE) LEVEL LEVEL LEVEL LEVEL H Perimeter Rigid Insulation Waterstop Dampproofing Behind Stone Panels Structural Footing Aluminum Curtain Wall System with Low-E Vision Glazing PARKING EIFS System 3" PARKING COMMERCIAL/ RETAIL Spray Insulatoin R-19 2 Hr. Fire Rated Closure Wall Prefinished Metal Panel Canopy with Steel Tube Structural Steel Tube 951' 3 1/4" Structural Steel Tube 978' - 3 1/2" 978' 1 1/2" Wheelstop Thermo Plastic Roof Membrane EIFS System Concrete Barrier Concrete Barrier EIFS System PARKING 951' 3 1/4" Concrete Barrier Vehicular Traffic Coating 2' 9" 2' 9" 2' 9" Prefinished Metal Panel Foundation Drainage LEVEL 01 (W. PEACHTREE) 936' - 6" LEVEL 05 / P4 983' - 9" LEVEL 03 / P2 963' - 3" LEVEL 04 / P3 973' - 6" LEVEL 02 / P1 952' - 6" G H Aluminum Curtain Wall System with Low-E Vision Glazing PARKING PARKING RESIDENTIAL LOBBY Perimeter Rigid Insulation Spray Insulatoin R-19 2 Hr. Fire Rated Closure Wall Prefinished Metal Panel Canopy with Steel Tube Structural Steel Tube 951' 3 1/4" Wheelstop PARKING 951' - 5 1/2" Wheelstop Wheelstop Concrete Barrier 951' - 5 1/2" EIFS System Structural Steel Tube 978' 3 1/2" 978' 1 1/2" Thermo Plastic Roof Membrane Concrete Barrier Cable Rail Barrier 970' - 2" Aluminum Curtain Wall System with Low-E Vision Glazing and Shadow Box Prefinished Metal Panel Vehicular Traffic Coating 2' 9" 2' 9" 2' 9" Foundation Drainage Metal Flashing Structural Steel Tube LEVEL 01 (W. PEACHTREE) LEVEL 05 / P4 983' - 9" LEVEL 03 / P2 963' - 3" LEVEL 04 / P3 973' - 6" LEVEL 02 / P1 952' - 6" 4.2 983'-9" 963'-3" 973'-6" 952'-6" LEVEL 01 (W. PEACHTREE) 0' - 0" LEVEL 03 / P2 27' - 3" LEVEL 02 / P1 17' - 0" 47' - 9" LEVEL 04 / P3 37' 1 A3-11 A1-00A3-11 1/2" = 1'-0" WALL SECTION @ EAST ELEVATION 1 A1-01A3-11 1/2" = 1'-0" WALL SECTION @ EAST ELEVATION 2 2 LEVEL 01 (W. PEACHTREE) 936' - 6" LEVEL 05 / P4 983' - 9" LEVEL 03 / P2 963' - 3" LEVEL 04 / P3 973' - 6" LEVEL 02 / P1 952' - 6" H Perimeter Rigid Insulation Waterstop Dampproofing Behind Stone Panels Structural Footing Aluminum Curtain Wall System with Low-E Vision Glazing PARKING EIFS System 3" PARKING COMMERCIAL/ RETAIL Spray Insulatoin R-19 2 Hr. Fire Rated Closure Wall Prefinished Metal Panel Canopy with Steel Tube Structural Steel Tube 951' - 3 1/4" Structural Steel Tube 978' - 3 1/2" 978' - 1 1/2" Wheelstop Thermo Plastic Roof Membrane EIFS System Concrete Barrier Concrete Barrier EIFS System PARKING 951' 3 1/4" Concrete Barrier Vehicular Traffic Coating 2' 9" 2' 9" 2' 9" Prefinished Metal Panel Foundation Drainage LEVEL 01 (W. PEACHTREE) 936' - 6" LEVEL 05 / P4 983' - 9" LEVEL 03 / P2 963' - 3" LEVEL 04 / P3 973' - 6" LEVEL 02 / P1 952' - 6" G H Aluminum Curtain Wall System with Low-E Vision Glazing PARKING PARKING RESIDENTIAL LOBBY Perimeter Rigid Insulation Spray Insulatoin R-19 2 Hr. Fire Rated Closure Wall Prefinished Metal Panel Canopy with Steel Tube Structural Steel Tube 951' - 3 1/4" Wheelstop PARKING 951' 5 1/2" Wheelstop Wheelstop Concrete Barrier 951' 5 1/2" EIFS System Structural Steel Tube 978' - 3 1/2" 978' 1 1/2" Thermo Plastic Roof Membrane Concrete Barrier Cable Rail Barrier 970' - 2" Aluminum Curtain Wall System with Low-E Vision Glazing and Shadow Box Prefinished Metal Panel Vehicular Traffic Coating 2'9" 2' 9" 2'9" Foundation Drainage Metal Flashing Structural Steel Tube LEVEL 01 (W. PEACHTREE) 936' - 6" LEVEL 05 / P4 983' - 9" LEVEL 03 / P2 963' - 3" LEVEL 04 / P3 973' - 6" LEVEL 02 / P1 952' - 6" 4.2 936'-6" 983'-9" 963'-3" 973'-6" 952'-6" LEVEL 01 (W. PEACHTREE) 0' - 0" LEVEL 03 / P2 27' - 3" LEVEL 02 / P1 17' - 0" 47' - 9" LEVEL 04 / P3 37' A3-11 SHEET NO. JOB NO. DATE © COPYRIGHT SMALLWOOD, REYNOLDS, STEWART, STEWART & ASSOCIATES, INC. 213086.00 W A L L S E C T I O N S 2015 REVISIONS REV. NO. DATEREMARKS A1-00A3-11 1/2" = 1'-0" WALL SECTION @ EAST ELEVATION 1 1 A1-01A3-11 1/2" = 1'-0" WALL SECTION @ EAST ELEVATION 2 2 21 MIHIR PATEL PORTFOLIO SMALLWOOD PROJECTS 20142017
WALL

NORTH-SOUTH

NORTH PARK 700 OFFICE

SANDY SPRINGS, GA | NORTHPARK PLACE & MT. VERNON HWY

North Park 700 is a new construction, office building to be built in Sandy Springs, GA.

It is 26-story office building with 15 levels of office stacked on top of 11 levels of parking. The building’s first floor lobby level hosts two large amenity spaces that spill out to extended outdoor spaces in order to create an active, streetscape experience.

Principal: Gill Garrison Design Architect: Greg Bennet Design Team: Mihir Patel

RENDERING by Helixscape (left).

SCENES OF THE ACTIVE STREETSCAPE & LOBBY

A scene-by-scene experience of a pedestrian walking to this building (top row) or upon parking and entering the parking garage (bottom row).

1 2 3 4 1 3 2
SECTION North-South
40’ 80’ 22 PORTFOLIO MIHIR PATEL SMALLWOOD PROJECTS 20142015
NORTH-SOUTH SECTION
0’
EAST-WEST SECTION 0’ 40’ 5 6 7 9 8 4 5 6 7 0’ 30’ 60’ N FITNESS CENTER 8,380 SF CAFETERIA 13,500 SF LOBBY 11,875 SF LOW-RISE ELEVATORS HIGH-RISE ELEVATORS PARKING SHUTTLE ELEVATORS SECTION East-West PLAN Lobby Level 0’ 30’ 60’ N FITNESS CENTER 8,380 SF CAFETERIA 13,500 SF LOBBY 11,875 SF LOW-RISE ELEVATORS HIGH-RISE ELEVATORS PARKING SHUTTLE ELEVATORS RTH-SOUTH SECTION 0’ 40’ 80’ 0’ 30’ 60’ N FITNESS CENTER 8,380 SF CAFETERIA 13,500 SF LOBBY 11,875 SF LOW-RISE ELEVATORS HIGH-RISE ELEVATORS PARKING SHUTTLE ELEVATORS 23 MIHIR PATEL PORTFOLIO
20142015
SMALLWOOD PROJECTS

Studio Projects

ZERO ENERGY DESIGN-HOUSING (ZED-H): MULTI-GENERATIONAL ATLANTA, GA | PONCE DE LEON & EASTSIDE BELTLINE TRAIL

Funded by the Alcoa Grant and Resource Furniture, a 6-part design studio developed by Professor Michael Gamble at Georgia Tech researches how to design a net-zero housing complex that also meets the demands and needs of multiple variations of clients types.

THE BUILDING

The zero-energy building was developed by Katie Braswell, Nicholas Coffee and Jim Boyer in the first semester as a series of stepped towers with independent, exterior circulation stairs that connect to the Eastside Trail of the Beltline at the site of the current Home Depot Shopping Center. The stepped towers enable the courtyard in the scheme to receive ample daylight to make it a pleasant space to experience.

In second semester, Katie Braswell, Nicholas Coffee, Jeremy Nash and Mihir Patel adopted the building project to specifically design the interior spaces for proposed clients by each student as well as carefully develop the facade, structure, systems and construction of the building at a more detailed level.

MULTI-GENERATIONAL UNIT

With more young professionals desiring to live near their place of work and with a rise in the aging population that wishes to live near their children, a cultural concern rises for families that desire to both live in the city whilst caring for their elderly relatives, as in the typical case of a traditional Indian family.

As such, the proposed client is my brother-in-law’s family of 7, and upto 11: consisting of a grandmother, the brothers’ parents, two married brothers and their wives, and upto four future children. The question posed is: Can a family spanning across four generations comfortably live together with their daily activities of morning prayer, socializing over an evening meal, and private spaces intact?

www.zedhstudio.com
24 PORTFOLIO
MIHIR PATEL
| 2014
MICHAEL GAMBLE
25 MIHIR PATEL PORTFOLIO STUDIO PROJECTS 2014 |
MICHAEL GAMBLE
26 PORTFOLIO MIHIR PATEL STUDIO PROJECTS
GAMBLE | 2014
MICHAEL
27 MIHIR PATEL PORTFOLIO STUDIO PROJECTS 2014 |
MICHAEL GAMBLE
28 PORTFOLIO MIHIR PATEL STUDIO PROJECTS
| 2014
MICHAEL GAMBLE
29 MIHIR PATEL PORTFOLIO STUDIO PROJECTS
2014 | MICHAEL GAMBLE

MIDTOWN HIGH SCHOOL FOR THE ARTS

ATLANTA, GA | NORTH AVE. & PEACHTREE ST.

Located in the heart of Atlanta, the Midtown High School for the Arts seeks to engage both students and faculty of the school as well as the community of Atlanta. As such, the program is clustered into two groups: the first being program that functions during school hours, such as classrooms, and the second, program that can function during extended hours beyond the school day, such as the art gallery, theater, and cafeteria.

30 PORTFOLIO
STUDIO PROJECTS JUDE LEBLANC | 2013
2013 Portman Prize Competition Finalist
MIHIR PATEL
31 MIHIR PATEL PORTFOLIO STUDIO PROJECTS 2013 | JUDE LEBLANC

EDGEWOOD OUTPATIENT CLINIC

ATLANTA, GA | EDGEWOOD AVENUE

32
PROJECTS DAVID GREEN | 2012
PORTFOLIO MIHIR PATEL STUDIO
33 MIHIR PATEL PORTFOLIO STUDIO PROJECTS 2012 | DAVID GREEN
34 PORTFOLIO MIHIR PATEL STUDIO PROJECTS DAVID GREEN | 2012
35 MIHIR PATEL PORTFOLIO STUDIO PROJECTS 2012 | DAVID GREEN
36 PORTFOLIO MIHIR PATEL STUDIO PROJECTS DAVID GREEN | 2012
37 MIHIR PATEL PORTFOLIO STUDIO PROJECTS 2012 | DAVID GREEN
38 PORTFOLIO MIHIR PATEL STUDIO PROJECTS DAVID GREEN | 2012
39 MIHIR PATEL PORTFOLIO STUDIO PROJECTS 2012 | DAVID GREEN

Stage Backdrops

BAPS MANDIR GRAND OPENING EVENT: TRADITIONAL HINDU TEMPLE

LILBURN, GA | 460 ROCKBRIDGE ROAD NE

The opening of the largest traditional Hindu temple outside of India required a stage backdrop that highlighted the momentous event taking place. To fulfil this goal the stage design took the motif of the BAPS flag, a symbol acknowledging the 2007 BAPS Centenary celebrations, and imbedded within its abstracted form the elegant, intricate designs that make up the traditional temple’s carved ceilings.

As the temple teaches timeless values, this concept of merging traditional designs within an abstracted form alludes to the idea that an ancient structure can in fact stand proudly in this contemporary age without being out of place.

Like the temple, the foam designs of this stage were handcrafted and the wood structure built by a team of twenty-two high school and college youths in about two months time.

SAND

CUT CARVE
40 PORTFOLIO MIHIR PATEL STAGE BACKDROPS 2007
41 MIHIR PATEL PORTFOLIO STAGE BACKDROPS 2007
TEMPLE OF ATHENA POLIAS: Priene, Turkey. The arch measures an ionic flute from a column piece (left).
42 PORTFOLIO MIHIR PATEL SKETCHES 2010
A CARYATID FROM THE ERECHTHEION: Acropolis Museum, Athens, Greece (right).

Sketches

GREECE, ITALY & TURKEY SKETCHES

THE ERECHTHEION: Athens, Greece (top). MICHELANGELO’S DAVID: The Gallery Academics, Florence, Italy (bottom left & right).
43 MIHIR PATEL PORTFOLIO 2010
VILLA GUILIA: Rome, Italy (above).
44 PORTFOLIO MIHIR PATEL SKETCHES 2009
ANDREW CARNEGIE BUILDING: Georgia Tech Campus, Atlanta (right).
45 MIHIR PATEL PORTFOLIO SKETCHES 2010
FRAMING - A PERSPECTIVAL STORY:
46 PORTFOLIO MIHIR PATEL SKETCHES 2006
West Architecture Building, Georgia Tech, Atlanta (above).
47 MIHIR PATEL PORTFOLIO SKETCHES 2006

Photography STUDY ABROAD

TEMPLE OF HERA: Metapontum, Italy. PARTHENON: Athens, Greece. DOME OF ST. PETER’S BASILICA: Vatican, Italy. LIBRARY OF CELSIUS: Ephesus, Turkey (left, top-bottom). BRUNELLESCHI’S DOME: Florence, Italy (below).

48 PORTFOLIO MIHIR PATEL 2010
49 MIHIR PATEL PORTFOLIO PHOTOGRAPHY 2010
TEMPLE OF TRAJAN: Pergamon, Turkey (top). THEATER OF EPIDAURUS: Greece (bottom).
50 PORTFOLIO MIHIR PATEL PHOTOGRAPHY 2010
THEATER OF PERGAMON: Bergama, Turkey (top).
51 MIHIR PATEL PORTFOLIO PHOTOGRAPHY 2010
Photograph was a finalist in the “Through a Global Lens” OIE Photography Contest
52 PORTFOLIO MIHIR PATEL PHOTOGRAPHY

Turn static files into dynamic content formats.

Create a flipbook
Issuu converts static files into: digital portfolios, online yearbooks, online catalogs, digital photo albums and more. Sign up and create your flipbook.
Design Portfolio by Mihir Patel - Issuu