Portfolio

Page 1

PORTFOLIO.

Selected Works 2017-2023

USI AAM
Michele Fuschini

PORTFOLIO.

2|

MICHELE FUSCHINI ARCHITECT

PERSONAL INFO

Name Michele Fuschini

Birthdate...............................................................................................................................................................................................................................20th July 1997

Nationality Italian

Profile...............................................................................................................................................................................................................................................Architect

I graduated from the Accademia di Architettura di Mendrisio in June 2023 with Professor Quintus Miller. During the academic semesters and work experiences I dealt with various projects with different scales, contexts, programs and materials. This allowed me to explore different areas and push beyond my creative and cognitive limits, always looking for the best possible architectural solutions. I have always been used to work as part of a team and I constantly strive to push both myself and my team members to achieve the best possible outcome on each task. Every project I have tackled throughout my career has been an opportunity to apply and expand my knowledge and understanding. The skills acquired during my studies, together with my unwavering determination and enthusiasm equipped me for new experiences.

ABOUT ME
| Personal Info |3
Un edificio per l’agricoltura.......................................................................................................................................................Pag. (06-17) A winery along the slope in Valtellina In Motion.......................................................................................................................................................................................Pag. (40-49) Dance school in Giubiasco Un museo......................................................................................................................................................................................Pag. (30-39) The museum as a public terrace in the park Un condominio.............................................................................................................................................................................Pag. (18-29) Collective housing in Milano 01. 02. 03. 04. TABLE
OF CONTENTS
4|
Michele Fuschini | Portfolio
| Table of Contents |5

UN EDIFICIO PER L’AGRICOLTURA 01.

The site for the new wine production is located near a dejection cone, an area characterised by its strong directionality and its historical stratification, as well as one of the areas where the first vineyards were planted centuries ago. The project was born from the idea of recycling the wasted grapes used for the production of the noblest local wines in order to produce a new type of sparkling wine according to the Charmat-Martinotti method, vinifying the Nebbiolo grape variety in white. The winemaking follows a precise linear process that the project aims to highlight in plan and section, using the gravity along the slope to transport the wine during the production process. The volume expands as it reaches the bottom of the valley, like a stream cutting through the slope. The building acts as a landmark in the landscape, highlighting the beginning and end of the production process through two vertical elements.

A winery along the slope in Valtellina.....................................................................................................................Atelier Quintus Miller Ponte in Valtellina, Sondrio 23100 (So), Italy
Description 6|
Site plan Scale 1:4500 Selected Works 2017-2023 | USI AAM |7
Longitudinal section 01. Un edificio per l’agricoltura | A winery along the slope in Valtellina 8|
Scale 1:800 Atelier Quintus Miller Msc2 | USI AAM |9
Cross sections
1:800 01. Un edificio per l’agricoltura |
winery
10|
Scale
A
along the slope in Valtellina
Exterior view Atelier Quintus Miller Msc2 | USI AAM |11
Ground floor plan 01. Un edificio per l’agricoltura | A winery
12|
along the slope in Valtellina
Scale 1:800 Atelier Quintus Miller Msc2 | USI AAM |13
Detail section Scale 1:75 01. Un edificio per l’agricoltura | A winery
the
in Valtellina 14|
along
slope
Atelier Quintus Miller Msc2 | USI AAM |15
Interior view

edificio per l’agricoltura | A winery along the slope in Valtellina

01. Un
16|
Plaster model
Atelier
Msc2 | USI AAM |17
“UN EDIFICIO PER L’AGRICOLTURA” A winery along the slope in Valtellina
Quintus Miller

Collective housing in Milano

Buenos Aires, Milano 20100 (Mi), Italy

The site is located at an urban crossroads, where a significant change of scale and typology occurs within the neighborhood and presents some critical moments, such as urban voids and blind facades, that are the direct consequence of the passage of the old railroad line. The first objective of the design is to stitch up the block by solving its problematic points improving the permeability and linking the two main public spaces. Like an organism, governed by a basic matrix, the volume is articulated within the block through two archetypes of Milanese housing: the courtyard and the gallery, which create new green spaces between the intervention and the existing buildings. The project, based on a modular structure of metal carpentry, defines a housing typology designed to respond to the needs of contemporary society, which demands living spaces that are increasingly flexible and adaptable to the different necessities of everyday life.

UN CONDOMINIO 02.
Atelier Quintus Miller Zona
Description
18|
Site plan Scale 1:2000 Selected Works 2017-2023 | USI AAM |19
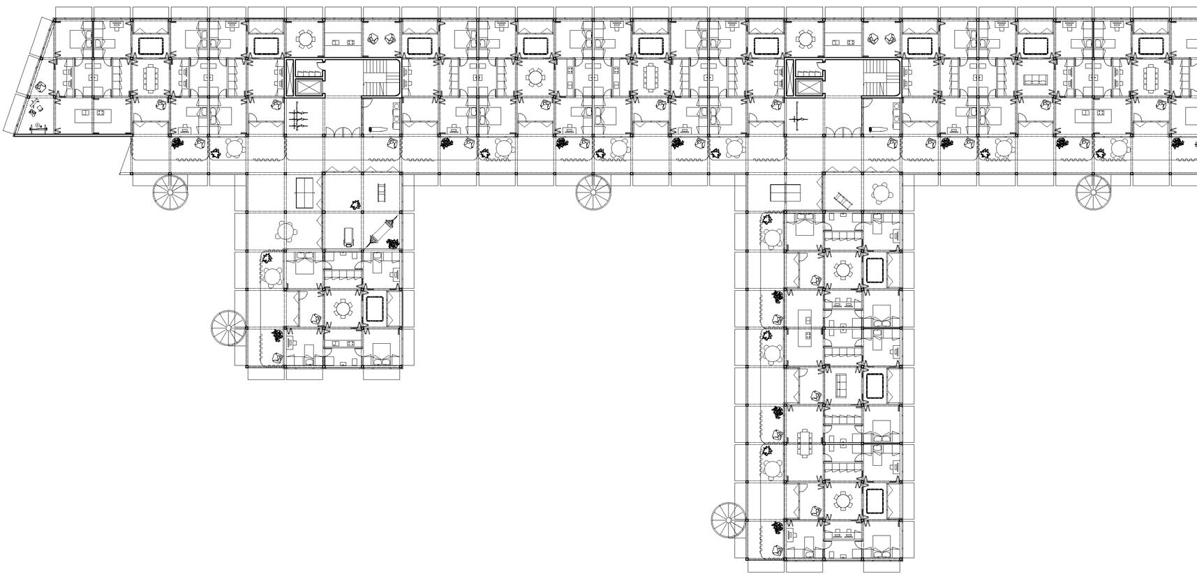
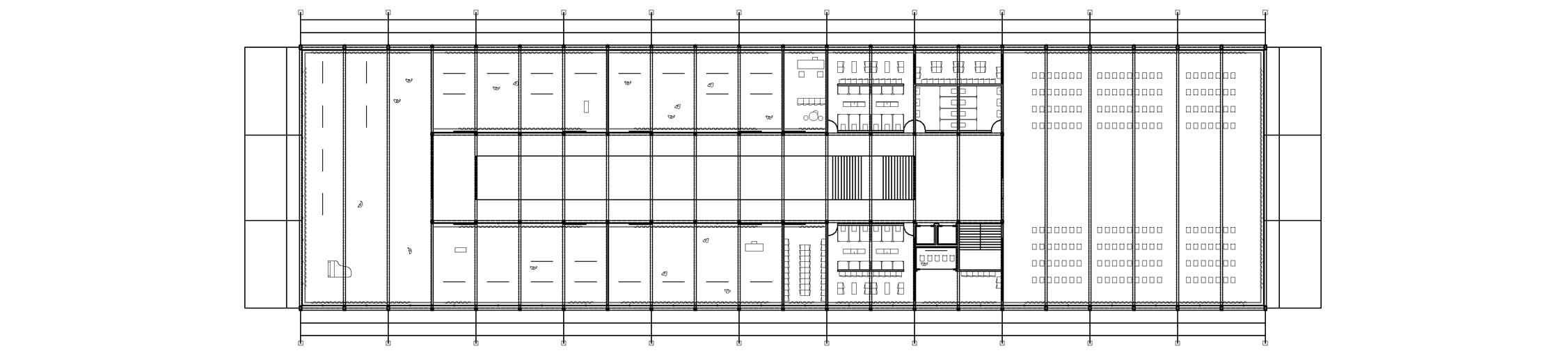
Ground floor plan 02. Un condominio | Collective housing in Milano 20|
Scale 1:1000 Atelier Quintus Miller Msc2 | USI AAM |21
Cross sections Scale 1:1000 02. Un condominio | Collective housing in Milano 22|
Exterior view Atelier Quintus Miller Msc2 | USI AAM |23
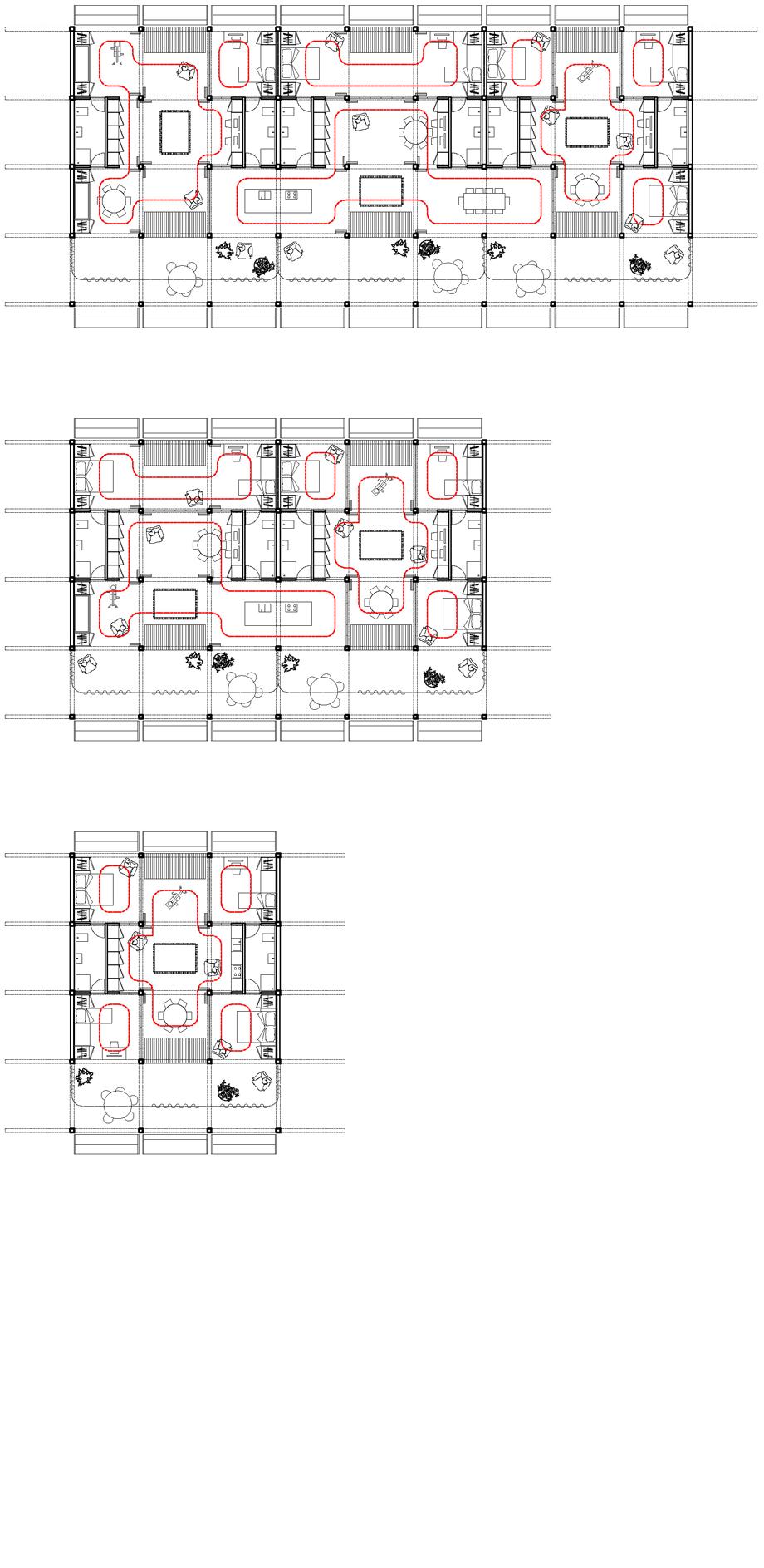
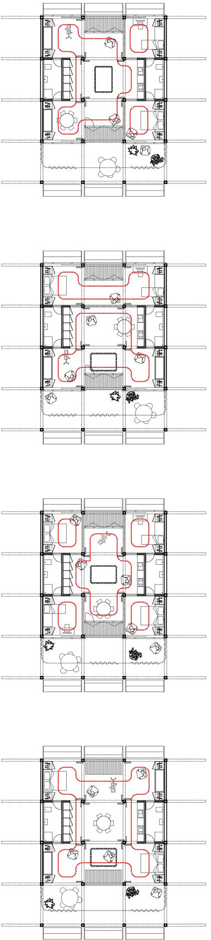
Typical floor plans 02. Un condominio | Collective housing in Milano 24|
Scale 1:750 Atelier Quintus Miller Msc2 | USI AAM |25
Typology variations Scale 1:500 02. Un condominio | Collective housing in Milano 26|
Interior view Atelier Quintus Miller Msc2 | USI AAM |27
02. Un condominio | Collective housing in Milano 28|
Wooden model
“UN CONDOMINIO” Collective housing in Milan Atelier Quintus Miller Msc2 | USI AAM |29

The semester’s task was to design an extension for the Solothurn Museum. Given the importance of the existing park and the strong presence of the mediaeval walls, we decided to place our extension in front of the existing museum and to build it underground in order to create a connection with the 20th century building and to limit the impact on the park. The extension is connected to the basement of the existing museum in section. To improve the quality of the exhibition space in the existing museum, we partially demolished the ground floor slabs and reopened the windows that were closed due to the lack of exhibition space. This creates a natural-lighting and double-height space in the basement that can be used for exhibitions. A series of sculptural skylights that provide light to the basement addition populate the roof, transforming it into a public terrace in the park.

03.
UN MUSEO
The museum as a public terrace in the park Atelier Quintus Miller Stadtpark Solothurn, Solothurn 4500 (So), Switzerland (With Maria Cacciapuoti)
Description
30|
Michele Fuschini | Portfolio
Site plan Scale 1:2000 Selected Works 2017-2023 | USI AAM |31
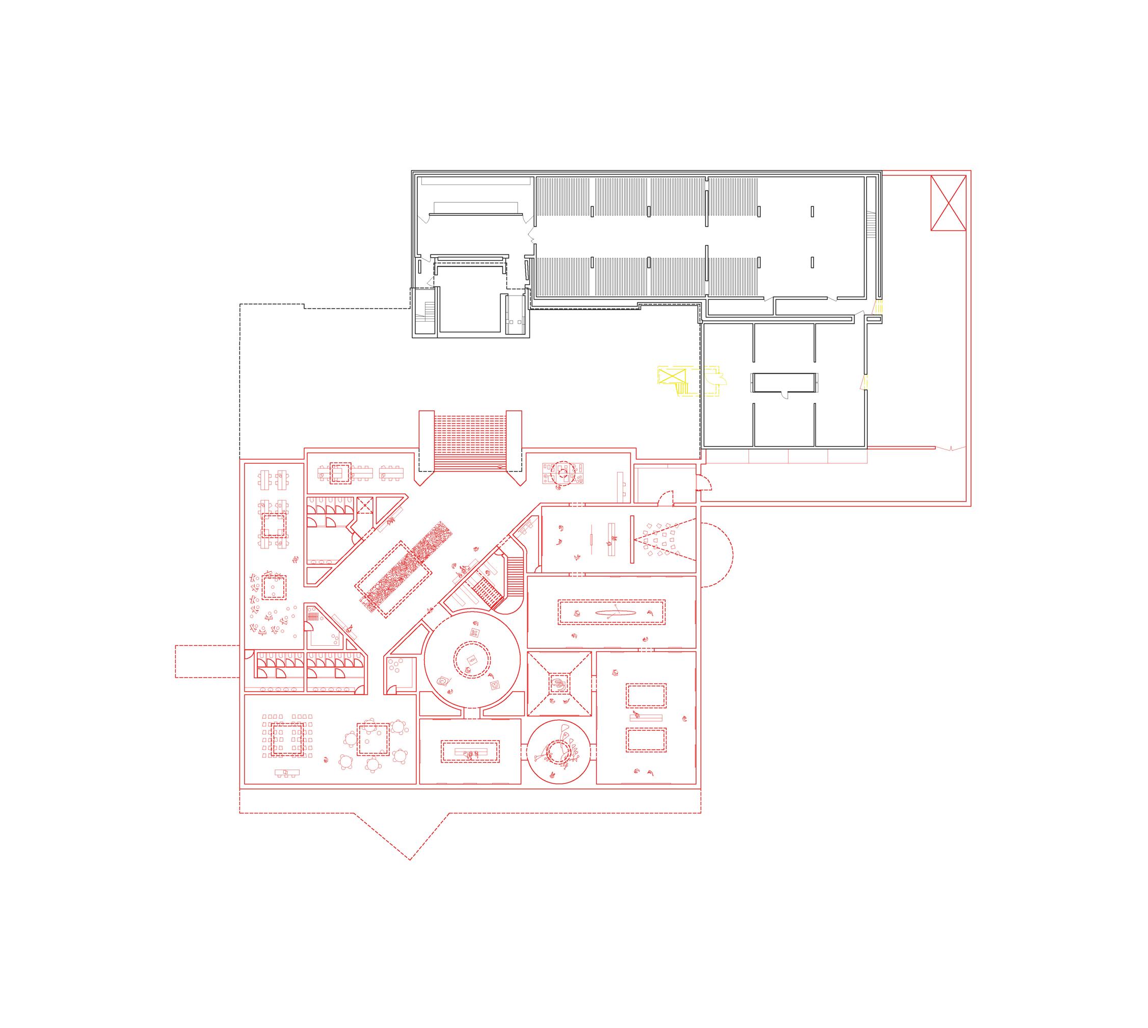
Ground floor plan Scale 1:750 03. Un museo | The museum as a public terrace in the park 32|
Basement plan Scale 1:750 Atelier Quintus Miller Msc1 | USI AAM |33
Longitudinal sections Scale 1:750 03. Un museo | The museum as a public terrace in the park 34|
Exterior view Atelier Quintus Miller Msc1 | USI AAM |35
Scale 1:750 Longitudinal sections 03. Un museo | The museum as a public terrace in the park 36|
Interior view Atelier Quintus Miller Msc1 | USI AAM |37
03. Un
| The
38|
Cardboard model
museo
museum as a public terrace in the park
“UN MUSEO”
Atelier
Miller Msc1 | USI AAM |39
The museum as a public terrace in the park
Quintus

IN MOTION

The building with the river, the highway and the railroad underlines the strong directionality of the site. The project is characterised by a steel structure that seeks a strong dialogue with the typical language of the railroad, expressing the desire to create generous and flexible spaces that can adapt to the life of the dance school. The circulation takes place on a central space with double height, which moves all the classrooms to the periphery. The flexibility of the spaces is controlled by the use of curtains, which also control the modulation of light and sound. At the exterior boundaries, an additional curtain provides light shielding. The two heads of the building have rooms that need generous spaces and to decrease the static height of the beams, they are combined with cables that use struts to support the loads in the two points where the pillars are missing. Perimeter cables help to brace the structure and to tension it.

04.
Dance school in Giubiasco Atelier Cristina Guedes Giubiasco, Bellinzona 6500 (Ti), Switzerland (With Francesca Parmiggiani)
Description
| Portfolio 40|
Michele Fuschini
Site plan Scale 1:4000 Selected Works 2017-2023 | USI AAM |41
Ground floor plan Scale 1:750 04. In Motion | Dance school in Giubiasco 42|
Atelier Cristina Guedes Bsc3 | USI AAM Exterior view |43
Detail section and elevation Scale 1:75 04. In Motion | Dance school in Giubiasco 44|
Atelier Cristina Guedes Bsc3 | USI AAM Axonometric view Scale 1:500 |45
Exterior view 04. In Motion | Dance school in Giubiasco 46|
Atelier Cristina Guedes Bsc3 | USI AAM |47
04. In Motion | Dance school in Giubiasco 48|
Wooden model
“IN MOTION” Dance school in Giubiasco Atelier Cristina Guedes Bsc3 | USI AAM |49

USI AAM

Selected Works 2017-2023

Michele Fuschini
PORTFOLIO.

Turn static files into dynamic content formats.

Create a flipbook
Issuu converts static files into: digital portfolios, online yearbooks, online catalogs, digital photo albums and more. Sign up and create your flipbook.
Portfolio by Michele Fuschini - Issuu