Micah Fitzgerald | Undergrad Portfolio

Page 1


PORTFOLIO

I’ve lived in Florida for 12 years. I was lucky enough to be able to grow up in multiple countries and multiple states and I’ve always gravitated to learning new perspectives and adapting to new environments.

I’ve been studying the craft architecture for over 8 years now and I’m grateful to be able to explore all the nuances of our built environment.

This work is a glimpse of my journey through my studies at the University of Florida.

Micah

Dasher Hurst Architects

Experience

Summer 2024, Summer 2023 | Architectural Intern

- Produced detailed construction documents, including detail drawings, sections, schedules, and elevations.

- Applied design skills to contribute to schematic design, utilizing rendering programs to create visually compelling design options for landscaping and facade materials.

- Conducted on-site visits to construction projects, gaining experience and insight into the practical aspects of architectural practice

- Developed a better understanding of project scale, construction systems, and the coordination required for successful project execution

- Adapted to a dynamic work environment, handling various work types in short periods of time

NOMAS Competition Team

Summer 2023 | Project Captain

- Responsible for scheduling meetings and managing work flow of group members

- Learned to work with larger amounts of people in single project; focus on organization

- Designed an affordable living development in Albina, Oregon

Stanford University Adobe Workshop Instructor Spring 2024 | Instructor

- Taught first year students how to use softwares such as Rhinoceros 7, Adobe Photoshop, and Adobe Illustrator, and how to have an efficient workflow between all programs.

- Instructed each session over zoom

- Planned course/lessons accordingly with stanford architecture faculty and grad students

- Some of these lessons include: Exploded Axonometrics, Parti Diagrams, Essential Photoshop Skills

ACE Mentorship Program (Architecture, Construction, Engineering)

2016-2019 | Project Manager, Architectural Drafter

- Worked on projects that would be presented in front of architecture mentors, business owners, contractors, and anyone that attended the events at the University of North Florida. Main softwares used were Revit and AutoCad.

Softwares

- Rhinocerous 7

- AutoCAD

- Revit

- Photoshop

- Illustrator

- InDesign

- Lumion

- V-Ray

MANHATTAN, NEW YORK (FALL 2023)

CEDAR KEY, FL (FALL 2022)

MYVATN, ICELAND (SUMMER 2024)

PORTLAND, OREGON (SUMMER 2023)

MAMFE, GHANA (SPRING 2024

FLORIDA (SPRING 2023)

CEDAR KEY, FLORIDA (FALL 2022)

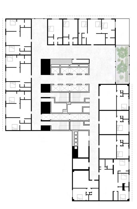
01 3rd Ave EcoHub

Manhattan, New York

Keywords/Terms: adaptive reuse, affordable housing, facade, lighting, urban challenges, biophilic, sustainablilty

This adaptive reuse/residential project aims to align with New York City’s forward-thinking ‘City of Yes’ initiative, a plan dedicated to modernizing zoning regulations for sustainable urban development. This project introduces a 34-story mixed-use tower that not only preserves the existing structure but also contributes to the city’s housing needs. Embracing the principles of social and environmental sustainability, our design incorporates enclosed green spaces within the tower, utilizing indigenous trees and vegetation to enhance both aesthetics and air quality. We also focused on how the lighting conditions can be improved through layering an operable facade with both clear and diffused glass

Affordable Rental Units

Residential Gym Ammenity

Residential Lobby

Collaborative Work Spaces/ Meeting Rooms

Public Speaker Room

Mail Rooms

Leisure Space

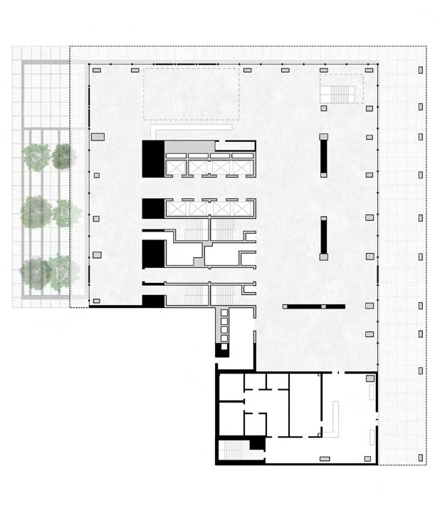
Solar Volume Spaces

Service Floor

Studio Spaces

Photo Development Spaces

Exhibit Space

Public Cafe / Local Businesses

Lobby / Circulation

Fire Station / Police Precinct

Ground Level Lobby
Transition between Studio Space & Solar Volume

Transparent glass allows natural light directly into the building, activitating the interior materials. Once the natural light reaches the semi-opaque glass edges, there is an increase in overall illumination, minimizing the need for artificial lighting during daylight hours.

The semi-opaque glass also helps regulate temperature, ensure privacy, and capture the intricate play of shadows cast by the surrounding vegetation. Acting as a canvas that captures the passage of time through these shadows, the semi-opaque glass creates a dynamic and visually engaging experience for occupants.

Semi-Opaque Glass

- diffuses light

- captures shadows

- temperture control

- UV protection

- energy efficient

- durability

- ease of maintenance

- temperature regulation

- slip resistence

- biophilic connection

- sustainably harvested

- light reflection

- energy efficient

- unique acoustic properties

- biophilic connection

- improved air quality

- temperature regulation

- acoustic comfort

- stress reduction

- enhances cognitive funciton

- sustainable principles

Concrete Floor Tiles
Interior Wooden Finishes
Vegetation / Plants
Light shining through TRANSPARENT glazing
Light diffused through SEMI-OPAUQE glazing

The operable facade offers adaptability for indooroutdoor connections. Our design creates unique lighting conditions within the tower, influencing the character of the programmatic spaces. This dynamic feature serves as a tool, enhancing both functionality and the distinctive atmosphere of the building.

Facade Structure
Electronic Pantograph System
Peforated Metal Mesh

02 Shell Mound Trail

Cedar Key, Florida

Keywords/Terms: circulation, tradition, atmospheric conditions, environment

This project is an exploration of enhancing the Shell Mound Trail’s circulation and discovering a dialogue between material functionality and the surrounding environment. The program includes a boat house for row boats, an informal dining area, a library, and a solstice observation tower.

Boathouse Section

The site has as variety of vegatation, all living in harmony amongst the shell mound. Natural edges are blurred throughout the trail, creating unique ecosystems and delicate ground conditions. The structures were designed to seemingly float above the ground, hiding within the dense vegetation, with materials that act as a canvas for atmospheric conditions.

Timber, chosen for its natural warmth and versatility, establishes a tactile connection with occupants, allowing them to understand the structural elements. Corrugated Metal, with its rugged aesthetic, not only provides durability but also reflects the climate as the material ages over time. Semi-Opaque Glazing serves to create a dialogue between light and shadow, forming a visual connection between the interior and the exterior. This material palette prioritizes transparency and a sense of place.

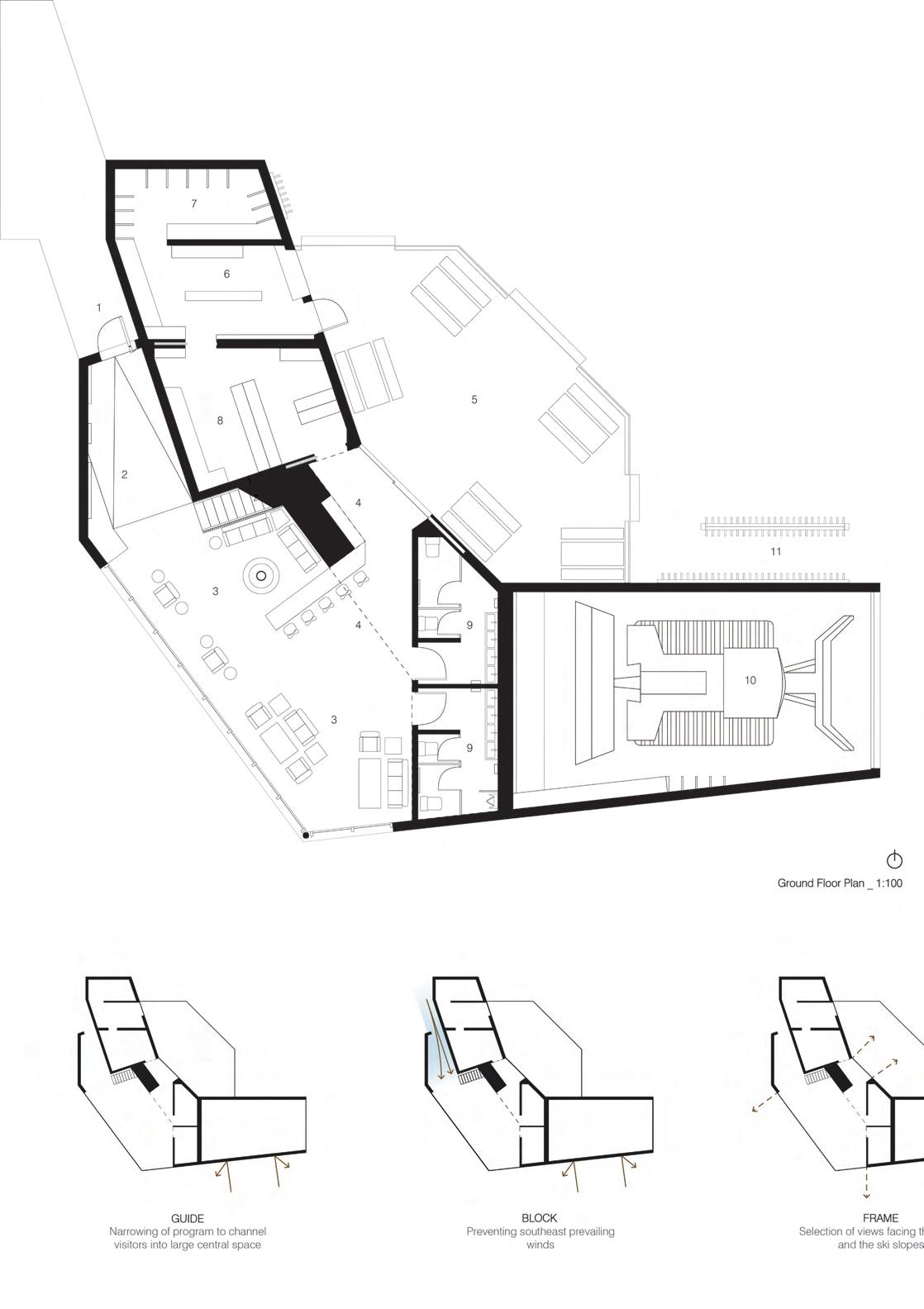
03 Krafla Ski Hearth

Myvatn, Iceland

PartnerProject:MicahFitzgerald,JoseOsario,MikeNemrey

Keywords/Terms: warmth, hearth, merge, activity

Nestled amidst the desolate and stark icelandic landscape, the Krafla Ski Hearth creates a unique experience by epitomizing the combination of rustic charm and modern hearth. Standing out not only by its programmatic delineation but also through its approach in optimizing views, visitors are presented with an unparalleled sanctuary of relaxation and activity. The building form takes inspiration from the Icelandic Landscape, mimicking the undulating hills and slopes in teh surrounding area. The form creates an organic environment connecting interior programs to each outher and with the landscape.

04 Albina Green Belt

Portland, Oregon

Role: Captain Members: Patrick Rodriguez, Yousef Alsherif, Olivia Huffer

Keywords/Terms: community, smart growth, mixed-use, affordable housing, renewel

The endeavor of this project focuses on the redevelopment of a long-vacant parcel of land adjacent to Legacy Emanuel Medical Center, historically known as the Hill Block. The site, condemned in the 1970s for an expansion that never materialized, is now being donated back to the Black community through the Williams & Russell CDC. Driven by five community priorities—Support for Entrepreneurs, Affordable Rental Housing, Homeownership, Education/Workforce Training, and Community Space—aims to revive the oncethriving African American commercial district. Our design solution integrates mixed-income residential development with commercial, retail, and community spaces. The key focuses of this project were the business incubator for local entrepreneurs and job opportunities, affordable housing, and the integration of green spaces that seamlessly connect with adjacent green areas.

AxoDiagrams:MicahFitzgerald&YousefAlsherifBase

RenderPhotoshop:YousefAlsherif

Render&Map:MicahFitzgerald

RenderPhotoshop:YousefAlsherif&OliviaHuffer

AxoDiagram:YousefAlsherif&MicahFitzgerald

05 School of Celebration DesignCharrette

Keywords/Terms: rites of passage, assembly, transience, breathable

This school integrates the educational experience zwith movement, connection, and landscape, using elevated walkways as the defining element of its design. These walkways act as both circulation paths and spaces for gathering, learning, and celebrating important rites of passage. As they weave through the site’s sloped terrain, they create terraces that blend into the natural landscape, providing shaded seating areas, multifunctional gathering spaces, and moments of pause. Designed for breathability and thermal comfort, the walkways serve as structural canopies, offering shelter while maintaining an open-air experience. The project prioritizes sustainable materials, adaptive spaces, and a deep connection to the surrounding environment, ensuring that both students and the community can engage with the school in meaningful ways.

The covered pathways are not only for movement and gathering, but also an integral part of the school’s water management system. Designed with a subtle slope and permeable or channeled surfaces, the walkways collect and redirect rainwater to designated collection points, such as underground cisterns or landscaped retention areas. This system helps mitigate erosion on the sloped terrain while providing a sustainable water source for the school’s community gardens. By integrating rainwater collection into the walkways, the design enhances both environmental resilience and the school’s self-sufficiency.

06 Nexus of Power

Winter Park, Florida

Keywords/Terms: mentorship, funnel, compression, diffusion

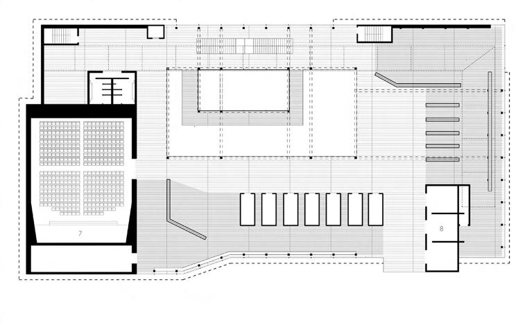
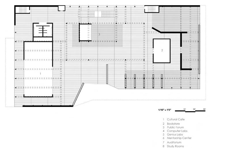
Winter Park is a site that holds a unique historical context. From the train tracks adjacent to the library, to the history behind the founders of the town, it’s clear that this community will benefit from a cultural hub that embodies Winter Park’s identity and character. This library and plaza is desgined to respond to the history held within the SunRail’s train tracks, seeking to serve as a nexus of power.

Train Depot/Farmers Market
Market Vendors
SunRail Station Stop
Roof Surface
Polycarbonate Facade / Skin
Facade Structure
Primary & Secondary Structure
Planar / Structural Makeup

The ground level focuses on creating an accessible environment, inviting people to explore and discover the library. It includes facilities such as the bookstore, cultural cafe, and a reading lounge with tables for social events. The second floor focuses on creating moments for collaboration and innovation; including a genius lab, a computer lab, and a mentorship center that empowers and supports individuals in their personal and professional goals. The third floor focuses on providing a quiet and focused space for studying, research, and contemplation, including study rooms, reading chambers, and an open reading area.

Central Atrium / Book Tower
West Side Reading Corner
Cultural Cafe
Bookstore

Through the plaza and the library, this design aims to create a cultural hub that embodies Winter Park’s identity and character. By integrating with the SunRail and the Central Park events, the library becomes an essential part of the city’s cultural landscape, inviting visitors to embrace the wonderful atmosphere of Winter Park.

Through the plaza and the library, this design aims to create a cultural hub that embodies Winter Park’s identity and character. By integrating with the SunRail and the Central Park events, the library becomes an essential part of the city’s cultural landscape, inviting visitors to embrace the wonderful atmosphere of Winter Park.

The materiality of the train tracks and surrounding ground conditions inspired this libraries tectonic assembly, and the transition between the plaza’s edges

07 Ecosystem Studies

Natural Area Teaching Laboratory, UF

Keywords/Terms: climate, atmosphere, light, time, ecosystem

Cyanotype printing was the first step in studying and capturing the atmospheric conditions of each of the three ecosystems within our site. The cyanotype prints revealed moments of time and densities within the site.

Hammcock
Wetlands
Upland Pines

This project focuses on how assembly of a structure can capture and enhance the atmospheric qualities of the site while exploring the atmospheric conditions within varrying ecosystems.

Personal Email: m.fitzyyy@gmail.com

School Email: micahfitzgerald@ufl.edu Phone: 904-524-0592

Micah

Turn static files into dynamic content formats.

Create a flipbook
Issuu converts static files into: digital portfolios, online yearbooks, online catalogs, digital photo albums and more. Sign up and create your flipbook.