Skip to main content

MARY NELSON PORTFOLIO 2026 - UPDATED

Page 1


UNIVERSITY OF ARKANSAS

FALL 2023 - MAY 2027

In this portfolio contains the evolution of student projects at the University of Arkansas, study abroad experiences, and personal works over the course of my undergraduate career thus far.

MARY NELSON | mgnelson05@gmail.com | (806) 231-9374

NEXT STUDENT DESIGN COMPETITION 2025

TABLE OF 03-09 10-14 19-24 15-18

LUFT CHAIR, DIS STUDY ABROAD SCANDINAVIA

HINODE, SENIOR LIVING FACILITY STUDENT PROJECT

SKETCHES, DETAIL DRAWINGS, & PERSONAL WORKS

NEXT LAW FIRM

STEELCASE DESIGN COMPETITION

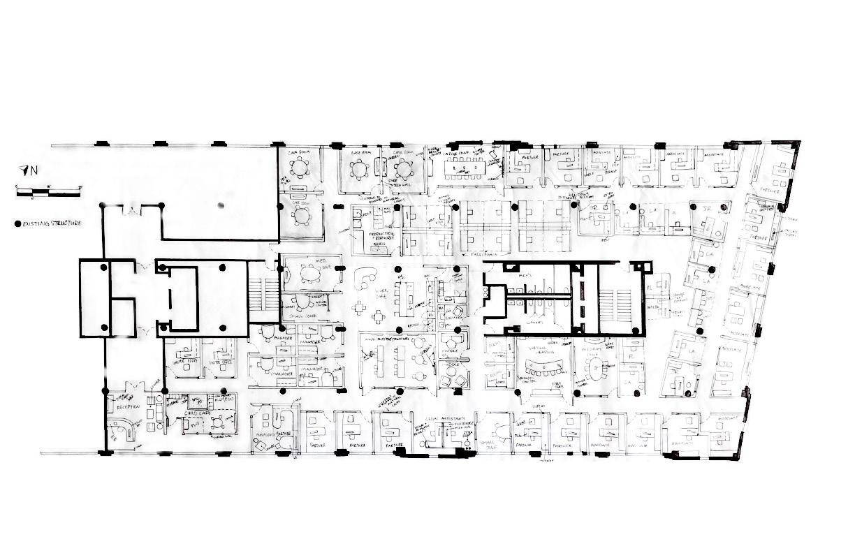
Driven by the growing importance of human connection and wellbeing in the workplace, the Los Angeles NEXT office is conceived as a network, linking people much like the Southern Pacific Rail lines once connected the city. Honest materials such as metal and exposed concrete reference the strength of rail infrastructure, softened with warm woods and textiles to reflect community, care, and trust. The layout draws from the logic of a rail junction, organizing shared spaces into a central hub with focused work zones arranged around it to balance collaboration and restoration. Natural light, flexible furniture, and transparent partitions reinforce a workplace centered on people— where professional and personal life are thoughtfully connected.

CONCEPT THROUGH SPATIAL LOGIC

THE STATION | CENTRAL HUB

SHARED SPACES

COLLABORATION

COMMUNITY

REGENERATION

COMMUNITY SPACE

WORK SPACE

CLIENT MEETING

CENTRAL HUB AS CONNECTOR

FOCUSED WORK

BUBBLE DIAGRAM

ZONING DIAGRAM

LEVEL 4 BLOCK DIAGRAM

LEVEL 4 INITIAL PLAN

THE STATION

ENLARGED FLOOR PLAN REFLECTED

CONFERENCE ROOM

MULTIPURPOSE ROOM

LUFT CHAIR

DIS STUDY ABROAD FURNITURE DESIGN

The Luft Chair, named after the Danish word for “air,” investigates visual lightness through slender proportions and honest construction. Built entirely of solid wood and assembled with exposed wooden dowels, the chair expresses honesty in materiality and making. Rather than minimizing structure, the design celebrates it, allowing joinery to define both form and function. The chair highlights craft, structural clarity, and the relationship between solid material and negative space.

EARLY EXPLORATION

STUDY MODEL

FORM + PROPORTION STUDIES

1:1 CARDBOARD MODEL
HALL CHAIR

FABRICATION PROCESS

FULL SCALE CONSTRUCTION SKETCH

FRAME JOINERY
SEAT JOINERY
ELBOW DETAIL
DOWEL DETAIL

HINODE

JAPANESE SENIOR LIVING FACILITY PROJECT

A meditation on time, perception, and the quiet beauty of change, the design responds to the ways vision softens with age—colors blur, edges fade, and warmth becomes increasingly meaningful. A palette of soft greens, washed reds, sun-faded oranges, muted pinks, and grounding tans reflects this shift, offering hues that are both visually gentle and emotionally resonant. Materials such as raw wood, warm concrete, and textured stone embrace imperfection and patina, reinforcing memory and tactile engagement. Soft cove lighting is integrated along pathways and thresholds, diffusing like early morning light to guide movement with subtlety rather than emphasis.

STUDIO TYPE A ACCESSIBILITY ENLARGED PLAN

DINING HALL

DINING HALL ENLARGED PLAN

DINING HALL SECTION
GENKAN TO LIVING ROOM
CORRIDOR

ADDITIONAL WORKS

DETAIL DRAWINGS, SKETCHES, & ART

Exploration in observation, craft, and fabrication thinking beyond formal studio projects.

The storage system functions as both organized classroom storage and an interactive learning station. Five modular units allow children to rotate between activities, with cubbies, open shelving, and a central fold-up table that transforms storage into an active workspace using interchangeable tubs. Teacher-controlled upper storage and a dramatic play zone on the opposite side balance independence, flexibility, and classroom organization.

UNIT 1 PLAN + SECTION

2 PLAN + SECTION

WALL TO CEILING DETAIL DRAWINGS

STORAGE BENCH DETAIL DRAWINGS

WORKPLACE STUDY SKETCH

UNDERSTANDING SECTIONS & ELEVATIONS

THANK YOU

Turn static files into dynamic content formats.

Create a flipbook
MARY NELSON PORTFOLIO 2026 - UPDATED by Mary N - Issuu