PORTFOLIO PORTFOLIO
PORTFOLIO
PORTFOLIO
PORTFOLIO
![]()
PORTFOLIO
PORTFOLIO
PORTFOLIO

Name: Shi Mengyan
Age: 26 (10/1998)
Birth place: Shandong, China
Nationality: Chinese
Residence: Milan, Italy
Phone +39 3533784811
E-mail: myshiddxx@outlook.com
2021/9-2024/7 Italy, Milan
2018/9-2021/9 Italy, Turin
2017/9-2018/9 Italy, Turin
Master in Politecnico di Milano Laurea in Build Environment Interior
Graduated with: 110/110
Bachelor in Politecnico di Torino Laurea in Architecture Graduated with: 101/110
Bachelor in Politecnico di Torino Laurea in electronic and engineering
2024/5 - 2024/7 Italy, Mlian
2023/4 - 2023/10 Italy, Turin
2021/4-2021/9 Italy, Turin















Studio di Architectura Roberto Carlando Intern -The main responsibility is the refinement and design of architecture interiors for multiple projects.
China Room Polito research center Intern -Mainly follow up on competition and projects participated by the China Room.
LGC Ingegneria-Architettura Intern
-Followed the project about updating the ZTE 5G radio base structures for the telephone operators. -Followed local residence reconstruction projects.
2018/9-2019/12 Italy, Turin
2018/9 Italy, Turin
CSSA.PoliTO Chinese students and scholars association Department director Mainly responsible for the activity planning and coordinating personnel. During my tenure, was responsible for activities such as China Day, Chin-Ita Spring Festival Gala, and the basketball league.
PoliTO Campus volunteer Guide the freshmen to go through the admission procedures, and introduce the campus and university life.





Type: Group Work Group member: Liu Ziyu
Course: Architecture of Interiors Design Studio TASK 02 2021-2022
Tutor: Manolo De Giorgi,Stamatina Kousidi Score: 30/30
Location: LA Axonometric view

The project mainly explores the optimization and renewal of the internal space of existing buildings. After studying and analyzing the original architectural conditions of William House designed by JOHN LAUTNER in 1952, we reorganized and divided the interior space and functions by using fixed furniture. original first floor plan
























Type: Group Work (academic)
Group member: Liu Ziyu
Year: 2023/24
Course: Final thesis 'Fashion and heritage'
Tutor: Pier Federico Caliari, Greta Allegretti, Lorenzo Simoni
Location: Tivoli
The collaboration between heritage sites and the fashion industry has emerged as a significant trend, blending historical significance with contemporary creativity. This exploration focuses on the convergence of Villa Adriana, a prominent Roman archaeological site, with the avant-garde fashion brand Comme des Garcons, examining their histories, aesthetic concept, and design philosophies.Villa Adriana embodies the architectural legacy of Roman Emperor Hadrian, the pure form of the building and the strict compliance with the axis of the building layout make it a great building complex.The current Hadrian Palace as a ruin also reflects the aesthetic value of ruins as architectural fragments. Founded in 1973 by Rei Kawakubo, Comme des Garcons challenges conventional fashion norms with bold, avant-garde designs. Her designs embody the Japanese aesthetic concept of "wabi-sabi". The project delves into the intersection of heritage and fashion through the design concept of "Look through the Hole" and the aesthetic value of "Wabi-sabi," aiming to unveil the beauty inherent within Villa Adriana's fragmented ruins.






From the perspective of the ‘Hole’, there exist two distinct interpretations. On one hand, the "hole" can be perceived as a "circle," symbolizing completeness and wholeness, representing perfection in all things. Throughout history, the circle has been widely employed across various domains, particularly in architecture. On the other hand, a "hole" can also be viewed as a gap signifying imperfections and flaws. Whether from the standpoint of a circle or that of a gap, they share a common characteristic: the "hole" serves as an opening through which we are able to glimpse beneath the surface of objects; however, our vision is limited to only part rather than whole. This limitation engenders novel modes of expression whereby both object and hole's surface ingeniously merge together to confer upon the "hole" new meaning – becoming both boundary and junction between two entities.
This philosophy finds application in design practices, notably evident in exhibitions at Villa Adriana. Despite its current dilapidated state, we aim to showcase its present ruins by employing the concept of caves. Herein lies an interpretation where "the cave" represents fragmented gaps within the palace structure; it is through these crevices that we hope audiences may perceive alternative beauty inherent within this architectural marvel.
For Rei Kawakubo, "holes" have consistently constituted core elements within her brand's designs; she has incorporated this concept into several collections over time. As early as 1982 with her launch of the "Holes" collection – featuring black and white garments riddled with apertures – she sought to challenge prevailing notions within fashion industry by breaking away from opulent luxury stereotypes while presenting mutilated beauty instead. This design concept metaphorically mirrors Hadrian Palace's current condition as it endeavors to unveil its unique allure through unconventional means beyond what meets our eyes today.





















Type: Individual Work (academic)
Year: 2020
Course: Building construction Studio 2020
Tutor: Marco Trisciuoglio, Alberto Bologna, Lorenzo Savio, Roberto Giordano, Fabrizio Barpi
Score: 28/30
Location: Tutin
The epidemic has changed the way of life, and thus the way of living. We had to isolate ourselves at home, and for a while 'home' took on more meaning. If a 'home' was part of society, now the 'home' has become a small society independent of the outside world. It insulates and protects us from the outside world. What are the limits of one living space for one person? How to ensure the quality of life and adapt to the new requirements with minimal space in the current epidemic? tried to make ‘home’ as a 'shelter' instead of a 'cell'.


























Type: Group Work Group member: Liu Ziyu
Course: Architecture of Interiors Design Studio TASK 01 2021-2022
Tutor: Manolo De Giorgi,Stamatina Kousidi Score: 30/30
Location: Greece
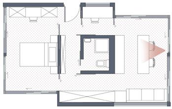
The house is located on an island in Greece, named Tinos. The undulating terrain and vast sea view contribute to the elegant environment of the house. The existing house was constructed with the traditional materials, which enclose a small space with the typical thick wall. We divide the space diagonally to increase space utilization. Vertically, using the parapet to have certain view blocks to increase the privacy of the certain space. In addition, we designed multi-use furniture, making the function of the space has can more possibility. And with the unity of furniture's material and style to ensure the general homogenous of the whole indoor style.











Type: Team work (academic)
Year: 2021
Group member: Liu Chun Zhong Xianyi
Course: Architectural design theory 2020-2021
Tutor: Durbiano Giovanni, Bruno Edoardo, Federighi Valeria
Location: Detroit
Score: 30L/30
In Detroit, the studio simulated the process of an architect designing an entire project for a client, starting with a contract and following the client's requirements. Set up an economically sustainable friendly farm that caters to other client projects around it. For that aim, we designed a farm-based Co-living community. To save upfront investment and risk, we divided the project into two phases, which can develop step by step within several years. The mobile box is the main element to enhance the flexibility of the space and provide customers with a variety of activity spaces. As well as facilitate communication throughout the region.









Considering the customer's initial capital and upfront investment risk, we planned that the farm could be formed in two or more phases.














