Meld
kandidaten
aan
![]()
Meld
aan

REGIO - Vanaf april introduceren weekblad Arena en restaurant De Potter in Schaijk een nieuwe rubriek: Vrijwilliger van de Maand. Dit initiatief is bedoeld om de stille krachten die onze gemeenschap draaiende houden in het zonnetje te zetten.
John Potjes, uitbater van De Potter, kwam met het idee voor de rubriek. Geïnspireerd door een vergelijkbaar succesvol
project in Twente, benaderde hij Sergio Boutkan, uitgever van ArenaLokaal. “Tijdens een horecatour hoorde ik over dit initiatief”, vertelt John. “Het leek me geweldig om ook in onze regio vrijwilligers, die vaak achter de schermen veel waardevol werk verrichten, maandelijks in ‘t zonnetje te zetten.” Sergio reageerde direct enthousiast: “Vrijwilligers zijn het cement van de samenle-
ving. Met deze rubriek willen we hen de waardering geven die ze verdienen. We roepen onze lezers op kandidaten aan te dragen. Ken je iemand die zich belangeloos inzet voor anderen? Iemand die bijvoorbeeld al jaren actief is bij een (sport) vereniging, boodschappen doet voor een zieke buur of mantelzorg verleent? Laat het ons dan weten!”
Door Annelies Graafsma
GRAVE – De school voor Eerste Opvang Anderstaligen en de Internationale Schakel Klas (ISK) in het Land van Cuijk blijft op de Generaal de Bonskazerne in Velp. Arena berichtte al eerder over de noodzakelijke renovatie van de school. De school is onderdeel van het Merletcollege en is het slechtste schoolgebouw van Merlet. De rector van het Merletcollege deed al langer een dringend beroep op de gemeente om werk van renovatie te maken. De opknapbeurt kost 7,5 miljoen.









Het bestuur van de school en de gemeente hebben nu besloten deze huisvestingsopgave te koppelen aan de toekomst van het AZC. Dit betekent voor de gemeente dat de financiering mede afhankelijk is van verlenging van het contract met het AZC. Het conceptbesluit over verlenging van het AZC is afgelopen dinsdag in het college genomen. Het college van Burgemeester en Wethouders stelt de gemeenteraad voor de overeenkomst met het AZC in Grave te verlengen tot 1 januari 2055. Door deze verlenging kan het schoolgebouw gerenoveerd worden. Zonder het ACZ zou de instroom voor 50% wegvallen en de investering in de school risico’s met zich meebrengen. “De enquête van de ervaringen van inwoners en de gesprekken met wijk- en dorpsraden, ondernemers en een klankbordgroep staan aan de basis van dit besluit”, zegt verantwoordelijk wethouder Willy Hendriks-van Haaren. Het rapport van het ervaringsonderzoek is op 11 maart bij de gemeente binnengekomen. Vandaag (20 maart) worden de resultaten gedeeld met alle betrokkenen en belangstellenden.
>> 3




Erfgoedspektakel: op ontdekkingstocht naar de Bonskazerne
GRAVE - Op 5 en 6 april worden bij de Generaal de Bonskazerne in Grave bijzondere geheimen onthuld tijdens een theatertocht over het terrein, in het kader van het Erfgoedspektakel. Generaals De Bons en Montgomery vertellen samen met en kele soldaten het verhaal van de voormalige mili taire kazerne. Tegelijkertijd openen enkele gebrui kers van het terrein hun deuren voor bezoekers. Ellen Klaus, artistiek leider Erfgoedspektakel: “De Bonskazerne heeft een verhaal te mooi om onontdekt te blijven. BOEi is het Erfgoedspektakel begonnen om dit soort plekken te koppelen aan culturele makers, om zo bijzondere voorstellingen mogelijk te maken.” Erris van Ginkel, theatermaker: “De voorstelling brengt het verhaal van de Bonskazerne tot leven, zodat bezoekers beter snappen waar ze zijn en wat de betekenis van dit complex is geweest. In de theatrale vertelling ontdek je de historie en word je meegenomen in een liefdesverhaal tussen een soldaat en zijn liefje.” Gedurende het hele zijn creatieve ateliers van gebouw A te bezoeken en is er een programma in het Filmcafé. De culturele voorstelling van het Erfgoedspektakel duurt 45 minuten en is te reserveren op zaterdag 5 april tussen 12 en 18 uur en op zondag 6 april tussen 10 en 18 uur. Kaarten kosten 7,50 voor volwassenen en 5 euro voor kinderen tot en met 12 jaar en deelnemers van de Vriendenloterij. Meer info: www.erfgoedspektakel.nl.



v v


Wingerd 17 Schaijk I vraagprijs: € 389.000,- k.k.
Woonoppervlakte: 108 m²
Perceeloppervlakte: 114 m²
Inhoud woning: 383 m³
Externe bergruimte: 5 m²
Bouwjaar: 1974 (renovatie 2021)
Energielabel: C

Zeer nette, fraai afgewerkte, verrassend ruime en instapklare tussenwoning. De woning is gelegen op een rustige locatie in groene woonomgeving op
Helstraat Reek I vraagprijs: € 215.000,- k.k.
lichtinval.

Perceel: 1.515 m²

BERGHEM JULIANASTRAAT 28-30

Nieuwbouwlocatie
Perceel totaal 2940 m2
Met bouwvergunning voor commerciële ruimtes 770 m2 en 10 appartementen alsmede circa 60 parkeerplaatsen.
Aanvaarding: n.o.t.k. Koopsom: op aanvraag

Te huur Bedrijfsruimte
Bedrijfshal ca. 1008 m2
Incl. kantoor en kantine ca. 60 m2
3x overheaddeur, goede isolatie
Gladde betonvloer
Led verlichting in de hal
Milieu klasse t/m 3.2
Aanvaarding: n.o.t.k. Huurprijs: op aanvraag
Op 4 april in deze krant
Oplage 64.000 - 161.000 huishoudens
Vacature plaatsen? patrick@arenamediacentrum.nl

Te huur kantoorruimte
In bedrijfsverzamelgebouw op kleinschalig industriepark - Unit bg linkerzijde - Unit 1e verd. rechts
Aanvaarding n.o.t.k. HUURPRIJS op aanvraag
Kopen of verkopen
Huren of verhuren o.g. adviezen
Maak vrijblijvend een afspraak en wij informeren u over uw en onze mogelijkheden

Makelaardij
Pastoor van Winkelstraat 20 SCHAIJK 0486-463144
Goothoogte: Maximaal: 4,5 m
Bouwhoogte: Maximaal: 9 m

Landelijke gelegen potentieel bouwkavel aan de Helstraat net buiten de bebouwde kom van Reek met aan de achterzijde een kilometers ver prachtig weids uitzicht op de landerijen!
Deze riante kavel van maar liefst ca.1.515 m² is uitermate geschikt voor het bouwen van een eigentijdse vrijstaande woning met bijgebouw en riante tuin.
Winkelstraat 2 Ravenstein I vraagprijs € 499.500,- k.k.
Woonoppervlakte: 148 m²
Perceeloppervlakte: 103 m²
Inhoud woning: 567 m³
Overige inpandige ruimte (kelder): 12 m²
Bouwjaar: 1939
Energielabel: Niet van toepassing i.v.m. monumentale status.

In het hart van het gezellige, levendige en historische vestingstadje Ravenstein gelegen, sfeervolle stadswoning met patiotuin, tuinberging en achterom.
De woning, verrassend royaal, wordt gekenmerkt door een fijne en praktische indeling met goede leefruimten en ademt door de aanwezigheid
van diverse originele stijlkenmerken één en al sfeer! Het gezellige en bourgondische vestingstadje Ravenstein kent een prachtig eeuwen oud centrum in de vesting met leuke winkels, speciaalzaken, terrasjes en restaurants, dit alles op loopafstand van de rivier de Maas en haar prachtige uiterwaarden.

Potter trakteert vrijwilligers op geheel verzorgde
Vervolg van voorpagina
Hoe nomineer je een vrijwilliger?
Stuur een mail naar redactie@ arenalokaal.nl met de volgende gegevens:
* Naam en contactgegevens (woonplaats, telefoonnummer en e-mailadres) van de vrijwilliger (of het groepje vrijwilligers).
* Een motivatie van maximaal 200 woorden waarom deze vrijwilliger(s) in aanmerking komt/komen voor de titel ‘Vrijwilliger van de Maand’.
Let op: de kandidaten moeten
woonachtig en/of actief zijn binnen het verspreidingsgebied van ArenaLokaal, namelijk: Reek, Schaijk, Zeeland, Langenboom, Herpen (en omliggende kerkdorpen), Ravenstein (en omliggende kerkdorpen), Overlangel, Grave, Escharen, Gassel en Velp.
Uit de inzendingen van de lezers
selecteren ArenaLokaal en De Potter maandelijks de ‘Vrijwilliger van de Maand’. De gekozen vrijwilliger mag, samen met een partner of collega-vrijwilligers, komen genieten van een volledig verzorgde lunch bij restaurant De Potter in Schaijk.
“Het is een kleine geste om onze waardering te tonen voor hun grote inzet”, geeft John Potjes aan.
Nomineer vrijwilligers! Vrijwilligers zijn onmisbaar voor een sterke en betrokken gemeenschap. Met de rubriek ‘Vrijwilliger van de Maand’ willen ArenaLokaal en De Potter deze lokale helden de erkenning geven die ze verdienen. Dus ken je iemand die deze titel verdient? Nomineer hem of haar dan snel en help ons om samen de vrijwilligers in onze regio te eren.
Vervolg van voorpagina
In de raadsvergadering van 13 maart werd het agendapunt ‘Beschikbaar stellen van een krediet voor alle in Boxmeer, Cuijk en Grave’ overschaduwd door de discussie over de ISK in Velp. Voor de investering in de nieuwbouw en verbouw van het voortgezet onderwijs van Metameer en Elzendaalcollege in Boxmeer en het Merletcollege in Cuijk en Grave waren de handen gemakkelijk op elkaar te krijgen. En voor het onderwijs in het kader van de Eerste Opvang Anderstaligen (kinderen van asielzoekers, arbeidsmigranten en statushouders, red.) was er ook een meerderheid. Het was vooral de koppeling van de bouwplannen in Velp aan het openhouden en verlengen van het con-
Arenalokaal
Verschijnt elke vrijdag in Reek, Schaijk, Zeeland, Herpen, Ravenstein, Langenboom, Grave, Gassel, Escharen en Velp.
Oplage: 16.500 exemplaren
Uitgever: Arena Mediacentrum BV Runstraat 15 5374 AA Schaijk T: 0486 - 46 31 12 www.arenalokaal.nl
Arenalokaal Arenalokaal
Advertenties: Patrick Vergeer patrick@arenamediacentrum.nl advertentie@arenamediacentrum.nl M: 06- 50 61 74 26
Redactie: Sergio Boutkan sergio@arenamediacentrum.nl redactie@arenamediacentrum.nl M: 06 - 46 62 56 51
Eindverantwoording: Sergio Boutkan
Krant niet ontvangen? Vul het formulier in op www.arenalokaal.nl/ bezorgklacht of bezorging@ arenamediacentrum.nl.
tract met het asielzoekerscentrum dat meerdere partijen als een vorm van chantage voelden. De huidige looptijd van de overeenkomst met het Centraal Orgaan opvang asielzoekers (AZC) loopt tot 2032. Het is een afspraak met de oude gemeente Grave. Er liggen weinig afspraken vast, volgens wethouder Hendriks-van Haaren. Nu er een conceptbesluit ligt voor verlenging kan het college vragen om verbeteringen en deze ook laten vastleggen. Bijvoorbeeld op het gebied van veiligheid en verbeteren van de opvang. Het COA heeft intussen ingestemd met de renovatie van het schoolgebouw en in de conceptverlenging is er aandacht voor veiligheid. Ook is er overeengekomen dat de gemeente tussentijds
de overeenkomst kan openbreken. Dat kan bij langdurige overlast. De maximale capaciteit van het AZC blijft 600 bewoners. Tenslotte krijgt de gemeente het recht om het terrein en de gebouwen over te nemen aan het eind van de overeenkomst of bij tussentijdse beëindiging.
Iedereen die aan de enquête heeft deelgenomen en een e-mailadres heeft achtergelaten heeft het resultaat van het onderzoek al kunnen lezen: 1.134 inwoners uit de kernen Grave, Velp en Escharen. Het rapport is ook gepubliceerd op website van de gemeente Land van Cuijk. De definitieve besluitvorming over de tussentijdse verlenging vindt plaats op 5 juni.
LAND VAN CUIJK - Ze zijn straks zichtbaar voor bestuurders van motorvoertuigen, zij krijgen een glimlach te zien of een blijk van teleurstelling. Het gaat hier over de Dynamische Snelheid Indicator (DSI). Er zijn verschillende soorten DSI’s maar allemaal sturen ze op verkeersgedrag. Ze geven bijvoorbeeld in rode cijfers de gereden snelheid weer als die te hoog is. Cijfers in groen geven een toegestane snelheid weer. Ook zijn er DSI’s die smileys tonen. Bij de smiley ‘vrolijk’, is de snelheid correct, bij ‘teleurgesteld’, te hoog. Uit landelijk onderzoek blijkt dat smileys weggebruikers helpen hun rijstijl aan te passen. Meer dan de helft van het aantal bestuurders rijdt langzamer bij een reactie van een ‘teleurgestelde’ smiley. De gemeente Land van Cuijk zet in op DSI’s met smileys om weggebruikers bewust te maken dat ze te
hard of met de juiste snelheid rijden. Door de DSI’s regelmatig (iedere 4-6 weken) te wisselen van locatie blijkt het effect het grootst. Om op meer plekken binnen de bebouwde kom een DSI te kunnen laten wisselen kunnen wijk- en dorpsraden een DSI in bruikleen krijgen. Per wijk wordt een vijftal locaties bepaald waar een DSI kan hangen. Op deze locaties hangt de gemeente een ophangbeugel op aan een lichtmast. De wijkraad kan daar zelf een DSI aan bevestigen. Een of twee personen krijgen een technische instructie en tekenen een bruikleenovereenkomst met de gemeente. Daarmee worden ze namens de wijk- of dorpsraad verantwoordelijk voor roulatie van de DSI. Al 24 wijken dorpsraden willen hier gebruik van maken. 21 maart hing wethouder Sölez de eerste DSI op in Linden. Annelies Graafsma


In de vorige eeuw was er een radioprogramma dat “De toestand in de wereld” heette. Van 1956 tot 1999 werd dat programma elke week op zondagmiddag om 1 uur op de radio uitgezonden. Moet je nagaan: op de radio, op zondagmiddag en dan over een onderwerp als de toestand in de wereld. De radio staat tegenwoordig volgens mij alleen aan op een muziekzender, met tussendoor verkeerssituatie. De zondagmiddag naar een ernstig radioprogramma luisteren? Hahaha. Je mag er niet meer aan denken. Maar toen waren het andere tijden. Dreigende tijden. Over Israël en Palestina, over Rusland en diens zin in een groter stuk Europa. Daar gingen veel mensen wel eens extra voor zitten. En pas daarna naar de zondagse vrije-dag-besteding, zoals voetbal, familie en voetbal. Wat de onderwerpen betreft is er niet veel veranderd. In Israël en Gaza is het nog steeds een ramp. Rusland is alweer in oorlog. De Verenigde Staten hebben een nieuwe leider. Een soort Pinokkio, wiens neus al niet meer groter kan worden. Iemand die straks misschien wel met de Nobelprijs voor de Vrede gaat lopen, als hij een eind aan de oorlogen kan maken. En, aan elke oorlog komt eens een eind. Al duurt het soms tachtig jaar, weten wij als beschaafde Nederlanders. Maar ook op kleine schaal zijn er toestanden. Wat te denken van leerlingen op het Voortgezet Onderwijs, die onder grote druk hun rusteloze leven lijden. Want, schrik niet, hun ouders kunnen al hun cijfers gewoon via internet inzien. Niet meer één keer per trimester als ze met hun rapport thuiskomen, nee nee, na elk proefwerk dreigt het zwaard van Damocles op hun nog zwakke nekjes neer te dalen. En daar worden de jongelui zenuwachtig van. Onzeker ook. Een beetje slimmerik zou het natuurlijk als excuus kunnen gebruiken: “Ja pap, ik heb mijn Engels proefwerk verknald, omdat ik zenuwachtig werd van het idee dat jij over mijn schouder meekeek. Zou jij het leuk vinden als je baas constant in je nek loopt te hijgen bij alles wat je doet? Of niet doet?” Een niet te onderschatten toestand in Nederland, deel van de toestand in de wereld is het maatmanloon. Ik had er eerlijk gezegd nog nooit van gehoord. In het kort komt het hierop neer: maatmanloon wordt gebruikt om te kijken wat een werknemer met een beperking nog zou kunnen verdienen. Het woordje “nog” zegt mij al voldoende. Een ander actueel toestandje in de wereld gaat over pensioenfondsen. Toch al niet mijn beste vrienden. Waarom niet? Toen ik begon met werken verdiende ik heel weinig. Op het laatst best meer dan genoeg. Mij was bij de start verzekerd dat mijn pensioen berekend zou worden over mijn eindloon. Helaas werd dat enkele jaren voordat ik zo ver was veranderd in een berekening van het middelloon. Nou, dat scheelde meer dan een slok op een borrel. Die pensioenfondsen “wachten met extra beleggen in wapens”…
Freddy Klooté


GRAVE – Bureau West8 zou volgens de informatie van wethouder David Sölez in september 2024 met een plan komen over het Visioterrein in Grave. Na archeologisch onderzoek waren er volgens de wethouder voldoende gegevens over de fundamenten van de oude muur om vervolgstappen te ondernemen. Er was nog onzekerheid over de conditie van de palen onder de fundamenten, ‘maar dit wordt mogelijk deze week nog duidelijk’, zei wethouder David Solez destijds. Bureau West8 kreeg in 2024 de opdracht met verschillende varianten voor de vestingmuur te komen. Welke oplossingen heeft West8 voor de vestingmuur op het parkachtige terrein? Zijn er al nieuwe plannen bekend bij de wethouder?
Door Annelies Graafsma
De geschiedenis Visioterrein na aankoop door de vroegere gemeente Grave
Het Visioterrein werd in 2015 aangekocht door de gemeente Grave. De aankoop was een belangrijke stap in de herontwikkeling van de unieke historische locatie, tussen de Raam en de Elisabethstraat in Grave. Bureau West8, een internationaal opererend ontwerpbureau uit Rotterdam, kreeg de opdracht om verschillende scenario’s voor de herontwikkeling van Grave en ook van het Visioterrein uit te werken. In een ‘stadsgesprek’ op 2 november 2017 presenteerde West8 de eerste scenario’s in de ‘Visie op de Vestingstad Grave’.
Een aantal ideeën van West8 is inmiddels gerealiseerd, onder andere in de Brugstraat en de Oliestraat waar appartementen kwamen zoals West8 die voorstelde. Het wachten is nu op de 12 hectare grote Visioterrein, waarvoor West8 eerder al plannen ontwikkelde die de oude vestingstructuur beter beleefbaar moet maken.
Hoe ziet het nieuwste plan van West8 eruit?
De woordvoerder van wethouder Solez: “Er worden op dit moment door West8 drie ontwerpen voor de vestingmuur gemaakt én drie ont-
werpen voor de inrichting van het gebied waar vroeger de Brugpoort stond. Deze varianten zullen richting de zomer in procedure worden gebracht. Besluitvorming zal naar verwachting in september 2025 plaatsvinden. Hieraan vooraf zal de gemeente nog een inloopavond organiseren.”
In antwoord op vragen van deze krant laat de woordvoerder van de gemeente weten dat de gemeenteraad besluit over de verschillende varianten: “Van de varianten wordt ook een begroting gemaakt, zodat de raad een afweging kan maken. De gemeentelijke bezuinigingen hebben geen invloed op het beschikbare krediet. Het moment van agendering schuift door naar ‘waarschijnlijk september’. ‘De bezuinigingen hebben geen invloed op het beschikbare krediet’’, zegt de woordvoerder.
Kritische vragen zijn er over de urgentie. Er is vanuit de gemeente te weinig communicatie en informatie over de ontwikkelingen. Het roept vragen op bij omwonenden. Bouwhekken staan al maanden rondom de afgegraven grond, maar wanneer wordt er begonnen? Parkeerplekken zijn hard nodig voor de drukke binnenstad met veel nieuwe appartementen en verlichting op de huidige parkeerplaatsen is nog steeds niet aanwezig. De woordvoerder: “We voelen al jaren urgentie. We willen

The Problem with People, zaterdag 22 en woensdag 26 maart 20 uur
Twee neven, een koppige Ier (Colm Meaney) en een cynische Amerikaan (Paul Reiser), worden na jaren weer samengebracht door een familiebegrafenis. Wat begint als een poging om oude vetes bij te leggen, loopt al snel uit de hand in een reeks hilarische misverstanden en avonturen door het adembenemende Ierse platteland. Terwijl hun botsende karakters zorgen voor scherpe humor en komische situaties, ontdekken ze onverwacht dat familie soms je grootste ergernis én je grootste zegen kan zijn.
A Real Pain, maandag 24 maart 20 uur
A Real Pain volgt de neven David (Jesse Eisenberg) en Benji (Kieran Culkin) die erg van elkaar verschillen. Om hun geliefde oma te eren, herenigen zij zich voor een rondreis door Polen op zoek naar hun Joodse roots. Het avontuur neemt een wending wanneer de oude spanningen van het excentrieke paar weer opduiken tegen de achtergrond van hun familiegeschiedenis. Echter, de twee (proberen te) doen alsof er niks aan de hand is. Het levert een grappige maar ook emotionele film op, een terechte Golden Globe én Oscar-buzz + 2 Oscars voor beste screenplay en beste acteur!
A Complet Unknown (foto), vrijdag 28 maart 20 uur
zo snel als mogelijk tot uitvoering van de plannen te komen. Van meet af aan was echter wel duidelijk dat de voorbereiding van dergelijke projecten omvangrijk is en dus veel tijd (jaren) vraagt. Onder andere Corona, de weersomstandigheden en het opsporen van de oude resten van de muren onder de grond hebben helaas geen gunstige invloed gehad op de voorbereidingen”.
Waar zitten de belemmeringen nu de uitkomsten van archeologische onderzoeken helder zijn? De woordvoerder: “Op dit moment focussen we ons op het uitwerken van de verschillende varianten, zodra hier besluitvorming over heeft plaatsgevonden gaan we een definitief ontwerp maken voor de eerste fase van het gebied. Daarvoor moeten we diverse onderzoeken laten uitvoeren die ongetwijfeld weer nieuwe uitdagingen met zich mee gaan brengen. De reden van deze vertraging is dat het lang heeft geduurd voordat we een passende offerte van West8 voor de werkzaamheden hadden. In de zomervakantie 2024 is hier met West8 een eerste overleg over geweest en uiteindelijk konden we pas in de loop van januari 2025 de opdracht verstrekken. In september 2024 was er nog de verwachting dat er op kortere termijn een passende offerte zou liggen en er dus ook op kortere termijn gestart kon worden.”
GRAVE - Badmintonclub Grave viert in april haar 50-jarig jubileum en nodigt iedereen uit voor een feestelijke open avond op donderdag 17 april 2025. Vanaf 19.30 uur zijn zowel jeugd als volwassenen welkom in sporthal Laco aan de Stoofweg in Grave. Of je nu een ervaren speler
bent of nieuwsgierig naar de sport, iedereen kan meedoen. Rackets zijn beschikbaar; neem wel zaalschoenen mee.
De club staat bekend om haar sociale karakter, waar gezelligheid en sportiviteit hand in hand gaan. Badminton is toegankelijk voor alle
leeftijden en niveaus. Bij Badmintonclub Grave kun je recreatief spelen, maar ook deelnemen aan competities tegen teams uit de regio. Meer info: Bcgrave.com. Kom 17 april langs en vier dit bijzondere jubileum mee. Nieuwe leden profiteren van een speciale jubileumactie.
New York, begin jaren ‘60. De 19-jarige Bob Dylan landt in een levendige muziekscene in een onrustige culturele tijd. Met zijn elektrische gitaar en zijn talent, is Bob gedreven om de koers van de Amerikaanse muziek te veranderen. Zijn bekendheid groeit snel maar ook zijn onrust en rebellie. Hij weigert in een hokje gestopt te worden en kiest ervoor om controversiële muziek te maken. Een schitterende rol van Timothée Chalamet over de opkomst van een van de meest iconische singer-songwriters uit de geschiedenis.
Volgende week: 29 maart en 2 april: When the Light Breaks 31 maart: A Complete Unknown 4 april: I’m Still Here.
Wil je het hele programma zien? Bezoek dan www.filmcafegrave.nl.
Het parochiecentrum is geopend van woensdag t/m vrijdag tussen 10 en 12 uur. Beschikbaar voor vragen, opgave misintenties of een kop koffie. Tijdens openingstijden telefonisch bereikbaar via 0486-475457. Email: parochiecentrum@st-elisabethparochie.nl. Het pastorale meldnummer is 06-2278 4974 (alléén voor echt dringende pastorale vragen, aanvraag ziekenzalving en doorgeven van uitvaart). E-mailadres pastoor Herman Schaepman: pastoorschaepman@ st-elisabethparochie.nl.
Vieringen door de week:
- 25 maart 10:30: Eucharistieviering in Catharinahof.
- 26, 27 en 28 maart 9:30: Eucharistieviering in Hemelvaartzaal St. Elisabethkerk.
Vieringen op zondag:
- 30 maart 10 uur: Eucharistieviering in St. Elisabethkerk. Met zang JCH.
- 30 maart 11:30: Eucharistieviering in Emmausklooster (Velp).
Mededelingen:
- Tot en met februari is er 18.510 Euro binnengekomen voor de Actie Kerkbalans. Dank aan alle gevers. Voor 2025 is het streefbedrag voor onze parochie 45.000 Euro. Uw gift is welkom op NL49 RABO 0117 1025 20 t.n.v. R.K. Parochie H. Elisabeth o.v.v. Actie Kerkbalans 2025.
- Op 6 april gaat de San Lorenzo gemeenschap officieel van start in het Emmausklooster in Velp. De minister-generaal van de kapucijnenorde en bisschop de Korte komen naar Velp. Er is om 10 uur een pontificale H. Eucharistieviering in de kloosterkerk. In Grave is er die zondag om 9 uur een stille H. Mis.

SCHAIJK – In hartje Schaijk, aan het Kapelanieplein 4, opende dinsdag 18 maart Bloemisterij Van der Linden de deuren. De nieuwe bloemenzaak wordt gerund door Aniek Schel-van der Linden en haar broer Jan van der Linden. Arena nam dinsdag een kijkje in de fraaie nieuwe winkel en sprak met Aniek en Jan over hun plannen. “Het is geweldig om te zien hoe iedereen betrokken is en ons steunt.”
Na het sluiten van DFM Bloemen en Planten in Schaijk in december 2024 ging het balletje aan het rollen. Aniek werkte bijna tien jaar bij de DFM-vestiging in Schaijk toen de vorige eigenaar haar vroeg of ze interesse had om er een eigen zaak te beginnen. “Ik hoefde daar niet lang over na te denken, want het was altijd al mijn droom om een eigen bloemenzaak te hebben”, vertelt Aniek. “Deze kans krijg ik nooit meer, en al helemaal niet op zo’n mooi centraal punt in het centrum van Schaijk, het dorp waar ik geboren en getogen ben en heel veel mensen ken.”
Vertrouwde gezichten
Met haar ruime ervaring weet Aniek precies hoe alles reilt en zeilt in de winkel. Ze heeft het oude team overgenomen, waardoor klanten vertrouwde gezichten blijven zien. “Allemaal mensen met groene vingers en passie voor bloemen. We zijn dus een ingespeeld team en weten wat we aan elkaar hebben”, legt ze uit.
Jan van der Linden
Aniek gaat dit avontuur niet alleen aan; haar broer Jan van der Linden ondersteunt haar op de achter-
grond. Jan is kinderarts in ziekenhuis Bernhoven in Uden en helpt zijn zus vooral op administratief en boekhoudkundig vlak. “Ik doe het vooral om mijn zus te helpen, een eigen bloemenzaak is haar grote droom. En het is heel leuk om samen te sparren over allerlei zaken”, zegt Jan. “Ook is het mooi dat we de naam Van der Linden gebruiken voor de bloemisterij, omdat we uit een echte Schaijkse familie komen.”
De rest van de familie deelt het enthousiasme. Broer Gijs helpt af en toe een handje mee en ook Anieks man Martijn en hun kinderen Liza en Guus staan vierkant achter het project. “Het is geweldig om te zien hoe iedereen betrokken is en ons steunt”, zegt Aniek.
Passie voor bloemen
Anieks passie voor het bloemenvak begon al op jonge leeftijd. Na de basisschool ging ze naar de Groenschool in Den Bosch, gevolgd door een bloemenopleiding bij Helicon (tegenwoordig Yuverta, red.) in Nijmegen. Ze deed ervaring op bij verschillende bloemenzaken en werkte bijna tien jaar bij DFM in Schaijk. Nu gaat haar droom van


Enkele weken geleden was het opeens lente in Nederland en dat is ook voor mij als eenzame wandelaar een leuke bijkomstigheid. Tenslotte is er geen stok achter de deur meer die mij enthousiasmeert om de paden op te gaan. Maar op deze dag piepte het zonnetje al vroeg door de vouwen van ons slaapkamergordijn als wilde de zon zeggen: “Kom op Jan, ik ben er al”.
De auto werd geparkeerd bij het Inkakamp en om de lezer enig idee te geven waar we waren, we liepen richting ‘Rooster Weversweg’. Dus de ingang van het natuurpark ‘De Maashorst’ en daar ligt een rooster in de weg om de koeien binnen te houden. Op dat punt gaan wij dan rechts langs die poort en vervolgen de weg langs ‘den draod’, dus langs de afrastering. Als je die route loopt heb je grote kans om dieren te zien. Je kunt daar heel ver de weides op kijken, er is altijd wel een Tauros of een paar Exmoorpony’s. Enkele jaren geleden werd daar vlak voor onze neus een veulen geboren en zoiets zijn de pareltjes van wat je te zien krijgt, temeer als je het ook nog kunt fotograferen.
een eigen bloemisterij in vervulling.
‘Kwaliteit en maatwerk’ Kwaliteit staat centraal bij Bloemisterij Van der Linden. De zaak biedt verse en persoonlijke bloemboeketten voor diverse gelegenheden en in verschillende prijsklassen. Bruids- en rouwboeketten worden op aanvraag gemaakt, waarbij telefonisch of per e-mail contact kan worden opgenomen om de wensen te bespreken. “We willen de kwaliteit van de bloemen hoog houden en maatwerk leveren”, benadrukt Jan.
‘Veel leuke reacties’
Op de eerste dag, dinsdag 18 maart, was het direct een drukte van belang in de winkel. Aniek vertelt: “We hebben al heel veel leuke en positieve reacties gehad van mensen, onder meer over de mooie bloemen en dat de winkel zo overzichtelijk is. En we hebben al veel bekende gezichten gezien.”
Openingstijden en contact Bloemisterij Van der Linden, gevestigd aan het Kapelanieplein 4 in Schaijk, is geopend van dinsdag tot en met zaterdag. Op dinsdag tot en met vrijdag van 9 tot 17.30 uur en op zaterdag van 9 tot 16 uur. Op maandag is de winkel gesloten. Voor bestellingen en meer informatie kun je terecht op de website www.bloemisterijvanderlinden.nl. Of neem contact op via info@bloemisterijvanderlinden.nl of 0644088111.
De lente was ook gearriveerd in ‘ons bosse’, de vogels floten in diverse talen. We zagen de buizerd volop in actie op de vlakte en… er was een kalfje geboren bij de familie Tauros. Verderop zagen we de Exmoorpony’s behoorlijk ruig met elkaar stoeien, kortom: genieten. Opeens werd de aandacht getrokken door het geluid van ijzer op ijzer en dat klinkt dan weer als een kerkklok. De veroorzakers waren twee ‘golden girls’ die met hun Nordick Walking-sticks for seniors (lichtbuis met een strikje) op de afrastering stonden te meppen. Toen ik riep dat ze dat niet moesten doen, riepen zij: “Ja maar ze maken mekaar kapot!”
Maar even uitleggen. Ook bij de jongens van de familie Exmoor was het lente en daardoor werd hun voortplantingsdrift geactiveerd. De meisjes moesten nog even wachten, want de heren moesten eerst laten zien hoe sterk ze zijn. Dus werd er heel ruig gestoeid. Een van die deugnieten kreeg het zelfs voor mekaar om zijn vriend/broer op zijn rug te krijgen. Een andere pony dook met zijn hoofd onder de borst van de rivaal waardoor die zijn evenwicht verloor. Daarna wachtte hij dan tot het slachtoffer weer overeind was en begon het spektakel weer opnieuw en ook de ene die slachtoffer was, bleek sterker dan wij dachten, want ook hij kreeg een ander paardje plat. Bij zoiets moet je stil zijn en vooral ook achter de draad blijven en het getimmer van de gouwe meisjes werkte als ophitsend voor de dieren. Als ik zoiets van zo dichtbij mag zien dan bevries ik, want zelfs je telefoon uit je zak halen wordt door die dieren opgemerkt en dan raken ze afgeleid. Na afloop van de voorstelling kwamen twee pony’s naar de draad en ik vind het dan zo moeilijk om ze niet over hun hoofd te aaien. Ze kijken je met die mooie oogjes aan en tenslotte heb ik als hondenman altijd koekjes bij me. Maar ik doe het niet, echt niet. Niks aaien en niks voeren, anders gaan ze straks aan het hek staan zeuren en wij moeten als bezoekers begrijpen dat we er meestal NIET zijn voor deze dieren. Ze zijn niet zielig en vermaken zich zonder ons heel prima. Ze hebben op de Maashorst voldoende te eten en als het niet zo is dan zorgen de verzorgers wel voor hooi of zo. De dames liepen richting het rooster en opeens zagen ook zij de twee taurossen die elkaar besprongen. Twee meisjes uiteraard, want Hercules de stier doet straks het echte werk! De dames met hun sticks hielden zich in en bovendien hadden ze hun wonderstok nodig om overeind te blijven.
Op de terugweg liepen we door natuurplek Nabbegat. Toen we daar de zandweg achter Has van Beusekom wilden oversteken, werd onze aandacht getrokken door een vogel die heel laag cirkeltjes boven het gras vloog. We wisten het zeker omdat we het geluid herkenden, dit moest een kieviet zijn. We besloten om voorzichtig door te lopen, want die kieviet bewaakt een ei en die kun je maar beter met rust laten.
’s Avonds zat bij het journaal dit bericht: “Geurt Elemans uit Ravenstein vindt eerste kievitsei’... potverdulleme!
Jan van As
ZEELAND - Toneelvereniging Excelsior uit Zeeland presenteert op zondag 6 april de kindervoorstelling ‘Kamperen kun je leren’ in zaal De Heische Tip. Deze vrolijke voorstelling is speciaal gericht op basisschoolkinderen, maar ook ouders,
grootouders en andere belangstellenden zijn van harte welkom.
Er zijn twee voorstellingen gepland: om 11 uur en om 14 uur. De entree bedraagt 5 euro en kaartjes zijn verkrijgbaar aan de zaal vanaf 30
minuten voor aanvang. De voorstelling duurt ongeveer 50 minuten.
Foto: v.l.n.r.: Ellen Laurenssen, Wendy Bens, Carin Kuijpers, Nelly van den Elzen, Janne Blom en Annelies Vollenberg.
ZEELAND – Op vrijdag 28 maart houdt Filmgroep Objectief een bijzondere filmavond in het Dorpshuis van Zeeland, waarbij het dorpsjournaal van 1986 centraal staat. Deze unieke gelegenheid






biedt inwoners de kans om herinneringen op te halen en een nostalgische blik te werpen op het dorpsleven van bijna vier decennia geleden.
Het dorpsjournaal van 1986 is een van de laatste producties die met smalfilm werd opgenomen, voordat de overstap naar videoapparatuur werd gemaakt. Destijds zag ook het logo van Objectief er anders uit, wat bijdraagt aan het nostalgische karakter van de vertoning. De film bevat een reeks onderwerpen die het rijke verenigingsleven en de gemeenschapszin van Zeeland in die tijd weerspiegelen. In deel 1 van het journaal komen evenementen zoals het Pony Concours, damesvoetbal, de Gildedag en touwtrekwedstrijden aan bod.



Daarnaast wordt stilgestaan bij het 25-jarig priesterschap van pastoor Jans, het klunen en activiteiten van tennisvereniging Set ‘77. Deel 2 richt zich op de drumband, de hofkapel en het bejaardenhuis PMC met de ‘Fiets mee 1986’ actie. Ook wordt aandacht besteed aan de onderscheiding van Jan Huvenaars en de verbetering van de Middenpeelweg.
Naast het dorpsjournaal presenteert Objectief een segment getiteld “oude dia’s in een nieuw jasje”. Hierin wordt het vredesspel (foto) ‘Zie de mens’ uit 1988, vastgelegd

door Ria Boley, getoond. Verder zijn er beelden van een kunstveiling ten behoeve van Amnesty International, het gouden huwelijksjubileum van het echtpaar Verstraten-Broeren (Puttelaar) en reclamedia’s van de Kerkstraat Noord uit vervlogen tijden.
De filmavond vindt plaats in het Dorpshuis van Zeeland en begint om 20 uur. De zaal is geopend vanaf 19.30 uur. Rond 21 uur is er een korte pauze voorzien. Deze avond belooft een reis door de tijd te worden, waarbij de rijke historie en het gemeenschapsleven van Zeeland in de jaren ‘80 opnieuw tot leven komen.
















#WINKELNINGRAVE – Lingerie Dessous in Grave heeft haar nieuwste collectie badmode binnengekregen. Eigenaresse Kelly (foto) presenteert een selectie van hoogwaardige merken die zowel stijl als comfort bieden. Klanten vinden bij haar badmode in de maten 36 tot en met 50. (foto’s: StadjeaandeMaas.nl)
Merken als Bomain, Chantelle en Cyell staan bekend om hun uitstekende pasvorm en de hoogwaardige kwaliteit van de stoffen. Voor dames die de voorkeur geven aan een beugel in hun badpak of bikini, is het merk Chantelle een aanrader. Het merk Cyell biedt stijlvolle ontwerpen met stevige cups, speciaal voor de grotere maten. Klanten worden van harte uitgenodigd binnen te lopen, de collectie te bekijken en aan
te passen.
Naast badmode biedt Lingerie Dessous tevens een assortiment kwalitatieve heren- en damessokken van het merk Falke. Deze sokken staan bekend om hun duurzaamheid en comfort, wat ze tot een uitstekende keuze maakt voor dagelijks gebruik.
Kelly heeft daarnaast een speciale selectie wandel- en sportsokken van Falke aan de collectie toegevoegd, ideaal voor klanten die op zoek zijn

naar extra ondersteuning tijdens hun sportieve activiteiten. De pas vernieuwde winkel is tevens het adres voor de mooiste nachtmode voor zowel dames als heren. En tot slot kun je er terecht voor kwaliteits-herenondergoed. Hiermee speelt Lingerie Dessous in op de behoefte aan comfortabele en stijlvolle nachtkleding en ondermode voor iedereen.
Lingerie Dessous is gevestigd aan de Hoofschestraat 15z in Grave. Voor vragen of meer informatie kunnen klanten contact opnemen via 0486472428 of kelly_ouwens@hotmail. com.
Lokaal aandacht voor
‘De Nieuwe Winkelstraat’ De Graafse binnenstad blijft telkens verrassen door het gevarieerde waren- en dienstenaanbod. Het centrummanagement richt zich daarbij met name op het landelijk bekende begrip ‘De Nieuwe Winkelstraat’. Al jaren geleden werd in Grave het idee omarmd om de binnenstad niet alleen te zien als
Openingstijden
Maandag t/m zaterdag van 08.00 tot 21.00 uur en zondag van 09.00 tot 19.00 uur








winkelgebied, maar veel meer als een verzamelplaats waar ontmoeten, beleven, recreëren en werken aan gezondheid hand in hand gaan met het doen van dagelijkse boodschappen. Het leek er even op dat binnenstadgebieden in omvang af zouden nemen toen het aantal winkels enigszins afnam, maar naar nu blijkt wordt de vrijkomende ruimte vooral ingezet om het aanbod in diensten en horeca uit te breiden. Een van de opvallendste locaties die binnenkort als winkel annex bedrijfsruimte beschikbaar komt, is het statige pand (foto) waar Gustav Interiors gevestigd was. Binnen ondernemerskringen wordt al nagedacht over de invulling van deze

unieke ruimte aan de Rogstraat 17. Wat zou het leuk zijn als het winkelaanbod in de Rogstraat weer snel up-to-date is nu daar tal van leuke ontwikkelingen plaatsvinden. Een gevarieerde horeca draagt ook in sterke mate bij aan het waardevol verblijven en ontmoeten. Alle aandacht is erop gericht nieuwe ondernemers te interesseren voor drie zaken die nu niet benut worden: Het Poortwachtershuis, Het Grote Broertje en Het Herboren Aapje. Centrummanagement Grave wil startende ondernemers dan ook graag helpen bij het vinden van de juiste locatie. Zij nodigen geïnteresseerden uit om eens een kijkje te nemen op de ondernemerswebsite www.vastgoedgroepgrave.nl.






























Jeroen Mol Uitvaartbegeleider bestaat 5 jaar

GRAVE – Vijf jaar is Jeroen Mol in Grave en naaste omgeving bezig met zijn Uitvaartonderneming: “Het is inderdaad een onderneming, maar ik houd niet zo van dat woord. Ik voel me en ben uitvaartverzorger. Alles wat ik daarbij doe, doe ik het liefst samen met familie of andere nabestaanden.”
“Samen is voor mij het kernwoord in mijn dankbaar beroep. Ik ga altijd voor een afscheid met een goed gevoel voor later. In perfecte harmonie, met een luisterend oor, goede raad en inleving in de plaats die de overledene in familie en omgeving innam. Het afscheid moet volgens mij persoonlijk zijn, volgens de wens van de familie. Een voorbeeld over de plaats waar de afscheidsdienst plaatsvindt. Dat kan in de kerk, het crematorium, maar ook in bijvoorbeeld in Catharinahof, of in De Brouwketel. Of in een zaal of op een plaats die de familie wil, of die de overledenen heeft aangewezen. Eigenlijk kun je zeggen dat alles mogelijk is, tenzij het bij wet is verboden. Een voorbeeld van een advies? Ik had een uitvaart van iemand met een Indische achtergrond. De koffie na afloop kwam ter spraken. Wat daarbij?. Ik opperde spekkoek. Dat was snel beslist en bleek ook een succes”.
“Ik ben geboren in Den Bosch, als zoon van Rinus + en Mien Mol-Wouters. Op mijn derde zijn we naar Grave gekomen. Hier groeide ik op deed er mijn scholen en begon er met mijn werkzame leven. Ik was jarenlang werkzaam in de voedingsindustrie: brood en vooral heerlijke vlaaien”. Die vlaaien werden wereldberoemd in Grave. Bij een verloting of bingo van verenigingen wist men zijn telefoonnummer uit het hoofd. Een gratis vlaai was een dankbare ondersteuning van de prijzenpot. Zijn sociaal gevoel was hier al ruimschoots aanwezig. “Ik was ook een vaste hulp bij de aankomst van Sinterklaas. Werd Piet, met hart en ziel”. Deze eigenschappen, sociaal en hard werken, waren goud waard voor zijn toenmalige werkgever. “En toen stapte ik over naar de uitvaartbranche. Voor velen een verrassing, maar zelf had ik er een heel goed gevoel bij. En weer gaf ik alles voor de laatste zorg die je mensen kunt geven”. Inmiddels zijn vijf jaren verstreken.
‘Samen maken we het verschil’ “In 2020, het begin van het coronatijdperk, heb ik de grote stap naar de zorg voor een passende uitvaart
gemaakt. Ik heb stage gelopen bij diverse uitvaartorganisaties en heb daar enorm veel geleerd. Maar omdat ik me zeer betrokken voelde, ging ik er ook zelf over nadenken. Wat zou er anders kunnen? Hoe zou ik het persoonlijker kunnen maken? Niet als ondernemer, maar als uitvaartbegeleider met ook eigen ideeën en vooral blijven openstaan voor de wensen van nabestaanden. En daar ook alle mogelijke moeite voor doen. Zoeken naar een persoonlijk en respectvol afscheid, in welke situatie een gezin of familie zich ook bevindt. Uiteraard is er een stappenplan. Na een overlijden moet familie eerst de huisarts bellen, die langskomt om het overlijden officieel vast te stellen. Daarna kan men mij bellen en dan begint ons overleg en bespreken we wat wensen zijn. De tijd tussen overlijden en uitvaart is kort en we moeten dan ook snel handelen. En vooral beslissingen nemen. Ik ben erbij om te kijken of alle zaken besproken worden en om adviezen te geven of suggesties te doen. Samen werken aan een goed afscheid. Ook op het oog kleine dingen kunnen belangrijk zijn en het verschil maken. De definitieve keuzes worden uiteindelijk door de familie/nabestaanden gemaakt en ik zorg voor een liefdevolle uitvoering daarvan. Soms werk ik daarbij samen met partners in de uitvaartzorg. We maken gebruik van elkaars expertise en kunnen elkaar aanvullen. Er is eigenlijk best veel samen met de familie te regelen. Van rouwkaarten , opbaring thuis of in mijn onlangs geopend Afscheidshuis, waarin ik het huiskamergevoel heb geprobeerd te creëren. Maar ook wensen ten aanzien van cremeren of begraven. Waar? En hoe? Daar gaat het om. Ook financiële consequenties kunnen worden besproken. Ik geef volledig openheid van zaken, zodat niemand na afloop voor verrassingen komt te staan”.
Toekomst
Jeroen: “Elke uitvaart komt bij me binnen. Ook al weet ik dat we alles samen tot in de kleinste details hebben besproken, wil ik graag dat de

Reek Bouwt spoort gemeente Maashorst aan tot snelle realisatie nieuwbouwwijk
REEK - Het bestuur van Reek Bouwt dringt aan op versnelling van de plannen voor een nieuwe woonwijk aan de Mgr. Borretstraat in Reek. In een recente brief aan het college van B en W van de gemeente Maashorst benadrukt voorzitter Chris School het belang van voortvarendheid en daadkracht in dit proces.
Reek Bouwt constateert met tevredenheid dat de gemeente Maashorst, zowel op ambtelijk als bestuurlijk niveau, aandacht heeft voor de gewenste woningbouw in Reek. De medewerking aan de uitwerking van het CPO-plan voor de locatie Scheenen 7 wordt gewaardeerd en gezien als een compliment. Daarnaast is er tevredenheid over de ondersteuning van het idee om het bouwplan zowel op het gebied van betaalbare woningbouw als duurzaamheid als voorbeeldproject voor de regio te positioneren.
familie/nabestaanden er een goed gevoel voor later aan overhouden. Na elke uitvaart bel ik even met mijn vrouw over hoe het gegaan is. En dan weer snel naar de familie. Ik blijf tijdens de uitvaart graag op de achtergrond. Maar tijdens de dagen vóór de uitvaart, ben ik er voor de familie. Ook is er natuurlijk nog de nazorg. Die bestaat bijvoorbeeld uit het ophalen van de as, een eventuele grafsteen, asbestemming, afwikkeling verzekering wat ik doe om de mensen hiermee niet lastig te vallen in hun periode van rouw”. Jeroen Mol zou er nog uren over kunnen praten. Het wordt steeds drukker. Hij heeft succes met zijn werkwijze. Maar hij doet niet meer dan hij aankan: “Ik neem een bepaald aantal uitvaarten aan. Als ik denk of voel dat een nieuwe aanvraag net iets teveel wordt, geef ik hem door naar een collega. Ik wil er voor 100% zijn voor de mensen die ik op dat moment aan het begeleiden ben”.
Freddy Klooté
De provincie heeft een subsidie toegekend, specifiek bedoeld om duurzaamheidsaspecten te verankeren in het project. Een voorwaarde hierbij is dat het plan regelmatig de publiciteit zoekt. In de brief wordt vermeld dat de gemeente Maashorst momenteel onderhandelt over de mogelijke aankoop van gronden aan de Mgr. Borretstraat voor de realisatie van een nieuwe woonwijk van circa 60 woningen. Eerder is afgesproken dat er eind 2024 duidelijkheid zou zijn over dit uitbreidingsplan. Reek Bouwt begrijpt dat de uitwerking tijd kost, maar dringt erop aan nu echt door te pakken. Er is immers afgesproken dat er in het eerste kwartaal van 2025 duidelijkheid zou zijn over de nieuwbouwwijk.
Chris School benadrukt: “Voor de leefbaarheid van onze kern Reek is de uitwerking van de woningbouwplannen van levensbelang.” Hij voegt daaraan toe: “We willen met klem wijzen op de noodzaak om nu echt door te pakken en vaart achter de zaak te zetten.”
Reek Bouwt verneemt graag zo snel mogelijk, maar uiterlijk in het eerstvolgende bestuurlijke overleg tussen wethouder Van Lankvelt en vertegenwoordigers van DOP, de laatste stand van zaken en wenst inzicht in de verdere planning.
Tevredenheid is er over de uitkomst van een ambtelijk overleg waarbij ook vertegenwoordigers van woningcorporatie Mooiland aanwezig waren. Er is overeenstemming bereikt om minstens 30% van de sociale huurwoningen in het nieuwbouwplan uit te voeren als grondgebonden woningen. Als referentieproject zijn hiervoor de woningen aan de westzijde van de Wethouder Zegersstraat ingebracht.
Het plan voorziet in verschillende woningtypen: rug-aan-rug-woningen, rijtjeshuizen, tweekappers en patio’s voor senioren. Wat er uiteindelijk wordt gebouwd, hangt af van de concrete belangstelling vanuit Reek en van mensen die willen terugkeren naar het dorp.


Meld je aan!
Van 18 maart t/m 31 maart
Stap
in een wereld vol verhalen op Het Hooghuis
Scan de QR-code voor meer informatie of kijk op onze site hethooghuis.nl

leven zoals u gewend bent







Heeft u of iemand in uw omgeving behoefte aan zorg op maat? Onze residentie biedt een fijn en veilig thuis voor ouderen met een (lichte) zorgvraag, zoals somatisch of geheugenproblematiek. Kom naar het koffie inloopmoment om sfeer te proeven en te ervaren wat onze woonzorglocatie te bieden heeft:
Appartementen voor senioren die zelfstandig met of zonder zorg willen wonen variërend tussen 33m² en 77m², allemaal met eigen badkamer.
Diverse luxe woonmogelijkheden, ook voor echtparen.
Tal van voorzieningen en activiteiten waarbij vrienden & familie altijd welkom zijn om aan te schuiven.
Kom naar ons koffie inloopmoment!
Sfeer proeven? Loop op elke eerste woendag van de maand vrijblijvend binnen tussen 10.00 en 12.00 uur. Er is dan volop gelegenheid om de locatie te bekijken, het zorgteam te ontmoeten én al uw vragen te stellen. Of u nu interesse heeft in wonen, werken of een andere reden heeft om ons te bezoeken, u bent van harte welkom voor een kop koffie of thee en een praatje.
Wilt u meer weten of liever een afspraak maken?
Scan dan de QR code of ga naar hetgoudenhart.nl
Interesse om te werken op één van onze woonlocaties? Ook dan bent u welkom tijdens het inkoopmoment.



www.schrijen.com
Boxmeer,
Scan voor informatie vrijblijvend





‘Expositie’ – “Koesteren”
Mijmeren bij oude foto’s van ‘ons’ durp. Bij het ontstaan van herinneringen en het koesteren van deze prachtige regio en Boxmèrse dorpsverhalen. Een tentoonstelling voor jong en oud, met veel liefde samengesteld.
Locatie: Schrijen, Hollesteeg 1a Boxmeer | v.a. 11.00 u.
Informatie: www.schrijen.com/agenda-2025
Scan de QR en bekijk deze en alle evenementen van 2025
Bezoek de agenda op onze website
We organiseren momenten van ‘samenzijn’ waarin herinnering, tijd en verbinding met en voor elkaar centraal staan.





Daar waar natuur, recreatie en herinnering samenkomen.
Dat wat mensen verbindt.

H. Antonius Abt Schaijk-Reek SCHAIJK: 23 maart: Eucharistieviering 9.30.
Misintenties: Jo en Marietje Derks-Jordens, Overleden familie Zwaans, Mientje Lammers-van Lier. 30 maart: Eucharistieviering 9.30. Misintenties: Mari van Schaijk, Henriëtte Spijkers-van de Burgt.
REEK: 22 en 29 maart: Geen Eucharistieviering.
MEDEDELINGEN: Vanwege de winterperiode zijn de ochtendvieringen tot 31 maart in de Pastorie om 9 uur. We zijn op zoek naar mensen die D’n Doper willen rondbrengen. Heb je interesse om dit 4x per jaar een paar straten te doen? Meld je dan bij de secretariaten.
St. Sebastianuskerk Herpen 29 maart: Om 19 uur m.m.v. het
Gemengd Koor voor: Ben (verj.) en Riek van der Veer-Berkers en Margreet de dochter.
Ravenstein-Huisseling-DemenDeursen-Neerlangel
HUISSELING: 30 maart: H. Eucharistieviering 11 uur.
Neerloon, St. Victor Overlangel, St. Ant. Abt
NEERLOON: 22 maart 19 uur: 3e zondag veertigdagentijd.
Eucharistieviering. Misintenties: Cor van Haren, Mar-Jeanne Poelmans, Jan Wadners, Jozef Arts en Willie Arts.
H. Jacobus de Meerdere Zeeland 30 maart 9 uur: H. Mis.
Misintenties: Jaargetijde Dien van den Elzen-Jansen, Lamber, Martien, Jan en ouders van den Elzen en familie Siroen en vrienden.
Misintenties 2 weken van te voren inleveren. Misintenties die voor maandagavond 18 uur ingeleverd zijn komen in de Arena. Brievenbus Jacobuszaal (Parochie). De bijdrage voor misintenties is 13 euro m.i.v. 1 januari 2025. Hierbij zijn extra namen inbegrepen. Nicola van Zeeland-Dekkers, 0486-451692.
SCHAIJK - Parochie H. Johannes de Doper houdt 3 april om 19.30 uur een bijeenkomst voor parochianen uit Neerloon, Overlangel, Keent, Ravenstein, Huisseling, Deursen-Dennenburg, Demen, Dieden, Neerlangel, Herpen, Koolwijk, Schaijk en Reek. De bijeenkomst in De Phoenix in Schaijk staat in het teken van vooruit kijken.
stil. Er wordt hard gewerkt op allerlei fronten, en we kijken daarbij nadrukkelijk naar de toekomst van onze parochie. Wat voor een parochie willen we zijn en hoe gaan we daar samen met de parochianen inhoud aan geven. Deze avond willen we daarvoor benutten. Natuurlijk wisselen we informatie uit, maar we gaan ook met elkaar aan de slag.

Pastoor Jacques Grubben (foto) over dit initiatief: “We zitten als parochiebestuur en pastoraal team niet
Deze avond is weer een stap in de dialoog en leidt naar verwachting ook tot hernieuwde energie.”
OSS - Nieuw liefdesgeluk vinden na een scheiding of verlies is prachtig, maar in een samengesteld gezin brengt dat uitdagingen met zich mee. Hoe ga je om met de kinderen van je partner? Hoe zorg je ervoor dat je gezin een eenheid wordt? Volksuniversiteit Oss houdt de cursus ‘Uitdagingen van het samengesteld gezin’, waarin deelnemers praktische
inzichten en handvatten krijgen om hun samengesteld gezin te laten slagen. De cursus, gegeven door Anna Rensen, pedagoog, scheidingscoach en ervaringsdeskundige, vindt plaats op 2, 16 april, 7, 21 mei en 4 juni van 19.30 tot 21.45 uur in de voormalige John F. Kennedyschool, Vlasakkers 1 in Oss. Kosten 135 euro. Inschrijven: Volksuniversiteitoss.nl.


Tijdens een rondleiding, die ik voor externe bezoekers in de gevangenis verzorgde, werd mijn aandacht getrokken door enkele mannen die in de recreatiezaal bezig waren met opruimen. De recreatiezaal is een ruimte op de leefafdeling waar gedetineerde mannen bijvoorbeeld een soepje kunnen opwarmen, een spelletje kunnen spelen, een potje kunnen biljarten of kunnen kaarten met elkaar. Het gebruik maken van de recreatieruimte mag alleen op een vastgesteld uur binnen het vaste en repeterende dagprogramma. De rest van de dag is deze ruimte niet toegankelijk voor de mannen. Ze verblijven dan op hun eigen cel of zijn aan het werk op de arbeid. Omdat er veel gebruik wordt gemaakt van dat uurtje, is het altijd een gezellige drukte in de recreatieruimte.
Er stond een man naar ons te kijken. Ik liep naar hem toe om te vragen hoe het met hem ging en wat hij had gekookt. Hij begon meteen uitgebreid te vertellen. Hij vertelde, zonder te weten dat ik de directeur was, dat de directeur echt niet snapte dat de winkellijst uitgebreid zou moeten worden. Het allerliefste met vers vlees en groenten zodat hij eens iets anders zou kunnen koken. De winkellijst is een lijst waar gedetineerden een keer per week boodschappen, zoals shag, postzegels en kruidenierswaren kunnen bestellen. Wel op eigen kosten uiteraard. Bovendien begreep de directeur volgens hem niet dat het heel erg was dat hij niet overgeplaatst kon worden naar de gevangenis van zijn keuze. Hij was bovendien van mening dat het belachelijk was dat hij met een andere gedetineerde op een cel moet zitten en dan ook nog niet eens zelf kan kiezen met wie hij op die cel moet zitten. Hij beklaagde zich tegen mij dat dit iedere dag ten koste gaat van zijn privacy. Volgens hem verzwaarde dit onnodig zijn straf. Kortom; de man was van mening dat de directie van Grave en die hierboven totaal geen rekening met hem hielden.
Op mijn vraag wie die hierboven dan zijn, gaf hij te kennen dat hij sprak over onze politieke leiders in Den Haag die volgens hem het beleid bedachten. Hij gaf aan dat dat de brave burgers niets meer te zeggen hebben. Een voorbeeld hiervan was dan volgens hem ook dat hij niet overgeplaatst kon worden omdat alles was wegbezuinigd. Hij gaf aan dat hij, sinds hij in de gevangenis in Grave zat, helemaal niets meer te zeggen had.
Toen ik hem vroeg of hij zichzelf, ondanks dat hij al geruime tijd in de gevangenis zat, ook zag als brave burger begon hij hard te lachen.
Hij zei met een knipoog: “Jazeker! Dat ben ik de meeste tijd…, maar soms ook niet!”
Carla Wijnhoven, vestigingsdirecteur PI Grave

Wanneer een dierbare
Wanneer een dierbare
komt te overlijden, staat de wereld even stil. Ik zorg ervoor dat u er niet alleen voor staat en ben uw steun en toeverlaat in de voorbereiding, tijdens en na de uitvaart.
komt te overlijden, staat de wereld even stil. Ik zorg ervoor dat u er niet alleen voor staat en ben uw steun en toeverlaat in de voorbereiding, tijdens en na de uitvaart.
Wencke Niks-Leussink
Wencke Niks-Leussink
‘In een wereld die steeds verder polariseert, is openbaar onderwijs belangrijker dan ooit’

REGIO – 17 tot en met 21 maart staat in het teken van de Week van de Openbare Scholen. Bedoeld om de kwaliteiten van het openbaar onderwijs, ‘daar waar verhalen samenkomen’, méér onder de aandacht te brengen. En dat is nodig, vinden ook Hanneke Bens, Marieke Jansen – Kellendonk en José Martens van Invitare Openbaar Onderwijs. “Lang niet iedereen weet wat openbaar onderwijs écht inhoudt. Terwijl het belang ervan, in een wereld waar verschillen steeds vaker leiden tot verdeeldheid, alleen maar groter wordt.”
Het verschil tussen openbare en bijzondere scholen vervaagt. “Het lijkt allemaal gewoon meer op elkaar dan vroeger”, vindt Marieke. “Of moet ik zeggen, alle scholen zijn op openbare scholen gaan lijken?”
Toch is er nog altijd een wezenlijk onderscheid. José: “Dat zit ‘m vooral in de manier waarop we naar kinderen kijken, vanuit ons DNA. Een voorbeeld: burgerschapsonderwijs is inmiddels verplicht voor elke school in Nederland. Maar op een openbare school is dit al zó vanzelfsprekend, dat daar geen methode of lespakket voor nodig is. We weten niet beter dan dat we kinderen leren verantwoordelijk te zijn voor zichzelf én de ander. En dat iedereen meedoet, ongeacht geloof, cultuur of achtergrond. Prachtig, toch?”
Mini-maatschappijtjes
Ze vervolgt: “Juist nu de maatschappij zo verhardt en polariseert, is openbaar onderwijs belangrijker dan ooit. Op onze scholen komen kinderen uit alle hoeken van de samenleving samen. En ieders verhaal doet ertoe. Kinderen ontdekken hier wie ze zijn, waar ze voor staan en dat hun stem ertoe doet. Maar ze leren ook: je bent niet alleen op de wereld, die ander hoort er net zo goed bij.”
Hanneke: “Eigenlijk zijn onze scholen minimaatschappijtjes op zich. Kinderen leren hier het leven, met elkaar. En dan niet als voorbereiding op het ‘echte’ leven, want school ís het leven. Dat betekent ook dat er wel eens conflict is, bijvoorbeeld omdat je het niet met elkaar eens bent. Helemaal niet erg, want als je in dialoog blijft brengt je dat vaak juist dichter bij elkaar. Als je dan door de school loopt en ziet dat dit ook écht werkt, dan ben je hartstikke trots.”
“Onbekend maakt onbemind”, vult Marieke aan. “Daarom is het zo belangrijk om uit je bubbel te stappen.
En elkaar te ontmoeten. Ik durf echt te stellen dat dat begínt bij het openbaar onderwijs.”
Ook typisch openbaar onderwijs: kijken naar het kind en álles wat bij het kind hoort. Marieke: “Wat je in de klas van het kind ziet, is maar een deel van het verhaal. Je wil ook verbinding maken met wat er ‘aan de binnenkant’ gebeurt. En met wat er verder allemaal nog speelt in hun leventje. Daarom betrekken we ook ouders heel nauw bij alles wat we doen.”
Hanneke: “Alles wat kinderen meemaken, nemen ze mee de school in. Als er buiten school iets gebeurt, zoals een ruzie op een kinderfeestje, dan kunnen we niet zeggen: dit is niet van ons. Want als het impact heeft op het kind, dan moeten we er iets mee.”
Het levert een vaak hechte band op tussen de school en thuis. Marieke: “Ouders voelen zich niet alleen betrokken, maar ook verantwoordelijk voor de school en de gemeenschap die we samen creëren.” Zoals na de kerstviering vorig jaar, toen ouders spontaan besloten de hele school mee op te ruimen. “Toen ik van een ouder een bezem wilde overnemen, en zei dat dit echt niet hoefde, zei ze: ‘Marieke, dit is ook mijn school, hè.’ Dat vond ik zó tof.”
Toch is openbaar onderwijs niet altijd een vanzelfsprekende keuze. Marieke: “Ouders hebben er soms een wat zweverig beeld bij. Samen kumbaya zingen in de kring, dat idee. Of ze associëren openbaar onderwijs met de vrije school, terwijl dat toch echt een ander onderwijsconcept is.”
Hanneke: “We maken juist heel duidelijke afspraken over wat we van elkaar verwachten en hoe we met elkaar omgaan. En we begrenzen. Stevig ook, als dat nodig is. Respectloos gedrag bijvoorbeeld, daar zijn we uitgesproken tégen. Inclusie betekent niet dat alles maar moet

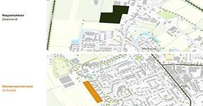
Maashorst: honderden vluchtelingen in Molenaarstraat Schaijk en Repelakker Zeeland
MAASHORST - De gemeente Maashorst wil op drie locaties, waaronder in de Molenaarstraat in Schaijk en op de Repelakker in Zeeland, honderden vluchtelingen gaan opvangen. Dat maakte het college van B en W donderdagmiddag bekend.
De gemeente wil de opvang van vluchtelingen combineren met oplossingen/woonvormen voor (autochtone) woningzoekenden. “Op die manier kunnen de nieuwe locaties bijdragen aan de woningbehoefte, vooral onder starters op de woningmarkt”, aldus het college. Met haar plannen zegt het college “tegemoet te komen aan de wensen van inwoners om verschillende doelgroepen te combineren.”
Informatiebijeenkomst op 9 april
kunnen. Het betekent juist dat we een veilige omgeving creëren, door duidelijke grenzen te stellen.”
Differentiëren
Een ander vooroordeel: dat het openbaar onderwijs de opvangplek is voor de ‘moeilijke’ kinderen, voor de lastpakken. José: “Het klopt dat als kinderen op een andere school vastlopen, ze hier vaak wél een plek vinden. Wij geven een kind nu eenmaal niet op, dat is geen optie. Ook geloven we niet in lastige kinderen. Gedrag heeft altijd een oorzaak. Daar gaan we naar op zoek want dan kun je er wat mee. Je ziet kinderen hier vaak dan ook helemaal opbloeien.”
Hanneke: “Onze mensen zijn experts in differentiëren. De focus ligt altijd op de persoonlijke groei van ieder kind. Of het nu gaat om extra zorg, sociale ondersteuning of juist het uitdagen van een kind dat meer wil en kan. Elk kind krijgt hier de kans om zich voluit te ontwikkelen, op het eigen niveau.”
Marieke: “In sollicitaties geef ik ook mee dat werken op een openbare school écht wel iets anders van je vraagt, als leerkracht. Je moet stevig in je schoenen staan en pedagogisch ijzersterk zijn. Hier werken stuk voor stuk vakmensen. En juist dát maakt ons onderwijs buitengewoon goed.” (Bron: Invitare)
Foto: Hanneke Bens (links) is schoolleider op Openbare Basisschool Hartenaas in Grave. Marieke Jansen-Kellendonk (rechts) is schoolleider op Openbare Basisschool De Bonckert in Boxmeer. Beide scholen maken deel uit van Invitare, een organisatie voor primair openbaar onderwijs met 9 scholen. Ook José Martens (midden) was lange tijd schoolleider bij Invitare. Inmiddels is zij verantwoordelijk voor de kwaliteitszorg binnen de stichting. Meer info: www.invitare.nl.
Of er in Schaijk en Zeeland daadwerkelijk animo bestaat voor het ‘combineren van doelgroepen’ zal onder meer blijken tijdens de informatiebijeenkomst voor inwoners die staat gepland voor woensdag 9 april. Burgemeester Hans van der Pas: “Bij de verdere uitwerking worden de raad en inwoners betrokken. Omwonenden ontvangen een brief met uitnodiging, maar iedereen is welkom. Op donderdag 10 april organiseren we een informatieavond voor de gemeenteraad. Later volgen nog bijeenkomsten per locatie, ook wel omgevingsdialogen genoemd.” Tijdens de informatiebijeenkomst op 9 april wordt het voorstel voor de nieuwe woon- en opvanglocaties toegelicht. Ook kunnen deelnemers aan de bijeenkomst vragen stellen en eventuele zorgen delen. “De gemeente heeft wellicht nog niet op alle vragen antwoord, maar kan vragen en suggesties meenemen in de verdere uitwerking. Daarbij staat niet ter discussie of we wel of niet vluchtelingen moeten opvangen. Dat is een wettelijke verplichting en die verantwoordelijkheid nemen we in Maashorst serieus. Maar uiteraard is er alle ruimte om vragen te stellen, suggesties te doen en zorgen te uiten”, aldus de burgemeester. Aanmelden voor de informatiebijeenkomst kan via asielopvang@gemeentemaashorst.nl. Vermeld naam en adres van degenen die komen. De drie locaties die de gemeente wil gaan ontwikkelen zijn:
* Boekelsedijk in Uden (voor ongeveer 500 bewoners, waaronder in elk geval 300 asielzoekers)
* Repelakker in Zeeland (voor ongeveer 250 bewoners)
* Molenaarstraat in Schaijk (voor ongeveer 250 bewoners).
Op de 3 locaties wil de gemeente verschillende doelgroepen combineren. De locaties kwamen als meest geschikt naar voren in het onderzoek dat de gemeente de afgelopen maanden deed. “Daarbij is specifiek gezocht naar mogelijkheden om vluchtelingenopvang te combineren met huisvesting voor andere woningzoekenden, zoals jongeren en starters. De voorgestelde locaties voldoen aan de uitgangspunten die de gemeenteraad vaststelde voor de opvang van vluchtelingen en ze bieden voldoende ruimte om diverse typen woonruimte te combineren. Ook voldoet de gemeente met deze locaties aan de wensen die inwoners inbrachten via de dialoogsessies, online enquête en het draagvlakonderzoek in 2024. Velen vroegen de gemeente daarbij om verschillende doelgroepen bij elkaar te huisvesten, en de opvang zoveel mogelijk te verspreiden over de kernen, op korte afstand van voorzieningen en woningen.”
In totaal moet Maashorst zo’n 750 vluchtelingen opvangen. “Daar zijn we als gemeente aan gehouden door de spreidingswet en regionale afspraken. Op dit moment worden al zo’n 450 mensen opgevangen in de gemeente: 300 asielzoekers en 150 Oekraïners. Voor een groot aantal mensen moeten we dus nog ruimte vinden.”
Daar komt bij dat de huidige asielopvanglocatie in het Van der Valkhotel in Uden per 1 oktober 2026 eindigt. Dat is bij de start van de opvang zo afgesproken. Burgemeester Van der Pas: “Dé perfecte locatie voor het realiseren van vluchtelingenopvang en woonruimte bestaat niet. Daar zijn we ons van bewust. Toch moeten we een keuze maken om te voorkomen dat er volgend jaar vluchtelingen letterlijk op straat staan of dat er onnodig met mensen wordt ‘geschoven’.”
Het voorstel is om op de drie locaties gefaseerd tijdelijke woon- en opvangvoorzieningen te gaan ontwikkelen. Het voorstel wordt nu voorgelegd aan de gemeenteraad. Die bespreekt het in zijn vergaderingen van april en mei. Daarna wordt het voorstel verder uitgewerkt tot concrete ontwikkelplannen in samenwerking met onder andere het COA. Met woningcorporaties gaat de gemeente in gesprek over wat hun rol in deze ontwikkeling zou kunnen zijn. Ook volgen er nog meerdere momenten waarop de gemeente in gesprek gaat met omwonenden van de locaties, als onderdeel van de procedure aanvraag omgevingsvergunning. Meer info: www.gemeentemaashorst.nl/asielopvang.
landvancuijk.nl
Week 12 • vrijdag 21 maart 2025
Bezoekadres: Louis Jansenplein 1 • 5431 BV Cuijk • 0485 854 000 • landvancuijk.nl
Van 8 tot en met 14 maart 2025 stond het Land van Cuijk in het teken van bomen, groen en een duurzame toekomst. De Bomenweek was een week vol activiteiten. Inwoners, scholen en groenprofessionals werkten samen aan een groener en duurzamer Land van Cuijk.
Een week vol groene acties en betrokkenheid
Het jaarthema 2024 van het Nationaal Comité 4 en 5 mei is “Vrijheid vertelt: opmaat naar 80 jaar vrijheid”. Hiermee vraagt het comité – in het jaar dat de lustrumviering van 80 Jaar Vrijheid in september van start gaat – aandacht voor de littekens die de Tweede Wereldoorlog achterliet en die nog steeds zichtbaar zijn. Vrijheid is onlosmakelijk verbonden met de vrijheid van de ander. Onder andere de oorlog in Oekraïne en de onrust in het Midden Oosten tonen hoe kwetsbaar vrijheid is. Het is daarom belangrijk stil te staan bij dit thema.
De week begon op 8 maart met het uitdelen van gratis bomen aan inwoners door IVN. Op 9 maart was het NK Maasheggenvlechten. Een bijzondere demonstratie van deze eeuwenoude techniek. Het was een unieke ervaring voor het college en onze inwoners. Zij konden zelf proberen een heg te vlechten.

Boominfodag
Zaterdag 4 mei om 20.00 uur is het in de gemeente Land van Cuijk op veel plekken stil. Herdenkingscomités en dorpsraden geven rond dat tijdstip op een waardige manier inhoud aan de Nationale Dodenherdenking. Leden van het college van burgemeester en wethouders en raadsleden houden bij de verschillende monumenten in de gemeente toespraak en leggen een krans.
Op 13 maart was het tijd voor de Nederlandse Boominfodag. Een bijeenkomst met lezingen voor boomspecialisten, groenprofessionals en beleidsmakers. Hier werd kennis gedeeld over bomen en klimaatadaptatie. Ook werden er nieuwe inzichten gepresenteerd over de rol van bomen in een veranderend klimaat.
Met de Lintjesregen zijn ook dit jaar in Land van Cuijk weer veel mensen in het zonnetje gezet. In Nederland is een Koninklijke onderscheiding de hoogste blijk van waardering voor inzet voor de medemens en voor de samenleving. Kent u ook iemand die een lintje verdient? U kunt hem of haar voordragen. Op www.lintjes.nl vindt u veel informatie. Neem vooraf altijd eerst
een duurzamer Land van Cuijk. Maar we zijn nog niet klaar! We blijven ons inzetten voor vergroening en het creëren van een klimaatbestendig Land van Cuijk. Bedankt aan iedereen die heeft meegewerkt aan het succes van deze Bomenweek!
schoolplein. Ook hebben we inwoners gevraagd hun bijzondere bomen te delen.
Laatste boomfeestdag
Iedereen is van harte welkom op de verschillende herdenkingslocaties in Land van Cuijk. Kunt u niet deelnemen? Toon uw betrokkenheid dan door de Nederlandse vlag halfstok te hangen. Wilt u meer weten? De locaties en aanvangstijden van de herdenkingen vindt u hieronder. De verschillende programma’s vindt u op de website van de gemeente: www.gemeentelandvancuijk.nl/dodenherdenking-2024.
Daarnaast was er voor de kinderen een kleurwedstrijd. Hiervan hebben we veel mooie tekeningen ontvangen. De winnende school, de Nienekes uit Cuijk, zal binnenkort hun gewonnen boom feestelijk planten op het nieuwe
Kern Locatie
Op 10 maart was in Haps de laatste Boomfeestdag van het plantseizoen 2024 - 2025. Leerlingen van groep 4 van basisschool De Bongerd plantten enthousiast bomen en een bosplantsoen bij het Ommetje op bedrijventerrein
Laarakker. Dit was een leerzame ervaring waarin kinderen spelenderwijs meer leerden over de waarde van natuur.
Beugen Parochiekerk Maria ten Hemelopneming en Herdenkingssteen bij kerk.
Boxmeer Petrusbasiliek, Hotel Riche en Boxmeers Oorlogsmonument Rapenstraat
Aanvang programma
uur
Cuijk Martinuskerk, Joods monument Maasveld, Barmhartige Samaritaan Stationsplein
Woensdag 27 maart, 14.30 uur -16.30 uur Bibliotheek Cuijk
Grave Historisch Stadhuis, Torenplein en Synagoge
Geld maakt niet gelukkig, zegt het spreekwoord maar zorgen over geldzaken kunnen zeker maken dat je je minder gelukkig voelt. Om je tips en tricks te geven die jou helpen je zekerder te voelen over je financiën en je de weg te wijzen naar de juiste organisaties die je hierbij kunnen ondersteunen, organiseert de bibliotheek in samenwerking met de gemeente Land
Landhorst Dorpshuis De Stek, Landhorst, standbeeld de Peelwerker
Maashees Monument voor omgekomen Dorpsgenoten op plein voor Antoniuskerk
van Cuijk en de Rabobank opnieuw een informatiemiddag over geldzaken. Met sprekers, muziek en zang, een leuke geldquiz en een informatiemarkt van organisaties die helpen bij geldzaken, belooft dit een gezellige en informatieve middag te worden.
Mill Myllesweerd, St. Willibrorduskerk, Herdenkingsmonument Acaciahof
Oeffelt Parochie Maria, Moeder van de Kerk, Oeffelt
uur
uur
uur
uur
Deelname aan deze middag is gratis, meld je wel vooraf even aan. Ga naar www.biblioplus.nl/agenda en zoek in de agenda naar 27 maart. Inloop vanaf 14.00 uur.
Overloon H. Theobalduskerk, 14 Oktoberplein, Bevrijdingsmonument 18.45 uur
Sambeek Monument Torenstraat 54 19.30 uur
VierlingsbeekGroeningen Koningskerkje, Oorlogsmonument 19.00 uur
Katwijk (12 mei)

H. Martinuskerk Katwijk en Monument voor Nederlandse Militairen 10.00 uur
Wegomleidingen en afsluitingen bij doorgaande wegen door de bebouwde kom, provinciale en rijkswegen, spoorwegovergangen of bruggen worden gepubliceerd op deze gemeentepagina.
Kijk voor overige actuele
wegwerkzaamheden op: www.gemeentelandvancuijk.nl/wegwerkzaamheden
De Grote Afsluiter: 90.000 Bomen De afsluiting van de Bomenweek was een symbolisch moment: het planten van de 90.000e boom. Wethouder Maas plantte samen met de winnaar van een speciale wedstrijd de boom op de Appelgaard in St Agatha. Deze boom markeert het behalen van een ambitieus doel: het planten van 90.000 bomen. Één boom voor elke inwoner van Land van Cuijk. Een indrukwekkende stap in onze gezamenlijke inzet voor een groenere, gezondere en klimaatbestendige toekomst.
contact op met de afdeling Kabinet van de burgemeester, telefonisch via 0485854000 of via een mail aan kabinet@landvancuijk.nl De medewerkers kunnen u helpen met het aanvraagproces. Aanvragen kunnen het hele jaar door worden ingediend, maar voor de lintjesregen 2025 moeten deze vóór 1 juni 2024 zijn ingediend bij de gemeente.
Het nieuwe kunstencentrum voor de gemeente Land van Cuijk krijgt de naam Louis. De naam is gekozen uit meer dan honderd inzendingen die de gemeente heeft ontvangen. Inwoners was gevraagd mee te denken over een naam voor het kunstencentrum dat het aanbod van kunst- en cultuurlessen samenbrengt.
en kleinkunstenaar Louis Davids als inspiratiebron voor iedereen die zelf muziek maakt of bijvoorbeeld in een musical wil spelen.
Meld je aan

Met de 90.000 bomen dragen we bij aan
De naam Louis verwijst in eerste instantie naar Louis Jansen, voormalig burgemeester van Cuijk. Dit jaar is het precies 70 jaar geleden dat hij het initiatief nam voor de oprichting van een streekschouwburg, de huidige Schouwburg Cuijk. Nu is er dus opnieuw een cultureel initiatief voor de streek, waarmee zijn inzet voor cultuur in het Land van Cuijk wordt voortgezet.
De inzender van de winnende naam mag als dank een jaar lang gratis een cursus volgen bij Louis. Momenteel wordt hard gewerkt aan de inrichting van het kunstencentrum, dat na de zomer van start gaat met cursussen op het gebied van onder meer muziek, zang en musical. Doel is zoveel mogelijk kinderen en volwassenen de kans te geven om kunst en cultuur te beoefenen en ervaren.
De gemeente Land van Cuijk heeft recent het beleid “duurzame pachtgrond uitgifte”, bedoeld voor de pacht van gronden voor een korte periode, vastgesteld. Vaak gaat het om percelen landbouwgrond, die op termijn ook voor andere doeleinden kunnen worden ingezet (woningbouw, natuurontwikkeling, ruilgrond o.i.d.). Zolang er nog geen concrete plannen zijn, worden ze kortdurend verpacht. De looptijd van pacht voor de korte duur was tot op heden beperkt tot 1 jaar.
De naam Louis eert niet alleen de lokale historie van de gemeente op cultureel gebied, maar refereert ook aan de vele kunstenaars en artiesten met deze naam. Zo zijn er trompettist Louis Armstrong, de schrijver Louis Couperus
Onlangs is er een eerste inschrijfperiode geweest. Niet alle percelen zijn na deze inschrijvingsronde gegund. Daarnaast zijn er nog enkele andere percelen beschikbaar gekomen uit reguliere pacht. De beschikbare percelen worden via een openbare procedure verpacht.
Louis is nog op zoek naar gediplomeerde kunstvakdocenten en overige aanbieders van kunst- en cultuurcursussen. Heb je interesse om lessen te verzorgen voor het nieuwe kunstencentrum? Stuur dan een e-mail met je cv naar colette@kunstencentrum.nl. Je ontvangt dan zo snel mogelijk meer informatie.
De gemeente gaat met ingang van 2025 de beschikbare landbouwpercelen op een andere wijze geliberaliseerd
De oefening wordt gehouden in het kader van training voor militairen van de Koninklijke Landmacht. Praktisch gezien houdt dit in dat de militairen mogelijk met voertuigen en ook te voet opdrachten uitvoeren. Deze activiteiten zullen naar alle waarschijnlijkheid bij dag en nacht plaatsvinden.
Voor algemene klachten waarbij geen sprake is van schade, kunnen burgers/ omwonenden contact opnemen met de Sectie Communicatie van
in pacht uitgeven. De looptijd van de pachtovereenkomsten wordt thans in principe bepaald op 6 jaar. Echter bij de nu beschikbare percelen zijn er een aantal percelen bij waarvan nu op voorhand al duidelijk is dat deze maar voor één jaar verpacht kunnen worden in verband met concrete plannen voor deze gronden. Lees verder op onze website: www.gemeentelandvancuijk.nl/ pacht2024
13 Lichte Brigade. Dit kan via mail: communicatie.13LTBRIG@mindef.nl
Indien er door de oefening schade is ontstaan dan kunt u dit onder vermelding van de militaire eenheid zoals kenteken voertuig, datum en tijd, plaats, soort schade etc. melden aan:
Sectie Claims Ministerie van Defensie
Postbus 90004
3509 AA Utrecht
Telnr: 088-9562951
Email: JDVclaims@mindef.nl

Vanaf 1 maart tot en met 30 april is het weer de periode om de aangifte inkomstenbelasting in te vullen. Dit is voor veel mensen een lastige klus. Want wat mag je nu wel of niet aftrekken, hoe zit het met de zorgkosten en zijn er misschien andere teruggaven waar je recht op hebt? Op deze speciale pagina belastingaangifte geven we tips en laten we zien waar je in het Land van Cuijk terecht kunt voor hulp bij je belastingaangifte. Want leuker kunnen we het niet maken, wel makkelijker!
Heb jij ondersteuning nodig bij je aangifte inkomstenbelasting over 2024 en/of voorgaande jaren? Of heb je vragen over toeslagen (zorgtoeslag, huurtoeslag, kinderopvangtoeslag, kindgebonden budget)? Dan kun je kosteloos terecht bij de Sociaal Raadslieden van Sociom. Maak een afspraak via srw@sociom.nl of neem contact op via 0485-700500. Er wordt dan zo snel mogelijk een afspraak met je gepland op een Sociom locatie bij jou in de buurt.



Om voor de ondersteuning van de Sociaal Raadslieden in aanmerking te komen, wordt gekeken naar inkomen en vermogen. Als je buiten de gestelde voorwaarden valt maar wel kosteloos ondersteuning nodig hebt bij het doen van je belastingaangifte, kun je telefonisch contact opnemen met de Belastingdienst voor het maken van een afspraak via 0800-0543 of mailen via afspraken.belastingdienst.nl


Consumentenbond
ANBO-PCOB tipgids
In de tipgids van ANBO-PCOB staat veel informatie die kan helpen bij het invullen van de belastingaangifte. Bijvoorbeeld welke zorgkosten aftrekbaar zijn en welke niet.
De tipgids is gratis aan te vragen via de website van de Algemene Nederlandse Bond voor Ouderen. Ga naar https:// Anbo-pcob.nl/thema/belasting of scan de QR code.
Op de website van de Consumentenbond wordt een stappenplan gegeven over hoe je de belastingaangifte het beste kunt aanpakken. Met tips om het maximale uit je aangifte inkomstenbelasting te halen. Ga naar www.consumentenbond.nl en zoek op zelf aangifte doen of scan de QR code.

Op alle Bibliotheeklocaties in Land van Cuijk staan computers met daarop het belastingprofiel. Je kunt hier gratis en veilig je belastingaangifte doen en ook gratis de aangifte uitprinten. De medewerkers van het Informatiepunt helpen je bij vragen of maken een afspraak voor hulp bij jouw belastingaangifte bij één van de betrouwbare partners. De computers en de ondersteuning zijn de hele belastingperiode beschikbaar, dus tot en met 30 april.

Belastingspreekuur
De Bibliotheek organiseert op alle vestigingen een belastingspreekuur. Overal komt een specialist langs die ter plekke helpt met het invullen van het belastingformulier. Het is wel belangrijk om tijdig een afspraak met de specialist te maken, zodat er op dat moment ook tijd voor je kan worden ingepland. De belastingspecialist is op verschillendelocaties tot en met 31 maart aanwezig. www.biblioplus.nl/levenlangleren/ belastingaangifte.html
Samen maken we gezond gewoon
Met de lente in aantocht gaan we weer meer naar buiten: tuinieren, wandelen of buiten spelen en sporten. Hierdoor heb je weer meer kans op een tekenbeet. Teken kunnen ziektes overbrengen, zoals bijvoorbeeld de ziekte van Lyme. Het is daarom belangrijk om te weten hoe je een tekenbeet voorkomt en wat je moet doen als je toch bent gebeten. Op de website van de GGD lees je wat je kunt doen om een tekenbeet te voorkomen én wat je moet doen als je toch gebeten bent. www.ggdhvb.nl/teken

Mediawijsheid voor ouders van jonge kinderen

Kinderen worden op steeds jongere leeftijd geconfronteerd met beeldschermen. Maar wat is het effect daar eigenlijk van? En hoe ga je daar als ouder mee om?
In deze ouderavond geeft mediapedagoog Harry Hol tips en informatie over schermen en kinderen. En vooral helpt hij ouders om daar zelf (betere) keuzes in te maken.
Er is behoorlijk veel bewijs dat het drinken van alcohol slecht is voor het brein van pubers dat nog minstens tot hun 24ste volop in ontwikkeling is. Daar komt bij dat als je jong begint en veel drinkt, de kans groter is dat je later verslaafd raakt aan alcohol. Maak jij de afspraak van NIX met je puber? Bekijk voor tips rondom Helder Opvoeden onze kennisclips op https://www.ggdhvb.nl/cursus/helder-opvoeden-hoe-doe-je-dat/ of kijk op www.helderopvoeden.nl



Spreker: Mediapedagoog Harry Hol van Bureau Jeugd en Media
Datum: 9 april 2025
Tijd: 19:30 – 21:00 uur
Locatie: MFA De Valuwe, Cuijk
je hier gratis aan!



Ben jij jonger dan 25 jaar en heb jij vragen over liefde, seks, condoomgebruik en anticonceptie? Op Sense.info kun je terecht met al jouw vragen. Of kom langs op het Sense spreekuur van GGD Hart voor Brabant. Daar spreek je anoniem en gratis met een verpleegkundige. En heb je onveilig gevreeën en twijfel je of je een soa hebt? Maak dan online een afspraak voor een soa test. www.ggdhvb.nl/liefde-en-seks

Wil je meer weten over gezondheid of
opvoeden? Neem deel aan één van onze gratis activiteiten!
Geregeld organiseren wij presentaties, cursussen en webinars. Dat doen we voor ouders en opvoeders, voor scholen en professionals in de gemeente.
• Mediawijsheid voor ouders van jonge kinderen. Kinderen worden op steeds jongere leeftijd geconfronteerd met beeldschermen. Maar wat is het effect daar eigenlijk van? En hoe ga je daar als ouder mee om? In deze ouderavond geeft mediapedagoog Harry Hol tips en informatie over schermen en kinderen. En vooral helpt hij ouders om daar zelf (betere) keuzes in te maken. – 9 april – 19:30-21:00 uur. Locatie: MFA De Valuwe, Cuijk. Meld je gratis aan via:
Meld je aan via www.ggdhvb.nl/webinars. Kun je niet live kijken, maar wil je het webinar wel terugkijken? Schrijf je dan ook in. Je ontvangt een terugkijklink.
• Mijn lijf, jouw lijf. Elk kind ontwikkelt zich lichamelijk en sociaalemotioneel. Leren omgaan met je lijf, gevoelens en je omgeving horen daarbij. 1 april 20.00-21.00 uur
• Wat ouders moeten weten over vapen! On demand (willekeurig moment te bekijken)
• Cursus Peuter in Zicht: een oudercursus over opvoeden van peuters. De cursus bestaat uit 4 bijeenkomsten. Volgende editie: 6, 13, 20, 27 mei 19:30-21:30 uur.
Meld je aan via:
• Cursus Opvoeden & Zo: De cursus Opvoeden & Zo helpt ouders van kinderen in de leeftijd van 4 tot 12 jaar om het contact met hun kind plezieriger te laten verlopen. Je leert omgaan met ongewenst gedrag en goed gedrag stimuleren.
De cursus bestaat uit
6 groepsbijeenkomsten van 2 uur. Volgende editie: 15, 22 mei, 5, 12, 19, 26 juni in Sint Anthonis.
Meld je aan via:
De eerste en derde donderdag van een raadscyclus, die steeds vier weken duurt, staan in het teken van beeldvorming. De tweede donderdag vergaderen de commissies en op de vierde donderdag de raad. De raad werkt volgens het model van Beeldvorming, Oordeelsvorming en Besluitvorming. Openbare vergaderingen en bijeenkomsten van de raad beginnen in de regel om 19.30 uur.
Thema-avonden
Op donderdag 20 maart a.s. vindt een thema-avond plaats. De avond start om 19.30 uur met het onderwerp Veiligheid. Daarna wordt een technische toelichting gegeven over de resultaten van de inwonersconsultatie over AZC Grave.
Op de derde donderdag van deze cyclus, 3 april, is geen thema-avond gepland.
Commissies
Op donderdag 27 maart a.s. vergadert de commissie Omgeving.
Raadsvergadering
Op donderdag 10 april a.s. vindt de raadsvergadering plaats.
Agenda’s en stukken
Op https://lvc.bestuurlijkeinformatie.nl/ vindt u de agenda’s en de stukken van vergaderingen en bijeenkomsten van de raad. Ook te bereiken via de website van de gemeente (www.landvancuijk.nl). U vindt er ook steeds de actuele informatie m.b.t. aanvangstijd en locatie.
Vergaderingen volgen
Via internet kunt u een vergadering live volgen of een eerdere
vergadering terugkijken. Ga naar https://lvc.bestuurlijkeinformatie.nl/. Het maken van beeld- en geluidsopnames is alleen toegestaan wanneer u dit vooraf heeft gemeld bij de griffie (via griffie@landvancuijk.nl) of voorafgaand aan de vergadering meldt bij de voorzitter, en de gegeven aanwijzingen volgt.
Spreekrecht
U kunt gebruikmaken van het spreekrecht over de geagendeerde onderwerpen. Tot uiterlijk 12.00 uur op de dag van de raads- of commissievergadering vraagt u spreekrecht aan via griffie@ landvancuijk.nl. Er zijn regels voor het inspreken. Zo zijn er bepaalde onderwerpen waarover u niet kunt inspreken. Bij de commissies spreekt u in bij het desbetreffende agendapunt, bij de raad aan het begin van de vergadering.
Spreek bij voorkeur in bij een commissie. De raad heeft dan nog meer tijd om uw inbreng te wegen en te betrekken bij het uiteindelijke besluit.
Meedoen en meepraten
Tijdens de beeldvormende thema-avonden is er ook ruimte om mee te doen en mee te praten. Dit is afhankelijk van de onderwerpen en vorm waarin deze worden behandeld. Ook staat dan het inwonerspodium op de agenda. Hierbij kunt u een nieuw onderwerp onder de aandacht van de raad brengen. Aanmelden kan tot uiterlijk 12.00 uur op de dag van de thema-avond via griffie@landvancuijk.nl. We gaan graag met u in gesprek!
Informatie
De griffie helpt u graag verder. U kunt ons bereiken via griffie@landvancuijk.nl.

Dit jaar worden er in het Land van Cuijk meerdere evenementen georganiseerd in het kader van 80 jaar vrijheid. Misschien wilt u een van de leden van het college van burgemeester en wethouders hiervoor uitnodigen. Vriendelijk verzoeken wij u om uitnodigingen te sturen via de gemeentelijke website www.gemeentelandvancuijk.nl
Ga naar www.gemeentelandvancuijk.nl/formulieren/ burgemeester-of-wethouders-uitnodigen en vul de gevraagde gegevens in. U ontvangt dan een reactie of een van de leden van het college aanwezig kan zijn. De burgemeester en de wethouder(s) komen graag als dat in hun agenda past. Maar gelet op het aantal evenementen zullen ze misschien niet alle uitnodigingen kunnen accepteren.
Het is ook mogelijk om raadsleden uit te nodigen. Raadsleden kunt u uitnodigen via de griffie. Gebruik daarvoor het e-mailadres griffie@landvancuijk.nl
We wensen u veel succes met de organisatie van uw evenement.
Gemeentebestuur Land van Cuijk










t r o n .
W a t k a n j e v e r w a c h t e n v a n d e a v o n d ? M
Informatie over het puberbrein Informatie over alcohol en drugs Interview met een ervaringsdeskundige Handvatten en tips
e e a e v r n u e p e e n l o l e s e i K e nformatie nformatie nterview andvatten eze Nie c d

Deze gratis avond is bedoeld om te informeren en onderling over dit onderwerp in gesprek te gaan Niemand wordt persoonlijk aangesproken V
mand persoonlijk aangesproken 2
Het gemeentenieuws digitaal lezen? Dat kan via www.kliknieuwsdemaasdriehoek.nl
Inwoners van de gemeente Land van Cuijk en de gemeente Boekel kunnen
4 zaterdagen op een rij, startend op 22 maart 2025, gratis compost ophalen op alle mini-milieustraten. Het ophalen van compost is enkel voor particulieren en maximaal 1 m3 per keer. Wil je compost ophalen? Zorg dan zelf voor een aanhangwagen, emmer of zakken om het in te doen, een schep en vervoer.
Compostdagen
• 22 maart 2025
• 29 maart 2025
• 5 april 2025
• 12 april 2025
Openingstijden mini-milieustraten: zaterdag van 09.00 uur tot 13.00 uur.
Wat is compost?
Naast de groenstraat in Haps wordt het ingezamelde groenafval en grof

tuinafval direct gecomposteerd. Dit is een natuurlijk proces waarbij micro-organismen het groen en tuinafval afbreken. Het eindresultaat is voedzame compost. Compost wordt ook wel het zwarte goud genoemd omdat het zo goed is voor je tuin. Het houdt vocht vast, is een natuurlijke bodemverbeteraar en stimuleert de groei van planten op een milieuvriendelijke manier.
De volledige tekst van de officiële bekendmakingen vind je op www.officielebekendmakingen.nl. Dit is het officiële publicatiekanaal voor gemeentelijke bekendmakingen. Het kan gaan om (ontwerp)besluiten, (ontwerp)plannen, verkoop van percelen gemeentegrond en andere formele bekendmakingen.
Op deze pagina’s staan alleen beknopte versies, bedoeld als service en ter informatie. In de officiële bekendmaking op bovengenoemde website staat welke mogelijkheden er zijn voor het leveren van inspraak (een zienswijze indienen), het gebruiken van een rechtsmiddel, zoals bezwaar, (hoger) beroep en voorlopige voorziening of hoe er anders gereageerd kan worden. Een bezwaar moet binnen 6 weken bij ons binnen zijn. Deze periode begint op de dag ná de dag waarop het besluit is verstuurd. Deze (beslis)datum vind je op de officiële bekendmaking.
Je kunt ook per e-mail op de hoogte blijven van alle bekendmakingen. Ga naar www.overheid.nl/berichten-over-uw-buurt. Hier kun je een profiel aanmaken met je postcode en aanvinken van welke overheden en welke soort bekendmakingen je wilt ontvangen.
Land van Cuijk
| Verkeersbesluiten
• Opheffen van een gehandicaptenparkeerplaats op kenteken - aan Sleedoorn te Cuijk
• Opheffen van een gehandicaptenparkeerplaats op kenteken - aan Willem Jacobstraat te Grave
Reserveren van een gehandicaptenparkeerplaats op kenteken - aan Spoorstraat te Vierlingsbeek
• Reserveren van een gehandicaptenparkeerplaats op kenteken - aan Berenkuil te Cuijk
Tijdelijke verkeersmaatregelen voor het evenement Luizenmarkt op 9 juni 2025 te Vianen
Beers
| Omgevingsvergunningen
Aanvragen
Aanvraag omgevingsvergunning voor het verbouwen van een rijksmonument (verbouw kantoorverdieping naar woonruimte) Grotestraat 4, 5437AS Beers
NB
Afhandelingen
• Omgevingsvergunning verleend voor het bouwen van een twee-onder-eenkap woning Prinsenstal 39-41 Beers
Boxmeer
| Omgevingsvergunningen
Aanvragen
Aanvraag omgevingsvergunning voor het plaatsen van een buitenunit airco aan achtergevel de Hulst 33, 5831SC Boxmeer
• Aanvraag omgevingsvergunning voor het realiseren van een overdekte parkeergelegenheid Steenstraat 59, 5831JB Boxmeer
Schone grondstof
Doordat we een landelijke gemeente zijn, hebben we relatief veel groenafval en grof tuinafval. Door dit te composteren komt deze grondstof direct terug in de kringloop. Want compost nemen gewassen en planten weer op om van te groeien. Omdat het als meststof en bodemverbeteraar wordt gebruikt, is een hoge kwaliteit belangrijk. Hier zitten strenge eisen aan. En hoewel het goed gesorteerd wordt, is het aanleveren van een schone grondstof dus belangrijk.
Thuis composteren
Je kunt ook je eigen groen en tuinafval composteren. Dit kan met een compostvat of composthoop in de tuin. Maar ook zonder tuin of veel ruimte kun je composteren door middel van een wormenhotel. Zo houd je de kringloop nog kleiner en lokaler!
Groenstraat Haps
Op de groenstraat in Haps kun je het hele jaar gratis compost ophalen.
Openingstijden groenstraat Haps: • maandag van 13.00 tot 17.00 uur, • woensdag van 13.00 tot 17.00 uur, • vrijdag van 9.00 tot 16.30 uur en • zaterdag van 9.00 tot 15.00 uur.
Meer informatie
Kijk voor meer informatie over het scheiden van afval op www.gemeentelandvancuijk.nl/ afvalinzameling of kijk in de AfvalApp.
De AfvalApp is heel handig. Je ziet direct wat, waar en wanneer wordt opgehaald. En je krijgt ook alle relevante wijzigingen door via een pushbericht. Het downloaden van de AfvalApp kan via de Playstore of via de Appstore.
Afhandelingen
• Aanvraag omgevingsvergunning voor het bouwen van een overkapping Bergfluiter 2, 5831NG Boxmeer vergunningvrij
| Overige
Evenementenvergunning verleend voor Galastoet Elzendaal op 17-04-2025 Boxmeer centrum
• Evenementenvergunning verleend voor Open dag MVC Columbia op 09-062025 nabij Waterleidingstraat Kavel BMR00-Q-211, Boxmeer
• Evenementenvergunning verleend voor Boxmeerse kinderbeurs op 06-042025 en 05-10-2025 Koorstraat 1, 5831GH Boxmeer
Objectvergunning verleend voor het plaatsen van een steiger van 10-032025 tot 04-04-2025 Steenstraat 59, 5831JB Boxmeer
• Bekendmaking ontwerp wijzigingsplan, 150 kV-hoogspanningsverbinding Boxmeer-Venray
Cuijk
| Omgevingsvergunningen
Aanvragen
• Aanvraag omgevingsvergunning voor het plaatsen van een dakkapel aan de voorgevelzijde van de woning Meidoorn 17, 5432GA Cuijk
Afhandelingen
• Buiten behandeling laten aanvraag omgevingsvergunning voor het wijzigen van het kozijn aan voorzijde woning Rietdekkersdreef 10, 5431ZH Cuijk
• Kennisgeving intrekking aanvraag omgevingsvergunning Veldweg 15, 5431CH Cuijk
Omgevingsvergunning verleend voor het wijzigen van de gevel en het plaatsen van een buitentrap Ewinkel 1, 5431ND Cuijk
• Aanvraag omgevingsvergunning voor het wijzigen van de voorgevel van een winkelpand Molenstraat 36, 5431BX Cuijk vergunningvrij
| Overige
Objectvergunning verleend voor het plaatsen van een kraan van 03-03-2025 tot en met 04-04-2025 Kaneelstraat en Aleidestraat, Cuijk - kadastraal
CUI00 sectie C nr. 4174
• Melding Besluit activiteiten leefomgeving (Bal) – Cantheelen 8 Cuijk
Escharen
| Omgevingsvergunningen
Aanvragen
• Aanvraag omgevingsvergunning voor het realiseren van een carport Veldweg 9, 5364RH Escharen
Afhandelingen
Kennisgeving omgevingsvergunning verleend voor het overkappen van het balkon van een appartement Graafschedijk 21j, 5364PP Escharen
Gassel
| Omgevingsvergunningen
Afhandelingen
Omgevingsvergunning verleend voor het aanplanten van een bossingel in het gebied Vogelshoek nabij Ten Holtweg nr.4, 5438NT Gassel, kadastraal GVE00 M166
Grave
| Omgevingsvergunningen
Aanvragen
Aanvraag omgevingsvergunning voor het aanpassen van bestaande poort en aantal parkeerplaatsen en vervangen ramen Brugstraat 13, 5361GT Grave
• Aanvraag omgevingsvergunning voor het aanpassen van bestaande poort en aantal parkeerplaatsen en vervangen ramen Brugstraat 13, 5361GT Grave
• Aanvraag omgevingsvergunning voor het plaatsen van een dakkapel
Marssingel 7, 5361BM Grave
Haps
| Omgevingsvergunningen
Aanvragen
Aanvraag omgevingsvergunning voor het bouwen van een paardenstalling en opslag Putselaarstraat 9b, 5443NG Haps
Afhandelingen
• Omgevingsvergunning verleend voor het nemen van onderhouds- en veiligheidsmaatregelen de N264.36 tussen Odiliapeel en Haps
Kennisgeving omgevingsvergunning verleend voor het plaatsen van een bijwoning met zelfstandige voorzieningen Putselaarstraat 4x, 5443NG Haps
| Overige
• Ontwerpbesluit alcoholwetvergunning paracommercieel voor aanvraag
Alcoholwetvergunning paracommercieel De Steenakker Steenakkerstraat 5, 5443NK Haps
Ledeacker
| Overige
• Omgevingsvergunning verleend voor het verbouwen en verduurzamen van een woning Vrijstraat 3, 5846AG Ledeacker
Maashees
| Overige
• Kennisgeving melding brandveilig gebruiken Antoniusschool Maashees de Goeijstraat 1, 5823AH Maashees
Mill
| Omgevingsvergunningen
Aanvragen
• Aanvraag omgevingsvergunning voor het kappen van houtwal en het her beplanten Sperwerstraat in Mill
Aanvraag omgevingsvergunning voor het renoveren van het dak Wanroijseweg 9, 5451GX Mill
• Aanvraag omgevingsvergunning voor het plaatsen van een accupakket en hekwerk om accupakket voor opslag energie Brandsestraat 1c, 5451NW Mill
Afhandelingen
Buiten behandeling laten aanvraag omgevingsvergunning voor het bouwen van een garage Putterstraat 5a, 5451VR Mill
• Omgevingsvergunning verleend voor het verbouwen van een woning Vaardijk 2, 5451NM Mill
• Omgevingsvergunning verleend voor het bouwen van een woning 't Kavelt 17 (kavel 509) Mill
Omgevingsvergunning verleend voor het bouwen van een woning en het aanleggen van een uitweg Bijenkorf 8 Wilbertoord - Mill P 1208
| Overige
• APV-ontheffing verleend voor schenktijden evenement Ontspoord op 05-042025 Spoorstraat 41, 5451GA Mill Objectvergunning verleend voor het plaatsen van een vrachtwagenhoogwerker op 28-03-2025 Parallelweg 40, Mill
• Objectvergunning verleend voor het plaatsen van een steiger van 10-03 tot en met 30-04-2025 Stationsstraat 23a-c, Mill
Oeffelt
| Omgevingsvergunningen
Aanvragen
• Aanvraag omgevingsvergunning voor het verbouwen van het pand naar kamerverhuurpand met 4 kamers Julianastraat 3, 5441AN Oeffelt
Oploo
| Omgevingsvergunningen
Aanvragen
• Aanvraag omgevingsvergunning voor het bouwen van een woning met bijgebouw Rootstraat ongenummerd in Oploo
Aanvraag omgevingsvergunning voor het verwijderen van een draagmuur Grotestraat 26, 5841AB Oploo
Afhandelingen
• Kennisgeving omgevingsvergunning verleend voor het bouwen van een nieuw bijgebouw Gemertseweg 16, 5841CD Oploo
Overloon
| Omgevingsvergunningen
Aanvragen
• Aanvraag omgevingsvergunning voor het wijzigen van een eerder verleende vergunning Poelsstraat 1, 3, 5, 15 en 37 + Pasveldweg 10 en 12 in Overloon
Rijkevoort
| Omgevingsvergunningen
Aanvragen
• Aanvraag omgevingsvergunning voor het bouwen van een bedrijfspand
Rijkevoortsedijk 16, 5447BD Rijkevoort
Afhandelingen
Intrekken van een omgevingsvergunning, Hoekstraat 14 en 16 in Rijkevoort
St. Agatha
| Overige
• Evenementenvergunning verleend voor 75-jarig jubileum 't Staagje van 09-05-2025 t/m 10-05-2025 Liesmortel 46, 5435XJ Sint Agatha (op parkeerplaats)
Sint Anthonis
| Omgevingsvergunningen
Aanvragen
Aanvraag omgevingsvergunning voor het vervangen van de schutting Dokter Luijckxstraat 2, 5845CT Sint Anthonis
• Omgevingsvergunning aangevraagd – Sambeeksedijk 5 St Anthonis
• Aanvraag omgevingsvergunning voor het bouwen van een loods Stevensbeekseweg 3A, 5845ER Sint Anthonis
| Overige
Standplaatsvergunning verleend voor Kom Thai voor de verkoop van Thaise etenswaren Sint Anthonis
Sint Hubert
| Omgevingsvergunningen
Aanvragen
• Aanvraag omgevingsvergunning voor het bouwen van een woning Lange Schoolstraat 24, Sint Hubert
Velp
| Omgevingsvergunningen
Aanvragen
• Aanvraag omgevingsvergunning voor het verplaatsen van hekwerk met beukenhaag Steegschenhofscheweg 12a, 5363SR Velp
• Aanvraag omgevingsvergunning voor het kappen van 6 bomen kappen Steegschenhofscheweg in Velp
Vianen
| Omgevingsvergunningen
Afhandelingen
• Omgevingsvergunning verleend voor het uitbreiden van de woning Franssenstraat 138, 5434SK Vianen NB
Vierlingsbeek
| Omgevingsvergunningen
Aanvragen
Aanvraag omgevingsvergunning voor het bouwen van een energie positieve woning Hulderhof kavel 507 in Vierlingsbeek
• Aanvraag omgevingsvergunning voor het aanleggen van een inrit Hulderhof 8, 5821CH Vierlingsbeek
Afhandelingen
Buiten behandeling laten aanvraag omgevingsvergunning voor het bouwen van een carport Overambt 13, 5821CC Vierlingsbeek
| Overige
• Melding Besluit activiteiten leefomgeving (Bal) – Schootsveld 3 Vierlingsbeek
• Kennisgeving omgevingsvergunning verleend voor het bouwen van een opslag voor landbouwproducten Kiekuutweg 5, 5821EC Vierlingsbeek
Wanroij
| Omgevingsvergunningen
Afhandelingen
• Besluit intrekking omgevingsvergunning – Molenstraat 6 Wanroij
Wat is jouw mening over de mobiele milieustraat? Vul de enquête in!
In 2024 heeft de gemeente een proef gedaan met een mobiele milieustraat. Deze stond drie keer op acht verschillende locaties in onze dorpen. Bij de mobiele milieustraat kon je gratis recyclebaar afval en klein chemisch afval inleveren; afval dat niet in de gewone afvalcontainers hoort én in een grote boodschappentas past. Bijvoorbeeld harde plastics, kleine accu’s en elektrische apparaten, piepschuim en verfblikken.
Nu de proef voorbij is, gaan we bekijken of we doorgaan met de mobiele milieustraat. Daarom willen we graag ook jouw mening weten.
• Heb je de mobiele milieustraat bezocht? Wat vond je ervan?
• Had je er nog niet van gehoord? Zou je het handig hebben gevonden?
• Wat kan er beter, of vind je het niet nodig?
Laat het ons weten door de enquête in te vullen op www.maashorstaanhetwoord.nl Dit kan van 19 maart tot en met 9 april. Of scan de QR-code!


De officiële bekendmakingen van gemeente Maashorst staan op www.overheid.nl en www.officielebekendmakingen.nl. Als service publiceren wij op deze Gemeente-Pagina een kort overzicht van de besluiten en bekendmakingen. Je kunt aan dit overzicht echter geen rechten ontlenen. De complete tekst staat op de genoemde websites. Daar kun je jezelf ook aanmelden voor een e-mailservice. Je krijgt dan automatisch bericht als er nieuws is voor (naar keuze) jouw buurt, wijk, woonplaats of de hele gemeente. Ook via de app ‘Over uw buurt’ kun je op de hoogte blijven van alle relevante meldingen voor jouw woon-/ werkadres. Kijk op www.overheid.nl voor meer informatie.
• Ontwerpbesluit voor de uitoefening van het horecabedrijf door een paracommerciële rechtspersoon aan Bossestraat 8 te Schaijk, 102783
• Toestemming voor het gebruik van een horecavergunning aan Pastoor Spieringsstraat 1 te Uden, 102823
Omgevingsvergunningen
Aanvraag
Odiliapeel
• Oudedijk 83, tijdelijk verhuren kamers aan vier arbeidsmigranten en afwijken omgevingsplan, 19212
• Oudedijk 86, verbouwen / vergroten hygiënesluis (omgevingsplan en technisch), 19071
Reek
• Monseigneur Suijsstraat 37,
plaatsen 4 lichtmasten veld 3 sportpark (omgevingsplan), 18518
Schaijk
• Pastoor van Winkelstraat 27-29, vervangen dak woning en aansluitende schuur (omgevingsplan), 19136
Uden
• Aalstweg 5, slopen 2 dugouts, plaatsen 4 prefab dugouts en aanpassen hekwerken (omgevingsplan), 18391
• Meerhoek 612, kappen 2 eikenbomen in achtertuin, 19389
• Oostwijk 8, toevoegen bestemming ‘showroom’ en afwijken regels in omgevingsplan, 20251
• Vlasstraat 5, uitbreiden woning en bouwen carport en afwijken regels omgevingsplan (omgevingsplan),
18671
• Voortweg, bouwen woning met bijgebouw (omgevingsplan), 18680
Volkel
• Zeelandsedijk, toevoegen energieopslagsysteem aan zonnepark en afwijken regels omgevingsplan (omgevingsplan), 18324
• Zeelandsedijk 10, reviseren BOSpomp en herinrichten tankplaats (omgevingsplan en technisch), 19617
Zeeland
• Kreitsberg en Reekseweg, realiseren landschapslandbouw, plaatsen tiny houses en afwijken omgevingsplan, 19165
Aanvraag verleend
Reek
• Burgemeester Wientjensstraat 8, verbouwen woning (omgevingsplan en technisch), 413
Schaijk
• Bossestraat 20, wijzigen voorgevel d.m.v. plaatsen 2 nieuwe kozijnen (omgevingsplan), 13146
Uden
• Burgemeester Buskensstraat 18, kappen boom in achtertuin, 10998
• Heufkensweg 4, bouwen carport en dakkapel (omgevingsplan) /

Van jouw GFT+E naar waardevolle compost Haal gratis een kuub compost op!
Door groente-, fruit- en tuinafval én etensresten (GFT+E) gescheiden in te leveren, draag je bij aan een duurzamere wereld. Dit afval wordt namelijk omgezet in compost: een natuurlijke bodemverbeteraar die planten laat groeien, de grond gezond houdt en helpt om vocht en CO2 vast te houden.
Als bedankje voor het scheiden van groenafval kunnen inwoners op zaterdag 22 of 29 maart gratis
een kuub compost ophalen bij de composteerder in Uden. Perfect voor je tuin!
Waar: Van Berkel, Mariniersstraat 4, Uden
Wanneer: Zaterdag 22 of 29 maart Hoe laat: Tussen 9.00 en 14.00 uur Hoeveel: Maximaal 1 kuub per huishouden (minder kan natuurlijk ook)
aanvraag is vergunningvrij, 7103 / Gemeenteblad 109270 en 109591
• Volkelseweg 32, realiseren cursusruimte d.m.v. sluiten overkapping (omgevingsplan), 16753
• Wachtendonk 806, gebruiken woning voor kamerverhuur en afwijken omgevingsplan, 17439
Aanvraag ingetrokken
Schaijk
• Duifhuisstraat 4, intrekking omgevingsvergunning voor niet gerealiseerde stal, 101980 Volkel
• Kloosterstraat, kappen 1 Fraxinus en 1 Prunus, 8027
Andere meldingen (geen vergunningplicht)
Uden
• Aldetiendstraat 19C, brandveilig gebruiken van een groepszorgwoning, 11314
• Wachtendonk 806, brandveilig gebruiken bestaande woning met vier afzonderlijke kamers voor kamerbewoning, 19376 / Gemeenteblad 109116, 109127, 109135, 109323 en 109492
Evenementenvergunning
Aanvraag
Schaijk
• Bossestraat 10, Avondvierdaagse Schaijk van 10-06-2025 t/m 13-062025, 19765
Verleend
Zeeland
• Vlasroot, Avondvierdaagse Zeeland 20-5-2025 t/m 23-5-2025, 18396

















