mj
Mayte Jiménez
teléfono +51 999 030 637
email jimenezvelardemayte@icloud.com
email institucional mjimenezv@pucp.edu.pe
dirección Calle Alcalá 175, Pueblo Libre, Lima

perfil
Estudiante de noveno ciclo de la PUCP con buena disposición para trabajar en grupo y aplicar lo aprendido. Interesada en formar parte de proyectos que me permitan adquirir nuevos conocimientos y habilidades de trabajo.
Intereses: representación gráfica, fabricación de maquetas
educación
2016 - actualidad
idiomas publicaciones
2023
World Congress of Architects 2023: student summit exhibition.
Taller 6 - Arq. Jochamowitz + Arq. Rivera
https://uia2023gss.wordpress.com/resilient-comm unities-peru-4/
exhibiciones académicas
2023
Parada de Proyectos 2023.1
Taller 6 - Arq. Jochamowitz + Arq. Rivera
2024
Parada de Proyectos 2024.1
Taller 7 - Arq. Kahatt+ Arq. Morelli
Parada de Proyectos 2024.2
Taller 8 - Arq. Cuneo + Arq. Solano
español
Pontificia Universidad Católica del Perú Arquitectura inglés
2012-2015
Colegio Señor del Perdón
Moyobamba - San Martín
experiencia
2024 febrero - marzo KUMINKA PROJECT
Centro de preservación de la lengua kuminka en la Amazonía Peruana
Participación en el proceso de diseño, elaboración de p iezas y construcción i n-situ del p royecto en l a ciudad de Nauta, Loreto.
https://www.instagram.com/kuminkaproject/
2023 marzo - junio
Asistente de Investigación
Espacios perdidos/ Lecciones urbanas post COVID 19
Asistencia en e l proyecto de i nvestigación mediante la r ecolección d e data, l a creación de contenido visual, entre otros requerimientos.
2022 - actualidad
Freelance
Realización de diversos trabajos de representación gráfica, l os cuales i ncluyen r enders y planimetría técnica, en los últimos años.
Cambridge English: CAE C1 Advanced (193/199)
software
AutoCAD Revit
Illustrator Indesign Photoshop Premiere Pro Sketchup Rhinoceros V-ray Enscape Word Excel Power Point
[ 06 - 13 ]
[ 14 - 21 ]
[ 22 - 29 ]
[ 30 - 37 ]
Residencia estudiantil en Barrios Altos
Gobierno Regional de Junín
SESC en Villa el Salvador
Representación gráfica

RESIDENCIA ESTUDIANTIL EN BARRIOS ALTOS
Este taller impulsa la reflexión arquitectónica sobre el hábitat, a través de la elaboración de los entornos urbanos y las realidades sociales, además de la capacidad de articular programas reflexiona sobre lo doméstico en cuanto espacio cotidiano, y sobre la ciudad como entorno sociedad y la generación del bien común. Asimismo, se busca que la representación constituya una herramienta para explorar las ideas,

de proyectos arquitectónicos que implican la comprensión de las densidades, las escalas, programas heterogéneos que relacionan la arquitectura con el espacio público y la ciudad. Se entorno construido en permanente transformación, además de abordar el compromiso con la ideas, los sistemas constructivos y la articulación espacial.







A partir del estudio de material histórico del área de trabajo, se realiza un montaje de una reconstrucción o un escenario posible del pasado del me la ciudad sobre el cual se trabaj. En paralelo a esto, se analiza en menor escala y bajo los intereses encontrados en la priemera etapa, la manzana en donde se diseñará el proyecto.

En esta manzana se debe lidiar con la realidad actual y encontrar lotes o accesos potenciales al corazón verde que se ha reconstruido al interior. El nuevo acceso imaginado en la manzana incluye el registro de lo existente y el diseño un nuevo umbral de entrada al interior de la manzana.
Este diseño del espacio de transición entre la calle y el interior de la manzana, incluye el pavimento, la vegetación, la cobertura y la carpintería, además de buscar una inserción respetuosa y sensible con el espacio.



del proyecto - Nivel 1

del proyecto - Corte y detalles

Fragmento del proyecto - Nivel 2

Volumetría del proyecto

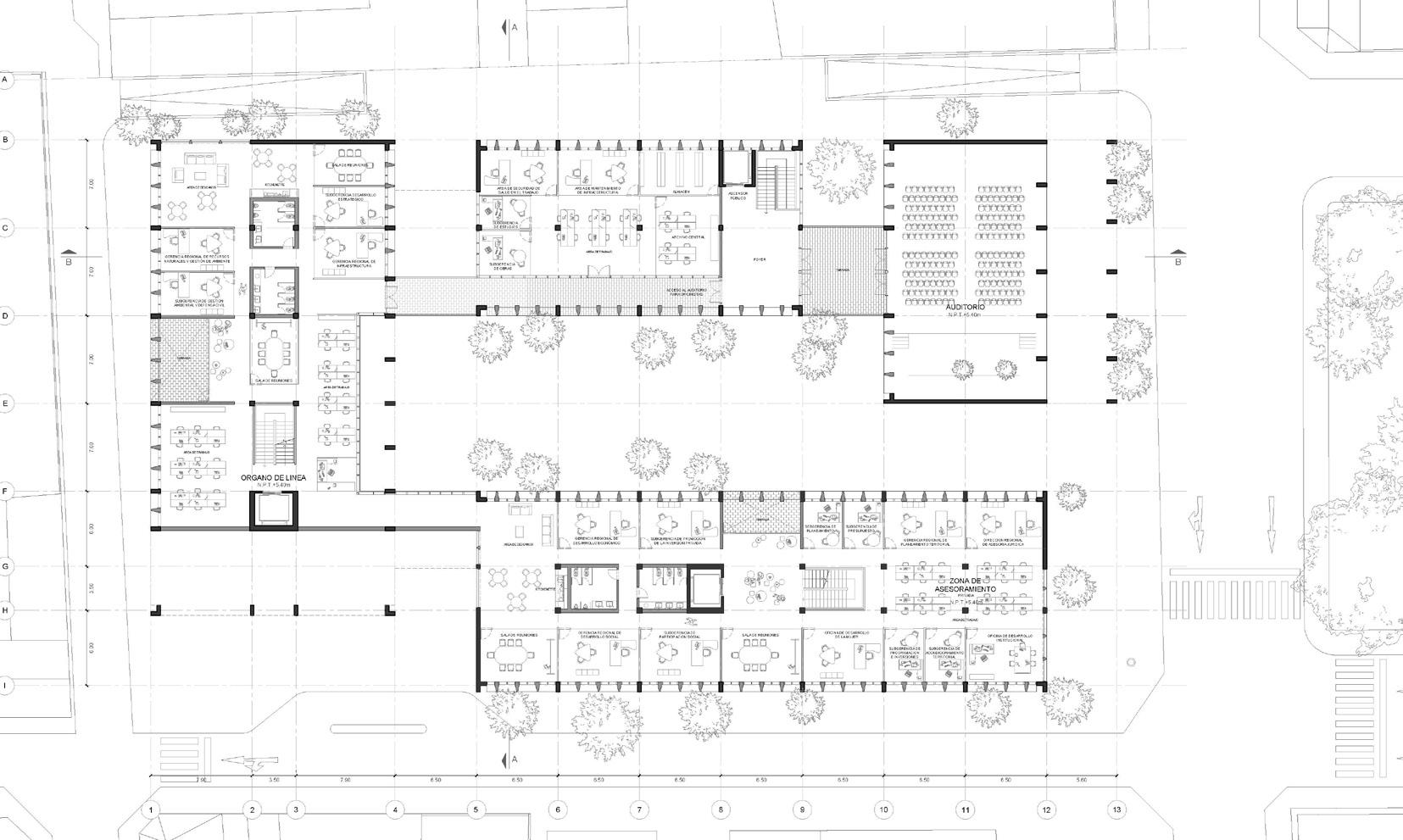
GOBIERNO REGIONAL DE JUNIN
El (re)diseño de los edificios de los Gobiernos Regionales es una perfecta oportunidad para del Perú, a dos décadas de la creación de esta instancia gubernamental. La propuesta de la mayoría (salvo un par de excepciones) de estas sedes han sido improvisadas, sufriendo las consecuencias de ‘acomodar’ las actividades a la infraestructura existentes, lugar. El taller busca explorar el rol del diseño de la experiencia como motor del proyecto poder desarrollar narrativas y espacios que reflejen el rol de la institución en la sociedad y

para explorar la función de los edificios públicos representativos en las ciudades intermedias
improvisadas, tanto al reciclar edificios de gobiernos municipales o sedes del gobierno central, existentes, sin poder otorgar la posibilidad de absorber las necesidades y tradiciones sociales del y poder superar los paradigmas cuantitativos y normativos de los edificios públicos para y la ciudad.
SOCIAL



Fotografías propias tomadas durante el viaje académico

URBANO/PAISAJISTICO



PERCEPCIONES
MATERIAL



La propuesta de la nueva sede del Gobierno Regional de la región Junín, nace a partir de la necesidad que tiene la región de una infraestructura de carácter público que la represente. A partir de ello, se propone que esta nueva sede se ubique en la ciudad intermedia de Concepción, cuya ubicación estratégica en el centro del Perú la conecta con las demás regiones del país.
A partir del viaje académico es que se reconocen las características arquitectónicas de la ciudad y las condiciones climáticas, a partir de las cuales se toman ciertas decisiones proyectuales.


El proyecto se encuentra ubicado en el casco histórico de la ciudad con relación directa a la plaza de las Tres Heroínas. El nuevo Gobierno Regional de Junín se ubica en la manzana de tal manera que genera un retiro con la plaza , para así configurar una plaza de bienvenida al proyecto con carácter institucional. Al ingresar a traves de ese frente, el ciudadano se encuentra con el corazón del proyecto, el espacio cícivo.
Este espacio busca ser un lugar de encuentro social de modo que los mismos ciudadanos encuentren en él un lugar de representación. Es un espacio contenido por los volumenes del proyecto, que además de definirlo virtualmente, se abre hacia el mismo mediante vanos. Por el lado posterior , el proyecto tiene una plaza con carácter más comercial que completa este recorrido de espacios/plazas que caracterizan el nuevo Gobierno Regional.







SESC EN VILLA EL SALVADOR
El taller busca introducir las nociones de Metrópoli y edificio público desde una óptica espacio entendido como urbano, no-urbano y geográfico, y la segunda, como un ente que funcionales y ecológicas.
El proyecto se articula a sistemas urbanos y redes materiales como a condiciones geológicas, se propone trabajar la complejidad a través de una nueva especie de edificios.

multidimensional, que entiende a la primera como un fenómeno territorial, en relación al que debe repensarse en sus lineamientos proyectuales, como en sus capacidades sociales, geológicas, concebidos como artefactos capaces de albergar procesos diversos. En ese contexto,

Villa El Salvador se originó como asentamiento humano en mayo de 1971 y es aquí donde se desarrolla el proyecto. Este se encuentra en el corazón del Parque Industrial, el cual llegó a consolidarse como un punto de concentración de industria y comercio a nivel de todo Lima. Al ser una de las estaciones de la Linea 1 del Metro de Lima y estar en cercania de importantes vías, como la Avenida El Sol y la Avenida Pachacutec, lo convierte en un punto accesible para los visitantes de todo Lima. No obstante, es una zona que carece de equipamiento que promueva actividades comunales y de áreas verdes significativas. Es debido a esta caracteristica de la zona que el proyecto se desarrolla en uno de los ejes más importantes de todo Lima Sur, la Av. Pachacútec.










El proyecto tiene como suelo a una estructura aporticada de concreto que actualmente se desarrolla como local de unan cadena de comercios de la construcción y ferretería. Esta a su vez se sitúa sobre el suelo arenoso característico del distrito. Debido a ello, la estructura portante de el proyecto busca apoyarse sobre la menor cantidad de puntos para que así los puntos que transmitan la carga sean mínimos. Además, se construye a partir de una estructura de acero para de esta manera conseguir luces más amplias sin demasiado peralte.




El proyecto busca la flexibilidad a traves de su estructura. Es mediante la composicion estructural a partir de cerchas de acero y vigas vierendeel, que se crean espacios amplios con cerramientos móviles. Debido a su ubicación, en medio de el Parque Industrial de Villa El Salvador, es que se busca crear espacios que otorguen actividades culturales, como talleres de pintura y escultura, así como talleres afin al gremio maderero y metalurgico presente en Villa El Salvador. Durante la mañana, el proyecto alberga espacios destinados al deporte y al apendizaje. En la noche, estos mismos espacios pasan a ser parte de la vida comunal de la zona al propiciar programas como exposiciones de arte, salas para reuniones de la comunidad, y cine al aire libre. Pensando en el futuro del proyecto con relación a su ubicación y su flexibilidad, es que se proyectan espacios destinados a la industria menor como talleres de carpintería, oficinas y espacios de almacenamiento y distribución.

04 REPRESENTACIÓN GRÁFICA
Este apartado contiene una selección de trabajos académicos realizados en los últimos desde renders detallados hasta planos técnicos y diagramas.
Estos gráficos fueron parte de trabajos grupales por lo cual no se presenta el proyecto en
años, los cuales demuestran mi dominio en diversas técnicas de representación gráfica, su totalidad, sino solo los dibujos que son de completa elaboración propia.





Elevaciones realizadas para el curso de Construcción 1

Detalles de cimentación realizados para el curso de Construcción 1














