Revista ISSUU MYPC Prim'25

Page 1


5 4 3 2 1

LUI JIAKUN ¿QUIEN ES?

Civil Engineering

¿Quien es liu jiakun?

LUI JIAKUN, WHO IS HE?

Civil Engineering

Who is Liu Jiakun?

WEST VILLAGE BASIS YARD, SICHUAN

Datos generales

Ubicación

Planos

Materiales Principales y Técnicas Constructivas

WEST VILLAGE BASIS YARD, SICHUAN

General Information

Location

Plans

Main materials in the work

SCULPTURE DEPARTMENT TEACHING BUILDING – CENTRAL ACADEMY OF FINE ARTS (CAFA), BEIJING

Datos generales

Ubicación

Planos

Materiales Principales y Técnicas Constructivas

SCULPTURE DEPARTMENT TEACHING BUILDING – CENTRAL ACADEMY OF FINE ARTS (CAFA), BEIJING

General Information

Location

Plans

Main materials in the work

MODELO DE CIMBRA

Etapa I

Etapa II

Etapa III

REFERENCIAS

REFERENCES

Artículos y fuentes consultadas

Articles and sources

FORMWORK 3D MODEL

Phase I

Phase II

Phase III

WEST VILLAGE BASIS YARD, SICHUAN

El proyecto West Village – Basis Yard, situado en Chengdu, la ciudad natal de Liu Jiakun, evoca la sensación de estar en una isla enclavada dentro de una ciudad que parece sacada de una utopía. Este conjunto residencial, de cinco niveles y de gran escala, ocupa una manzana completa, destacándose como una pieza arquitectónica clave en medio de un entorno urbano que se caracteriza por sus edificios anodinos y repetitivos. A diferencia de sus alrededores, donde predominan construcciones impersonalizadas, West Village se erige como un punto focal que desafía la uniformidad, ofreciendo una nueva perspectiva sobre cómo interactuar con el tejido urbano sin perder la conexión con la intimidad y la vida cotidiana de sus habitantes.

The West Village – Basis Yard project, located in Chengdu, the hometown of Liu Jiakun, evokes the feeling of being on anislandembeddedwithinacitythatseemsstraightoutof a utopia. This five-story, large-scale residential complex occupies an entire city block, standing out as a key architectural piece amidst an urban environment characterized by its monotonous and repetitive buildings. Unlike its surroundings, where impersonal constructions dominate, West Village emerges as a focal point that challengesuniformity,offeringanewperspectiveonhowto interact with the urban fabric while maintaining a connectiontotheintimacyanddailylifeofitsinhabitants.

(http://www.i-mad.com/office/people/

Reutilizacióndel70%delosmaterialesexistentes.

Sistemadeventilaciónnaturalbasadoenpatiostradicionales

Superficie:13,450m²

MaterialesPrincipales:

85,000ladrillosreutilizados

Vigasdeaceroreciclado(procedentesdeviejasgrúasindustriales)

Vidrioserigrafiadoconmotivosdearchivosfotográficosdelsitio.

Reuse of 70% of existing materials.

Natural ventilation system inspired by traditional courtyard designs

Area: 13,450 m²

Main Materials:

85,000 reused bricks

Recycled steel beams (sourced from old industrial cranes)

Screen-printed glass featuring photographic archive motifs from the site

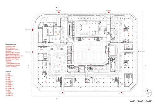
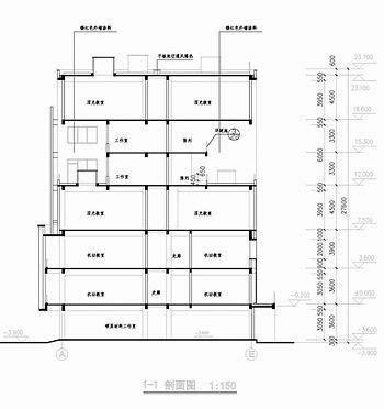
PLANOS

PLAN VIEWS

PLANOS

PLAN VIEWS

Ground floor plan
Third floor plan

Sculpture Department Teaching Building

ElEdificiodeEnseñanzadelDepartamentodeEscultura es un espacio académico funcional e innovador, diseñadoparafomentarlacreatividadyeldesarrollode habilidades técnicas en el campo de la escultura. Normalmente ubicado dentro de escuelas de arte o universidades, este tipo de construcción cuenta con instalaciones especializadas, como amplios estudios contechosaltos,buenailuminaciónnaturalysistemas deventilaciónrobustosparaadaptarsealasdemandas físicasdeltrabajoescultórico.

La arquitectura suele priorizar espacios abiertos de trabajo, áreas de almacenamiento para materiales (arcilla, piedra, metal, madera, etc.) y equipos avanzados como hornos de cerámica, estaciones de soldadura y herramientas de modelado 3D. El diseño puede combinar funcionalidad industrial con inspiración estética, reflejando la naturaleza artística de la disciplina. Algunos edificios incluyen zonas de exposición para mostrar el trabajo de los estudiantes, creandounentornodinámicodeaprendizaje. Además, la sostenibilidad y la seguridad son aspectos clave,conmedidasparaelcontroldepolvo,gestiónde residuos y espacios de trabajo ergonómicos. En definitiva, el Edificio de Enseñanza del Departamento de Escultura funciona como un centro de exploración artística, integrando técnicas tradicionales con tecnologíascontemporáneasenunambienteeducativo colaborativo.

Datos

Arquitecto: Kengo Kuma & Associates (2014)

Ubicación: Pekín, China

Cliente: Central Academy of Fine Arts (CAFA) Superficie: ~8,000 m²

Facts

Architect: Kengo Kuma & Associates (2014)

Location: Beijing, China

Client: Central Academy of Fine Arts (CAFA) Area: ~8,000 m²

The Sculpture Department Teaching Building is a functional and innovative academic space designed to foster creativity and technical skill development in the fieldofsculpture.Typicallyfoundwithinartschoolsor universities, this type of building features specialized facilitiessuchaslargestudioswithhighceilings,ample natural light, and robust ventilation systems to accommodate the physical demands of sculpting. The architectureoftenemphasizesopenworkspaces,material storage areas (for clay, stone, metal, wood, etc.), and advancedequipmentlikekilns,weldingstations,and3D modeling tools. The design may blend industrial practicality with aesthetic inspiration, reflecting the artistic nature of the discipline. Some buildings incorporate exhibition areas to display student work, promoting a dynamic learning environment. Sustainability and safety are also key considerations, withmeasuresfordustcontrol,wastemanagement,and ergonomic workspaces. Overall, the Sculpture DepartmentTeachingBuildingservesasahubforartistic exploration, combining traditional techniques with contemporarytechnologiesinacollaborativeeducational setting.

ImaginaryArchitecturePress.

Planos PLAN VIEWS

Etapa I

Objetivo

Identificarlosmaterialesyrecursos constructivos(todosbasadosencimbra demadera)comoelementos fundamentales,mediantelarelaciónde suspropuestasycaracterísticasysu aplicaciónenunmodelotridimensional paradistinguirmecanismosde optimizacióndelprocedimiento constructivodeunproyectoparticular.

Analisis

Esteespaciohasido conceptualizadoconel objetivodeofreceruna experiencia única a nuestrosvisitantesde la Expo UDLAP, combinando los espacios,estéticayun flujo intuitivo que permita exhibir las carreras de Arquitectura & Ingeniería Civil de maneradestacada.

Analysis

Objective

Identify the materials and construction resources (all based on wooden formwork) as fundamental elements, through the relationship of their proposals and characteristics and their application in a three-dimensional model to distinguish mechanisms for optimising the construction procedure of a particular project.

This space has been conceptualized with theaimofofferinga uniqueexperienceto our visitors to Expo UDLAP, combining spaces, aesthetics andanintuitiveflow that allows us to exhibitthecareersof Architecture & Civil Engineering in a prominentway.

NivelesTopográfico

Los niveles topográficos fueron determinados utilizando un nivel, dividiendoelterrenoen varios sectores para identificarlasdiferenciasde altura y las pendientes desdeelpuntomásalto hastaelmásbajo.Apartir deestosdatos,seelaboróel planoquesepresentaa continuación,elcualservirá comobaseparalaejecución delproyectotridimencional deadecuacióndelterreno.

TopographicLevels

Thetopographiclevelswere determined using a level, dividing the terrain into several sectors to identify differences in height and slopesfromthehighestto thelowestpoint.Basedon this data, the plan presented below was prepared, which will serve as the basis for the execution of the threedimensionalprojectforthe adaptationoftheland.

Fuente:Elaboraciónpropia
Fuente:Elaboraciónpropia
Fuente:Dra.ElizabethVQ

Turn static files into dynamic content formats.

Create a flipbook
Issuu converts static files into: digital portfolios, online yearbooks, online catalogs, digital photo albums and more. Sign up and create your flipbook.
Revista ISSUU MYPC Prim'25 by Maximiliano Flores Miranda - Issuu