A MARGEM - CADERNO 01 TCC - PARTE 01

Page 1

A MARGEM

UM ESTUDO SOBRE A OCUPAÇÃO DE ÁREAS LINDEIRAS AOS CURSOS D’ÁGUA; O CASO DO RIBEIRÃO ANICUNS

CADERNO 01

Há necessidade de terraplanar tudo que é curvo, a reta é doméstica a curva é selvagem - Maria Luz

A MARGEM

UM ESTUDO SOBRE A OCUPAÇÃO DE ÁREAS LINDEIRAS AOS CURSOS D’ÁGUA; O CASO DO RIBEIRÃO ANICUNS

Trabalho de Conclusão de Curso desenvolvido para a obtenção do título de graduação do curso de Arquitetura e Urbanismo na Faculdade de Artes Visuais da Universidade Federal de Goiás.

Orientador: Prof. Me. Lucas Felício Costa

Orientando: Matheus Isaac Rezende da Rocha

Goiânia, Brasil 2020

VÍDEO COMPLEMENTAR

4
Figura 01 | Barco do Corpo de Bombeiros na Rua 4, alagada pelas chuvas do dia 19 de janeiro de 2016, Setor São José, Goiânia, Goiás. (modificado pelo autor)

LAMENTO DE UM RIO… SHEILLA LOBATO

eu não fui feito pra destruir... eu só queria passar.

já fui esperança para os navegantes... rede cheia para pescadores... refresco para os banhistas em dias de intenso calor. hoje sou sinônimo de medo e dor...

mas, eu só queria passar...

me perdoem por suas casas por seus móveis e imóveis por seus animais por suas plantações... eu só queria passar.

não sou seu inimigo não sou um vilão não nasci pra destruição... eu só queria passar.

era o meu curso natural só estava seguindo meu destino mas, me violentaram, sufocaram minhas nascentes desmataram meu leito... quando eu só queria passar.

encontrei tanta coisa estranha pelo caminho... que me fizeram transbordar... muros casas entulhos garrafas lixo pontes pedras paus... tentei desviar ... porque eu só queria passar.

me perdoem por inundar sua história, me perdoem por manchar esta história... eu só estava passando...

seguindo o meu trajeto cumprindo o meu destino: passar....

5

ABSTRACT

This study consists of the first volume of the undergraduate thesis in Architecture and Urbanism. It proposes a possible dialogue on the insertion of rivers in brazilian cities and the ways of occupying the Environmental Preservation Areas bordering water courses for housing purposes. It will discuss the developments that these irregular occupations have on the residents’ lives and on the growth of the city. The object of study chosen is the Anicuns Stream basin, with a cut in the stretch that runs through the São José District, in the city of Goiânia. The analysis of the object and its relationship with the daily life of the region’s residents is the basis for the intervention proposal that reconciles the relocation of families occupying marginal areas and the environmental requalification of areas interrelated with the stream.

Keywords: Anicuns stream; environmental requalification; housing; linear park.

RESUMO

O presente estudo consiste no primeiro volume do trabalho de conclusão de curso em Arquitetura e Urbanismo. Ele propõe um possível diálogo sobre a inserção dos rios nas cidades brasileiras e as formas de ocupação das Áreas de Preservação Ambiental lindeiras aos cursos hídricos, vinculada a questões habitacionais. Nele serão abordados os desdobramentos que essas ocupações irregulares têm sobre a vida dos moradores e sobre o crescimento da cidade. O objeto de estudo escolhido é a bacia do Ribeirão Anicuns, com recorte no trecho que percorre o Setor São José, na cidade de Goiânia. A análise do objeto e sua relação com a vida cotidiana dos moradores da região é a base para a proposta de intervenção que concilia a realocação das famílias ocupantes das áreas marginais e a requalificação ambiental das áreas inter-relacionadas com o ribeirão.

Palavras-chave: ribeirão anicuns; requalificação ambiental; habitação; parque linear.

MARGEM

substantivo feminino

1.

espaço situado no contorno externo imediato de algo; borda, limite externo, periferia (freq. us. no pl.).

"as m. de um bosque"

2.

faixa de terras emersas ou firmes que ladeiam um rio, lago ou lagoa; beira, borda. "o hotel situa-se à m. do lago"

3.

ANATOMIA GERAL borda externa de certos órgãos ou orifícios. "a m. do ânus"

4.

ARTES GRÁFICAS

espaço em branco em volta das páginas de um impresso.

5.

MORFOLOGIA BOTÂNICA m.q. BORDO.

6. faixa estreita de terra lavrada entre dois regos.

7.

FIGURADO (SENTIDO)•FIGURADAMENTE limite, fronteira (freq. us. no pl.).

“a crise deixou-o às margens de um esgotamento”

8.

FIGURADO (SENTIDO)•FIGURADAMENTE medida ou grau de diferença.

“sua vitória nas eleições foi por ampla m.”

FIGURADO (SENTIDO)•FIGURADAMENTE grau de diferença em relação a medida, padrão ou limite estabelecido. “m. de erro”

9.

ECONOMIA

depósito de garantia que o comprador deposita em operações efetuadas na bolsa de valores.

10.

FIGURADO (SENTIDO)•FIGURADAMENTE ensejo, oportunidade; motivo, pretexto.

“a ambiguidade de suas palavras deu m. a deturpações”

Origem

⊙ ETIM lat. margo,ĭnis‘borda, margem etc.’

8

VÍDEO COMPLEMENTAR

Rastro de lama, registrado no dia seguinte a enchente de 19 de janeiro de 2016, Setor São José, Goiânia, Goiás. (modificado pelo autor)
9

SUMÁRIO

10

PRIMEIRO AFLUENTE: ABERTURA

Introdução

Problematização

Justificativa

Objetivo

Metodologia

SEGUNDO AFLUENTE: TEMA

Os rios e as cidades

Ocupações marginais

O Ribeirão Anicuns e Goiânia

TERCEIRO AFLUENTE: ESTUDO DO PROGRAMA

Projeto Urbano Ambiental Macambira Anicuns

QUARTO AFLUENTE: DIAGNÓSTICO DO LUGAR

Escolha do Lugar

Relevo

Vegetação e Hidrografia

Definições do Plano Diretor

Ocupação e Regularização Fundiária

Hierarquia de Vias e Mobilidade

Panorama Geral

Histórias

QUINTO AFLUENTE: PROGNÓSTICO

Áreas de intervenção

Diretrizes Gerais

Diretrizes Específicas

Próxima Etapa

SEXTO AFLUENTE: CONSIDERAÇÕES FINAIS

Siglas

Crédito das imagens

Referencial bibliográfico

Endereço das reportagens

Endereço dos vídeos

Agradecimentos

13 19 31 39 73 87 11
primeiro afluente 13
abertura

INTRODUÇÃO

A formação das cidades, sejam elas previamente planejadas ou de desenvolvimento espontâneo, um pequeno vilarejo ou uma metrópole, depende do atendimento de alguns requisitos básicos. A provisão de água, um elemento essencial para a sobrevivência humana, faz com que as cidades geralmente se formem em torno de cursos hídricos ou reservas subterrâneas. É a partir da garantia desta necessidade básica que os assentamentos humanos podem se desenvolver. Segundo a Agência Nacional de Águas e Saneamento Básico, estima-se que o Brasil possua cerca de 12% da disponibilidade de água doce do planeta (ANA, 2020). Essa abundância de água que se materializa em rios, ribeirões, córregos, riachos, lagos e lagoas foi o elemento definidor na história da constituição de muitas das cidades brasileiras (GANDARA, 2008), atuando também como um indutor de identidade da paisagem urbana. No entanto, muita das vezes, os recursos hídricos que dispuseram como indispensáveis para o surgimento e desenvolvimento das mesmas, têm sido devastados ou em prol de um desenvolvimento econômico insustentável ou por causa do inchaço populacional. Cidades como Recife (PE) [Fig. 03], São Paulo (SP) [Fig. 04] ou Viana (ES) [Fig. 05], onde a água se caracteriza como marco determinante para formação e consolidação das mesmas, exemplificam esse cenário em que a existência dos assentamentos humanos estabeleceram relações predatórias com os rios.

O caso da cidade de Goiânia, que teve seu plano urbanístico inicialmente projetado por Attílio Corrêa Lima em 1933, é um exemplo da articulação entre o desejo político de se implantar uma nova cidade no Brasil central com a justificativa de se tornar a capital do estado de Goiás. A escolha prévia de um sítio que atendesse a essa justificativa se deu por fatores como a proximidade à vila de Campinas - que deu suporte para a fundação da cidade - e as características ambientais da área - abundância de recursos hídricos e a predominância como região de planície. No detalhamento do projeto, a implantação previa bosques e parques junto aos cursos d’água que circundavam o perímetro urbano inicialcompreendidos pelos córregos Botafogo, Buriti e Capim Puba e suas respectivas nascentes - formando assim um cinturão verde de transição na relação com seu entorno rural imediato (OLIVEIRA; BEKER; DOMINGOS, 2019).

O plano [Fig. 07] elaborado por Attílio Corrêa Lima (1901-1943) representava a vanguarda urbanística do início do século XX ao adotar as largas avenidas

Figura 03 | Margens do Rio Capibaribe no Recife (PE). Figura 04 | Margens do Rio Tietê, São Paulo (SP).
14
Figura 05 | Margens do Rio Formate, Viana (ES).

direcionadas à um ponto focal, resgatando o princípio do traçado urbanístico barroco de Versalhes, patte-d’oie (Pata de Ganso). Em Goiânia, a Avenida Goiás, Tocantins e Araguaia correspondem à três vias que coincidem e estão direcionadas à um ponto comum - a Praça Cívica [Fig. 06] - e é a partir deste ponto focal que identificamos a articulação entre o plano das avenidas e a intenção de preservação dos recursos naturais. Apesar das modernas propostas feitas pelo arquiteto, muita das intenções de preservação [Fig. 08] idealizadas para a nova capital não resistiram a ganância do progresso e foram devoradas pela expansão urbana.

Em meio a uma crise socioambiental provocada pelo crescimento desenfreado das cidades e do consumo, chama a atenção a maneira negligente com que muitas vezes a gestão pública brasileira da urbes têm tratado este elemento essencial para a manutenção da vida. Retomando o caso de Goiânia, de acordo com a Agência Municipal do Meio Ambiente (AMMA):

[...] todos os 85 cursos d’água catalogados que cortam a cidade estão poluídos ou contaminados, em maior ou menor grau, sofrendo ainda com outros problemas na área urbana da cidade. O Ribeirão Anicuns é classificado como o mais poluído dentre todos, sendo o seu principal afluente o Córrego Macambira. A bacia hidrográfica formada por esses dois cursos d’água é a mais representativa de Goiânia, responsável pela drenagem de aproximadamente 70% da área urbana. (PUAMA, 2011, p.1)

Neste cenário de crise socioambiental, que desdobra-se em um problema futuro do abastecimento da capital e região metropolitana, o Ribeirão Anicuns se destaca como possibilidade para a garantia da provisão de recursos hídricos. No entanto, apesar de sua notória importância para a cidade, o ribeirão sofre um amplo processo de degradação há mais de 40 anos e já tem cerca de 53% de sua Área de Preservação Permanente (APP) - uma garantia legal - ocupada devido ao crescimento urbano. Parte dessa área é preenchida por residências e edificações e outra parte já está loteada para construções futuras (O HOJE, 2017).

A despeito das leis de preservação ambiental, de saneamento básico e dos planos diretores das cidades, as áreas lindeiras aos cursos hídricos são frequentemente ocupadas por uma população de baixo poder aquisitivo devido a dificuldade de acessar o mercado formal de imóveis, embora também existam ocupações irregulares realizadas pelas classes média e alta (CORREIO BRAZILIENSE, 2019). A margem torna-se uma possibilidade para habitar, mas usualmente é uma

habitação precária, em áreas de risco de enchentes e deslizamentos, com descartes irregulares de resíduos sólidos e esgotamento clandestino, o que aumenta ainda mais a situação de vulnerabilidade. Frequentemente os gestores públicos propõem a canalização dos rios e a construção de vias de escoamento do tráfego como soluções para as ocupações marginais, no entanto, a consequência desse modelo resolutivo desqualifica a área que se intenta preservar e destrói o curso natural do rio, que passa a ser retido por bordas de concreto, isso tudo sem solucionar o problema habitacional gerador dessas ocupações. Todos esses fatores nos levaram a refletir sobre o que se configura como eixo central deste trabalho, a dinâmica entre habitação e margens.

PROBLEMATIZAÇÃO

A partir da observação dessas informações que relacionam a formação das cidades, os rios e as ocupações marginais, este trabalho assume como questionamentos direcionadores: de que maneira Goiânia se relaciona com o Ribeirão Anicuns e seus outros cursos hídricos? Como os moradores lindeiros ao ribeirão respondem a soluções do habitar? De que modo o ribeirão interfere na vida cotidiana dos moradores lindeiros? Quais são as possíveis abordagens para a relação entre preservação ambiental e carência habitacional no contexto urbano?

JUSTIFICATIVA

Este trabalho tem como justificava, a partir dessas questões apresentadas, investigar a problemática decorrente da ocupação das margens desse importante recurso natural goianiense; seja pela população mais pobre que busca resolver sua necessidade de moradia, pelas empresas que usufruem da área para reduzir custos operacionais ou pela gestão pública que intervém como agente conciliador dos interesses. A proposta do estudo permitirá, a partir de um recorte que trata da interlocução do Setor São José com o Ribeirão Anicuns - área de recorrentes alagamentos e que sofre com a precarização da moradia - a análise de um caso específico, mas que poderá ser replicado como uma possível leitura em outras cidades brasileiras, já que se trata de um problema comum em grande parte delas.

OBJETIVO

O objetivo final do trabalho está concentrado em propor uma resolução criativa frente a questão da precariedade habitacional relacionada às áreas de inundação marginal ao Ribeirão Anicuns, de modo que as famílias que necessitam ser realocadas mantenham suas relações sociais e afetivas com o bairro. Tendo

ABERTURA 15

em vista que o Programa Urbano Ambiental Macambira Anicuns (PUAMA) corresponde a um conjunto de ações focadas essencialmente na questão ambiental e sua sustentabilidade, mas ainda não foi completamente implantado, inclui-se na proposta espaços que anexados ao PUAMA atendam as necessidade de cultura, lazer e contemplação da população local. Considerando a importância da preservação ambiental de seu leito para a manutenção da vida na cidade, almeja-se criar oportunidades de interação para assim ressignificar as relações identitárias entre moradores e o ribeirão.

METODOLOGIA

Este trabalho se apoia inicialmente na revisão bibliográfica de autores que discorram sobre rios, cidades e habitação. Através da leitura da dissertação de mestrado desenvolvida por Gorski (2008), onde a autora relaciona Rios e Cidades sobre o aspecto das rupturas e reconciliações, busca-se entender os impactos da urbanização no processo de degradação dos rios e observar casos de experiências relevantes na abordagem do problema; já na leitura de trabalhos desenvolvidos por Maricato (2003), onde a autora aborda assuntos como: metrópole, legislação, desigualdade e violência, buscase entender como a falta de alternativas habitacionais repercute na ocupação ilegal e predatória de terras urbanas.

Metodologicamente este trabalho se divide em três fases elementares, são elas: a leitura e revisão bibliográfica/sensibilização ao tema; diagnóstico técnico/subjetivo (diálogo com moradores); e prognóstico. Deste modo propõe-se o estudo dos autores citados anteriormente com a finalidade de construir um sólido embasamento teórico. Depois, será feito um levantamento cartográfico analítico através de Sistema de Informação Geográfica (GIS) em bases de dados oficiais/institucionais/governamentais. Também serão consideradas para fins de captação de informações a análise de vídeos, reportagens e publicações acadêmicas ou não, que estejam relacionadas de alguma maneira com a área de estudo escolhida. Posteriormente serão examinados e revisados os dados sobre o PUAMA emitidos pela equipe técnica da Prefeitura Municipal de Goiânia. Para além do levantamento técnico, se propõe também a coleta de relatos de moradores que sofreram e sofrem com as enchentes na área de recorte escolhida para a análise. Após o estudo das informações levantadas, será feita a elaboração de diagnóstico para avaliar a situação presente. Através de interpretações baseadas no diagnóstico será obtido prognóstico prévio das possibilidades futuras relacionadas ao locus estudado. Por fim serão traçadas as diretrizes que irão orientar os

modos de enfrentamento do problema ambiental sem que se crie por conseguinte um problema social, haja vista as diferentes escalas de impacto de uma possível intervenção.

ABERTURA 16
Figura 08 | Vista aérea da implantação de Goiânia, Goiás, no final da década de 40. Figura 07 | Plano de Attílio Corrêa Lima para Goiânia desenvolvido entre 1933 e 1935. (modificado pelo autor)
AEROPORTO AV. GOIÁS CÓRREGO BOTAFOGO CÓRREGO CAPIM PUBA CÓRREGO DOS BURITIS RIO MEIA PONTE RIBEIRÃO ANICUNS AV. ARAGUAIA AV.TOCANTINS REPRESA DO JAÓ 17
Figura 06 | Vista aérea da Praça Cívica, espaço que abriga a sede do governo estadual e outras repartições públicas, no passado foi o núcleo inicial da nova capital goiana e corresponde ao atual centro de Goiânia (G0). POVOADO DE CAMPINAS

TEMA SEGUNDO afluente

19

OS RIOS E AS CIDADES

A água é um elemento fundamental para a existência da vida aos modos em que conhecemos, toda diversidade da fauna e flora dependem intrinsecamente dessa substância. Em culturas ancestrais ela representa não apenas a subsistência do corpo físico, mas é a materialização da própria deidade e sua força, carregando em si suas histórias e símbolos. Na dinâmica da sobrevivência o ser humano se apropriou desse recurso natural não apenas para consumo próprio, mas também para a irrigação de plantações, criação animal, pesca, abastecimento industrial, geração de energia, turismo, lazer e transporte. A água se configura então como parte essencial não apenas para a vida do homem, mas também para a vida da cidade dos homens. No caso do Brasil, muitas cidades mantém uma relação ambígua com seus cursos hídricos. Segundo Assad:

[...] as cidades os abraçam para crescer e se desenvolver, criando importante laço para o desenvolvimento urbano e agrícola, mas os destroem, ao torná-los o principal meio de escoamento de esgoto. Os rios sofrem com a poluição, o assoreamento, o desvio de seus cursos e com a destruição das matas ciliares; e a beleza da paisagem fica obstruída pelo mau cheiro, mudança de coloração, incapacidade de uso original de seus recursos. (ASSAD, 2013, p. 6)

A relação conflituosa entre o rios e o crescimento das cidades tem aumentado em escala e proporção no Brasil desde que se intensificou o processo migratório

do meio rural para o urbano no final da primeira metade do século XX. Esse processo - característico de nossa época de intenso progresso técnico - foi ocasionado, em parte, por causa da substituição gradativa da mão de obra humana pela utilização de novas tecnologias de cultivo e colheita, o que proporcionou um aumento significativo da produção agrícola. Já os processos de megalopolização das cidades latino-americanas durante a segunda metade do século XX, segundo Freitag (2006), são mais resultados da globalização da economia de mercado do que frutos de seu passado histórico colonial. Segundo a autora o crescimento descontrolado, desregrado da população urbana, que faz transbordar os limites naturais e administrativos da cidade, tornando-a insustentável é uma característica estrutural da megalopolização. Esse crescimento, que tornou comum cidades com mais de um milhão de habitantes, tem impactos diretos na redução da qualidade de vida e no avanço da degradação ambiental.

Levando em consideração os impactos crescentes das atividades humanas na terra e na atmosfera - impactos esses que abrangem todas as escalas possíveis e irão perdurar por muitos anos - se evidencia o papel central da humanidade na geologia e na ecologia. Ao observar a humanidade como força geológica, no momento em que atinge o cúmulo do metabolismo social, Paul Crutzen e Eugene Stoermer

Figura 09 | Vista da Marginal Botafogo em Goiânia, Goiás.
TEMA 20

(2000) nos introduzem a noção de que estamos em uma nova era geológica, o Antropoceno, cujas intervenções humanas, embora representem um curto período de tempo na história do planeta, registram nas camadas geológicas grandes impactos. Segundo Krenak (2009), o Antropoceno tem um sentido incisivo sobre a nossa existência, a nossa experiência comum, a ideia do que é humano. O nosso apego a uma ideia fixa de paisagem da Terra e de humanidade é a sua marca mais profunda.

[...] se nós imprimimos no planeta Terra uma marca tão pesada que até caracteriza uma era, que pode permanecer mesmo depois de já não estarmos aqui, pois estamos exaurindo as fontes da vida que nos possibilitaram prosperar e sentir que estávamos em casa [...] (KRENAK, 2009, p. 23)

Os avanços tecnológicos ampliaram a capacidade de intervenção humana no meio natural de tal modo que possibilitaram a construção de grandes hidrelétricas, barragens, pontes, transposição de rios, edifícios em altura, comunicação e transporte de alta velocidade, até mesmo a chegada do homem a Lua; parecendo assim ou não haver limites intransponíveis ou a pretensa potencialidade humana de domínio da natureza.

O que Crutzen e Eugene chamaram de Antropoceno se reflete diretamente nas políticas econômicas adotadas durante essa nova era; no

Brasil, esse processo desencadeou no começo do século XX um modelo político conhecido como Desenvolvimentismo. Esse modelo visava acelerar o processo de industrialização e superar a condição de subdesenvolvimento do país, o que levou à adoção de incentivos para a indústria automobilística, à abertura de estradas e à criação de Brasília. Um dos resultados do modelo adotado foi o aumento na frota de veículos individuais, o que consequentemente levou a necessidade de construir mais vias para acomodar as pessoas e automóveis. Os cursos d’água foram desta maneira suprimidos, ao passo que foram canalizados para a construção de vias marginais. Dando espaço para os carros, eles foram transformados em paisagens secundárias.

Não diferente de outras cidades brasileiras que canalizaram seus rios urbanos e construíram vias marginais, Goiânia iniciou na década de 1990 o processo de retificação de dois importantes córregos, o Botafogo [Fig. 09] e o Cascavel. O crescimento populacional acelerado nas últimas décadas teve consequências diretas na urbanização da capital e como solução para desobstruir o trânsito crescente de veículos os córregos foram canalizados e suas margens transformadas em marginais (SANTOS; ROMÃO, 2007). Todo esse processo transforma o espaço que antes seria de preservação permanente em área de possível ocupação e especulação.

Figura 10 | Córrego Botafogo transborda após chuva do dia 05 de abril de 2018
21

O aumento da impermeabilização urbana tem influência direta sobre o escoamento superficial, isso somado ao escoamento das redes de drenagem contribui para a ocorrência de vazões de pico cada vez maiores e mais rápidas. Se consideradas ainda as intervenções no meio físico natural dos rios e as ocupações intensas a despeito das leis de proteção ambiental, a ocorrência de fenômenos naturais como as inundações [Fig. 10] são cada vez mais frequentes e trazem resultados catastróficos para as populações locais (SANTOS; ROMÃO, 2007).

Quase trinta anos depois de iniciadas, as marginais Botafogo e Cascavel [Fig. 11] em Goiânia ainda estão em ampliação, reproduzindo um modelo político de gestão e intervenção consolidado no país, mesmo que já esteja evidencialmente provada a ineficácia dos métodos resolutivos adotados para questões como tráfego intenso e controle de ocupação.

Os rios urbanos têm sido encarados, na maioria das vezes, como objetos problemáticos que precisam sofrer intervenções para se adequarem às cidades, no entanto, a natureza não se conforma aos limites impostos pelo homem. Segundo Gorski:

Em certas regiões do Brasil, as populações ribeirinhas tiveram, e têm ainda, seu cotidiano associado ou abastecido pelos rios e córregos. Assim, a água é utilizada na habitação, na ativação de engenhocas, como o monjolo ou roda d’água, e está presente em espaços de lazer, como o futebol de várzea. O leito fluvial serve, ainda, para o deslocamento, para lavagem de roupas e atividades extrativistas, como a pesca, e para a mineração de pequena escala, de areia, argila e pedras. (GORSKI, 2010, p. 27)

Tendo isso em vista, seria possível então o estabelecimento de uma abordagem pacífica que potencializasse o espaço e a relação humana com os cursos hídricos no contexto das cidades?

22
Figura 11 | Obras viárias no Córrego Cascavel em Goiânia, Goiás.

OCUPAÇÕES MARGINAIS

Para se proteger das adversidades climáticas e de animais selvagens o homem primitivo começou a se recolher em abrigos naturais como cavernas. A medida que foi se tornando habilidoso no uso de ferramentas, pôde então modificar o espaço em que vivia, até o ponto em que se tornou capaz de construir o seu próprio abrigo. A evolução da habitação está então diretamente associada à evolução da humanidade.

Morar se caracteriza como uma necessidade básica de sobrevivência do ser humano. Essa necessidade foi reconhecida como um direito fundamental na Declaração Universal dos Direitos Humanos elaborada por uma comissão da Organização das Nações Unidas (ONU) em 1948 e posteriormente aprovado como direito constitucional brasileiro em 1988. Atualmente, todos os 193 países-membros são signatários da declaração, reconhecendo que:

Toda pessoa tem direito a um padrão de vida capaz de assegurar a si e a sua família saúde e bem-estar, inclusive alimentação, vestuário, habitação , cuidados médicos e os serviços sociais indispensáveis, e direito à segurança em caso de desemprego, doença, invalidez, viuvez, velhice ou outros casos de perda dos meios de subsistência em circunstâncias fora de seu controle. (Art. XXV da Declaração Universal dos Direitos Humanos)

O Estado brasileiro enquanto membro da ONU, reconhece também no artigo 6º da Constituição

Federal de 1988 como direitos sociais: a educação, a saúde, a alimentação, o trabalho, a moradia, o transporte, o lazer, a segurança, a previdência social, a proteção à maternidade e à infância, e a assistência aos desamparados (Emenda Constitucional nº 90, de 2015). Todos esses direitos estão intrinsecamente ligados à questão habitacional, uma vez que ao não proporcionar a todos cidadãos moradia digna, segura, com acesso a infraestrutura social e sanitária, nega-se também os direitos inter-relacionados.

Quando o Estado, por meio dos governos, falha em prover condições de vida igualitárias e justas a todos, as pessoas são submetidas a circunstâncias humilhantes para sobreviver. Esse processo revela a face nefasta do nosso modelo político econômico, que subjuga os que não tem poder aquisitivo suficiente para adquirir um imóvel através do mercado formal a condições subumanas. Alguns conseguem solucionar a necessidade de habitar ao construir suas próprias moradias, mesmo sem nenhum auxílio técnico e na maioria das vezes de modo precarizado. Essas pessoas são classificadas marginalmente ao constituírem seu próprio abrigo em espaços inadequados, não obstante às leis e normas regulamentadoras, porém conseguem desta maneira materializar os limites que parecem intrínsecos a essência do ser humano. Mas existem ainda aqueles que nem sequer tem um teto sobre suas

TEMA 23
Figura 12 | Vista da rua Um Dez na Vila Roriz em Goiânia, Goiás.

cabeças, pessoas que passam a ser invisibilizadas pela sociedade. As ocupações em áreas muito próximas aos cursos d’água se dão na maioria das vezes dentro dessa dinâmica na busca por moradia, no entanto não é a sua única causa.

A explosão demográfica no território brasileiro associada à dificuldade de acesso aos serviços e produtos que a vida na cidade proporciona é uma das causas das ocupações marginais. Segundo o Instituto Brasileiro de Geografia e Estatística (IBGE), a população brasileira cresceu 367,23% entre 1950 e 2010; enquanto a população rural diminuiu 10,05% a população urbana cresceu 856,77% no mesmo período. Esse crescimento acompanha o déficit habitacional urbano, que segundo estimativas da Fundação João Pinheiro, em 2015 correspondia a 5,572 milhões de domicílios.

obras de infra-estrutura urbana. Em muitos casos, os problemas de drenagem, risco de vida por desmoronamentos, obstáculos à instalação de rede de água e esgotos torna inviável ou extremamente cara a urbanização futura. (MARICATO, 2003, p. 158)

Segundo Maricato (2003) a ocupação ilegal de terras urbanas é parte intrínseca desse processo migratório campo/cidade. A falta de alternativas habitacionais, seja via mercado privado, seja via políticas públicas sociais é, evidentemente, o motor que faz o pano de fundo dessa dinâmica de ocupação ilegal e predatória de terra urbana.

A tolerância pelo Estado em relação à ocupação ilegal, pobre e predatória de áreas de proteção ambiental ou demais áreas públicas, por parte das camadas populares, está longe de significar uma política de respeito aos carentes de moradia ou aos direitos humanos. A população que aí se instala não compromete apenas os recursos que são fundamentais a todos os moradores da cidade, como é o caso dos mananciais de água. Mas ela se instala sem contar com qualquer serviço público ou

Uma breve investigação sobre a dinâmica das cidades brasileiras pode revelar essa relação direta entre degradação ambiental e as ocupações irregulares produzidas pela população de baixo poder aquisitivo. No entanto, isto não quer dizer que o Estado e o mercado imobiliário não sejam também agentes causadores de expressivos danos ao meio ambiente. Mesmo que após a promulgação da lei de Proteção aos Mananciais (1975) a terra em áreas de preservação tenha perdido valor para o mercado imobiliário legal, ela não deixou de ser uma área de grande interesse e especulação. Exemplo desse interesse é a construção de condomínios verticais próximo a parques de lazer e proteção ambiental - espaços públicos coletivos - onde provocam rebaixamento do lençol freático ao bombear constantemente a água do subsolo. Ou podemos mencionar também as avenidas marginais que canalizam os córregos e liberam para ocupação áreas que antes eram de preservação, incentivando a especulação imobiliária. Independente do agente causador que ocupa essas áreas de proteção, as consequências deste processo atingem toda a cidade, mas especialmente as camadas mais pobres. Verificaremos situação semelhante, no objeto de estudo ao qual esta pesquisa se atém. Em Goiânia, enquanto no bairro Jardim Goiás [Fig. 17] os grandes edifícios - ocupação de alto padrão à revelia dos impactos ambientais - fazem constante bombeamento da água de seus subsolos para uso de garagens, o caso da bacia do Ribeirão Anicuns se revela como um exemplo de desarticulação entre ocupações marginais [Fig. 12 e 15] e a gestão do espaço ambiental à medida que ou constroem-se vias marginais [Fig. 16] ou ocupa-se deliberadamente suas margens sem que haja a mínima preocupação com desdobramentos negativos dessas ações.

População Brasileira 1950 Percentual 2010 Percentual Rural 33.161.506 63,84% 29.830.007 15,64% Urbana 18.782.891 36,16% 160.925.792 84,36% Total 51.944.397 100,00% 190.755.799 100,00%
Figura 13 | Grafico do crescimento demografico brasileiro por situação de domicílio entre 1950 e 2010. Figura 14 | Tabela comparativa da população brasileira em área rual e urbana de 1950 e 2010.
TEMA 24
Figura 17 | Asfalto danificado pelo lançamento contínuo de água, bombeada do subsolo de edifícios próximos ao Parque Flamboyant em Goiânia. Figura 16 | Trecho da Marginal Botafogo próximo ao viaduto da Avenida Araguaia onde o asfalto cedeu após fortes chuvas.
25
Figura 15 | Vila Roriz, região Norte de Goiânia, no encontro do Ribeirão Anicuns com o Rio Meia Ponte.
1 2 3 3 4 5 6 6 6 6 9 10 10 10 11 12 13 14 15 16 17 18 19 20 21 22 23 25 26 24 24 21 7 8 8 5 5 1 0 1000 3000 5000 N
1 - CÓRREGO DA CRUZ 2 - CÓRREGO FORQUILHA 3 - CÓRREGO QUEBRA ANZOL 4 - CÓRREGO SAMAMBAIA
10
11 -
12 -
13 -
RIO MEIA PONTE LEGENDA RIBEIRÃO ANICUNS CÓRREGOS AFLUENTES CENTRO DE GOIÂNIA
CÓRREGO
CÓRREGO
CÓRREGO
CÓRREGO
CÓRREGO
CÓRREGO
CÓRREGO
- CÓRREGO SANTA HELENA
- CÓRREGO CAPIM PUBA
- CÓRREGO BURITI (SUBTERRÂNEO) 24 - CÓRREGO BOTAFOGO 25 - CÓRREGO AREIÃO 26 - CÓRREGO SUMIDOURO 26
5 - CÓRREGO CAVALO MORTO 6 - CÓRREGO SALINAS 7 - CÓRREGO SÃO JOSÉ
8 - NASCENTE MORRO DO MENDANHA 9 - CÓRREGO TAQUARAL
- CÓRREGO CAPÃO COMPRIDO
CÓRREGO SANTA RITA
CÓRREGO PINDAIBA
CÓRREGO MACAMBIRA
14 -
BURITI 15 -
BURITIS 16 -
CAPUAVA 17 -
CASCAVEL 18 -
DO MINGAU 19 -
SERRINHA 20 -
VACA BRAVA 21
22
23

O Ribeirão Anicuns juntamente com os seus afluentes correspondem à mais abrangente e importante bacia hidrográfica do município de Goiânia. Ela é composta por mais de trinta e oito nascentes, que dão início aos vinte e seis córregos, formando assim o ribeirão que depois deságua no rio Meia Ponte. A bacia hidrográfica do Ribeirão Anicuns está localizada em sua totalidade na região metropolitana do município de Goiânia com aproximadamente 80% de área urbanizada. Esta bacia abrange um total de 688 bairros que variam de baixa a alta densidade urbana (RIBEIRO; PAULA NETO; OLIVEIRA; SIQUEIRA; OLIVEIRA; OLIVEIRA, 2018).

Goiânia cresce e se desenvolve abraçada a esta importante bacia hidrográfica, mas tem destruído sua vitalidade. Por causa de sua abrangência, ela é responsável pela drenagem da maior parte da área urbana; com o aumento da impermeabilização urbana e consequente aumento da vazão, a ocorrência de desastres naturais tem acontecido com mais frequência, levando em consideração a influência das ocupações irregulares para a ocorrência dos mesmos. Ao longo do perímetro urbano do ribeirão podem ser encontradas ocupações de caráter residencial (unifamiliar ou multifamiliar), comercial, industrial, institucional e lazer, mas a predominância é de ocupações residenciais nas Áreas de Preservação Ambiental (HORA; RIBEIRO; OLIVEIRA; MARQUES, 2016).

A intensa ação antrópica sobre a bacia do Ribeirão Anicuns tem atingido não apenas a fauna e flora nativa do Cerrado na região em que está inserida, como também o cotidiano do próprio homem. Segundo Caixeta:

Vítimas da ação humana depredadora e do descaso do poder público, os mananciais de Goiânia especialmente em época de chuvas reagem à degradação que vem sofrendo há anos. Erosão das margens dos córregos, supressão da mata ciliar e o assoreamento são alguns dos problemas causados pela ocupação desordenada da cidade e que podem levar à destruição dos cursos d’água, além de ameaçar os próprios moradores das áreas ribeirinhas. (CAIXETA, 2009, p. 617)

As principais agressões que afetam diretamente os cursos d’água goianiense segundo Caixeta (2009) são: os despejos de resíduos sólidos, como entulho industrial e pneus, os esgotos, lixos domésticos, utilização de fossa séptica em loteamentos e ocupações irregulares de brejos.

Embora seja possível constatar visível e olfativamente a poluição do ribeirão e seus afluentes, ainda existem pessoas que continuam utilizando suas águas para atividades como pesca, irrigação e banho. Ainda que hajam algumas iniciativas do poder público municipal direcionadas a preservação e recuperação dos mananciais e cursos hídricos, parece distante e até mesmo utópico imaginar que um dia será possível pescar, beber e banhar novamente direto das águas do Anicuns com tranquilidade.

O Ribeirão anicuns e goiânia
TEMA 27
Figura 18 | Mapa da bacía do Ribeirão Anicuns e o Rio Meia Ponte em Goiânia, Goiás.

Aqui está apresentada uma compilação de reportagens sobre a Bacia do Anicuns e Goiânia, organizadas em ordem cronológica, que indicam tanto a dimensão utópica como a dimensão catastrófica na relação dinâmica entre os rios, a cidade e os moradores.

veja algumas reportagens

Macambira Anicuns visa melhorar a qualidade de vida, afirma prefeito

Parque Ambiental Macambira

Ocupação ameaça parques

Áreas feitas por construtoras correm risco por causa do excesso de construções nos arredores.

Paulo Garcia diz que programa promoverá ‘requalificação urbana’ em Goiânia. Previsão é que 30% do projeto seja entregue até o fim da atual gestão.

Maior parque linear da América Latina protege espécies nativas da flora de Goiânia

Retirada de areia prejudica ribeirões da capital

Ação gera impacto ambiental e não é regulada. O problema se arrasta por anos, fere o Código Florestal Brasileiro, mas segue sem qualquer coibição em Goiânia.

Reassentamento de população pelo Programa Urbano Ambiental Macambira Anicuns

A liberação do território de implantação do PUAMA deve seguir exigências de reassentamento do BID.

Chuva deixa 700 desalojados em Goiânia

O volume de chuva que atingiu goiânia desde terça-feira (19) deixou 700 pessoas desabrigadas. A informação foi divulgada pelo Corpo de Bombeiros e pela Defesa Civil Municipal na manhã desta quarta-feira (20).

Chuva alaga Urias Magalhães e Vila Roriz

De acordo com a Defesa Civil, a prefeitura realizou intervenções no local para impedir que os problemas se repetissem, mas a drenagem ainda é insuficiente.

Nova onda de urbanização

A construção do Parque Urbano Ambiental Macambira-Anicuns está apenas no início, mas já alavancou uma nova onda de urbanização e verticalização nas Regiões Sudoeste e Oeste de Goiânia.

Nascentes do Ribeirão Anicuns estão ameaçadas, em Goiás

Área que deveria ser protegida está sendo desmatada para virar pasto.

Parque Flamboyant: Prefeitura de Goiânia, Amma e 17 prédios são acionados para adequação ambiental

Apuração do MP confirmou que vários desses empreendimentos realizavam o rebaixamento do lençol freático e que essa providência já estava comprometendo a zona de saturação que mantém a lâmina de água dos lagos do parque.

temporal que atingiu a região metropolitana de Goiânia na tarde desta quinta-feira (14).

Ocupações irregulares afetam Goiânia

População vive sem água, luz ou qualquer tipo de benefício urbano. Bairros não possuem asfalto e, muitas vezes, condições das habitações são precárias

Resta só 13% de vegetação

Especialistas admitem mudança no regime de chuvas, mas apontam retirada da vegetação e impermeabilização como causas da redução da água no período de seca.

Anicuns perdeu metade de suas margens para ocupações

Uso das faixas bilaterais chega a 50%, sendo 28% de lotes regularizados. Situação ocorre em outros cursos d´água e demonstra ineficácia do poder público.

Goiânia tem 57 pontos de alagamento; veja locais

Defesa Civil alerta que, se água estiver a 20 centímetros de altura, o condutor já deve estacionar e deixar o veículo. No temporal da última noite, um motociclista morreu ao ser levado pela enxurrada.

Chuva derruba muro de clube, inunda prédios, destrói marginal e transforma viaduto em cachoeira em Goiânia

Estragos, ruas alagadas, asfalto arrancado, trânsito parado, veículos com problemas, motoristas se arriscando. Estes foram apenas alguns dos problemas enfrentados no

Goiânia caminha para ser uma São Paulo no período de chuva

Cientistas afirmam que, devido ao regime de chuvas, capital goiana sofrerá tanto quanto a maior cidade do País caso continue impermeabilizando o solo .

Líquidos amarelo e azul poluem Ribeirão Anicuns, em Goiânia

Polícia investiga se empresas lançam esgoto por conta própria ou se é a Saneago que está despejando resíduos sem tratamento adequado.

ESTUDO do programa TERCEIRO afluente

31

19

do Programa Urbano Ambiental Macambira Anicuns e área de influência.

LEGENDA S

Travessias novas ou substituição total

Travessias existentes que sofrerão recuperação

Área de interesse da Secretaria de Educação

Área de interesse da Secretaria de Saúde

Setores de implantação do Programa

Bairros na área de influência direta

Glebas

Hidrografia

Área de estudo parque linear (versão 2011)

Parque Macambira (versão 2010)

Parque da Pedreira (versão 2011)

Parque das Águas

LEGENDA S

Travessias novas ou substituição total Travessias existentes que sofrerão recuperação

Área de interesse da Secretaria de Educação

Área de interesse da Secretaria de Saúde

Setores de implantação do Programa

Bairros na área de influência direta

Glebas

Hidrografia

Área de estudo parque linear (versão 2011)

Parque Macambira (versão 2010)

Parque da Pedreira (versão 2011)

Parque das Águas

R i b e i r ã o A n i c u n s R i b e i r ã o A n i c u n s C ó r e g o M a c a m b i r a V F S P g S P i Vl C emente L Pano ama Parq e Res Itama aca S Ur M galhã Res P im R Mo umb Res B hel Lo G iâ ia 2 S Urias M galhã II V São L ernandes V V andelli V Jacaré V Santa He ena V Santana V São Pau o V Sã José Extensão Esp do A ic C Rodov á o Bro Ind ia M V MC ple t Re C dade Ve de Jd Leb on I Jd Pampu ha Ch Santa R V P d V Irany S Jardim A F á ia S Crimé a L t Res A ic R S t Ma a B o Goiá 2 Complemen o Jd P óp li B o Goiá B Goiá S t Veloso L C p Residenc a Privê S C t Oeste V Paraíso V São F is V Is Jd Xavier Cj P d Pelágio V Vera C uz V Mooca V Canaã V Nova C ã Cj Guadalaja a B o Nossa S h d Fá im V Adélia e II Con S t R B Goiá 2 V Santa Rit B o Cidade Jardim Res J d L blo B o Ipira ga B o São ncisco B o C p S São J é V Ofug C Mo ada No C Yara Res Parque M d h V João V S C imé Oe t V Is Ex ensão V R V M á V Adél B o San a Rita C S t R6a e apa Con San a R a7 t p Fl g Jd Presidente Jd E p V Anch e a P q A h gü II Jd P ana o Res Jard m Flo ç Jd P id - Ex ensão Jd P esiden e - E ã V Sa a R ta 5 Et p C S Rit - 9 e apa S Ga ave o V Luciana S Ul Guimarães Con Santa Rit - 2 p P q d P in ir V E apa P q d Paineiras III E apa P q das P in ir II E apa P q d Paineiras Jd Tancredo Neves Res Mon e Car Ch D Gê Cjr C h ir Do d Res San a Rita - 4a p V San a R a - 5 t p VLG Veneza S Novo Hor zon e R Aquários II S T ê M ia L Fa çalville Jd Vila B P q Oe Indus ia Ex ensão Res Granville Jd Presidente - Ex ensão R Espanha Jd Atlâ ico S Ri Formoso Lo C in P k Jd Europa V Resende F a Geba G ba G ba G ba G e G eba G a G ba G eba G ba G Gle ba G Gle G ba G ba G eb G ba Geba G e ba G ba Gl ba Geba G ba Geba Geba G b Geba G ba G ba ba G ba G ba e ba G ba G ba Res Geba G b G ba Geba G ba e ba G ba G eb a G ba G ba G Gleba Geba Geba G ba G e ba Geba G ba Geba Gleba G b Glba G ba G b G ba Geba Geba G Gleba G b G C h EM Três Marias UABSF Três Marias UABSF Vila Canaã UABSF Setor Rodoviário UABSF São Francisco CAIS Bairro Goiá CMEI Goiânia 2 CAPS MENDANHA EMTI Itamaracá CMEI Parque Oeste CMEI Cidade Verde EM Cidade Verde S1 S4 S3 S5 S6 S7 S9 S11 PARQUE DA PEDREIRA PARQUE MACAMBIRA S10 S8
N
S2
0 500 1000 2000 N
0 500 1000 2000
G Tri nda d e A b ad i a de Go iás A rago B T Ch Coimb ra C V Cru 32
Figura | Mapa

SÍNTESE:

Extensão do Parque Linear: 24 km

Área de intervenção total: 385,5 ha

Áreas Públicas na área de intervenção: 142,60 ha

Área com potencialidade para PDU: 39,10 ha

Área prevista para desapropriação (APP): 160,42 ha

Área prevista para desapropriação (fora da APP): 37,66 ha

Proposta de implantação de 31,3 km de vias, sendo:

_ 16 km – vias propostas entre edificações e os 30m APP;

_ 7,6 km – vias propostas com potencial para PDU;

PROGRAMA URBANO AMBIENTAL MACAMBIRA ANICUNS

O Plano Diretor de Goiânia (2007) previa na expansão da rede viária a implantação de uma via marginal ao Ribeirão Anicuns - via essa que iria canalizar o ribeirão e impermeabilizar as margens - porém ao pleitear empréstimo para execução da mesma junto ao Banco Interamericano de Desenvolvimento (BID) a prefeitura teve o pedido negado, pois o banco não financiava esse tipo de projeto. Assim se deu início ao projeto que culminou no Programa Urbano Ambiental Macambira Anicuns (PUAMA) [Fig. 19]

O PUAMA tem como objetivo principal contribuir para equacionar problemas ambientais, urbanísticos e sociais que afetam a cidade de Goiânia (GO) [Fig. 20] , resultantes da ocupação desordenada do espaço urbano, sobretudo ao longo do Córrego Macambira e do Ribeirão Anicuns e seus respectivos afluentes. A Implantação do Parque Linear inclui a reabilitação e implantação de sistemas de drenagem, bem como a recuperação de áreas degradadas, com ênfase na proteção das condições naturais dos leitos do Ribeirão Anicuns e do córrego Macambira. Para que ocorra a implantação do Parque Linear haverá o reassentamento e regularização urbana, por meio de relocação de famílias e negócios.

Além da proteção das margens do Ribeirão Anicuns e do Córrego Macambira o projeto prevê a construção e implantação de novas vias públicas interligando bairros, melhoria das condições de vida da população residente na área de influência, mediante a organização urbana e infraestrutura urbana adequada, regularização do solo e a implantação de áreas de recreação (implantação de Núcleos Socioambientais, Núcleos de Estar e Parques com Quadra de Tênis e Basquete, Pistas de Caminhada e Ciclismo, Pistas de Skate e Equipamentos de Ginástica e Playground). O conjunto de obras do PUAMA, dada a dimensão e complexidade das intervenções previstas, foi dividido em 11 setores (trechos) para melhor condução dos trabalhos de licitação e execução por etapas.

_ 7,7 km – vias projetadas por loteamentos e não implantadas.

Estimativa da População Beneficiada:

_ aproximadamente 350 mil habitantes (2002)

Alcance da Pesquisa Socioeconômica:

_ aproximadamente 1700 famílias

Estimativa de Famílias a serem relocalizadas:

_ aproximadamente 800 famílias e negócios

Bairros Beneficiados:

_ aproximadamente 131 bairros

Rib ei r ã o A n icun s Goiânia Có r r e g o acaM m bira Ribeir ão A ni c uns Rio Meia P o n t e Go an ir a Go an ápol is Ner ó p o li s A p ar e ci d a d e Go iân a Sen ad o r Can ed o B o n fi n ó p o l s ân a San t o A n tô n o d e Go iás S Bueno Res Ald eia do Vale Sir dos andeirant es Jd Curitiba Res iu f Gle ba Ch Bom Retiro G eba Jd Guanabara S Ja ó G eba Gle ba Gle ba Lot Go iân ia 2 S Cent ral S Leste Vila Nova Ver a ruz V Ro s a Gl b S S d Gle ba Lo Faiçalvil e Gle ba S Sul Bro Ja rd im Amé rica S Oes te Jd Go ás Prq Am azônia GOIÂNIA 2500 1000 0 5000
ESTUDO DO PROGRAMA 33
Figura 20 | Insersão do Programa Urbano Ambiental Macambira Anicuns em Goiânia.

2003 2005 2008 2009 2010 2011

Início das negociações com o BID / Envio de Carta Consulta à SEAIN

Missão de Análise do BID para definir o processo de Financiamento

Aprovação do Programa no diretório do BID

Assinatura do Contrato de Empréstimo entre a Prefeitura Municipal de Goiânia e o BID (setembro)

Início da elaboração dos projetos dos Parques (novembro)

Sancionada Lei nº 1923/2011 (dezembro)

Figura 21 | Construção ou reabiliração de 13 pontes. Figura 22 | 42 pontes de pedestres para travessia dos córregos. Figura 24 | Núcleo de esportes e lazer (Parque da Macambira).
01-Bro Capuava 02-Bro Cidade Jardim 03-Bro Goiá 04-Bro Goiá 2 05-Bro Goiá 2 Complemento 06-Bro Goiá Setor Veloso 07-Bro Industrial Mooca 08-Bro Ipiranga 09-Bro Nossa Senhora de Fátima 10-Bro Rodoviário 11-Bro Santa Rita
São
Figura 23 | Orquidário (Parque da Macambira).
12-Bro
Francisco 13-Bro dos Aeroviários
14-Ch Dona Gê
Dourada
Padre Pelágio
Rodoviário 21-Cjr Yara 22-Con Residencial Santa Rita 23-Con Santa Rita 24-Con Santa Rita - 2a etapa 25-Con Santa Rita - 6a etapa 26-Con Santa Rita - 7a etapa 27-Con Santa Rita - 8a etapa
Santa Rita - 9a etapa
Santa Rita Irregular 30-Esp do Anicuns 31-Jd Ana Lúcia 32-Jd Atlântico 33-Jd Europa
Leblon
Leblon II
Pampulha
Petrópolis
Planalto
Presidente
Presidente - Extensão
Presidente - Extensão I
Presidente - Extensão II
Presidente - Extensão III
Sônia Maria
Tancredo Neves
Vila Boa
Xavier
Capuava Residencial Privê
Celina Park 50-Lot Faiçalville
Goiânia 2
Panorama Parque
Anhangüera II
Oeste Industrial
Oeste Industrial Extensão
15-Ch Santa Rita 16-Cj Guadalajara 17-Cj Morada Nova 18-Cjr Cachoeira
19-Cjr
20-Cjr
28-Con
29-Con
34-Jd
35-Jd
36-Jd
37-Jd
38-Jd
39-Jd
40-Jd
41-Jd
42-Jd
43-Jd
44-Jd
45-Jd
46-Jd
47-Jd
48-Lot
49-Lot
51-Lot
52-Lot
53-Prq
54-Prq
55-Prq
área
influência
PUAMA: 34
Bairros na
de
direta do

Início das obras dos Parques (março)

Distrato com empresa vencedora da primeira licitação

Início das obras das unidades de saúde e educação

Realização de novo processo licitatório internacional para obras dos Parques (março)

Reinício das obras (setembro)

Inauguração do Parque Macambira Anicuns (outubro)

Inauguração do Setor 2 e 3 (outubro)

Início do processo licitatório para os outros setores

2012 2013 2014 2016 2017 2018
Figura 25 | Torre mirante (Pq. Pedreira). Figura 26 | Auditório (Pq. Pedreira). Figura 28 | Ponte de pedestres sobre o rio Meia Ponte.
56-Prq das Paineiras I 57-Prq das Paineiras II Etapa 58-Prq das Paineiras III Etapa 59-Prq das Paineiras IV Etapa 60-Res Anicuns 61-Res Aquários 62-Res Aquários II 63-Res Bethel 64-Res Cidade Verde 65-Res Espanha 66-Res Flamingo 67-Res Granville 68-Res Itamaraca 69-Res Jardim Florença 70-Res Jardim Leblon 71-Res Monte Carlo 72-Res Morumbi 73-Res Parque Mendanha 74-Res Perim 75-Res Prive Atlântico 76-Res Santa Maria 77-Res Santa Rita - 4a etapa 78-Res Sevilha 79-S Campinas 80-S Centro Oeste 81-S Criméia Leste 82-S Criméia Oeste 83-S Garavelo 84-S Gentil Meirelles 85-S Jardim Ana Flávia 86-S Novo Horizonte 87-S Perim 88-S Progresso 89-S Rio Formoso 90-S São José 91-S Três Marias 92-S Ulisses Guimarães 93-S Urias Magalhães 94-S Urias Magalhães II 95-Vl Veneza 96-Vl Abajá 97-Vl Adélia 98-Vl Adélia I e II 99-Vl Anchieta 100-Vl Canaã 101-Vl Clemente 102-Vl Fernandes 103-Vl Irany 104-Vl Isaura 105-Vl Isaura Extensão 106-Vl Jacaré 107-Vl João Vaz 108-Vl Luciana 109-Vl Lucy 110-Vl Mauá VÍDEO PROPOSTA PARQUE LINEAR VÍDEO PROPOSTA PARQUE DAS ÁGUAS ESTUDO DO PROGRAMA 35
Figura 27 | Lago e auditório (Parque das Águas). Figura 29 | Núcleo socioambiental no Parque Bernardo Elis. Figura 32 | Pergolado e parque infantil no Parque de Vizinhança Odilon Soares. Figura 30 | Núcleo socioambiental no Parque Ambiental Macambira. Figura 34 | Pista de skate no Parque de Vizinhança Odilon Soares. Figura 31 | Núcleo socioambiental no Parque Ambiental Macambira. Figura 33 | Quadra de tênis no Parque de Vizinhança Odilon Soares.
36
Figura 35 | Núcleo de conforto público no Parque de Vizinhança Odilon Soares

A execução dos projetos do PUAMA teve início em 2012, mas logo foram paralisadas por questões legais, retomadas em 2013 e finalizadas parcialmente em 2017. Até o momento as etapas realizadas para usufruto da população estão entre os setores 1, 2 (parcial) e 3, o que compreende alguns parques de vizinhança [Fig. 36] , núcleos socioambientais, um trecho do Parque Linear Macambira e o Parque Ambiental Macambira [Fig. 37] , situado no Setor Faiçalville, invólucro de uma das nascente do córrego que dá nome ao parque. Apesar do contrato de financiamento firmado com o Banco Interamericano de Desenvolvimento (BID) e leis municipais específicas para o programa aprovadas, a execução das demais etapas seguem estagnadas por questões judiciais e até mesmo certa inércia política da gestão pública municipal. Enquanto isso, os problemas de degradação ambiental e ocupação das áreas de preservação diagnosticados nos estudos do PUAMA têm se intensificado, e os moradores seguem sem expectativas de serem contemplados pelo projeto.

Local: Goiânia-GO

Ano do projeto: 2010/2012

Ano de construção: 2012/2017

Autores: Arqª. Rosa Grena Kliass, Arqª. Maria Cecília Barbieri Gorski, Arqº. Michel Todel Gorski, Escritório Grupo 4, Hidroconsult e Basitec

Figura 37 | Planta de implantação do Parque Ambiental Macambira.
ESTUDO DO PROGRAMA 37
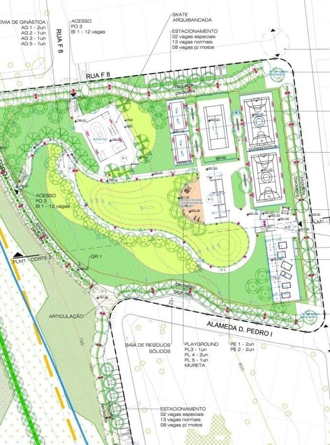
Figura 36 | Planta de implantação do Parque de Vizinhança Odilon Soares.

DIAGNÓSTICO DO LUGAR

QUARTO afluente

39
0 1000 3000 5000 N UNIDADES DE CONSERVAÇÃ0 HIDROGRAFIA CENTRO DE GOIÂNIA ÁREA ESCOLHIDA PUAMA LEGENDA 40

O lugar escolhido [Fig. 39] se insere na temática proposta por se tratar de uma área marginal ao Ribeirão Anicuns com ocupações legais e ilegais consolidadas ao longo do curso de seu leito. A área é caracterizada pelo encontro do ribeirão com um de seus principais afluentes, o Córrego Cascavel, e também um afluente menor, o Córrego Santa Helena. O Setor São José e as Vilas São Paulo, Clemente, Irany, Santana, Isaura e Santa Helena são alguns dos bairros lindeiros a esses cursos d’água com um histórico antigo e recorrente de enchentes. A região situada a menos de 5 quilômetros do Centro de Goiânia é bem atendida de infraestrutura básica - água, esgoto, energia, asfalto, centros de educação e saúde -, mas se evidencia como uma área ambientalmente frágil e expõe a necessidade de projetos que abordem esse eixo temático estruturador. O Projeto Urbano Ambiental Macambira Anicuns (PUAMA) foi criado na perspectiva de atender essa necessidade, mas ao se estruturar focado na questão ambiental visando preservar as margens do ribeirão, deixa a desejar na questão habitacional por não definir claramente áreas de remanejamento populacional e medidas que mantenham as relações dessa população com o ribeirão. Neste contexto, para viabilizar a análise, foi definido como recorte a área dos Setores 9 e 10 do PUAMA. Para o recorte - que corresponde aos bairros supracitados inseridos na área de implantação e influência do Projeto - foi considerada a minha percepção, enquanto morador da Vila São Paulo, sobre a problemática socioambiental e seus desdobramentos. Também foi levado em consideração para a escolha uma divergência entre as áreas mapeadas como zonas alagadiças no Mapa Digital Fácil e a realidade de zonas não mapeadas presente na vida dos moradores.

Figura 38 | Mapa de inserção urbana da área escolhida no município de Goiânia, Goiás. Figura 39 | Mapa da área escolhida no município de Goiânia, Goiás. Vl João Vaz S Perim Vl Santa Helena S Gentil Meirelles Vl Abajá S Progresso Vl Isaura
Vl Irany Jd Xavier
Res Itamaraca Vl São Paulo Vl Santana Vl Clemente Cjr Padre Pelágio Vl São José (extensão) S São José
S Campinas
S Aeroviário S Esplanada dos Anicuns Vl Ofugi Res Perim Lot Capuava Residencial Privê S Jardim Ana Flávia INÍCIODO SETOR9 FIMDOSETOR9
Vl Isaura (extensão) INÍCIODOSETOR10 0 100 200 500 1000
Vl São José (complemento)
FIM DO SETOR 10 escolha do lugar DIAGNÓSTICO DO LUGAR 41

Como esse trabalho visa fazer uma análise da dimensão habitacional nessa região, explorada de maneira objetiva pelo PUAMA, propõe-se para compreensão dos desdobramentos do Programa estudar a análise e diagnóstico existentes [Fig. 41] dentro do recorte dos Setores 9 e 10, mas não apenas estudar o que foi feito como também dar continuidade a essas análises entendendo as relações objetivas e subjetivas entre a dimensão habitacional e a ambiental Por causa da indisponibilidade de informações públicas detalhadas sobre as ações a serem desenvolvidas nos setores ainda não executados do Programa, foi necessário solicitar material referente aos setores já citados. Para tal, entrou-se em contato com uma das autoras dos projetos, Maria Cecília Barbieri Gorski, que gentilmente encaminhou alguns documentos relacionados à área.

Ao analisar a Figura 41 observa-se que os Setores 9 e 10 apresentam grande parte das áreas inundáveis, além de destacar algumas áreas passíveis de intervenção pontual. Este é o caso da antiga olaria, explorada na proposta como área para implantação de um possível Núcleo socioambiental [Fig. 42 e 43]

Para tratar do reassentamento involuntário de famílias que vivem em áreas de intervenção do PUAMA, foi elaborado o Plano de Ações de Aquisição de Áreas, Remanejamento de População e Reinstalação de Atividades Econômicas (PARR). O documento visa especificar as ações a serem realizadas no âmbito do Programa que implicará na remoção involuntária de população que vive nas áreas de intervenção. Através do PARR foi possível identificar o número de famílias e negócios [Fig. 40] afetados diretamente pelo plano de reassentamento nos Setores 9 e 10. Objetivamente, interessa a este trabalho avaliar as possibilidades para esse reassentamento, pensando sempre nos diferentes modos de habitar de cada família, e criar diretrizes que orientem as intervenções habitacionais e ambientais necessárias.

Figura 40 | Quantitativo de remoções totais em casos de imóveis que deverão ser incorporados ao Parque, ou seja, famílias e negócios que serão removidos em sua totalidade.

ÁREAS PASSÍVEIS DE IMPLANTAÇÃO DE EQUIPAMENTOS

ENCOSTAS DE ALTA DECLIVIDADE ACIMA DE 30º

PARQUE ITAMARACÁ A SER CONECTADO AO PARQUE LINEAR

ÁREAS PASSÍVEIS DE IMPLANTAÇÃO DE EQUIPAMENTOS

ENCOSTAS DE ALTA DECLIVIDADE ACIMA DE 30º

ÁREAS PASSÍVEIS DE IMPLANTAÇÃO DE EQUIPAMENTOS

PRESENÇA DE DIQUES E ATERROS P/ CONTENÇÃO INUNDAÇÕESDE E LINHAS DE ALTA TENSÃO

ÁREAS DE ANTIGA OLARIA A SER EXPLORADA PELO POTENCIAL CULTURAL E PAISAGÍSTICO

ÁREAS PASSÍVEIS DE IMPLANTAÇÃO DE EQUIPAMENTOS

ÁREAS P/ IMPLANTAÇÃO DE MIRANTE

APRESENTA GRANDE PARTE DAS ÁREAS INUNDÁVEIS

PRESENÇA DE DIQUES E ATERROS P/ CONTENÇÃO DE INUNDAÇÕES E LINHAS DE ALTA TENSÃO

Figura 41 | Análise e diagnóstico dos setores de implantação 9 e 10 do PUAMA.
Setor Remoção Total Famílias Negócios Por Setor Setor 9 69 7 76 Setor 10 93 7 100 Total 162 14 176
DE VEGETAÇÃO DE GRANDE PORTE LEGENDA MASSA DE VEGETAÇÃO DE GRANDE PORTE EM PROCESSO DE REGENERAÇÃO CURSOS D’ÁGUA ALAGADIÇOS ÁREA DE INUNDAÇÃO DIQUES ENTORNO URBANO LIMITE DA ÁREA URBANA DE INFLUÊNCIA DO PARQUE PERÍMETRO DO PARQUE VIA COLETORA VIA ARTERIAL DE 2ª CATEGORIA PONTE 42
MASSA
Figura 43 | Planta de implantação do Núcleo socioambiental na antiga Olaria.
DIAGNÓSTICO DO LUGAR 43
Figura 42 | Corte do Núcleo socioambiental na antiga Olaria.
700 760 760 720 725 740 730 700 N 0 50 100 200 500 1000 760 m LEGENDA 700 m Hidrografia Figura 44 | Mapa hipsométrico da área
44
estudada.

O terreno se caracteriza por ser uma área de fundo de vale e funciona como uma calha que recebe a água proveniente de todo seu entorno. O que podemos observar no mapa hipsométrico [Fig. 44] e na isometria [Fig. 45] em relação ao relevo do terreno é que o lado norte do Ribeirão Anicuns tem declividade bastante acentuada em comparação ao lado sul da margem. Essa diferença altimétrica das duas margens favorece a formação do leito maior de inundação [Fig. 46] principalmente sobre a planície sul da área, que é a mais ocupada. Essa diferença dificulta a ocupação das áreas mais acidentadas e favorece a preservação da vegetação nativa.

relevo
Isometria de relevo da área CORTE 01 CORTE 02 CORTE 03 CORTE 04 CORTE 06 Ribeirão Anicuns Ribeirão Anicuns Ribeirão Anicuns Ribeirão Anicuns Ribeirão Anicuns Ribeirão Anicuns
CORTE 05
Córrego Cascavel
Leito Maior Leito Menor Dique Marginal Leito Vazante
DIAGNÓSTICO DO LUGAR 45
Figura 46 | Esquema do leito de inundação de um rio.

CÓRREGOSANTAHELENA

CÓRREGOCASCAVEL

LEGENDA

Praças

Unidade de Conservação

Área de Implantação do PUAMA

Cerrado, Mata, Reflorestamento

Área de Influência das Vias Especiais

Área de Preservação (APP)

Área de Alagamento

Área de Alagamento Identificada por Moradores

Hidrografia

Nascente

R B E R Ã O NA I C U N S RIBEIRÃOANICUNS
N 0 50 100 200 500 1000
47 |
46
Figura
Mapa
de vegetação e hidrografia da área estudada.

VEGETAÇÃO E HIDROGRAFIA

Por se tratar de um curso d’água, toda área marginal ao ribeirão e aos córregos é protegida por lei de acordo com o Código Florestal (Lei nº 4771/65). Em relação ao Ribeirão Anicuns essa área corresponde a uma faixa bilateral de 100 metros a partir das margens, já no caso dos córregos Cascavel e Santa Helena essa área corresponde a uma faixa bilateral de 50 metros a partir das margens - definições do Plano Diretor (2007).

Área de Preservação Permanente - APP: área protegida, coberta ou não por vegetação nativa, com a função ambiental de preservar os recursos hídricos, a paisagem, a estabilidade geológica e a biodiversidade, facilitar o fluxo gênico de fauna e flora, proteger o solo e assegurar o bem-estar das populações humanas. (Inciso III do art. 3 da Lei nº 12.651 de 25 de maio de 2012)

Os pontos de encontro entre os córregos e o ribeirão configuram uma região de fragilidade pois formam uma grande área de alagamento que afeta a população local. No entanto, a mancha dessas áreas não se limita às indicadas pela Prefeitura de Goiânia no Mapa Digital Fácil; segundo relatos de moradores, a abrangência dos alagamentos é bem maior, o que demonstra a importância do levantamento de campo. A área conta também com três unidades de conservação que preservam parte da vegetação nativa de Cerrado remanescente e algumas praças de vizinhança.

Ao longo dos últimos 16 anos, como podemos observar nas Figuras 48 e 49, não houveram mudanças drásticas na ocupação da área escolhida nem aumento considerável da vegetação de reflorestamento, mas é notável uma grande região de assoreamento na confluência dos afluentes com o Ribeirão Anicuns.

Figura 48 | Encontro dos Córregos Cascavel e Santa Helena com o Ribeirão Anicuns em 2004
DE
DE ASSOREAMENTO LEGENDA DIAGNÓSTICO DO LUGAR 47
Figura 49 | Encontro dos Córregos Cascavel e Santa Helena com o Ribeirão Anicuns em 2020
PONTOS
NOVAS OCUPAÇÕES REGIÃO

LEGENDA

Área Adensável

Área Especial de Interesse Social III

Área Especial de Interesse Social III, Pós LC 171/2007

Área de Influência das Vias Especiais

Unidade de Uso Sustentável

Área de Preservação Permanente (APP) Hidrografia

N 0 50 100 200 500 1000
48
Figura 50 | Mapa do modelo espacial do Plano Diretor de 2007 na área estudada.

Definições do Plano Diretor

Na abrangência do recorte feito, boa parte da região se divide entre Área de Adensamento Básico, Área Adensável e Área de Preservação Permanente, mas existem também alguns pontos focais de Unidades de Uso Sustentável, Áreas de Interesse Social e Área de Influência das Vias Especiais. De acordo como o Plano Diretor de Goiânia (2007) as Áreas de Adensamento Básico correspondem às:

[...] áreas de baixa densidade, para as quais será admitida a duplicação dos atuais padrões de densidade, visando a correlação das funções urbanas em menores distâncias e a otimização dos benefícios sociais instalados [...] (Inciso III do art. 110 da Lei Complementar nº 171 de 29 de maio de 2007)

Já nas Áreas Adensáveis:

[...] serão incentivadas as maiores densidades habitacionais e de atividades econômicas, sustentadas pela rede viária e de transporte, subdividindo-se em duas naturezas:

a) aquelas áreas de maior adensamento, ao longo dos Eixos de Desenvolvimento Exclusivos e nas áreas caracterizadas como vazios urbanos;

b) aquelas áreas de médio adensamento, ao longo dos Eixos de Desenvolvimento Preferenciais; (Inciso I do art. 110 da Lei Complementar nº 171 de 29 de maio de 2007)

Contígua à Área de Preservação Permanente, as Unidades de Uso Sustentável [Fig. 52] tem como objetivo compatibilizar a conservação da natureza com o uso sustentável do solo, e os parâmetros urbanísticos admitidos para elas são considerados especiais e de baixa densidade.

As glebas sujeitas à incidência de uma política habitacional de âmbito municipal, que viabilize o acesso à moradia à camada da população de menor poder aquisitivo, classificadas como Áreas Especial de Interesse Social III foram focos de ocupação do Projeto Dom Fernando (2004) que criou o Conjunto Habitacional Residencial Itamaracá [Fig. 53] (TAVARES, 2011).

No pequeno trecho identificado próximo a Avenida Perimetral Norte que se caracteriza como Área de Influência das Vias Expressas, são permitidos todos os usos exceto aqueles que não atendem a legislação ambiental; também deve-se apresentar para apreciação Estudo de Impacto de Vizinhança e Estudo de Impacto de Trânsito, conforme lei específica.

Apesar das definições de adensamento, os bairros da região mantêm característica residencial semelhante com poucas variações ao longo dos últimos anos [Fig. 51] .

Figura 51 | Edificações de dois ou três pavimentos com comércio e habitação são uma tipologia comum encontrada nas áreas comerciais em que o adensamento é permitido. Figura 52 | Olaria desativada dentro de uma Unidade de Uso Sustentável na Vila São José (extensão) .
DIAGNÓSTICO DO LUGAR 49
Figura 53 | Conjunto Habitacional Residencial Itamaracá (destaque) contruído na Área Especial de Interesse Social III.

01. Vila Ofugi

02. Vila Santa Helena

03. Vila Isaura

04. Vila Isaura (extensão)

05. Jardim Xavier

06. Vila Abajá

07. Vila Santana

08. Vila Irany

09. Setor Campinas

10. Setor Gentil Meirelles

11. Vila Clemente

12. Setor Progresso

13. Setor Perim

14. Residencial Perim

15. Residencial Itamaracá

16. Vila São Paulo

17. Conjunto Padre Pelágio

18. Setor Jardim Ana Flávia

19. Setor São José

20. Vila São José (extensão)

21. Vila São José (complem.)

22. Setor Aeroviário

23. Setor Esplanada dos Anicuns

24. Loteamento Capuava Residencial Privê

25. Vila João Vaz

LEGENDA

Área Edificada

Lotes Vagos

Posse Urbana (Regularização Fundiária em Processo)

Loteamento Clandestino (Regularização Fundiária em Processo)

Área de Preservação (APP)

Hidrografia

N 0 50 100 200 500 1000
Figura 54 | Mapa
de cheios, vazios e regularização fundiária.
1 2 4 6 7 8 9 5 3 10 11 12 13 14 15 16 17 18 20 21 22 24 25 23 19 50

Turn static files into dynamic content formats.

Create a flipbook
Issuu converts static files into: digital portfolios, online yearbooks, online catalogs, digital photo albums and more. Sign up and create your flipbook.