

Portfolio Académico
Nicolás Moral
![]()


Nicolás Moral
RESIDENCIA PARA PROFESORES
Pamplona, España
Pamplona, España
RESIDENCIA PARA JÓVENES
Lesaka, España
3-10 11-18 19-26

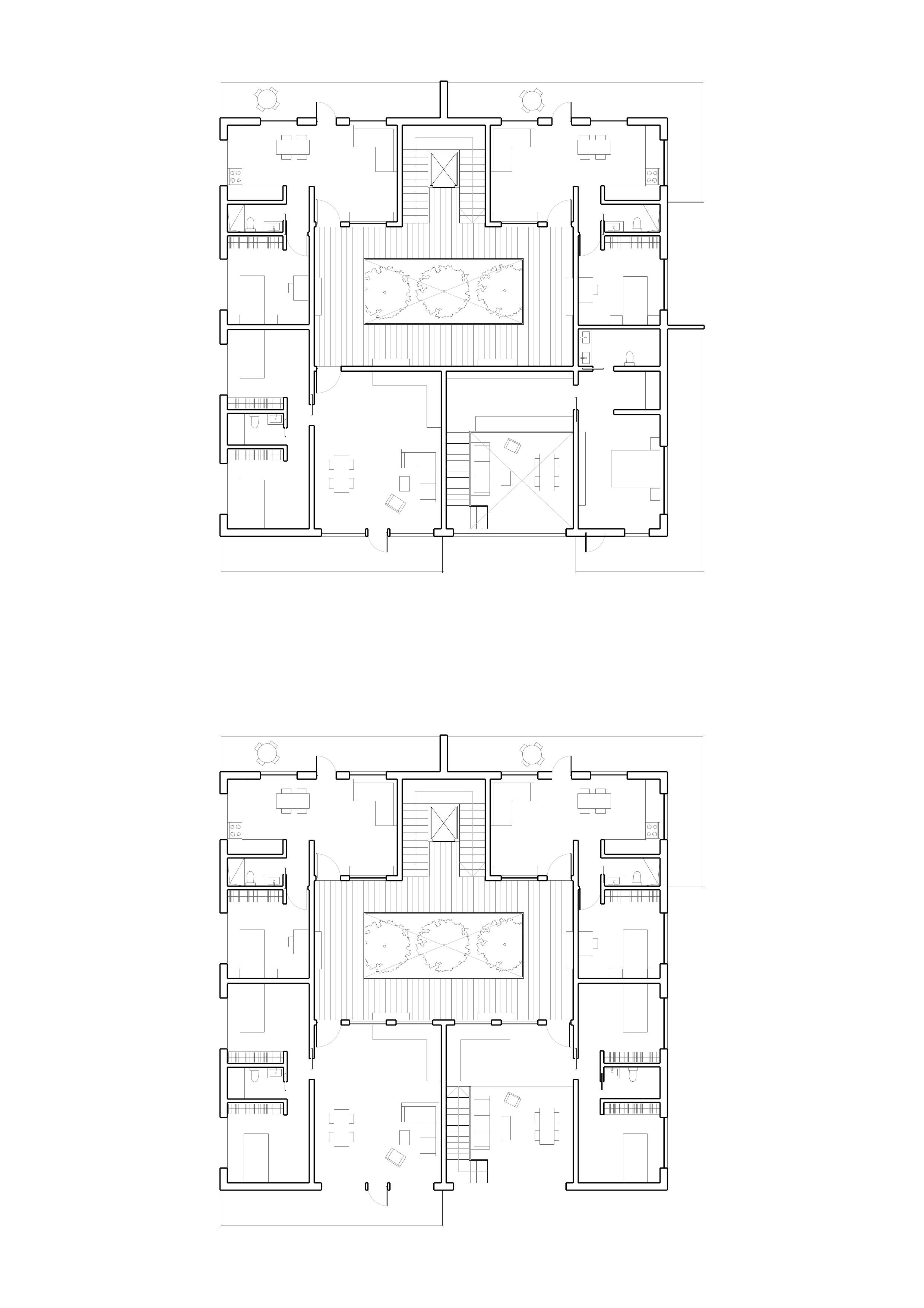
El proyecto propone una residencia para profesores invitados en el campus de la Universidad de Navarra, entendida como una pieza de transición entre el ámbito académico y el paisaje.
La propuesta parte de una geometría clara, un volumen cuadrado organizado en torno a un gran patio interior que reinterpreta la tipología del claustro como espacio articulador de la vida comunitaria.






Perspectiva Exterior


El proyecto propone una vivienda para un escultor y una escritora, concebida como un equilibrio entre creación y habitar. La intervención se organiza en dos ámbitos diferenciados taller y vivienda que funcionan de manera autónoma dentro de un mismo conjunto. La vivienda se estructura en torno a un patio interior, que introduce la luz y ordena la vida doméstica desde un carácter introspectivo. Frente a ello, el taller se plantea como un espacio más abierto, estableciendo un contraste entre la producción artística y la intimidad del habitar.











Una galería estructurada en torno a un gran vacío vertical introduce luz cenital y articula las circulaciones como espacios de relación. La estructura de madera y la conexión exterior entre los edificios refuerzan una arquitectura cálida, clara y orientada al encuentro






Perspectiva Interior

Acuarela - Perspectiva Interior
Esta acuarela surge durante el desarrollo del proyecto y forma parte de la construcción del espacio. A través del dibujo se van definiendo decisiones, probando relaciones y dando forma al patio como elemento central, dejando ver la atmósfera que termina caracterizando la arquitectura.
