PROYECTOS





ENCUENBTROSDEPAMPLONA
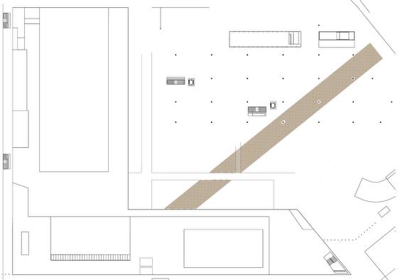
En 2024 se celebró la tercera edición de los Encuentros de Pamplona con la temática “Los árboles que nos quedan” por lo que todos los alumnos del curso de taller propusimos una intervención efímera que se extendiera desde la diagonal de la calle Estella y llegue a las puertas del Baluarte para invitar a las personas a entrar a los Encuentros.





CLUB DE PIRAGÜISMO
Ubicado en Zaragoza y junto al río Ebro, el club de piragüismo busca generar una continuidad desde la calle de Balbino y llegar hasta el río. Esta línea está perforada por los caminos peatonales existentes los cuales generan que las personas puedan pasar a través del edifico sin llegar a entrar en él.





MERCADO DE FIORI
Ubicado en Roma en la plaza de Fiori, el proyecto propone volver a darle el uso de mercado a la plaza, uso el cual tuvo como mercado de flores en su construcción El mercado
propone unirse a las tarrazas de los restaurantes de la plaza y dejar una calle peatonal al medio de esta para generar un espacio en donde no estas ni dentro ni fuera del mercado, un espacio intermedio.


RESIDENCIA DE PROFESORES
Ubicado en la Universidad de Navarra en Pamplona, la residencia para profesores busca ser un lugar de encuentro entre alumnos y profesores Por esta razón el edificio se concibe como un espacio abierto y permeable que genera áreas intermedias entre interior y exterior, de esta forma cualquier estudiante puede pasar a través del edificio sin entrar en él. Además, permite una nueva conexión peatonal entre el arquitectura y Comedores.







