
TOPOGRAPHIE

LOCALISATION

CHEMIN DE RANDONNEES

AXONOMETRIE GENERALE







AXONOMETRIE



![]()




AXONOMETRIE GENERALE










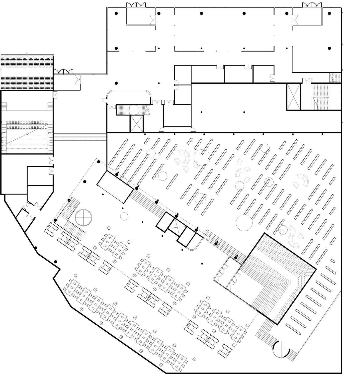
Pendant mon master 1, j’ai effectué à Oulu en Finlande un Erasmus qui m’a mené à concevoir un projet dans le centre historique de la ville de Jyväskyllä, . Ce projet réunit une bibliothèque, deux musées ainsi que des bureaux et des espaces de commerce.
L’idée du projet était de pouvoir intégrer deux formes rectangulaires qui seraient reliées par le sous-sol, jouant ainsi avec la topographie en pente du site. Dans le choix des matériaux, j’ai opté pour une façade en acier corten qui est percée par de grands cercles afin de donner un aspect unique et reconnaissable pour un musée en centre ville. Cela permet de faire un contraste de textures avec les bâtiments alentour majoritairement en briques sans trop avoir de couleurs s’éloignant de la palette du quartier.



Concept
Le choix a été de positionner la bibliothèque en souterrain et d’apporter de la lumière naturelle grâce à des oculus présents sur la place créée entre les deux masses. En plus des oculus, un grand atrium orienté Sud-Ouest fait aussi office de puits de lumière naturelle pour les espaces de travail de la bibliothèque. Les différents accès de la bibliothèque ont été pensés pour être invitants malgré le fait qu’elle soit sous terre. Le premier accès se situe au niveau de la rue et se présente avec un soulèvement d’une des deux masses mis en relation avec l’escalier et la rampe donnant accès à la place supérieure. Le deuxième accès se trouve au niveau de la place devant la seconde masse; il se présente comme un chemin situé entre l’escalier pour la place supérieure et les musées, donnant une décompression visuelle pour inviter le passant.


COUPE LONGITUDINALE



Toujours dans le cadre de mon Erasmus en Finlande, j’ai également effectué un travail de groupe sur la planification urbaine de Myllyoja, une des banlieues de la ville de Oulu. Le but du projet était de rendre la banlieue attractive pour les habitants.
L’idée première était de reconnecter les deux parties de la banlieue séparées par la route principale. Pour ce faire, nous avons dans un premier temps fait un traitement paysager, créant une coulée verte perpendiculaire qui relie les espaces verts déjà existants. Nous avons également fait l’ajout d’un cours d’eau qui se connecte à la rivière de la ville. Enfin l’ajout de nouveaux bâtiments avec une orientation et une hauteur spécifiques sert à faire une transition visuelle reconnectant la banlieue.
Travaux 2024


Dans le développement urbain de cette banlieue nous nous sommes ensuite concentrés sur la partie proche de la route principale. L’idée était de traiter la différenciation entre les espaces publics et semi publics, qui en temps normal est ambigüe en Finlande, avec l’aide d’un traitement du sol et des textures, mais aussi de la végétation. Le choix a également été fait de créer une nouvelle place publique qui s’enroule autour d’un étang nouvellement créé, faisant ainsi un centre de rencontre à l’entrée de notre coulée verte. Dans l’optique de protéger cette nouvelle place piétonne, nous avons choisi de faire un déhanchement de la route afin que les usagers, assez rapides en temps normal, ralentissent.




/ Croquis
Lors de ma troisième année d’architecture, un de mes projets a été d’étudier la ville de Bucarest en Roumanie. Dans le cadre de ce projet, j’ai effectué un voyage là-bas afin de produire des croquis d’études de la ville. Mon travail s’est notamment attardé sur les bâtiments liés au pouvoir, ceux-ci ayant marqué l’histoire de la ville et surtout de son urbanisme à travers un régime dictatorial communiste présent pendant une longue période.


De cette manière, j’ai relevé la majorité des bâtiments représentant le pouvoir politique, le pouvoir religieux, le pouvoir culturel, ainsi que le pouvoir économique. Plusieurs vues aériennes ont été réalisées à partir de photos afin de pouvoir apprécier l’échelle de certaines constructions et leur intégration (ou non) dans le paysage urbain déjà existant.




Enfin, à l’issue de cette étude de la ville, j’ai été employé comme sous-commissaire d’exposition pour organiser et scénographier une exposition relatant le travail effectué par mes camarades et moi-même lors de notre visite de la ville. Cela m’a permis de passer de travaux de relevé à un projet concret pour la première fois durant mes études.


