


RIETGEDEKTE VILLA’S AAN DE KRUITVAART

![]()



RIETGEDEKTE VILLA’S AAN DE KRUITVAART







Kinderdagverblijf en BSO
Informatiehuis en Mas Fuertes Albert Heijn
Commerciële voorziening
Commerciële voorziening
Ontwikkellocatie medisch cluster School
Commerciële voorziening
Paviljoen Teds Bistro Winkelstraatje met onder andere Bakkerij Bakje en Haarstudio Josje
Westbatterij
Koninklijke Nederlandsche Zeil en Roeivereeniging
Muiden centrum
SC Muiden: Voetbal, hockey, sporthal
De Krijgsman ken je misschien al: op de plek van de voormalige kruitfabriek – om de hoek van het Muiderslot - wordt inmiddels volop geleefd. Oude gebouwen en oer natuur wisselen af met moderne, hoogwaardige architectuur. Op een nu nog onbewoond, waterrijk stukje natuur lonkt straks – op een halfuurtje van Amsterdam – een onverwacht buitenleven. Met strandjes aan het IJmeer om te verkoelen of te barbecueën. Met dijken om uit te waaien. Met graslanden langs de dijk waar misschien wel schapen grazen.
Je woont aan de Kruitvaart. Een drankje doen bij het horecapaviljoen (Teds Bistro) kan met de boot. Je kunt er ook ontbijten of versgebakken broodjes kopen. Omdat je dicht bij het sluisje woont, ben je lekker snel op de Vecht of op het IJmeer. Het gezellige Muiden biedt terrasjes op de kade, fijne restaurants en levendige jachthavens. Borrelen op Pampus? Of toch liever lunchen in Amsterdam? Ook niet onbelangrijk: op weg naar huis kom je vanzelf langs Albert Heijn in je eigen wijk.
De Krijgsman is volop in ontwikkeling; zo komt er een tweede nieuwe basisschool en een derde vestiging van het kinderdagverblijf/BSO. Ook zijn er plannen voor woningen met een zorgprogramma zodat de hele familie in De Krijgsman kan (blijven) wonen. Informeer gerust naar de status en mogelijkheden.

Wakker worden met het kabbelende water voor de deur, genieten van lange zomeravonden in je royale tuin én vanaf je eigen aanlegplek zo het water op. Deze foto’s van eerdere woningen ontworpen door o.a. EVE architecten brengen je vast in de sfeer van wonen aan de Kruitvaart.
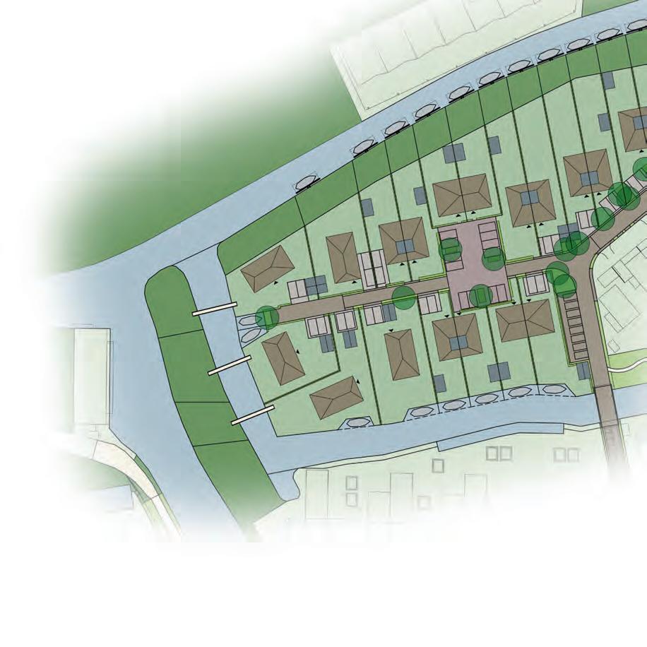
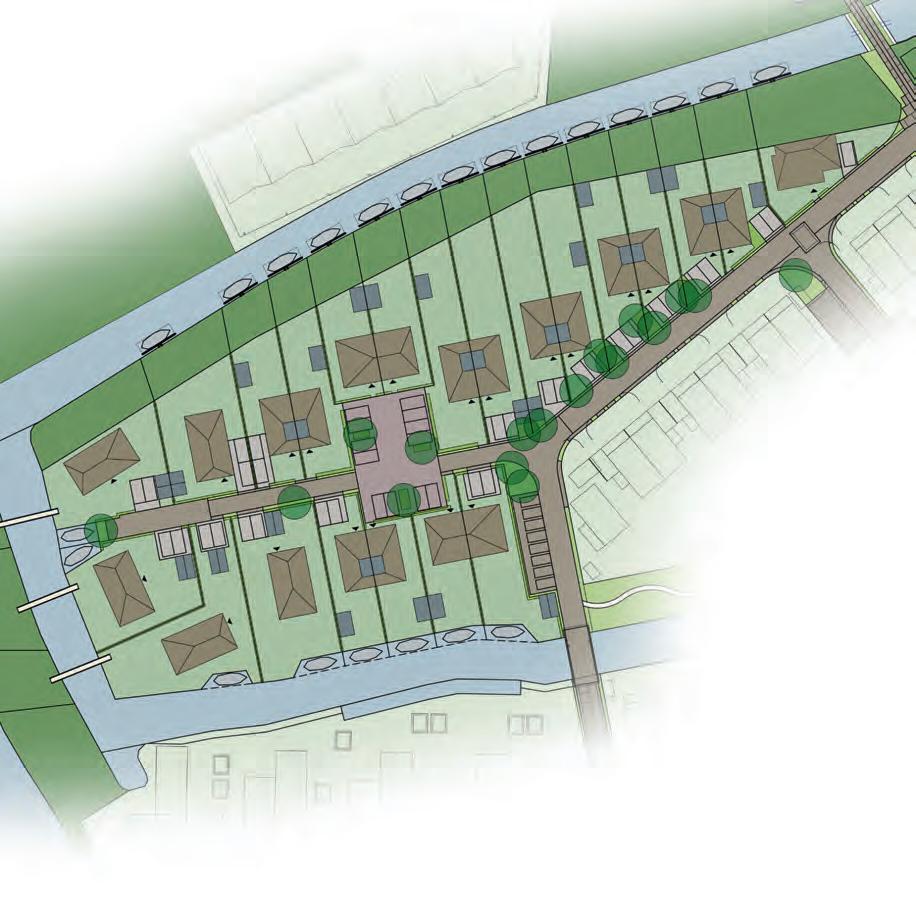
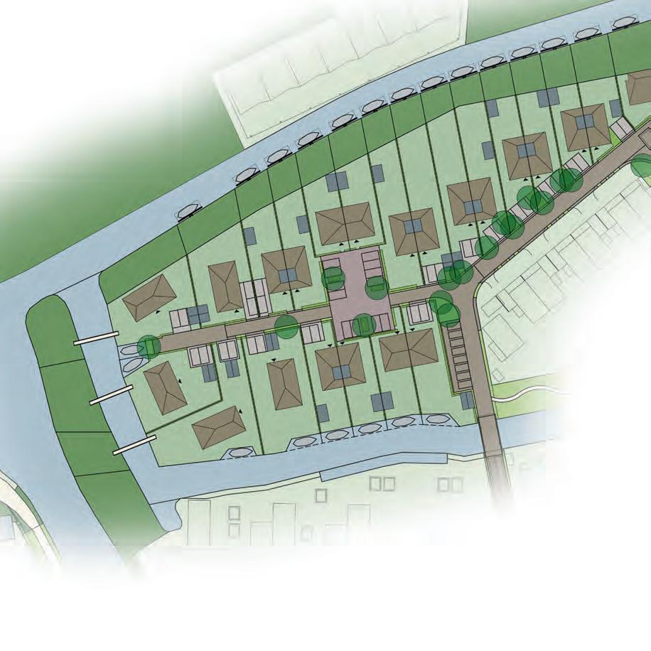
Aan de Kruitvaart, verborgen tussen het voormalige kruitbos, vind je De Eilanden. Een unieke, waterrijke plek voor in totaal 22 exclusieve, rietgedekte villa’s, waarvan de eerste 15 nu in verkoop gaan. Bijna geen ontwerp is hetzelfde. Zo is er bijvoorbeeld keuze tussen vrijstaand en geschakeld wonen en tussen wit gestucte en gemetselde gevels.
In elke villa ervaar je het rijke buitenleven. Een eigen eiland als verlengstuk van je tuin? Een tuin tot 3� meter diep of liever een zonnige tuin op het zuiden? De keuze is aan jou.
Alle villa’s liggen aan vaarwater met een privé-aanlegplek voor een sloep. Bovendien ben je via het wandelpad in een paar minuten bij het IJmeer.


Vergelijkbare steiger voor bnr. 9 t/m 15.


Magazijn
Toekomstige
(3
Gerealiseerde
Courage architecten
Hakhouthuizen van O5b architecten





De vijf vrijstaande villa’s zijn allemaal verschillend georiënteerd op het water. Dankzij de open plattegronden heeft het daglicht bij beide types ruim spel. Wil je liever afsluitbare ruimtes? Daar is in het ontwerp rekening gehouden. Extra ruimte? Vraag naar de uitbreidingsmogelijkheden, we denken graag met je mee. De twee badkamers zijn standaard. De verdiepingshoge raampartijen reiken tot aan het dak. De verbinding met de natuur is overal. Van spetterende watervogels tot scharrelende egels. Houd je van het Loosdrechtgevoel? Drie woningen hebben een eigen stukje eiland met een eigen bruggetje er naartoe.

IMPRESSIE TYPE A1 BNR. 8

SPECIFICATIES
• Woonoppervlakte ca. 189 m2
• Kavelgrootte bnr. 7: 831 m2
• Kavelgrootte bnr. 8: 984 m2
• Berging bnr. 7: 15,5 m2
• Berging bnr. 8: 13 m2
• Parkeren op eigen kavel
• Privébrug
• Eigen ligplaats

8 8 7 7





‘Royale leefkeuken en lounge met grote glazen schuifpuien naar de tuin en uitzicht over het water’
ONTWERPPLEK
De Krijgsman Muiden Rietgedekte villa's
Type A1 - vrijstande villa begane grond
Type A1 - vrijstande villa begane grond
Maatvoering is indicatief en kan aan geringe afwijkingen onderhevig zijn
Maatvoering is indicatief en kan aan geringe afwijkingen onderhevig zijn




VERDIEPING




De Krijgsman Muiden Rietgedekte villa's


SPECIFICATIES
• Woonoppervlakte ca. 190 m2
• Kavelgrootte bnr. 5: 625 m2
• Kavelgrootte bnr. 6: 838 m2
• Kavelgrootte bnr. 9: 622 m2
• Berging bnr. 5: 15,5 m2
• Berging bnr. 6: 15,5 m2
• Berging bnr. 9: 13 m2
• Parkeren op eigen kavel
• Privébrug bnr. 6
• Eigen ligplaats







De Krijgsman Muiden Rietgedekte villa's
Type A2 - vrijstande villa begane grond
Type A2 - vrijstande villa begane grond
Maatvoering is indicatief en kan aan geringe afwijkingen onderhevig zijn
Maatvoering is indicatief en kan aan geringe afwijkingen onderhevig zijn
‘Ensuite werkplek of speelplekje achter de keuken, eventueel afsluitbaar met schuif- of draaideuren. Een fijne plek om je even terug te trekken maar wel in contact met de leefruimte.’
ONTWERPPLEK


VERDIEPING









De Krijgsman Muiden Rietgedekte villa's
Type A2 - vrijstande villa 1e verdieping
Type A2 - vrijstande villa 1e verdieping
Maatvoering is indicatief en kan aan geringe afwijkingen onderhevig zijn
Maatvoering is indicatief en kan aan geringe afwijkingen onderhevig zijn
De Krijgsman Muiden Rietgedekte villa's
Type A2 - vrijstande villa 2e verdieping
Maatvoering is indicatief en kan aan geringe afwijkingen onderhevig zijn

Vanuit de living kijk je op je eigen aanlegplek. Er zijn tien exclusieve, geschakelde villa’s in drie varianten. Met verschillende kleuren, materialen en indelingen. Ook de externe bergingen variëren. Welke villa je ook kiest: je woont straks luxe en royaal aan het water. Met open, eigentijdse indelingen op de begane grond. Met royale slaapvertrekken op de verdieping.
Heb je meer ruimte nodig? In veel gevallen is een uitbouw of veranda mogelijk.

IMPRESSIE TYPE B1 BNRS. 16 & 17

IMPRESSIE TYPE B1 BNR. 17

SPECIFICATIES
• Woonoppervlakte ca. 148 m2
• Kavelgrootte bnr. 10: 426 m2
• Berging bnr. 10: 13 m2
• Parkeren op eigen kavel
• Eigen ligplaats



‘Ruime leefkeuken met kookeiland en eettafel bij tuin aan waterzijde’
De Krijgsman Muiden Rietgedekte villa's











SPECIFICATIES
• Woonoppervlakte ca. 148 m2
• Kavelgrootte bnr. 11: 415 m2
• Berging bnr. 11: 13 m2
• Parkeren op hof (privé)
• Eigen ligplaats










De Krijgsman Muiden Rietgedekte villa's
‘Ruime masterbedroom met inloopkast en uitzicht op het water.’
Type B1 - geschakelde villa rechts begane grond | VARIANT
ONTWERPPLEK
Maatvoering is indicatief en kan aan geringe afwijkingen onderhevig zijn




De Krijgsman Muiden Rietgedekte villa's
Type B1 - geschakelde villa rechts 1e verdieping
is indicatief en kan aan geringe afwijkingen onderhevig zijn
De Krijgsman Muiden Rietgedekte villa's
Type B1 - geschakelde villa rechts 2e verdieping
is indicatief en kan aan geringe afwijkingen onderhevig zijn



IMPRESSIE TYPE B2-RECHTS BNR. 15

SPECIFICATIES
• Woonoppervlakte ca. 148 m2
• Kavelgrootte bnr. 3: 350 m2
• Kavelgrootte bnr. 14: 505 m2
• Berging bnr. 3: 13 m2
• Berging bnr. 14: 13 m2
• Parkeren op hof (privé)
• Eigen ligplaats







‘Breedte van de woning zorgt voor een royale lounge waarin je met een ruimtedeler een extra functie aan de ruimte toe kan voegen’
De Krijgsman Muiden Rietgedekte villa's
VERDIEPING





SPECIFICATIES
• Woonoppervlakte ca. 148 m2
• Kavelgrootte bnr. 4: 335 m2
• Kavelgrootte bnr. 15: 522 m2
• Berging bnr. 4: 13 m2
• Berging bnr. 15: 15 m2







De Krijgsman Muiden Rietgedekte villa's
Type B2 - geschakelde villa rechts begane grond | zie ook variant B1
Maatvoering is indicatief en kan aan geringe afwijkingen onderhevig zijn



VERDIEPING




‘Op de tweede verdieping ruimte voor bijvoorbeeld een werkplek of extra loungeplek voor opgroeiende tieners.’
B2 - geschakelde villa rechts 1e verdieping
is indicatief en kan aan geringe afwijkingen onderhevig zijn
is indicatief en kan aan geringe afwijkingen onderhevig zijn




SPECIFICATIES
• Woonoppervlakte ca. 143 m2
• Kavelgrootte bnr. 1: 439 m2
• Kavelgrootte bnr. 12: 349 m2
• Berging bnr. 1: 15 m2
• Berging bnr. 12: 13 m2






De Krijgsman Muiden Rietgedekte villa's
‘Deze brede woning met ramen aan alle zijden biedt vanaf elke plek in huis een prachtig uitzicht over de tuin en het water’
ONTWERPPLEK
Type C - geschakelde villa links begane grond
Maatvoering is indicatief en kan aan geringe afwijkingen onderhevig zijn











SPECIFICATIES
• Woonoppervlakte ca. 158 m2
• Kavelgrootte bnr. 2: 374 m2
• Kavelgrootte bnr. 13: 381 m2
• Berging bnr. 2: 13 m2
• Berging bnr. 13: 13 m2





De Krijgsman Muiden Rietgedekte villa's
Type C - geschakelde villa rechts begane grond
Maatvoering is indicatief en kan aan geringe afwijkingen onderhevig zijn




VERDIEPING








‘Een vierde (slaap)kamer op de tweede verdieping biedt alle ruimte aan een gezin met opgroeiende kinderen’

IMPRESSIE TYPE B2 BNR. 15

UITWAAIEN OP DE DIJK OF EERST NOG KOFFIE THUIS?

Riet



Stucwerk Baksteen



Kies je voor één van deze 15 villa’s? Dan is het goed om te weten dat de woningen in basis al zeer compleet zijn. Zo wordt niet alleen de woning afgewerkt met de mooiste materialen, maar is er ook veel aandacht voor de details en extra wooncomfort.
• Luxe keuken - laat je inspireren en stel je eigen droomkeuken samen bij één van de vestigingen van Voortman Keukens.
• Sanitair van Villeroy & Boch en kranen van Gröhe zorgen voor ultiem comfort. De vrijstaande villa’s zijn standaard voorzien van 2 badkamers.
• Eigen ligplaats. Bij de woningen met bouwnummer 1 t/m 8 is de ligplaats in de tuin (als insteekhaven) voorzien.
• De andere woningen hebben een aanlegplaats aan de tuin langs de Kruitvaart (bekijk ook de afbeelding op pagina 7 als referentie).
Berging
Iedere woning wordt opgeleverd met ruime berging van ca. 13 tot ruim 15 m2. Er zijn verschillende uitvoeringen met plat of hellend dak.

Rieten dak
Ambachtelijk riet, zorgvuldig gekozen en met de hand gelegd. Tijdloos en luxe.

Erfafscheiding en groeninrichting
Aan de inrichting is veel aandacht besteed. Zo krijgt iedere villa aan de voorzijde een houten hekwerk met haag en tussen de kavels met de buren een hederahaag.



Verfijnde detaillering en kwalitatieve materialen, bedacht en gebouwd door zorgvuldig geselecteerde partners. We stellen ons team van experts graag aan je voor.
EVE architecten heeft vooral naam gemaakt met high end, rietgedekte villa’s op de mooiste locaties. Martijn Schulenburg: ‘Onze signatuur danken we aan de detaillering. Los van de esthetiek zorgt die ervoor dat het riet lang goed blijft.’ Villabouwer Lichtenberg zorgt voor een deskundig en vast aanspreekpunt tijdens de bouw. Hun trackrecord in het bouwen van exclusieve villa’s gaat al bijna 100 jaar terug.



Maatwerk
De interieurarchitecten van Ontwerpplek inspireren je graag bij de indeling van je villa: ‘We focussen op het scheppen van kwaliteitsmomenten in het leven van mensen.’ Er zijn nog veel mogelijkheden om je villa naar wens uit te breiden, informeer naar de uitbouw- en indelingsopties. Ons team van experts denkt graag met je mee om je droomwoning te realiseren.

Duurzaam wonen: Verhuis naar je nieuwe huis en rijd een jaar lang in onze 100% elektrische deelauto’s.
Kostenbesparing: Bespaar op autokosten met 12 maanden gratis toegang tot het Vloto Pro-abonnement bij de aankoop van je huis. Raadpleeg vloto.nl voor de gebruikerskosten.
Gebruiksgemak: Ervaar de luxe van een premium deelauto voor een heel jaar, direct beschikbaar via onze handige app. Gemeenschapsgevoel: Verbind met jouw nieuwe buurt en deel comfortabele, elektrische auto’s met je buren. Toegang tot een gevarieerde vloot: Kies uit verschillende elektrische modellen die passen bij jouw behoeften.





IMPRESSIE TYPE B2 BNR. 15
TYPE C BNR. 1


TYPE B1 BNR. 17

IMPRESSIE TYPE A1 BNR. 7

IMPRESSIE TYPE B2 BNR.14

IMPRESSIE TYPE A2 BNR. 6


In De Krijgsman hebben kinderen alle ruimte om buiten te spelen, te ontdekken en nieuwe avonturen te beleven. Met 4 km aan paden en watergangen is er altijd iets nieuws te verkennen. Ze kunnen leren varen of zeilen bij KNZ&RV, lekker sporten bij SC Muiden of gewoon onbezorgd spelen in de natuur. Dit is dé plek waar beeldschermen vergeten worden en buiten zijn vanzelfsprekend is!
En natuurlijk zijn scholen en kinderopvang dichtbij, zodat alles binnen handbereik is. De Krijgsman is niet zomaar een plek om te wonen, maar om op te groeien. Kom langs en ontdek het zelf!
Disclaimer:
Deze uitgave is met zorg samengesteld, onder voorbehoud van onvolkomenheden en/of foutieve informatie. Het doel van deze uitgave is geïnteresseerden te informeren over de woonmogelijkheden in De Eilanden (onderdeel van De Krijgsman Muiden). Er kunnen op geen enkele wijze rechten aan worden ontleend. De in deze uitgave opgenomen ‘artist impressions’, (plattegrond) tekeningen en schetsen, geven een globale impressie van de woningen. Niets uit deze uitgave mag zonder toestemming van de ontwikkelaar worden overgenomen of gekopieerd. Copyright april 2025. Branding & design: MASC Company.



De Krijgsman Muiden is een ontwikkeling van KNSF Vastgoed
Informatiehuis | De Krijgsman Muiden Kruitpad 14 1398 CP Muiden 0294 466608
Verkoopinformatie:
Brockhoff Makelaars 020 - 54 37 375