

Selected Works 2025
![]()


Selected Works 2025
ma a alk fai hi gmail c m
T Ca ada
P f li ma a a fi K fai hi A

A a lice ed a chi ec i h he OAA a d a i al a i i h a backg d i a chi ec al he a d e ea ch I a ach de ig challe ge i h a c ce al f ame k leadi g i a i e de ig a d c ea i g ace ha a e f c i al a d i all ca i a i g
E d c a C c a
L c d A c c O a A c a A c c P e e
Ma A c c M A c
T M a U F R U
De ic i g A chi ec e H e f he Imagi a i
Bac A c c a Sc c B A c Sc
Ca ada
T M a U F R U T Ca ada
P a E c
A c c D A c c I c
E e ie ced a chi ec i h a ack ec d f cce i e eei g c m e ide ial a d c mme cial ma e la de el me P ficie i all ha e f jec e ec i f m i i ial de ig c c i admi i a i Skilled i c llab a i g i h clie c l a a d b ildi g fficial e e jec cce N able jec i cl de he e a i a d e a i f e ide ial h me i d T a d i The G ea e
T A ea a l a ili i P i ce Ed a d C a d a ma e la de el me i
Niaga a he Lake ha e c m a e e ail i a h el a c mm i ce e a g ce a d h e
I A c c MMC I a a A c c L d
E gaged i he de ig ce f b h e ail a d c mme cial b ildi g ac m l i le jec ha e f m i i ial chema ic c ce fi al c c i age Re ibili ie e c m a ed c af i g ha d d a ke che d ci g c m e ge e a ed e de a d ge e a i g de ailed d a i g f c c i d c me a i Ma aged a i ci a lica i i cl di g SPA b ildi g e mi dem li i e mi a d i g ce ifica e N able jec i cl de c ib i S a e O e Sh i g Ce e E i Mill T
Ce e S Vi al Ce e Halifa Sh i g Ce e a d Pe Ce e ac m l i le maj ci ie i Ca ada
S E d V a A K a A
C ea i g a chi ec all i i ed ai i g ce amic a d d a i g ha e l e he i e ec i f Ea e a d We e c l al m if I de el i al a a i e ha me ge c em a a d adi i al a chi ec e maki g each iece a i eg a i be ee b h c l al he e Th gh hi a i ic f i I eek c e ie f he i age a d c l al ide i ie
A c c a D Ma a C a c
I a i l ed i i e i e a i jec f e ide ial h me he e I de ig ed c m
i e i mill k f ki che ba h m la d m li i g a ea a d age ace
M le al i cl ded elec i g ma e ial a d fi i he f a i i e i ace e ha ce b h f c i ali a d ae he ic
A a D Med a A ch ec I c
I ked a a a i e a chi ec a a i a c ib i g he c ce a i a i f e i i a de ig a d he de e e f c c i d c e d a i g f e ide ia
h e e ai h a d e igi b i di g I a c d c ed i e i i e a a e i e c di i a d e e e de ig i e e a i
G a a A a A a D a T Me a U e
A a G ad a e A i a f ASC Tec ic Ma e ia i a d ASC De ig S di I I a e ib e f a i i g fe i e ie i g c a a ig e a d g adi g de e a M e a i ed i g he e a a i a d i g f g ade g idi g de h gh hei de ig jec a d aidi g i i e a a i
C C a a
T M a C Ma a D C a
C ab a ed he de ig a f a ede ia b idge ha e i ed i k he H d
Ya d he M iha T ai Ha i Ma ha a Ne Y k Ci
Da A U L a A a C
C ib ed he e i a i a i f he c e ib a a d i adjace ca i e ai i g e e a e he b ic ace a d f e c i i e e
P a
S S P a O a A c a f A ch ec
M a chi ec a a e ke che e e b i hed a a f he e ke ch g a b he
O a i A cia i f A chi ec
Ca a A a A Ga Fe a f A ab c M c a d A
T k a i a c ab a i e g a h h ca e a chi ec a a k
E J a A a L a V I e
T f ai i g e e b i hed he i ide c e f he aga i e
Ne Y k Ci USA
D a
Re i A CAD Ske ch Rhi ce Ad be
Ph h Ad be I De ig Ad be I a P e ie e
R h Mic f Office Mic f E ce La e C e
U i e a
Ma a Pai i g Ha d D a i g P e W d W k M de B i di g Ph g a h
T a S
Vi a e i g ke chi g a d e ki g i h a ge S S cce S i i g Skii g Biki g
L a a
E g i h
A a a
abic

M. Arch Thesis | Ryerson University (TMU) | 2016-2017
Depictions (drawings, models) play a significant role in giving architecture form through the use of various techniques and mediums of expression. These forms of depictions invite an experimental design approach and generate critical thinking in design. The aim in this thesis is to look at architecture critically and investigate design approaches to enhance architectural ideas through varying forms of depiction such as drawing, painting, sculpture, and digital media. Experimentally driven design processes have the potential to push ideas to greater heights in the architectural discipline. Architectural depiction that pursues ideas or notions that may never be built are significant forms of production that push design thinking into other territories; they are in and of themselves architecture. Specifically, the design of a ‘House of the Imagination’ becomes a vehicle in the thesis for experimental architectural ideas and provides an alternative setting for architectural form making.


























Dewson Architects | Winter 2021 | Toronto, On, Canada
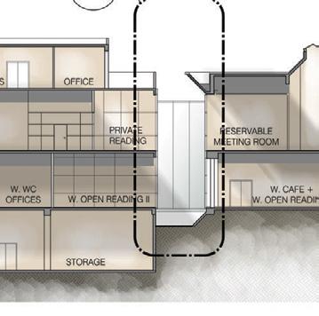
The proposed renovation and expansion project for this 300 m2 residence in Toronto, Canada, addresses the limitations of the existing 30-year-old house. With deficiencies in design and user comfort such as inadequate circulation, air quality, and thermal comfort, a retrofit was necessary to improve these aspects. This proposal aims to elevate the living experience by reimagining the space to accommodate desired programs and floor plan layouts. The concept involves demolishing internal partition walls, replacing the hipped roof with a full second floor, redesigning the central stair, expanding square footage on all levels, upgrading the HVAC system, and enhancing thermal performance with improved wall assemblies. By blending new and existing materials and color palettes, the design achieves a contemporary aesthetic while preserving the essence of the traditional house’s form.















































































































Medina Architects | Summer 2018 | Sakaka, Al Jouf, Saudi Arabia
Architectural Competition


The Dar Al-Uloum Library project in Sakaka, Saudi Arabia, endeavors to rejuvenate an existing library building into a contemporary complex serving the local community. Embracing a design ethos that integrates the old with the new, the approach involves expanding upon the existing structure to reimagine the environment and enhance the overall experience. The expansion of the existing building is conceived as an organic extension, seamlessly blending with the new elements to create a cohesive architectural composition. This approach results in a unified whole with fresh spatial configurations that integrate the old core. New spaces, including areas for children, an auditorium, classrooms, and additional study areas, branch out from the central existing space, enriching the library’s offerings. Central to the design is the transformation of the core space into a dynamic central courtyard, serving as the main circulation hub and connecting point for the entire complex. The fluid programmatic layout encourages movement and interaction, blurring the boundaries between internal and external spaces, and fostering a sense of interconnectedness throughout the building.
















































































































































































Conceptual Sections
















North Night Render







Sections A & C



















MMC International Architects Ltd. | Winter 2020 | Mississauaga, On, Canada
Erin Mills Town Centre, established in 1989, has undergone numerous renovations and expansions over the years to ensure its relevance and modernity. The latest ongoing project involves the demolition of the old Sears parcel and the subsequent reconstruction and enlargement of a Cineplex Cinema, a revamped main mall entrance, and an overhaul of the site’s exterior scope. In my role, I played a pivotal part in spearheading the Site Plan Approval (SPA) and building design packages, liaising closely with municipal authorities to address their requirements and address any concerns promptly. This involved modifying the design of exterior elevations, landscaping, and optimizing gross floor area (GFA) and parking provisions to create more user-friendly and contemporary urban spaces. The SPA and building permit for this ambitious mall redevelopment have been suc













Second Level Plan




Precedent Images - Old vs New
Medina Architect | Winter 2019 | NewYork City, United States of America
Architectural Competition
The design challenge for this pedestrian bridge competition centered on establishing a seamless connection between Moynihan Station and The Shed on the High Line in New York City. Addressing the prevalent issue of traffic congestion in urban settings like New York, especially along routes linking key transportation hubs with high-density areas, was paramount. The design approach aimed to create a network of pathways linking the primary endpoints while integrating additional connection points to engage with the surrounding urban fabric. Rather than circumventing barriers, the bridge embraces them, fostering various programs and forming junctions at significant points along the route. Notable features include a lookout platform on 9th Avenue and integration with the GO Bus station. The bridge design features a fluid steel form capable of flexing and adapting to compressed or widened spaces along the path. Functionally, it provides shelter and transparency, ensuring physical protection in a secure environment. Embracing a similar typology to the existing High Line, the bridge introduces inviting green spaces and seating areas for pedestrians, enhancing the overall pedestrian experience.







Exploded Axonometric



Render - North-West Side
Studio in Collaborative Practice | Winter 2016 | Toronto, On, Canada
Collaborated with Giovana Monaco
Ryerson University’s School of Fashion and Communication stands as a beacon of excellence in North America, yet its current infrastructure fails to reflect this distinction. Proposing a relocation of the School of Fashion to Ryerson’s own Monetary Times Building, a historic landmark once housing a newspaper and printing press, presents an opportunity to harmonize the institution’s prestige with its physical environment. The architectural transformation of the Monetary Times Building will be approached with a reverence for its rich history, aiming to seamlessly bridge the gap between past and present. Embracing semiotic research and artistic expression, the design intervention will explore the building’s relationship to the contemporary context and envisage its extension. Central to the proposal is the concept of layering, where materiality and aesthetic order are meticulously considered to accommodate the needs of the program. By honoring both the existing built form and the spirit of the institution’s programs, the design will strike a balance between preservation and modernization, ultimately redefining the building’s identity while remaining true to its heritage.
















Wall Sculpture | Summer 2023 | Oakville, On, Canada
Ceramic Art Mounted on Wall 40”x 85”
This unique art installation was commissioned by the client as a custom sculpture wall art for her dining room. After exploring numerous design iterations and sketching various ideas, the final concept selected depicts the family members gazing towards Baghdad in the distance. This abstract and vibrant project seamlessly merges traditional architectural elements with modern and contemporary flair. Each piece was meticulously handcrafted, with utmost attention to detail, resulting in a final installation that resembles a carefully assembled puzzle after months of dedicated work.









Studio in Critical Practice | Winter 2016 | Toronto, On, Canada
Acrylic onWatercolor Paper
20”x 25”
Through extensive research on the concept of home and its multifaceted meanings, my design process is guided by a deep exploration of both its physical and conceptual dimensions. By delving into the intricate interplay between these realms, I aim to uncover a third state that exists in the liminal space between them. Drawing from my personal experiences and a nuanced comprehension of the essence of home, I synthesize ideas that are expressed through artistic mediums. By considering memory, knowledge, and history within distinct spatial contexts, I investigate this middle-ground state through various forms such as drawings, models, and maps. Through the act of creation, a clearer comprehension of the institution of ‘Home’ emerges, shedding light on its




The Hug Gallery of Hope - Art Exhibition | Fall 2019 | Toronto, On, Canada
Acrylic on Canvas
18’’x 24’’
Artist Statement
With a background rooted in both Iraqi and Canadian heritage, coupled with a profound passion for art and architecture, I approach my work with the intention of seamlessly blending my identities and interests into artistic endeavors. Exploring the fusion of Western and Eastern cultures through the integration of traditional forms and dynamic abstract geometries has been a captivating journey for me. My design philosophy revolves around striking a harmonious balance between these two cultural influences, employing an artistic architectural approach to convey meaningful subject matter.
My academic journey, encompassing both a B.Arch.Sc and an M.Arch degree from Ryerson University (TMU), has been instrumental in honing my design thinking skills through the adoption of critical design methodologies. Architecture serves as a conduit for my passion, with my paintings serving as a medium to express and bridge both of my cultural backgrounds. Through vibrant hues and abstract compositions, works like “The Hug” narrate tales of my blended identities.
In “The Hug,” I endeavor to capture an intimate moment shared between a mother and her child. Amidst depicted hardships, the embrace symbolizes a profound sense of solace, optimism, and resilience, transcending adversity with heartfelt warmth.

Marwa Tawfiq marwa.alkufaishi@gmail.com +1416.998.9981