











LAUREANDA IN ARCHITETTURA
27 I 10 I 1997
ITALIA
martinassottile@gmail.com
+39 3791845476
COMPETENZE LINGUISTICHE
I Madrelingua
INGLESE I B2
PORTOGHESE I B2
![]()












LAUREANDA IN ARCHITETTURA
27 I 10 I 1997
ITALIA
martinassottile@gmail.com
+39 3791845476
COMPETENZE LINGUISTICHE
I Madrelingua
INGLESE I B2
PORTOGHESE I B2
COMPETENZE DIGITALI
Adobe (Ps, Ai,Id)
Autodesk AutoCAD
3DsMAX, Rhinoceros, Sketchup, Revit (base), Archicad (base)
Metashape
2023 – 2024
FACULDADEDEENGENHARIADAUNIVERSIDADEDOPORTO(PT)
Maestrado em Planeamento e Projecto Urbano
Programma di mobilità Erasmus+ per studio presso Universidade do Porto Master in Spatial Planning and Urban Project
2021 – 2022
FACULDADEDEARQUITECTURADAUNIVERSIDADEDOPORTO (PT)
Maestrado integrado em Arquitectura
Programma di mobilità Erasmus+ per studio presso Universidade do Porto Master in Architettura
2018 – (in corso)
UNIVERSITÀ DEGLISTUDI DIPALERMO (IT)
Laurea magistrale a ciclo unico in Architettura LM4
2011 – 2016
I.I.S. BORGHESE-FARANDA- Patti (IT)
Diploma di perito in Costruzione, Ambiente e Territorio
2023
ALVAARCHITETTI(PALERMO, IT)
Tirocinio curriculare
Università degli Studi di Palermo Dipartimento di Architettura
SUL MARGINE DELL’ORTO BOTANICO DI PALERMO
SPAZI PER PROFESSORI OSPITI
Orto Botanico di Palermo - Palermo, IT
SUL BORDO DELL’ALBERGHERIA. DABALLARÒ APORTAMAZARA.
RESIDENZE E SPAZI CONDIVISI NEL CENTRO STORICO DI PALERMO. Palermo, IT
ABITAZIONI CONDIVISE
La Cala - Palermo, IT
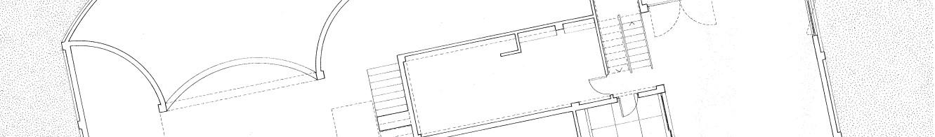
LA CHIESA DEI SANTISSIMI QUARANTA MARTIRI
E DI SANRAINERI DEI NOBILI PISANI ALLA GUILLA Palermo, IT
RILIEVO DIGITALE. FOTOGRAMMETRIA
Universidade do Porto Faculdade de Arquitetura
CASADADANÇA
Freixo - Porto PT
MODELAÇÃO/REPRESENTAÇÃODIGITAL
Laboratori Coordinati di Progettazione Architettonica 1 INCIPITLab. 2018/2019 – Laboratorio B
Esercizio principale del Laboratorio di Progettazione Architettonica I è il progetto di spazi abitativi e di studio offerti a docenti provenienti da altri atenei, individuati in un’area marginale dell’Orto Botanico di Palermo, prospicente la Via Tiro a segno.
L’esercizio mira al progetto di un sistema insediativo complessivo di una schiera di sette case. Ciascuno studente ha sviluppato, individualmente, il progetto di un organismo architettonico, sviluppato alle diverse scale di rappresentazione, controllando sia il processo di definizione formale in rapporto alle tecniche, ai materiali adottati e al programma funzionale, sia lo spazio di relazione fra gli edifici progettati e il contesto di appartenenza.
Ulteriore elemento di relazione con l’area dell’Orto Botanico e con gli interventi previsti è costituito dall’ipotetico inserimento del Padiglione dell’Esprit Nouveau del 1925 di Le Corbusier.



N.B. TUTTI GLI ELABORATI PROGETTUALISONOSTATIREALIZZATI
TRAMITE USO ESCLUSIVO DELLA PRATICA MANUALE DEL DISEGNO ARCHITETTONICO CON L’AUSILIO DI MATITA E CHINA SU CARTONCINO FABRIANO 70 x 100cm
◁ MODELLO DI INSIEME IN POLISTIROLO CARTONATO





















































RESIDENZEESPAZICONDIVSI NELCENTROSTORICO DIPALERMO.





Laboratorio 2 di Progettazione Architettonica a.a. 2019/2020


N.B. TUTTI GLI ELABORATI PROGETTUALI SONO STATIREALIZZATICONMATITAECHINASUCARTADASCHIZZI













L’esercizio progettuale principale del Laboratorio di Progettazione Architettonica II consiste nella progettazione di un sistema di edifici e spazi condivisi, destinato a residenze e servizi (Social Housing), localizzato lungo i limiti meridionali del centro antico di Palermo, nei pressi del quartiere Albergheria.
Il progetto che segue trova localizzazione nell’area Albergheria – mura di Montalto, soggetta a situazioni di emarginazione e degrado fisico e sociale, caratterizzata dall’assenza di relazione tra gli ambiti dell’insediamento urbano di più antica e più recente edificazione, gli spazi aperti e il sistema urbano e paesaggistico più ampio.











A partire da una attenta indagine sulle condizioni al contorno, dalla comprensione dei limiti derivanti dalla richiesta della committenza, indicate in un breve programma fornito agli studenti, e dai vincoli e potenzialità proprie del sito, il progetto si sviluppa in un sistema architettonico da destinare nella parte inferiore a servizi mentre i piani superiori sono destinati a residenze plurifamiliari ed alloggi duplex, questi ultimi situati nella parte più alta degli edifici. Inoltre, il progetto ripensa l’area esterna per la riprogettazione di spazi esterni comuni a verde attrezzato, spazi destinati a depositi per biciclette e carrozzine.
Laboratorio 5 di Progettazione Architettonica a.a. 2022/2023
In un contesto in cui le abitazioni diventano sempre più piccole e i servizi più costosi, il Laboratorio di progettazione vuole trovare soluzioni innovative e accessibili per le giovani generazioni che si ritrovano a vivere in città sempre più complesse, con risorse economiche limitate e costi abitativi crescenti.
Il progetto si basa su un modulo abitativo di 20 mq, che può essere ampliato per creare appartamenti di 40 mq e 60 mq, a seconda delle esigenze degli abitanti. Ogni modulo offre uno spazio privato essenziale, comprensivo di zona notte, servizio igienico e un piccolo soggiorno con cucinino. Questi moduli si integrano in strutture più ampie che includono aree comuni condivise, lavanderie e laboratori, ottimizzando risorse e riducendo i costi.











Laboratorio di Restauro dei monumenti

Il progetto di restauroconsiste nella redazione di elaborati graficia supporto delle scelte adottate infase diricognizione e valutazione delleconsistenzefisiche della fabbrica, dello stato di conservazione dei materiali e dissesto delle strutture.
La Chiesa dei Santissimi Quaranta Martiri e di San Raineri dei Nobili Pisani alla Guilla venne edificata alla fine del 1608.
La Chiesa riceve una profonda trasformazione nel terzo decennio del secolo XVIII. Un’iscrizione ad affresco, oggi parzialmente leggibile, posta nella parete a sinistra dell’ingresso, ricorda l’opera di rifacimento e l’anno: 1725. Allo stesso anno si fa risalire l’intervento del fiammingo Gugliemo Borremans, il quale realizzò l’apparato pittorico che decora l’interno e la volta.
Degna di nota è anche la pavimentazione in cotto maiolicato, realizzata nel 1798 come indicato da una iscrizione posta sulla pavimetazione stessa.
Il progetto di restauro si propone di migliorare le condizioni di manutenzione della fabbrica al fine di garantirne la conservazione in accordo con la fruizione da parte della comunità.




SEZIONE LONGITUDINALE ▽ INDAGINI IN SITO
Laboratorio di Disegno e Rilievo Digitale dell’Architettura a.a. 2020/2021








Scopo dell’ercitazione è l’apprendimento deglistrumentibasilari di rilievo digitale tramite l’utilizzo del software Agisoft Metashape.



Oggetto del rilievo è un modello in scala 1:2 della volta della canonica di San Pietro Aposto (Modica), realizzato dagli allievi del Laboratorio di Stereotomia.






Il rilievo fotografico ha permesso l’analisi delle forme elementari che costituiscono l’ogetto e quindi è stato possibile il ridisegno e la conseguente modellazione 3D tramite l’utilizzo del software Rhinoceros.





























FAUP – Projecto 4 I Costruçao 3 I Sistemas Estruturais
a.a. 2021/2022






























































Lavoro di gruppo svolto con Arianna Colognola e Aurora Benassi
FAUP - Geometria e Arquitectura a.a. 2021/2022
Esercizio finale del corso di Geometria e Arquitectura.
Scopo dell’ercitazione è apprendere i metodi di modellazione 3D tramite il ridisegno delle Porte di Parigi, disegnate da Claude-Nicolas LeDoux.
L’edificio oggetto dell’esercitazione è la Barriere Monceaux.
Partendo dall’analisi dei disegni sono state individuate le forme elementari di cui si compone l’edificio e gli elementi che lo costituiscono.
Ciò ha permesso il rigoroso ridisegno di piante e sezioni utilizzate quale base per la modellazione 3D tramite il software Rhinoceros.















◁ DISEGNO 2D
Dal modello 3D in basso sono stati ricavati: piante, prospetti e sezioni.
▽ MODELLAZIONE 3D





