






![]()







Multifamily Experiential Living Community

Brandlhubert: Antivilla

SUSTAINABLE







COMMUNITY ORIENTED











NATURALISM


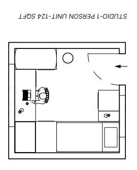
Amenities: Capacity: 1-2 People
Full Size Bed
Room-Kitchen
Small Sink
Refrigerator
Closet
Pull out table
Restroom: Toilet Sink Shower
Amenities: Capacity: 1-2 People
Full Size Bed
Bed Storage
Room-Kitchen
Small Sink
Refrigerator
Closet
Pull out table
5’ Bench seating
Restroom: Toilet Sink Shower


















PLAN 1/4” = 1’0”

ELEVATION 1/4” = 1’0”

SECTION 1/4” = 1’0”




GYM FLOOR
FITNESS STUDIOS
RECEIVING & PURCHASING