Skip to main content

Marta Dias_Portefólio

Page 1


Marta Dias

nascimento 14|04|2000

nacionalidade Portuguesa

martacccdias@gmail.com +351919993375

employment

(fev.2026 -) studio.XXXI, Lisboa (currently working) (sep.2024 - ago.2025) ateliermob | Working with the 99%, Lisboa (internship + freelance) (Reserch,projects in preliminary and execution phases, competitions, site visits, models, presentation drawings) (abr.2022 - jul.2022) ateliermob, Lisboa (public housing competition, Palmela)

MARTA DIAS PROJETO FINAL DE MESTRADO

education

(sep.2025) Workshop Focus - Plaster and Clay Paint, BC materials, Brussels

(sep.2021 - jul.2024) Master’s Degree, Faculdade de Arquitetura da Universidade de Lisboa (sep.2022) Summer School Intensive Workshop ”MARVILA LAB: building collective living”, Universidade de Lisboa (jan.2022 - jul.2022) Erasmus+ at Faculdad de Arquitectura, Diseño y Urbanismo - Universidad de Buenos Aires (sep.2018 - jun.2021) Bachelor’s degree, Faculdade de Arquitetura da Universidade de Lisboa

skills

Technical drawing - AutoCAD | Rhino | VRay | Archicad

Adobe - Photoshop | Indesign | Ilustrator

Microsoft Office - Word | Powerpoint | Excel

languages

portuguese - native

english - advanced

spanish - intermediate

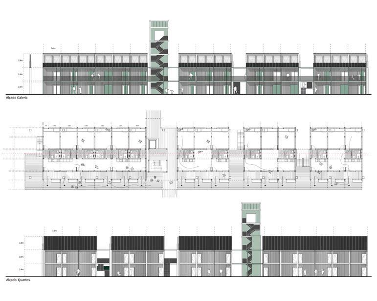
HABITAÇÃO COLABORATIVA

(ano)

2024 (localização)

MARVILA, LISBOA (design)

Projeto final de mestrado (orientador)

Tiago Mota Saraiva

projeto de transformação de um espaço indistrial em marvila 01 01

Uma situação de projeto que partiu da transformação de uma grande área de armazéns industriais junto à Rua Pereira e Henriques, Marvila, através de um projeto de habitação colaborativa.

Estas áreas de antigas fábricas e armazéns industriais, localizadas numa Marvila entre o comboio e o rio, foram repensadas, de forma a serem novamente uma parte activa do tecido urbano. Partindo de uma infraestrutura existente, reutilizando e transformando o espaço construído (escala industrial), de forma a que possa ser habitado (escala humana).

HABITAÇÃO COLABORATIVA

projeto de transformação de um espaço indistrial em marvila

01 TRANSFORMAÇÃO

“Quer se trate de plantas, de usos, de vistas, de espaços, de pavimentos ou de construções, o existente é a estrutura preliminar de todos os nossos projetos.”

(Lacaton&Vassal, 2021)

A transformação como premissa do projeto permite ter em conta a heterogeneidade e as singularidades da preexistência, reconhecendo a sua validade.

O projeto partirá de uma grande área construída de antigos armazéns industriais, transformando-a de forma a que possa fazer novamente parte activa da cidade existente. Esta abordagem, com base na transformação, desenvolve e densifica a cidade a partir do seu interior, antes de a prolongar para fora do seu perímetro.

HABITAÇÃO COLABORATIVA

projeto de transformação de um espaço indistrial em marvila

projeto de transformação de um espaço indistrial em marvila

REUTILIZAÇÃO

“Na riqueza complexa da vida da cidade (...) a arquitetura torna-se acima de tudo a arte de criar passagens” (Stavrides, 2021)

A imagem do limiar concebe o acto de separar ao mesmo tempo que liga zonas que são distintas, mas também interdependentes. Influenciando assim a forma como o espaço doméstico interage para além dos seus limites construídos, “tal como a casa se abre para a rua, com cadeiras, fogareiro e altar, assim também, mas com muito mais alarido, a rua invade a casa”, refere Walter Benjamin sobre a cidade de Nápoles. A consciência do limiar pode gerar encontros entre diferentes trajetos de vida, expondo as pessoas umas às outras, e evitando o isolamento.

Umas escadas podem ser apenas escadas, como objeto físico, mas uma escadaria urbana, pode ser temporariamente transformado num espaço de encontros informais, onde as pessoas comem, brincam, leem, cumprimentam-se, demoram-se, cruzam-se, esperam, etc.

HABITAÇÃO COLABORATIVA

projeto de

01 INFRAESTRUTURA COMUM

Longhouse

“The longhouse actually can be defined as a long and narrow house, which can contain an extended family, a kin group, a clan, a community, and a village.” (Aureli, 2023)

A longhouse é um tipo de habitação linear, longa e estreita, que existiu em diferentes partes do mundo. Estas compõe estruturas cuja escala e organização espacial, caracterizada pela regularidade e simetria, formam espaços que tornam mais difícil a distinção entre o público e o privado.

A longhouse não é uma casa coletiva, mas uma infraestrutura comum.

Interpretando a longhouse, essencialmente, como uma infraestrutura que organiza o espaço segundo uma métrica regular e repetitiva, distribuindo os espaços habitáveis pelos membros de uma comunidade, é possível estabelecer uma relação com a presente proposta.

HABITAÇÃO COLABORATIVA

projeto de transformação de um espaço indistrial em marvila

projeto de transformação de um espaço indistrial em marvila

Considerando a profunda influência que arquitetura tem na forma como as pessoas vivem juntas, um contributo importante desta prática será a criação de um sentido renovado de coesão numa sociedade que tende para ser cada vez mais individualista.

São necessárias experiências que demonstrem as mais valias de viver em proximidade, reconhecendo a atual, e inevitável, densificação do meio urbano.

Qualquer estratégia de densificação deve ter em vista a proximidade entre indivíduos e as potencialidades da cidade como espaço de encontros e relações humanas.

Porosidade, generosidade e mobilidade devem ser os conceitos fundamentais de qualquer debate que tenha como fim a densificação. Recusando a atual devoção à propriedade, à produção e à acumulação que deveriam ser vistos como meios e não fins.

Turn static files into dynamic content formats.

Create a flipbook