
Oceanview oasis
Californian inspiration on the dunes of Mount Maunganui
![]()

Californian inspiration on the dunes of Mount Maunganui









PAPAMOA TO WAIHI AND EVERYWHERE IN BETWEEN








Welcome to this latest edition of Distinctive Designs, where we celebrate the creativity, craftsmanship and considered thinking shaping homes across the Bay of Plenty and beyond. In these pages, you’ll discover award-winning architectural builds, refined kitchen and bathroom designs, and inspiring collaborations between visionary designers, skilled builders and passionate homeowners.
From coastal retreats in Mount Maunganui and Raglan to sculptural urban sanctuaries and family homes built to embrace light, landscape and lifestyle, each project reflects a commitment to quality and detail. We explore emerging trends for 2026, from colour forecasts and material palettes to window treatments and outdoor living innovations, alongside expert insights from industry leaders.
At its heart, this issue is about connection — to place, to nature and to the people who bring these spaces to life. We hope these stories inspire your next project and invite you to imagine what’s possible
Stuart Dye
Group Editor | 021 676 320 stuart@academygroup.co.nz
Publisher
The Job Agency Ltd 38 Lowe Street, Addington, Christchurch 8011
Managing Director
Gary Collins
General Manager of Operations
Kylie Palermo
Sales Manager
Angela Elley 03 961 5184 | sales@markat.co.nz
@distinctivedesignsnz @distinctivedesignsmagazine_nz
Sales
Clare Kennedy clare@distinctivedesigns.co.nz
Product Co-Ordinator Manager
Amber Mundy 03 961 5075 | amber@markat.co.nz
Kyla Nicholls - Production Co-Ordinator
Accounts 03 961 5050 | info@markat.co.nz
Bay of Plenty/Waikato issue #2 - D26B1
DISCLAIMER: This publication is provided on the basis that The Job Agency Ltd is not responsible for the results of any actions taken on the basis of information in these articles, nor for any error oromission from these articles and that the firm is not hereby engaged in rendering advice or services. The Job Agency Ltd expressly disclaim all and any liability and responsibility to any person in respect of anything and of the consequences of anything done, or omitted to be done, by any such a person in reliance, whether wholly or partially upon the whole or any part of the contents of this publication. Advertising feature articles are classified as advertising content and as such, information contained in them is subject to the Advertising Standards Authority Codes of Practice. Contents Copyright 2022 by The Job Agency Ltd. All rights reserved. No article or advertisement may be reproduced without written permission.
You can read the full list of terms and conditions on: www.markat.co.nz/terms-conditions | www.markat.co.nz/competition-terms/


Award-winning concrete pool + hardscaping experts
Every backyard dream starts somewhere. We take your vision and turn it into water, light and space that feels effortless. Designed with purpose, built with precision.







Californian inspiration on the dunes of Mount Maunganui
54.
A marriage of Australian coastal design and Californian architecture.
62.
An award-winning retreat with mountain and estuary views.
Light-filled home boasts seamless connection to its calm coastal setting.
78.
Sustainable design, exceptional craftsmanship and views to Mount Karioi.
Split-level in Pye’s Pa makes the most of lush green rural spaces.
Kaimai Roofing helping homes come out on top




Your work is exceptional. Your visuals should be too.
At Hyperreal, we create photography and film that honour the craft, detail and intention behind every project. Authentic, design-led storytelling for architects, builders and ambitious brands, Aotearoa-wide. See your work at its best — hyperreal.co.nz










THE BAY OF PLENTY’S POOL DESIGN AND BUILDING EXPERTS, THE AWARD-WINNING AND TREND-SETTING DEL TUTTO TALK ALL THINGS PEOPLE, POPULARITY, PROJECTS AND PROCESS.
How did Del Tutto Pools get started?
Del Tutto (‘all together’ – Italian origin) began when owner Isaac and his family moved from Auckland back to Tauranga in 2008, where he grew up. With over 15 years of quality pool construction experience already, Isaac wanted to create beautiful, well-built pools that felt like a natural extension of the home. Grounded with strong Italian craftsmanship, detail and pride have shaped the business from day one. With another 17 years in the industry since its conception, Del Tutto Pools has grown into a trusted brand in Tauranga among industry professionals and valued clients alike.
What makes your work stand out?
We focus on quality, personal service and designs that genuinely fit the lifestyle of the client, treating each project as if it is our own. Every pool is customised – not just dropped into a space – and we take time to understand how each household will use it. Del Tutto uses spray concrete as a construction method, forming a single continuous shell. With fewer seams and a denser finish, spray concrete can be shaped freely for customised designs, making it ideal for tight corners or organic curves. Our workmanship is meticulous, and we pride ourselves on communication, reliability and finishing a product to a standard we’re proud to put our name on.
Can you walk us through your process?
It starts with a conversation. We visit the property, look at the space and talk with the client about how they want to use the pool. From there, we create a concept design that considers layout, style, materials, and how the pool connects with the home. If there is already a design, we offer any ideas we may have from our years of experience.
Once the design is approved, we can manage the entire build, excavation, construction, water treatment systems, finishing touches and compliance. Del Tutto often works seamlessly alongside building companies during house builds and renovations. Throughout the entire process, clients are kept updated so there are no surprises. The final step is completed with handover, where we walk clients through pool care and ensure everything is performing perfectly.
What role does sustainability play?
Sustainability is built into our choices; energy-efficient pumps, smart filtration, eco-friendly LED lighting and

durable materials that are made to last. We design pools to run efficiently long term, not just look good on day one. Where possible, we reduce waste and ensure systems are set up to minimise ongoing water and energy use.
What trends are you seeing in pool design?
People are moving towards cleaner, more modern lines, mineral pools and spaces that blend seamlessly with landscaping. Sun ledges, built-in spas, automatic pool covers and smart lighting are all growing in popularity. We stay ahead by combining core principles of design with new technology and materials that will improve the client’s experience and expectations, not just follow a trend.
Could you share a standout project?
We are fortunate to have several! Most recently, two of our pools were finalists in the SPASA awards, with another two winning National titles. What we truly appreciate is seeing our pools feature alongside some of the best architecture and construction in the Bay of Plenty and celebrating the recognition these teams also receive for their work.
What’s next for Del Tutto Pools?
We’re continuing to push for higher-quality, custom builds in the Bay’s growing landscape. We have several projects alongside local build teams and a large-scale residential swimming pool. The goal is always to make collaboration simple, reliable and rewarding – reflecting the quality and commitment we bring to every project. Del Tutto – designed with purpose, built with precision.
www.deltutto.co.nz

Bring balance and natural warmth to your living space with the Wynn Coffee Table. Defined by its sleek ski-base design and gentle chamfered edges, this piece embodies understated craftsmanship that defines contemporary New Zealand design.
RRP $2,050.00
www.woodwrights.co.nz


The Tribu Senja Meridienne combines deep, inviting cushions with a sleek powder-coated frame, offering comfort and elegance outdoors. Customise with a choice of finishes and weather-resistant fabrics. A refined side table can also be attached, making it perfect for relaxed lounging with everything close at hand.
RRP $13,679.00
www.dawsonandco.nz
Bring contemporary style outdoors with the Alesso Curved Sofa. Crafted from powder-coated aluminium and styled in elegant curves, its natural tone and moistureresistant spun-polyester cushions create a relaxed, weather-ready focal point.
RRP $2,199.00 (down from $2,999.00)
www.earlysettler.co.nz
Illuminate your space with understated luxury. The Aster 9 Light Rectangle Marble Chandelier brings together a fine brushed-bass metal frame with natural marble pieces, each subtly different in tone, meaning every piece is unique. Designed to span 120cm and drop 119cm from the ceiling (with rods that can be removed to adjust the height), it’s ideally sized for larger rooms, such as dining areas or kitchen islands, where you want presence and balance.
RRP $1,699.00 (down from $2,299.00) www.earlysettler.co.nz

Rendered in luxurious Tibetan wool and bamboo silk, the hand-knotted “Fragment” rug by Greg Natale is a monochromatic ode to nature’s abstract forms. Measuring approximately 300 x 240cm, it brings sophisticated texture and quiet luxury underfoot.
RRP POE www.designerrugs.nz
Crafted in a softly curved silhouette, the Atelier Sofa brings a refined sense of Parisian chic to modern living rooms. Tailor it to your space with a choice of over 40 luxe upholstery options, ensuring your sofa is individual to your style.
RRP $5,020.00 (down from $6,695.00) www.cocorepublic.co.nz
DISCLAIMER: Please note prices listed here are recommended retail pricing. Prices are subject to change at the discretion of the seller. The information on this page is for information purposes only. The Job Agency Ltd assumes no liability or responsibility for any inaccurate, delayed or incomplete information, nor for any actions taken in reliance thereon.


WRITTEN BY JONATHON TAYLOR
Plumbline has unveiled a design collaboration with one of Australia’s most celebrated design visionaries, Greg Natale. The Milazzo collection marks Greg’s first foray into bathroom ware — a natural extension of his unmistakable aesthetic and his ongoing influence across the world of interiors.
Known for his daring use of colour, pattern and materiality, Greg brings his signature aesthetic to the bathroom in the Milazzo collection — a bold, sculptural range of basins and baths.
Greg is renowned for his fearless approach to colour, pattern and form. Across two decades, his richly layered interiors and distinctive style have earned him global recognition, with features in Architectural Digest, Elle Decoration, Vogue Living, Vanity Fair and Belle.
Named one of the World’s Most Influential Designers by AD Mexico and a Design Visionary by Harper’s Bazaar Interiors Middle East, Greg continues to shape the design conversation both in Australia and internationally.
The Milazzo collection distils Greg’s design DNA into a striking new bathroom series which is sculptural, refined and undeniably bold. Inspired by the geometric elegance of Italian street furniture, each piece is grounded in symmetry, softened by gentle curves and finished in a palette that reflects his refined eye for tone and contrast.
Crafted from smooth solid surface and available in seven finishes, the collection includes a freestanding bath and two basin formats: an oversized oval and a compact pill shape — both designed to elevate their surroundings.
Milazzo is a bold distillation of Greg Natale’s design language: expressive, refined and built to endure. With its sculptural forms and considered finishes, the collection elevates the bathroom to a new level of sophistication, transforming everyday rituals into moments of visual and tactile pleasure.
www.plumbline.co.nz

WRITTEN BY SHELLEY SWEENEY
When choosing a rug, it’s important to consider how the space will be used. Will it be a high use area? Are there children and/or pets in the home? Is it located close to an entrance? All of these will contribute to the performance of the rug. Large rugs unite furniture and make a room feel intentional and cohesive, while small rugs can be playful or dynamic.
In a formal area, the furniture is often placed either partially or fully on the rug if the size allows. In a casual space, the rug may be in a more open space to allow children to play on the rug with the furniture appropriately arranged to suit the use.
When it comes to rug fibres, Laura Furey, managing director of Designer Rugs says: “Wool is the best fibre in a dining area and in fact, all areas of the home. Many of our rugs are produced in New Zealand wool.” This is the preferred fibre due to its durability, sustainability,
thermal and flame resistance among other benefits. “Some wool rugs do contain some artificial fibres, such as viscose, which provide highlights and sheen. These are more suited to low use areas, such as bedrooms and formal living spaces,” says Laura. There are many styles available but the selection is ultimately driven by the choices around furniture, art, paint colours and flooring.
“A rug can have a surprisingly big impact on the mood of a room because it affects, colour, texture, scale and even how cosy the space feels,” says Laura. “Warm colours make a room feel energetic, inviting and cosy, versus cool colours that create a calm, relaxing and airy mood. Bold patterns add excitement, personality or drama while neutral, subtle patterns feel grounded, elegant and peaceful.”
www.designerrugs.co.nz

NEW ZEALAND’S DULUX COLOUR AND DESIGN SPECIALIST DAVINA HARPER, SHARES THE 2026 COLOUR FORECAST FROM THE DULUX COLOUR TEAM.
WRITTEN BY SHELLEY SWEENEY
The annual Dulux Colour Forecast is grounded in extensive, year-round research into global and local trends set to shape Kiwi interior design and the way we live. Since its inception in 1999, the forecast has become a trusted guide for designers, architects and homeowners alike. The three 2026 palettes are about a sense of tenderness and connection through colour.
Behind the scenes with the Dulux Colour Forecast Team
The Dulux Colour Team closely collaborates with international brands, attends design shows and seminars, runway presentations and global events such as Milan Design Week. They also draw from customised trend research and insights accessed through Dulux’s global network across the UK, Europe and Asia-Pacific. As members of the Color Marketing Group (CMG), they analyse key reports from CMG as well as forecasting firms such as Color Hive-Mix Magazine and LS:N Global to ensure the forecasting reflects what’s ahead.


DIFFERENT


The Ethereal Palette
Dulux Ethereal invites a soft form of escapism, creating playful and whimsical spaces filled with serenity, tenderness, and a dreamlike sense of calm.
This palette features a delicate pastel-like blend of soft and mid-tone hues, gentle greens, mauves, and blush pinks that evoke a sense of serenity and joy. With romantic tones like Dulux Snowdon Forest, Dulux Different Pink and Dulux Mask, alongside subtle pastels such as Dulux Wainui Beach, Dulux Lake Camp and Dulux Waitiki Landing, this palette feels playful, uplifting, and quietly luxurious.
The Elemental Palette Dulux Elemental offers a calm, grounded counterbalance to the overwhelm of modern life.
This palette is a tonal, grounded and built around warm whites and neutrals such as Dulux Whale Bay and Dulux Duvauchelle. Elemental is enriched with golden brown hues such as Dulux Kingsland and Dulux Herald Island. Subtle layers of warm grey,
including Dulux Godley Head and Dulux Boulder Beach, bring stillness and structure, while darker charcoal tones add depth and dimension.
Evoke Palette
Dulux Evoke is an optimistic, bold and expressive palette that channels individuality, reminiscence and emotional warmth.
This palette celebrates the resurgence of maximalism and individual style, a desire for change and support for local and global designers. Rooted in vintage aesthetics it embraces imperfection and cherishes treasures, blending elements of the past and future to create a fresh and eclectic style.
The colours in Dulux Evoke lean into rich, comforting tones instead of brights. This creates depth, character and warmth. Clay pinks like Dulux Benhar, muted oranges such as Dulux Ligar Bay and warm mustard golds like Dulux Desert Road form a versatile base, while dramatic shades, including Dulux Warkworth, Dulux Red Jacks, Dulux Wink and Dulux Deep Aqua, add contrast and a cultured edge.
www.dulux.co.nz


TAURANGA KITCHEN AND SPATIAL DESIGN SPECIALIST CHELSEY MATHIESON SHARES HER THOUGHTS ON THE KITCHEN DESIGN ESSENTIALS FOR THE YEAR AHEAD.
From working in her parents’ kitchen manufacturing business 20-years ago to running Niche Design Co, Chelsey Mathieson has a passion for creating beautiful, functional spaces and is excited to be moving into a new showroom in Tauriko, Tauranga.
What is your design inspiration and how would you describe your aesthetic?
I’m drawn to clean lines, natural materials, timber elements, and stone finishes. I take most of my inspiration from my clients and aim to bring their vision to life while adding a subtle touch of my own along the way.
Which materials are you favouring in your current projects?
Natural materials like timber, stone and durable engineered surfaces like Dekton. I love combining these with clean lines and subtle detailing to create spaces that feel both functional and timeless.
What advice do you give new clients on what to consider in their kitchen designs?
Plan early to avoid rushed decisions and allow time to make any structural adjustments. Think about workflow, storage and daily routines, alongside materials, finishes and personal style.
What are some new things that clients are asking for in their kitchens now?
Hidden storage solutions, integrated appliances, multi-use sculleries alongside coffee or bar areas. Durable materials and a connection to the rest of the home with thoughtful design details.
What do you see as the emerging trends in kitchen design for 2026?
Kitchens are becoming more social and multi-functional. Natural materials and thoughtful workflow remain key, alongside personal touches that make the space feel warm and lived-in.
www.nichedesignco.nz
This refined kitchen renovation from Niche Design Co combines walnut timber finishes with Dekton benchtops, terrazzo tiled floors and exceptional spatial design.
WRITTEN BY SHELLEY SWEENEY
When the owners of this 1980s rural lifestyle property approached Chelsey Mathieson of Niche Design Co, they were undergoing a full home renovation. “As busy professionals with young children, they wanted a kitchen and scullery that were both functional and familyfriendly,” says Chelsey. “The clients were drawn to a timber aesthetic with clean lines and the new spaces needed to complement the large-format tiles they had already chosen, as well as the dark brickwork on the existing exterior.” Chelsey’s brief called for multi-use areas with the scullery containing the bulk of the kitchen cleanup, allowing the main kitchen to remain functional without letting mess dominate the island. The homeowners wanted the island to be a feature and standout design element, creating a striking focal point in the heart of the home.
As a Certified Kitchen Designer and member of the National Kitchen and Bathroom Association (NKBA), Chelsey brings a unique approach with nearly 20 years' experience and expertise to every project. Chelsey is a multi-award-winning kitchen and spatial designer. Her work is defined by a curiosity to explore the unexpected. It’s refined and thoughtful, combined with a deep understanding of the unique traits that make a house a home.
Chelsey loves making a real difference for her clients and to design extraordinary spaces that are not only highly functional but that also perfectly fit her clients’ lifestyle and personalities. For Chelsey, it’s all about attention to detail. She works closely with clients from the architectural concept stage right through to completion.
In this home, Chelsey worked alongside builder, DNB Homes on the kitchen renovation. “I hadn’t worked with DNB Homes before, so it was important to have all details documented and information clearly communicated to ensure a smooth collaboration. The team was fantastic. They were always one step ahead and well-organised, which meant I didn’t need to be overly involved in day-to-day decisions. It was a seamless experience and their professionalism really helped the project run efficiently,” says Chelsey.
For Chelsey, the scope of this project involved reviewing the overall spatial planning. “Early on I suggested a more effective connection between the kitchen and scullery and ways to incorporate the linen cupboard. I also designed and specified functional spaces for the whole family, including the laundry and vanities throughout the home.”


Specialising in kitchen and spatial design from concept through to plans that are ready for manufacture, Niche Design Co works with clients throughout the Bay of Plenty and loves helping them create the space of their dreams. Realistic renders offer a preview of the finished space. With this 3D technology, Chelsey and her team add to the conceptual strength by combining photorealism and graphics for detailed visualisation.
The owners of this renovation project worked with Chelsey selecting materials and colours.
“We chose a dark, moody veneer for the kitchen, paired with durable Dekton benchtops from Pacific Stone” says Chelsey. “We selected VidaSpace Shinnoki veneer panels on the

cabinetry, island, open shelves and daybed that aligned with the VidaSpace VidaGroove Slats in Black Walnut for consistency. These were used around the linen cupboard and curved wall into the family room. This softened the acoustics in the large, tiled space while also allowing for hidden doors.” Chelsey and the homeowners selected Dekton Rem for the island and splashbacks as a feature and Dekton Aeris for the sink, hob and scullery surfaces for a more understated look with brushed gunmetal steel tapware from ABI Interiors. “My client has a fantastic eye for design and we worked closely together to ensure the kitchen materials flowed seamlessly with the rest of the home.”


One of the original design solutions was wrapping the bench and cabinetry from the kitchen into the scullery, which visually and functionally connects the two spaces. Removing the cavity slider door and positioning the fridge between the areas created a natural flow and eliminated the need for a second fridge in the scullery. This was a practical solution for daily use. Chelsey also wanted the daybed to feel integrated with the kitchen and the linen cupboard to feel intentional rather than just a box in the corner. Using the batten panels achieved this and creating a hidden door within them works beautifully.
“There weren’t any major challenges on this project, but one detail that required careful consideration was the placement of new skylights,” says Chelsey. “Being a renovation, we were lucky with the existing truss layout, which allowed us to position the skylights exactly where we wanted them over the island, bringing in plenty of natural light without compromising the structure.”






“I work on many projects with Inspace Cabinetry and this one was no exception,” says Chelsey. “Their systems and communication throughout the project ensured everything was completed exactly as intended - even with the project being in the Waikato and their workshop in Mount Maunganui. All logistical aspects were handled smoothly and the installation ran without a hitch. Their attention to detail really helped bring the design to life and ensured a seamless finish.”
The standout request was the hidden linen cupboard door, says Chelsey. “Using the batten panels allowed it to blend seamlessly
into the space, creating a practical feature that also feels intentional and visually striking. Ergonomics and workflow were key, especially the connection between the kitchen and scullery. Positioning the fridge between the two areas allows easy access from both sides, keeping the space functional and efficient for daily use.”
Chelsey enjoyed collaborating with her clients on this project. “The clients’ openness to ideas and attention to detail made it a really rewarding process and I’m so pleased with how the spaces came together,” says Chelsey.
www.nichedesignco.nz


The curves and geometry of this award-winning kitchen from Niche Design Co speak to its classic European inspiration while offering the benefits of modern functionality and flow.
WRITTEN BY SHELLEY SWEENEY
This kitchen is positioned in the heart of a new dwelling built for the owners of boutique building company Langsford and Ogle Homes and their two young children. Real estate agent Mel Langsford and her husband Mitch have built and renovated five of their own properties and bring a high level of experience and discernment to every project. “We wanted a home that would feel calm, beautifully composed, and deeply functional,” says Mel.
Chelsey Mathieson from Niche Design Co designed the kitchen to flow seamlessly with the rest of the home:
“As it was the builder’s own home, we worked very closely together throughout the project,” says Chelsey. “I worked with Mel and interior designer Belinda Wolland and also designed a beautiful, functional laundry to complement the space.”
“We designed the home with 3.2 metre ceilings and detailed scotia to give the spaces presence and lightness and we
wanted the kitchen to feel anchored within that scale,” says Mel. “Our travels through France and Italy also shaped the aesthetic. We wanted timeless materials, soft tonal palettes and beautifully balanced spaces to bring a touch of understated European elegance into our home.
“Chelsey immediately understood the atmosphere we wanted to create, a kitchen that feels sculptural, refined and quietly luxurious.” The brief was to create something striking, so a dark veneer was chosen to contrast the light walls and high ceilings. Mel and Mitch wanted a kitchen that was bold but still flowed with the rest of the home. “Durability was also a priority, which led us to the Dekton range for the benchtops,” says Chelsey.
“We used the subtly veined Dekton Morpheus as a feature on the island and splashbacks, then paired it with the softer, more understated Dekton Aeris for the remaining work surfaces around the hob, sink and in the scullery.”


Award winning independent kitchen + spatial design specialist
0211 468 455 chelsey@nichedesignco.nz www.nichedesignco.nz
� �



Both interior designer Belinda and Mel, had a clear vision for the overall aesthetic, with flooring and wall colours already selected. “With my clients’ full trust, I was able to bring to life some design ideas I’d been envisioning for a while. Having the confidence to push boundaries really paid off,” says Chelsey.
One standout feature is the dropped stone detail under the breakfast bar. “Rather than full panels to the floor, I introduced a negative detail with fluted panels below, creating a striking feature on the island. Another unique element is the scullery upstand, where the stone rises to two-thirds height with veneer panelling above, blending practicality with a beautifully balanced aesthetic.”
Working on a live-build site with the builder’s own home meant
timelines and expectations were especially high. One challenge was coordinating the kitchen and scullery layout to align perfectly with the architectural features and interior finishes already chosen. Close collaboration with both the client and interior designer, along with careful planning of materials and detailing, allowed them to resolve these points efficiently. The result was a cohesive, functional space that didn’t compromise on design. Chelsey collaborated with Keith Paton Joinery for the first time on this project. The joinery team gave clear communication and highquality results to bring the designs to fruition as intended.
This kitchen was awarded top honours at the NKBA Awards, which was a proud moment for Chelsey and Niche Design Co.

Homeowners Mel and Mitch of Langsford and Ogle Homes wanted a kitchen designer who could honour both the architectural ambition of the home and the subtle European influences behind it: “Niche Design Co excels at translating broad conceptual ideas into tailored, highly resolved spaces, says Mel.
Trusted Master Builders delivering quality homes across Cambridge and the wider Waikato. Their expert team ensures your dream home is built on time, within budget, and to the highest standard.
8235 263





“It’s always rewarding when a design that combines functionality, aesthetic and attention to detail is recognised by industry peers. It’s a real validation of the collaborative work with my clients and the team. I’d just like to thank my clients for trusting me with their home,” says Chelsey. “Their confidence allowed me to bring my design vision to life. I’m thrilled with how the space turned out and hope it inspires others to be bold with their own kitchens.”


For Mel, the hero of the kitchen space is the island: “Its scale, the calm veining of the stone and the sculptural detailing, give it presence without overwhelming the room. I also love the balance of the deep matte cabinetry against the soft light tones, creating depth without heaviness. Above everything else, it is the way the kitchen sits within the volume of the home that I enjoy most. The height, the natural light and the clean lines give it a sense of serenity and elegance that sets the tone for the entire house.”

Mel, Mitch and their family love their new kitchen. “Entertaining is a huge part of our lifestyle,” says Mel. “We love that our children, their friends and our own guests all naturally gather in and around the kitchen. The island becomes a natural hub and the connection to the living areas and the pool creates an easy flow between inside and out. Whether it is a long summer afternoon with people drifting between the pool and the kitchen or a cosy evening with friends, the space adapts and holds energy beautifully. It is a home that truly comes alive when it is full of people.”
www.nichedesignco.nz

A kitchen that feels like a retreat.


Defined by careful detailing, natural materials, and a quiet sense of mood, Casa de Playa de Verano sets a new standard for everyday kitchens. Built by Jafa Construction and designed by Jenny Holmes of Designmarked Kitchens, the space draws on Mediterranean influences without leaning into pastiche, instead translating the relaxed character of a Spanish coastal villa into a kitchen that is practical, calm, and deeply liveable.
The design brief called for an open, light-filled kitchen that felt welcoming rather than formal, and one that supports everyday family life while offering a sense of retreat. “This kitchen is all about that relaxed Spanish villa vibe,” Jenny says. “The Charleston limestone (also used in the entrance) pillars break up the long run of cabinets and allow different benchtop heights for the sink and hob, while soft muted neutrals echo the views outside.”
Those limestone pillars form a key architectural feature. Supplied by The Natural Stone Co, the Charleston limestone is sourced from the West Coast of the South Island, processed into lightweight cladding and laid with pointed joints. The stone adds texture and depth while subtly zoning the kitchen, helping reduce the visual scale of the cabinetry and creating a sense of rhythm across the space.
Material selection plays a central role in shaping the kitchen’s character. Recycled oak cabinetry provides warmth and a sense of familiarity, while travertine adds softness and visual variation.
“I drew on the relaxed, rustic vibe of a coastal Spanish villa, using recycled oak and travertine to


bring that feeling to life,” Jenny explains. “The oak adds warmth and character, making the kitchen feel inviting and lived-in, while the travertine’s texture adds depth and visual softness.”
The Stone benchtops from Made In Stone and vertical stone elements reinforce the kitchen’s durability and tactility, grounding the lighter timber tones and creating surfaces that are well-suited to daily use. The palette is deliberately muted, allowing material texture and natural light to take precedence over colour contrast or decorative detail.


Beautiful by design, functional by nature
Passionate about creating a unique and functional kitchen that works for you
E
021 168 9361
jenny@designmarked.co.nz www.designmarked.co.nz



For Jenny, successful kitchen design begins with how a space is experienced rather than how it appears in isolation. “When I’m designing for feeling and atmosphere, I think about how a space is experienced rather than how it looks on its own,” she says. “Light is considered first, followed by material layering and spatial flow. Attention is paid to movement through the space, sightlines and the small operational details that influence comfort and ease of use.
Functionality is carefully resolved but never overemphasised. “I like to make kitchens that work perfectly for the people using them,
so I tailor everything to their day-to-day routines,” Jenny says. Preparation, cooking and cleaning zones are clearly defined, with benchtop heights adjusted to suit different tasks. Storage is generous but discreet, ensuring the kitchen remains visually calm even when in use.
Hardware selection supports that sense of quiet functionality. Blum hardware is used throughout the kitchen, contributing to smooth drawer action and soft-close doors. “Hardware like Blum is the kind of detail you hardly think about – but it makes a big difference in how the kitchen feels to



use every day,” Jenny notes. “It’s the kind of subtle quality that quietly makes the space feel polished and comfortable, without ever drawing attention to itself.”
Lighting was another important factor in shaping the space’s mood. Natural light was maximised by enlarging and lowering eastern windows to bench height, allowing morning light to enter directly across work surfaces. An internal wall supporting the staircase was partially opened and reinforced with glass, allowing afternoon light to filter through and increasing the sense of openness within the kitchen.

“Lighting really shapes how a kitchen feels,” Jenny says. “Natural light makes the space bright and cheerful during the day, while softer, layered lighting adds warmth and cosiness in the evening.” Decorative pendants above the dining area are by Nightwork Studio, providing a softer, more intimate counterpoint to the kitchen’s architectural lighting.
The kitchen sits within a broader architectural framework developed in collaboration with Complete Architecture. “Complete Architecture was really team-focused – they listened, offered smart solutions, and helped make sure every idea could work in reality,” Jenny says.
Made in Stone crafts premium stone benchtops with precision and artistry, delivering timeless elegance and durability to New Zealand homes and commercial spaces.
info@madeinstone.co.nz www.madeinstone.co.nz



Their involvement ensured the kitchen was well integrated into the home’s overall layout, with light, structure, and circulation carefully aligned.
Casa de Playa de Verano was recognised at the 2025 National Kitchen & Bathroom Association New Zealand Excellence in Design Awards, earning the Visual Impact Award, and Waikato Kitchen Design Recognition. It was also a Home Magazine 2025 Kitchen Finalist of the Year. For Jenny, the recognition reflected the value of thoughtful, people-focused design rather than surface-level styling.
“I think one thing that really comes through is that this kitchen is about the people using it, not just a space that’s design worthy – although that is a nice bonus!” she says. “Every decision – from the lighting and layout to the material, textures, and hardware – was made to support how the family lives, making the kitchen feel welcoming, effortless, and comfortable.”
The result is a kitchen that feels settled and natural, designed to be used daily, to age well, and to subtly enrich the rhythm of everyday life. www.designmarked.co.nz


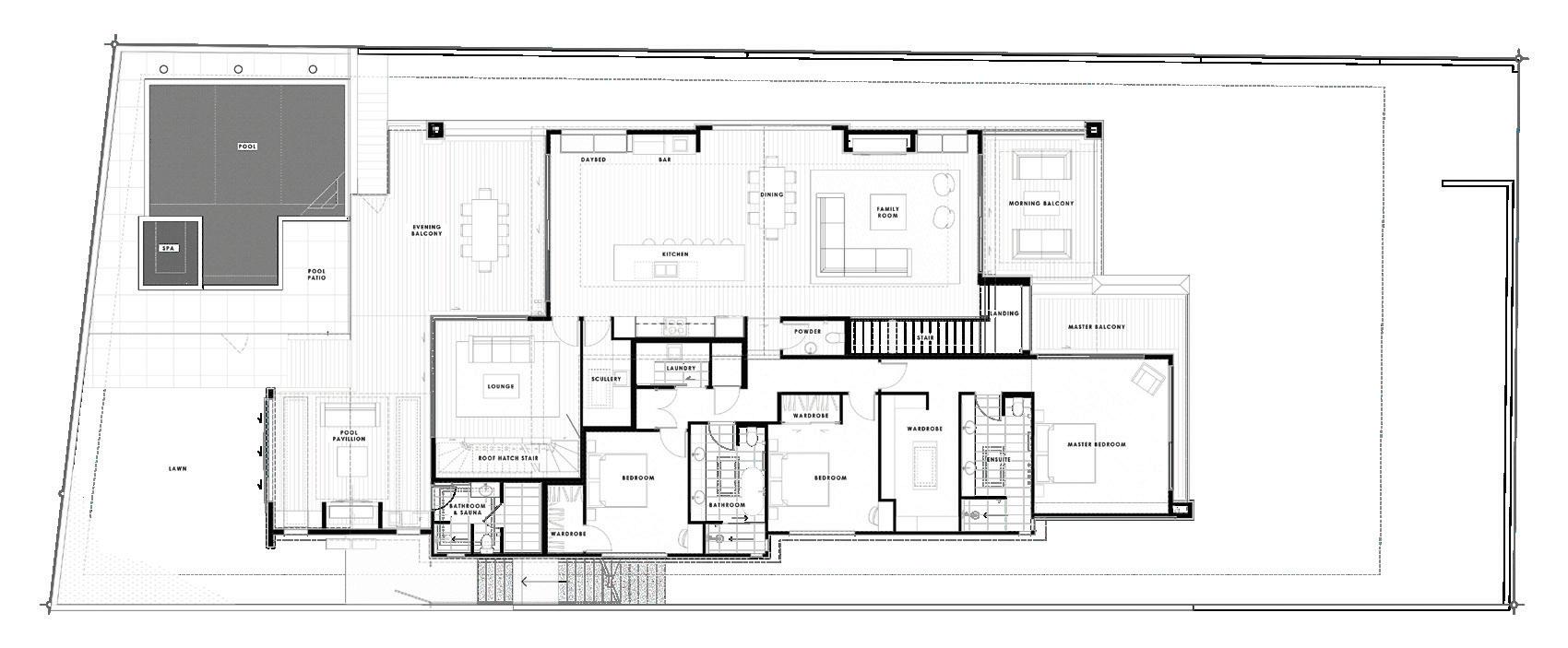
Inspired by modern Californian architecture with a relaxed, terraceous aesthetic, this family home exudes attention to detail.

Every material, every line, every surface of this Mount Maunganui has been carefully considered. The result? A home that is as tactile as it is visually compelling. Visitors are led along stone pathways flanked by lush plantings to a striking semiframeless glass pivot door, the perfect counterpoint to rich Travertine stone.
The home’s exterior is wrapped in STOArmour
Facade Panels with Stolit MP Natural texture, flowing over parapets, soffits, and even into the interior to blend inside and out. Complementary Abodo timber cladding and Travertine punctuate the façade, enhancing its organic warmth, while Vitrocsa exterior joinery frames expansive, uninterrupted views. Concrete forms a solid, grounded structure that harmonises with the raw, earthen palette.
The Mount Maunganui home was honoured with two commendations at the 2025 ADNZ Resene Architectural Design Awards in the Home Interiors and New Home over 300m² categories. The ADNZ judges praised Oceanview for its balance of strong exterior forms with calm interiors.
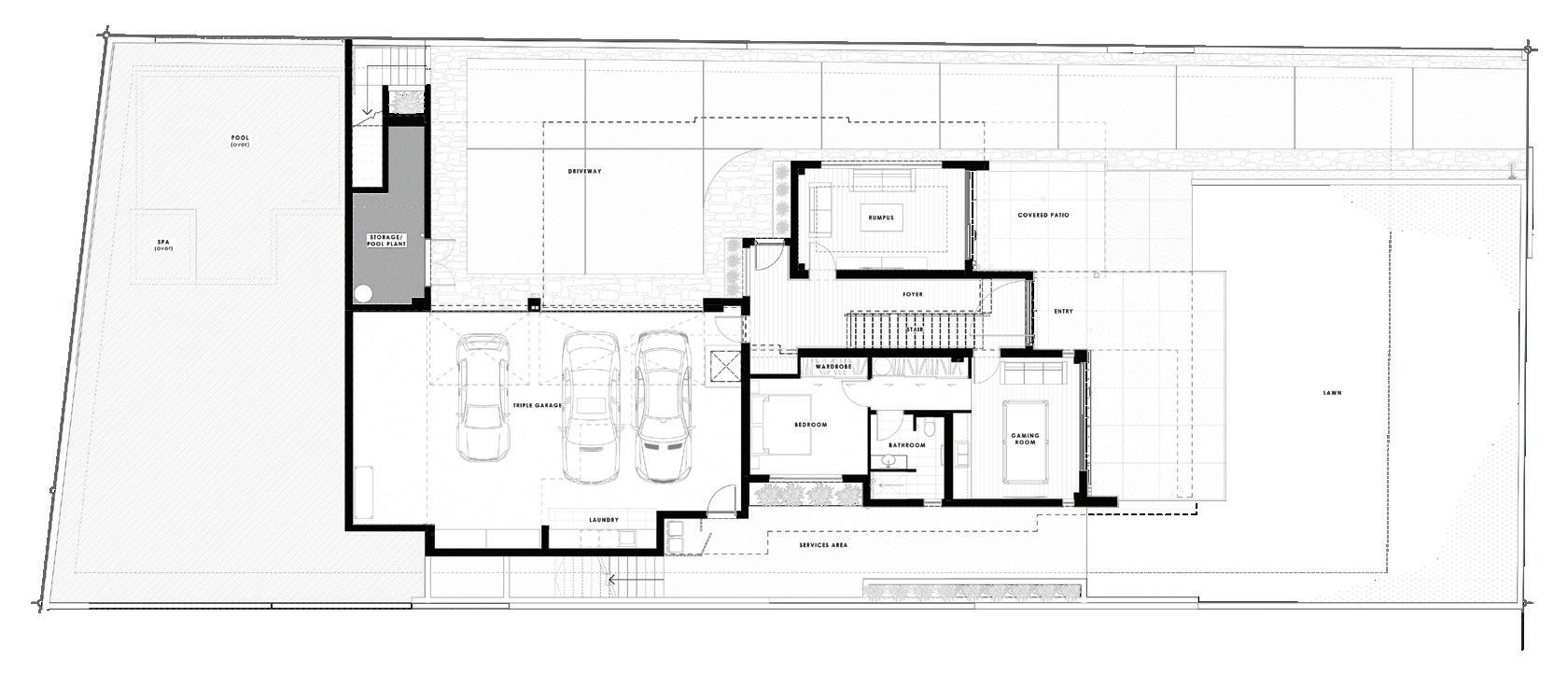
Camouflaged by stone cladding, the ground floor has a concealed entrance to the guest suite. A generous garage, self-contained guest area, and a large rumpus room for the family to enjoy also feature on the ground floor. There’s an effortless humility about this home, but beneath that is a thoughtfully considered, expertly curated forever home.
Jon McAlpine Architecture has a diverse architectural portfolio spanning projects such as this stunning home designed for a young, busy family of five to renovating a 100-year-old country villa. Yet, no matter the project, they remain intimately engaged and hands-on from the first plans to the final touches.


“This was an extremely complex project, not just structurally and architecturally, but in every detail,” Jon McAlpine says. “This is a project I’m really proud of.”
Involved with the client, builder, engineer and everyone else on deck, McAlpine celebrates the teamwork that realised this home. “Communication is everything in this industry. The owner really pushed us (and all involved) to achieve seamless perfection. This certainly shows,” McAlpine says.

Sto Plaster Systems provide our customers with maximum building longevity and trusted security - tested, detailed and installed for today’s construction. www.sto.co.nz

The brief was a home that could adapt to the clients’ needs, those of a growing family. The lasting, flexible living environment created exudes attention to detail, albeit much of it hidden.
Perched on a natural dune, the elevated home’s main living spaces are housed on the first floor to soak in stunning views of the ocean to the north and the lights of Tauranga Port and inner harbour to the west. A cantilevered oak staircase takes you to a spacious, open-plan living and kitchen area. Easy living comes as impeccably as the interior spaces flow, but this accessibility is balanced by the option to completely separate and enjoy privacy when desired.
Understated and refined, at the heart of the home sits a long bespoke Eastwood Kitchen that emulates the horizon, with precise cabinetry and joinery that excel in form and function.

Courtesy of the Tauranga-based custom kitchen specialists, the kitchen anchors daily living with a quiet elegance. A bar and breakfast nook further induce relaxation. Keeping the process streamlined and collaborative, Eastwood helped the clients directly from concept to installation.
The master suite occupies the home’s most private position, capturing continuous water views and soft morning light. Children’s bedrooms are thoughtfully arranged on the eastern side of the home, ensuring sun-filled spaces throughout the day, while the evening lounge is oriented to gather the last warmth of the setting sun, creating an inviting retreat.


Concealed behind a wall of cabinetry, a hidden door reveals a retractable roof opening onto an expansive rooftop deck, offering uninterrupted 360-degree views across the surrounding landscape. Designed with longevity in mind, the structure has been future-proofed to accommodate a potential third storey, allowing flexibility as the family’s needs evolve. Internally, materials echo those used outside, with rendered finishes applied to walls, ceilings, and doors to establish a cohesive, tranquil environment.


Low-maintenance materials are used throughout, including toned render that requires no painting, natural stone, and sustainably sourced thermally formed timber that will gracefully weather over time.

Interiors by Gezellig write home a carefully considered narrative of comfort, restraint, and enduring design. Led by Annique Hessen, this considered approach enhances everyday living while reinforcing the home’s calm, understated aesthetic.
Sustainability is a core element of the design ethos, with a photovoltaic solar system and battery storage powering the home and reducing reliance on external energy sources. This forward-thinking approach delivers an energy-efficient, eco-conscious residence that aligns with the clients’ vision for sustainable, future-proofed living.
Outdoor living is elevated through Johnson & Couzins’ premium louvred roof systems, designed

and made for New Zealand since 1866, providing adaptable shelter and year-round comfort while maintaining architectural clarity. It’s this mindful balance that saw the ADNZ judges praise this home for its confident yet organic exterior forms and calm, restrained interiors.
With its integrated spa, deck and lush lawn, the pool area reinforces this indoor-outdoor dialogue. Covered al fresco dining next to the pool, complete with retractable roof and automatic shutters, connects with the sauna and pool bathroom to form a dream wellness zone. This premium flexibility allows restorative peace, whatever the weather.



The home’s design focuses on connectivity between interior and exterior spaces, and the pool area is no different. A generously sized sprayed concrete pool, complete with a sun ledge and built-in spa, continues the Californication outside.
Travertine tile surfacing grounds the luxurious pool zone. Colourvision bubblers and LED lights offer night-time function and a little whimsy. Experts in concrete pool construction and renovation, design, hardscaping, and landscaping, the Del Tutto team flawlessly achieved the clients’ vision.
The ADNZ judges commended the use of soft neutrals, warm stone, and crisp detailing, which

concrete pool construction • pool renovation design service • hardscaping + landscaping
together form a calm, modern and effortless palette. “Getting the colours right makes all the difference,” they said. “Each element works together to let the design breathe and the light carry through naturally.
“The inviting veranda spaces, hidden roof terrace, and spa-inspired palette layered with detail create a sense of serenity and respite.”
Keryn Davis, CEO of ADNZ, says the stellar efforts of Bay of Plenty and Waikato designers were well deserving of high praise. “What appeals to me about these award winners is the unique nature of the projects and the complex approach from these talented designers.”
www.jonmcalpine.com












This Papamoa Beach house from Arkhē Architecture combines the homeowners’ love of Australian coastal design with Californian Mid-Century architecture.
WRITTEN BY SHELLEY SWEENEY


Diane Berghan, Josh Hepi, their two boys, Kaius (11) and Kahn, (10) and their cavoodle puppy, Haiku, are an active, outdoorsy family. “We love travelling, so a simple low-maintenance home was important to us. Somewhere we could lock up, head away on adventures and always enjoy coming back to,” says Diane.
“As soon as we secured the section, I went to the library and checked out the maximum number of books on architecture and design. I wanted to understand everything so we could make intentional choices. From the first meeting Arkhē Architecture just got it. Aside from being incredibly talented, they’re also practical. They helped refine our ideas without ever losing the feeling we were aiming for,” says Diane.
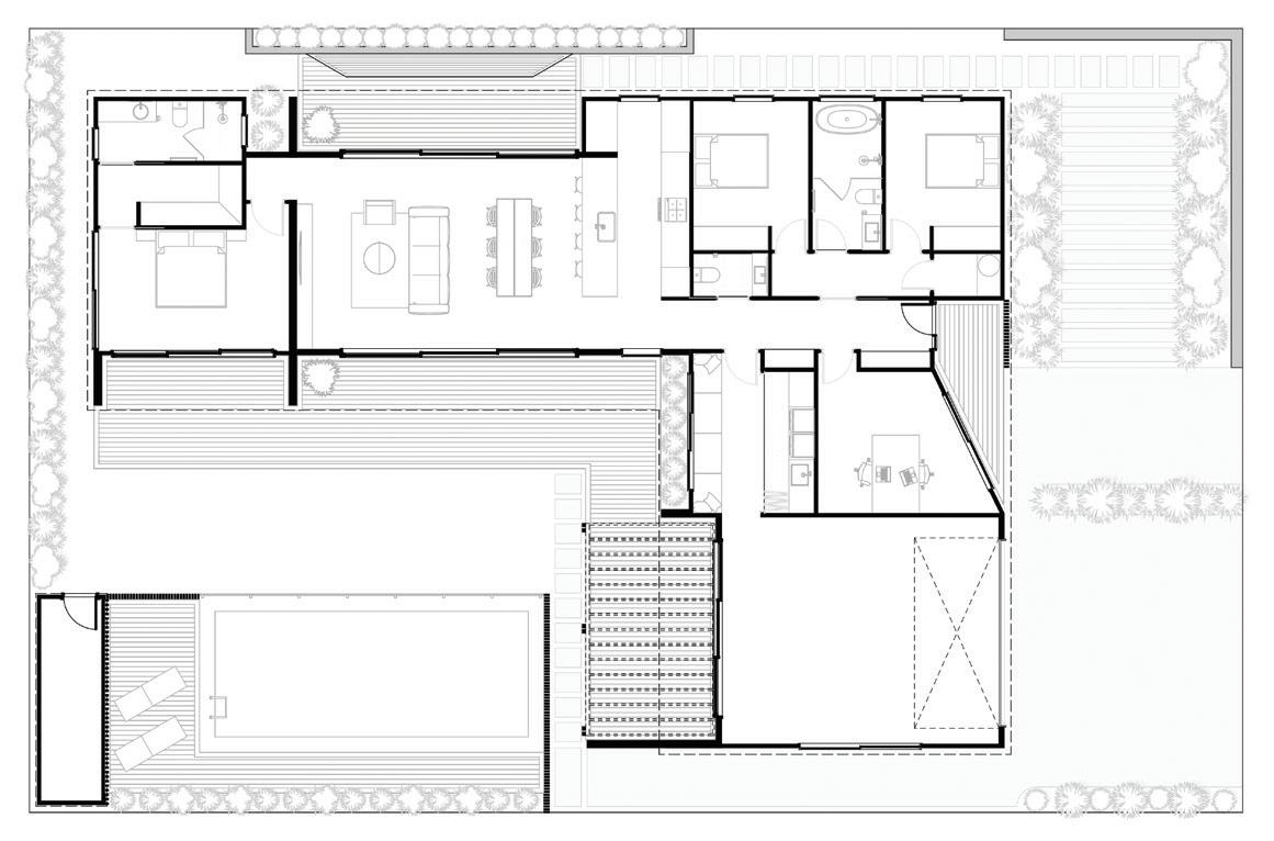
“The clients brought forward a rich tapestry of precedents, but their mood board predominantly displayed contemporary Australian coastal architecture from the Byron Bay area. They favoured neutral colour palettes and textural accents and relaxed spatial arrangement,” says architectural designer Diego Marangoni of Arkhē Architecture. The brief called for 3 bedrooms, a home office and open living with a fluid connection to outdoor living spaces and a pool area. They also wanted to bring multiple functionalities to the garage.


The south-facing façade is subdued and private, with a recessed timber clad entrance, that adds interest from the street. The plan is “L” shaped, with the kids’ bedrooms along the east, separated from the main bedroom by the open living space and its adjacent eastern and western decks. The garage is a thoughtfully designed, multipurpose area divided in half by a secret door. The street facing side provides storage for bikes, surfboards and other lifestyle related objects. The courtyard and pool facing half is a media room, that expands into a louvred deck and barbecue area.
“With two young boys the pool was nonnegotiable,” says Diane. “We wanted the home to feel a bit like a holiday, somewhere the kids could swim after school and where we could sit outside with a drink and unwind. So many of our memories are centered on the pool area, birthday parties and get togethers. In the summer especially, the whole house opens up and everyone just gravitates outside. We usually gather around the kitchen island, kids disappear to the pool and little pockets of conversation pop up around the place. It’s simple and relaxed.”
Your journey with us is personalised from start to finish.




The clay brick exterior is painted in the warm shade of Dulux Cardrona. The north and western faces of the home are clad in Abodo Vulcan vertical weatherboards painted in the same warm white. The timber entrance and vertical screening are clad in Rosenfeld Kidson Siberian larch. This was chosen for its pale yellow-white tones and coated in Dryden stain in the subdued natural tone of Dune. Inside, the timber ceiling above the open plan kitchen, dining and living space is a nod to the homes’ mid-century inspiration. Lined in Western Hemlock timber, the ceiling brings

texture and warmth paired with walls in Dulux Okarito.
“The homeowners were crucial in many successful moves in the design and build process,” says Diego. “Diane was amazing with the interiors, materials and fittings.
Josh was hands on with the build, working incredibly hard throughout the process with an amazing attention to detail.” The ensuite tiles, chosen by Diane are Magma in Coral Pink from Spain. These square small format tiles have a subtle variation in tones, reminiscing in the coastal theme whilst playing with the Mid-Century Modern aesthetic.

At Liv Light, we know that great lighting has the power to transform any space. Our focus is on delivering high-quality products, expert advice, and service that makes every project shine


Arkhē Architecture has an ongoing partnership with Liv Light who designed a beautiful and cohesive lighting scheme for this home. In the living areas, LED strips are set in along the timber ceiling, creating an elegant feature.
The design takes a primarily passive approach to ventilation, with well-placed opening windows to maximise airflow whilst mitigating the risk of excessive heat gains. A mechanical ventilation system ensures thermal comfort throughout the year.
“The clients were a crucial part of the project success, bringing amazing ideas and solutions throughout the project. This was a truly collaborative design and build,” says Diego. “It was a very much a DIY family and friends project,” says Diane. “Josh’s brother Luke came up from Wellington with a team to build the frames.
My brother Lloyd supplied the roof. My godfather supplied and installed the extractor fans and my godson pitched in with the landscaping. Friends helped with the slab, brick work and electrical. There were only a very small handful of trades that weren’t friends or family.” Once the build was underway, Josh juggled a fulltime job with big days on site, supported by Diane and her father. “My Dad was also on site every day to help Josh,” says Diane. “That time ended up being incredibly special to us, as he passed away earlier this year.”
This coastal design has received two Architectural Designers New Zealand (ADNZ) awards for Interiors Regional Awards for best home up to 300m2 as well as being a National Finalist. It was also a Finalist in the Residential Category for the prestigious Best Awards.

“I think this is a testament to the project success and importantly, that thoughtful and award-winning architecture doesn’t have be ostensibly expensive,” says Diego.
The family loves the sense of calm in their new house. “It’s a peaceful home to wake up in, and it feels purpose built for us, how we live and who we are,” says Diane. “I love that even though it’s a small home, there are plenty of little spaces to read, play guitar, work, chat or enjoy your coffee. It’s been three years since we finished the build and it’s still bringing us joy every day.”
www.arkhe.co.nz





This 150-square-metre home was named Kōtare Grove by its owner after the local kingsfisher population and native tree plantation. Architect Paul Crawford designed this coastal haven to connect with the unique beauty of its environment.
“We’ve worked with Paul at Architecto for a couple of years and he referred us for this project,” says Mike Holmes from Nixon Homes. “The client had a vision that pushed us to try some very special and challenging things.” The client’s vision was inspired by his villa holidays in Bali. The separate pavilions connected via decks with overhanging Abodo soffits, open layout with views through the home, teak Abodo feature walls and cladding are all a nod to this inspiration. The local design interpretation speaks to the rugged environment of coastal Raglan, with both exposed and sheltered courtyards, each in the sun at a different time of day. The sheltered morning courtyard at the street front allows for covered outdoor living in the frequent westerly winds without compromising on views.
On one side, the guest pod is comprised of a bedroom and ensuite. The centre pavilion contains the garage and laundry on the street level with the open plan living area below. On the other side, the master wing is connected to the central pavilion via a covered walkway and steps and has spectacular estuary and mountain views from the bed.
Exposed roof trusses visible from the exterior are a striking feature that cover a sheltered courtyard allowing a view through the house. Sliding doors from the open plan living area lead out to a large wrap-around deck.






The home is positioned on a sloping site with a retaining wall half way through the section meaning only half the site could be built on. “The architect had to design around that obstacle on the section,” says Mike who notes the variety of structural materials used in the build. “The overhanging soffit over the living room required structural steel. We had block walls and both concrete and timber pile foundations basically a bit of everything in the build.” The client wanted the entire house clad in Abodo, says Mike. “During Covid the budget was impacted so 021
Colorsteel cladding was used on part of the exterior.”
One of the most striking features in the home are the two sets of roof trusses, both visible from the street. One set of trusses is visible through the angled windows above the garage. “As you walk past, you have a view through the house to the view on the other side so that’s why you’ve got windows and exposed trusses in the garage,” says Mike. The second set of trusses are on the right of the exterior of the home from the front. They cover the sheltered courtyard also allowing a view through the house.




“There’s a glass pane in the front door which you can look through to see the window seat and nature beyond,” says Mike. “That was another one of the client’s visions.” Sliding doors both from the living area and from the kitchen lead out to the 92 square metre deck that wraps around the house. The pine batten fence above the courtyard is coated in a teak-coloured shade and was another part of the homeowner’s vision. “The client wanted no horizontal rails supporting it,” says Mike. “We spent a lot of time drilling steel rods into the timber battens and glueing them in. It was very labour intensive.”
Kerryn Elwin from K Design Studio is the interior designer for Nixon Homes and worked with the client’s ideas of bringing in the colours from the surrounding landscape. Natural greens and timber tones feature throughout the property and the polished concrete floors reflect the Raglan sand.

The standout interior features for Kerryn are the beautiful Melteca Possum cabinetry in the kitchen, the timber feature wall in the living room, the luxurious Antipodes curtains and the fully tiled bathroom walls.
The windows draw the eye to the landscape, enhancing the architecture from every angle. The joinery supplied by NZ Windows includes the large opening stacker doors and the raking and highlight windows in the open-plan space invite in an abundance of natural light.
Nixon Homes received the National Supreme House of the Year under $1 million Award and the National Altus Window Systems New Home $750,000–$1 million category award at the Master Builders House of the Year awards in 2025.


“I definitely think it is a special house and it been a special project for us, so it’s great to get the recognition for it,” says Mike.
“We worked long hours to make sure the finishes were faultless. We wanted to have something we were proud of to look back on. It does help when you have a client who is really particular. It gives you that drive and clear direction.”
The owner of this stunning coastal home was happy to see his vision brought to life by Nixon Builders. He often travels overseas for work, so this exquisite 2-bedroom coastal property is available as a holiday rental.
www.nixonhomes.co.nz
This light-filled minimalist Mt Maunganui home from Carnachan Architecture is designed to capture abundant natural light and sea views, creating a seamless connection to its calm coastal setting.
WRITTEN
BY
SHELLEY SWEENEY
BY BOUNDLESS VISION

The homeowners of this striking beach house are busy professionals with two teenaged boys and a beach-loving dog. This coastal lifestyle is an essential ingredient of life for the family who enjoy all the benefits of beach access from their new home.
The modern architectural form of this beachside residence features crisp white walls, clean lines, a neutral colour palette and an interplay of light and shadow. “We were inspired by Portuguese minimalist architecture,” says Lead Designer Fana Quinole who worked alongside Carnachan Architecture director Mark Carnachan on this beautiful example of sculptural minimalism.
“The clients requested privacy from the busy road and wanted to create their own quiet enclave for family living,” says Fana. “They also wanted separated lounging areas so both parents and kids, could enjoy entertaining at the same time.”
The social areas of the house were designed to take advantage of the sunlight with direct connection to the outdoors. The generous garden hosts a private swimming pool and spa with multiple spaces for the family to enjoy.
Inside the home, high stud ceilings and wide corridors enhance the feeling of spaciousness throughout, with careful placement of windows and doors to optimise light, views and privacy. Designed to complement the family’s lifestyle, the layout fosters openness and connection to the outdoors, while providing privacy and comfort.


The minimalist and almost all-white materiality of the exterior is softened with cedar cladding. This neutral warmth is featured inside in the form of Hurfords timber flooring. The minimalist inspiration continues throughout the interiors with white washed walls expressing the pared-back simplicity of the design. The doors are floor to ceiling in height to maximise the sense of space and light, upholding the minimalist aesthetic without any architraves or skirtings to break the clean lines.


The windows follow the same principle with smooth finishing up to the ceilings and no mouldings. All of the spaces in this bright and breezy home feel uniform and provide the perfect background for the family’s art collection.
“To achieve crisp and clean lines, the builders had to be very precise,” says Fana in praise of builder Todd Grey and his team who worked with a high level of craftsmanship and precision to achieve the smooth minimalist finishes required by the design.

“Although the build itself wasn’t complex, the minimalistic design meant every detail had to be executed with absolute accuracy. The home appears minimal in design, however, achieving those clean lines requires significant planning and precision. With nowhere to hide in the detailing, every aspect of the build must be executed with accuracy. The fine tolerances demanded close attention throughout the entire project,” says Todd.

“The full-height windows and doors added further complexity, with plasterboard linings running directly into the tops of the joinery units. To achieve a superior flat finish, we used 13mm GIB Ultraline plasterboard paired with Level 5 stopping. Direct sunlight reflecting off the ocean is extremely unforgiving, especially with floor-to-ceiling glazing, so the finish needed to be flawless,”
Todd also noted the challenge of accommodating the air-conditioning and plumbing services. With limited roof and
ceiling space available, careful planning was essential. “A Posi-Strut floor joist system was selected to help manage these services. Posi-Struts feature timber chords top and bottom with a metal web lattice between, allowing long, straight, lightweight spans that can be manufactured to suit each project,” says Todd.
Fana worked closely with the clients who were very involved in the project, selecting the material and colours for the exteriors. They had a clear vision from the start and


www.thekitchenbusiness.co.nz

were heavily involved throughout the build. The home is clad with plaster, timber accents and glass, harmonising the beach environment.
The crisp plaster cladding from Sto New Zealand was installed by Precision Rendering and will perform well in the coastal environment. Plaster is low in maintenance, but the cedar requires a bit more attention needing to be cleaned and stained every few years. The cedar will naturally grey-out and the stain selected in a natural shade will complement that process.


balustrade-compliant full-height louvres combining architectural elegance with optimum sun control









Todd Grey Builders Ltd is an award winning building company located in Mount Maunganui, Tauranga.
Established in 1995, Todd Grey Builders Ltd has over 30 years experience with a sound reputation amongst suppliers, sub-trades and clients. Attention to detail and quality is guaranteed with Todd being an integral part of every build.



Award-winning concrete pool + hardscaping experts
Every backyard dream starts somewhere. We take your vision and turn it into water, light and space that feels effortless. Designed with purpose, built with precision.
021 852 191
info@deltutto.co.nz www.deltutto.co.nz
INSTAGRAM �





Builder Todd and his team frequently work alongside The Kitchen Business and chose them for this project.

The homeowners gave the kitchen designers a clear brief for a timeless, practical kitchen with clean lines, no clutter and durability with white-onwhite surfaces. This needed to be tailored to their busy family lifestyle and they were closely involved with seeing their vision through to completion.
The Florim Marble Statuario island chosen by the homeowners is at the heart of the kitchen design. The grey-veined marble with waterfall ends adds a subtle touch of drama to the minimalist white space. The benchtops in the hob area and pantry are in an understated Florim White Matte marble. The cabinetry fronts feature a smooth minimalist surface with no handles, lacquered in the soft white of Resene Alabaster to complement the benchtops.

The Kitchen Business designed and installed joinery throughout the home to maintain a cohesive,
considered style consistent with the clean lines of the light, airy and aesthetically balanced kitchen. The understated white joinery continues in the media room, in the office desks, laundry, bar, bathroom vanities and storage spaces, combining practical functionality within the restrained minimalist interior.
The swimming pool is a striking focal point in the back garden.
Isaac Giacon, owner and director of Del Tutto Pools says: “We were originally recommended, to the owners through the landscape designer, Michelle from Magnolia Designs. We supplied samples to the owner, allowing them to choose what they wanted, while offering what we felt was best suited for the pool area and feel of the design.”
The custom 10 x 4 metre heated swimming pool from Del Tutto Pools has a depth from 1.2m to 1.8 metres and was designed with an integrated 2 x 2 metre spa pool.

The pools’ plaster finish is Jewels 4 Pools Ultra in ‘Diamond with 1 quarter percent of Black oxide’ to create the grey colour and aesthetic to match the homeowners’ vision for the pool and fully tiled spa. The water treatment is a Naked Freshwater System with pH control that uses copper and silver to sanitise the water, rather than traditional chemicals, giving the water a ‘fresh’ feel. The cover is a London Underground reel system with a Duokote Thermal blanket to ensure a warmer pool, longer swimming

season, reduced evaporation and reduced chemical use.
The homeowners love their light-filled beach-side residence and have fully embraced its minimalist, modern aesthetic. The open plan living area serves as the heart of the home, with panoramic glazing that captures the views of the beach and the surrounding landscape. This coastal property provides a calm sanctuary in the busy lives of its beach-loving owners.
www.carnachan.co.nz








With views to Mount Karioi, this coastal home on Raglan’s Rangitahi peninsula combines sustainable design from Rubixarc with exceptional craftsmanship from Hoult Construction.
WRITTEN BY SHELLEY SWEENEY
HNDRX


This builder’s own home for Jack Hoult and his young family was architecturally designed by Alice Gironella, director of Rubixarc. Jack and his family live an active, coastal lifestyle and love spending time on the beach and in the surf. “This dynamic way of living directly influenced the home’s open plan design, which emphasises seamless connection to both water views and the outdoors, creating a relaxed environment suited to their energetic and evolving family needs,” says Alice.
Finding the right location was the starting point for Jack and family: “We were drawn to Rangitahi in 2017 in the early stages of the development. We spent a lot of time walking through the land with the development manager Sam Laity trying to find a place that would tick all of the boxes,” says Jack who was looking for a north facing site, close to the water with sea views.





“We really felt we achieved this and it’s a testament to the Rangitahi team who worked hard to help us find the perfect section,” says Jack. The top priority was maximising the impressive views of the Rangitahi Peninsula and Mount Karioi.
The design brief envisioned a fourbedroom home with a study, spacious family bathroom, laundry, large double garage with a substantial workshop and a generously sized open plan kitchen, dining and living area along with ample storage. Using all of the space available within the build was very important to Jack. Rather than having the usual under house storage, Jack turned the under-floor space into a wine cellar. Jack wanted the laundry room down stairs to keep noise away from the living and had a laundry chute added in the upstairs cabinetry above for convenience.
Rubixarc’s design philosophy for this project was guided by practical, smart layout principles and a minimalist aesthetic, focusing on efficiency and connection to the surrounding landscape. The site’s orientation optimises sunlight and views; natural timber textures and careful window placements blur the boundary between inside and outside.
“The steep, sloping nature of the site, dropping approximately 5 meters from the rear to the road frontage, was pivotal in shaping the home’s design,” says Alice. “Rather than flattening the land through extensive earthworks or huge retaining walls, the solution was to create a doublestorey, split-level home that steps with the terrain. The split-level approach enhances the aesthetic, the flow and privacy zones throughout the home, while enabling optimised floor plans and functional space.”


The home is clad in Western cedar shiplap weatherboard finished in Dryden Ash, paired with board-and-batten cladding in Dryden Black Teak. These materials were selected for their honest appearance, being both renewable and environmentally responsible. “Their aesthetic provides warmth and organic texture, echoing the surrounding coastal landscape while ensuring durability and low maintenance,” says Alice. The True Oak Corrugate roofing and detailed flashing on the exterior are finished in Colorsteel FlaxPod Matte.
Jack and the team at Hoult Construction worked closely with Alice’s architectural vision: “Every detail, from the curved outdoor shower to the underfloor wine cellar, was delivered with care and control, reflecting our commitment to quality craftsmanship and site-specific design.
Working with Rubixarc was really seamless and only a few fine-tuned budget driven adjustments were required. Rubixarc worked with us cohesively and we saw this as an opportunity push the envelope and learn further.”
Jack concentrated on making sure the structure could be pieced together relatively quickly, freeing up the budget for the finishes. The high quality of finishes throughout includes Fisher and Paykel appliances, fully tiled bathrooms, Windsor Nida Graphite Nickel door hardware, Mt Peel loop pile wool carpet from Wools of New Zealand and Forté Moda Verona timber flooring.
“Straightening framing can be rather labour intensive and time consuming,” says Jack. “For this reason, we decided to pay a little bit extra and use LVL (Laminated Veneer Lumber) pre-nailed framing.
The timber is incredibly straight and structurally stable.”
For the deck structure Jack opted to use a structural steel portal to increase the span and create an unobstructed turning circle in the driveway, perfect for boat parking. “We had all of the stainless deck hardware heat treated to colour off the same as the bronze copper nailing,” he says. “Doing the basics really well is a great way to save on costs without compromising on the aesthetic.” The decking timber is the hardwearing Kanda Watershed from Hermpac.
For Tree Town Kitchens who had worked with Hoult Construction on previous projects, the brief was for a minimal, coastal style kitchen, utilising materials that fitted with the organic theme of the home. The kitchen layout called for a designated coffee space along with a tap for instant boiling water for those quick cold winter cups of tea.



The Vidaspace Shinnoki Manhattan Oak Veneer panelling in the kitchen is pre-finished with the look and feel of natural timber. This is elegantly paired with the timber veneer rail details on the island and back wall which are a standout feature in the space.
The kitchen island features a mitred Consentino Dekton Liquid Shell benchtop. The same Manhattan Oak and Dekton carries through into the bathroom, with integrated sinks in the vanity benchtops as a focal point. Momento Blanco tiles from Tiles on Devon bring a light coastal style

warmth to the backsplash with brushed brass tapware from ABI Interiors. Some of these elements have also been installed in the laundry to ensure a cohesive look. In the bathrooms Jack wanted dual mixers for the bath and showers. Momento Blanco wall tiles and large format Blanco wall and floor tiles are a soothing neutral backdrop in the bathrooms.
The window and door joinery was supplied by Origin Windows in Terapa. “Origin are very detail driven and run through everything with a fine-toothed comb,” says Jack.
Specialising in domestic electrical installations and all your heating and cooling requirements.


The striking timber feature wall in the stairwell is made from recycled kauri boards. “These were the internal wall underlay for one of the first homes built in Raglan which was shipped down on a barge from Northland over 100 years ago,” says Jack. “These boards had old newspaper clippings on them, some of which were preserved on the timber to play into the feature adding depth of place to the home. We milled these down on site and the end result worked out beautifully. Repurposing the old is something we thoroughly enjoy.”
“Raglan has been an amazing place to set up shop, the people, community and the environment played an important part in building this home,” says Jack. “We were able to get ourselves into a positive, easy-going mindset that’s made creating a breeze. We’re really proud of the home and what we created. It’s been built to frame the view and stand up to the coast.”
www.houltconstruction.co.nz





This split-level Pye’s Pa, Tauranga design from Mod Architecture was a builder’s own home for Bespoke Construct capturing views of lush green rural spaces.
SHELLEY SWEENEY
BY
WRITTEN
IMAGES BY ONSITE MEDIA

For architect Andrew Ward of Mod Architecture the goal was to create a spacious home for the family of five, leveraging the steep Pyes Pa section to maximise space and capture views wherever possible. “A builder always comes with a level of design understanding and trust in the architect,” says Andrew. Having worked with Mod Architecture on other hillside builds, Alex from Bespoke Construct felt confident that Andrew and his team were the right fit for their home. “The initial designs were bang on, only requiring minor adjustments,” says Alex.
“The site’s slope was quite steep. Immediately, it became apparent that a home that stepped down, flowed and followed the natural contours would feel right and also keep the cost down,” says Andrew. “The verticality of the material selections complements the form’s proportions and creates a rhythm that
cascades down the site borrowing natural light from places where you wouldn’t normally be able to access it.” One example of this is the filtered western light over the scullery, into the kitchen area. “By creating multiple levels, you also create multiple zones even in open plan areas,” says Andrew. “Changes in floor level, or ceiling level, are a great way to achieve a distinct perceived change in space without introducing walls or other barriers.”
The home is clad in Abodo Vulcan vertical shiplap timber coated in Sioo:x for a beautiful grey weathered look and James Hardie vertical Linear Oblique fibre cement in Element black. Three Kwila decks on different levels, Abodo balustrades and battened soffits enhance the sense of space and connection with the outdoors.
“There is a lot of natural timber cladding, battening and balustrades which required a high degree of craftsmanship and attention to detail,” says Andrew.
The four-level build presented some challenges to Alex and the Bespoke Construct team. The complex site required a highly-skilled focus on each of the levels while bringing materials down the hill and engineering the retaining wall at the base of the site. “Most of the lower level was cantilevered out. We also had structural steel over the garage to create the overhang and in the living area to open up to the living room,” says Alex.



“Teamwork played a big part as did being very organised with deliveries and planning of the job. We spent the time needed to make sure the set out was done right.”
“Building on a slope is always a challenge requiring experience and skill. Being involved early in the design phase helped us deliver a seamless result and complete the project in under 12 months,” says Alex.
Interior designer Nicola Travis had worked with Mod Architecture and Bespoke Construct on previous homes. The brief for this 4-bedroom, 224 square metre residence was to create a timeless look that would feel inviting and relevant for years to come.
“Andrew from Mod Architecture always has a clear interior brief for his designs,” says Nicola. “Alex and I have a good working relationship, so we work through any design or construction issues as we go.”



Nicola worked with homeowner Faye selecting finishes, colours, materials, lighting, cabinetry details and advising on all those big decisions needing to be made throughout the building process. The interior of the home was expertly painted by Hamish Ross Painters. White was the base colour with warmer elements of brass and Hurford’s Oak timber flooring installed by Abstract Floors to elevate the interior with softness, warmth and practicality. Colour has been used sparingly, with a soft green fluted feature wall in the primary suite and a touch of black coming in from outside in the entrance feature wall that continues down a level into the kitchen area. Shades of soft grey and taupe feature in the tiles, installed by SRL Tiling and wool carpets bring timeless neutral colour.
The joinery by Pacific Coast Kitchens includes the bar area, laundry and garage storage. The kitchen benchtop is Trendstone Cala Eleganza, with Melteca Warm White satin doors and panels. The beautiful fluted feature panels on the island are a painted Laminex Surround.
“The stone benchtops are practical and luxurious with waterfall edges and continue up to the splashback to give a beautiful luxurious effect while also being very practical for this busy family. Another stunning feature is the ripple panelling under the breakfast bar,” says Nicola.
The cosy sunken living room, tucked down the stairs from the kitchen is the perfect example of using this multi levelled home to full advantage, creating warm inviting spaces.

“There are a lot of subtle curves and vertical lines in this project,” says Nicola. “From light fixtures, vanities and feature walls to the tiles in the laundry and butler’s pantry. The clients wanted light and bright so we included elements of brass to bring warmth. In the laundry we added a hint of playfulness with a gorgeous blush pink tap, just something to bring a smile to the face of anyone tasked with doing the laundry.”
Bespoke Construct’s award-winning residence is fitted with a fully ducted heating and cooling system throughout. This home is a masterclass in clever multi-level design that maximises light, views and floor space with minimalist interiors with an exceptional level of craftsmanship in the build.
In the bathrooms, the homeowners wanted a soft neutral tile, nothing too dark or light. “This classic subtle terrazzo style tile works in well with the fluted vanity fronts and brass fixtures and tapware to add some more luxury and warmth to the space,” says Nicola. Brass tapware, sink plugs and draw handles complement the fluted rippled feature panels on the vanity drawers. The stone vanity tops were selected for practicality and luxury.



This Pyes Pa home earned a Top 100 Homes and Regional Gold Award in the Bay of Plenty and Central Plateau Competition for Builder’s Own Home in the 2025 Master Builders House of the Year awards. The judges praised the home’s smart design and skilled construction making the most of every square-metre.
Builder Alex likes how well the house flows from the entrance at the top, right down to the fourth level, along with the raked ceilings and decks that follow the house down the slope.
“I love the kitchen and dining zone. As they say the kitchen is the heart of the home and this stunning kitchen really shows this,” says Nicola. “I love how the dining area lends itself to be whatever you need it to be. With the little built-in cabinetry, this could be a bar, TV cabinet or toy storage depending on what stage of your life you are at. It just shows how this beautiful home will be able to grow with the family as it changes through the different stages of family change.”
www.bespokeconstruct.co.nz
WRITTEN BY SHELLEY SWEENEY

In the coastal Coromandel town of Tairua, this modern interpretation of a bach proves that a refined architectural exterior can be achieved on a small budget.
Ben Jefferson of Kaimai Roofing fitted the steel cladding on this home for a close friend and local Tairua based builder who designed the beach retreat for his family.
Ben was glad for the opportunity to work with his friend on this project and was called in to design the details for the steel cladding and carry out the installation. “They were looking for a modern bach vibe,” says Ben. “It was their first self-build and they were working with a tight budget and wanted clean lines on the exterior.”
With their weekdays taken up by work, Ben and his friend worked together in their spare time. As it was a long commute for Ben from his home in rural Aongatete, he took his family along on those weekends to enjoy some time on the beach in Tairua.

They had already chosen a steel cladding and roofing profile that they had seen on another project, Metalcraft Kahu. Ben designed the detailing around the windows with sleek technical finishes. “I came up with a two-piece system that meant all of the windows could be installed with zero fixings visible,” says Ben. “The windows have even picture frame flashings around them with clean lines." Ben’s friend had some experience with roofing and laid the 3-degree pitched roof. “The white steel exterior on this home is a really nice look,” says Ben. “It was a great experience working with a friend and it shows that it is possible to achieve a polished result on a small budget.”


We are a roofing firm that is as devoted to the creation of a house as the homeowner and architect. Our strong, supportive project management with a handpicked team of expert carpenters and experienced tradespeople will take care of any project you can dream up.
021 0254 5880 kamairoofing@gmail.com www.kaimairoofing.co.nz


PROFILE 2: ANGLES AND LEVELS ALIGNED
The exterior of this coastal home stands tall behind the dunes of Waihi beach. For Ben, clean lines and refined details were essential to sympathetically bring the 1980s cedar home up-to-date.
Architect Craig Bradford drew the plans for a sharp and sleek steel exterior to work alongside the new cedar cladding. Craig was open to Ben’s input on which products to use to produce the desired aesthetic. The Kaimai Roofing team worked alongside Harwood Builders. “The builders were great to work with,” says Ben. “They gave our team free rein on the detailing of the exterior.”







The renovation was complicated by the rotting of the original 1980s cedar weatherboard, which added time to the project and required the builders to reframe most of the home.
“Due to the complexity of the build, what was originally meant to be a batten cap profile changed to give the roofing a more traditional detailing with an opposing standing seam batten finish,” says Ben.
The Euramax aluminium cladding and roofing is imported from Europe by Ambro Metals and supplied by Linked Group. Ben likes the cohesive exterior on this beachside home.
Achieving sleek, clean lines on this multilevelled home with a roof of varying angles is a notable accomplishment and the result of experienced craftsmanship.
021 08282 791 / Craig@CraigBradfordArchitect.com www.craigbradfordarchitect.com



027 973 5765 /harwoodbuildersnz www.harwoodbuildersnz.co.nz

PROFILE 3: OUTSTANDING SEAMS
This large architectural Waihi beach house has a sharp exterior in Colorsteel Cloud installed by Kaimai Roofing. “We chose a standing seam wide tray profile steel on the walls and worked in with the builders who added in some cedar cladding. The builders were amazing to work with,” says Ben.



The Custom width panels on the front of the home are 10 metres long. This longer than usual length posed a challenge for Ben and his team who had to hand form the panels on site. “We made a 10-metrelong table and cut the sheets down to the exact size.” Ben chose a more customisable roofing option than was originally specified for this home. “We formed scallops on the ends of the seam to create a nice curve and also added a scalloped curve from the top into the parapet cap which gave it a really nice look. It created the clean

lines around the top that the architects asked for.
“The dream for us is when there’s some flexibility in the specification. We work with a broad range of custom architectural roofing products. When you spend a little more on these essential elements, the level of detail transforms the exterior of your home,” says Ben.
www.kaimairoofing.co.nz


Your trusted supplier for innovative architectural roofing and cladding solutions.


BAY OF PLENTY’S TRUSTED SPECIALISTS OF PREMIUM PLASTERING AND PAINTING


A1 Exteriors is a trusted Bay of Plenty exterior specialist with over 20 years of industry experience, delivering high-quality finishes for residential and commercial projects. Known for their attention to detail and professional approach, the team prides itself on producing smooth, durable results using proven, BRANZ-approved systems. Every project is carefully managed, from preparation through to completion, ensuring consistency, longevity, and a flawless appearance. A1 Exteriors works closely with clients, builders, and developers to achieve results that enhance and protect buildings, while enhancing both the look and long-term value of each property. With a strong reputation for reliability, workmanship, and clear communication, A1 Exteriors continues to be a trusted name throughout the Bay of Plenty.
Natural, layered and refined
Whether framing the view, offering privacy, bringing energy efficiency, or comfort to our homes, window treatments are an essential décor element in any room. After years of pared-back minimalism, designers are now gravitating toward warmer spaces, richer textures and layered design details.
While interior elements are increasingly featuring golden hues, veined marble surfaces, walnut timber finishes and deep tonal palettes; our window treatments this year are staying grounded in warm neutral shades and minimalist tailored silhouettes with textural fabrics continuing to create timeless, cosy and calming spaces.
Layering
Textural layering is one of the defining looks of 2026 and window treatments are no exception. Pairing sheers, shades, and drapery adds comfort, depth and luxuriant texture.
Interior designers are layering with different material combinations, such as sheer linens paired with roomdarkening drapery or roller blinds paired with soft linen for an elegant interplay of texture, light and shadow.


Natural fabrics
Natural fabrics are becoming the preferred choice for window treatments, as architects and designers often prioritise interiors that feel grounded and connected to nature.
With the continued move toward biophilic and sustainable design, we’ll see increased use of linen and cotton drapery. Their organic texture and breathability bring a calm, restorative feel. Linen and cotton drapery adds elegance and subtle texture. It softens strong architectural lines, warms up minimalist spaces and adds dimension to neutral palettes.
Minimalist simplicity
Simplicity and subtle, sculptural window treatments will continue to appear in more minimalist interiors. Timeless, clean, unobtrusive profiles make roller blinds ideal for spaces where the architecture or the view take the lead. Roller blinds and energy efficient honeycomb blinds provide a polished, minimalist backdrop and work beautifully on their own or as a base layer beneath drapery.
www.venluree.co.nz



Proudly New Zealand-made, every product is custom-built, colourmatched, and powered by premium European motors. Backed by a 3-year warranty for total peace of mind.
Enjoy year-round outdoor entertaining with Johnson & Couzins, New Zealand’s leaders in premium outdoor living solutions. Their innovative SkyLouvres adjustable aluminium roofs let you control sunlight and rain at the touch of a button, transforming decks and terraces into beautiful, functional spaces. Johnson & Couzins offers a wide range of awnings, canopies, umbrellas, shade sails and outdoor screens. They provide stylish shelter, shade and privacy throughout New Zealand with a free measure and quote service.


Concertina Skylouvre Invented in New Zealand by J&C, the Concertina SkyLouvre is NZ’s first fully retractable roof louvre, offering open-sky freedom or full shelter at the touch of a button.
Euro Boulevard Awning Contemporary retractable awning with manual or motorised control. Add sensors or lighting for effortless shade and comfort, beautifully tailored to your home.

Calido Vista Screen
Transform your deck into a windproof outdoor room with elegant, motorised Vista Calido Zip Screens - sleek, quiet, and built for year-round comfort.


Solido Skylouvre
The Solido SkyLouvre offers stylish, permanent shelter. Durable aluminium and integrated gutters deliver lasting protection with minimal maintenance year-round.
Silencio Skylouvre
Whisper-quiet, effortlessly sleek, the Silencio SkyLouvre rotates 120º for perfect shade or shelter, combining smart automation, heating, and lighting for effortless year-round comfort.

A stylish retractable awning offering shade on demand and seamless retraction. Customisable colours, wind sensors, and premium European design for lasting performance.
www.johnsonandcouzins.com


Gunn Removals is a Hawke’s Bay–based furniture removal company offering relocation services across New Zealand. They operate seven days a week, are equipped for long-distance moves, provide winz quotes, and will handle your treasured belongings with care. Contact Brenda today
027 668 3632 | gunnremovals@outlook.com

We deliver a full range of building, concrete, and excavation services across South Waikato. Whether building from the ground up or renovating existing spaces, we’re committed to getting the job done right.
022 626 0734 | impactcontracting@hotmail.com


Moving made easy with Mr Shift It. Our friendly, can-do team handles your furniture with care and precision. Local or long-distance moves, homes or offices, we move it like it’s ours. Serving Cambridge, Hamilton, Waikato and beyond since 1992.
027 677 4438 | www.mrshiftit.co.nz

With annual membership fees starting from $115, you will enjoy full bar facilities at member prices, regular entertainment, and a weekly club night with a membership draw, plus a range of special interest groups including snooker, darts, and 8 ball.
06 877 8722 | www.havelocknorthvillageclub.nz


At KRS we specialise in quality concrete work, including footpaths, patios, driveways, shed slabs and residential excavation projects. With local expertise and attention to detail, our dedicated team delivers exceptional results, excellent communication, and customer satisfaction from start to finish.
022 625 1161 | www.kawerauresidentialservices.com

NZ Native Flora Ltd is a family-owned business that specialise in growing and supplying 180,000+ native plants yearly for restoration projects. Founded in 2000, the team combines farming experience with planting expertise across two nursery sites in Tauranga.
021 366 480 | www.nznativeflora.co.nz

S Thompson Builders is an innovative and young building company based in Pukekohe. They are passionate about delivering top-quality workmanship on every project and take pride in building trustworthy and personal relationships with clients. shaun@sthompsonbuilders.co.nz | www.sthompsonbuilders.co.nz


We provide the Greater Thames region with reliable, high-quality drainage, septic system, and earthmoving services. We’re your one-stop shop for all your drainage, wastewater system, and earthmoving needs.
07 868 7004 | www.thamesdrainage.co.nz


K Design Studio is a space for clients to come and experience all the help that is required for building new or renovating, offering expert interior design, custom furnishings, and personalised project support.


We design and build bespoke kitchens, laundries, vanities, shop fitouts and more in the Rotorua and surrounding areas. Get in touch with Blane today to see how we can help.
027 911 7428 | www.sleekjoinery.co.nz

We provide a comprehensive range of professional home services, including house, deck and driveway washing, gutter, roof and window cleaning, pest control and more, so you don’t need to hire multiple tradesmen—saving you valuable time, effort and money while dealing with one trusted local provider.
022 413 7583 | www.yourlocal.nz

With a dedicated technical team for Architects and Specifiers and a full range of CAD details, we’re here to help whether you’re working on a new building or additions and alterations.
021 170 1068 | www.kdesignstudio.co.nz
09 634 0575 | www.dimond.co.nz
WRITTEN BY JONATHON TAYLOR
Max Patté is a contemporary multimedia artist known for his vivid interplay of light, colour, and form. Educated at the Wimbledon School of Art in London and elected an Associate of the Royal Society of British Sculptors in 2008, Max has developed a practice that spans sculpture, painting, and immersive light art.
His studio work is driven by a fascination with the liminal spaces where light and colour meet — the threshold where mood shifts and perception of space changes. “I’ve always been captivated by that moment of transition, when light shifts and suddenly a space feels entirely different. That’s where the magic happens,” Max says.
He works across traditional sculptural mediums such as cast iron and bronze, but equally embraces digital and technological toolsets, including CNC milling, 3D scanning, digital programs, and apps, which are all part of his working vocabulary.
“I don’t see a divide between traditional and digital tools,” he explains. “They’re all ways of making, and each has its own strengths in helping me express an idea.”
Some of Max’s most iconic works have become landmarks in New Zealand. Solace in the Wind, a figure cast in iron and placed on the Wellington waterfront, leans into wind and weather in a gesture of human vulnerability and connection to place. “That piece was about surrender,” Max reflects. “Letting go, being present, and embracing the elements, literally and emotionally.”
Max’s Infinity Works series employs illuminated spheres and wall works in which colour, tone, saturation and negative space co-operate to affect not just what is seen, but how one feels in a space. “These works aren’t just visual, they’re emotional

landscapes,” Max explains. “They change the way a room feels, how your body feels inside that room.”
The pieces are neither purely decorative nor merely technical: they alter environments, shifting the viewer’s relationship to the space in which the artwork lives.
Max’s art is available through Lightworx Gallery by ArtBay in Queenstown. Lightworx represents both his sculptures and light works, offering collectors and visitors access to iconic outdoor pieces and his more experimental, luminous creations.
Beyond individual works, what makes his practice compelling is how he merges the visceral with the conceptual. He draws on natural phenomena, such as how daylight moves across surfaces or how sky colours shift, and filters this through both traditional craft and modern fabrication.
The result is work that is grounded yet ethereal. “Nature is still the biggest inspiration,” Max says. “The sky, the sea, the way light hits a surface, is all endlessly inspiring. I just try to respond to it in my own way.”
www.maxpatte.com



At Bayside Pools, our pools are meticulously crafted with our customers at the forefront of our minds. We prioritise not only the design of pool shapes but also the manufacturing process, assuring our clients receive a pool of exeptional quality. Specialising in high-end fibreglass swimming pools to complement your outdoor living space perfectly.
Contact us
0800 222 974 info@baysidepools.co.nz www.baysidepools.co.nz

There’s no such thing as coloured steel. It’s all colour coated. That’s what makes it better.
