ALSTON RESIDENCE
Maintenance & Care Guide Appliances


![]()























Care and Maintenance:
See Page 2-3
SUB-ZERO WINE STORAGE
SZDEU2450WR
SUB-ZERO 24" DESIGNER
UNDERCOUNTER WINE STORAGE
PANEL READY RIGHT HINGE







Care and Maintenance:
See Page 2-3
UNIVERSITY ELECTRIC SUB-ZERO S X S REFRIGERATOR SZCL4850SIDO
48" CLASSIC SIDE-BY-SIDE REFRIGERATIOR/FREEZER WITH INTERNAL DISPENSERPANEL READY










Care and Maintenance:
See Page 2-3
UNIVERSITY ELECTRIC
SUB-ZERO S X S REFRIGERATOR
SZCL4850SIDO
48" CLASSIC SIDE-BY-SIDE REFRIGERATIOR/FREEZER WITH INTERNAL DISPENSER - PANEL READY










Care and Maintenance:
COPPER SMITH
CUSTOM HOOD
BUSHED STAINLESS STEEL
BRUSHED STAINLESS STEEL STRAP
LOW PROFILE RIVETS
55" W X 29.5" H
PREMIER PR6 - CUSTOM RANGE HOOD
TEXTURE: SMOOTH
STRAP FINISH: STAINLESS STEELBRUSHED
STRAP TEXTURE: SMOOTH
RIVET FINISH: STAINLESS STEEL -
BRUSHED
RIVET STYLE: LOW-PROFILE
WIDTH: 55"
HEIGHT: 30"
INSERT FAN: DESIGN TO FIT (CUSTOMER PROVIDED INSERT)
DELIVERY: STANDARD
Avoid products that are engineered to kill germs and bacteria. This can harm the “living finish” and cause discoloration on the surface. 3. Strong chemicals can remove the finish and cause negative reactions on the copper surface. Avoid harsh and abrasive chemical cleaners like bleach, ammonia, rubbing alcohol, baking soda, and vinegar. 4. Avoid products manufactured for wood, tile, or window cleaning. 5. Avoid metal scrubbing pads and steel wool. 6. Avoid copper polish. 7. Avoid leaving pieces of fruit or acidic foods in the sink (like lemons, limes, oranges, grapefruit, tomatoes, pineapple, tomatoes, ketchup, pepperoni, soda, mustards, vinegar, etc.). If you do happen to leave any of the above-noted items on your sink, a lighter stain will occur; you can avoid these lighter stains by cleaning the surface immediately after use. Copper is very forgiving and will darken again over time. 8. Avoid abrasive chemicals like bleach, drain unclogging chemicals, etc. 9. Avoid leaving food or dirty dishes in the bottom of your copper sink. Certain foods have qualities that will strip the patina away and bring out the lighter natural copper tones. MAINTENANCE INSTRUCTIONS 1. After each use, please do a quick and light wipe-down with a clean and soft cloth to remove standing water on the surface. 2. A light coat of highquality wax can be applied monthly. Apply a very thin coat of carnauba wax or beeswax. 3. Let the wax dry for approximately twenty minutes. 4. Buff to a patina-like shine with a clean soft cloth. Water Marks 1. Apply a very thin coat of carnauba wax or beeswax. 2. Let the wax dry for twenty minutes. 3. Buff to a patina-like shine with a clean soft cloth. Scratches & Stains 1. Leave the scratches or stains exposed to the air until the copper recovers itself to the original color; the time required for this process is a few weeks. 2. After the affected area has recovered itself to the original color, the surface should be protected again with carnauba wax or beeswax to preserve and protect the finish, following the same steps for the watermarks noted above. 3. The scratches will not be removed, but the scratches will not be visible once your sink changes back to the original color




Care and Maintenance:
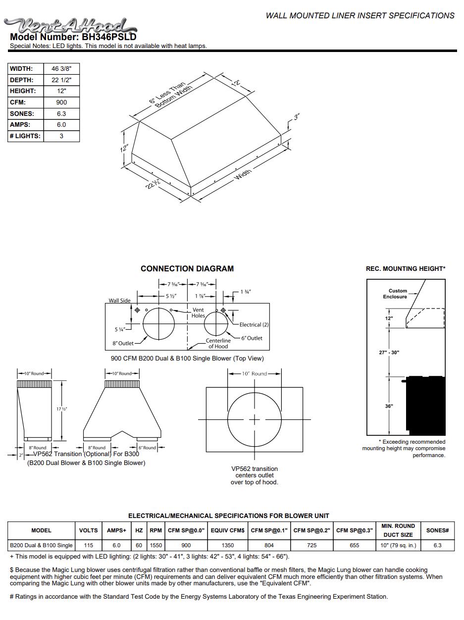
VENT-A-HOOD 46" HOOD LINER
VHBH346PSLDSS
WIDTH: 46 3/8"
DEPTH: 22 1/2"
HEIGHT: 12"
CFM: 900
Wipe down the interior and exterior of the hood as needed with a soft cloth and warm soapy water (liquid dish detergent is acceptable). Do not use acids, abrasives, b detergents, solvents, or scouring pads. Stainless steel should be treated with a quality stainless steel cleaner such as Stainless Steel Magic® (Vent-A-Hood® part number SS64). Follow all label instructions. Do not polish across the grain or in circles.
Real copper, real brass, and hammered copper hoods will oxidize and/or tarnish over time. Use a quality copper or brass cleaner such as Red Bear Copper Polish (Vent-A-Hood part number CP101). Follow all label instructions. Do not polish across the grain or in circles. Do not use acids, abrasives, b detergents, degreasers, solvents, or scouring pads.




Care and Maintenance:
See Page 32
BERTAZONNI PROFESSIONAL SERIES 48" STAINLESS STEEL SLIDE IN INDUCTION
BZMAS486IGFEPXT
48 INCH INDUCTION RANGE, 6 HEATING ZONES AND CAST IRON GRIDDLE, ELECTRIC SELF-CLEAN OVEN





Care and Maintenance:
Stainless steel Use a nonabrasive stainless steel cleaner and apply with a soft lint-free cloth. To bring out the natural luster, lightly wipe the surface with a water-dampened microfiber cloth followed by a dry polishing chamois. Always follow the grain of stainless steel. Drawer front Spray glass cleaner on a cloth to clean. Drawer guides Remove the food crumbs from the drawer guides. Wipe with a soft dry cloth. Control panel Use a spray degreaser to remove fingerprints and food soil. Spray on a cloth before wiping the control panel. IMPORTANT NOTE: Do not spray cleaners directly on the control panel. To lock the control panel before cleaning, refer to page 7. Interior Wipe with a soft damp cloth. Do not use abrasive or harsh cleaners or scouring pads. For heavier soil, use baking soda or a mild soap; rinse thoroughly with hot water. Do not use chemical oven cleaners. Waveguide cover Located on the inside top of the microwave interior. Carefully wipe with a soft damp cloth. Do not remove the waveguide cover.






Care and Maintenance:
WOLF WARMING DRAWER
WOWWD30
WOLF 30" WARMING DRAWER
Stainless steel Use a nonabrasive stainless steel cleaner and apply with a soft lint-free cloth. To bring out the natural luster, lightly wipe surface with a water-dampened microfiber cloth followed by a dry polishing chamois. Always follow the grain of stainless steel. The stainless steel drawer pan is removable for cleaning. To remove, open drawer completely. Slide fingertips under side edges of pan, pull up and out. Control panel Use a spray degreaser to remove fingerprints and food soil. Spray on a cloth before wiping panel. Do not spray cleaners directly on the control panel. Removable Rack Clean with hot water and mild detergent or paste of baking soda and water. Towel dry. Interior Wipe with a soft damp cloth. Do not use abrasive or harsh cleaners or scouring pads. For heavier soil, use baking soda or a mild soap; rinse thoroughly with hot water. Drawer Guides Remove food crumbs from drawer guides. Wipe with a soft dry cloth.










Care and Maintenance:
See Pages 4-7
BOSCH DISHWASHER
BOSHV89PW73N
BOSCH 24" CUSTOM PANEL DISHWASHER
PANEL READY









CL FROST
1 BURNER 110V
1 BURNER UNIT ELEMENTS
POWER BOOST OPTION FOR FASTER SPEED
WI-FI CAPABLE WITH THE INVISACOOK APP UNDERMOUNT INSTALALTION
110V UNIT WORKS WITH UP TO 12MM COUNTER SURFACE
Care and Maintenance:
Easy Cleanup – No exposed burners or grates; just wipe the countertop surface.










Care and Maintenance:
See Page 2-3
SUB ZERO REFRIGERATOR/FREEZER
SZDEU2450CIR
24" DESIGNER UNDERCOUNTER
REF/FREEZER
ICE MAKER
PANEL READY, LEFT HINGE, WITH ICE
MAKER







Care and Maintenance:
See Page 8-9
GE PROFILE FRONT LOAD WASHER GEPFW870SSVWW
GE 5.0 CU.FT. CAPACITY SMART FRONT LOAD WASHER
ENERGY STAR STEAM WASHER WITH SMART DISPENSE
ULTRA FRESH VENT SYSTEM WITH ODOR BLOCK








Care and Maintenance:
See Page 10
GE PROFILE ELECTRIC DRYER GEPFD87ESSVWW
DIMENSIONS: 39 3/4 H X 28 W X 34 D








