mario barbosafolioport

![]()

ARQUITETO E URBANISTA
INDUSPARQUET RECIFE
Pisos de Madeira Tropical
Período: Julho|2018 - Dezembro|2018
Função: Auxiliar de Arquitetura
MESQUITA E BELÉM
Arquitetura e Design
Período: Janeiro|2020 - Junho|2021
Função: Arquiteto Colaborador
FM
Arquitetura e Interiores
Período: Junho|2021 - Agosto|2023
Função: Arquiteto Colaborador - Setor 3D
DUBEUX E VASCONCELOS
Arquitetura e Interiores
Período: Agosto|2023 - Junho|2024
Função: Arquiteto Colaborador
CETENE - Centro de Tecnologias
Estratégicas do Nordeste
Manutenção Predial
Período: Junho|2024
Função: Assessor Técnico de Arquitetura
contato
(81) 9 9794.9490
mariobarbosa.arq@gmail.com
@milimmetro.arq
Ipsep, Recife-PE
Período: Ago.2013 – Nov.2013
Curso: Montagem e Manutenção de PC
FACULDADE DAMAS – FADIC
Período: Ago.2015 – Dez.2020
Curso: Arquitetura e Urbanismo
ABDEH SENAC – PE
Mini Curso de Arquitetura e Instalações Hospitalares 2018
LUMION EXPERTS
com Gui Felix 2020 2022
DIAGRAMAS PARA ARQUITETURA
GPPA - GERENCIAMENTO DE PROJETOS PARA ARQUITETOS
2023
Autocad
Vray Sketchup Photoshop LumionArchiCAD illustratoringlês







Proposta de fachada para casa
popular Minha Casa Minha VIda.




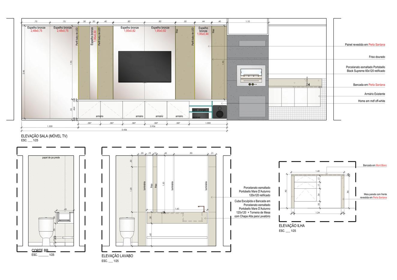
Projeto de reforma para apartamento
unifamiliar localizado em Boa Viagem - Recife.






Proposta de consultórios para especialidades distintas, odontologia e medicina da saúde + dermatologia.












Proposta de Prefeitura Municipal para relocação da atual feira de rua da cidade para um pátio próprio para esse uso.




Proposta de Prefeitura Municipal para criação de escola pública de ensino fundamental e médio.






Proposta de Flat de aproximadamente
30m² no litoral da capital pernambucana.








Proposta de reforma e reestruturação de residência unifamiliar na zona norte de Recife.





















