Marina Zanin Portfolio 202

Page 1

GRADUATE ARCHITECT

content

GAA centre of excellence [p. 03]

/02

Apartment interior design [p. 05]

/03

A contemporary italian garden in Ireland [p. 09]

/04

A back garden renovaon [p. 13]

/05

A wildlife garden design [p. 17]

Bray small garden design [p. 21]

/

Donabate family garden design [p. 25]

HSE sensory garden [p. 29]

/

Extras [p. 33]

/01
/06
07
/08
09

gaa Centre of Excellence

- 03-

Racecourse Road, Roscommon, Ireland

November, 2023

Revit | Autocad

/IDEA & CONCEPT

The proposed development entails the construcon of the new Dermot Earley Centre of Excellence sports training facility, comprising several key features: Three new full-size grass pitches, each equipped with approximately 15m to 20m high floodlighng.

Two new AstroTurf pitches accompanied by warm-up areas. A seated spectator terrace for opmal viewing. Ball stops and a designated ball wall area for player training.

A perimeter walking/running track to promote fitness acvies.

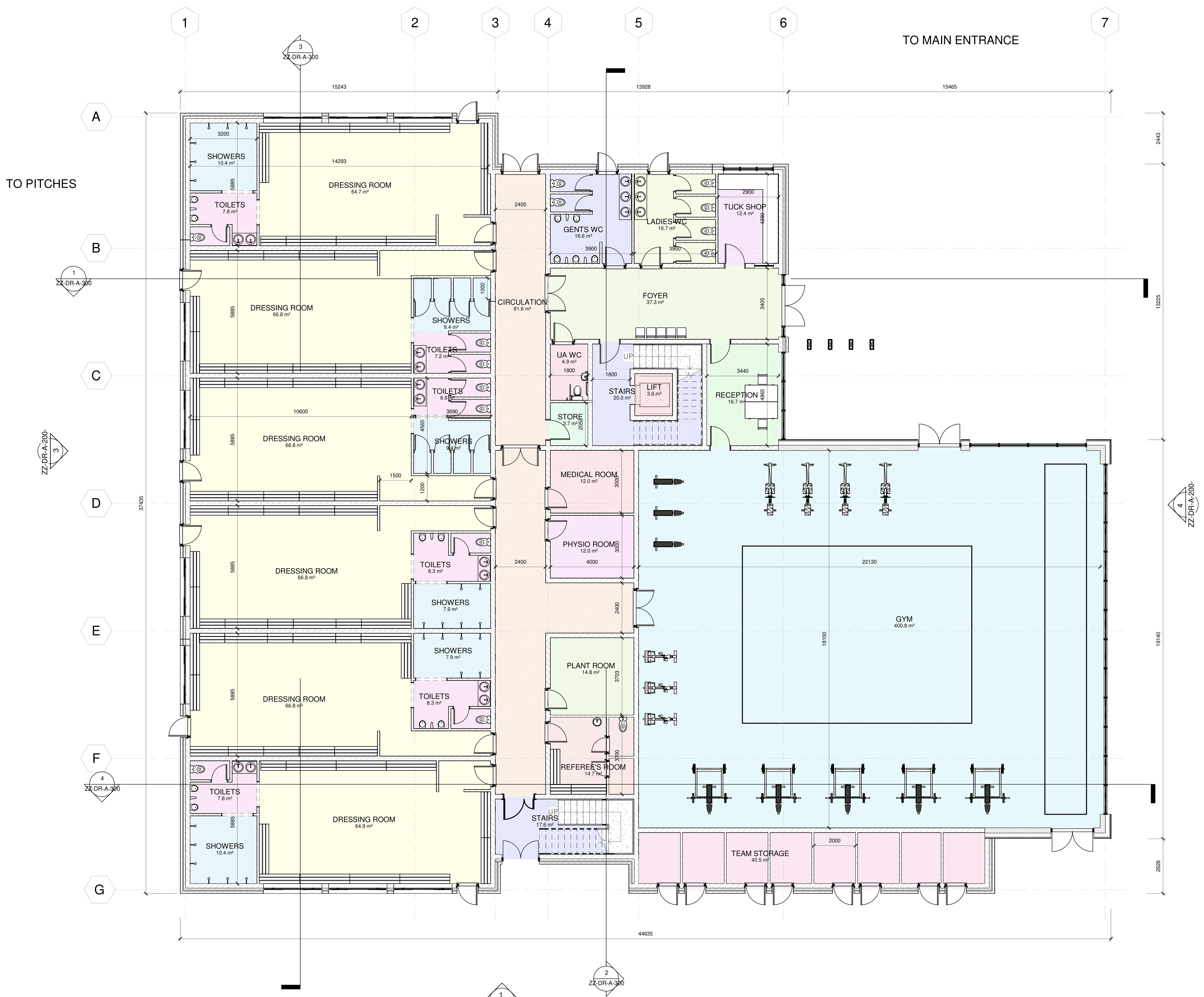
A new amenity building housing offices, a canteen, gym facilies, and dressing rooms, complete with rooop solar panels for sustainable energy generaon.

Addion of a maintenance building to support ongoing upkeep. Provision for car, bicycle, and electric vehicle parking. Creaon of an internal access road for convenient navigaon within the facility Establishment of a new vehicular entrance and exit off the exisng Industrial Estate road.

Implementaon of boundary treatments to enhance security and aesthecs. Integraon of associated services connecng to exisng infrastructure within the Industrial Estate.

Installaon of site access signage and building signage to facilitate navigaon and idenficaon.

/01
Kenny Lyons & Associates Architects /SITE MASTERPLAN /FIRST FLOOR PLAN
- 04-
/GROUND FLOOR PLAN

apartment interior design

- 05-

/IDEA & CONCEPT

Craed for a new couple embarking on the journey of homeownership, this design breathes life into their first shared space. In the main bedroom, where they unwind and bond, we envisioned a contemporary yet understated ambiance, characterized by the use of premium natural materials. Recessed lighng seamlessly integrated into the mber penel and ceiling, along with the iconic Mole armchair, infuse the room with a disncve ch arm.

Porto Alegre, Brazil

September, 2022

SketchUp | Lumion | Phtoshop

WEARDROBE- 6 DOORS WITH OFF-WHITE LACQUERED FINISH

NATURAL OAK ACOUSTIC WOOD WALL PANELWITH RECESSED LED LIGHTING

GLASS GLOBE PENDANT- GOLD COLOUR

ABSTRACT WALL ART PAINTING

NATURAL OAK BEDSIDE TABLE

JUTE & FABRIC RUG

METALLIC FLOOR LAMP- GOLD COLOUR

MOLE LOUNGE ARMCHAIR & MOLE OTTOMANBY SERGIO RODRIGUES

POUFFE

WHITE LINEN CURTAINS

MIRROR- GOLD COLOUR FRAME

/02
- 06-

apartment interior design

- 07-

/IDEA & CONCEPT

There's nothing quite like a cozy gourmet balcony adorned with tropical plants in an urban apartment to provide respite from the hustle and bustle of city life. Enhanced by natural wood elements and furniture in raw tones, they effortlessly create a harmonious blend that invites relaxaon and rejuvenaon. The addion of a sky blue tone adds a charming and final flourish to the composion.

CONCRETE PLANTERS IN VARIYNG SIZES

TROPICAL PLANTS: American aloe `Agave aenuata

Travellers palm ‘Ravenala madascariensis´ ZZ plant ´Zamioculca zamiifolia´

NATURAL OAK ACOUSTIC WOOD WALL PANEL ATHOS BUCÃO CERAMIC TILESPORTOBELLO SHOP TRAVERTINO BIANCO GRANITE- COUNTERTOP & BBQ MAKER CONTEMPORARY RUG WITH LINES Fiddle-leaf Fig ´Ficus lyrata´ Mexican fan palm ´Washingtonia robusta´ TIMBER BOHEMIAN SCENT ARMCHAIR
/02 - 08-

A contemporary Italian garden in Ireland

Dublin,Ireland

Client:Mr Zeaside

October2021

AutoCAD|SketchUP|Lumion|Photoshop

/IDEIA&CONCEPT

The garden design theme was carefully craed to reflect the client'spreferences,drawinginspiraonfromtheirlifestyleand habits Specifically, it evokes the ambiance of the Mediterranean, reminiscent of the client's coastal hometown in Italy To achieve this, a curated selecon of materials, decorave elements, and plants evoking their origins was meculouslychosen.Theamplesunlightinthedesignatedarea enabled the creaon of an Italian Mediterranean-style garden in Ireland. The overarching goal is to culvate a garden space thatfeelsairy,natural,andinharmonywithitssurroundings.

/ZONING

Accordingto the zoning, as you exitthe housethroughthe back throughthedoubledoors,youcanfindawoodendeckinatone that resembles aged wood, as if it had been worn down by the Mediterranean winds, where there is a large and cosy table for dining with friends and family During the night is illuminated with lamps aached to light cables. If the access is made from the side of the residence, the visitor will pass through a very pleasant corridor, which has a fragrant green wall that meets withgravelonthefloor Movingon,wehaveaframeofplantsof a very simple and simple beauty that includes one of the exisng trees and which soens the view of the shed, the garden and the walls. A path of natural bluestone stones with a rusc cut in the middle of the natural lawn leads us to the back of the garden where there is a space dedicated to relaxaon and conversaon with friends over a late aernoon wine around a brazier, a very common habit in the southern regions of Italy, in addion to the use of natural stones for floors and walls,somethingweseealotinthatregion.

To the le of the passage along this path, there is now a fountain where there used to be an exisng weel, made of concrete in loco, which when turned on brings a delicious noise of water to remember the seaside coast. The second exisng tree is now framed by a wooden composed bench with the same language as the deck, serving as support to receive some more friends or even members of the children of the family to have fun. The oil tank was relocated and is now on the right side,nexttothebeaufultreesinlinesthathelptoalleviatethe city'strafficnoises,thus,itwaspossibletotakemoreadvantage of the space in the background to create this area of leisure with chairs, benches and a brazier, and the shed and the oil tank,aregatheredonthesidewherethenoisecomesfrom.

- 09-

/SITE LAYOUT PLAN

PLANTKEY

Malus x zumi (Golden hornet) Size: 7,5m

2

Syringa meyeri (Dwarf lilac) Size: 1,5m

4

Verbena bonariensis (Tall verbena)

1,5m

8

Agapanthus africanus (African lylly)

0,8m

20

Artemisia 'Powis Castle' (White sage)

0,6m

9

Stipa tenuissima (Mexican feather grass) Size: 0,6m

38

Olea europaea (Olive tree) Size: 1,4m Qt: 5

Trachelospermum jasminoides (Star jasmine) Climbing plant - 2m Qt: 6-8

Grey wood composite floor deck Brown pea pebble

Irregular bluestone paver (grass as grout)

Solid bluestone paver with split face

GARDEN SHED REAR OFTHE HOUSE 8000 2047 1135 900 1350 1081 1557 1181 900 5970 1350 566 3163 4098 2766 1135 6605 4975 1649 4344 3041 5762 2040 3174 3746
Qt:
Qt:
Qt:
Size:
Qt:
Size:
Qt:
Size:
Qt:
1 1 2 3 4 2 2 2 2 2 2 LAWN 3 3 4
/03
GROUNDPAVERS KEY OIL TANK /PLANT KEY
- 10-

/REFERENCES

EFFECTby STELLAlighting products

Luminous flux: 240lm

Light efficiency: 20lm/W

Opening angle: 90°

Temp: - 10° ~ 40°

Predominant material: Polycarbonate

Qt: 6 un

SPUR 100° by STELLAlighting products

Luminous flux: 20lm

Light efficiency: 20lm/W

Opening angle: 100°

Operation: -10°C ~ 40°C

Predominant materials:Aluminum and polycarbonate

Qt: 14 un

HANG by STELLAlighting products

Total extension: 5.50 m

Number of sockets: 8

Predominant material: PVC

Qt: 7 cables

1 2 3 4 5 6 7 8
Outside rustic lanterns
Wooden relaxing chairs Concrete fire pit Concrete planters Wooden wall 2 meters hight Wooden built-in bench around the existing tree Rustic outdoor wooden table Wall outdoor fontain
3 2 1 4 6 7 8
GARDEN SHED
5
REAR OFTHE HOUSE OIL TANK BLUESTONE PAVER WOODEN FLOOR LAWN
- 11-
/SITE LAYOUT PLAN
/03 - 12-

a back garden renovation

COMPOSITE BUILT-IN BENCH

Dim 200x48 cm

Height 45 cm

EXISTING WOODEN TRELLIS

PLASTERED CONCRETE BLOCKS

RAISED BED

Grey colour

Height 35 cm

GREY PEA GRAVEL

TRIO OF POTS

ARTIFICIAL GRASS

COMPOSITE DECKING

EXISTING TILED FLOOR

FLOATING STEPS

Dim 100x50 cm

PLANT POT

SEALED CONCRETE PAVERS

Grey colour

Dim 80x30 cm

/NOTES:

ALL THE EXISTING FURNITURE HAS BEEN USED IN THE NEW DESIGN.

IT IS RECOMMENDED TO USE THE LANDSCAPE EDGE TO SEPARATE THE GRAVEL FROM THE SYNTHETIC GRASS.

ALL SIZE MEASUREMENTS ARE IN CENTIMETERS.

IT IS RECOMMENDED TO CHECK THE MEASUREMENTS ON THE SITE.

/TOP VIEW /TOP VIEW WITH EXISTING MEZANINE
- 13-

/PLANT KEY

HYDRANGEA ARBORESCENS ‘ANABELLE’ (Smooth Hydrangea)

WHITE SAGE (Artemisia 'Powis Castle')

TARO (Colocasia esculenta)

/RAISED BED

In addion to the exisng plants in the raised bed, several other perennials are recommended to further enhance the texture and color of the new garden design. All selected plants are lowmaintenanceandhighinvisualappeal.

IVY (Hedera helix)

RED VELVET YARROW (Achillea millefolium) POTTED PLANTS

JAPANESE MAHONIA (Mahonia japonica)

HART’S TONGUE FERN (Asplenium scolopendrium)

HYDRANGEA ARBORESCENS ‘ANABELLE’ (Smooth Hydrangea)

FRENCH LAVANDER (Lavandula dentata)

Small BOX (Buxus sempervirens)

PRIMROSE (Primula vulgaris)

JAPANESE MAHONIA (Mahonia japonica)

IVY (Hedera helix)

/04
- 14-
- 15-

/LIGHTING KEY

HANGING LIGHTS

/LIGHTING PLAN & LIGHTING KEY

HANGING LIGHTS

EXISTING WALL SCONCES

LED INGROUND SPOTLIGHT WARM- YELLOW FOR A REAL COLOUR OF THE PLANTS

9 units

Reference photo:

SPOT LIGHTS
/04
- 16-

a wildlife garden

Dublin, Ireland

Client:MrsBusby

May2022

AutoCAD|Photoshop

/IDEA&CONCEPT

In craing this garden, careful consideraon was given to the principles of wildlife conservaon and biodiversity to ensure that the design fulfills these needs while maintaining an elegant, contemporary, and lowmaintenanceambiance.

As Hancock suggests, biodiversity encompasses the myriad forms of life present in an area, encompassing animals, plants, fungi, and microorganisms. Each of these components intricately interconnects withinecosystems,formingadelicatebalancecrucialforsustaininglife.

In alignment with this ethos, the decision was made to remove the majority of the exisng tarmac flooring, liberang space for lush lawns and verdant plants Two disnct entrances were created one for pedestrian and another for vehicles—with the asphalt flooring reserved solely for the car passage leading to the garage. This strategic choice not onlyconservesresourcesbutalsostreamlinescosts.

For pedestrian access, a wooden pathway gracefully guides visitors to the main entrance of the house, meandering past pergolas adorned with climbing plants. These pergolas not only serve as structural supports but also offer a tranquil vantage point from which to admire the garden's beautyandbiodiversity

Access to the rear of the house offers three inving pathways: one leads through the conservatory onto a charming wooden deck adorned with diningfurniture;anotherroutewindsthroughthegaragepassage,whilea thirdoponguidesguestsalongsteppingstonestoatranquilcirculararea embraced by a pea gravel floor Here, nestled amidst comfortable seang andawelcomingfirepit,visitorscanunwindamidstthenaturalbeauty

Following the stepping stones further unveils the garden's untamed heart, where life flourishes with the nurturing touch of nature. A solarpowered water fountain beckons birds and bees, offering them respite and a place to call home within the carefully craed birdhouse Connecng the wooden deck to other parts of the garden's rear is a walkable lawn intenonally le untrimmed, embracing a naturalisc aesthec.Thisdeliberatelaissez-faireapproachextendstothefrontlawn, fosteringacohesivestylethroughout.

From the front windows, aenon is immediately drawn to horizontal pergolas adorned with the capvang Lonicera periclymenum (Nave Honeysuckle), their yellow/white blossoms and sweet fragrance creang vercal focal points within the garden. At the garden's rear, a majesc Fagus sylvaca (Beech) tree commands aenon, parcularly in autumn when its golden-brown foliage casts a mesmerizing spell visible from everycornerofthegarden.

a wildlife garden

- 17-
/05 - 18-
- 19-
Birds house /05 - 20/LIGHTING KEY

bray small GARDEN DESIGN

/PERSPECTIVEVIEW

1 EXISTINGTIMBER PLANTER

1 2 CEDAR DECK

1 3 CEDAR BENCH (2000 x 480 x 450 mm)

1 4 LIGHT FRAMETIMBER PANEL

1 5 CORTEN STEEL PLANTERS (580 x 320 x 480 mm)

6 OUTDOOR PORCELAIN PAVINGTILES (240 x 200 mm)

Three corten steel planters have been thoughtfully filled with a selection of perennials and evergreen plants. These carefully chosen plants boast low-maintenance qualities and exhibit a diverse range of sizes and textures, resulting in a captivating compositionthatharmonizesbeautifullywithoneanother

Concretegrey240mmx200mmhexagon-shaped porcelainfloortiles.

4 1 2 5 1 6
3
- 21-
Sowbread Cyclamen hederifolium Broad Buckler-fern Dryopteris dilatata Bamboo Plant Fargesia Rufa Bridal Creeper Asparagus Asparagoides Smilax
/06 - 22-
Mexican Feather Grass StipaTenuissima
- 23-
/06 - 24-

donabate GARDEN DESIGN

/TOPVIEW

SMALL CONIFER TREES

TIMBER FENCE

ADDED MEDIUM TREES

ADDED MEDIUM TREES

TIMBER BENCH AROUNDTHETREE

GRAVEL SEATING AREA

CEDAR BENCH

PLANTS BED

PLANTS BED

BBQ GRILL/PIZZA OVEN

PAVER PATIO

PAVED FOOTPATH

NATURAL GRASS

/DETAILTIMBER BENCH AROUNDTHETREE

GARDEN SHED REAR OFTHE HOUSE /DETAIL PAVING OFTHE DINING AREA
- 25-
/07 - 26-
- 27-

Site Boundary

1 - Amenlanchier Tree (Amelanchier canadensis)

2 - Deciduous Birch Tree (Betula pendula)

3 - Iirish Yew (Taxus baccata ‘Fasgiata’)

4 - Box (Buxus Sempervirens)

5 - Eulalia Grass (Miscanthus

6 - Lavender (Lavandula angusfolia)

7 - Yarrow (Achillea millefolium)

1 2 3 4 5 6 7 /07 - 28-

hse sensory garden

/TOPVIEW

PLANTS BED

BARK (WOOD CHIPS)

This Sensory Garden is designed to engage visitors of all ages, inving them to interact with its various elements through touch, taste,sight,andsound.Guestsareencouragedtoexploredifferent textures beneath their feet, listen to the gentle rustle of plants in the breeze and the soothing flow of water, savor the fragrances of diverseflowersandherbs,andmarvelatthekaleidoscopeofcolors thatchangewiththeseasons.

EXISTING GAZEBO

EXISTING TREE

SOLAR FONTAIN

SHRUB

GRAVEL SEATING AREA

TREE HEDGE

EXISTING TREE

ADDED SMALLTREE (RED MAPLE)

STEPPING STONES

BARK SEATING AREA

CONCRETE AND TIMBER CURVED BENCH

GRASS PLANTS BED

ADDED SMALLTREE (RED MAPLE)

STEPPING STONES

- 29-
hse sensory garden /08 - 30-
- 31-

3D IMAGES

1 - Evergreen Golden Private (Ligustrum Ovalifolium Aureum)

2 - Deciduous Japanese Maple (Acer palmatum)

3 - Camomile (Chamaemelum nobile)

4 - Rosemary (Salvia rosmarinus)

5 - Lavender (Lavandula angusfolia)

6 - Lamb's Ears (Stachys Byzanna)

7 - Evergreen hedge Red Robin (Phonia x fraseri)

1 2 3 4 5 6 7
6m 1,5m 3m 4m 1,8m /08 /PLANT KEY - 32-
/3D IMAGES OF THE PROJECT PLANTS

restaurant render

- 33-
/09
- 34-

thank you.

- 35-

GRADUATE ARCHITECT

Turn static files into dynamic content formats.

Create a flipbook
Issuu converts static files into: digital portfolios, online yearbooks, online catalogs, digital photo albums and more. Sign up and create your flipbook.