portfólio profissional maria paula simonsen

Page 1


COBERTURA METÁLICA

VIGAS DE COROAMENTO TIRANTES

ESTRUTURA SECUNDÁRIA PARA SUPORTE DE ELEMENTOS DE PROTEÇÃO TÉRMICA

ESTRUTURA METÁLICA TRELIÇA E VIGAMENTO

EIXO DE APOIO ESTRUTURAL

EMBASAMENTO E NÚCLEOS DE CIRCULAÇÃO EM CONCRETO ARMADO

são paulo | sp 11 996773599

mariapaularsimonsen@gmail.com `https://issuu.com/mariapaulasimonsen

concurso centro administrativo do governo do estado de São Paulo grupo sp | mira arquitetos | tempo arquitetos

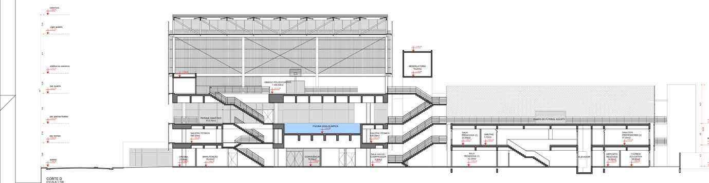
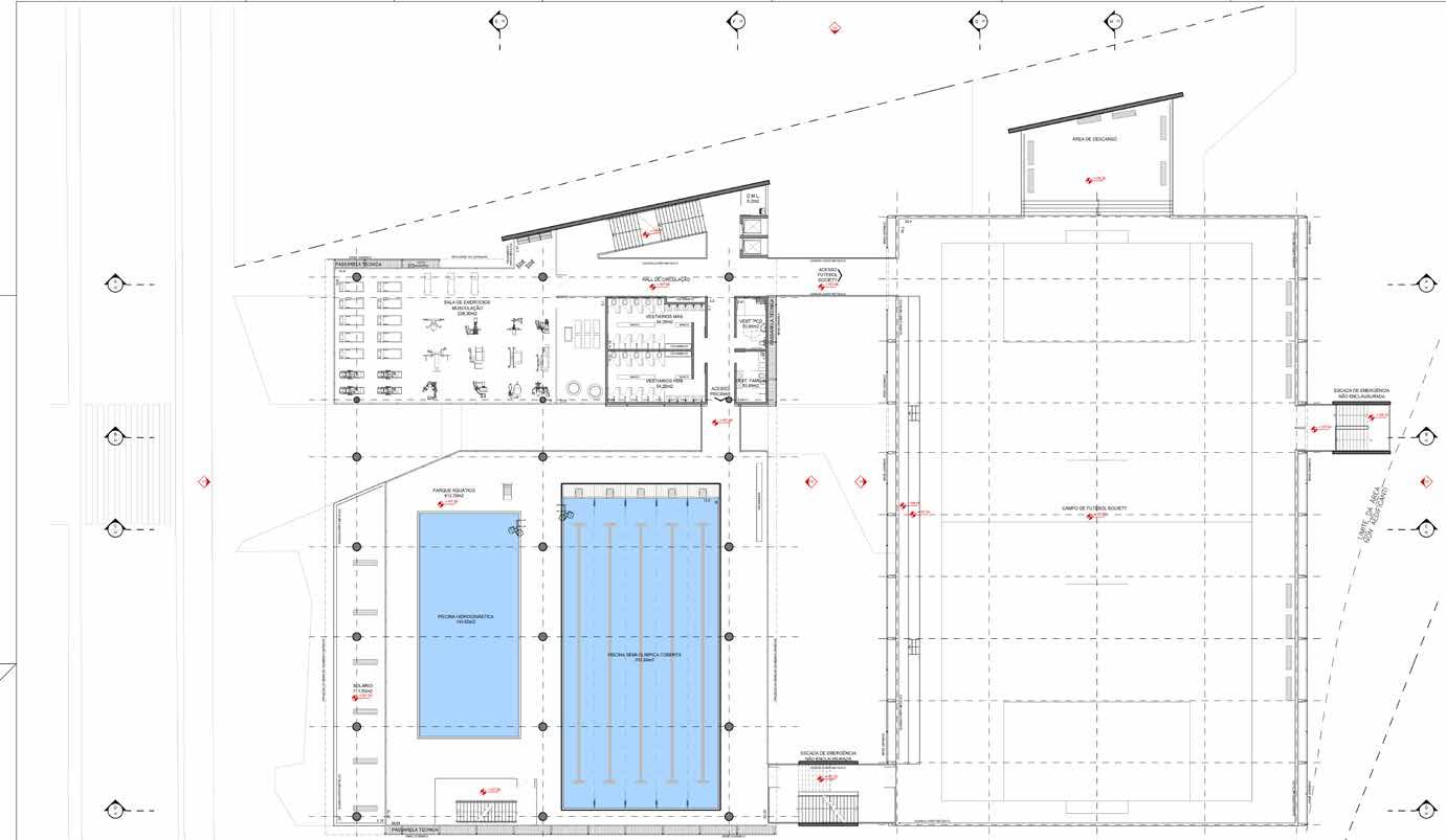
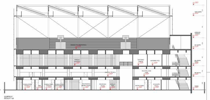
estudo preliminar Sesc

Governador Valadares

escritório Apiácas

edição de desenho para olivro da coleção

Arquitetos da Cidade | Apiácas

escritório Apiácas

planta editada do bar mundial para o livro

planta editada do bar mundial para o livro

cortes da casa juranda editados para o livro

Sesc Franca

Av. Doutor Ismael Alonso Y Alonso, 3071

Horário de funcionamento:

Terças a sextas, das 9h às 21h30

Sábados, das 9h às 20h

Domingos e feriados, das 9h às 18h

identidade visual SESC Franca

Apiácas | SIAA arquitetos

Biblioteca

Comedoria

Espaço de Brincar

Exposições

Ginásio

Ginástica

Loja Sesc

Odontologia

Piscinas

Quadras

Teatro

maria paula simonsen arquiteta | portfólio profissional

formação acadêmica

2025 pós graduação do programa lato sensu em design gráfico e cidade escola da cidade

2019|2024 graduação em arquitetura e urbanismo escola da cidade 2023

intercâmbio acadêmico master degree em arquitetura universidade Sapienza, Roma

2017|2018 ensino médio escola viva

2004|2016 primário| ensino fundamental I e II |ensino médio escola vera cruz

softwares autocad adobe indesign adobe illustrator adobe photoshop adobe premiere sketchup archicad

línguas

português inglês italiano nativo avançado iniciante

experiência

06|2024 | 12|2024 mira arquitetos [estágio] participação no concurso do centro administrativo São Paulo participação no projeto executivo do Senac Salvador | Bahia

02|2024 | 05|2024 bienal de quito [participação do conselho acadêmico da escola da cidade] produção de texto crítico e diagramas a partir de análise de obras arquitetônicas contemporâneas

01|2022 | 04|2023 escritório apiácas [estágio] participação no estudo de viabilidade participação no estudo preliminar estudo anteprojeto participação em edição de video para clientes edição de desenhos para publicação

05|2021 | 11|2021 escritório modelo escola da cidade [estágio] participação no levantamento planimétrico participação no estudo preliminar partcipação no pré projeto diagramação e produção de relatório

08|2020 | 12 |2021 escritório engel design [estágio]

partcipação no projeto de construção para prefeitura partcipação em projeto executivo construção de contabilização de área detalhamento de banheiro

são paulo | sp 11 996773599

mariapaularsimonsen@gmail.com likedin.com/in/maria-paula-simonsen https://issuu.com/mariapaulasimonsen

Turn static files into dynamic content formats.

Create a flipbook
Issuu converts static files into: digital portfolios, online yearbooks, online catalogs, digital photo albums and more. Sign up and create your flipbook.
portfólio profissional maria paula simonsen by mapá simonsen - Issuu