Projeto Sapiência

Page 1

P R O J E T O

S A P I Ê N C I A

T F G E M A R Q . E U R B .P E S Q U I S A E P A R T I D O
C O L É G I O E S T A D U A L P R O T Ó T I P O P A R A J O V E N S N A Z O N A O E S T E
PROJETO SAPIÊNCIA: COLÉGIO ESTADUAL PROTÓTIPO PARA JOVENS NA ZONA OESTE LUIZ, Maria Paula Estudante do Curso de Arquitetura e Urbanismo da Estácio de Sá mariapaulaluizarquitetura@gmail.com

RESUMO

Este trabalho tem como objetivo mostrar o processo de elaboração de um colégio de ensino médio, para o bairro de Vargem Pequena e adjacentes. As propostas desse trabalho é garantir que a educação tenha mais relevância. As ideias apresentadas seguem o preceito de disponibilizar este serviço essencial para aos moradores e usuários daquela região.

PALAVRAS-CHAVE: colégio, estudante, segurança, waldorf

ABSTRACT

This study has the objective of showing the elaboration process of a high school, for a region of the Vargem Pequena neighborhood and adjacent areas. The proposals of this work aim to ensure that education becomes more relevant. The ideas presented follow the precept of making available essential services always close to the residents and users of that zone.

KEYWORDS: high school, student, security, Waldorf

PROJETO LOCALIZAÇÃO ESTUDO DE CASO MAPAS DE ESTUDO GRÁFICOS MOODBOARD PROGRAMA DE NECESSIDADES FLUXOGRAMA ENTORNO IMPLANTAÇÃO PLANTAS BAIXAS CORTES FACHADAS VOLUMETRIA REFERÊNCIAS S U M Á R I O 06 07 08 10 12 13 14 15 16 17 18 19 20 22 25

P R O J E T O

Foi observado que os bairros Recreio dos Bandeirantes, Vargem Grande, Vargem Pequena e Camorim da cidade do Rio de Janeiro, carecem de colégios de ensino médio. Hoje, os alunos que moram nessas regiões, precisam fazer um grande deslocamento para o bairro vizinho a eles, a Barra da Tijuca, enfrentando um transporte público sucateado, turmas demasiadamente grandes de cada ano escolar, que lotam o colégio pela alta demanda.

Eu acredito que os espaços de ensino devem ser abertos e claros, afirmo que devemos construir escolas sem muros, que não se pareçam com prisões, considero que é o papel da arquitetura fazer com que o conhecimento seja livre e não apresente fronteiras.

Centros educacionais precisam ser construções horizontais, prédios altos podem ser opressores para o conhecimento. A conexão com solo, julgo ser fundamental para o aprendizado. Colégios devem ser espaços de acolhimento aos jovens.

O Projeto Sapiência é um colégio de ensino médio, pensado para metodologia Waldorf com um programa inicial consta com uma capacidade para 300 alunos por turno, sendo 30 pessoas por sala, com espaços abertos para descompressão e atividades externas. Áreas comuns como refeitório, espaços de estudos compartilhados, vestiários, quadra poliesportiva, laboratórios de química e robótica e área administrativa.

O terreno escolhido inicialmente, que fica localizado no bairro de Vargem Pequena, na Estrada dos Bandeirantes sem número próximo ao 23303, foi uma escolha estratégica, pois está na divisão dos bairros de Vargem Grande e Pequena com um acesso rápido ao bairro Recreio dos Bandeirantes pela Estrada do Rio Morto fazendo a esquina.

Em pesquisa, retirei informações do site Bairro a Bairro para melhor compreensão do entorno do terreno e suas condicionantes. Região compreende como ZRU1, ZCA2, ZRM2 B e ZOC5 o gabarito é 11 metros (equivalente a 3 pavimentos), com TO (taxa de ocupação) de 40%, com um afastamento frontal de 5 metros e IAT 3.

TO - 40%

IAT - 3

RECUO FRONTAL - 5m

GABARITO - 11m

ÁREA TOTAL - 5070m²

ALUNOS - 300

ENSINO MÉDIO

06

L O C A L I Z A Ç Ã O E E N T O R N O

Estrada dos Bandeirantes, próximo do n° 23303, Vargem Pequena

35 m x 130 m

FONTE: https://www.google.com.br/maps/@-22.9871796,-43.4893209,95m/data=!3m1!1e3?entry=ttu

T F G E M A R Q E U R BP E S Q U I S A E P A R T I D O
Shopping Vargem Grande Pontal Ciclovia
07
Ponto de Ônibus

ESCOLA EXPERIMENTAL PRIMÁRIA E JARDIM DE INFÂNCIA DE ESPORTES OLÍMPICOS

Referência conseitual e estilística

FICHA TÉCNICA:

Arquitetos: UAD

Área: 95150 m²

Ano: 2020

Hangzhou, China

O seu desenho inovador da escola visa neutralizar fatores adversos e aproveitar todo o seu potencial, criando um ambiente multiuso e funcional que se conecta com o espaço de ensino existente.

A escola foi projetada para funcionar como um conector entre a cidade e a comunidade, incluindo um transporte público seguro e a abertura de uma parte do campus para uso da comunidade.

O espaço de ensino, oferece locais flexíveis e diversificados para aprendizagem, incluindo salas de seminários, exposições, discussões e salas de aula de diferentes tamanhos, adaptando-se à tendência de desenvolvimento da educação no futuro.

A edificação garante uma boa qualidade de ambiente, com iluminação natural, ventilação adequada e espaços internos e externos para atividades que promovem o crescimento saudável e mental dos alunos.

A escola promove a integração entre alunos de diferentes idades e estimula a criatividade, imaginação e personalidade de cada aluno, criando um ambiente propício para o aprendizado.

FONTE:https://wwwarchdalycombr/br/957339/escoa-experimental-primara-e-ardim-de-infancia-de-esportes-olmpicos-de-hangzhou-uad? ad source=myad bookmarks&ad medum=bookmark-open 08
E S T U D O D E C A S O

E S T U D O D E C A S O

UNIVERSIDADE NAGOYA ZOKEI

Referência conseitual e estilística

FICHA TÉCNICA:

Arquitetos: Riken Yamamoto

Área: 10.465 m²

Ano: 2012

Nagoia, Japão

O edifício da universidade funciona como uma ponte, com a estação Meijo Koen dividindo o terreno em leste e oeste. O espaço aberto no último andar, de 88 por 88 metros, proporciona uma área ampla e flexível para atividades artísticas e de design.

A mudança do campus permitiu a reorganização dos nove cursos da universidade em cinco áreas principais, focando no propósito original de cada atividade de produção artística ou de design, e considerando o público-alvo. Isso promove uma abordagem mais integrada e colaborativa entre os alunos de diferentes áreas de estudo.

O grande estúdio de 88 por 88 metros serve como o centro de atividade para os cinco campos de estudo, proporcionando um espaço compartilhado onde os alunos podem interagir e colaborar entre si, estimulando a criatividade e a troca de ideias.

T F G E M A R Q E U R BP E S Q U I S A E P A R T I D O
FONTE https://wwwarchdalycombr/br/957339/escola-experimental-primara-e-jardim-de-nfanca-de-esportes-olimpicos-dehangzhou-uad?ad source=myad bookmarks&ad medium=bookmark-open
09

M A P A S D E E S T U D O

MACROZONA

Terreno

Uso Sustentável

Protenção Integral

HIERARQUIA VIÁRIA

Locais Arteriais Terreno

GABARITOS

4 Pav. 3 Pav. 2 Pav.

CHEIOS E VAZIOS ÁREAS VERDES

Áreas Verdes

Água

Terreno
10
Terreno

USO DO SOLO CARTA SOLAR

Afloramento rochoso

Favela

Áreas de Lazer

Áreas Residenciais

Áreas não edificada

Áreas de comércio e serviço

Cobertura arbórea e arbustiva

Cobertura gramíneo lenhosa

0.4km

Áreas Agrículas

Áreas sujeitas à inundação

T F G E M A R Q E U R BP E S Q U I S A E P A R T I D O
M A P A S D E E S T U D O
11

TABELA POPULACIONAL ETÁRIO - CENSO 2022

EDUCAÇÃO - CENSO 2021

Não foi encontrado os dados específicos dos bairros Vargem Pequena e Vargem Grande.

GRÁFICO MATRÍCULAS - CENSO 2021

Pré-escolar

COLÉGIOS DA REGIÃO

20 a 24 578934 570077 Rio de Janeiro 15 a 19 498039 513939 Rio de Janeiro 10 a 14 470169 494467 Rio de Janeiro Idade Feminina Masculina Unidade da Federação
Ensino fundamental Ensino médio Ensino Fundamental Ensino Médio Matrículas 1.945.408 581.323 Docentes 99.024 43.631 Escolas 7.624 2.311 Vargem Grande Vargem Pequena Recreio dos Bandeirantes Camorim Colégio Estadual Teofilo Moreira da Costa X X X
G R Á F I C O S
12
M O O D B O A
D 13
R
SETOR AMBIENTE QUANTIDADE ÁREA (m²) TOTAL (m²) EDUCAÇÃO SALA DE AULA 12 80 960 EDUCAÇÃO LABORATÓRIO DE CIÊNCIAS 1 80 80 EDUCAÇÃO LABORATÓRIO DE ROBÓTICA 1 80 80 EDUCAÇÃO ATELIÊ 1 80 80 EDUCAÇÃO QUADRA POLIESPORTIVA 1 500 500 SERVIÇO SANITÁRIO 6 10 60 SERVIÇO DML 1 5 5 SERVIÇO DTRS 1 10 10 SERVIÇO COZINHA 1 15 15 SERVIÇO DEPÓSITO 2 5 10 ADM SECRETÁRIA 1 12 12 ADM COORDENAÇÃO 1 30 30 ADM SALA DOS PROFESSORES 1 12 12 VIVÊNCIA CANTINA 1 6 6 VIVÊNCIA REFEITÓRIO 1 50 50 VIVÊNCIA BIBLIOTECA 1 150 150 CULTURAL AUDITÓRIO 120 LUGARES 200 200 P R O G R A M A D E N E C I S S I D A D E S 14

ENTRADA

Térreo 1° Pav.

REFEITÓRIO CATINA

DTRS

SECRETARIA

SALA DOS PROFESSORES COORDENAÇÃO

COZINHA DML

LABORATÓRIO DE CIÊNCIAS BIBLIOTECA

SANITÁRIO RAMPA

LABORATÓRIO DE ROBÓTICA

ATELIÊ

SANITÁRIO

PÁTIO

QUADRA POLIESPORTIVA

SALA DE AULA 2° Pav.

SALA DE AULA

SALA DE AULA

SALA DE AULA

SALA DE AULA

SALA DE AULA

SALA DE AULA

SALA DE AULA

SANITÁRIO RAMPA

SALA DE AULA

SALA DE AULA

SALA DE AULA

SALA DE AULA

SALA DE AULA

SALA DE AULA

T F G E M A R Q E U R BP E S Q U I S A E P A R T I D O
F L U X O G R A M A
AUDITÓRIO
15
E N T O R N O 16
I M P L A N T A Ç Ã O 17

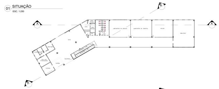
P

L A N T A S B A I X A S
Térreo 1° Pav.
18
2°Pav.
C O R T E S
Corte AA
19
Corte BB
F A C H A D A S
Oeste
20
Norte
F A C H A D A S
Leste
21
Sul
V O L U M E T R I A 22
V O L
T F G E M A R Q . E U R B .P E S Q U I S A E P A R T I D O 23
U M E T R I A
V O L U M E T R I A 24
VÍDEO DO PROCESSO CRIATIVO

"Nagoya Zokei University / Riken Yamamoto" 17 Nov 2022. ArchDaily. Acessado em 11 Mar 2024. <https://www.archdaily.com/1014029/nagoyazokei-university-riken-yamamoto> ISSN 0719-8884

"Escola Experimental Primária e Jardim de Infância de Esportes Olímpicos de Hangzhou / UAD" [Hangzhou Olympic Sports Experimental Primary School and Kindergarten / UAD] 25 Fev 2021. ArchDaily Brasil. Acessado 11 Mar 2024. <https://www.archdaily.com.br/br/957339/escolaexperimental-primaria-e-jardim-de-infancia-de-esportes-olimpicos-de-hangzhou-uad> ISSN 0719-8906

Escola Rudolf Lanz. Disponível em: <https://rudolflanz.com.br/setenios/>. Acesso em: 27 Abr 2024.

KOWALTOWSKI, Doris K.. Arquitetura escolar. O projeto do ambiente de ensino. São Paulo, Oficina de Textos, 2011.

Data Rio. Disponível em: <https://www.data.rio/apps/5529d644feff4d92a30bd38565f6c460/explore>. Acesso em: 06 Abr 2024.

T F G E M A R Q E U R BP E S Q U I S A E P A R T I D O
R E F E R Ê N C I A S : 25
LUZ A R Q U I T E T U R A @arquiteturacomluz (21) 97029-6019 2024.1

Turn static files into dynamic content formats.

Create a flipbook
Issuu converts static files into: digital portfolios, online yearbooks, online catalogs, digital photo albums and more. Sign up and create your flipbook.
Projeto Sapiência by Maria Paula Luiz - Issuu