Skip to main content

PORTFOLIO_Mariana_High

Page 1


MARIANA FORERO

Colombian interior design graduate from Istituto Marangoni in Milan who has moved through many places, cultures, and experiences, I’ve learned that what matters most isn’t where you are, it’s how a space makes you feel. The feeling of being at home is something deeply important to me. It’s universal, grounding, and essential to our wellbeing. That’s why, for me, interior design is about more than just aesthetics it’s about creating spaces that offer comfort, familiarity, and a true sense of belonging, wherever you are in the world.

Wherever you go, I’ll design a space that makes you feel at home

THIS IS ME

A la mode Elegance

À la Mode Élégance is a refined duplex in Tokyo that blends elegance and minimalism into a warm, livable space designed for comfort and function. The interior is sumptuous yet delicate, with rich textures and materials that exude quiet luxury. Light and shadow are used as subtle design elements, creating a luminous atmosphere with moments of shadow ornamentation that add depth and mood. Every detail is neatly decorous, reflecting a sense of elegant subtleness. Thoughtful spatial planning ensures the home is not only beautiful but highly functional, making it a serene and stylish retreat in the heart of the city.

Shadow Ornamented
Functional Sophisticated
Elegant Subtleness
decorous

Alexandra and André are a refined couple who value simplicity, elegance, and comfort in their lifestyle. Andrés is a passionate golf enthusiast, while Alexandra has a deep love for cooking and collecting unique culinary pieces. Together, they enjoy cooking, watching films, and staying active sharing a calm, balanced routine centered on meaningful experiences. Their home life is enriched by Teo, their beloved German Shepherd, who is considered part of the family. Their design preferences lean toward clean finishes, abundant natural light, and soft, curved architecture. They appreciate spaces where light and shadow interplay to create a serene yet visually engaging environment sophisticated, warm, and timeless.

1. Aluminum movable wall door, Forest, ADL

2. Noir marble, Sahara, Italgraniti

3. Black wooden slats, Reeded, Osborne

4. Motif wallpaper, Delabre, Summer side walls

5. Oak wood, White gold, EmilCeramica

6. Glass fiber wallpaper, Steli wet system, Wall&decò

7. White marble, designwalls, Architects paper

8. Solid-color carpeting, Xposive, Object carpet

9. Grey porcelain stoneware, Poetry NET, ABK Group studio

10. Pavement tiles, Lakos beige, Leroy Merlin

11. Green porcelain, Pietra grey, Fiandre Architectural surfaces

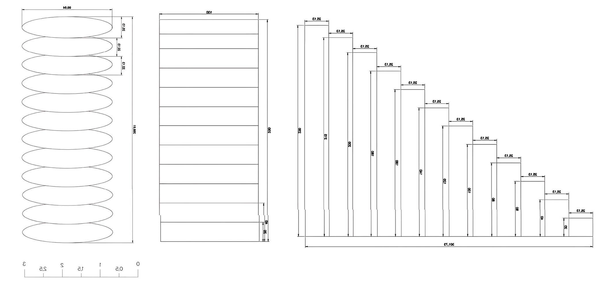
Project Section BB’

Scale 1:50

Project Section BB’

Scale 1:50 Measurements

Mariana Forero CAD CAM Modeliing Istituto Marangoni

Once you walk into the duplex, the first thing you encounter yourself to the left is this beautiful custom-made stone marble furniture. It is specifically for the collection the client has to cook. The colors showcase the concept and the color pallets while letting the elegance and subtleness give attention to each piece in each space of storage, open to the eye. The doors are to protect the tablecloths and different silver pieces for fine dining, and glasses. Within the inside of each space, there is a light giving attention to what each one has. It’s unique and functional due to the amount of storage that is possible.

Once you walk into the duplex, the first thing you encounter yourself to the left is this beautiful custom-made stone marble furniture. It is specifically for the collection the client has to cook. The colors showcase the concept and the color pallets while letting the elegance and subtleness give attention

the

Beige Porcelain, Veneer world, Pro Ledgeston
1. Led ceiling outdoor spotlight, DOX 100, Delta light
2. Ceiling adjustable aluminum light, Cariddi, Artemide
3. Pendant lamp, Taraxacum 88, Flos
4. Sectional fabric sofa, Free system, Acerbis
5. Wallpaper wooden panel floor, Gold, Behance
6. Marble armchair, Nudo, Kelly Wearstler
7. Led rechargeable crystal lamp, Xtal gacrux, ambientec
8. Sectional leather sofa, DS-1025, de sede
9. Round crystal table, Hub cut, Glass Italia
10. Wine bottle rack, Cambusa wine glass, Riva 1920
11. Wooden Tv cabinet, Town, Giorgetti
12. Led solid wood floor lamp, Forella, Riva 1920

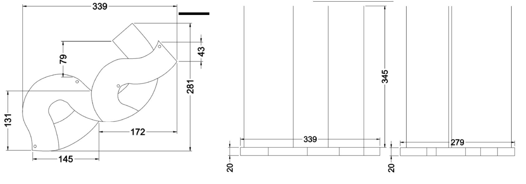
Each step fixed with steel plates or brackets underneath to a central beam. Support Method

(GFRC) Pavement tiles, Lakos beige, Leroy Merlin
Glass Parapet, Easy glass, Q-railling
GFRC (Glass-Fiber Reinforced Concrete) or engineered stone for sculptural texture. Tread Material
Surface sandblasting or micro-etching for grip.
Anti-Slip Treatment
Tempered glass balustrade (12–15 mm), fixed in a floor U-profile.
Glass Side
Cantilevered stairs with hidden steel support inside wall or column.
Structure
Inspo Concept tower

The dining area acts as a functional link between the kitchen and living zones. Its marble table complements the palette while keeping focus on the kitchen island, with shared lighting creating harmony and ceiling fixtures enhancing brightness when needed.

Orthogonal Projection Front View
Orthogonal Projection H.50 cm
Orthogonal Projection Front View Ergonomic Verification

This area is a very private and small area because its meant for only a tranquil time. Besides the bed there is a vanity area that is functional towards the bed and the bathroom area as it connects both of them. diagonally there is a large mirror which is perfect for any space and reflects with the incredible light on the ceiling. Its a space that was made just for a peaceful time.

Tesla vehicles are renowned for their clean, minimalist aesthetics both inside and out. The exterior designs feature smooth lines, aerodynamic forms, and a striking absence of decorative clutter. This design clarity is further enhanced by elements like flush door handles, sleek LED headlights, and tapered silhouettes, giving each model from the Model S to the Model Y, a futuristic, elegant presence. Inside, Tesla’s interior environments are defined by their simplicity and technological integration. Traditional dials and switches are replaced by large, central touchscreen interfaces, while the dashboard remains minimal and clutter-free. The result is a space that feels spacious, calm, and technologically forward reinforcing Tesla’s identity as a brand that merges innovation with design purity. Tesla’s overall design language reflects values of efficiency, sustainability, and forward-thinking luxury forming a bridge between advanced engineering and emotional user experience.

The office will serve Tesla’s Sales and Marketing professionals and Design Team individuals known for their creativity, innovation, and forward-thinking style. Located in Scalo Porta Romana Progetto Vincitore, the site aligns with local climate goals through decarbonization and promotes a resilient, health-focused community. The masterplan embraces a circular approach, fostering biodiversity, enhancing natural capital, and integrating urban agriculture. This workspace offers the ideal setting for a dynamic, lifestyle-oriented team balancing productivity with well-being and enjoyment.

The Way of Reflection is a refined interior design concept that merges reflective surfaces with the tranquil essence of water to create serene, futuristic spaces. It celebrates light, depth, and elegance through the strategic use of mirrors, metallic finishes, and textured reflections. By balancing these elements with soft textures and neutral tones, the design evokes a sense of openness, calm, and sophisticated harmony

Mirroring
Change of direction
Rflective
Shadow Ornamented

1. Black Stone texture tiles, Intonaco Nero, Texture Bo2

2. Porcelain stoneware wall/floor tiles, Noord anthracite, Ceramiche Kerope

3. Floor tile, Anka Kartepe, White glossy rectified Porcelain

4. Slab red quartz polished, Walker Zanger, Quartzite natural Stone

5. Red marble floor, dedalo forme libere, Arabescato Orobico Marble

6. Grey marble floor, Dekoraico group, Levanto marble

7. Metallic embossed sheet mirror, Staabdecor, Glass metal pannel texture

8. Ceramic tiles, Grespania Ceramica, Coverlam Alaska Hielo

9. Pave Porcelain, Edge Tile stone, Travertine Bianco

10. Red Metallic embossed sheet mirror, Stabdecor, Glass metal pannel texture

11. Slab white quartz polished, Walker Zanger, Quartzite natural Stone

This space uses curved walls to soften the atmosphere, breaking away from rigid lines and bringing elegance and movement into the workplace. The curves guide circulation naturally, creating a sense of calm and openness while subtly dividing zones without hard separations.

At the center, the colored enclosed structure acts as a flexible core supporting both privacy and adaptability. With modular partitions and lighting, it transforms easily to meet changing needs, balancing collaboration and focus.

In a Tesla office context, this design makes a bold, innovative statement. It reflects a future-oriented, humancentered approach, blending visual sophistication with functional clarity to support well-being, creativity, and productivity.

Reflective materials polished stone, glossy finishes scatter light to create a subtle shimmer, enhanced by dynamic ceiling projections that mimic flowing currents. Soft curved forms and water-like textures reinforce the sense of fluidity and calm.

Wall Sturcture Initial drawing

MEASURMENT AND COLORED PROJECT PLAN

Section

To evoke the serene sensation of being in or near water within an office environment, the design incorporates translucent textured glass walls that diffuse and distort light, mimicking the visual effect of rippling water. This is complemented by cool, ambient lighting such as integrated LED strips or ceiling panels casting shifting blue and green tones that create a soft, immersive underwater atmosphere. Reflective surfaces, including polished stone and glossy finishes, are used strategically to scatter light and enhance the sense of movement and shimmer found in aquatic environments. This effect can be further amplified through dynamic light projections on walls or ceilings, replicating the fluid motion of water. Finally, the inclusion of curved architectural forms and subtle water-inspired textures reinforces the theme of fluidity and calm. The overall result is a tranquil, flowing workspace where light, material, and form harmoniously simulate the peaceful experience of being underwater.

LOUNGE AREA

1.

2.

3.

4.

Melt Chandelier, Mini Chandelier, Tom Dixon
De Padova, Alberese XL, Lissoni & Partners
Bianco, Nesso, Artemide
Marble coffee, Table Pilier, Dimarmo

Working Area

The upper image depicts a sleek, modern office space designed for collaborative digital work. A series of custom dark wooden desks are arranged facing each other, each equipped with sleek Tesla-branded computer screens. The ceiling is a striking feature, finished with a metallic reflective texture that catches and diffuses light, supported by modern circular pendant fixtures. Subtle indirect LED lighting runs along the perimeter, emphasizing the ceiling’s reflective qualities and adding a futuristic glow. A large glass window at the far end introduces natural light, balancing the artificial lighting and connecting the enclosed space with the outside environment.

RENDERS

Bathrooms

The lower image showcases a luxurious bathroom or transitional space. Walls are clad in large, polished marble panels with natural veining in soft grey and warm beige tones, creating a refined and timeless look. The floor features a darker stone finish, grounding the composition with contrast. Indirect ceiling lighting once again emphasizes the reflective ceiling surface, continuing the “reflection” theme across spaces. A minimalist wall-mounted lamp and blocky stone sink add functionality while keeping the design clean and sculptural. Tall columns enhance the sense of verticality and grandeur, reinforcing the elegance of the space.

HANGING ELEMENTS

This custom made concrete floating table is mainly focused on the elevation and space for the functionality of the kitchen. It will reflect light and connect it with the harmony and unusual harmony of the concept structure.

3

4

1

2

Melva, Melva desk chair black and black steel legs
Tom Dixon, MELT LARGE, LED polycarbonate chandelier
Be water, waw collection, long floor lamp
Liquid glacial, zaha hadid, twirls in mirror

The BE WATER Lamp by WAW Collection introduces calming, water-like light reflections through a rotating hand-formed glass cylinder. Designed for recessed installation, it creates a dynamic, meditative atmosphere ideal for wellness-oriented conference rooms. Its kinetic movement, paired with optional color filters, fragrance, and soundscapes, transforms a static space into a soothing, multisensory environment enhancing focus, reducing stress, and supporting emotional well-being.

A Motor Block Unit

B Base support module with light source

C Borosilicate glass cylinder

D Colored Filter Accesory

The brand name Off-White originates from Virgil Abloh’s conceptual exploration of the “grey area” between black and white, symbolizing the intersection of contrasting ideas classic and contemporary, luxury and streetwear. The brand is driven by a vision to produce fashion-forward, trend-conscious garments that remain distinctly original. Abloh’s deep respect for history and cultural heritage is integral to the brand’s identity. Drawing from classical art, architecture, and traditional craftsmanship, he seamlessly merges these influences with urban streetwear aesthetics to craft a sophisticated yet accessible design language. Off-White reimagines the notion of modern royalty through fashion, embedding historical symbols of power and prestige within contemporary silhouettes and materials. By doing so, the brand challenges and redefines conventional ideas of luxury and status for the 21st century, positioning itself at the forefront of cultural innovation and style evolution.

Royal Interruption unveils the refined elegance within Virgil Abloh’s work, moving beyond Off-White’s streetwear origins. Drawing on classical motifs and symbols of royalty, the concept translates Abloh’s reinterpretation of tradition into spatial form balancing heritage with bold, contemporary expression. The restaurant design merges palatial grandeur with urban minimalism. Classical elements like symmetry and hierarchy are abstracted through sleek materials marble, velvet, and brushed gold set against sharp geometries and minimalist volumes. This contrast mirrors Abloh’s signature “Off-Lux” aesthetic, where elegance meets disruption. Spaces unfold through layered thresholds, curated sightlines, and tonal lighting. Sculptural furniture and refined details create a sense of presence and restraint. The result is a curated environment where tradition is interrupted, and modernity takes on a regal form.

Elevated detailing
Structure edges
Rythm flow Monumentality

4.

INDOOR OUTDOOR

1. KEK Amsterdam Mural Marble 4, light blue.
2. Prodital Leather, PERFECT P 906, soft whitel leather, colection perffect.
3. KEK Amsterdam Murall Marble 4, light beige tile.
Rea Ceramiche, Sumtech Extralight, Cement-effect porcelain stoneware wall/floor.
5. Madras, MADRAS® STRIP MATÉ DOUBLE FACE, Satin decorated glass.
6. Cleaf, CEPPO, Finished panel, ight wood.
7. Cleaf, CEPPO, Finished panel, dark wood rough.
8. GAYAFORES, STATUARY, White-body wall/floor covering with marble effect.
9. custom made blue oak wood. color blue off white and white.
1. Cleaf, CEPPO, Finished panel, Brown darkest tone wood.
2. Madras, MADRAS® STRIP MATÉ DOUBLE FACE, Satin decorated glass.
3. Saint-Gobain Glass tables PLANTHERM INFINITY.
4. notpool, custom made, white stone floor, Chamonix: Bianco.
5. Prodital Leather, PERFECT P 906, soft blue leather, colection perfect.
6. Brittanicca Gold Warm, Polished stone, Cambria Matter, caramel with white

The floor plan blends grandeur with intimacy, anchored by a sweeping spiral staircase and a central circular pavilion that turns dining into ceremony. Fluid seating clusters flow across the space, while canopy-like pods create moments of privacy within a theatrical setting. A palette of stone and off-white tones reinforces elegance, making the restaurant both a stage for spectacle and a sanctuary for reflection.

Section
Section

Pleated ceiling forms echo Abloh’s Off-White aesthetic, merging elegance with deconstruction. Strategic lighting enhances depth and movement, defining a space where luxury meets urban edge.

Outdoor tables extend the design with pleated canopies, offering shade, movement, and elegance, true to Off-White’s elevated everyday ethos.

The chandelier on the floor disrupts tradition, turning a symbol of elevated luxury into a grounded, sculptural statement. It reflects Abloh’s approach to redefining status and challenging norms.

The entrance ceiling uses textile to express material fluidity, echoing Abloh’s fashion language. Its soft, draped form introduces movement and elegance through architectural texture.

The reception column is a bespoke piece crafted from high-quality oak with a satin finish, blending warm materiality with a sleek, modern profile. Designed as functional furniture, it integrates a flush-mounted touchscreen at an ergonomic height, with concealed wiring and subtle LED backlighting. Metal detailing adds a refined, contemporary edge. This smart column acts as a digital concierge allowing guests to check in, explore the menu, and personalize orders enhancing both user experience and operational flow through elegant, integrated technology.

Custom made blue soft oak material blend
stripped pannels Smart touch screen self reception

ROYAL INTERRUPTION

CHANDELIER ENTRANCE

The design features a circular marble countertop with rich veining, surrounded by glass and warm wood panels. Subtle LED lighting adds a soft, elegant glow.

Off-White Restaurant

PIANO DINING ROOM

Off-White Restaurant

PIANO DINING ROOM

ROYAL INTERRUPTION

Off-White Restaurant

FIRST TERRACE TALL DRINKING SECTION

Off-White Restaurant

SECOND OUTDOOR PAIR TABLES

Chanel a brand that embodies timeless elegance and bold innovation. Founded by the visionary Coco Chanel in 1910, it redefined fashion with enduring icons like the Chanel suit, the little black dress, and the quilted handbag pieces that continue to inspire confidence and grace. With a perfect blend of modern design and masterful craftsmanship, Chanel offers haute couture, ready-to-wear, accessories, and unforgettable fragrances like the iconic No. 5. More than a brand, Chanel is a symbol of style, empowerment, and the art of living with effortless sophistication.

“La simplicité est la clé de toute véritable élégance.”
- Coco Chanel

Chanel’s timeless luxury is reinterpreted through an architectural language of fluid precision and sculptural clarity. The spatial concept is driven by movement and continuity curved partitions, seamless pathways, and soft transitions create an environment that flows intuitively, echoing the elegance of Chanel’s design ethos. Materials are selected for their reflective and tactile qualities: glass, mirror, polished stone, and satin-finished metal interplay with light to produce shifting depths and layered transparencies. Display elements emerge organically from walls and floors, blurring the line between structure and object. The result is an interior that embodies quiet complexity where form, light, and material articulate a refined choreography of space that speaks to Chanel’s legacy of modernity, precision, and sensual restraint.

Timeless Luxury Quiet Complexity
Sculptural Clarity Minimal Ornamentation
Architectural Flow
1. Resin tiles / COVERHD / HD surface
2. Silk fabric wallpaper / Fanfara Wall / Dedar
3. Alabaster stone
4. Mirror surface / Saint Goban
5. Marble tiles / Calacatta Cremo / Antolini
6. Brushed brass / Jardan 7. Corian / Corian
Black lacquer
Mezzanine
Skin Detector
Perfume Structure expeirence
Sensitive Columns
Kinetic Interactive Wall
Lounge 5 Pole partition
No 5 Staircase
Curved Colums
Top seller Perfume Expose
Curved Walls

Each side highlights one fragrance:

Chanel No. 5: A tribute to the icon of modern perfumery, presented with subtle golden accents and a sense of history, symbolizing its enduring legacy.

Coco Mademoiselle: Framed in a fresher, feminine aesthetic, combining brass with soft pink tones to suggest youthful sophistication.

Chance Eau Tendre: Playfully staged with lighter forms and circular motifs to reflect spontaneity, joy, and the whimsical character of chance.

Gabrielle Chanel: Focused on luminosity and strength, blending warm brass tones with glowing light to represent the radiant spirit of Gabrielle.

Bleu de Chanel: A strong, modern expression, balancing the feminine line with a bold, masculine presence, adding depth to the collection.

SENSITIVE NICHES

The installation takes the form of a pentagon pavilion, where each side is dedicated to one of Chanel’s top five best-selling fragrances. The geometric symbolism of the pentagon evokes balance and timeless elegance, aligning with Chanel’s heritage of precision and refined design. Visitors approach each side of the pentagon and engage with interactive brass tubes sensory instruments designed to channel and isolate the scent. By leaning in, clients immerse themselves in each fragrance without distraction, creating a private and intimate olfactory experience.

A frame is constructed using strong metal beams, typically steel, which are welded together to form a rigid base.

Gimena Bocanegra
Chanel Retail Store
Francesca Parigi
MEZZANINE BLEU DE CHANEL NICHES
Chanel Retail Store

A circular display features a sleek pedestal at its center, with soft, ambient light glowing around it. The light gently highlights the perfume bottle, creating a subtle halo effect. The minimalist design focuses all attention on the fragrance, with the light shifting to accentuate the bottle's elegance from every angle.

FRONT / SIDE VIEW
TOP VIEW

The lighting design for the Chanel retail store creates an atmosphere of fluid elegance, inspired by the natural rhythm of waves. Architectural elements are softly grazed with flowing light that enhances textures and depth, while the kinetic wall becomes a sculptural focal point animated by gentle highlights and shadows. Products are elevated through precise accent lighting, with spotlights giving each item the focus and importance of a gallery piece. The balance of subtle washes and dramatic accents ensures both architectural sophistication and product visibility.

DIALUX

Dialux Simulation Setup

Import real luminaires (using IES/LDT photometric files).

Place wall washers/grazers 150–300mm away from the kinetic wall.

Adjust aiming angles to sculpt highlights and shadows across the actuator-driven waves.

Assign color temperature depending on brand identity:

3000K (warm retail, premium, cozy).

4000K (neutral, fresh, fashion-driven).

Dynamic RGBW for storytelling effects (brand events, kinetic moods).

The result is a lighting composition that embodies Chanel’s refined luxury: seamless, fluid, and timelessly elegant, where light guides the customer journey while celebrating the brand’s identity.

SECOND FLOOR

SECOND FLOOR

LINGERING

LIGHTING MOODBOARD

FIRST FLOOR

For this Chanel retail store lighting design, the concept revolves around creating an elegant, fluid atmosphere inspired by the waves. Architectural elements are highlighted with soft, flowing light that mimics the natural movement of water, while strategically placed spotlights draw attention to the products, giving them the importance they deserve.

The lighting is a seamless balance of sophistication and subtle drama, enhancing the luxury experience while maintaining the refined elegance that defines Chanel.

Francesca Parigi
Francesca Parigi
Francesca Parigi

SHELVES

CONCEPT MOODBOARD

Form & Structure: The shelves are streamlined, with rounded corners and continuous horizontal lines that evoke elegance and fluidity. Their proportions balance lightness with stability, avoiding visual heaviness while maintaining structural clarity.

Materials & Finish: A matte black body contrasts with metallic accents brass supports and polished steel inserts reinforcing Chanel’s aesthetic of luxury through subtle contrasts.

Lighting Integration: Recessed lighting is embedded within the shelf body, ensuring that products are illuminated from within the structure itself. This eliminates reliance on external spotlights, creating a seamless integration of display and light.

Display Logic: Each recessed slot acts as a stage, isolating the product and giving it individual importance, much like an object in a gallery vitrine. The modular repetition establishes rhythm while allowing variation in product placement.

The primary clients are affluent tourists in search of once-in-a-lifetime Arctic experiences travelers who are drawn to destinations that fuse extreme landscapes with comfort and design. Much like visitors to Iceland’s Blue Lagoon, Finland’s Arctic treehouses, or the exclusive eco-resorts of Norway, these guests seek spaces that go beyond relaxation to offer narrative and immersion. They are motivated by exclusivity, architectural distinction, and wellness rituals that cannot be replicated elsewhere, making the Cryo-Ceramic Spa a destination where design, nature, and sensory innovation converge in Greenland’s monumental landscape.

Placing the Cryo-Ceramic Spa in Nuuk, Greenland’s capital, offers the perfect balance between remoteness and accessibility. Surrounded by fjords, glaciers, and mountains, Nuuk provides the raw Arctic landscape that frames the spa’s concept of monumental frozen cubes, while also serving as Greenland’s cultural and economic hub. The city’s growing tourism infrastructure, international airport connections, and position as a gateway to Greenland’s wilderness make it ideal for attracting affluent travelers seeking both adventure and luxury. Here, the spa becomes not only a sanctuary within the Arctic but also a cultural landmark that bridges design innovation with the natural and spiritual heritage of Greenland.

Cryo-Ceramic Spa captures the essence of Greenland’s frozen landscape, where monumental ice forms rise in silence against vast horizons. The visual language is defined by crystalline clarity and geometric purity echoed in the spa’s glass cubes that stand like luminous frozen blocks. Inside these structures, warmth emerges through tactile contrasts dark walnut woods, glowing marbles, and iridescent ceramics that shimmer like frozen lakes. The imagery balances Arctic austerity with human intimacy, showing how technology transforms natural forces into comfort Pools that sense and adapt to the body, glass that filters light with the softness of snowfall, and soundscapes that evoke wind, water, and aurora skies. Together, the moodboard establishes a palette of icy serenity and crafted warmth, forming the foundation for a sensitive, monumental architecture of wellness.

The cube structure is conceived as a modular pavilion, integrating clarity of geomeiry with flexibilily of construction. The system is composed of a prefabrinated steel hame, clad in snowflake eiched transtucent panels that diffuse light and create a dialogue with the Artic landscape. The assembly process begins with the vertical steel supports anchored to a base frame, followed by intermediatethingd that stabalize the encolsure, The facadepanels then mounted, with the roof lattice completing the envelope. This moddulogic allows efficient transportation, repid installation and adaptabilty across diferent spa zones.

Materially the glass strucures juxtaposes the strength of street with lightness of glass producing a resilient yet ethreal enclosiure is both architectural and atmospheric.

Flooring

Ice cube level fountain

A modular structure of transparent glass cubes connected by fully transparent hallways. Inspired by ice, the design combines lightness and clarity with larger-scale cubes for key spaces and structural columns for stability. Features like ice cube fountains and biometric responsiveness enhance the spatial experience, merging architecture, nature, and technology.

Larger scale cube
fully transparent Hallway
Ice cube glass structures
Ceiling support reception main columns

1. Charred or black-stained metal, Black Vertical Slats, Kebony

2. Matte ivory slab, Off-white largeformat porcelain, Laminam Calce Avorio

3. American walnut veneer, Dark Walnut Veneer, Alpi Wood

4. Textured marble / quartzite, GreyBrown Stone, Antolini

5. Marble mosaic, Emperador Dark Antolini (5 tones)

6. Terrazzo slab with natural stone inlay, Terrazzo/Concrete, Agglotech

7. Walnut veneer ribbed panels, Vertical Wood Slats, Decospan

8. Ceramic or limestone-effect tile, Neutral Beige Surface, Mutina

1. Biophilic element ceramic planter, Small Planters with Greenery, Benetti Moss

2. American walnut veneer, Dark Walnut Veneer, Alpi Wood

3. Cool-toned ceramic or quartzite slab, Blue-Grey Porcelain, Cosentino Dekton

4. Terrazzo slab with natural stone inlay, Terrazzo/ Concrete, Agglotech

5. Light Beige Concrete Slab with Round Inlays, Porcelain/ceramic with circular, Mutina

6. Neutral grey-beige ceramic, Warm Grey LargeFormat Tile, Florim Ceramiche

7. Marble mosaic, Emperador Dark Antolini (5 tones)

8. High-gloss lacquer / resin sphere, Glossy Spherical Element, Flos – Glo-Ball

9. Custom Made Glass with snoflakes cube

1. Ceramic or limestone-effect tile, Neutral Beige Surface, Mutina
2. American walnut veneer, Dark Walnut Veneer, Alpi Wood
3. Polished Pink Onyx, Onyx Slabm, Margraf – Rosa Onice
4. Verde Alpi Marble or Amazonite Quartzite, Green Marble, Levantina – Amazonite Quartzite.
5. Walnut veneer ribbed panels, Vertical Wood Slats, Decospan
6. Calacatta Oro marble, White Marble Slab, Antolini
Statuario Extra
1. American walnut veneer, Dark Walnut Veneer, Alpi Wood
2. Nero Marquina marble with bold white veining, Black Marble, Salvatori
3. Walnut veneer ribbed panels, Vertical Wood Slats, Decospan
4. Polished Pink Onyx, Onyx Slabm, Margraf – Rosa Onice
5. Statuario, White Marble with Grey Veins, Antolini – Statuario Extra
6. Ceramic or limestone-effect tile, Neutral Beige Surface, Mutina
7. Custom Made Glass with snoflakes cube
1. Natural oak veneer, warm honey tone, Light Oak, Tabu – Rovere Oak Veneer
2. Travertine Classico or honed limestone, Beige Travertine, Antolini – Travertino Classico
3. Marble mosaic, Emperador Dark Antolini (5 tones)
4. Calacatta Oro marble, White Marble Slab, Antolini – Statuario Extra
5. Walnut veneer ribbed panels, Vertical Wood Slats, Decospan
6. American walnut veneer, Dark Walnut Veneer, Alpi Wood
7. Natural salt, Salzkontor, Germany, spa salt walls
Natural snow, for pool too
Travertine Classico or honed limestone, Beige Travertine, Antolini – Travertino Classico
3. Preserved reindeer moss, Green Panel, Nordgröna Pixel Moss
4. Verde Guatemala Marble, Green Marble, Antolini
5. Walnut veneer ribbed panels, Vertical Wood Slats, Decospan
6. Molded ceramic, White Sculptural Lounger, Talenti Outdoor Living – Sculptural Loungers.

Wellness Spa

This circular seating arrangement integrates architecture and furniture into a single spatia device. The modular cushioned seats are mounted on a concealed radial frame, creating a seamless semi-enclosure that fosters both conversation and contemplelation. Surrounding the seats, the marble flooring is crafted in concentric rings of contrasting tones, reinforcing the geometry wile anchoring the installation within the space.

Staircase
Chimeny
Excluisve
Antolini Marbles

The Melumé pop-up store within the spa is designed as a serene extension of the wellness journey, combining blue painted concrete, ceramic tiles, walnut wood, grey concrete, and snowflake-etched glass to evoke purity, calm, and sophistication. Curved forms, perforated walls, and soft lighting create an atmosphere of openness and flow, while integrated shelving and displays highlight the products as luminous, almost sculptural elements. More than a retail corner, the space becomes a brand sanctuary, seamlessly connecting treatment experiences with self-care rituals to continue beyond the spa.

Ceramic tiles Portinari
Blue painted concrete Walut wood Grey normal concrete Glass with snowflake etching

At the core of the pop-up lies a modular structure designed to embody purity, transparency, and scientific precision. The façade consists of perforated concrete panels, balancing solidity with permeability. Light and glimpses of movement filter through circular apertures, creating an everchanging play of shadows that reinforces the sense of purity and openness.

10.55m Length 5.70m Width 6m Height

Above, a glass canopy etched with delicate snowflake patterns floods the interior with natural light, strengthening the brand’s connection to purity and the Arctic aesthetic. Designed for mobility, the structure employs a prefabricated steel frame system with detachable cladding panels, enabling rapid assembly and disassembly. Its architectural language minimalist, modular, and luminous expresses both scientific innovation and sensory refinement. In this way, the pop-up aligns seamlessly with the identity of the skincare brand.

Glass roof snowflake structure
Perforated concrete panels
Steel frame
Concrete structure circle panels
Steel Locks uniting glass
Tempered
Walnut Wood panels Ceiling
Ceramic cover slab wall
SorroundingWalls
SAUNA CUBE
SAUNA CUBE

A private chamber for individual treatments, wrapped in dark walnut ribbed panels with soft indirect lighting. The cryoceramic wall inlays add both a tactile and cooling contrast, creating a serene environment for focused bodywork.

Combining massage and hydrotherapy, this suite features a freestanding soaking tub and ceramiclined surfaces. The sequence of water immersion followed by massage enhances circulation, recovery, and detoxification, aligning body and mind with thermal balance.

Gel-infused foam

Conductive Thermal sheet Glazed Ceramic

The Cryo-Ceramic Spa massages merge material craft with advanced technology. Massage beds, built from glazed ceramic panels with embedded thermal grids, adapt to each guest’s body through biometric sensors that warm or cool as needed. Subtle vibrations and soundscapes echoing Arctic winds or shifting ice enrich the treatment, turning massage into a multisensory ritual. Guests experience therapies like the Cryo-Ceramic Flow, which alternates hot and cold zones, or the Aurora Massage, where temperature shifts and ambient light follow the rhythm of breathing. Together, these innovations create a deeply personal and sensitive journey within Greenland’s frozen landscape.

Vegan Leather headrest LED strips

AFTER MASSAGE CARE ROOM

A modular timber deck contrasts the enclosure’s transparency, guiding circulation along the edge. Loungers and daybeds maximize sun and mountain views, while greenery and vertical gardens soften the geometric structure. Wellness Spa

At the heart of the Greenland spa, the indoor–outdoor pool forms a threshold between architecture and landscape. A crystalline steel-andglass frame, patterned with snowflake motifs, diffuses light and echoes the surrounding ice fields. natural light, and protection from the Arctic climate.

Indoor function

The system combines hydrothermal circulation, insulated glazing, and modular decking to balance water immersion, natural light, and protection from the Arctic climate.

Steel Structural frame
Glass Glaze
Deck module structure
Thermal Glass enhanced by sun Steel support
“Design is so simple. That’s why it’s so complicated”
- PAUL RAND

Turn static files into dynamic content formats.

Create a flipbook
PORTFOLIO_Mariana_High by marianaforero - Issuu