Architecture Portfolio MariaDiGhionno

Page 1


Master Diploma Project

Waterfront path

estuario as a square, salina as a threshold

Currently completing my Master’s degree in Architecture at USI – with graduation set for June 21, 2025 – I am working on my diploma project focused on the Lisbon metropolitan area. The project explores strategies for reimagining and reconnecting the fragmented spaces along the Tagus estuary, particularly the underutilized and historically industrial south bank. By envisioning new connections between twenty key sites and integrating them into a broader metropolitan vision, the work responds to contemporary challenges of mobility, territorial cohesion, and ecological regeneration within a rapidly evolving polycentric urban model.

Address: Viale Settembrini n.4, Riccione (RN)

Email:

Mobile Phone: Nationality

City of Birth:

Date of Birth:

maria.dighionno@gmail.com

+39 331 751 6836

Italian Rimini (IT)

10.02.2000

About Me

Throughout my career I have worked closely with people, developing strong teamwork skills and contributing to collaborative, dynamic environments while staying focused on shared goals.

I am a passionate person driven by challenges, with a social and creative mindset shaped by both personal and professional experiences. I easily adapt to new settings and love exploring new projects, constantly learning and drawing inspiration from my interests beyond architecture—such as photography, reading, art history, and traveling. These passions enrich my perspective and inform my design approach.

Experiences Education Programs

Luglio - Settembre 2024

Costa Edutainment - Aquafan, Riccione

Settembre 2021- Luglio 2022

Office Winhov B.V., Amsterdam

Giugno - Settembre 2019

Hotel Roma, Riccione

Giugno - Ottobre 2019

D’ATA s.r.l. - Amarcord, Riccione

Giugno - Settembre 2018

Hotel Dan s.n.c., Riccione

Giugno - Settembre 2017

Hotel Exlusive, Riccione

September 2023 - July 2025

USI- Academy of architecture, Mendrisio

Master Graduation

September 2019 - June 2023

USI- Academy of architecture, Mendrisio

Bachelor Degree

September 2014 - June 2019

Liceo Artistico Mengaroni, Pesaro

Graduated in high school

Italian English Language

Rhino 2D/3D

AutoCad

ArchiCad 2D

Twinmotion

V-Ray

SketchUp

Photoshop

Illustrator

InDesign

Premiere

Lightroom

Normative Housing

LeMura
Centro di Danza

RRR ALBERGO CONTINUO

The project starts with the idea of analysing the Rimini Riviera looking towards the next 2050.

The theme analysed is tourism and hotel facilities. With the least possible intervention.

A new concept of tourism is developed, linked to agreements through the liomitrophic hotel structures, to invest in the opening of a new nucleus, Villa Manzi, which offers a unique experience of quality linked to wellness paths for the mind and body. Linking up with two other facilities that offer secondary activities, public and private to the customer, which enrich the experience itself.

Through agreements, a stable economy is maintained for both the existing hotels and the new facilities that are being developed. The main concepts are well-being, quality and investment.

Atelier Muck Petzet
Via Paolo Toscanelli 29, Rimini

VILLA MANZI

It’s a refurbished villa that wants to represent the historical Riviera holiday resort. It’s the headquarter of the Albergo continuo. Villa Manzi offers a different perspective of tourism related to the physical and mental health of the individual. From this new perspective, the inside spaces create specific enviroments: from a louder entrance to a meditative core; from public enviroment to more private ones.

Ground Floor
Rooms
Basement spa

LA PARRUCCHIERA

La Parrucchiera is the reuse of an abandoned building, converted into a restaurant on the ground floor with a public ortus used by the chefs, where they experimet different cusine. On the upper floor there is a meeting centre, open both to Albergo Continuo’s clients and external ones. All the facilities are the expansion for the needs of Villa Manzi and Albergo Continuo.

TEA HOUSE

The Tea House is a space that is open to both Albergo Continuo’s guests and the public. The space used to be a bicycle deposit that we turn into a cozy tea house and atelier space. In order to create a filter between the crowded outside and the private inside, we design a double glass facade filled with flowers and plants connected to the tea philosophy

Ground Floor
Basement spa maquette

HOW TO RECREATE A LOST LIMIT?

The project aims to create a public library that enhances the historical ruins of the site, harmoniously connecting Lungotevere and Via Giulia, which are located on two different levels. The building’s boundaries are designed to improve accessibility. It is a four-story structure: the underground level houses an auditorium and a museum in direct contact with the ruins, while the public level, at the square, includes the library. The upper floors contain archives and a restaurant with views of the Tiber River. The interior spaces alternate between filled and empty areas, inspired by the layout of ancient Roman ruins, creating a sense of spatial fragmentation. The main concept was to recreate the form of the ruins by emphasizing voids and empty spaces. The use of materials, particularly bricks, links the building to Roman materiality

Atelier Aires Mateus Parcheggio Via Giulia, Roma
LungoTevere
Via Giulia
Second floor - archive
Third Floor - restaurant and study rooms

NORMATIVE HOUSING STOCKHOLM

Erstagatan 3F, 116 28 Stockholm, Svezia

The project explores the relationship between architecture and the urban context in a site in Stockholm, where light, topography, and existing buildings shape the design.

The study of the program guided the entire process, turning site challenges into spatial opportunities. The building follows the natural slope and surrounding structures, creating dynamic forms that orient toward the light.

The topography plays a key role in shaping a natural pathway that connects the street to the rear of the site, integrating seamlessly with the surroundings.

Designed for children, it combines, a library, and social spaces, reinforcing the idea of a “protected playground.”

The apartments follow a radial layout to maximize natural light and connection with the outdoors, renforsed by reflective materials and moving surfaces enhance the sense of dynamism, ensuring a smooth interaction between architecture and public space.

LE MURA

The experience of stone along the Spanish walls was the topic. Around this concept and the chosen site there was a study of the location. Walls hidden by time were brought to the surface, restoring them to their primitive monumentality. A free coworking space, managed by a small ice-cream parlour, has been designed using as load-bearing elements, rough stone laths typical of Lombardy, Ceppo di Grè. Everything is protected by a concrete lamellar structure that acts as a filter for the zenithal light. Wanting to create a sort of pavilion. Unites with the park by developing on platforms that rhythm the interior spaces, becoming a filter between the street and the wall itself.

Atelier Henri COLLOMB
Via Emilio Caldara, Milano

CENTRO DI DANZA RUI HORTA

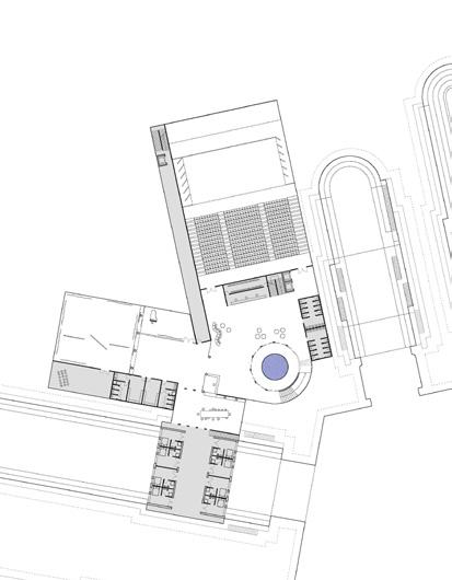
The main topic of the project was to build an underground dance centre reusing and transforming the dry-docks in Lisbon’s waterfront. The idea was tomodifying as little as possible the site, using only the two docks as supports for a restaurant and dancer’s accomodations. From above ,the only thing that can be seen are two cuts in the ground and a hole in the centre, which brings light into the project. The hole also becomes a pathway that is meant to invite one to follow a circular movement. It leads all the way to the hidden theatre, the blue one, undergound. The circulation give acess to the dance centre itself, the traditional theatre also.

Atelier João CARRILHO da Graça Lisbon, Portugal

Turn static files into dynamic content formats.

Create a flipbook
Issuu converts static files into: digital portfolios, online yearbooks, online catalogs, digital photo albums and more. Sign up and create your flipbook.
Architecture Portfolio MariaDiGhionno by maria di ghionno - Issuu