Portafolio Diseño de la Vivienda

Page 1

Facultad de Ingeniería y Arquitectura Carrera de Arquitectura Área de Urbanismo y Medio Ambiente Ciclo 2022-2 924 Profesor: Enrique Gonzalo Santillana Ciriani PORTAFOLIO DISEÑO DE LA VIVIENDA MARÍA CRISTINA FIGUEROA CARDOSO CÓDIGO: 20182605

UNIVERSIDAD DE LIMA Facultad de Ingeniería y Arquitectura

ALUMNA María Cristina Figueroa Cardoso 20182605

CURSO Diseño de la Vivienda

DOCENTE Enrique Gonzalo Santillana Ciriani

CICLO 2022-2

DISEÑO DE LA VIVIENDA

PORTAFOLIO 2022-2
SECCIÓN 924

01

EC 1.1

02

03

DISEÑO DE LA VIVIENDA

ÍNDICE DE CONTENIDO

RESUMEN ESCRITO DE UN CAPÍTULO BIBLIOGRÁFICO CG1, CG2, CG3, CG4, CG5, CG6, CG7, CG8, CG9, CG10, CG11 p. 02-05

EC 1.2

EXPOSICIÓN AUDIOVISUAL DE UN CAPÍTULO BIBLIOGRÁFICO CG1, CG2, CG3, CG4, CG5, CG6, CG7, CG8, CG9, CG10, CG11 p. 06-23

EC 2.1: TRABAJO FINAL

TRABAJO DE INVESTIGACIÓN Y ANÁLISIS DE UN PROYECTO DE VIVIENDA CONSTRUIDO CG1, CG2, CG3, CG4, CG5, CG6, CG7, CG8, CG9, CG10, CG11 p. 24-33

EC 2.2: TRABAJO FINAL

PORTAFOLIO DEL CURSO CG1, CG2, CG3, CG4, CG5, CG6, CG7, CG8, CG9, CG10, CG11 04

ANEXO: MOODBOARD VISITAS DE CAMPO p. 34-35 A

REFLEXIÓN p. 36-37 CF

CONCLUSIONES FINALES

CURRÍCULUM VITAE p. 38-39 CV

INFORMACIÓN DEL CURSO p. 40-41 IC

CRITERIOS RIBA

CG-1

Habilidad para crear diseños arquitectonicos que satisfagan requerimien tos técnicos y estéticos.

Conocimiento adecuado de las historias y las teorías de arquitectura y las relacionadas al arte, la tecnología y las ciencias humanas. CG-2

Conocociento de las bellas artes, como una influencia sobre la calidad del diseño arquitectónico. CG-3

Conocimiento adecuado del diseño urbano, planeamiento y las habilida des relacionadas al proceso de planteamiento. CG-4

CG-5

CG-6

Compresión de la relación entre las personas y las edificaciones, y las edi ficaciones y su medio ambiente, y la necesidad de relacionar las coons trucciones entre estas, y las necesidades humAnas y su escala.

Comprensión de la profesión de arquitectura y el rol de la arquitectura en la sociedad, en particular en la preparación de proyectos que tengan en cuenta los factores sociales.

CG-7

CG-8

Comprensión de los métodos de investigación y preparación de un suma rio para un proyecto de diseño.

Compresión de diseño estructural y los problemas de construcción y de ingeniería asociados con el diseño de edificaciones.

CG-9

CG-10

Adecuado conocimiento de los problemas físicos y tecnológicos, y la fun ció´n de las construcciones para dotarles de condiciones internas de con fort y protección en contra del clima en el marco del desarrollo sosteni ble.

Habilidades de diseño necesarias para cumplir los requerimientos de los usuarios dentro de las restricciones impuestas por factores de costos y regulaciones.

CG-11

Conocimiento adecuado de las industrias, organizaciones, regulaciones y procedimientos involucradas en la traducción de conceptos de diseño en edificios y planes integrados dentro de un plan general.

RESUMEN ESCRITO DE UN CAPÍTULO BIBLIOGRÁFICO EC 1.1 CG1 / CG2 / CG3 / CG4 / CG5 / CG6 / CG7 / CG8 / CG9 / CG10 / CG11 01

ENUNCIADO

El trabajo consistió en leer un capítulo, en parejas, del libro La Casa en la Arqui tectura Moderna. A partir de eso, se debía realizar un resumen a manera de monografía donde se detalle de qué trató el capítulo. La entrega fue de manera individual.

REFLEXIÓN

Luego de haber leído el capítulo, se pudo entender cómo la vivienda fue cambiando, en Alemania, a lo largo de los años. Asimismo, como esta logra solucionar diversos problemas presenta dos en la época. Como respuesta a estos es que se logra iniciar las Exposiciones de Werkbund en donde se proponen diversas alternativas de solución que buscan mostrar un concepto innovador.

VALORACIÓN PERSONAL

DIFICULTAD DEL TEMA

TIEMPO UTILIZADO EN TEORÍA TIEMPO UTILIZADO EN PRÁCTICA

MOTIVACIÓN FRENTE AL TEMA

1.1: RESUMEN ESCRITO DE UN CAPÍTULO BIBLIOGRÁFICO

LA CASA EN LA ARQUITECTURA MODERNA

CAPÍTULO 10: EXPOSICIONES DEL WERKBUND

El capítulo empieza resaltando la búsqueda de nuevos principios para una nueva sociedad. A partir de esto, el Werkbund Alemán muestra, a través de exposiciones, por parte de sus mejores arquitectos europeos, distintos edificios que muestran soluciones para la vivienda moderna.

En 1901, Künstlerkolonie Mathildenhöhe, ubicado en Darmstadt, fue la primera exposición europea que se realizó en la moder nidad. Esta estaba compuesta por un conjunto de viviendas permanentes. Fue construída por iniciativa del Gran Duque Ernest Ludwing de Hesse-Darmstadt y logró convertirse en un centro de artes plásticas. Las viviendas presentadas buscaban reflejar no solo una nueva arquitectura, sino que también un nuevo estilo de vida. Se impuso, a través del Jugendstil, la individualidad de estas donde se mostraban como únicas para gente exclusiva y no como si fuesen tipos. Cinco años después, el Conjunto Residencial de Hagen, promovido por el mecenas Kart Ernest Osthaus, figura importante en la organización del Deutsche Werkbund, acompañado de Henry van de Velde, Behrens y Mathieu Lauwerik, buscan reflejar las aspiraciones de la ciudad jardín y del arte moderno. Estas eran villas unifamiliares ocupadas por artistas. Asimismo, este modelo ofrecía un crecimiento periférico de la ciudad industrial.

En 1926, el ayuntamiento de Stuttgart invitó al Werkbund para realizar la construcción de un barrio que responda a los proble mas de la vivienda. Un año más tarde, se realizó la exposición Weissenhofsiedlung Stuttgart. La colonia buscaba implementar nuevas técnicas, materiales y conceptos novedosos. Mies van der Rohe, acompañado de Döcker, compusieron la colonia en dos series de viviendas alineadas considerando la pendiente de la colina y un bloque como elemento principal de la loma. El proyecto consistía en 21 edificios de viviendas unifamiliares cuyos interiores domésticos fueron diseñados por integrantes del Werkbund suizo y de la Bauhaus. A pesar de que se había proyectado que en estas viviendas habiten obreros, la alta burguesía y los intelectuales de Stuttgart decidieron ocuparlas. Por otro lado, J.J.P. Oud, diseñó cinco viviendas de dos plantas en hileras donde las casas poseen dos fachadas y un patio privado. La zona social y de servicio se encuentran en la primera planta y los dormitorios en el segundo nivel. La construcción es, principalmente, de hormigón y posee acabados en yeso blanco para su interior. Oud contó con el apoyo de Erna Meyer quien aportó con su visión de la cocina como centro de la vida doméstica.

Los edificios más emblemáticos de la colonia Weisenhof fueron los proyectados por Le Corbusier y Pierre Jeanneret donde Roth fue quien las dirigió. En el edificio tipo Citrohan, se aplicaron los cinco puntos. Las hileras están separadas cada 5 metros, en la primera planta se ubica la zona social y un dormitorio de servicio y en el segundo nivel se encuentra la suite principal acompañada de otros dormitorios más. Por otro lado, las Casas Adaptables, se caracterizan por desarrollar la planta libre y flexibilidad. El nivel principal está elevado por pilotes y, en su interior, se encuentra una gran estancia que, por las noches, se convierte en dormitorios gracias a los tabiques correderos y el mobiliario versátil que posee.

En 1928, se realizó la exposición Werkbundsiedlung Brno donde esta colonia buscaba incluirse en la Exposición de Cultura Contemporánea por lo que se planificó tomando como referencia la de Stuttgart. Fue diseñada por nueve arquitectos locales y consta de 16 viviendas unifamiliares aisladas o en grupos de dos o tres unidades, la distribución se da a partir de esquemas verticales donde se separan las zonas diurnas de las nocturnas. En este proyecto se pusieron en práctica novedosas técnicas constructivas. Paralelamente, Fuchs y Syriste propusieron alternativas más económicas en la exposición donde se trabaja la vivienda en dos alturas sobre una planta baja de servicios y una casa aislada elevada sobre un semisótano donde el programa se distribuye en una planta en “L”.

Un año más tarde, se realiza la exposición Werkbundsiedlung Breslau. Se dividió en dos partes con dos tipos edificatorios cada uno, la zona sur se conformaba por edificios de poca altura para vivienda y otros para departamentos; por otro lado, en la zona norte se ubican casas unifamiliares y un edificio para solteros. La propuesta de incluir una guardería fue algo que no se había considerado en Stuttgart. Kollektivhaus, construída por Rading, propone un edificio de 3 alturas de vivienda, posee una planta rectangular y dos volume nes unidos por una galería, cada volumen alberga 4 viviendas por planta. Las 24 viviendas de 55 m2, poseían una distribución diferente y ventanas rectangulares y circulares que componen la fachada. La residencia de solteros fue construída por Scharoun y proponía una forma en “S” en relación al paisaje. A partir de un vestíbulo central, al norte se ordenan las residencias para parejas jóvenes y al sur para solteros.

04
EC
DISEÑO DE LA VIVIENDA SEC. 924

Alrededor de los años 30 y 32, un grupo de 7 arquitectos de renombre efectuó en Zurich el conjunto de viviendas conocido como Neubühl en la exposición de Werkbundsiedlung. En el conjunto se edificaron un total de 194 viviendas, la cual tiene once modelos de vivienda ubicados en bloques paralelos de dos sectores divididos por una calle interna. Asimismo, estas viviendas se caracterizan por tener un área de alrededor de 90m2 y un máximo de seis habitaciones. Además, existen tipologías de vivienda de tres a dos niveles de piso.

Durante los años 1929 hasta 1930, se ejecutó un barrio de 120 viviendas en la exposición de viviendas en Basel patentado como Siedlun Eglise. Estas edificaciones están dirigidas a grupos sociales de bajos ingresos económicos, las cuales están distribuidas en hileras de dos pisos. La distribución típica de la planta baja está conformada por la sala de estar y en zona de servicios. En relación a la planta alta, está compuesta por el jardín y tres dormitorios. También, se específico el bloque de vivienda 8 y 14 ejecutados por diversos arquitectos y cada uno de estos tiene un aproximado de seis viviendas.

En 1931, la exposición Deutsche Bauausstellung ubicada en Berlin, fue apoyada económicamente por un capital privado. Se construyeron una serie de casas a modo de prueba. En primer lugar, la casa realizada por Lily Reich y Ludwing Mies Van der Rohe surge una disyuntiva por la similitud entre el pabellón de Barcelona y la vivienda planteada, pues por su diseño fue consi derada como una adaptación de vivienda. En segundo lugar, la casa fue ejecutada por Lily Reich. Además, otras edificaciones llevadas a cabo Haesler, Marcel Breuer.

En 1932, la exposición Werkbundsiedlung que tomó lugar en Praga, fue apoyada económicamente por un capital privado. Se construyeron una serie de casas a modo de prueba. En primer lugar, Casa Mjojzis, a cargo de Josef Gocar, se realizó en estilo cubismo checo y mantiene una planta de forma cuadrada acompañada de una distribución tradicional. En segundo lugar, la casa taller Sutnar, ejecutado por Oldrich Stary, el diseño de la planta es rectangular y en forma de L. Además, la edificación está elevada sobre pilotes de manera que mantiene el concepto de planta libre. En tercer lugar, la casa Herain, realizada por Ladislav Zak, mantiene un diseño rectangular y presenta grandes ventanales en su fachada sur. Finalmente, Casa Belehradek, es una de las edificaciones la última fase manierista a cargo de Frantisek Kerhart en 1936, marca la horizontalidad del volumen con las franjas de ventanas y su acceso se encuentra orientado en la fachada sur.

Por otro lado, en ese mismo año, el austriaco Josef Frank planificó una ciudad jardín ubicada en Viena. Esto permitió que la arquitectura moderna se observa como un lenguaje de manera que pueda ser empleado por un arquitecto. De acuerdo a ello, destacan dos viviendas de dos reconocidos arquitectos. En primer lugar, la casa del arquitecto Richard Neutra llevó a cabo una edificación de solo un nivel, la cual mantiene forma rectangular y su circulación con acceso exterior. En segundo lugar, la vivien da, de Andre Lurcat, se caracteriza por 4 volúmenes semicilindricos que destacan en el proyecto y su circulación es interna.

05 DISEÑO DE LA VIVIENDA 2022-2
EXPOSICIÓN AUDIOVISUAL DE UN CAPÍTULO BIBLIOGRÁFICO EC 1.2 CG1 / CG2 / CG3 / CG4 / CG5 / CG6 / CG7 / CG8 / CG9 / CG10 / CG11 02

ENUNCIADO

Tomando como base el trabajo anterior, el enunciado de este ejercicio fue prepa rar una exposición audiovisual del capí tulo asignado a cada pareja.

REFLEXIÓN

Al desarrollar las láminas para la exposi ción y durante esta, se pudieron rescatar los acontecimientos más importantes que sucedieron en Alemania en aquel entonces; por otro lado, se lograron expresar a manera de línea de tiempo para generar un hilo durante la exposi ción. Considero que esta fue la mejor manera de consolidar lo aprendido en el capítulo y complementarlo con los demás.

VALORACIÓN PERSONAL TIEMPO UTILIZADO EN TEORÍA TIEMPO UTILIZADO EN PRÁCTICA

DIFICULTAD DEL TEMA

MOTIVACIÓN FRENTE AL TEMA

EC 1.2: EXPOSICIÓN AUDIOVISUAL DE UN CAPÍTULO BIBLIOGRÁFICO

EXPOSICIONES DEL WERKBUND

KÜNSTLERKOLONIE MATHILDENHÖHE EN DARMSTADT (1901)

Primera exposición europea de la modernidad compuesta por un conjunto de viviendas permanentes

- Las casas buscaban reflejar una nueva arquitectura y un nuevo estilo de vida

- El Jugendstil impuso individualidad en las propuestas donde estas se mostraban como únicas para gente exclusiva y no como tipos

- La casa Behrens se destaca entre las demás por reflejar como si fuese hecha por un solo autor, es una “única forma”

08
DISEÑO DE LA VIVIENDA SEC. 924

CONJUNTO RESIDENCIAL DE HAGEN (1906)

Promovido por el mecenas Kart Ernest Osthaus, quien fue una figura importante en la organización del Deutsche Werkbund. En este proyecto participaron Henry van de Velde, Behrens y Mathieu Lauwerik.

- Buscaba reflejar las aspiraciones de la ciudad jardín y del arte moderno

- Villas unifamiliares ocupadas por artistas

- Este modelo ofrecía un crecimiento periférico de la ciudad indus trial

- La experiencia fue considerada como un modelo

09
DISEÑO DE LA VIVIENDA 2022-2

EC 1.2: EXPOSICIÓN AUDIOVISUAL DE UN CAPÍTULO BIBLIOGRÁFICO EXPOSICIONES DEL WERKBUND

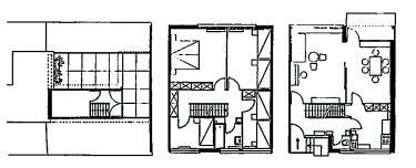
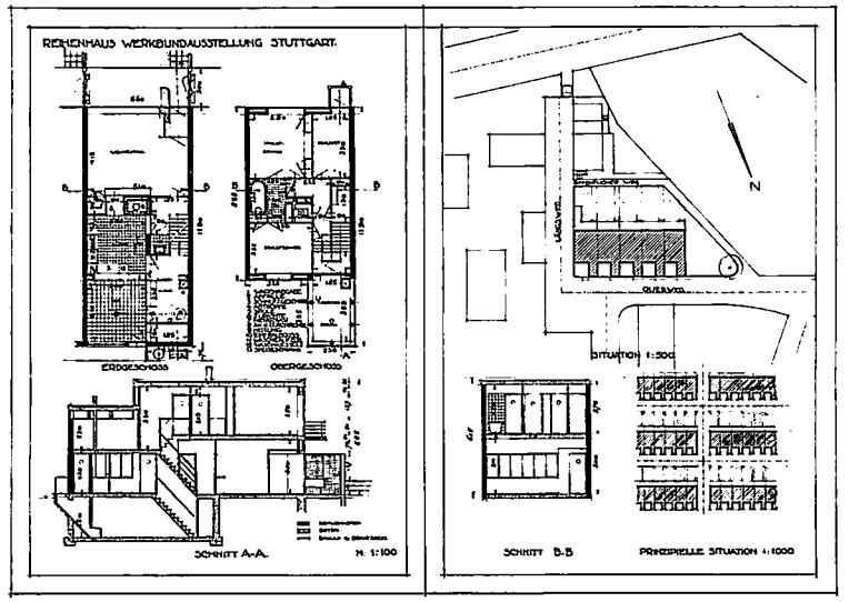
WEISSENHOFSIEDLUNG STUTTGART (1927)

En 1926, el ayuntamiento Stuttgart invitó al Werkbund para construir un barrio que responda a problemas sobre la vivien da. Se pretendía hacer una colonia donde se implementarían nuevas técnicas, materiales y conceptos novedosos. Mies y Döcker compusieron la colonia con dos series de viviendas alineadas considerando la pendiente de la colina y un bloque como elemento principal en la loma.

- El proyecto consistía en 21 edificios de vivienda unifamiliar

- Integrantes del Werkbund suizo y de la Bauhaus diseñaron los interiores domésticos

- El costo del proyecto no resultó tan económica como se esperaba

- Las casas estaban proyectadas para que habiten obreros, pero la alta burguesía y la intelectualidad de Stuttgart las ocuparon

10
DISEÑO DE LA VIVIENDA SEC. 924

J.J.P. Oud diseñó 5 viviendas de dos plantas en hileras donde las casas poseen dos fachadas y un patio privado. Oud contó con el apoyo de Erna Meyer quien aportó con su visión de la cocina como el centro de la vida doméstica.

- Los dormitorios se encuentran en la planta alta y el área social en el primer piso

- La construcción es en hormigón y los interiores tienen acabados en yeso blanco

- Estas casas poseen varios mecanismos

11
J.J.P. OUD: “CASAS EN HILERA EN LA COLONIA”
DISEÑO DE LA VIVIENDA 2022-2

CORBUSIER Y PIERRE JEANNERET: TIPO CITROHAN

12
EXPOSICIÓN AUDIOVISUAL DE UN CAPÍTULO BIBLIOGRÁFICO
DISEÑO DE LA VIVIENDA SEC. 924
LE
En este tipo se aplicaron ¨los 5 puntos”. Las hileras están separadas cada 5 metros. En la primera planta se ubica la zona social y un dormitorio de servicio. En el segundo nivel, se encuentra la suite principal y otros dormitorios más EC 1.2:
EXPOSICIONES DEL WERKBUND

LE CORBUSIER Y PIERRE JEANNERET: CASAS ADAPTABLES

En el proyecto, el nivel principal se encuentra elevado sobre pilotes y sus espacios flexibles se relacionan, directamente, con los espacios fijos dentro de la vivienda.

- Planta libre y flexibilidad de espacios

- En su interior posee una gran estancia que, por las noches, se convierte en dormitorios gracias a los tabiques correderos que posee y mobiliario ver sátil

13
DISEÑO DE LA VIVIENDA 2022-2

EC 1.2: EXPOSICIÓN AUDIOVISUAL DE UN CAPÍTULO BIBLIOGRÁFICO

EXPOSICIONES DEL WERKBUND

WERKBUNDSIEDLUNG BRNO (1928)

Esta colonia, para incluirse dentro de la Exposición de Cultura Contemporánea, se planificó tomando como referencia a la de Stuttgart. Fue construida por 9 arquitectos locales.

- Consta de 16 viviendas unifamiliares , aisladas o en grupos de dos o tres unidades.

- Novedosas técnicas constructivas

- La distribución se da a partir de esquemas verticales donde se separan las zonas diurnas y noc turnas

- La solución del edificio es cúbica, con ventanas alargadas y terrazas transitables

14
DISEÑO DE LA VIVIENDA SEC. 924

WERKBUNDSIEDLUNG BRESLAU (1929)

La colonia construida en Breslavia fue construida por arquitectos locales. El objetivo del grupo Silesia era que Breslavia fuera tan conocida como fue la exposición en Stuttgart. Se dividió en dos partes con dos tipos edificatorios cada uno.

- Zona Sur: conformado por edificios de poca altura para vivienda y otros para departamentos

- Zona Norte: conformado por casas unifamiliares y un edificio para solteros

- Se propuso una guardería , lo cual fue algo innovador que no se había considerado en Stuttgart

- El bloque de viviendas de Heim y Kempter propone distribuciones distintas en cada planta

15
DISEÑO DE LA VIVIENDA 2022-2

EC 1.2: EXPOSICIÓN AUDIOVISUAL DE UN CAPÍTULO BIBLIOGRÁFICO

EXPOSICIONES DEL WERKBUND

WERKBUNDSIEDLUNG ZURICH - NEUBUHL

TIPO PQ

Año: 1929-1932 Arquitectos involucrados: Paul Artaria / Schmidt / Max Haefeli / Carl Hubacher / Rudolf Steiger / Werner Moser / Emil Roth Es un de conjunto de 194 viviendas con 11 modelos de vivienda destinado al alojamiento de obreros

Características

- Metraje: 30 - 90 m2

- N° de habitaciones: 1 - 6

- Dos tipos de agrupación:

1. Tipo PQ _ 3 plantas: uno o dos crujías perpendiculares.

2. Dos plantas en hilera modelos:

2.1. Modelo A : dos crujías

2.2. Modelo D: escalera junto a medianera

16
MODELO A
DISEÑO DE LA VIVIENDA SEC. 924

Exposición de edificios de vivienda enfocado a grupos socia les de bajos ingresos. Se le conoce como Siedlun Eglisee

Características

- Barrio de 120 viviendas

- Planta baja: sala de estar / servicios

- Planta alta: 3 dormitorios / cobertizo / jardín

BLOQUE 14

8

17
WERKBUNDSIEDLUNG BASEL_1920-1930
PLANTA BAJA Y ALTA BLOQUE
DISEÑO DE LA VIVIENDA 2022-2

EC 1.2: EXPOSICIÓN AUDIOVISUAL DE UN CAPÍTULO BIBLIOGRÁFICO EXPOSICIONES DEL WERKBUND

DEUTSCHE BAUASSTELLUNG - BERLIN

Características

- Uso: vivienda obrera / burguesía intelec tual

- Planta libre como principio estructural:

- Carece de puertas -excepto la cocina.

LILY REICH

Características

- Distribución binu clear

- Planta en L

- Pareja sin hijos

- Dos crujias

DEPORTISTA

Características

- Superficie cuadrada

- Volumen cerrado = planta libre

- Espacios integrados en la sala de estar

18
DISEÑO DE LA VIVIENDA SEC. 924
LUDWING MIES VAN DER ROHE MARCEL BREUER - CASA PARA UN

HUGO HARING

Características

- Planta rectangular - Presenta nueve tramos de carpinte ria

- Medidas: 11,11 x 6,60 m - Diversas composi ciones familiares

OTTO HAESLER

Características

- Edificio en dos plantas sobre pilotis - Galería elevada

BOARDINGHAUS - CASA DE HUÉSPEDES

Características

- 3 plantas - 5 crujias - Departamento para soltero y pareja sin hijos

19 DISEÑO DE LA VIVIENDA 2022-2

EC 1.2: EXPOSICIÓN AUDIOVISUAL DE UN CAPÍTULO BIBLIOGRÁFICO

EXPOSICIONES DEL WERKBUND

WERKBUNDSIEDLUNG PRAGA - 1932

JOSEF GOCAR - CASA MJOJZIS

Esta edificacion fue realziada en Checolosvaquia que forma parte del cubismo checo, estilo que casi se convierte en “estilo nacional”

Características

- Distribución tradicio nal

- Planta casi cuadrada

- Acceso conecta a un vestíbulo

EL arquitecto fue director director de la revista Architecktura y formo parte de la generacion purista

Características

- Planta rectangular

- Apoyada sobre pilotes

- Forma de L

- Acceso fachada norte

- Tabique separa el salón del taller

20
DISEÑO DE LA VIVIENDA SEC. 924
OLDRICH STARY - CASA TALLER SUTNAR

LADISLAV ZAK - CASA HERAIN

Esta edificacion fue realziada en Checolosvaquia que forma parte del cubismo checo, estilo que casi se convierte en “estilo nacional”

Características

- Planta rectangular - Área: 130 m2

- Ventanales - fachada sur - Se llevó a cabo la cons trucción de 10 casas como la última fase manierista

Esta construcción forma de esta ultima fase manerista

Características

- Volumen horizontal por las franjas de ventanas - Acceso - fachada sur - Losa volada conecta a un vestíbulo interior

21 DISEÑO DE LA VIVIENDA 2022-2
FRANTISEK KERHART - CASA BELENHRADEK

WERKBUNDSIEDLUNG WEISSENHOF DE STUTTGART - 1932

Características

22
DISEÑO DE LA VIVIENDA SEC. 924
EC 1.2: EXPOSICIÓN AUDIOVISUAL DE UN CAPÍTULO BIBLIOGRÁFICO EXPOSICIONES DEL WERKBUND
-
-
-
-
-
-
1.
2.
3.
4.
5.
Una sola altura
Planta rectangular
Escalera con acceso exterior
Pequeño voladizo sobre la entrada
Cubierta plana ´
Composicion:
Sala de estar central
Ventanal (fachada sur)
Cocina (oeste)
Dormitorios
Baño (este)
RICHARD NEUTRA - CASA NEUTRA

ANDRE LURCAT

Características

- 4 semicilindros de cajas de escale ra.

- Ventanales horizontales ocupan fachada del jardín - Escalera interior

- Accesos centrados en las paredes divisorias junto a cada escalera - Plantas bajas con superficie libre

Características

- Forma en L - Galería intermedia elevada - Escalera se dirige a los dormitorios de la planta alta

23 DISEÑO DE LA VIVIENDA 2022-2
FRANTISEK KERHART - CASA BELENHRADEK
TRABAJO DE INVESTIGACIÓN Y ANÁLISIS DE UN PROYECTO DE VIVIENDA CONSTRUIDO EC 2.1: TRABAJO FINAL CG1 / CG2 / CG3 / CG4 / CG5 / CG6 / CG7 / CG8 / CG9 / CG10 / CG11 03

El trabajo consistió en realizar un análi sis, de manera individual, sobre un edifi cio de vivienda. En este, se tuvieron que analizar diferentes criterios, desde el autor hasta la composición del mismo.

REFLEXIÓN

Considero que este trabajo permitió ahondar con mayor profundidad en el tema del diseño de la vivienda ya que se tuvo que realizar un análisis previo en donde se compararon diferentes proyec tos y se escogió aquel que podía ser mejor analizado en el trabajo. Por otro lado, se pudieron aprender de las estra tegias utilizadas por el arquitecto y el porqué de sus decisiones.

VALORACIÓN PERSONAL TIEMPO UTILIZADO EN TEORÍA TIEMPO UTILIZADO EN PRÁCTICA
TEMA
ENUNCIADO DIFICULTAD DEL TEMA
MOTIVACIÓN FRENTE AL
DISEÑO DE LA VIVIENDA SEC. 924

UNIDAD HABITACIONAL DE MARSELLA

DISEÑO DE LA VIVIENDA 2022-2
LE CORBUSIER

EC 2.1: TRABAJO FINAL

FICHA TÉCNICA

DESCRIPCIÓN DEL PROYECTO

Luego de la Segunda Guerra Mundial, esta trajo la necesidad de vivienda donde la Unidad Habitacional Marsella, también conocida como Cité Radieuse de Marsella, se construyó en 1947, fue el primer proyecto a gran escala ubicado en Francia. Esta fue proyectada para personas que habían sido desplazadas después de los bombardeos ocurridos en este país. Es importante mencionar que este proyecto dio inicio a diversos proyectos de viviendas desarrollados por Le Corbusier. El proyecto fue terminado en 1952, la Unité d'Ha bitation fue el primero de una nueva serie de proyectos de vivienda de Le Corbusier, que se centró en la vida comunal para todos sus habitantes, un lugar para hacer las compras, jugar y vivir, una "ciudad jardín vertical".

LOCALIZACIÓN

Este proyecto se encuentra situado en boule vard Michelet 280 en Marsella, Francia.

CONTEXTO Y MARCO REFERENCIAL

1944

El Ministerio de la Reconstrucción y la Urba nística de Francia hizo frente ante las problemáticas por la construcción por la inactividad y el crecimiento descontrolado de la ciudad.

Clauduis Petit lideró bajo dos conceptos: la planificación a largo plazo y las intervencio nes que atraían el interés público. Dentro de este último grupo, se encuentran los proyectos de Perret para El Havre o Amiens, los cuales resuelven la construcción de un gran número de viviendas en la periferia mediante elementos estandarizables, pero no solucionan las diferentes escalas.

1945

El ministro Raoul Dauntry fue quien puso a cargo a Le Corbusier en la Unidad Habitacional de Marsella, luego de un periodo sin actividades y reflexión sobre su carrera, donde considero aspectos entorno a los problemas del urbanismo y los nuevos modos de habitar. Debida su inquietud respecto a las nuevas formas de vida, logra exigir como condición la derogación de toda normativa que se encontraba vigen te sobre la construcción de viviendas al aceptar el proyecto.

28
DISEÑO DE LA VIVIENDA SEC. 924

BIOGRAFÍA DEL AUTOR

Le Corbusier, nació el 6 de octubre de 1887 y falleció el 27 de agosto de 1965, en La Chaux-de-Fond, Suiza. Es considerado uno de los más grandes exponentes de la arquitectura moderna por su influencia durante el siglo XX.

1900

Le Corbusier empezó su aprendizaje en la escuela La Chaux-de-Fonds donde apren dió sobre la pintura, tiempo después, se orientó hacia la arquitectura.

1905

El primer edificio que diseñó fue una casa unifamiliar para uno de sus compañeros en la escuela de arte, durante este año.

1914

En París, se involucró entre el mundo del arte en el París de Picasso y Berman y la técnica del hormigón. A partir de esto, en 1914, plantea el Esquema Dominó. Este llega a ser de gran importancia ya que plantea los 5 principios de la arquitectura moderna, los que llegarían a ser de gran impacto, estos son: los pilotis, las cubiertas ajardina das, la planta libre, la ventana corrida y la fachada libre.

OBRAS

MUSEO NACIONAL DE LAS ARTES OCCIDENTALES, TOKIO

El museo posee 3 pisos y el área del terreno abarca 1.587 m2 y el área construida 4.399 m2.

VILLA SAVOYE, FRANCIA

El área ocupada por los pilotis es de 408 m2 de los que 205 m2 son del espacio interior de la vivienda. El primer piso ocupa 270 m2 (aparta mento) y 138 m2 (terrazas).

IGLESIA DE SAINT PIERRE, FRANCIA

El programa se distribuye dentro de una planta cuadrada de 25 metros de lado.

29
DISEÑO DE LA VIVIENDA 2022-2

EC 2.1: TRABAJO FINAL ANÁLISIS

COMPOSICIÓN

El proyecto está constituido por una unidad habitacional que alberga a 1600 personas, los apartamentos se adecúan a personas indivi duales o núcleos urbanos. Combina usos de vivienda, oficinas y servicios comerciales. Un aspecto relevante es la utilización de la azotea como centro de funciones, convirtiéndose en uno de los espacios de mayor vitalidad. La azotea, de libre acceso, contiene los servicios públicos: una guardería, una enfermería, un gimnasio cubierto, pista de atletismo de 300 m, una pequeña piscina, un auditorio al aire libre y espacio social.

CONCEPTO 01

CIUDAD JARDIN VERTICAL

Se basa en traer la villa dentro de un volumen mayor, permitiendo que los habitantes tengan sus propios espa cios privados, y espacios comunes para realizar diversas actividades.

ESTRATEGIAS

1. Balcón protegido por un brise-soleil. Generando ventilación cruzada en toda la unidad.

02

CÉLULA DE HABITACIÓN

Le Corbusier defiende que se debe articular la vivienda entorno a la cocina. Bajo este criterio surge el concepto de célula de habitación como la envoltura para el adecuado desarrollo de un nuevo programa de vida.

2. Las unidades abarcan el ancho total del edificio y utiliza dobles alturas para reducir el número de pasillos en los corredores cada tres pisos.

3. Modelo híbrido ciudad-edificio: el proyecto destina sus espacios a diferentes usos. El techo funciona como terraza jardín, además cuenta con un pequeño hotel que se distribuye en su interior.

4. Ofrecer la mayor cantidad de alojamientos con la menor ocupación posible.

5. Fachada: adopta la policromía para mejorar la iluminación de los ambientes.

30
DISEÑO DE LA VIVIENDA SEC. 924

UNIDADES

01

N° DEPARTAMENTOS POR PISO / BLOQUE

- Capacidad: 1.600 residentes aprox.

- Pisos: 18 - 337 apartamentos dúplex - 58 apartamentos en dúplex por piso - 140 metros de largo, 24 metros de ancho y 56 metros de altura

02

TIPOS DE EDIFICACIÓN: AGRUPACIONES Y CIRCULACIÓN

Corredor: Doble Crujía Acceso cada tres niveles

AGRUPACIONES Y ENSAMBLAJES

Bloques aislados. El proyecto está situado en un parque de 3,5 hectáreas, orientado en el eje norte-sur perfecto, en contradicción de la orienta ción lógica paralela al gran bulevar Michelet.

31
DISEÑO DE LA VIVIENDA 2022-2

EC 2.1: TRABAJO FINAL PROGRAMA POR AMBIENTE

LEYENDA

SALA Y ESTAR BAÑOS Y LAVANDERÍA COCINA Y COMEDOR DORMITORIOS ESCRITORIO ÁREAS Y CIRCULACIONES COMUNES

Se identificaron los ambientes utiliza dos para reunirse, aseo, alimentarse, descansar, trabajo y zonas comunes en las plantas de una unidad de vivienda en el proyecto. Además, se realizó el mismo análisis en corte.

32 ANÁLISIS
DISEÑO DE LA VIVIENDA SEC. 924

CONCLUSIÓN

Le Corbusier, a lo largo de su trayecto ria, ha aportado a la arquitectura con sus proyectos y escritos. Estos son reco nocidos por su complejidad y esencia, también son tomados como referencia para el desarrollo de distintos proyec tos. El aporte más significativo ha sido los 5 principios de la arquitectura mo derna, en estos, logra centrar las bases de una nueva edificación. A partir de este momento, Le Corbusier marca un hito en la historia de la arquitectura. La Unidad Habitacional de Marsella es un proyecto que abarca distintas carac terísticas interesantes de analizar debido a la profundidad de detalle que tiene. Las estrategias que se compren den en el proyecto empiezan desde la manera en cómo se generan las relacio nes espaciales dentro del proyecto hasta la composición de las fachadas. El edifi cio se caracteriza por combinar el uso residencial con comercio y hotelería; por otro lado, los techos tienen espacios que permiten desarrollar diferentes acti vidades deportivas o de ocio. Al analizar las partes del edificio, se puede decir que el modelo de edificio híbrido, el cual combina la ciudad-edificio, cumple con su función.

33
DISEÑO DE LA VIVIENDA 2022-2

UNIDAD VECINAL MIRONES Y CASA SANTILLANA ANEXO: MOODBOARD VISITAS DE CAMPO

A
CF

Considero que este curso pudo enseñar me sobre las consideraciones básicas y necesarias de una vivienda. Al analizar a distintos arquitectos, los cuales han logrado un gran impacto en la historia de la arquitectura, he podido entender las soluciones que planteaban para la vivienda durante la época en la que se encontraban. Por otro lado, se entendió la importancia y el rol de cada espacio dentro de una vivienda.

Todo lo aprendido, durante el curso, se ha podido reforzar a través de los traba jos prácticos, las exposiciones y visitas de campo realizadas ya que los temas aprendidos han podido ser evaluados de manera práctica. Por último, considero que el curso es lo suficientemente com pleto como para poder ponerlo en prác tica ya que se han logrado consolidar y reforzar temas vistos a lo largo de la carrera.

37

CV

María Cristina Figueroa

ESTUDIANTE DE ARQUITECTURA UNIVERSIDAD DE LIMA FACULTAD DE INGENIERÍA Y ARQUITECTURA

Estudiante de la carrera de Arquitectura, en la Universidad de Lima. Interesada en prácticas en las áreas de diseño de proyectos, planeamiento urbano y arquitectura sostenible. Conocimiento de inglés en nivel intermedio. Dominio de programas para levantamiento de planos y representación gráfica como Autocad, Revit, Lumion, SketchUp, Illustrator y Photoshop. Capacidad para trabajar de manera analítica, detallada, en equipo y bajo presión.

CONTACTO

TELÉFONO +51 993450263

CORREO m.c.figueroa101 0 @gmail.com

REDES

ISSUU issuu.com/mariacristina.figueroa

LINKEDIN linkedin.com/in/mariacristinafigueroacardoso

INSTAGRAM mcristinafc.arq

EDUCACIÓN

UNIVERSIDAD DE LIMA

2018 - Actualidad Pre-Grado

COLEGIO SANTA RITA DE CASIA

2007 - 2017 Primaria-Secundaria

MUNICIPALIDAD DE SAN BORJA

Noviembre 2021 - Marzo 2022

Asistente de Arquitectura Apoyo en el levantamiento de planos, modelado en 3D, fotorreal ismo, trabajo en campo y apoyo en el desarrollo de proyectos del Plan Operativo Institucional 2021-2030 y 2022-2030.

12ª EXPOSICIÓN ANUAL - UNIVERSIDAD DE LIMA

2021-1 Proyecto “Mercado de Plantas y Vivero” seleccionado para Exposición Anual de Arquitectura

CERTIFICADO EN REVIT + LUMION + PHOTOSHOP

RECONOCIMIENTOS 2021 - Otorgado por el Departamento de Formación y Capacitación de Punto4K Estudio

11ª EXPOSICIÓN ANUAL - UNIVERSIDAD DE LIMA

2020-1 Proyecto “Escuela de Vida Silvestre” seleccionado para Exposición Anual de Arquitectura

EXPERIENCIA LABORAL PROGRAMAS

AUTOCAD 2018 ADOBE PHOTOSHOP ADOBE ILLUSTRATOR REVIT 2021 LUMION 10

MICROSOFT OFFICE SKETCHUP PRO 2019 V-RAY

OTRAS ACTIVIDADES

CENTRO DE IDIOMAS DE LA UNIVERSIDAD DEL PACÍFICO

2020 - Inglés Nivel Intermedio

PUNTO4K ESTUDIO

2020 - Workshop Revit User + Lumion + Photoshop

LABOR SOCIAL

Estancia Infantil Antonietta Nogara de Ossio - Comedor Popular Albergue Frieda Heller

IC

DISEÑO DE LA VIVIENDA

INFORMACIÓN DEL CURSO

CURSO: Diseño de la Vivienda

SECCIÓN: 924

PROFESOR: Enrique Gonzalo Santillana Ciriani

SUMILLA:

Diseño de la Vivienda es una asignatura teórica-práctica, destinada a entender el problema de la vivienda social y las principales respuestas urbanas arquitectónicas encaminadas a la solución del problema a lo largo de los siglos XX y XXI.

OBJETIVO GENERAL:

Adquirir una comprensión holística de las nuevas formas de habitar la vivienda.

OBJETIVOS ESPECÍFICOS:

1. Adquirir mediante el análisis de la historia y la teoría los aspectos espaciales, sociales, tecnológicos y tipológicos de la arquitectura y el urbanismo, para el estudio a futuro de las tipologías de vivienda.

2. Analizar la influencia del diseño y el desarrollo de ciudades del pasado y del presente en el medio cons truido contemporáneo, entendiendo la importancia que representa la vivienda en la configuración de la ciudad, como un hecho urbano – social y no como una unidad per se.

3. Revisar críticamente los precedentes pertinentes a la función, organización, estructuración y estrategia tecnológica de las propuestas de diseño de la vivienda.

4. Desarrollar la capacidad de abordar el diseño de la vivienda desde la perspectiva del uso, las necesida des y aspiraciones de los usuarios de las edificaciones

5. Objetivos de Desarrollo Sostenible – ODS:

- Objetivo 5: Lograr la igualdad entre los géneros y empoderar a todas las mujeres y niñas.

- Objetivo 10: Reducir la desigualdad en y entre los países

- Objetivo 11: Lograr que las ciudades sean más inclusivas, seguras, resilientes y sostenibles

UNIVERSIDAD DE LIMA CARRERA DE ARQUITECTURA DISEÑO DE LA VIVIENDA MARÍA CRISTINA FIGUEROA CARDOSO CÓDIGO: 20182605

Turn static files into dynamic content formats.

Create a flipbook
Issuu converts static files into: digital portfolios, online yearbooks, online catalogs, digital photo albums and more. Sign up and create your flipbook.
Portafolio Diseño de la Vivienda by María Cristina Figueroa - Issuu