2024 PORTaFOLIO
PEREZ RODRIGUEZ
reconstruccion post-desastre lideradA por universidades
Investigaci贸n: Maria Isabel Perez
Apoyo: Universidad de Kyoto, Graduate School of Global Environmental Studies, Universidad Anahuac Puebla, Supervisado por Prof. Chiho Ochiai
pUEBLA, mEXICO | 2022 - 2024
tesis maestria | estudios ambientales | investigaci贸n



contexto
En septiembre de 2017, el sureste de M茅xico enfrent贸 dos fuertes terremotos, causando da帽os significativos a las viviendas en zonas con alta pobreza. Este estudio explora el papel de las universidades en la recuperaci贸n post-desastre, centr谩ndose en el caso de un Programa de Reconstrucci贸n de Viviendas liderado la universidad Anahuac Puebla, en Alpanocan. El objetivo es comprender las din谩micas de colaboraci贸n comunidad-universidad, evaluar la efectividad de los Programas de Reconstrucci贸n de Viviendas liderados por universidades e identificar desaf铆os y oportunidades de mejora.



metodolog铆a
La recolecci贸n cualitativa de datos incluy贸 fuentes oficiales del gobierno, revisi贸n de literatura sobre los terremotos de 2017, observaci贸n de campo, an谩lisis fotogr谩fico, entrevistas semi-estructuradas y un levantamiento arquitect贸nico de seis viviendas dentro del programa.


hallazgos
Las s贸lidas redes sociales, el conocimiento multidisciplinario y el compromiso a largo plazo de las universidades permiten una movilizaci贸n eficiente, una respuesta integral a desastres y un impacto comunitario duradero. Adem谩s, la cooperaci贸n basada en la confianza y la implementaci贸n de actividades para el desarrollo social destacan el potencial de las universidades para trabajar con las comunidades frente a las vulnerabilidades. Sin embargo, desaf铆os como la priorizaci贸n de experiencias formativas, el agotamiento de recursos financieros y la necesidad de una mayor participaci贸n comunitaria en dise帽os adaptables al contexto local representan oportunidades de mejora.


Abordar estos desaf铆os requiere establecer objetivos claros, una gesti贸n proactiva de los recursos, comunicaci贸n transparente y toma de decisiones inclusiva. Adem谩s, la colaboraci贸n con la juventud local, el empoderamiento de grupos marginados y la incorporaci贸n de recursos y conocimientos locales son fundamentales para crear comunidades autosostenibles. As铆 mismo, enfrentar estos desaf铆os y fortalecer las capacidades podr铆a posicionar a las instituciones de educaci贸n superior como agentes prometedores en el fomento de comunidades resilientes, empoderadas y preparadas para afrontar desastres.
kaira looro | la casa de las mujeres
senegal | 2021
concurso de dise帽o | arquitectura sostenible

Adicionalmente, la implementaci贸n de dise帽o pasivo y el 茅nfasis en espacios din谩micos y adaptables fueron caracter铆sticas principales del proyecto.
Miembros del Equipo: Maria Isabel Perez, Colette Parizot
Ser mujer es un concepto complejo. Es una serie de ideas y caracter铆sticas que nos hacen quienes somos. El proyecto busca mostrar la dualidad que las mujeres experimentan en su vida cotidiana. Similar a c贸mo estar en la cima de una colina puede hacernos sentir fuertes y estar dentro de una cueva puede hacernos sentir protegidas, esta dualidad entre empoderamiento y protecci贸n es el concepto que tomamos para La Casa de la Mujer.
El proyecto fue parte de la competencia de arquitectura Kaira Looro en 2021.
Para el proyecto se consideraron las necesidades locales, los materiales y los contextos culturales con el prop贸sito de dise帽ar un centro comunitario para mujeres en Senegal.



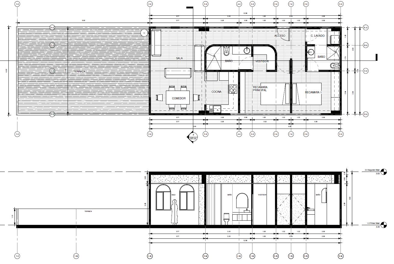
infosismo | m脫dulo sismo-resistente
puebla, mEXICO | 2017
Miembros del Equipo: Students from Architecture Projects VII, Ibero Puebla University 2017.
arquietctura sostenible | construcci贸n | post-desastre


San Juan Pilcaya se encuentra al sur del estado de Puebla, cerca del epicentro del terremoto del 19 de septiembre de 2017, que afect贸 gravemente a dicha comunidad. La poblaci贸n se vio severamente afectada por el evento, ya que m谩s de la mitad de sus viviendas resultaron da帽adas.
Como respuesta, estudiantes y profesores de la Escuela de Arquitectura de la Universidad Iberoamericana Campus Puebla decidieron liderar un peque帽o proyec to enfocado en construir estructuras resistentes a terre motos utilizando principalmente materiales locales.
El resultado fue un prototipo, construido conjuntamente entre la comunidad, estudiantes y profesores en noviembre de 2017. El prototipo funciona como un ejemplo de propuestas de autoconstrucci贸n m谩s segu ras utilizando t茅cnicas locales, con una estructura de 35 m虏 que utiliza una estructura de madera y adem谩s emplea la t茅cnica local de bahareque (entramado y barro).


m贸dulo de producci贸n autosustentable
concepci贸n capulac, puebla | 2017
Desarrollo sOSTENIBLE | mobiliario
Miembros del Equipo: Maria Isabel Perez, Jared Alcala, Cesar Garcia



Area de plantas arom谩ticas y medicinales.
Area de juegos: escalones
Capulac, una comunidad afectada por la pobreza, desnutrici贸n y problemas de salud, fue seleccionada para dise帽ar un m贸dulo autosostenible con el prop贸sito de involucrar a los estudiantes de primaria en el mejoramiento de su salud mientras se divert铆an.














Camas de cultivo: para producir alimentos de uso en la escuela
El resultado fue un m贸dulo simple pero din谩mico para que los ni帽os jueguen, disfruten y se involucren en el 谩rea p煤blica de la escuela. Construido con materiales de bajo costo, la idea era combinar camas de cultivo y un jard铆n medicinal con un 谩rea de juegos.
El proyecto busca conectar a los ni帽os con la naturaleza, brind谩ndoles herramientas para cultivar productos saludables y plantas medicinales que puedan ser utilizados y consumidos en la escuela.
mori project | renovaci贸n de espacio p煤blico
universidad de kioto, jap贸n | 2023
paisajismo | construcci贸n | dISE脩O SOSTENIBLE
Dentro del Campus Principal Yoshida de la Universidad de Kioto, hay un peque帽o estanque que alberga una variedad de especies en su paisaje. Este lugar oculto sol铆a pasar desapercibido para estudiantes, profesores y trabajadores debido a la falta de mantenimiento y mobiliario p煤blico.
Con este desaf铆o en mente, estudiantes del laboratorio de Arquitectura Ambiental Global en GSGES de la Universidad de Kioto decidimos renovar el espacio utilizando principalmente materiales disponibles. Este reto nos llev贸 a reutilizar la estructura de dos bancos antiguos del jard铆n p煤blico para transformarlos en algo m谩s interesante: un ENGAWA (t茅rmino japon茅s que se refiere a un piso de madera exterior, generalmente utilizado para la contemplaci贸n y disfrute de jardines en los hogares).
El proyecto trajo resultados positivos al atraer a las personas para disfrutar del entorno, enmarc谩ndolo con un dise帽o sutil que realza la belleza del paisaje.

Estructura reutilizada


Dise帽o de Engawa planta
concept result
concept result

ADAPTACI脫N BASADA EN ECOSISTEMAS sBn - CONCEPTO Y VISUALIZACI脫N
fukuoka, jap脫n | 2024
DISE脩O Y VISUALIZACI脫N | PLANEACI脫N URBANA | CAMBIO CLIMATICO
Los ecosistemas son esenciales para la vida en la Tierra al regular los procesos ecol贸gicos. La supervivencia de nuestra biosfera depende de un equilibrio cuidadoso de estas din谩micas.
Los Servicios Ecosist茅micos (SE) son los beneficios que las perso nas obtienen de los entornos saludables y funcionales, esenciales para el bienestar humano.
Al utilizar la naturaleza para adaptarse al cambio clim谩tico en las ciudades, es posible restaurar y conservar la biodiversidad mien tras se aumenta la adaptaci贸n de las ciudades al cambio clim谩ti co y se promueve la mitigaci贸n de gases de efecto invernadero.



Diagramas de Capacicad de Adaptaci贸n: Ejemplo

ANTES DEL DESASTRE

DESASTRE

CAPACIDAD DE ADAPTACI脫N
DISE脩O DE PROYECTOS










coop |
para la independencia econ贸mica de las mujeres
puebla, mEXICO | 2019
proyecto licenciatura | arquitectura | dise帽o urbano





La Cooperativa de Mujeres (COOP) es un proyecto enfocado en apoyar la independencia financiera de las mujeres a trav茅s de un centro comunitario en una zona de alta densidad y alta pobreza en la Ciudad Capital de Puebla.





sitio
Se llev贸 a cabo un an谩lisis urbano en la zona para identificar la ubicaci贸n adecuada del programa, considerando las necesidades locales que grupos vulnerables, como las mujeres, podr铆an tener en la ciudad.
El sitio seleccionado fue transformado en un espacio abierto con m煤ltiples actividades donde las mujeres y sus familias pudieran trabajar, colaborar y crear comunidades m谩s fuertes.

El programa busc贸 integrar tres partes esenciales de la vida de las mujeres mexicanas:



Vida Productiva:
鈥ecnolog铆a e ICT
鈥esarrollo de proyectos colaborativos
鈥ulas de uso mixto y salas de conferencias
鈥alleres
鈥⒚乺eas de trabajo al aire libre
Vida Personal:
鈥anco de tiempo (Cocina comunitaria, comedor, lavander铆a)
鈥uarder铆a infantil
鈥entro de apoyo para mujeres
Vida Comunitaria:
鈥⒚乺eas de reuni贸n
鈥spacios p煤blicos
鈥spacios para el desarrollo comunitario



reconstruccion post-desastre
lideradA por universidades
pUEBLA, mEXICO | 2022 - 2024
tESIS MAESTR脥A | ESTUDIOS AMBIENTALES | INVESTIGACI脫N
kaira looro | la casa de las mujeres
senegal | 2021
CONCRUSO DE ARQUITECTURA | DISE脩O AMBIENTAL
infosismo | m脫dulo sismo-resistente
puebla, mEXICO | 2017
arQUITECTURA SOSTENIBLE | construction | POST-DESASTRE
m贸dulo de producci贸n autosustentable
concepcion capulac, puebla | 2017
DESARROLLO SOSTENIBE | MOBILIARIO
mori project | renovaci贸n de espacio p煤blico
UNIVERSIDAD DE KIOTO, jap脫n | 2023
PAISAJISMO | construcCI脫N | DISE脩O SOSTENIBLE
ADAPTACI脫N BASADA EN ECOSISTEMAS
FUKUOKA, japan | 2024
DISE脩O Y VISUALIZACI脫N | PLANEACI脫N URBANA | CAMBIO CLIMATICO
DISE脩O DE PROYECTOS
VIVIENDA | ARQUITECTURA | VISUALIZACI脫N | DISE脩O DE INTERIORES
coop | centro comunitario para la independencia econ贸mica de las mujeres
PUEBLA, MEXICO | 2019
PROYECTO LICENCIATURA | ARQUIETCTURA | DISE脩O URBANO