Portifólio

Page 1

PORTIFÓLIO

ESTUDANTE DE ARQUITETURA

MARGARETH VERGARA

Vergara Margareth

Estudante de Arquitetura e Urbanismo

Sobre Mim

Tenho 20 anos e estou no 10° período do curso de Arquitetura e Urbanismo. Gostaria de me aprimorar na profissão e colocar em prática o conhecimento adquirido na universidade, contribuindo da melhor forma possível para o escritório.

Áreas de Conhecimento

Modelagem em 3D

Renderização

Detalhamento

Projeto Executivo

margareth_vergara@outlook.com

11 941108919

Santo André - SP

CNH B

Redes Sociais

Instagram

Linkedin

Behance

Formação e Experiencia

Graduação em Arquitetura e Urbanismo

Universidade Anhembi Morumbi

2019 - atual, São Paulo

Ensino Médio

Colégio Barão de Mauá

2004 - 2018, Mauá

Frellancer de Detalhamento e Projeto Executivo

Roberta Rossi Arquitetura

1 semestre 2022, São Caetano

Estágio

Julia Aguiar Arquitetura

Dezembro de 2022 a Abril de 2023, Home Office

Adobe Photoshop Adobe illustrator Adobe indesign Adobe Word Power Point Exel Oficce
Autocad Scketchup LayOut Archicad Vray Progamas Linguagem Figma Inglês Canva Espanhol Libras
Outros Progamas

ETEC Fenix

Projetos Autorais para Estudo

Projeto Universitário 2020.1

Habitação de Interesse Social

“Um os maiores esafios é provar que a arquitetura é uma mais-valia e nãp um custo extra

Alejan ro Aravena

Softwers Utilizados

O objetivo desse trabalho foi um projeto de uma Habitação de Interesse Social, no bairro do Bexiga.  Ao pesquisar sobre o local, para fazer o projeto percebi que a uma grande falta de escolas na região escolhida, e com isso decidi que um de meus prédios seria para isso.

Os outros dois edifícios sao voltados para habitação, e os dois possuem uma fachada ativa no térreo. Nas áreas de lazer foram colocadas uma área para pratica de atividades físicas, uma piscina para uso tanto privado como púbico - aos fins de semana - , uma horta comunitária e um parquinho para as crianças.

As a plasticidade dos prédios foram escolhidas para lembrar tanto algumas construções de seu entorno como - no caso das cores - a presença do córrego pertencente a bacia hidrográfica do córrego Anhangabaú.

Softwers Utilizados

“A arquitetura não constroi só coisas. Erque sonhos e sustenta lembranças.”

-Priscila Prestes

Clarice Lispector

Projeto Universitário 2020.2

Biblioteca

A região de intervenção está localizada no Jardim São Luis, no M'Boi Mirim - próxima a Represa Guarapiranga - ela é considerada um bairro dormitório, por causa de seu crescimento demográfico e seu início; seu meio de transporte principais são os veículos (carros e ônibus) e as bicicletas.

A minha intenção com essa intervenção é: criar uma marco na região (trazendo mais pessoas para o lugar); aumentar a vegetação local (que atualmente se encontra no entorno das vias); unificação com o Sacolão(por meio de uma área de convivência mútua).

Como a topografia local se tem um certo declive - por se situar em uma região de vale - foi-se divido em alguns patamares, que terão acesso por escadas e rampas

Softwers Utilizados

“A arquitetura é a arte que etermina a i enti a e o nosso tempo e melhora a vi a as pessoas

Santiago Calatravar

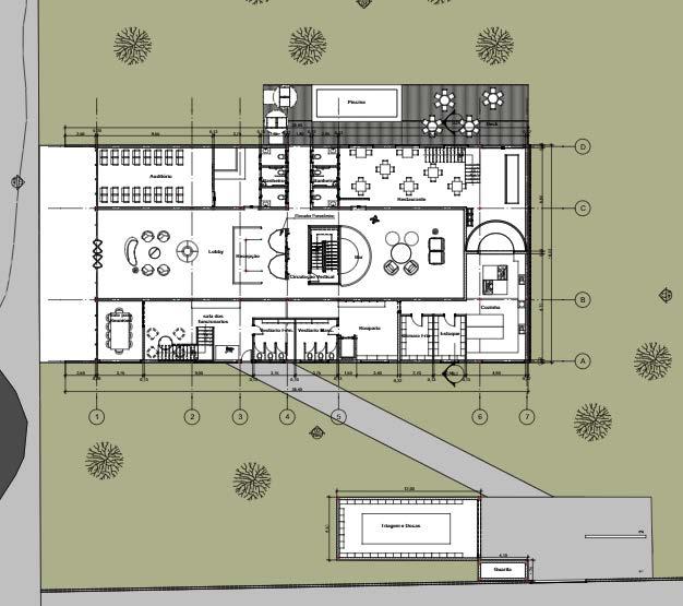
Hotel Caipora del Pinheiro

Projeto Universitário 2021 1

O projeto está localizado na região da Cidade Universitaria USP, onde ele apresenta uma volumetria em lamina composta com um vão central, contendo 5 andares, ao qual seu pavimento térreo é composto pela recepção situada no plano central da edificação e em sua volta ficarão os serviços e alimentação oferecidos pelo prédio. Seu pavimento tipo, por ocorrência do vão central, oferece uma ampla vista da área térrea.

Habitação

Área Operacional

Área Comuns

Circulação

Alimentação/ Restaurante

O projeto tem como objetivo receber professores em período de visitação a cidade universitária e aos prédios que a compõem, e também poderá proporcionar hospedagem provisória para alunos da universidade. Trazendo conforto, funcionalidade e proteção para os hóspedes.

O porquê do nomeHá ideia de unificar o folclore brasileiro há esse projeto surgiu após o estudo de local, que tem em alguns pontos remanescentes da Mata Atlântica e na lenda a Caipora ela é considerada a defensora dos animais e a protetora da floresta.

Projeto Universitário 2021.2

ETEC Fenix

“Uma as gran es belezas a arquitetura é que ca a projeto é como se a vi a começasse e novo.

Renzo Piano

Softwers Utilizados

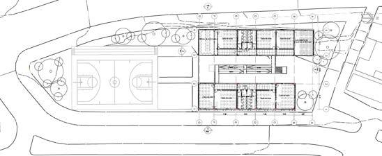
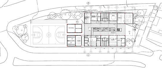
O projeto da Escola Fenix está localizado no bairro da Penha, na Zona Leste da Cidade de São Paulo, situada da Zona Bioclimática 3.

Ele é composto por 2 torres com o total de cinco pavimentos, separadas por um patio central e unidas pela sua circulaçao vertical.

escola, dando aos alunos uma área de lazer e permitindo o uso da ventilação e iluminação natural.

As os ambientes da escola foram todos pensados para o conforto dosa alunos e visitantes

Projetos autoreis para estudo

Lorem ipsum dolor sit amet, consectetur adipiscing elit. Et etiam cursus lobortis egestas. Pharetra mauris tincidunt a, sit vitae fermentum at. Libero velit consequat varius lectus at suspendisse egestas a. Eget tincidunt nulla posuere quis phasellus sem mi.

ALA BM MAQUETE

projeto renderi do p r

treino por meio de um

cur o

oftwer u do :

COZINHA BM MAQUETE

projeto renderi do p r

treino por meio de um

cur o

oftwer u do :

ALA JOVEM ARQUITET

projeto renderi do p r

treino por meio de um

cur o

oftwer u do :

C ZINH RENDERC

projeto renderiz do p r

treino por meio de um

curso

softwers us dos:

C ZINH PR I

projeto renderiz do p r treino com b se em um cozinh re l, que tenho em meu p rt mento n pr i

softwers us dos:

P VI H TUDI HU

projeto model do e renderiz do p r treino por meio de um curso

softwers us dos:

COZINHA ALEC IM FACILI ANDO ENDE

projeto renderizado para treino por meio de um cur o

oftwer u ado :

projeto modelado e renderizado para treino por meio de um cur o

oftwer u ado :

Casa Farnsworth

projeto modelado para treino por meio de um cur o oftwer u ado :

INYHOUSE S UDIO HU

QUARTO MORRO DE VENTO UIVANTE

projeto renderizado para treino com ba e em um livro, po uindo referencia

dele oftwer u ado :

APARTAMENTO BELLA

ARCHRAPIDO

projeto modelado para treino por meio de um cur o oftwer u ado :

COZINHA TE T

projeto modelado e renderizado para treino com ba e medida de uma cozinha do apartamento de uma tia

oftwer u ado :

Turn static files into dynamic content formats.

Create a flipbook
Issuu converts static files into: digital portfolios, online yearbooks, online catalogs, digital photo albums and more. Sign up and create your flipbook.