
TERRA DI SIENA
Proposta di riconversione dell’ex fornace da laterizi
Poggetti di Rapolano Terme
Marco FranciA.A. 2014/2015

Proposta di riconversione dell’ex fornace da laterizi
Poggetti di Rapolano Terme
Marco FranciA.A. 2014/2015
Si corre il rischio di trovarsi senza parole di fronte allo spettacolo messo in piedi dalla natura e dall’uomo nelle terre della Val d’Arbia: attraverso le strade e i sentieri che ripercorrono gli antichi tracciati è impensabile di non soffermarsi ad ammirare quegli scenari sublimi che si rincorrono l’uno dietro l’altro.
Il territorio di Rapolano è tutto questo: è un ecosistema delicato e preciso, fortemente artificiale, ma al tempo stesso legato ai ritmi del paesaggio in un modo così forte da non poterne prescindere. Ogni azione eseguita sulla terra è conseguenza di secoli di conoscenza e di tradizione che hanno trasmesso quelle regole che riescono a rispettare ed addomesticare un luogo tanto affascinante quanto impervio e insidioso. È la volontà dell’uomo - che vive di e in questa realtà - di partecipare direttamente o indirettamente alla realizzazione di questo disegno che ne ha permesso un cambiamento perpetuo, e allo stesso tempo, ne ha garantito, una imperturbabile unitarietà di forma e sostanza.
È un paradosso temporale, è un universo che nonostante il sostituirsi e mutare dei colori e delle forme garantisce sempre un’uguaglianza nel tempo che dà certezza.
Qui, tra le crete e borghi medioevali, sorge l’incipit di un’esperienza di compartecipazione a questo dialogo tra uomo e natura; il punto di partenza di una ricerca e di una sperimentazione sul luogo, sui suoi materiali, sulle sue
forme.
Di fronte al paese di Serre di Rapolano si staglia quella che era una fornace per la produzione di laterizi del XX secolo. Un tempo un grande edificio, oggi un imponente recinto, protagonista diretto della storia e della vita dell’intera zona, che ha visto abbattersi su di se l’inesorabile scure del tempo. Della gloria passata, ora, resta solo il ricordo, resta la mole diafana di un involucro di mattoni che ormai contiene solo macerie; come un moderno tempio classico, la sua visione - così leggera - è falsata dalla mancanza di quel cuore rovente che ne era la vera ragione d’essere.
Il risultato non potrà essere che quello di una vera e propria trasformazione in quanto è necessario costruire nuove idee sulle orme di ciò che ci ha preceduto.
Si ricerca uno spazio ad uso delle persone: un luogo dello stare, un luogo della salute, un luogo di vita: una clinica per la riabilitazione. Un servizio che non può che rafforzare quella importante realtà della zona offerta dai centri termali, che hanno fatto la fortuna di questa porzione di Toscana.
Conciliare un edificio con la propria storia e con il proprio mondo attraverso un intervento che si propone come alternativa alla sua rovina; questo è l’obiettivo che si può raggiungere solo manipolando i fondamenti di questa terra: pietra, argilla ed acqua.
La Società Poggetti rappresentava una sorta di “Tempio Sociale”, un pilastro della comunità di Rapolano Terme nel corso del XX secolo. La fabbrica, un tempo fiorente, ora giace abbandonata, ma continua a evocare ricordi di un’epoca passata. Situata su un terreno di circa 5 ettari di fronte al paese di Serre di Rapolano, la fornace di laterizi era un simbolo di orgoglio per l’intero comune, rappresentando un passaggio cruciale nella trasformazione economica della regione. La sua ubicazione strategica tra Siena e il Chianti contribuiva alla sua importanza come centro di produzione e punto di riferimento per l’occupazione locale.
Il terreno argilloso della Val d’Arbia si rivelò l’ambiente ideale per la costruzione di una fornace per laterizi. I depositi di argilla abbondanti e facilmente accessibili fornivano la materia prima necessaria per l’attività industriale. Le prime tracce documentate della zona risalgono al Catasto Leopoldino del 1819, ma è solo nel XIX secolo che si inizia a parlare di una vera e propria struttura di produzione. La crescita e lo sviluppo della fabbrica avvennero parallelamente ai cambiamenti tecnologici e alla domanda di materiali da costruzione. Dagli inizi modesti come una piccola fornace di mattoni nel 1889, l’azienda si trasformò nel corso degli anni in una vera e propria industria, supportata dalla crescente richiesta di materiali per la ricostruzione post bellica. L’introduzione di nuove tecnologie e l’espansione delle infrastrutture portarono a una maggiore efficienza produttiva e alla diversificazione delle operazioni.
Pagina a fianco: Vista aerea dell’area oggetto di studio. Si nota l’edificio centrale della fornace con le addizioni avvenute nel corso del tempo; sul retro le vecchie aree di estrazione dell’argilla diventate bacini artificiali.
Tuttavia, la fabbrica Poggetti non è stata immune dalle sfide economiche del tempo. La crisi petrolifera degli anni ‘80 e i cambiamenti nei modelli di produzione hanno messo a dura prova l’azienda, portando alla sua chiusura nel 1985.
Da allora, l’edificio è stato lasciato all’abbandono.
Nonostante la sua attuale condizione, le Fornaci Poggetti rimangono un importante pezzo di storia locale, testimoniando il passaggio dall’agricoltura all’industria.
Il primo forno era molto differente rispetto a quello attuale: situato nella parte settentrionale, era un forno circolare incassato nel terreno con pareti in laterizio, connesso alla ciminiera centrale dell’edificio. Nessun processo era meccanizzato; tutte le attività erano artigianali e eseguite manualmente. La fornace operava solo durante i mesi caldi; nei mesi invernali, a causa delle difficili condizioni meteorologiche, la produzione veniva sospesa.
Negli anni ‘50, dalle foto aeree, si nota la costruzione di un primo essiccatoio esterno al corpo principale dell’edificio, integrando la funzione svolta internamente dagli impalcati lignei ai primi due ordini di finestre, dove il materiale veniva asciugato prima della cottura. Si può dedurre dall’ombra prodotta che la prima ciminiera, per esigenze tecniche, era significativamente più alta di quella successiva.
Fino agli anni ‘40 del Novecento, l’attività non conobbe crisi, ma la Seconda Guerra Mondiale interruppe bruscamente i lavori. Terminato il conflitto, il proprietario, Alibrando, si rivolse all’estrazione e lavorazione del travertino. La svolta avvenne nel 1946, quando Arcangelo Magi e suo cugino acquisirono l’attività, dando vita alla “Società Industriale Laterizi Poggetti”. Sotto questa gestione, l’azienda decollò, supportata dalla domanda crescente per la ricostruzione postbellica. Venne avviato un completo rinnovamento della fabbrica, protrattosi fino agli anni ‘70. Il cambiamento principale fu la sostituzione del vecchio forno con uno Hoffmann, accompagnato dall’ampliamento del corpo di fabbrica verso nord. A partire dal 1959, questo periodo di rinnovamento si concluse.
Pagina a fianco:
Sezione Catasto, cartoncino n°24, Comunità di Rapolano, sezione M delle Serre, 1889.
Estratto della planimetria catastale, Comune di Rapolano
Terme, foglio n°90 (“Levata Anno 1933Riprodu. Anno 1950).
La decadenza della fabbrica Poggetti si staglia come protagonista nel paesaggio della campagna senese e, soprattutto, di Rapolano. Tra le imponenti ciminiere, ora simili a colonne restaurate, si estendono le colline modellate dall’uomo. La fornace, in uno stato di degrado, evoca un cantiere antico, dove la distruzione ha preso il posto della costruzione, mettendo in luce le sue regole figurative e costruttive.
L’architettura dell’edificio si manifesta come un’auto-documentazione degli elementi prodotti, con l’esterno in mattoni e tegole marsigliesi che conservano il linguaggio tradizionale del secolo scorso.
Dal punto di vista planimetrico e volumetrico, emerge un processo di crescita attraverso aggregazioni successive, con parti aggiunte attorno alla zona del forno relative ai processi di lavorazione del laterizio. Quattro soggetti principali emergono dalla pianta: la stecca della fornace, il deposito del materiale finito, e i due essiccatoi sul retro, comunicanti attraverso spazi più o meno costruiti, adattati per diverse funzioni.
L’accesso, unico ed orientato ad est dalla strada provinciale, è segnalato da due colonnini di mattoni con testa piramidale in travertino, testimonianza del cancello d’ingresso ormai scomparso.
Descrivendo le appendici integrate con l’edificio originale nel corso degli anni, ampliato da una serie di stanze o piccoli edifici accorpati o aggiunti nel tempo, si potrà esaminare in dettaglio l’edificio principale, lungo e stretto con orientamento nord-sud.
A est, si trova ciò che può essere considerato il prospetto principale. Contiguo alla parete esterna della fornace, lungo la facciata rivolta verso il paese di Serre, si trova un piccolo capannone in calcestruzzo. Questo spazio era dedicato all’impacchettamento, dove i mattoni crudi venivano posizionati all’interno di gabbie metalliche per l’essiccazione. Lungo circa 36 metri e con un’altezza di circa
Pagina a fianco:
Planimetria del piano terra della fornace con la distinzione dei vari ambienti.
tre metri, è coperto da un tetto a falda in lamiera ondulata. Sul muro esterno sono presenti finestre corrispondenti alle campate definite dal sistema di pilastri retrostante. Era qui che, completata l’essiccazione, i mattoni venivano scaricati per la cottura. Anche sul lato corto a sud sono presenti locali simili, ma di dimensioni minori e funzioni diverse. All’estremità nord si erge un grande capannone in laterizio, mentre tra questo e l’edificio principale si trova l’edificio degli uffici amministrativi. Il capannone, costruito in una seconda fase, serviva per lo stoccaggio del materiale finito. La struttura portante è metallica, con tamponature in mattoni a vista e una copertura a capanna in lastre ondulate. L’altro edificio è completamente autonomo e ospita quattro piccole stanze, con una copertura a padiglione a coppi e tegole Nella parte posteriore dell’edificio si trova un complesso di ambienti con diverse funzioni, alcuni realizzati in mattoni e altri in calcestruzzo, a seconda della loro data di costruzione. Questi ambienti sono collegati da passaggi coperti con struttura in travi di acciaio. Verso nord e al centro si trovano i due essiccatoi statici, costituiti da stanze rettangolari parallele alla fornace, dotate di pilastri interni. Qui il materiale crudo veniva essiccato con aria calda e secca. Questi spazi sono comunicanti attraverso un ambiente ad “L” che forma un’ampia area coperta con elementi ondulati, dove avvenivano le prime operazioni di lavorazione. La fornace principale, che ospita il forno, è la parte più antica dell’intero complesso, con dimensioni di circa cento per venti metri e un’altezza di gronda di quasi otto metri, con una superficie interna in calcestruzzo senza finiture. Questa struttura riflette gli standard estetico-funzionali dei primi decenni del XX secolo per questo tipo di edifici. La struttura portante è composta da una rigida maglia di pilastri distanziati di circa quattro metri e cinquanta, realizzati in muratura faccia a vista su fondazioni continue in laterizio. Questa suddivisione interna in quattro campate uguali si riflette anche nell’architettura esterna, dove i pilastri risaltano rispetto alla muratura, creando un gioco di ombre che enfatizzano i profili degli elementi.
L’aspetto esterno dell’edificio, caratterizzato da un linguaggio semplice e sintetico, contribuisce in modo intenso e naturale alla sua affascinante immagine complessiva. Le pareti lunghe sono divise in ventuno campate che ripetono la geometria interna, con un involucro in mattoni faccia a vista che richiama gli edifici gotici con le grandi aperture e gli esili pilastri. Questa struttura ricorda il linguaggio architettonico delle cattedrali del XIII-XIV secolo. Il perimetro della fornace è reso trasparente da tre ordini di aperture sovrapposte: al piano terreno vi sono portali larghi sormontati da archi ribassati, mentre nei due ordini superiori ci sono finestre più piccole anch’esse con archi ribassati. Originariamente gli infissi erano in legno, ma alcuni sono stati sostituiti nel tempo con modelli in metallo. Alcune aperture sono tamponate con laterizi forati, un cambiamento avvenuto nel tempo per esigenze lavorative. La fornace Poggetti, una volta imponente e chiusa, ora si presenta come un recinto aperto verso la natura e il cielo, simile a un Partenone delle campagne senesi. Questa contrapposizione tra materia e vuoto, massa e trasparenza, rende affascinante l’architettura attuale e sottolinea il suo status di rovina che domina la piana delle Serre.
La copertura dell’impianto, sempre più assente a causa dei continui crolli, presentava un disegno a capanna con un’altezza di colmo variabile tra i dieci e gli undici metri. Realizzata con tavelloni e tegole marsigliesi, essa trovava sostegno in una struttura lignea a tripla orditura, comprendente puntoni, terzere e morali. Dove la presenza di un pilastro della struttura principale veniva meno per esigenze tecniche o funzionali, per superare aperture di circa dieci metri si ricorreva a travi reticolari.
Nella parte settentrionale del complesso si trova il cuore pulsante, ovvero il forno Hoffmann. Composto da due tunnel rettangolari lunghi 42 metri e larghi 3.5 metri, questo sistema di cottura è stato progettato per agevolare il flusso d’aria, con canali coperti da una volta a botte in laterizio. Le massicce mura esterne, caratterizzate da uno spessore superiore ai 3 metri e da una sezione trapezoidale a scarpa inclinata, sono state concepite per soddisfare specifi-
Pagine successiva: Collage del fronte est della ex fornace Poggetti.
che esigenze statiche e prestazionali, ospitando aperture destinate al caricamento e allo scarico dei laterizi.
Al centro dello stabile, emergeva maestosa la ciminiera, un punto di riferimento visivo nel panorama industriale. Caratterizzata da una struttura quadrangolare che si rastremava gradualmente verso l’alto, la ciminiera svettava oltre il colmo della copertura per oltre 2 metri. Tuttavia, a causa di crolli e crepe, l’altezza di questo elemento architettonico si è ridotta nel tempo, perdendo parte della sua imponenza rispetto alla fase successiva ai lavori di ammodernamento della fabbrica nel dopoguerra.
Inoltre, l’architettura dell’edificio esterno, con le sue ventuno campate scandite lungo i lati lunghi, richiamava l’estetica gotica con grandi aperture e sottili pilastri. Questo insieme, caratterizzato dalla sua imponenza e dalla sua capacità di resistere al tempo, rappresenta un simbolo di un’epoca passata e delle sue sfide strutturali.
Concludendo, nelle condizioni attuali l’architettura della fornace emerge nei suoi aspetti tecnologici e spaziali anche più nascosti. Il laterizio è l’elemento fondante e viene sfruttato attraverso il ricorso a tecniche costruttive tradizionali e all’impiego di materiali come il legno che lo completano e lo valorizzano. Un codice morfologico che nei sui più disparati aspetti – la serialità, la pesantezza della massa, la funzionalità - appare spiegato in ogni angolo della fabbrica.
Un luogo da riqualificare, un reperto da restaurare, un contesto da rivitalizzare, sono queste le linee guida seguite per la definizione del progetto per un nuovo Centro di Riabilitazione funzionale a Rapolano. La posizione del lotto in cui sorge l’ex fornace da laterizi Poggetti è lungo l’attuale strada provinciale di collegamento tra i centri di Rapolano Terme ed Asciano e si estende fino al limite del confine comunale verso ovest. Benché servito da una via di transito relativamente nuova, la zona è piuttosto isolata. Il più vicino centro abitato è quello di Serre di Rapolano, sulle colline di fronte ad est, a circa due kilometri in linea d’aria. Agire in queste condizioni di contesto impone di tenere in considerazione che quanto debba sorgere sul posto sia di interesse e attrazione per la popolazione, onde evitare – di nuovo – l’abbandono del sito e il suo ulteriore deterioramento. Questa condizione ha subito imposto l’esigenza di andare ad intervenire sul contesto con un intervento attrattivo e non riempitivo per la comunità; come può essere una struttura socio-sanitaria a servizio dell’intera zona. La scelta di un complesso di questo tipo sembra una delle soluzioni ottimali, che viene suggerita anche dalle Norme di Attuazione del comune di Rapolano all’interno del R.U. 2014.
Pagina a fianco: Inquadramento territoriale del progetto.
Il tipo di struttura al centro del percorso progettuale è prevista come un ente a carattere privato e non pubblico. La scelta è stata dettata da più fattori: innanzitutto il minor tempo di attesa per l’intervento nell’ipotesi di un investitore privato interessato a finanziare il progetto (senza quindi dover attendere stanziamenti pubblici), in secondo luogo la maggiore flessibilità delle norme edilizie per edifici sanitari in campo privato che sono normati da specifiche leggi, in parte diverse da quelle che regolano le strutture sanitarie pubbliche. Questa decisione permette la progettazione di un ambiente ad uso della comunità senza dover necessariamente raggiungere un certo bacino di utenza che invece è richiesto per la costruzione di una struttura pubblica. Si tratta quindi di un tipo di operazione che va ad offrire al territorio un servizio aggiuntivo che sopperirà una serie di richieste di prestazione, senza avere la pretesa di assecondarle nella loro totalità.
In questo modo si va ad interagire direttamente a beneficio e nell’interesse della comunità locale che da un lato ha una possibilità di cura prima presente solo a grande distanza (ad esempio Siena o Arezzo) e dall’altro ottiene la possibilità di implementare l’afflusso di persone per attività riguardanti la cura e la salute del corpo che ad oggi è la principale fonte di turismo e prestigio della zona grazie agli stabilimenti termali.
Il piano di intervento nel sito si propone quindi di dare nuova vita alla preesistenza e nuova vitalità all’area in cui sorge. Questo intento è portato avanti tramite la riconversione e ristrutturazione di quanto possibile dello stabile principale (un elemento centrale della lunghezza di 97 metri in mattoni faccia a vista) e la realizzazione ex-novo di un altro edificio che insieme alla ex fornace andrà a completare il centro riabilitativo.
Se per quanto riguarda “la stecca” in laterizio l’intervento avviene solo internamente ed ha perciò delle dimensioni pressoché stabilite in partenza; per quanto riguarda il corpo di fabbrica di nuova realizzazione ci si attiene alle norme che prevedono il mantenimento dei volumi demoliti. Smantellando la quantità enorme di superfetazioni che nel corso del XX secolo sono state aggiunte al corpo principale, soprattutto sul retro, si realizza un edificio di pianta quadrata di circa quaranta metri di lato su due livelli, più uno interrato di servizi.
La conformazione scelta, successivamente spiegata nel dettaglio, prevede anche la possibilità di ampliamento qualora fosse ritenuta utile e necessaria, verso nord, dove è presente un lotto di terreno libero e quasi pianeggiante di dimensioni di poco inferiori a quello su cui sorge la nuova costruzione.
L’obiettivo finale è quindi quello di integrarSI in una realtà già carica di connotazioni e storia prendendo come esempio la capacità di inserimento nel contesto del lavoro dell’uomo che contraddistingue questa porzione di Toscana. Si vuole quindi realizzare un progetto di studio che sappia dare risalto e respiro al contesto, senza che da questo si faccia dominare, ma anzi, vi si imponga su e come nuova e vera realtà del luogo.
DAL CIELODal cielo si distinguono due elementi: un punto e una linea; uno accanto all’altra, così vicini, ma allo stesso tempo così distanti. Due forme elementari che denotano una diversa origine, una diversa natura, un diver-
Pagina a fianco:
Fronte est della ex fornace da laterizi Poggetti.
so percorso.
Il vecchio edificio, dalla forma facilmente riconoscibile e inequivocabile, definisce un asse preciso, un allineamento nord-sud che separa visivamente un territorio già morfologicamente distinto dai suoi elementi: ad est il terreno è immobile - una lastra - fino a quando non si innalza improvvisamente su quelle colline che però restano dolci e mantengono dei profili delicati; dall’altro lato invece la terra sprofonda seguendo percorsi scoscesi impervi e tormentati, per raggiungere, sul fondo, quel corso d’acqua che nel tempo ne ha tratteggiato la fisionomia.
Una posizione che trasforma l’oggetto in un gesto definito in origine e che sottolinea il suo protagonismo, il suo valore, la sua natura da regista che ridefinisce regole, forme e misure del proprio mondo.
Accanto alla “storia” sorge il nuovo: l’uno il complementare dell’altro. Divisi fisicamente, ma sotto molti punti di vista sono due corpi che collaborano per ricreare, nella diversità, un organismo completo.
Dal cielo appaiono due profili bidimensionali: la relativa altezza rispetto alle altre dimensioni schiaccia a terra i due corpi di fabbrica, a disegnare un territorio in cui per secoli è stata sfruttata la capacità grafica dell’Architettura.
Da un lato, ad est, la sagoma allungata del corpo centrale della vecchia fornace che mantiene ancora i suoi connotati originali si staglia a fronteggiare il paese di Serre di Rapolano che si arrampica sulla collina di fronte; dall’altro lato, ad ovest, inglobato nella natura emerge l’esattezza del quadrato: un oggetto che paragonato alle caratteristiche forme della campagna senese risulta astratto, ma che invece contiene in se un cuore primitivo che è la base del contesto in cui sorge. La dichiarazione palese della natura di questo oggetto si trova a sud nelle cave di travertino,
dove uno scavo individua un assenza, dove una sottrazione di materia diventa presenza tangibile della materia stessa.
Due forme, due vie, due linguaggi; una volontà di allontanarsi dal passato e di costruire un nuovo presente che è identificata da un taglio, da una separazione netta tra i due corpi di fabbrica che costituiscono un’unica realtà. Sette metri appena che dall’alto si percepiscono come una semplice incisione nel terreno, che spesso scompare oscurata alternatamente dall’ombra di uno o dell’altro oggetto.
Dal cielo - solo da questo particolare punto di vista - emerge con forza la dicotomia di linguaggi imposta; ed è sempre da qui che diventa percepibile l’elemento unificante dell’intero complesso: il candore dei blocchi costruiti. La materia che manca da uno scavo nel terreno sembra riposizionata a fianco di questa cava concettuale sotto forma di ciclopici parallelepipedi, addossati uno sull’altro oppure incastonati all’interno del sottile perimetro che i mattoni rossi dell’ex- fornace Poggetti definiscono.
Una linea, un blocco, un recinto, sono pochi gli elementi che costituiscono il repertorio alla base dell’intero progetto, perché sono questi stessi gli elementi utili ad astrarre un luogo e a concretizzare un’idea. Si insiste su un concetto: quello di due realtà tanto distanti e diverse, ma volontariamente poste così vicine a distinguersi e completarsi contemporaneamente: la realtà della cava e quella del mattone. Un concetto che si traduce in un linguaggio estremamente razionale, composto di una geometria di parallele e ortogonali che formano una maglia invisibile e unificante che si declina con leggere inflessioni nei muri di uno o nelle masse dell’altro edificio.
Al di fuori del costruito un parco, che per sancire ancora di più lo stretto legame col territorio è lasciato
Pagina a fianco: Planivolumetrico di progetto.
a verde e punteggiato da radi elementi alberati; si vuole perdere quel rigore che caratterizza il costruito. Come un mantra che si ripete per tutte le colline della Val d’Arbia l’uomo si impone con decisione sul territorio con la realizzazione di volumi che si integrano o si isolano dal contesto.
Nei pressi dei due laghi artificiali le cui rive vengono ridefinite dal progetto, sono pensati due padiglioni esterni dove poter sostare o intraprendere alcune terapie nei mesi caldi. Leggermente sospesi sfiorano l’acqua e rivelano un carattere primitivo rispetto alla realtà del nucleo principale. Qui sono semplicemente accennate quelle geometrie rigorose che la fanno da padrone altrove: se dall’esterno il linguaggio è sempre quello della giustapposizione di elementi lapidei, in pianta le linee parallele e ortogonali lasciano spazio a curve, linee oblique e pareti che si aprono completamente per lasciare libera la vista verso l’acqua che riflette l’azzurro del cielo e le colline verdi. Il progetto del nuovo Centro di Riabilitazione funzionale di Rapolano si compone quindi di due corpi principali, di due temi, di due realtà che vogliono ciascuna affermare la propria verità senza però smentire l’altra. Si crea quindi un dialogo tra due oggetti che sembrano parlare lingue diverse, ma che si riuniscono, attraverso una serie di dettagli più o meno nascosti, in uno stesso luogo e in una stessa origine: la Terra di Siena.
LA LINEA
È sicuramente molto diversa la percezione architettonica del vecchio corpo di fabbrica rispetto a quella che si poteva avvertire decenni fa. Se un tempo,
Pianta del padiglione esterno sud e del padiglione esterno nord.
Pagina successiva:
dall’esterno, la fornace si presentava come una muraglia impenetrabile, chiusa e imponente, oggi - al contrario - è un frammento, anche in senso letterale, di quanto era in origine. La copertura ormai quasi crollata del tutto lascia vedere il cielo al di sopra dei pilastri in mattoni che ancora resistono al suo interno; le finestre ormai senza più alcun tipo di infisso permettono, ora ancor più che un tempo, uno stretto dialogo esterno-interno che ha ribaltato il rapporto con il contesto. Dopo trenta anni di abbandono infatti l’ex fornace Poggetti è diventata un relitto immerso, o forse ancor meglio sommerso, nella natura circostante. Molte piante e anche veri e propri alberi sono cresciuti al suo interno ed altri vi sono penetrati dall’esterno, da quei passaggi ormai non più controllati che hanno reso l’edificio un diaframma permeabile tra due contesti che ora cercano indisturbati di riunirsi. Resta una sorta di reperto archeologico su vasta scala, che permette alla luce di irrompervi all’interno, dopo essere stata filtrata dalle pareti perimetrali e dai pochi elementi rimasti del tetto.
Un effetto, quello attuale, che forse per il fascino intrinseco della rovina, o per un senso di rispetto verso l’antico, non vuole essere stravolto. Il tempo ha plasmato questa realtà in un certo modo, ed è quindi giusto assecondarlo e partire proprio da dove lui è giunto per portare ad una nuova conclusione un discorso iniziato ormai quasi un secolo fa.
La prima scelta è stata quella di liberare completamente l’intero fabbricato delle sue strutture interne. Tra queste il forno di cottura che per quanto suggestivo mal si prestava a qualsiasi tipo di nuova destiPagina a fianco:
Prospetto est.
Da queste premesse inizia quindi la riflessione che ha condotto alla composizione di un nuovo oggetto, frutto dell’unione del nuovo col vecchio, del passato col presente.
nazione d’uso data la sua poca altezza e gli spessori enormi delle sue pareti.
È stato quindi deciso di aprire completamente l’oggetto a sud e nord trovandosi così a confronto con un cannocchiale aperto in due direzioni opposte, e completamente vuoto. Diventa il recinto il tema dominante, quel limite composto dalle pareti est ed ovest della fabbrica, caratterizzate da tre ordini di aperture che ne fanno quasi una rete piuttosto che un muro. Dalla volontà quindi di creare un qualcosa che possa essere esemplificato come un oggetto dentro un oggetto è nata la necessità di indagare a fondo l’area stretta e lunga - in rapporto di 1 a 5 circa - in cui si andava ad intervenire. Da un primo sguardo si è da subito super-imposta alla base dell’intero progetto la mutevole rigidezza della scansione della vecchia fornace. Il sistema portante di pilastri (inglobati nei muri esterni, e interni all’edificio) definisce una maglia pressoché regolare con un passo di 4,5 metri, che viene visibilmente non rispettato solo nella penultima campata a nord dove sorpassa abbondantemente i 5 metri. Questa scansione per quanto non esattamente precisa ha da subito posto l’accento per una composizione planimetrica interna che si adeguasse al perimetro esterno e potesse sfruttarne al meglio le dimensioni e l’apporto di luce. Un’analisi dell’alzato ha inoltre evidenziato come i vari ordini di aperture non fossero compatibili con la realizzazione di tre livelli sovrapposti, come invece verrebbe da pensare in un primo momento: il primo ordine di finestre si trova infatti ad una quota di circa tre metri. Per rispondere alle esigenze funzionali e agli stingenti presupposti appena citati è stato deciso di far ricorso a due soli elementi compositivi: una cortina di vetro e acciaio e dei blocchi in muratura, che combinati insieme realizzano l’idea di base
Pagina a fianco: Pianta piano terra.
La prima svolge l’importante compito di riunire l’intero ambiente sia formalmente che strutturalmente. Uno scheletro in acciaio che riprende le forme e il profilo della vecchia copertura è rivestito di lastre di alluminio dipinte di scuro, così da conferirgli un aspetto semplificato al massimo nella forma ed un’immagine estremamente seriale, . Dove un tempo c’erano le tegole e i coppi prodotti dalla stessa fornace, ora c’è un involucro cristallino che permette ai raggi del sole di sprofondare all’interno del corpo di fabbrica. La quantità enorme di luce che così può illuminare gli ambienti è filtrata in alto dal sistema di capriate e arcarecci che realizzano un gioco di intrecci di ombre estremamente mutevole e complicato che si propaga, spezzandosi e piegandosi in ogni parete, per tutta la lunghezza dell’intervento. Una sorta di gabbia di luce che individua un esterno ed un interno all’interno della fornace stessa. Solo una fascia centrale di 8 metri di larghezza , infatti, risulta coperta ed individua quello che è il connettivo tra quegli elementi che si innestano all’interno della fornace, come presenze apparentemente estranee, e in cui si svolgono le vere e proprie funzioni del centro.
Al di fuori l’aria! Un esterno vero e proprio che conferisce respiro sia planimetricamente che oggettivamente al complesso. Due fasce verdi, punteggiate di alberi dalla chioma ridotta in larghezza ripercorrono quell’idea di unione tra uomo e natura, costruito e natura, che sta alla base dell’identità del luogo. Una sorta di riorganizzazione del verde incontaminato che spontaneamente ha preso possesso dell’edificio. Con la semplicità più assoluta, poi, quattro parallelepipedi alti otto metri (precisamente quanto i muri della ex fornace) si dispongono alternatamente lungo i cento metri di sviluppo del recinto esterno. Tre di essi sono distaccati dalle pareti, lasciando spazio a quel
Esploso assonometrico dell’intervento all’interno della fornace.
Pagina a fianco:
Vista interna della fornace.
diaframma a cielo aperto tra la preesistenza e le nuove costruzioni. Al piano terra, dove sono posizionati gli ambulatori generici e le stanze per la terapia del linguaggio, delle grandi aperture si aprono in corrispondenza delle arcate della fornace, così da permettere anche dall’interno degli ambienti un rapporto visivo diretto col contesto; al livello superiore le stanze destinate all’area amministrativa e dedicate allo staff sono dotate di semplici finestre, che per riprendere il tema sviluppato sotto, risultano posizionate perfettamente in linea con quelle di fronte del diaframma in laterizi. All’estremità sud invece si trova l’unico elemento della composizione che si appoggia al muro di mattoni. Questo è reso possibile, nonostante le limitazioni imposte dalle aperture, dal doppio volume del locale della caffetteria che si sviluppa per tutta l’altezza disponibile senza interruzioni intermedie. Un ambiente estremamente arioso che si pone in diretto contatto con la sala conferenza al primo livello che si affaccia su di esso e da esso prende luce.
Il risultato è una fornace ricostruita e ricostituita, con la sua insegna che ancora campeggia verso il paese di Serre. Come afferma anche R. Koolhaas nel descrivere la Fondazione Prada:
“Il progetto […] non è un’opera di conservazione e nemmeno l’ideazione di una nuova architettura. Queste due dimensioni, in genere distinte, qui coesistono e si confrontano reciprocamente in un processo di continua interazione, quasi fossero frammenti destinati a non formare mai un’immagine unica e definita, in cui un elemento prevale sugli altri.”31 .
Verso ovest, verso i vecchi punti di estrazione dell’argilla trova spazio un nuovo corpo di fabbrica: una sorta di monolite astratto che con forza e decisione si impianta in un preciso contesto. L’innesto avviene in modo quasi irruento; non è il classico edificio rustico che si adagia sulle colline senesi e che sembra scavato o ricavato con grazia dal terreno; questo è un enorme blocco di pietra – di travertino – che seguendo le orme dei grandi protagonisti architettonici di queste terre (chiese, castelli, mura difensive e fornaci) impone la sua presenza allo spazio. Se nella fornace è proprio la preesistenza - il recinto di mattoni - a dettare le regole, in questo caso è una nuova idea che definisce le linee guida del progetto, cioè quella di ricreare nel complesso un binomio materico-concettuale. Da un lato l’argilla che si trasforma in laterizi per mezzo del lavoro dell’uomo, dall’altro la cava di travertino che si smembra in unità che poi sono ricomposte e riposizionate. Da un lato il linguaggio del muro e della parete costruita che si piega e si chiude a ricreare nuovi ambienti; dall’altra il linguaggio del pieno e della massa che scavata dà origine agli spazi di vita. Da un lato la serialità e la regolarità dello spartito architettonico, dall’altra una mutevolezza che prende le mosse dalla natura stessa che mai crea un oggetto identico ad un altro. Per rendere concreto questo proposito, e creare un filo conduttore pressoché invisibile con la preesistenza è stata realizzata una griglia a maglia quadrata il cui modulo base è la metà di una campata della fornace. Su questa suddivisione dello spazio è stato poi realizzato un lavoro per sottrazione. La prima e più evidente è lo scavo esterno all’edificio, una piazza interrata in cui trovano posto i parcheggi del persona-
le, e che sta ad indicare la mancanza di una parte di materia che è stata riposizionata poco più distante. Un nuovo volume infatti, un quadrato di quarantadue metri di lato, sorge austero in stretta vicinanza con la lunga infilata prospettica della fornace. Un elemento chiuso, all’apparenza impenetrabile, che lascia insito un dubbio nello spettatore riguardo alla sua origine: un’unità che è stata divisa in blocchi, o più unità che si ricompongono in un blocco unico?
Dall’esterno risulta difficile comprendere ciò che solo una volta entrati sarà chiaro.
I fronti dell’edificio sono infatti chiusi il più possibileermetici - a voler distinguere questa nuova realtà incastonata nelle colline ondulate delle crete. Le aperture sono centellinate, posizionate solo dove servono e mascherate sotto forma di grandi intagli nelle superfici chiare delle pareti esterne. A sud, dove al piano superiore trovano spazio le camere di degenza, è necessario un apporto di luce diretta che trova la sua soluzione in una compattezza materica delle superfici che si riallaccia, benché con un materiale diverso: il vetro, alla compattezza del perimetro dell’intero edificio. Le uniche vere e proprie finestre a vista diretta si trovano nel fronte est, quello che guarda la fornace, quasi a voler continuare per osmosi un tema tanto vicino fisicamente, ma allo stesso tempo molto lontano. Da un punto di vista planimetrico ogni livello è una sottile declinazione di uno stesso concetto, che pervade l’edificio in tutti i suoi aspetti: la cava, la sottrazione, l’assenza. Al livello seminterrato avviene quella che è una separazione netta tra esterno ed interno. Come nelle cave, i fronti ripidi da cui si estrae la pietra si stagliano contro i vuoti lasciati dalla precedente sottrazione di materia; secondo questo principio, in questo punto, le pareti dell’edificio fronteggiano due piazze alberaPagina successiva:
Vista esterna dal lato ovest.
Pagina a fianco:
Pianta piano primo.
te adiacenti. A separazione dei due vuoti, cioè della zona del parcheggio dallo stabile, vi è una fascia di ambienti in cui trovano alloggio tutti i locali tecnici a servizio del centro riabilitativo; in una posizione che consente di avere la possibilità di effettuare controlli e manutenzioni senza dover entrare all’interno dell’edificio stesso. Dall’alto il tutto viene mascherato per mezzo di una copertura verde che dissimula e si unisce alle colline circostanti, rendendo visivamente meno impattante l’intervento. Questo sistema esterno è realizzato appositamente per garantire due distinti percorsi di accesso: uno dall’esterno ipogeo verso l’edificio che è riservato ai soli dipendenti del centro, ed un altro, che proviene direttamente dal piano terra, di collegamento comune. Questa duplicità e distinzione netta si riflette anche nelle zone d’uso: le stanze a sud sono adibite ad uso esclusivo del personale ospitando tra le varie cose spogliatoi, sala pranzo, cucina e magazzini, mentre i sevizi posti al di là della corte interna – spartiacque e fulcro del livello – contengono i locali della diagnostica per immagini, a servizio quindi dei pazienti. Ad ovest, a contatto con la terra, trova spazio l’ampio magazzino di stoccaggio. Il tutto si compone per mezzo di elementari unità funzionali, separate una dall’altra da un vuoto che diventa importante tanto quanto il pieno.
La serialità dei prodotti delle cave, non l’uguaglianza assoluta di essi, è qui riproposta in chiave funzionale. Ogni stanza si mostra come un elemento base di composizione: una scatola chiusa la cui massa è confermata dalla presenza insistente dell’angolo che definisce anche gli ingressi.
Il piano terra è il livello principale: è sia quello dove si accede al centro di riabilitazione che quello dove si svolgono le varie tipologie di trattamento. Qui i vari
ambienti sono suddivisi in blocchi funzionali, ciascuno con delle proprie caratteristiche planimetriche che lo rendono unico. Un sistema di pieni e di vuoti definisce quella che sembra una cava a cielo aperto: tra le varie unità costruite si fa spazio l’esterno che irrompe all’interno dell’edificio tramite dei passaggi, più o meno ampi, e una corte centrale che collega in verticale tutti i livelli dell’edificio.
La sala di aspetto, immediatamente adiacente all’ingresso, rende palese quel concetto dubbio sull’origine che invece i fronti esterni – muti – lasciavano irrisolto. La stanza è un cubo rivestito interamente di travertino, di circa nove metri di lato: un doppio volume austero definito da tre segni: tre pareti una diversa dall’altra ricreano anche in pianta un quadrato. Ma benché dal disegno possa essere considerata la massa la vera protagonista di questo oggetto, ci si accorge invece che non è così. È la luce, solida e potente, che stacca con forza ogni elemento da quello adiacente. Essa penetra all’interno tramite dei tagli a tutta altezza delle pareti perimetrali, e dall’alto tramite un ampio lucernario (un quadrato di 2,5 metri di lato) dal quale perfora il profondo solaio ed illumina con un fascio diretto l’ambiente sottostante, trasformandolo in un impluvium di luce. La chiarezza con cui qui si rivela il tema del blocco di travertino scavato dalla luce è elementare e diventa il filo conduttore dell’intero livello, ma più in generale dell’intero progetto. Le grandi aperture perimetrali che separano nettamente una stanza dall’altra rendono questo effetto con un vuoto che si riempie di un ricco quanto semplice gioco di chiaro-scuro. Le corti, ben tre e tutte di forma quadrata, contribuiscono ad illuminare ogni zona del piano. La materia viene smembrata, gli angoli tanto possenti delle murature imponenti vengono annullati e resi parte di una superficie omogenea. Al lavoro
Esploso assonometrico del nuovo corpo di fabbrica.
dell’uomo nella cava qui si è sostituito quello del sole. Le molteplici funzioni che richiede il centro in questione hanno comportato la ricerca di una essenziale gerarchia degli spazi che si traduce in una divisione netta tra spazi serviti e gli spazi dei servizi caratterizzati da un design compatto ed austero, senza concessioni a beneficio (per contrasto) dei primi. È proprio la già citata sala di attesa principale il primo di quegli elementi che spicca nella moltitudine di geometrie pure che compongono l’insieme. Il cambio di scala, la verticalità dell’elemento, il suo rivestimento lo rendono assolutamente unico nel contesto. L’angolo adiacente: quello che esternamente sembra un monolite puro ed unico che ricongiunge i due prospetti contigui nord e ovest all’interno nasconde tutt’altra entità. Qui si trova l’ambiente riservato all’idroterapia che non si distingue solo per la presenza dell’acqua, ma anche e soprattutto per quel cambio repentino di forma: fuori un austero parallelepipedo, dentro un cilindro, anche in questo caso a doppio volume. Qui però la luce assume tutta un’altra sembianza, non è un fascio netto e tagliente, ma una corona luminosa che in copertura ritaglia una porzione di materia che sembra sospesa sul nulla, pronta per essere estratta. Estratta, proprio come l’ambiente della palestra che occupa l’estremità sud: è questo infatti l’unico elemento di tutto il complesso a rompere il perimetro, proprio come se venisse tolto dalla sua collocazione. Planimetricamente la stanza è composta di quattro pareti, separate distintamente l’una dall’altra, con una forma a cuneo che ricorda le schegge rotte, i frammenti saltati dai blocchi di pietra di dimensioni maggiori. Nella porzione che fuoriesce due temi si incontrano e si completano: da un lato due enormi aperture mettono lo spettatore al centro di una doppia visuale che da una parte traguarda l’orizzonte, il
lago e il suo padiglione, mentre dall’altro si affaccia sulla fornace. Un asse visivo che ricuce un paesaggio che sembrava lontano, ma che invece entra, anche materialmente all’interno del progetto. Dall’alto una copertura rivestita in lastre di alluminio è completamente traforata da oblò circolari con un diametro di sessanta centimetri, quasi fosse stata saggiata con una serie ininterrotta di carotaggi. Da questi cilindri penetrano all’interno della stanza decine di fasci luminosi che irradiano l’ambiente di una luce diretta sempre mutevole.
Il tema dello scavo si declina in modo ancora diverso al livello superiore. Quello che appare qui è una fascia perimetrale compatta e seriale (soprattutto sul lato sud che occupa le camere di degenza), un corpo saturo di elementi che lascia al centro degli spazi quasi totalmente liberi in corrispondenza delle corti. È come se la materia fosse stata risucchiata dai vuoti sui solai che si affacciano al piano inferiore.
I tagli verso l’esterno diventano affacci che, da quest’altezza, permettono una vista ampia e chiara dell’intero paesaggio: i bacini d’acqua e le crete ad ovest, le colline coltivate punteggiate di cipressi a nord e a sud, la fornace ad est. L’assenza di elementi di ostacolo allo sguardo, e quindi la presenza di allineamenti di vuoti, permette una visione quasi a trecentosessanta gradi dall’interno verso l’esterno. È un gioco di viste che si serve di quelle aperture che diventano cannocchiali di luce aperti sull’orizzonte: assi prospettici che attraversano con irruenza l’edificio e lo riconnettono al contesto.
Pagina a fianco:
Vista di una camera di degenza.
La Cortina di Vetro _ Una delle prime esigenze di una struttura sanitaria è la sua sicurezza, per questo da subito è stata presa in considerazione la necessità di stabilizzare la porzione di rudere che il progetto prevede di mantenere. I due fronti lunghi della ex fornace – quello est e quello ovest – sono lasciati intatti a disegnare un recinto, un limite permeabile, che definisce il perimetro dell’intervento sulla preesistenza. La forte impronta geometrica e razionale dell’edificio ha suggerito da subito un tipo di operazione che andasse ad integrarsi e allo stesso tempo a consolidare le imponenti pareti in laterizio. La scelta è ricaduta dunque in una struttura in acciaio che svolge una doppia funzione: da un lato stabilizza la preesistenza e dall’altro crea un ambiente estremamente luminoso che intreccia i propri giochi di luce con quelli generati dalle aperture sul muro esterno in laterizio. La maglia delle travi in acciaio si compone di due elementi principali: una serie di travi addossate alle pareti ed una serie di travi centrali che invece definisce la zona coperta di questa parte del centro riabilitativo. In entrambi i casi l’elemento che esternamente appare come un’entità unica (un unico pezzo) di acciaio ossidato che contrasta con il colore del laterizio a denunciare la sua presenza, internamente è un oggetto composito. Il cuore di questi accenti verticali è un sistema di due travi HEB160 collegate tra loro e con l’anima parallela alla direzione della fornace. Quelle in contatto con la preesistenza si collegano direttamente ad essa tramite delle barre di acciaio lungo la parete, mentre alla sommità accolgono l’elemento trasversale – capriata – anch’esso in acciaio rivestito che compone la copertura. Gli elementi verticali centrali invece svolgono, da un
Pagina a fianco:
Pianta e sezione della nuova struttura in vetro e acciaio.
punto di vista strutturale, una funzione di rompi-tratta, che alleggerisce la spinta degli elementi obliqui sulla preesistenza; allo stesso tempo sono i principali punti di ancoraggio delle vetrate che racchiudono lo spazio interno coperto.
La copertura ripropone in chiave moderna quella che era la struttura di base che sorreggeva il vecchio tetto: un sistema di ventidue capriate in acciaio che nel nuovo intervento ricuciono due linee di memoria. Anche in questo caso ogni elemento è ricoperto con un rivestimento in acciaio ossidato che appare alla vista come un corpo pieno e compatto; all’interno invece si nasconde un tipo di capriata Warren dell’altezza di circa ottanta centimetri. Ognuna di queste lame, attraversa le travi centrali, che in alto si aprono come la cruna di un ago e si incastrano all’interno del sistema composto adiacente alla parete in laterizio. Orizzontalmente poi una serie di arcarecci – scatolari in acciaio 140 – ricollegano ognuno di questi elementi. Con questo sistema si risolve il problema della stabilità della preesistenza, e nello stesso momento si ricrea in alto quella maglia geometrica che in basso è alla base della definizione del sistema planimetrico del progetto. Un intervento che sottolinea la sua presenza contrastandosi contro il rosso dei mattoni e l’azzurro del cielo, ma che cerca di rimanere il più silenzioso e defilato possibile, intervenendo solo in unione con l’esterno in un ricco gioco di luci e ombre.
In ogni struttura sanitaria esiste una primaria suddivisione di aree di pertinenza - area pubblica, area di pertinenza del personale dipendente e zona merciche deve tentare di mantenersi ad ogni livello della
Pagina a fianco:
Schema planimetrico dei flussi : - in grigio la viabilità esistente: - in giallo la viabilità pubblica; - in arancio la viabilità a servizio dello staff e del trasporto merci.
progettazione.
Questa distinzione inizia a livello di generale di planivolumetrico, dove i flussi in ingresso e uscita dal centro risultano suddivisi tra quelli ad uso degli utenti e quelli ad uso dello staff. I primi attraverso una rotatoria realizzata lungo la strada provinciale sono direzionati direttamente di fronte allo stabile, da qui una percorrenza a senso unico che da nord fiancheggia il prospetto est della fornace conduce le autovetture al parcheggio ad uso esclusivo dell’utenza. Di fronte a questo nuovo svincolo stradale si trova una pensilina (idealmente in connessione con la lama che definisce l’ingresso baricentrico della struttura) che permette la discesa immediata degli utenti e la ripartenza di chi – come i mezzi pubblici – non necessita di una permanenza prolungata.
Un altro ingresso separato dal precedente e posto all’estremità sud del lotto è a servizio del personale del centro e del trasporto merci. Questi due percorsi si sovrappongono in questa carreggiata a doppio senso di marcia che conduce ad un livello inferiore dove si trovano i locali tecnici e l’ingresso al piano seminterrato. A questa quota un percorso a senso unico antiorario suddivide i flussi del personale da quelli per il trasporto di merci e materiale tecnico.
La separazione di percorsi sopra citata è cercata di essere mantenuta anche all’interno della struttura. Al piano inferiore c’è una divisione netta delle aree di pertinenza: a sud l’ingresso del personale dipendente del centro indirizza lo staff verso gli ambienti a lui dedicati. Dei collegamenti appositi consentono di raggiungere le stanze di diagnostica per immagini e le altre parti della struttura (sia nella nuova costruzione che nella ex fornace) tramite dei collegamenti verticali dedicati.
Pagina a fianco: Esploso assonometrico riportante la distinzione delle aree di pertinenza all’interno della struttura.
spazio utenti
spazio personale
ingresso utenti
ingresso personale
ascensori ad uso del personale
scale ad uso del personale
ascensori ad uso pubblico
scale ad uso pubblico
Pagina a fianco:
Esploso assonometrico con la distinzione dei collegamenti verticali.
Pagine successive:
Esploso assonometrico con distinzione delle macro aree funzionali.
Schemi planimetrici del sistema antincendio.
Questa distinzione di aree si ripropone al primo piano dell’edificio rivestito in travertino dove il reparto delle degenze è separato dall’accesso del pubblico e in ogni caso, durante l’orario di visita, controllato tramite un punto di accoglienza baricentrico ai vari punti di ingresso.
Il piano terra invece, dove si svolgono i vari tipi di terapia, è composto per unità funzionali, ciascuna relativa ad un tipo di trattamento svolto. L’intero livello è quindi pensato ad uso pubblico con punti di appoggio tecnici (depositi di attrezzature, stanze del personale) disseminati in maniera omogenea all’interno dei vari blocchi così che ognuno di essi possa essere autonomo.
L’angolo sud est del complesso è in ogni caso sempre riservato al personale, creando così una sorta di torre verticale che collega i tre livelli e resta a solo uso dello staff di servizio.
Nella parte della fornace il piano terra è trattato come nel caso precedente, mentre il piano superiore ha la testata npord dell’intervento ad uso esclusivo dello staff.
Da un punto di vista funzionale la struttura si compone di sei macro-zone: 1-area dipendenti, 2-servizi al pubblico, 3-aree di terapia, 4-degenza, 5-area amministrativa, 6-ambienti tecnici e di deposito.
La composizione è piuttosto omogenea al piano terra e al livello seminterrato dello stabile nuovo dove si concentrano in un caso gli ambienti per la terapia e nell’altro le aree dedicate allo staff. Allo stesso modo accade al livello superiore dell’intervento all’interno della preesistenza che risulta dedicato quasi interamente a funzioni di tipo amministrativo.
Le altre parti del progetto sono invece più eterogenee da un punto di vista compresenza delle varie fun-
servizi e spazi per utenti
servizi e spazi per dipendenti
spazi di terapia
area consultiva/amministrativa
area di degenza
area tecnica e di deposito
uscita di emergenza
scale antifumo
uscita di emergenza
scale antincendio zona diaframma aperta
zioni, per esigenze sia organizzative che progettuali.
Per quanto riguarda la sicurezza della struttura le norme antincendio prevedono compartimenti antincendio di una dimensione massima di 1500 m2: nel caso dell’intervento nella ex fornace questa metratura non viene raggiungiunta anche sommando i due livelli; per questo motivo sono necessarie solo delle scale antincendio con protezione REI a fuoco e delle uscite di emergenza distanziate di 25 metri l’una dall’altra. Queste conducono a quello spazio di diaframma tra i nuovi elementi e il vecchio corpo della fornace, un’area aperta e direttamente collegata con l’esterno. Il padiglione ad ovest invece, su pianta quadrata di circa quaranta metri di lato, non potendo rientrare in un unico compartimento prevede la presenza di due scale antifumo, con vestibolo di ingresso e cavedio centrale per gli impianti di aspirazione. Data la conformazione planimetrica dell’oggetto le uscite di emergenza, sono posizionate lungo il perimetro e portano direttamente all’esterno della struttura: verso il parco ad ovest e nord, verso l’ingresso e la zona dei parcheggi ad est e sud.
Pagine successive:
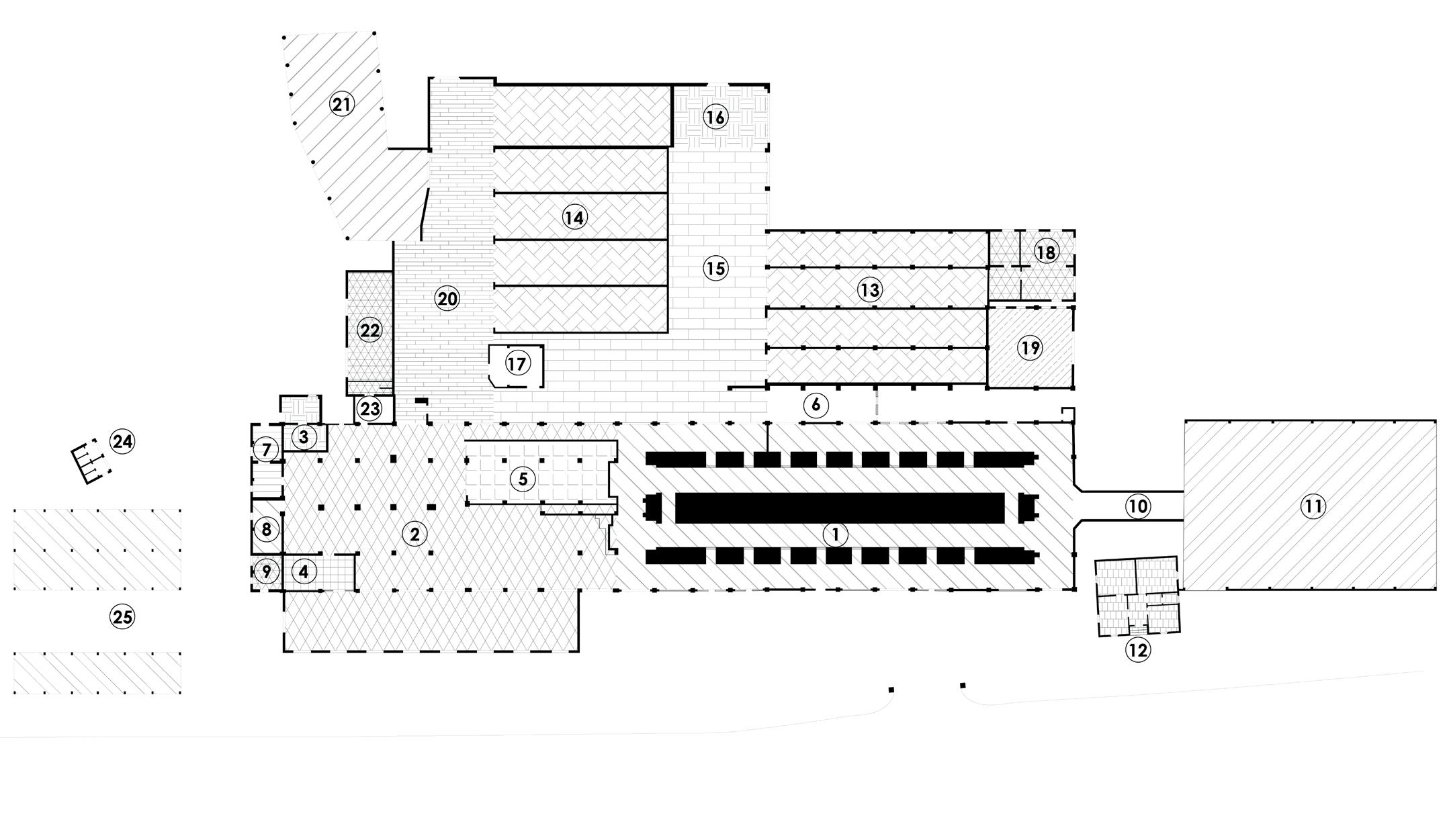
Piante dei vari livelli con legenda dei vari ambienti.
piano seminterrato