Skip to main content

Portafolio Arq. Marco Castillo M.

Page 1


Marco Castillo | Trabajos Destacados

email: marco.castilloms@udlap.mx

LinkedIn: Marco Castillo Macías

Estudiante de arquitectura próximo a egresar de la Universidad de las Américas Puebla.

Apasionado por la arquitectura sostenible, el diseño conceptual y la integración de tecnologías constructivas desde las primeras fases del proyecto. Busco integrarme a equipos donde pueda aportar pensamiento crítico, capacidad de investigación proyectual y habilidades técnicas en el desarrollo de arquitectura contemporánea.

./Curriculum Vitae

Formación Académica Concursos

2021-Presente Licenciatura en Arquitectura Universidad de las Américas Puebla Promedio acumulado: 9.0 / 10 (hasta el momento)

Programas

Modelado y BIM

Concurso Internacional 2025 Architecture and Innovation for the Sea Fondation Jacques Rougerie Participante

- Desarrollo de propuesta enfocada en innovación arquitectónica en entornos marinos.

- Modelado Arquitectónico 3D y elaboración de material gráfico.

- Producción de láminas y memoria descriptiva.

- Trabajo colaborativo bajo criterios y lineamientos competitivos internacionales.

Revit Photoshop Illustrator

Rhino Grasshopper

General Visualización Técnico

InDesign

Microsoft Office AutoCad SketchUp V-Ray

Experiencia

Mayo - Julio 2024 Puebla, Puebla.

ORIS Construcción Deportiva Practicante

- AuxiliarenSupervisiónyControlTécnicodeObra -DesarrollodeVisualizacionesArquitectónicas -RevisiónyValidacióndePlanosEjecutivos

Idiomas

Español - Nativo Inglés - Avanzado

1.

Pág. 5

Pág. 19

Centro de Rehabilitación y Prevención de Adicciones
2. Proyecto Obregón
3. Coriolis
4. Casa Morelos
Pág. 31
Pág. 43

Centro de Rehabilitación y Prevención de Adicciones

Ubicación: Puebla, México

Año: 2025

Este proyecto propone un equipamiento urbano orientado a la rehabilitación, prevención y reintegración social frente al creciente consumo de sustancias en jóvenes en contextos urbanos vulnerables.

Ubicado en Amalucan, Puebla, el edificio se plantea como una infraestructura híbrida que integra tres núcleos funcionales: atención clínica, prevención comunitaria y reducción de riesgos. La organización espacial responde a la necesidad de separar flujos sensibles, garantizar privacidad terapéutica y, al mismo tiempo, mantener una relación abierta con la comunidad.

Formalmente, el proyecto parte de un bloque base que es intervenido mediante sustracciones y adiciones, como metáfora del proceso de recuperación humana: un cuerpo en transformación constante. Los vacíos permiten la entrada de luz y ventilación natural, generando espacios introspectivos, mientras que los volúmenes añadidos simbolizan redes de apoyo y crecimiento.

Más que un centro cerrado, se concibe como un dispositivo urbano visible y reconocible, que busca desestigmatizar la atención a las adicciones y convertirla en parte activa del tejido social.

Centro de Rehabilitación y Prevención de Adicciones

IsométricoVolumenGeneral

5. Recepción
6. Salón de Grupos de Apoyo
1. Salón Usos Multiples
2. Administración
3. Sanitarios
4. Sala de Espera
PlantaBaja
5. Oficinas Generales
6. Oficinas Servicio Social
1. Urgencias
2. Consumo Seguro
3. Sanitarios
4. Recepción
7. Consultorio Psicológico
8. Consultorio Médico

Centro de Rehabilitación y Prevención de Adicciones

FachadaEste

1. Dormitorios

2. Baños Comunitarios
3. Sanitarios
4. Recepción
7. Comedor
8. Cocina
PlantaNivel1

CorteLongitudinal

FachadaSur

Centro de Rehabilitación y Prevención de Adicciones

FachadaNorte
CorteTransversal

Centro de Rehabilitación y Prevención de Adicciones

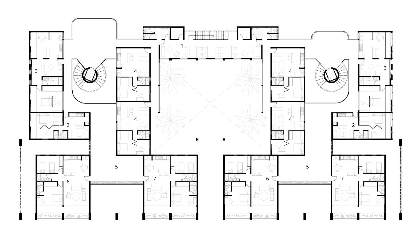
Proyecto Obregón

Ubicación: Mexicali, Baja California. México

Año: 2024

Colaboración: Alejandro Vargas López, Santiago Mones del Barco y Cesar Arenas Castillo

Este proyecto aborda la vivienda colectiva en un contexto climático extremo, caracterizado por altas temperaturas y radiación solar intensa.

La propuesta desarrolla una estrategia volumétrica que optimiza la orientación, la protección solar y la ventilación cruzada. Se prioriza la generación de espacios intermedios, patios y sombras profundas que reduzcan la carga térmica y mejoren el confort pasivo.

La organización programática busca equilibrar privacidad y comunidad, integrando circulaciones exteriores y áreas compartidas que favorezcan la interacción vecinal sin comprometer la intimidad doméstica.

5. Cuarto de Máquinas
6. Sanitarios
1. Porticado
2. Área Comercial
3. Área Pública
4. Tarima
7. Estacionamiento
8. Rack de Bicicletas
9. Caseta de Vigilancia
2. Área Comercial
PlantaBaja

IsométricoExplotado

5. Departamento Ind. Tipo II
6. Departamento Ind. Tipo III
1. Cancha Basquetball
2. Recepción
3. Co-Working
4. Departamento Ind. Tipo I
7. Área Común
PlantaNivel1

FachadaPrincipal

5. Área Común
6. Departamento Fam. Tipo I
1. Co-Working
2. Departamento Ind. Tipo I
3. Departamento Ind. Tipo II
4. Departamento Ind. Tipo III
7. Departamento Fam. Tipo II
FachadaEste
FachadaEste

Coriolis

Ubicación: Tahití, Polinesia Francesa

Año: 2025

Colaboración: Cesar Arenas Castillo

La Ciudad Marina explora un modelo de asentamiento flotante y modular orientado a la resiliencia climática y la expansión sostenible del hábitat humano hacia el mar.

El proyecto investiga sistemas estructurales modulares, plataformas flotantes interconectadas y estrategias energéticas autónomas, incluyendo captación solar y potencial integración de tecnologías oceánicas. Se plantea una organización urbana basada en nodos funcionales: vivienda, producción, recreación y servicios.

Más que una propuesta formal, el proyecto funciona como laboratorio de investigación sobre nuevas tipologías habitacionales, autosuficiencia energética y adaptación territorial frente al aumento del nivel del mar.

Emplazamiento
FachadaNorte

Casa Morelos

Ubicación: Oaxaca, México

Año: 2024

Colaboración: Alejandro Vargas López, Santiago Mones del Barco y Cesar Arenas Castillo

Este proyecto desarrolla una vivienda híbrida para un chef profesional cuya casa funciona simultáneamente como espacio doméstico y como lugar de talleres y degustación gastronómica.

El principal desafío fue comprender el programa desde la lógica productiva de la cocina profesional: flujos diferenciados entre servicio y vivienda, almacenamiento especializado, ventilación, control de olores, áreas de preparación, zona de degustación y relación directa con el comensal.

La arquitectura se organiza en estratos adaptados a la pendiente natural del terreno, utilizando la sección como herramienta principal de diseño. En lugar de imponer una plataforma artificial, el proyecto se escalona, permitiendo que cada nivel dialogue con el paisaje y genere vistas controladas.

La zona de degustación se concibe como un espacio intermedio entre lo doméstico y lo público, donde la experiencia culinaria se integra con la arquitectura a través de iluminación natural controlada, materialidad cálida y una relación directa con el exterior.

Más que una vivienda convencional, el proyecto explora la casa como espacio productivo, cultural y experiencial.

Casa Morelos
PlantaBaja
PlantaNivel1
Casa Morelos
RenderCocina

IsométricoconPropuestadeVegetación

CorteLongitudinal

Casa Morelos
Casa Morelos
Gracias.

email: marco.castilloms@udlap.mx

Turn static files into dynamic content formats.

Create a flipbook
Portafolio Arq. Marco Castillo M. by MarcoCasM - Issuu