






![]()







Location: Buffalo, NY, USA
Group Work, Team Member: Maosen Xu, Guorun Yang, Zifan Wang
In response to the devastating mass shooting in Buffalo, NY, targeting the African American community, our project proposes a transformative urban memorial and cultural center. This initiative, emerging from the site of a local grocery store, aims to celebrate African American culture, particularly through its performing arts like jazz, rap, and street dance. Our design, a blend of long strips and volumes intricately woven into the urban landscape, stands as a testament to resilience and cultural empowerment.

The Tops Friendly Market site in Buffalo’s East Side is steeped in historical and socio-political significance. Predominantly African American, this area has been impacted by discriminatory real estate policies like redlining and blockbusting, which have limited homeownership and perpetuated racial disparities. Efforts by African American families to integrate into white neighborhoods often involved paying above-market prices, highlighting ongoing struggles against systemic inequality.
Additionally, the Kensington Highway, replacing Park Avenue, has created a stark division between the city’s white and black communities. This infrastructure change facilitated white flight to the suburbs, further entrenching urban segregation. This background is key to understanding the complex dynamics of the neighborhood.


Abstract Reasearch Model



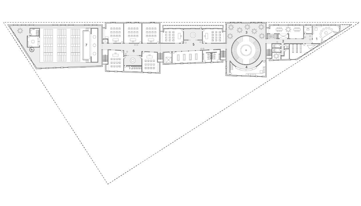
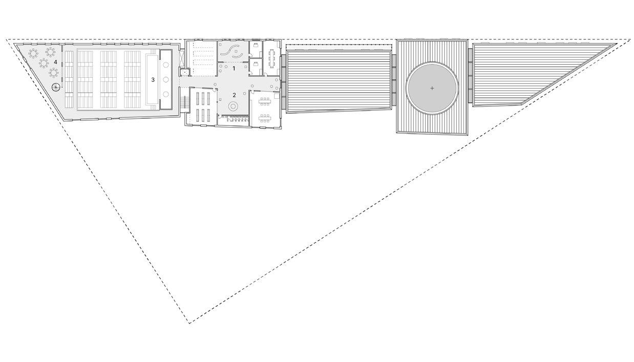
In response to the transformative journey of healing from the shooting, we have thoughtfully designed our project with ten principal strips, each symbolizing one of the ten lives lost. These strips form the foundation of our innovative skating park. This design choice aims to shift the community’s focus from the shadow of the tragedy to a more vibrant and hopeful future.
Elevated atop these symbolic concrete strips, we have integrated four distinct spaces, each offering a unique setting that celebrates and supports the rich cultural tapestry of the African American community. These include an outdoor performance area dedicated to street dance and rap, a bar designed for jazz performances accompanied by refreshments, and a more formal theater for hosting shows and concerts.












Additionally, we have retained the original function of a grocery store, expanding it to include a free market space. This area offers local business owners and individuals the opportunity to not only generate new income but also to prominently showcase and promote local culture.
In a respectful nod to those who have passed, these spaces are designed to be semi-underground, symbolizing both remembrance and reverence. This thoughtful design intertwines memory with progress, offering a space for community engagement, cultural expression, and economic revitalization.




Location: Ithaca, NY, USA Group Work, Team Member: Maosen Xu, Luyao He
This project began with an immersive exploration led by Christa, the owner of the farm, setting the stage for the design journey. Our repeated visits to the site revealed the shifting beauty of the seasons, from alpacas basking in the spring sunlight to the earthy scent of renewal. These moments evoked a sense of movement through the landscape, reminiscent of Tsumi’s Manhattan script, and became the inspiration for our concept: the Promenade.
Embracing the Situationist idea of ‘dérive,’ or drifting, our design invites visitors to traverse interconnected paths under transparent glass roofs. These luminous corridors guide people through a choreographed sequence of spaces, creating a narrative experience akin
to a cinematic journey. This approach enhances learning and discovery, seamlessly linking all points of interest along the promenade.
Structurally, we chose steel for its efficiency and resistance to mold, essential for a food processing environment. The open floor plan, supported by strategic bracing and shear walls, contrasts with a rural wood façade, blending industrial technology with the landscape. Lighting, both natural and curated, shapes the sensory experience, using pendant and recessed fixtures to balance functionality and ambiance. Together, these elements create a harmonious, experiential design rooted in movement, light, and the landscape’s dynamic essence.
The promenade begins at the visitor center, envisioned as the central gathering point where everyone converges. From there, it flows through the juice bottling area, a key focus of the client’s business plan. Continuing on, the promenade passes through the workspace and a classroom designed for children and families visiting the facility, before culminating in a spacious library. This final destination celebrates learning, showcasing the client’s collection of books, artworks, and crafts to inspire visitors further.
The promenade features a glass ceiling, purposefully designed to bring in natural light from above and compensate for the limited daylight due to the surrounding lush woods. The seasonal nature of the visitor center also informs its design; during off-seasons, the visitor center and library can be sealed off, allowing the business to operate efficiently while optimizing energy use for climate control.






Longitudinal Section








As an endangered species teetering on the brink of extinction, the red wolf holds a critical place in our ecosystem. The project embodies a consistent structural language and tectonic logic that seamlessly unfolds across the landscape, serving as the ultimate breeding and research facility within the broader narrative. It places a strong emphasis on delineating a clear separation between humans and wolves, as well as between visitors and researchers. This deliberate design creates an immersive experience that has the potential to reshape visitors’ internal perception of red wolves. While it underscores their inherent danger, it simultaneously imparts a profound appreciation for their existence, discouraging harm to these magnificent creatures.
The project is composed of three distinct sections: one dedicated to visitors, another for researchers, and a collaborative space for both to engage. However, the majority of the site is intentionally reserved for researchers and the red wolves themselves. The red wolf viewing platform, elevated above the ground and situated atop the clinic, cleverly conceals itself behind a perforated skin. This distinctive approach sets it apart from conventional zoo-like institutions, effectively separating people from the wolves while preserving ample space for the animals to roam.
The project, at its core, recognizes and respects the physical freedom of red wolves to the greatest extent possible. It achieves this by offering a flexible boundary definition, encouraging enhanced family interaction and fostering a conducive environment for reproduction.




The sphere is meticulously crafted from hand-folded aluminum sheets. Initially, oversized aluminum sheets are trimmed down to a manageable size. Subsequently, they are carefully pressed into a concave mold twice to enhance their structural integrity
The viewing tower, a precursor to the main building, translates the essence of Red Wolves into architectural form through three expressions. It captures their agile and powerful hunting motions in its framework and cables, reflects their rugged nature in weathered materials, and signifies their intricate connection to the environment through interlocking spaces.
Designed as a journey aligned with the pocosin’s landscape, an ascending promenade leads visitors from a low pocosin view to a panoramic vista, with an unexpected introspective space at the roof level. The tower’s skin acts as a gauge for dynamic water level changes. Notably, the tower intentionally offers limited Red Wolf sightings, encouraging contemplation and imagination regarding their history and elusive presence in the habitat.




The second part of the project extends the structural and Tectonic principles established by the tower, expanding harmoniously across the landscape to serve as the ultimate breeding and research facility within the overarching narrative. This endeavor places significant emphasis on maintaining a strict separation between humans and red wolves, visitors and researchers, thereby creating an immersive experience designed to shift visitors’ perceptions of these inherently dangerous yet precious creatures. It fosters understanding without providing a justification for harm.
The project consists of three primary components: spaces for visitors, areas dedicated to researchers, and shared interactive zones. While designed to prioritize researchers and the red wolves, a unique feature is the elevated red wolf viewing platform situated atop the clinic. Discreetly concealed by a perforated skin, it distinguishes itself from conventional zoo-like institutions by effectively separating people from the wolves, ensuring ample space for the animals. The project’s loose boundary definition prioritizes the red wolves’ physical freedom, encouraging family interaction and reproductive success.








The Research Center is designed with two distinct volumes to create a clear separation between visitors and scientists. The northern volume is designated for visitors, while the southern one is dedicated to scientists. An intermediate space functions as both the entrance and an observation area, allowing guests to observe red wolves and the working scientists.










Extensive use of weathered steel cladding, both inside and out, engages visitors. Polished aluminum interior panels create mirror effects, seamlessly merging the exterior with indoor spaces, immersing visitors in the red wolves’ habitat. This choice not only connects guests with the wolves’ environment but also establishes a striking contrast with the rugged steel, conveying the wolves’ untamed living conditions.
The building has been elevated above the ground to mitigate potential rising water levels. Its interior spaces draw inspiration from the structure, featuring a series of ‘hanging boxes’ that gracefully undulate and intersect. This deliberate design eschews a distinct plan hierarchy, intentionally disrupting the visitors’ internal spatial orientation. The goal is to convey a sense of the wolves’ natural habitat, imbued with a feeling of uncertainty and danger.
The building achieves a sectional separation between visitors, scientists, and wolves, effectively isolating them physically. However, it preserves visual observation, allowing guests to maintain a connection with the habitat and its inhabitants.




Location: Chicago, IL, USA
Individual Work: Maosen Xu
Based on the initial site analysis, it appeared counterintuitive to introduce another train station to the area, given the presence of two sizable train stations within walking distance. However, a more in-depth examination of these existing stations has led to the realization that neither of these transit hubs effectively serves the daily transportation needs of a megacity like Chicago. They are considered outdated in many respects. Despite the availability of various public transportation options, such as buses, subways, and shared bikes, each train station or transit hub operates independently, lacking any meaningful connections to adjacent transportation facilities.
Hence, the project’s primary objective is to restructure the current site by creating a mesh of connections and integrating diverse transportation modes. By relocating the regional train service (Metra) terminal from the existing union station, I aim to enhance daily commutes by constructing a facility that accommodates modern and faster train technologies while preserving the city’s historical legacy for those arriving from afar. To achieve this, we propose an efficient circulation system that functions both horizontally and vertically, facilitating seamless transfers between different modes of public transportation.






This diagram of a woolly path is created based on population density weights to identify an optimal formal configuration.
Based on the initial site analysis, it appeared counterintuitive to introduce another train station to the area, given the presence of two sizable train stations within walking distance. However, a more in-depth examination of these existing stations has led to the realization that neither of these transit hubs effectively serves the daily transportation needs of a megacity like Chicago. They are considered outdated in many respects. Despite the availability of various public transportation options, such as buses, subways, and shared bikes, each train station or transit hub operates independently, lacking any meaningful connections to adjacent transportation facilities.









Based on the initial site analysis, it appeared counterintuitive to introduce another train station to the area, given the presence of two sizable train stations within walking distance. However, a more in-depth examination of these existing stations has led to the realization that neither of these transit hubs effectively serves the daily transportation needs of a megacity like Chicago. They are considered outdated in many respects. Despite the availability of various public transportation options, such as buses, subways, and shared bikes, each train station or transit hub operates independently, lacking any meaningful connections to adjacent transportation facilities.

Location: Montreal, QC, Canada
Team Work: Maosen Xu, Emil Cayouette
This project was developed as part of the core studio program at McGill University. My teammate and I aimed to design a functional and sustainable school, employing comprehensive design. The chosen site, situated in the southern part of Montréal Island, was once the city’s industrial hub, favored for its proximity to water. However, as the area transitioned from industrial use to residential developments, it began to feel disconnected and out of place. Despite recent renovations, the district still lacks appeal for residential life.
We identified a critical issue with the site: a significant lack of green spaces, which could lead to health concerns in a post-industrial residential area. Our solution involved strategically positioning the main building along the canal’s hypotenuse. This layout allows for a spacious, green schoolyard that opens towards the city, addressing the need for greenery and enhancing the area’s livability.

















FIVE 2021 Spring
161 Middle St.
Location: Ottawa, ON, Canada
Individual Work: Maosen Xu
This project goes beyond mere redesign; it embodies an academic and creative exploration of adaptive reuse in architecture. Central to my approach is a critical formal analysis that rigorously interrogates the interplay between contemporary innovations and historical elements. This analysis isn’t confined to preservation; it’s about reinvigorating the old with the new, crafting a dialogue between different architectural eras. In this context, formal analysis transcends traditional boundaries, combining aesthetic, functional, and cultural dimensions. It involves dissecting architectural forms, materials, and spatial configurations of the existing structure, then thoughtfully integrating modern design principles that complement and contrast these elements. This process is not just about physical transformation but also about reinterpreting historical narratives and cultural values, giving them new relevance in a contemporary setting.
The existing building lacks the spatial diversity to accommodate a variety of programs Analysis

The existing façade is too austere and old to reflect a multifunctional space in a contemporary sense
Reorganize the interior space by plug-in small volumes

Although the building is accessible to diverse groups, it is lack of certain basic services, such as a café
Although the building is located next to national museums, the history of the community is not fully exhibited.
Extend the added interior space to the outside

Expand to accommodate additional services, and excavate to reveal the buried structure and open up vantage point to the abandoned turbine





















Maosen Xu
Cornell University
Email: mx93@cornell.edu
Cell: (001)347-558-2926