Skip to main content

Manqi(Claire) Zhang Portfolio

Page 1


Engineering and Architectural Design Student

PORT FOLIO Manqi Zhang

Contact: zhangmanqi77@gmail.com

Hello,

I am Manqi Zhang.

Year 3 student in Engineering and Architectural Design (MEng) at UCL Bartlett.

I’m a curious and driven designer interested in geometry, form, and spatial experience. Particularly, in how structure and environmental thinking can shape design.

I enjoy using a range of digital tools to explore and refine ideas as they develop.

Skills:

1.Elysium

Redesigning the Millenium Dome

SITE: London, UK

The Millennium Dome was once conceived as a closed egg, holding hope and potential at the dawn of the year 2000. In this redesign, the shell opens and its ETFE skin lifts upward to express growth, openness, and renewal. Set on the Prime Meridian, the world’s zero point of time, the Dome becomes a marker of global rhythm. Inside, an eco-garden brings greenery and biodiversity, transforming it into a living environment. Once a vessel of hidden promise, it is reborn as a welcoming beacon for 2050, where culture, technology, and nature coexist.

SITE ANALYSIS

Surrounded by dense housing, the O2 today serves mainly as an event venue, disconnected from everyday community life. In London’s cold, damp climate, the redesign proposes an indoor eco-garden — transforming the Dome into a yearround green refuge where residents as well as visitors can gather.

TIMBER RAFTING

Timber rafting brought essential materials for shipbuilding and construction, supporting the city’s expansion during the Industrial Revolution.

THAMES BARRIER

Thames Barrier (1982) was constructed to defend London from tidal flooding, marking the river’s continued role in protecting and sustaining the city.

Timber is used instead of steel because it is renewable, has a lower carbon footprint, and suits prefabrication for efficient onsite assembly. Exposed timber also creates a warm, natural aesthetic that improves comfort and supports a more humancentred environment.

VICTORIAN PUMPING STATION

As pollution worsened, the Crossness Pumping Station (1865), part of Bazalgette’s sewer system, was built to clean the river and improve public health.

The original O2 was a temporary cable-supported structure with tall masts and deep foundations. In our permanent design, trusses reduce mast height and foundation depth, improving structural efficiency and simplifying maintenance.

TIMBER TRUSSES

The new design of the O2 incorporates primary and secondary timber trusses, which are supported by a timber-tower mast. This is implemented in addition to the modular cable-stayed structure, enhancing the building’s resilience and modularity.

RAINWATER COLLECTION

A new rainwater collection methodology is developed based on the new design, utilising the dip in the new structure to collect water to echo the ambitious water collection and recycle system developed when the millienium dome was built.

RIVER

Inside the Dome, time is made spatial: twelve columns mark the months, while the river branches into four parts to symbolise the seasons. Together, they form a living calendar, where water cycles and greenery turn the building into a shared rhythm of nature and community.

CABLE - MAST CONNECTION

The structure remains lightweight by relying primarily on a cable system, echoing the original O2 design. This approach reduces the need for heavy elements, enhancing material efficiency while preserving the visual and structural language of the original.

ETFE CONNECTION

ETFE (ethylene tetrafluoroethylene) is used, while PTFE is stiffer and more opaque, ETFE offers improved insulation and daylighting performance. The ETFE membrane is typically tensioned and attached to the timber trusses or a secondary frame using clamping systems. A double-layer ETFE system with printed patterns can be used to enhance performance—allowing natural ventilationwhile reducing solar gain, thereby helping to prevent overheating during summer.

AREANA GREEN SPACE

2.HAREER

Residential project- House of Future

SITE: UAE

This project proposes a single-family housing prototype for contemporary living in the UAE, designed for a standard 450 m² plot.

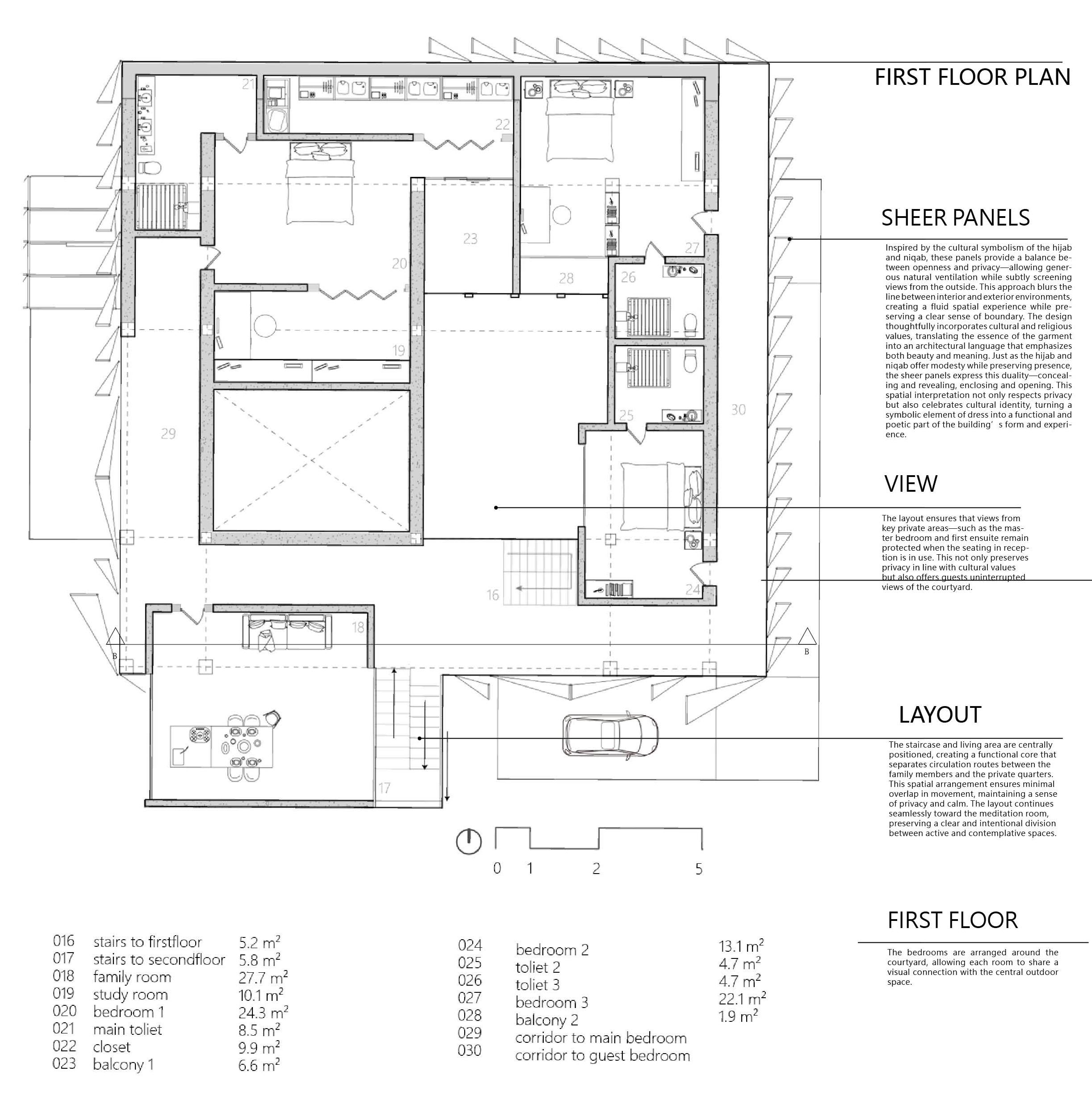
Inspired by the cultural meaning of the Hijab, the design uses a layered veil-like façade to reinterpret ideas of protection, modesty, and identity. This lightweight outer skin filters light, air, and views, creating privacy, improving comfort, and reducing solar heat gain.

The aim is a sustainable and culturally rooted home that balances openness with enclosure.

The scheme explores a compact residential model that supports future expansion while responding to local patterns of privacy, family life, and climate.

Final intent for community expansion: a garden between four buildings. Maximise privacy and enable green living

Homes are arranged around shared green spaces that encourage people to interact while still keeping privacy. The modular design also allows the houses to grow over time as families get bigger.

3.FLUID SPACE

watercolour studio

SITE: Hackney Marshes Filter Bed, London

This project explores how dampness can slow down both painting and memory. Set on a disused filter bed, the studio works with the site’s humid microclimate and lingering past, allowing watercolour, time, and memory to remain present for longer.

Set on a disused filter bed, the project treats damp air, fluctuating water levels, and enclosure as assets rather than constraints. Water returns not only as a medium for painting, but also as a trace of the site’s past.

Spaces for painting, pigment-making, and dwelling unfold along a fluid path. Slow movement through light, moisture, and material creates an experience that echoes the gradual process of watercolour.

The building bridges the two sides of the filter bed, linking past and present through inhabitation. It transforms the site into a quiet landscape of water, memory, and making.

4.Solar Still

water purification installation

SITE: Nkombo Island, Rwanda

In Nkombo Island, limited access to clean water exposes communities to waterborne parasites, while access to reliable lighting is also constrained. This project proposes a portable solar still that purifies water using sunlight, offering a simple, off-grid solution that can also support basic lighting needs.

The form is developed using SubD and Grasshopper to achieve structural efficiency while maximising solar exposure. Designed as a lightweight floating system, it moves with the water like a drifting, dancing object.

Maternal Centre

SITE: Nkombo Island, Rwanda

The project begins with a story from Nkombo Island, where an unmarried pregnant woman was cast into the river. She was rescued by Congolese fishermen, revealing both the risks women face and the reliance on informal acts of care.

In response, this maternal care centre is conceived as a place of refuge, where women can access support, protection, and the means to care for themselves.

MODULAR BIRTHROOM

Developed through SubD exploration, this modular element emerges as a continuous, fluid geometry shaped by structural and bodily forces.

Inspired by bone structures and the tension of childbirth, it operates as a monocoque shell where structure and skin are integrated. The form creates a cocoon-like enclosure, translating tension into protection.

In Progress..

Turn static files into dynamic content formats.

Create a flipbook
Manqi(Claire) Zhang Portfolio by manqi zhang - Issuu