Skip to main content

Architecture Portfolio_2026

Page 1


Sydney_Graduation Project_Year 2024 | Location: Gordon

Burramattagal Art Studio

Sydney_Academic Project_Year 2023 | Location: Parramatta

Lot 26, Burnham Road

Sydney_Professional Work_Year 2025 | Location: Gledswood Hills

Lot 2188, Janpieter Road

Sydney_Professional Work_Year 2024 | Location: Box Hill

Miscellaneous

India_Professional Work_Year 2020-22 & 2018

Urban Conditions Master’s Grad Studio

Gordon Transit-oriented Development

Software: Revit, SketchUp, Enscape, Photoshop

Evolving Edifices | Transforming Spaces

Tutors: Shaowen Wang, Raffaele Pernice

- Evolving Edifices is designed to adapt seamlessly to Gordon’s growing population, flexibly reshaping itself to meet changing needs.

- Far from static, this civic hub embodies a dynamic character, with spaces that expand or contract as required.

- It honors Gordon’s history and values, standing as a future forward community landmark that explores innovative construction techniques and systems with local materials.

Project Description:

A mixed-use building comprising a civic centre at ground level, a youth centre and commercial spaces on the upper floors, with residential apartments on top.

- The lower levels form the structural and spatial foundation for the apartments, reflected in the building’s layout and materiality.

- The residential units are designed for flexibility, allowing adaptable layouts and materials to accommodate changing user needs.

Evolving Edifices | Transforming Spaces

“Can we design for the future that will meet changing purposes and human desire through time?”

The following strategies are the drivers to achieve an ever-evolving and changing building with growing time:

FlexibilityAdaptability

ExpandabilityConvertibility

VersatilityUp-cyclingCircular economy

Dynamics of the Built

The building should be able to expand and re-configure as needs change over time. To have the capacity for it to grow, modify, and alter; the life of the building increases, which in a longer way is the best sustainable solution by up-cycling and expanding/reducing the building.

As a result, the building’s architecture would be “dialectical in nature” and have a dialogue between Permanence and Transience across its sections.

Ideation of the Built

In terms of program - The Civic Centre, Commercial & Retail will be part of Static/Rigid, while Residential will be Dynamic/Flexible to accommodate the changing urban scenarios.

Rethinking Gordon’s current urban fabric and its relationship to infrastructure by activating the public domain and bridging th e east-west urban scape.

The Concept Master Plan prioritises the health and wellbeing of the community. It envisions a space that is welcoming, inclusiv e, and well-connected, emphasizing green areas and a lifestyle centered on wellness. Gordon will transform into a hub of improved wellbeing, with a focus on restoring natural ecosystems, fostering commu nity connections, and providing access to diverse opportunities.

Design Proposal

Design Proposal: Transit-oriented Development

A Town Centre; which will act as a focal point for community activities, civic functions, commerce and social interaction with range of services, amenities and facilities provided to the residents and visitors.

Design Project

To activate the precinct and draw in more users outside the area; the proposed mixed use development will have Civic Centre, Commercial and Residential units in the selected site with varied activities.

Site selection and detailsDesign Development & Built-form

After studying and understanding the Gordon suburb, it was understood that it is a popular suburb due to its ease of transportation and availability of all the transportation modes. So, it has an increasing population with a rise in demand for public infrastructure, amenities, and housing.

Thus, the research focused on how the architecture can give flexibility and adaptability to change in the future when needs and purposes change.

While Residential block will be more Flexible, Adaptable and Transient space.

The Civic Centre becomes a two-floor podium, a foundation for Residential blocks which is a tower like structure on top.

Longer Section showing activities in the space
Elevation from Pacific Highway
View from Public Plaza towards the public squareView from Pacific Highway

West Side Podium Facade Details - From Pacific HighwayBuilding Physical Part Model_1:200 Scale

Steel frame structure for extendable spaces

75x250mm exterior steel battens

450mm high seating

A partial physical model of the building was developed to illustrate the scale of the spaces and the relationship between exterior and interior zones, transitioning from public to private. It also highlights in detail, how public spaces are integrated with the built form and its spatial organisation.

The model was made using Laser-cutting technique.

90mm thick

Concrete curved planter wall as parapet wall in terrace

600x600mm Concrete Beam 5-Ply CLT slab acoustic panel underneath

Concrete Floor
600x1200mm Concrete Column cladded with Sandstone
Concrete Floor

For Later Stage Extension; Structural Frame For Later Stage Extension; Structural Frame

Perforated Mesh Screen bi-fold doors to shade the opening from west sun

View of Urban Living Room Interior and a triple height staircase void

Building + Site Model_1:500 Scale

The model was made using Laser-cutting technique and 3D printing technique.

The site model was made to understand the scale of the surrounding buildings and how the proposed design sits withing its conte xt. The massing responds to the predominantly two-three storey built fabric, while the upper levels are stepped and reduced in scale, creating a tower-like form that minimises visual bulk and integrates s ensitively with the surroundings while meeting the requirements of the site.

“A

future-forward built-form where permanence and transience continuously interacts to shape an ever-adapting architectural exp erience.”

Gordon Current Street Section and it’s vertical volume (2-3 Storey)
Gordon Current Proposed Street Section and it’s vertical volume (6-Storey)Gordon Future Proposed Street Section and it’s vertical volume (10-12-Storey)

Urban Conditions Master’s Integrated Studio

Proposal for Parramatta Art Studio

Software: Revit, SketchUp, Lumion, Photoshop

Burramattagal Art Studio

Tutors: John Cabello, Michelle Farman

Project Description:

The aim of the project is to bring art in the society which is easily accessible and becomes a part of people’s everyday life, to bring them together and help them reduce the stress of the modern world and add liveliness in their days.

Key Users - Artists, Corporate workers, people living in Parramatta, Families during weekend, Tourists, Visitors, Council, First nation people.

The programmatic requirements of the project are divided based on the interrelationship of functions, vertical connections between them and the relationship between revenue generating spaces and spaces which uses those revenues. Operational timings for the institute will be 24x7 for the artists while for the general public it will be from 8am to 7pm which gives them time after office hours to com e to the PAS.

Site and ContextDesign Development Design

Macquarie
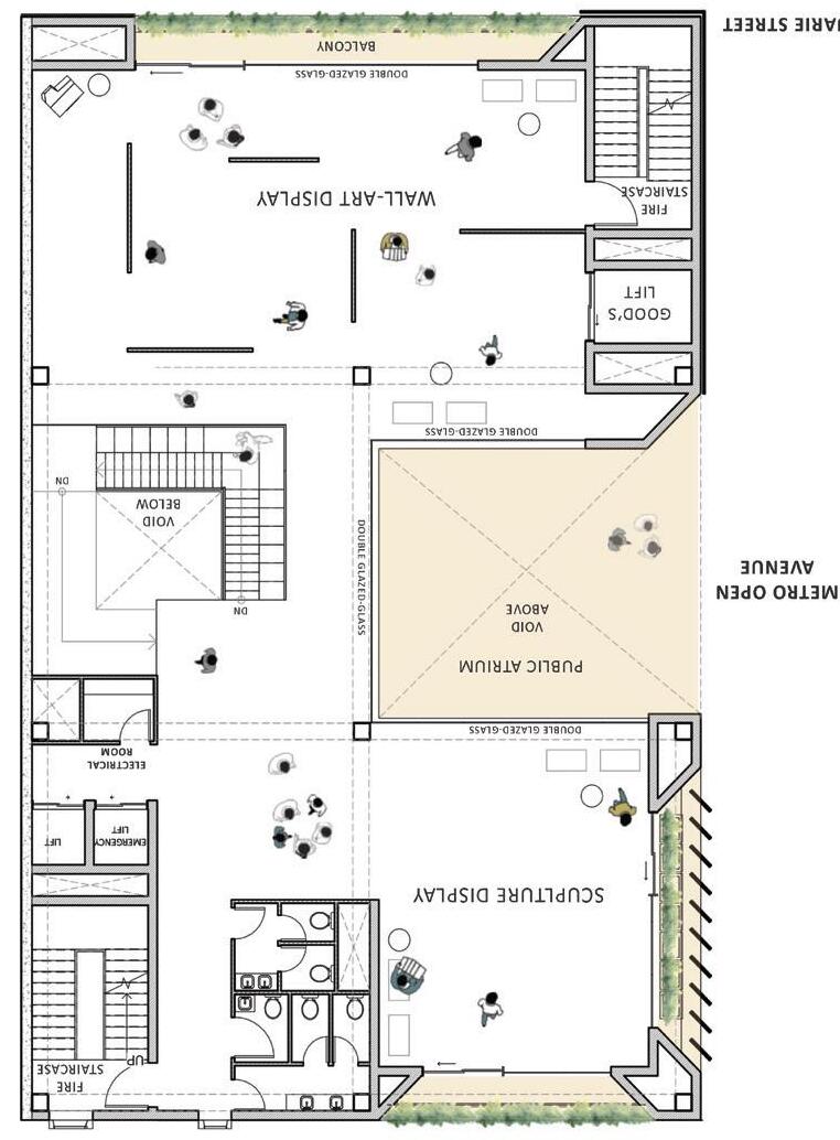
Level 02 layout
Top Isometric View of the Building tectonics and facade details (North-west corner)
Gallery space corridor & the triple level stairs
Level 06 layout
Views of Gallery space

Vertical louvers with different rotation at different time of the day on the West

Wooden bench top for seating

1200mm High Glass Balustrade from planter top

600x900mm Built-in Planter box

190x190x390mm Concrete Masonary unit wall

20mm thk Stone capping

40mm thk Ceramic custom cladding panel

20mm thk Facade supporting structure

Waterproofing Membrane

Polished concrete finish with waterproofing membrane for terrace floor finish

50mm thk Insulation layer for floors

200mm thk Concrete slab

100mm thk Concrete Lintel

305x450mm Castellated I-Beam

13mm Fibre cement plaster board to finish ceiling

75x750mm Ceramic Pivoted Vertical louvers

1200mm High Glass Balustrade from planter top

Aluminium section window with Double Low-E

coating glass filled with Argon gas in cavity

Aluminium capping with an angle for water stoppage, having waterproofing membrance with plaster render finish in exterior

GRC planter box - 600x600x750mm

Capping for Vertical louvers

Roof poly pads for tiles

Waste water pipe

Water and vapour control layer

50mm thk Insulation layer with 50mm cavity

Interiors finished with 13mm Gyprock panel painted

Suspended false ceiling for services finished with 13mm gyprock panel painted

Facade

ESD Initiatives and Material and Structure of the Building

- The primary ESD strategy involved reducing the mass at the north-west corner to maximise northern solar access.

- Vertical louvers on the façade mitigate harsh western sun, while the stepped northern facade provides self-shading to interior spaces. These stepped areas also accommodate vegetation, contributing to passive cooling.

- Additionally, double-glazed windows and ceramic facade cladding enhance the building’s thermal performance and insulation.

- The run off water is collected and stored in the rainwater tank while the grey water is used for toilet flush and watering plants on the site.

“A sculptural form that embodies expression and social meaning, reconnecting with the cultural spine - Civic Link.”

0 3

Site Address: Lot 26, Burnham Road, Gledswood Hills

Software: Archicad

Role: Project Architectural Designer (Under the Director) Responsible from Concept design through council’s DA documentation stage.

- Developed the conceptual design drawings and presentations for client’s approval.

- Ensured compliance with the Stockland’s Lakeside Stage-43 Design Essentials and secured developer’s approval for the built.

- Prepared the complete DA documentation drawing package in accordance with the Camden Council regulations and controls.

- Drafted the Statement of Environmental Effects (SEE), clearly identifying any non-compliances & providing required justifications.

Project Description:

Double storey dwelling with attached double garage, basement and a swimming pool.

- Site Area: 576.1 sqm.

- The dwelling consists of a basement floor which has double garage space, storage areas and a workshop area.

- It houses 5 bedrooms, with double height living area, kitchen-dining, formal lounge, powder, home office, laundry and pantry areas, alfresco, swimming pool and a huge garden space at the backyard.

Note: Do not scale drawings. Drawings here are property of A1 Design.

Rendered in collaboration with an external 3D visualization expert.

0 4

Site Address:

Gables, Lot 2188, Janpieter Road, Box Hill

Software: Archicad, SketchUp, Enscape

Role: Project Interior Designer (Under the Director) Responsible from Concept design through execution.

- Developed conceptual design drawings and presentations for client approval, including design rationale and finishes.

- Produced in-house 3D visualizations and a video walk-through using SketchUp and Enscape.

- Prepared full documentation set with finishes schedules, lightings, and fittings after obtaining client’s approval.

- Coordinated with external consultants and contractors to ensure design intent, material selection, and client requirements were accurately implemented.

- Ensured the design met relevant building and safety requirements where applicable.

Project Description:

A double storey dwelling with an attached double garage, alfresco and a swimming pool.

- Site Area: 930 sqm.

- The residence includes five bedrooms with walk-in robes and ensuites, a double-height living area, kitchen and dining spaces, formal lounge, powder room, home office, laundry and pantry, as well as a games room, media room, gym, sauna, alfresco area, swimming pool, and a large rear garden.

Note: Do not scale drawings. Drawings here are property of A1 Design.

3D Visualisations - Selected works

The following visualisations of spaces are produced using SketchUp, Enscape, and D5 Render, transforming concepts into realisti c representations that bring designs to life for client’s understanding.

0 5

Miscellaneous: Professional Work Experience

Location: India

Post-Bachelor’s Degree (Year 2020-2022)

Academic Internship (Year 2018)

Academic Internship: Worked on a range of projects including interior design for a chain of saree retail stores, architectural design for an institutional building in Bangalore, India, and the design of a community centre toilet block.

Post-Bachelor’s Degree: Contributed to diverse projects such as interior design for residential apartments, an eye clinic, and a salon, as well as architectural design for residential houses and a factory. Also involved in various renovation projects.

Project Description:

Below are a selection of key projects I worked on during my time in India.

Site Address:

Darshan Eye Care Clinic, Rajkot, India

Software: AutoCAD, SketchUp, Enscape

Role: Freelance Interior Project

- Developed conceptual design and presentations for client’s approval. Produced working drawings & 3D imagery of the spaces for client’s visualisations. - Coordinated with consultants to resolve design and construction details while overseeing the site works.

Project Description:

A single-storey eye-care clinic within a commercial building, designed to reflect the doctor’s philosophy of simplicity & precision. Soft, curved elements introduce a sense of uniqueness without overwhelming the space, creating a calm, welcoming, & comfortable environment for patients.

3D render of the Clinic’s Reception area
Photographic Documentation of the Store Area

3D render image of the Clinic’s Main Check-up chamber

3D render image of the Clinic’s Store area

Developed conceptual design drawings and presentations for client approval, ensuring compliance with relevant regulations while incorporating client requirements into the design.

Project Description: A two-storey residence on a corner site (400 sqm) comprising five bedrooms with walk-in robes and en-suites, a double-height li ving space, kitchen and dining areas, powder room, storage, a dedicated temple room and generous balconies provide views of the surroundings. The design focused on creating a functional layout that maximises natural light & cross-ventilation while having spacious & comfortable living are as throughout the house.

Software: AutoCAD, SketchUp

Role: Intern (Under the Junior Architect)

- Assisted in developing conceptual design drawings and presentations for client approval under supervision.

- Produced working drawings and 3D visualisations, coordinating with consultants to resolve project details during construction.

Project Description:

A six-storey luxury saree retail store in the heart of New Delhi, with each floor dedicated to saree styles from different regions of India. The interiors are designed to reflect the culture and stories of each region, creating a distinct identity for every level.

Email: manasvisamani@gmail.com

M: +61-470358426

Manasvi Samani

Turn static files into dynamic content formats.

Create a flipbook
Architecture Portfolio_2026 by Manasvi K.S - Issuu