Interior Design of The New Office of Desa Karangpapak

Page 1

Rancangan Desain Interior Kantor Desa Baru Karangpapak KKN PPM UGM 2023 Gunayuhi Sukabumi
Ide

Daftar Isi

o Cover

o Daftar Isi

o Data Survey

o Analisis

o Konsep Desain

o Citra Rujukan

o Desain Arsitektur

o Perspektif

o Denah

o Potongan

o Penutup

2

Survey

3

Data Survey

Gedung Kantor Baru

4
View Dari Dalam Ke Pintu Masuk View Ke Jendela Timur Ruang Kades Area Depan Ruang Kades Area Dalam Pintu Barat

Data Survey

Gedung Sekolah Lama

5
Lorong Gedung Sekolah Ruang Kelas Kantin Ruang Kelas Ruang Kelas

Analisis

6

Analisis Iklim Kawasan

Bagian timur bangunan sangat terpapar cahaya dan panas matahari ketika pagi dan terjadi dari arah Barat ketika sore hari.

Mengoptimalkan daylight dari arah timur untuk area bekerja agar dapat meningkatkan produktivitas kerja.

Angin pada site berhembus dari arah barat daya menuju timur laut.

7
Memastikan adanya cross ventilation pada ruang kerja yang memanfaatkan arah hembusan angin.

Analisis Iklim Ruangan

Pada pagi hari jam 8:30, sisi timur ruangan akan sangat terpapar panas dan mendapatkan cahaya matahari berlimpah

Pada tengah hari, pukul 13:00 waktu jam masuk istirahat, matahari berada tepat di atas bangunan memberikan area kerja ruang daylight yang cukup tanpa terpapar panas secara langsung

Pembuatan meeting area di sebelah timur untuk memanfaatkan cahaya matahari pagi dan menghemat daya. Ruang area kerja berada di tengah untuk memastikan bahwa tidak ada meja kerja yang langsung terpapar panas matahari.

Pemakaian partisi transparan sebagai upaya untuk mengoptimalkan cahaya matahari pagi dari timur ke arah area kerja di tengah.

Pada sore hari, jam 16:30, waktu pulang kantor, sisi selatan ruang kerja terpapar panas langsung tetapi dengan daylight yang melimpah.

Mengoptimalkan cahaya matahari sore di sisi tengah Selatan bangunan untuk menghemat daya.

Area utara/barat laut tidak terpapar panas matahari secara langsung, bisa dipakai untuk ruang istirahat.

8

Analisis Kebutuhan Ruang

9 No Ruangan Status Eksist. Luasan (m2) Jumlah Total (m2) Ruang Kerja 1 Ruang Terbuka Ada 1 2 Ruang Privat Ada 1 3 Ruang Tim Tidak 1 Ruang Pertemuan 4 Ruang Diskusi Ada 1 5 Ruang Rapat Tidak 1 6 Ruang Pertemuan Ada 1 Ruang Pendukung 7 Ruang Arsip Ada 1 8 Ruang Gudang Ada 1 9 Ruang Printer & Fotokopi Tidak 1 10 Ruang Istirahat Ada 1 11 Ruang Tunggu Ada 1 12 Mushola Tidak 1 13 Toilet Umum Tidak 1 14 Sirkulasi 25%
Berdasarkan Buku Panduan Desain Interior Kantor PUPR Th. 2022

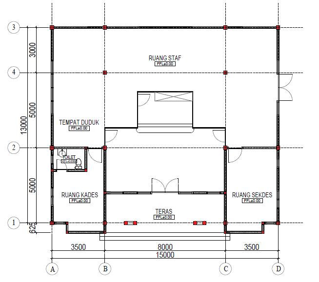
Ruang Eksisting

Ruang

Sekdes

Ruang

Staf

Ruang

Kades

Ruang

Kosong

Aula

Pertemuan

Gudang & Kantin

10

Analisis Sirkulasi

Sirkulasi di ujung-ujung

ruangan yang

bersifat satu

arah dan

terdapat sebuah

loop di bagian

tengah dapat

dimanfaatkan

Sirkulasi yang dimiliki kurang efisien karena memakai tempat yang terlalu berlebihan yang dapat mengurangi efisiensi berjalan.

Area untuk digunakan public bisa sebagai ruang tunggu dan ruang administrasi.

Area bekerja di dalam ruang staf cenderung

terpisahpisah dan bersifat linear karena terhalang oleh massa dan sirkulasi akibatnya yang berada di tengah.

dalam

penggunaan

ruang ke depannya,

Sirkulasi di ujung-ujung

ruangan yang

bersifat satu

arah dan

terdapat sebuah

loop di bagian

tengah dapat

dimanfaatkan

dalam

penggunaan

ruang ke depannya,

Area Kerja

Area Publik

11
Sirkulasi

Konsep Desain

12

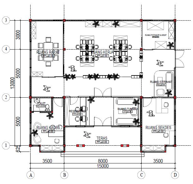
Konsep Desain

Open Plan Working Space

Sebuah layout ruangan bekerja di ruangan terbuka tanpa dinding partisi tinggi pemisah ruangan.

Suatu pendekatan arsitektur yang berfokus kepada unsurunsur ruangan yang menyerupai apa yang ada di alam.

Furnitur dengan tingkat penyusunan desain yang tinggi dan dapat berubah bentuk layout sesuai kebutuhan.

Sebuah kesan interior yang mampu menyampaikan kesan kompetensi tinggi dalam bekerja.

Boost Productivity Stress-free Working Area Adaptability Competent Looks

Dengan konsep open plan space, para staf akan dapat saling bekerja satu sama lain dengan mudah, meningkatkan efisiensi dan produktivitas bekerja.

Dengan adanya elemen pemecah dalam ruangan seperti tanaman dan furniture kantor yang dapat dipakai untuk bermain, aktivitas bekerja dapat dikurangi ketegangannya.

Mengikuti perubahan yang ada, dengan furniture modular, dapat menjadi sesuatu yang sederhana. Sebuah kemampuan adaptasi ruang yang tinggi mampu mengurangi beban pekerjaan dan meningkatkan kerjasama.

Kesan yang minimalis pada ruangan dapat memberikan kesan kompetensi dan akuntabilitas yang tinggi.

13
Biofilik Modular Furniture Modern Minimalis

Konsep Layout

Gedung Kantor

Ruang Istirahat

Open Plan Working Space

Pembuatan ruang kerja yang terbuka dan berpartisi kaca untuk memaksimalkan cahaya matahari yang masuk dan untuk dapat mengubah layout sesuai keinginan.

Biofilik

Penggunaan tanaman sebagai elemen

pemisah dari ruang kantor dan sebagai pemecah

suasana di tiap ruangan yang ada.

Modular Furniture

Furniture kantor yang dapat diubah layoutnya sesuai dengan keperluan.

Modern Minimalist

Kesan dinding kantor yang terdiri atas satu warna netral dan furniture berkesan modern pada seluruh area kerja.

Ditempatkan di ujung barat laut karena sama sekali tidak terkena panas matahari langsung dengan cahaya alami yang memadai.

Ditempatkan di arah barat daya kantor karena terletak di titik yang tidak akan mengganggu alur sirkulasi tetapi tetap dapat diakses oleh semua pihak.

Ruang Rapat

Ditempatkan di bagian paling timur ruangan sebagai upaya penghalang sinar matahari langsung terhadap area kerja.

14
Ruang Fotokopi & Arsip
U

Konsep Layout

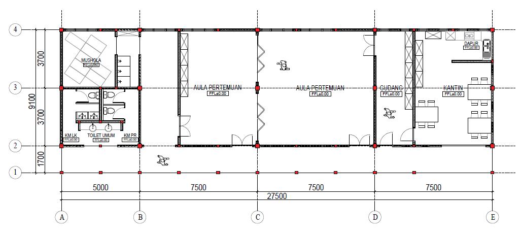
Gedung Sekolah Lama

Adaptability

Ruangan aula yang dapat diperluas dengan penggunaan pintu sebagai partisi untuk menjamin keleluasaan dan penggunaan ruang secara maksimal.

Mushola

Menempatkan mushola di ujung barat daya agar

memberikan kesan keheningan dan

memaksimalkan iklim kawasan yang

memberikan hembusan

angin dari arah selatan

Toilet Umum

Ketiadaan toilet umum harus ditanggulangi. Penempatan toilet umum berada di sebelah lorong dan di ujung selatan agar dapat tetap terlihat sambil memberikan privasi.

Gudang

Terletak di antara aula pertemuan dan kantin agar dapat memberikan ruang yang cukup bagi barangbarang yang hendak disimpan.

Kantin

Pemaksimalan fungsi kantin sebagai ruang istirahat dan makan agar kebersihan area kantor tetap terjaga.

15
U

Citra Rujukan

16

Citra Rujukan

Open Plan Office, Interior Biofilik, Modular Furniture

17

Desain Arsitektur

18

Gedung Kantor Baru

Rendering Gambar Perspektif

19 Teras Kantor

Resepsionis

20
Area Tunggu
21
Lorong Kantor Ruang Rapat

Ruang Sekdes

Ruang Kades

22
23
Ruang Kerja Ruang Kerja
24
Area Istirahat
Ruang Arsip dan Fotokopi

Gedung Sekolah Lama

Rendering Gambar Perspektif

25
Aula Pertemuan
26
Aula Pertemuan Aula Pertemuan Belakang
27
Kantin Gudang
28
Toilet
Mushola

Denah Kawasan Kantor

Perbandingan

29
Sebelum Sesudah

Denah Gedung Kantor

30
D-
Sebelum Sesudah A-A’ B-B’ C-C’
D’ A-A’ B-B’ C-C’ D-D’

Denah Gedung Sekolah

31
Sebelum Sesudah 1-1’ 1-1’

Potongan Perspektif

32
Ruang Fotokopi Area Kerja Ruang Rapat Ruang Rapat Area Kerja Area Istirahat Potongan A-A’ Potongan B-B’

Potongan Perspektif

33
Ruang Kades Toilet Lorong Ruang Rapat Ruang Fotokopi Area Istirahat Ruang Sekdes
Potongan C-C’ Potongan D-D’

Potongan Perspektif

34
Potongan 1-1’

Terimakasih

KKN PPM UGM 2023

Gunayuhi Sukabumi

Turn static files into dynamic content formats.

Create a flipbook
Issuu converts static files into: digital portfolios, online yearbooks, online catalogs, digital photo albums and more. Sign up and create your flipbook.
Interior Design of The New Office of Desa Karangpapak by M. Alfian R. - Issuu