Iseofinestre - Catalogo-istituzionale-SEZIONALI

Page 1

SR SRV SLD SLS SP SERIE SERIES

OPEN Y OUR SP AC E

INDICE INDEX

P.14 P.16 P.18 P.22 P.26 P.30 P.32

LE UNICITÀ E LE INNOVAZIONI

DELLE NOSTRE PORTE SEZIONALI PER GARAGE UNIQUENESS AND INNOVATIONS OF OUR SECTIONAL GARAGE DOORS

PORTE SEZIONALI RESIDENZIALI PER GARAGE RESIDENTIAL SECTIONAL GARAGE DOORS

CATEGORIE ESTETICHE PANNELLI SERIE SR-SRV-SLD-SLS PANELS PATTERNS CATHEGORIES SR-SRV-SLD-SLS SERIES

ESTETICA BIDOGA DOUBLESLAT PATTERN

MODELLO / MODEL TOCANTINS MODELLO / MODEL GOIAS MODELLO / MODEL SAO PAULO

ESTETICA PIANA PLANAR PATTERN

MODELLO / MODEL RONDONIA MODELLO / MODEL BAHIA MODELLO / MODEL AMAZONAS

ESTETICA MULTIDOGA MULTISLAT PATTERN

MODELLO / MODEL SERGIPE MODELLO / MODEL PARANÀ MODELLO / MODEL AMAPÀ

ESTETICA VENEZIANA VENETIAN PATTERN

MODELLO / MODEL PARÀ

ESTETICA CASSETTATA CAISSONED PATTERN

MODELLO / MODEL ALAGOAS

MADEIRA LA PORTA DA GARAGE ELEGANTE E RAFFINATA MADEIRA THE GARAGE DOOR ELEGANT AND REFINED

PORTE SEZIONALI SCORRIMENTO LATERALE SECTIONAL DOORS WITH LATERAL SLIDING

PORTA PEDONALE PASSO-UOMO LATERALE LATERAL PEDESTRIAN DOOR

PORTA PEDONALE BREVETTATA PATENTED WICKET DOOR

SEZIONALE PANORAMA SERIE SP PANORAMA SECTIONAL SP SERIES

RIEPILOGO ESTETICHE E COLORI PATTERNS AND COLOURS SUMMARY

ACCESSORI - MOTORIZZAZIONE ACCESSORIES - MOTORISATION

INGOMBRI E TIPI DI INSTALLAZIONE DIMENSIONS AND METHODS OF INSTALLATION

PROCESSI INDUSTRIALI ALL’AVANGUARDIA ADVANCED INDUSTRIAL PROCESSES

P.6 P.34 P.38 P.41 P.42 P.44 P.46 P.50 P.55 P.66 OPEN Y OUR SP AC E

PORTE PER GARAGE SEZIONALI SECTIONAL GARAGE DOORS

Il progetto industriale nel settore delle chiusure per garage sezionali per il mercato residenziale è partito nel 2007 con il marchio SEIP, oggi con l’integrazione nella realtà industriale Silvelox Group, anche questa linea di porte è marchiata Silvelox. La forza della sua strategia è da sempre quella di detenere la proprietà formale e intellettuale del know-how in ambito tecnico, di progettazione e di produzione di componenti, accessori e profili; questa differenziazione rispetto ai normali assemblatori, ha garantito all’azienda una crescita costante ed una posizione di rilievo sempre maggiore all’interno del competitivo mercato dei produttori di chiusure per garage. L’alta automatizzazione dei processi e l’industrializzazione del ciclo produttivo, favoriscono elasticità e tempi di consegna ridotti, garantendo in ogni caso l’alto livello qualitativo dei prodotti e del servizio.

Un gamma completa di estetiche e funzionalità per coprire tutte le soluzioni di chiusure sezionali. Un forte orientamento industriale con la copertura di numerosi brevetti che dal 2009 ha reso possibile l’apertura ai mercati internazionali.

The industrial project in the field of closures for sectional garages for the residential market started in 2007 with the SEIP brand, today with the integration into the industrial reality Silvelox Group, this line of doors is also branded Silvelox.

A complete range of aesthetics and functionality to cover all sectional closure solutions. A strong industrial orientation with the coverage of numerous patents that since 2019 has made it possible to open up to international markets.

The strength of its strategy has always been to hold the formal and intellectual ownership of the know-how in the technical, design and production of components, accessories and profiles; this differentiation compared to normal assemblers, has guaranteed the company a constant growth and an increasingly important position within the competitive market of manufacturers of garage closures. A complete range of aesthetics and functionalities to cover all solutions of sectional closures. A strong industrial orientation with the coverage of numerous patents that since 2009 has made it possible to open up to international markets

OPEN Y OUR SP AC E
5 4
Serie SR Estetica Piana Modello Rondonia Corten RO CO Serie SR Pattern Planar Model Rondonia Corten RO CO
LE UNICITÀ E LE INNOVAZIONI DELLE NOSTRE PORTE SEZIONALI PER GARAGE UNIQUENESS AND INNOVATIONS OF OUR SECTIONAL GARAGE DOORS MOTORIDUTTORE MODELLO “HALO” CON SISTEMA INTEGRATO DI ILLUMINAZIONE INTERNA A LED “HALO” DOOR OPERATOR COMPLETE WITH INDOOR LED LIGHTING ISOLAMENTO TERMICO E RISPARMIO ENERGETICO CON MATERIALI NON INQUINANTI ESENTI DA CFC THERMAL INSULATION AND ENERGY SAVING WITH NON-POLLUTING MATERIALS CFC FREE BREVETTATO -PATEN T DE

MT600 ELECTRONIC DEVICE MT600 is the electronic device that allows the operation of a gate or a garage door, using a smartphone.

7 6
ELETTRONICO MT600
DISPOSITIVO
APP SILVELOX MT600 è il dispositivo elettronico che consente l’azionamento di un cancello o una porta da garage, utilizzando uno smartphone. App dedicata al cliente finale per l’apertura della porta tramite smartphone. Module for automation control from smartphone.
DI MONTAGGIO EASY ASSEMBLY Serie SR Estetica Piana Modello Rondonia Ral 7016 RO GP Serie SR Pattern Piana Model Rondonia Ral 7016 RO GP
FACILITÀ

BREVETTATO -PATEN T DE

FOTOCELLULA DI SICUREZZA TSD BREVETTATA PATENTED TSD SAFETY PHOTOCELL

L’innovativo sistema di sicurezza, atto ad evitare eventuali urti e/o schiacciamenti da parte di cose o persone durante la movimentazione automatica delle porte sezionali SR.

The innovative security system, designed to avoid any knock and / or crushing by things or people during the automatic movement of sectional SR doors.

DISPOSITIVO ANTICADUTA SAFETY DEVICE

Dispositivo anticaduta in caso di rottura delle funi “a scomparsa” brevettato, con meccanismo incorporato nel pannello.

Patented safety system built inside the panels in case of cable breakage.

BREVETTATO -PATEN T DE

MOTORIZZAZIONE MODELLO “HALO” “HALO” MOTORIZATION

Motorizzazione 1000N con guida a cinghia verniciata bianca con illuminazione a led di nostra esclusiva. Disponibile anche con guida a cinghia in acciaio zincato.

1000N motorization with belt guide painted in white complete with our EXCLUSIVE LED lighting. Also available with galvanized steel belt guide.

9 8
CON LED INTEGRATI ESCLUSIVA SILVELOX BAR WITH INTEGRATED LEDS SILVELOX EXCLUSIVE
BARRA

SEZIONALE SR

Esclusivo carter copri-molle brevettato che garantisce ottimi risultati estetici.

Patented spring cover that ensures excellent aesthetic and functional results.

PATENTED

RULLO CON PROTEZIONE ANTI SCHIACCIAMENTO ROLLER WITH ANTI-CRUSHING SYSTEM

Protezione innovativa che impedisce il potenziale schiacciamento delle dita. New safety device that avoids any possible finger injury.

GUIDE DI SCORRIMENTO SLIDING GUIDES

Guide di scorrimento verniciate bianche a polveri. White powder-painted sliding guides.

11 10
Copricarter fissato sul manto BREVETTATO. Disponibile solo nello scorrimento WA. Optional disponibile SU RICHIESTA.
cover fixed on the surface. Accessory available only on request
CARTER COPRI-MOLLE SPRING COVER BREVETTATO -PATEN T DE

CERNIERA LATERALE CON POSIZIONAMENTO RAPIDO SIDE HINGE WITH RAPID POSITIONING

Nuova cerniera laterale brevettata con posizionamento rapido della ruota di scorrimento. New patented side hinge with rapid positioning of the sliding wheel.

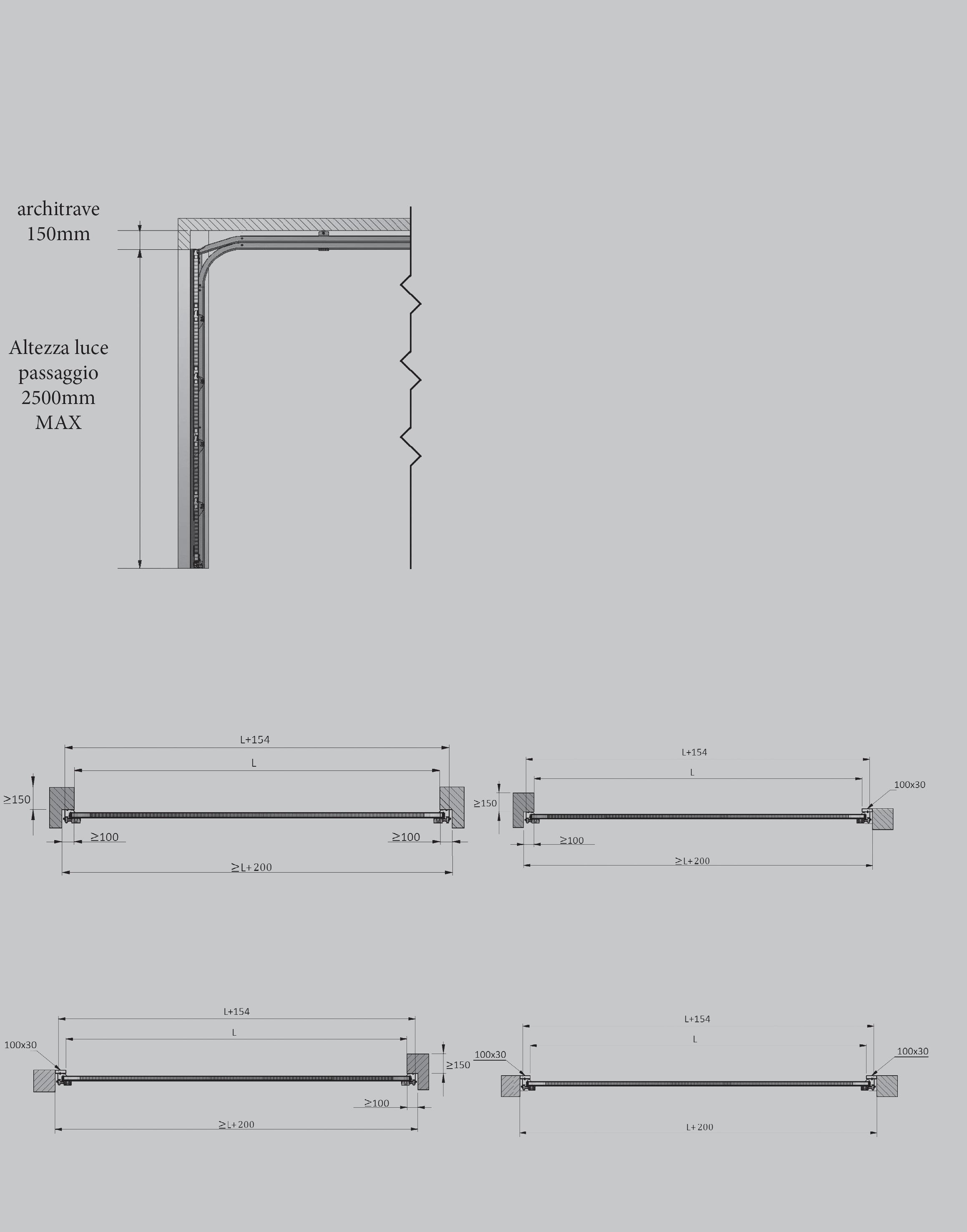
SISTEMA DI SCORRIMENTO RIBASSATO LOWERED SLIDING SYSTEM

Sistema di scorrimento brevettato che garantisce apertura e chiusura con rotazione in 150 mm e ingombro in architrave di 150 mm con porte motorizzate totalmente aperte.

Patented sliding system which ensures opening and closing within 150 mm rotation and 150 mm lintel, with motorized doors completely open.

STAFFE FISSAGGIO A SOFFITTO CEILING MOUNTING BRACKETS

l’operazione di montaggio e garantiscono qualità e durata sotto sforzo. Ceiling mounting brackets, makes easyer the mounting operation and guardantees quality and performance during the lift.

INSERTO ANGOLARE PER DIMA ANGULAR INSERT FOR C-PROFILE

Inserto angolare per il fissaggio a incastro della dima posteriore con le guide orizzontali. Facile da assemblare garantisce una forte presa. Angular insert for C-profile. Easy to assemble. It ensures a firm hold.

BREVETTATO -PATEN T DE BREVETTATO -PATEN T DE BREVETTATO -PATEN T DE

BREVETTATO -PATEN T DE

PORTINA PEDONALE BREVETTATA PATENTED PEDESTRIAN DOOR

La porta pedonale è inserita al centro del manto oppure decentrata su richiesta l’altezza della soglia è ridotta al minimo tecnicamente possibile 33 mm. La porta pedonale è disponibile di serie con 1 punto di chiusura ma è possibile arrivare fino a 3 / 5 punti di chiusura che garantiscono il massimo della sicurezza contro furti e intrusioni. A porta aperta la luce netta di passaggio è di 900 mm grazie alla dotazione di cerniere a scomparsa.

• Telaio complanare al pannello.

• Telaio RAL oppure effetto legno simile al manto esterno.

• Micro di sicurezza.

• Non è disponibile nella serie SL.

The pedestrian door is inserted in the center of the curtain or decentralized upon request, the height of the threshold is maximally reduced to 33 mm. The standard pedestrian door is provided with 1 lock, but it is possible to reach up to 3/5 locking points which guarantee maximum security against thefts and intrusions. With the door open, the net passage is 900 mm thanks to the use of concealed hinges.

• Frame coplanar with the panel.

• RAL wood effect to match the external covering.

• Safety micro.

• Not available in the SL series.

Porta pedonale inserita, con soglia ribassata. Pedestrian door inserted, with lowered threshold.

Un’apertura comoda e sicura grazie alle protezioni esterne anti schiacciamento dita in fase di movimento e protezioni anti pizzicamento dita interne adesive in materiale termoplastico Easy and safe opening thanks to the internal and external antipinch protection system made of thermoplastic material.

13 12

PORTE SEZIONALI RESIDENZIALI PER GARAGE SR-SRV-SLD-SLS

SERIE SR

SEZIONALE A SCORRIMENTO VERTICALE CON ALBERO A MOLLE A ROTAZIONE

SERIE SRV

SEZIONALE A SCORRIMENTO VERTICALE CON MOLLE VERTICALI A TRAZIONE

SERIE SLD

SEZIONALE DOPPIO A SCORRIMENTO LATERALE CON GUIDA AD ARCHITRAVE

SERIE SLS

SEZIONALE SINGOLA A SCORRIMENTO LATERALE CON GUIDA AD ARCHITRAVE

SERIE SP

SEZIONALE PANORAMA ANCHE VETRATA

RESIDENTIAL SECTIONAL GARAGE DOORS SR-SRV-SLD-SLS

SERIE SR

VERTICAL SCROLL SECTIONAL WITH ROTATING SPRING SHAFT

SERIE SRV

VERTICAL SCROLL SECTIONAL WITH VERTICAL TRACTION SPRINGS

SERIE SLD

SECTIONAL DOUBLE SIDE SCROLL WITH LINTEL GUIDE

SERIE SLS

SECTIONAL SINGLE SIDE SLIDE WITH LINTEL GUIDE

SERIE SP

SECTIONAL PANORAMA ALSO GLAZED

La porta sezionale è composta da pannelli orizzontali, collegati fra loro mediante cerniere e che scorrono verticalmente disponendosi a fine apertura parallelamente al soffitto. Questo particolare meccanismo consente l’utilizzo di tutta la superficie interna del garage.

Le dimensioni massime sono:

SR L = 7,5 m - H = 3,25 m;

SRV L = 3,2 m - H = 2,5 m;

SLS L = 6 m - H = 3,25 m;

SLD L = 12 m H = 3,25 m.

Silvelox oltre a garantire la sicurezza delle persone, rispettano anche l’ambiente, essendo composte da materiali non inquinanti (esenti da CFC) che permettono l’isolamento termico e favoriscono allo stesso tempo il risparmio energetico.

A sectional door is made of horizontal panels, connected with hinges that slide vertically until they are parallel to the ceiling, once the door is completely open.

This particular system allows the use of the entire internal surface of the garage. Maximum measures are

SR L = 7,5 m - H = 3,25 m;

SRV L = 3,2 m - H = 2,5 m;

SLS L = 6 m - H = 3,25 m;

SLD L = 12 m H = 3,25 m.

Silvelox are safety for people and environment friendly, since they are made with non-polluting materials which favour both thermal insulation and energy savings at the same time.

15 14 Serie SR Estetica Piana Modello Rondonia Ral 9010 RO BI Serie SR Pattern Planar Model Rondonia Ral 9010 RO BI
CATEGORIE ESTETICHE PANNELLI PER SERIE SR-SRV-SLD-SLS PANELS PATTERNS CATHEGORIES FOR SERIES SR-SRV-SLD-SLS
BIDOGA DOUBLESLAT PATTERN
PIANA PLANAR PATTERN
MULTIDOGA MULTISLAT PATTERN
VENEZIANA VENETIAN PATTERN
CASSETTATA CAISSONED PATTERN
ESTETICA
ESTETICA
ESTETICA
ESTETICA
ESTETICA
17 16
Serie SR Estetica Piana Modello Rondonia Ral 7016 RO GP Serie SR Pattern Piana Model Rondonia Ral 7016 RO GP

Moderna combinazione di linee per un effetto estetico rigoroso ed essenziale. Finiture lisce e goffrate legno a seconda del modello. Modern combination of lines to create a rigorous and essential effect. Smooth finishes and embossed wood depending on the model.

Pannello coibentato in acciaio zincato spessore 0,5 con verniciatura idonea per una collocazione esterna e atta a garantire la massima durata nel tempo. Pannello brevettato con doga centrale di uguale dimesione alla giuntura dei pannelli per garantire un effetto estetico omogeneo.

Insulated panel made of galvanised steel, 0,5 mm thickness with a special painting suitable for external use and perfect to ensure the best duration in time. A patented panel with a central slat of the same dimension of the junction, to ensure a uniform aesthetic effect.

ESTERNA EXTERNAL VIEW VISTA INTERNA INTERNAL VIEW Pannello H 500 Pannello H 610 5 0 0 1 6 5 1 6 5 2 3 3 5 2 3 3 5 6 1 0 1 6 5 1 6 5 2 8 8 5 2 8 8 5 SERIE SR-SRV-SLD-SLS SR-SRV-SLD-SLS SERIES
ESTETICA BIDOGA DOUBLESLAT PATTERN VISTA
Serie SR Estetica Bidoga Modello Tocantis Quercia scuro TO Serie SR Doubleslat Bidoga Model Tocantis Dark Oak TO Pannello H 610 disponibile solo per modello Goias GO BI
Panel
H 610 available only for Goias GO BI model

Questo modello riproduce fedelmente l’effetto del legno con il vantaggio di un’estetica pregiata senza bisogno di manutenzione nel tempo.

This model accurately reproduces the wood effect creating a refined appearance without the need of maintenance.

19 18
Serie SR Estetica Bidoga Modello Tocantis Quercia chiaro TO PL
MODEL
Finitura esterna Liscio External finishing Smooth TO PQ QUERCIA SCURO DARK OAK TO PL QUERCIA CHIARO LIGHT OAK TO RC ROVERE MEDIO MEDIUM OAK
Serie SR Pattern Doubleslat Model Tocantis Golden oak TO PL
MODELLO /
TOCANTINS Finitura interna Goffrato stucco Ral 9010 Internal finishing Embossed succo Ral 9010

Stile classico e rigoroso esaltato dalla finitura goffrata e venatura in rialzo ad effetto legnoso.

SR Estetica Bidoga Modello Goias Ral 9010 GO BI
SR Pattern Doubleslat Model Goias Ral 9010 GO BI
/ MODEL GOIAS
GO VD RAL 6005 GO MR RAL 8014 GO BI GO AR RAL 7016 TINTE RAL A RICHIESTA RAL COLOURS ON REQUEST
External
Traditional and rigorous style enhanced by the embossed finishing and the grains, which create a wooden effect. Serie
Serie
MODELLO
Finitura interna Goffrato stucco Ral 9010 Internal embossed Stucco finish Ral 9010
Finitura esterna Goffrato legno
finishing Wood grain
21 20 TINTE RAL A RICHIESTA RAL COLOURS ON REQUEST La perfetta unione tra la moderna eleganza della finitura liscia e la ricercatezza classica della grande scanalatura centrale . The perfect combination of the modern elegance of the smooth surface and the sophisticated large central. Finitura interna Goffrato stucco Ral 9010 Internal embossed Stucco finish Ral 9010 Finitura esterna Liscio External finishing Smooth Serie SR Estetica Bidoga Modello San Paolo Tinte Ral 6028 a richiesta Serie SR Pattern Doubleslat Model San Paolo Ral 6028 colours on request MODELLO / MODEL SAO PAULO LISCIO E POLYGRAIN RAL 9006

SERIE SR-SRV-SLD-SLS SR-SRV-SLD-SLS SERIES

L’assenza di doghe e la finitura liscia o goffrata fanno di questa serie la più moderna e tecnologica. The absence of slats and the smooth or embossed finishing make this model the most modern and technological one.

Pannello coibentato in acciaio zincato spessore 0,6 con verniciatura idonea per una collocazione esterna e atta a garantire la massima durata nel tempo.

Insulated panel made of galvanised steel, 0,6 mm thickness with a special painting suitable for external installation and perfect to ensure the best duration in time.

Serie SR Estetica Piana Modello Rondonia Ral 9006 RO AR Serie SR Pattern Planar Model Rondonia Ral 9006 RO AR
VISTA ESTERNA EXTERNAL VIEW VISTA INTERNA INTERNAL VIEW 5 0 0 5 0 0 Pannello H 500 Pannello H 610
ESTETICA PIANA PLANAR PATTERN
Pannello H 610 disponibile solo per modelli Bahia BA BI e Rondonia GP (Polygrain) RAL 7016 Panel H 610 available only for Bahia BA BI and Rondonia GP (Polygrain) RAL 7016 models

Eleganza e semplicità sulla superficie liscia disponibile in tutta la gamma RAL adatto per l’inserimento in contesti moderni e rigorosi.

Elegance and simplicity on the smooth surface available for the entire RAL series, perfect for modern and rigorous contexts.

23 22
Serie SR Estetica Piana Modello Rondonia Corten RO CO Serie SR Pattern Planar Model Rondonia Corten RO CO MODELLO / MODEL RONDONIA Finitura interna Goffrato stucco Ral 9010 Internal embossed Stucco finish Ral 9010 Finitura esterna Liscio External finishing Smooth TINTE RAL A RICHIESTA ON REQUEST IRON SIMIL RAL 9006 RO AR RAL 9006 RO PE RAL 1013 RO BI RAL 9010 RO BP POLIGRAIN RAL 9010 RO GP RAL 7016

MODELLO / MODEL BAHIA

L’assenza di doghe unita alla finitura goffrata donano alla porta uno stile semplice e moderno. The absence of slats combined with the embossed finishing give the door a simple and modern style.

Finitura interna Goffrato stucco

Ral 9010

Internal finishing Embossed succo

Ral 9010

Serie SR Estetica Piana Modello Bahia Ral a scelta Serie SR Pattern Planar Model Bahia Ral colours on request
Finitura esterna Goffrato legno External finishing Wood grain RAL 8014
TINTE
RAL A RICHIESTA RAL COLOURS ON REQUEST

MODELLO / MODEL AMAZONAS

La perfetta combinazione tra l’effetto legno e la finitura liscia del pannello creano eleganza e modernità allo stesso tempo.

The perfect combination of the wood effect and the smooth finish of the panel create elegance and modernity at the same time.

Finitura interna Goffrato stucco

Ral 9010

Internal finishing Embossed succo

Ral 9010

25 24
Serie SR Estetica Piana Modello Amazonas Quercia chiaro AM PL Serie SR Pattern Planar Model Amazonas Golden Oak AM PL
Finitura esterna Liscio External finishing Smooth
QUERCIA SCURO DARK OAK MEDIUM
OAK

Espressione di una sobria eleganza disponibile nella finitura liscia o nella finitura goffrata legno. It is the expression of sober elegance, available with a smooth finishing or with an embossed wood one.

Pannello coibentato in acciaio zincato spessore 0,5 con verniciatura idonea per una collocazione esterna e atta a garantire la massima durata nel tempo.

Insulated panel made of galvanised steel, 0,5 mm thickness with a special painting suitable for external installation and perfect to ensure the best duration in time.

VISTA ESTERNA EXTERNAL VIEW VISTA INTERNA INTERNAL VIEW SERIE SR-SRV-SLD-SLS SR-SRV-SLD-SLS SERIES Serie SR Estetica Multidoga Modello Sergipe Quercia chiaro SE PL Serie SR Pattern Multislat Model Sergipe Golden Oak SE PL 6 1 0 1 0 1 1 0 1 7 5 1 0 1 1 0 1 7 5 1 0 1 1 0 1 5 0 0 1 0 1 9 7 2 5 1 0 1 9 7 2 5 1 0 1
MULTIDOGA MULTISLAT PATTERN Pannello H 610 disponibile solo per modello Paranà PA AR e PA BI Panel H 610 available only for Paranà PA AR e PA BI model
Pannello H 500 Pannello H 610 ESTETICA

Serie

SR

Il fascino dell’effetto legno sulla superficie liscia a doghe, inalterabile nel tempo.

Finitura interna Goffrato stucco Ral 9010

27 26
Estetica Multidoga Modello Sergipe Quercia
SE PL
The elegance of the wood effect on a smooth surface with slats, which cannot be altered in time. Pattern Multislat Model Sergipe Light Oak SE PL
chiaro
Serie SR
MODELLO / MODEL SERGIPE
SE PQ QUERCIA SCURO DARK OAK SE PL QUERCIA CHIARO LIGHT OAK
Internal finishing Embossed succo Ral 9010 Finitura esterna Liscio External finishing Smooth

MODELLO / MODEL PARANÀ

Finitura goffrata ad effetto legno per un risultato che esprime essenzialità e rigore; disponibile in tutta la gamma RAL.

Embossed finishing with wooden effect for a result which is the expression of minimalism and precision; available in all RAL colours.

SR Estetica Multidoga Modello Paranà Tinte Ral 3003 a richiesta Serie SR Pattern Multislat Model Paranà Ral 3003 colours on request
Serie
Finitura
Goffrato legno External finishing Wood grain PA AR RAL 9006 PA BG RAL 9002 RAL 9010 TINTE RAL A RICHIESTA RAL COLOURS ON REQUEST
Finitura interna Goffrato stucco Ral 9010 Internal finishing Embossed succo Ral 9010
esterna

MODELLO

Moderna combinazione di linee che esaltano l’essenzialità di un modello adatto ad inserirsi perfettamente in contesti di diverso stile architettonico.

Modern combination of lines which enhances the minimalism of a model which is perfect for various architectural contexts

Finitura interna Goffrato stucco

Ral 9010

Internal finishing Embossed succo

Ral 9010

Finitura esterna Liscio External finishing Smooth

29 28
Serie SR Estetica Multidoga Modello Amapà Ral 9006 AP AR Serie SR Pattern Multislat Model Amapà Ral 9006 AP AR
/ MODEL AMAPÀ
RAL 9006 TINTE RAL A RICHIESTA RAL COLOURS ON REQUEST

SERIE SR-SRV SR-SRV SERIES

ESTETICA VENEZIANA VENETIAN PATTERN

Unico ed esclusivo per rendere l’abitazione dove viene inserita la porta di forte personalità.

Unique and exclusive to give a house a strong personality.

Pannello coibentato in acciaio zincato spessore 0,5 con verniciatura idonea per una collocazione esterna e atta a garantire la massima durata nel tempo.

Insulated panel made of galvanised steel, 0,5 mm thickness with a special painting suitable for external installation and perfect to ensure the best duration in time.

5 0 0 2 4 2 4
Pannello H 500 Serie SR Estetica Veneziana Modello Parà Ral 9006 PP AR Serie SR Venetian Pattern Model Parà Ral 9006 PP AR
VISTA ESTERNA EXTERNAL VIEW VISTA INTERNA INTERNAL VIEW

MODELLO

Un pannello brevettato prodotto in esclusiva per SILVELOX che riporta micro doghe orizzontali creando un inconfondibile effetto veneziana.

A patented model exclusively produced for SILVELOX with macro horizontal slats that create an unmistakable venetian blind effect.

31 30
/ MODEL PARÀ Serie SR Estetica Veneziana Modello Parà Ral 9006 PP AR Serie SR Venetian Pattern Model Parà Ral 9006 PP AR RAL 9006 Finitura interna Goffrato stucco Ral 9010 Internal finishing Embossed succo Ral 9010 Estetica Veneziana Venetian Pattern Finitura esterna Liscio External finishing Smooth TINTE RAL A RICHIESTA RAL COLOURS ON REQUEST

SERIE SR-SRV SR-SRV SERIES

ESTETICA CASSETTATA CAISSONED PATTERN

Stile tradizionale che riprende la ricerca del particolare e dell’artigianalità tipica del legno.

Traditional style which recalls the research for details and the handmade quality which is typical of wood.

Pannello coibentato in acciaio zincato spessore 0,5 con verniciatura idonea per una collocazione esterna e atta a garantire la massima durata nel tempo.

Insulated panel made of galvanised steel, 0,5 mm thickness with a special painting suitable for external installation and perfect to ensure the best duration in time.

8 0 8 0 7 0 7 0 2 0 0 6 5 Pannello
H 500
Serie SR Estetica Cassettata Modello Alagoas AL BI Serie SR Caissoned Pattern Model Alagoas AL BI VISTA ESTERNA EXTERNAL VIEW VISTA INTERNA INTERNAL VIEW

MODELLO

/ MODEL

ALAGOAS

Modello di forte personalità grazie alle impronte cassettate che donano alla porta un carattere deciso. Disponibile nella finitura goffrata legno. A model with a strong personality obtained thanks to the caissoned design which gives the door grandeur. Available in wood grain finiture.

Finitura

33 32
Serie SR Estetica Cassettata Modello Alagoas AL BI Serie SR Caissoned Pattern Model Alagoas AL BI
Goffrato
External finishing Wood grain AL BI RAL 9010 TINTE RAL A RICHIESTA RAL COLOURS ON REQUEST
interna Goffrato stucco Ral 9010 Internal finishing Embossed succo Ral 9010 Finitura esterna
legno

MADEIRA LA PORTA DA GARAGE ECOLOGICA IN LEGNO MADEIRA THE GARAGE DOOR ECOLOGICAL IN WOOD

Serie SR Caissoned pattern Model Alagoas Okoumé Honey

Serie SR Estetica cassettata Modello Alagoas Okoumé tinta miele

Il modello Madeira viene realizzato nella versione sezionale residenziale oppure a scorrimento laterale singolo o doppio. Sono composti da pannelli di spessore 40 mm realizzati in legno marino di okoumè, un pregiato legno idrorepellente e leggero, verniciata all’acqua con vernici ecologiche.

La versione sezionale può essere realizzata fino a larghezze di 4,8 m ed altezze di 3,1 m

La versione porta laterale singola può essere realizzata fino a larghezza di 6 m ed altezza massima di 3,25 m.

La versione porta laterale doppia può essere realizzata fino a larghezza di 12 m ed altezza massima di 3,25 m Essendo un prodotto di design, sono state create tre eleganti estetiche, ognuna realizzabile in tredici diverse tinte.

Per esaltarne il pregio ed elevare la nobiltà del manto, la porta viene fornita con gli accessori del manto di colore nero. Su richiesta, sono disponibili altri optionals per impreziosire il prodotto, come oblò realizzati in legno con tamponamento in policarbonato o vetro antisfondamento.

The Madeira model is produced in the residential sectional version or with single or double lateral scrolling. They are composed of 40 mm thick panels made of okoumè marine wood, a precious water-repellent and light wood, watercoated with ecological paints.

The sectional version can be made up to widths of 4.8 m and heights of 3.1 m.

The single side door version can be made up to a width of 6 m and a maximum height of 3.25 m.

The double side door version can be made up to a width of 12 m and a maximum height of 3.25 m.

Being a design product, three elegant aesthetics have been created, each achievable in thirteen different colors.

To enhance its value and raise the nobility of the door, the door is supplied with black door accessories. On request, other optionals are available to embellish the product, such as portholes made of wood with polycarbonate infill or shatterproof glass.

35 34

Disponibile fino a larghezze di 3,1 m. Altre estetiche personalizzate a richiesta e fattibilità ufficio tecnico Available up to 3.1 m width. Other customized aesthetics on request and upon technical office feasibility

OBLÒ / WINDOWS

Sono disponibili su richiesta pregiati oblò in legno con tamponamento di 6 mm in policarbonato o vetro antisfondamento. Per altre soluzioni vedi la pagina accessori. High-quality wooden windows with 6 mm polycarbonate or shatterproof glass are available on request.

For more solutions see the accessories page.

Accessori di colore nero conferiscono eleganza alla parte interna del manto, rendendolo a tutti gli effetti un elemento di design.

Accessories in black colour give elegance to the internal side of the mantle, making it a design element.

Vista esterna External View
/ PATTERN BIDOGA
/ PATTERN VIP ORIZZONTALE
/ PATTERN BIG ESTETICA / PATTERN VIP VERTICALE
/ PATTERN PIANA
ESTETICA MADEIRA / PATTERN MADEIRA ESTETICA
ESTETICA
ESTETICA
ESTETICA
37 36
HONEY ROVERE OAK DOUGLAS DOUGLAS CILIEGIO CHERRY MOGANO MAHOGANY FINITURE ED ACCESSORI / FINISHES AND ACCESSORIES TINTE DISPONIBILI LEGNO / AVAILABLE WOODEN COLOURS RAL 6005 VERDE MUSCHIO MOSS GREEN RAL 6009 VERDE ABETE FIR GREEN RAL 7016 GRIGIO ANTRACITE ANTHRACITE GRAY RAL 9002 BIANCO GRIGIO GREY WHITE RAL 9006 ALLUMINIO BRILLANTE BRIGHT ALUMINUM RAL 9010 BIANCO PURO PURE WHITE TINTE DISPONIBILI LACCATE / AVAILABLE LAQUERED COLOURS
MIELE
Serie SLD Estetica Multidoga Modello Tocantis Pannello in Okoumé laccato Ral 6005 Serie SLD Multislat pattern Model Tocantis Okoumé panel lacquered Ral 6005 PORTE SEZIONALI SCORRIMENTO LATERALE SECTIONAL DOORS WITH LATERAL SLIDING SERIE SLD-SLS SLD-SLS SERIES ESTETICA BIDOGA DOUBLESLAT PATTERN ANCHE NELLA VERSIONE IN LEGNO VERNICIATA CON VERNICE ECOLOGICA ALL’ACQUA ALSO IN THE WOODEN VERSION PAINTED WITH ECOLOGICAL WATER-BASED PAINT ESTETICA PIANA PLANAR PATTERN ESTETICA MULTIDOGA MULTISLAT PATTERN

SLS e SLD sono le porte ideali in situazioni in cui è necessario eliminare l’ingombro in architrave SLS L= 6 mt e H = 3,25 mt, SLD L = 12 mt e H = 3,25mt .

PANNELLI

Sono disponibili due soluzioni di pannelli: • Pannello coibentato in acciaio zincato.

• Pannelli spessore 40 mm, realizzate in legno marino di Okoumé nelle finiture tinte legno.

MECCANICA

La parte meccanica di movimentazione prevede lo scorrimento dei pannelli per mezzo di una guida ad architrave senza l’utilizzo di carrelli a pavimento. La chiusura ermetica della porta è garantita da un mix di guarnizioni in gomma e spazzole su tutto il perimetro.

SLS and SLD are the best doors when it is necessary to reduce the space on the lintel SLS L= 6 mt e H = 3,25 mt, SLD L = 12 mt e H = 3,25mt .

PANELS

Two panel solutions are available:

• Insulated panel in galvanized steel.

• 40 mm thick panels, made of marine wood of Okoumé in wood-colored finishes.

FUNCTIONING

The panels slide thanks to a lintel rail that does not need floor carriages. The hermetic closure of the door is guaranteed by a combination of rubber seals and brushes on the entire perimeter.

39 38
39

SERIE SLD - SLS SLD-SLS SERIES

PORTE SEZIONALI SCORRIMENTO LATERALE SECTIONAL DOORS WITH LATERAL SLIDING

PORTA LATERALE SINGOLA SLS

Larghezza massima realizzabile L = 6 m ed altezza massima H = 3,25 m.

LATERAL SINGLE DOOR SLS

Dimensions: maximum width maximum width W = 6 m maximum height H = 3.25 m

Incontro a pavimento: è prevista una soglia ribassata che non ostacola il passaggio. Floor guide: There is a low threshold which doesn’t obstruct the passage.

Nuova ed esclusiva intelaiatura perimetrale in alluminio con spazzolini per una maggiore coibentazione della porta. New and exclusive perimeter aluminum frame equipped with brushes for a better thermal insulation.

PORTA LATERALE DOPPIA SLD - Larghezza massima realizzabile L = 12 m ed altezza massima H = 3,25 m.

LATERAL DOUBLE DOOR SLD - Dimensions: maximum width W = 12 m and maximum height H = 3.25 m

PORTA PEDONALE PASSO-UOMO LATERALE LATERAL PEDESTRIAN DOOR

PORTA PEDONALE LATERALE

Con telaio in alluminio verniciato, è prevista in dimensioni da 900 a 1200 mm di larghezza e da 2100 a 2500 mm di altezza, con telaio standard di colore nero. Su richiesta è possibile avere dimensioni e colore del telaio speciali. Le porte laterali sono realizzate con i medesimi pannelli delle porte sezionali. Il telaio perimetrale in caso di pannello effetto legno viene sublimato con lo stesso effetto legno. La porta pedonale laterale è disponibile anche sul modello Panorama grigliato, vetrato e due battenti. Sono disponibili accessori come maniglione antipanico, serrature elettriche e sopraluce vetrati.

LATERAL PEDESTRIAN DOOR

With painted aluminum frame, it is available in different dimensions: from 900 to 1200 mm width and from 2100 to 2500 mm height, with standard black frame. Special dimensions and colours for the frame are available on request. Lateral doors are made with the same panels as sectional doors. The perimeter frame in case of wood effect panel provides with the same wood effect.

The side door is also available on the model Panorama grilled, glazed and with double leaf . Accessories such as panic exit bars, electric locks and glazed transoms are available.

Esempio di realizzazione porta sezionale con porta laterale, possibilità di utilizzo su tutte le estetiche e modelli (estetica cassettata esclusa) Example of sectional door with lateral wicket door, available on any pattern and model (caissoned pattern excluded)

41 40
SERIE PL PL SERIES
Serie SR Estetica Bidoga Modello San Paolo Ral 9006 SP AR Serie SR Pattern Doubleslat Model San Paolo Ral 9006 SP AR

PORTA PEDONALE BREVETTATA PATENTED WICKET DOOR

Esempio di realizzazione porta sezionale con porta pedonale inserita, misure disponibili 800 - 900 -1200 mm in larghezza e possibilità di utilizzo su tutte le estetiche e modelli ad esclusione dell’estetica cassettata.

Le caratteristiche che la rendono preziosa: - Cerniere a scomparsa inserite nei profili di alluminio di disegno Silvelox, silenziose e autolubrificanti

- Profili in alluminio senza rivetti esterni, con finitura che garantisce linearità e pulizia

Esiste la possibilità di adottare serrature a 3 o 5 punti di chiusura.

Example of realization of sectional door with pedestrian door inserted, available sizes W 800 - 900 -1200 mm, can be installed on all the aesthetics and models with the exception of boxed aesthetics.

Its main characteristics are:

- the hidden hinges inserted in the aluminum profiles, designed by Silvelox. They are silent and self-lubricating.

- the aluminum profiles without external rivets, with a linear and smooth finishing.

A new alternative closure with 3 or 5 locking points is now available.

VERSIONI SPECIALI SPECIAL VERSIONS Serie SR Estetica Bidoga Modello Tocantis Rovere sbiancato TO RC Serie SR Doubleslat pattern Model Tocantis Bleched oak TO RC BREVETTATO -PATEN T DE

Anti schiacciamento interno ed esterno. Internal and external finger protection system.

Disponibile pompa chiudiporta progettata in Germania che permette il blocco della porta aperta tramite una pratica leva. Available door closer device designed in Germany that allows to block the door open using a practical leverage.

Per maggior sicurezza disponibile chiusura a 3 o 5 punti. If more security is required 3 or 5 lock points latch is available

Montaggio facile grazie alle particolari piastrine di centraggio che garantiscono il perfetto allineamento dei profili. Easy to install thanks to particular centering plates that guarantee the perfect alignment of the frames.

43 42
SOGLIA RIBASSATA 18 MM COMPRESO GUARNIZIONE LOWERED THRESHOLD 18 MM INCLUDING GASKET MANIGLIA ERGONOMICA IN ALLUMINIO ERGONOMIC HANDLE IN ALUMINUM CHIAVI DI SICUREZZA SAFETY KEYS PLANARITÀ PERFETTA PERFECT PLANARITY

SEZIONALE PANORAMA SERIE SP PANORAMA SECTIONAL SP SERIES

Il modello PANORAMA è disponibile nella variante VETRATA: il telaio in alluminio sostiene in questo caso sezioni in metacrilato o vetro, garantendo un elevato livello di luminosità. Si garantisce la possibilità di optare per soluzioni totalmente grigliate o vetrate, oppure un mix tra le due versioni, o ancora un mix tra i pannelli PANORAMA e i normali pannelli coibentati. Disponibile nei vari colori RAL o effetto legno. Le dimensioni massime sono L = 6 m - H = 3,10 m.

The Panorama Model is available in the GLAZED version: the aluminum case supports methacrylate or glass sections, ensuring a high quality level of natural light. It is possible to opt for solutions with grids, glass or a combination of the two versions, as well as a combinations of panorama and normal insulated panels. They are available in all RAL colours or wood effect. Maximum measures W = 6 m - H = 3.10 m.

SERIE SP SP SERIES
Serie SP Estetica Panorama Modello Vetrato Ral 9010 Serie SP Panorama pattern Model Glazed Ral 9010

Serie

Esempio di realizzazione porta sezionale con inserti in alluminio tamponati con rete stirata. Possibilità di utilizzo su tutte le estetiche e modelli. Example of a sectional door with aluminum elements that hold a metal glazed net. Available for all models and aesthetics.

Qualora si necessiti di un elevato livello di aerazione, si propone il modello PANORAMA GRIGLIATO, dotato di griglie inserite nei telai in alluminio che costituiscono il pannello. Sono disponibili griglie con aerazione vuoto su pieno del 50% oppure dell’81%.

If a high level of air flow is needed, GRILLED PANORAMA is the best solution, being equipped with grids instead of the traditional panels. Grids are available with a 50% or 81% of open area for air passage.

ESEMPI DI PORTE SEZIONALI CON INSERIMENTO DI PANNELLI PANORAMA EXAMPLES OF

SECTIONAL DOORS WITH PANORAMA PANELS

SOLUZIONI DI TAMPONAMENTO DISPOSNIBILI:

Policarbonato trattato UV 3 mm trasparente o opale

Policarbonato trattato UV in camera 3/12/3 opale o trasparente

Policarbonato alveolare 16 mm

Vetro 3+3 trasparente

Rete con aerazione 67% e 50%

Possibilità di altre configurazioni contattando ufficio tecnico commerciale. Possibility of further configurations by contacting the technical sales office.

AVAILABLE SOLUTIONS:

INSERTIONS

3 mm UV treated polycarbonate transparent or opal

UV treated polycarbonate in 3/12/3 opal or transparent

UV treated polycarbonate alveolar chamber or 16 mm 3 + 3 transparent glass

Mesh with ventilation 67% and 50%

45 44
Serie SP Estetica Panorama Modello grigliato Ral 6005
SP Panorama pattern Model grigliato Ral 6005
RIEPILOGO ESTETICHE E COLORI PATTERNS AND COLOURS SUMMARY
ESTETICA PIANA | PLANAR PATTERN RO GP RO BI RO BP RO AR BA VR RO IR RO CO RO GI BA MR RO PE AM PQ AM RC
47 46
PA BI
PP
|
PATTERN AL BI
PA BG PA AR ESTETICA VENEZIANA | VENETIAN PATTERN
AR ESTETICA CASSETTATA
CAISSONED

SERIE SR-SRV-SLD-SLS SR-SRV-SLD-SLS SERIES

RIEPILOGO ESTETICHE E COLORI PATTERNS AND COLOURS SUMMARY

ESTETICA BIDOGA | DOUBLESLAT PATTERN

TO PL
49 48 SERIE SR-SLD-SLS / SR-SLD-SLS SERIES FINITURE PANNELLI OKOUMÉ / OKOUMÉ PANEL FINISHES TINTE DISPONIBILI LEGNO / AVAILABLE WOODEN COLOURS RAL 6005 VERDE MUSCHIO MOSS GREEN RAL 6009 VERDE ABETE FIR GREEN RAL 7016 GRIGIO ANTRACITE ANTHRACITE GRAY RAL 9002 BIANCO GRIGIO GREY WHITE RAL 9006 ALLUMINIO BRILLANTE BRIGHT ALUMINUM RAL 9010 BIANCO PURO PURE WHITE TINTE DISPONIBILI LACCATE / AVAILABLE LAQUERED COLOURS MIELE HONEY ROVERE OAK DOUGLAS DOUGLAS CILIEGIO CHERRY MOGANO MAHOGANY

ACCESSORI - MOTORIZZAZIONE ACCESSORIES - MOTORISATION

OBLÒ E GRIGLIE DI AERAZIONE PORTHOLES AND AREATION GRIDS

Oblò rettangolare motivo legnoso colore esterno bianco o nero con inglesina dimensioni 322x488 mm interno bianco.

Rectangular porthole. Wood effect finish. Colour: black or white. Dimension 322x488 mm.

Oblò antieffrazione nero. Dimensioni 146x609 mm. Anti-burglary black porthole. Dimensions 146x609 mm.

Oblò ovale nero interno ed esterno. Dimensioni 660x340 mm.

Oval porthole. Colour: internal and external black. Dimensions: 660x340 mm.

Oblò rettangolare colore esterno simil legno quercia chiaro o quercia scuro, interno bianco. Dimensioni 324x490 mm.

Rectangular porthole.

External colour: light or dark oak. Internal colour: white. Dimensions: 324x490 mm.

Oblò rettangolare motivo legnoso colore esterno bianco o nero, interno bianco. Dimensioni 324x490 mm.

Rectangular porthole. Wood effect. External colour: black or white. Internal colour: white. Dimensions: 324x490 mm.

Oblò rettangolare colore esterno cromato, interno bianco.

Dimensioni 324x490 mm. Rectangular porthole. External colour: chrome. Internal colour: white. Dimensions: 324x490 mm.

Oblò rettangolare finitura liscia colore esterno bianco, interno bianco. Dimensioni 364x530 mm.

Rectangular porthole. Smooth finish. External colour: white. Dimensions: 364x530 mm.

Oblò rettangolare finitura liscia colore esterno grigio RAL 7016 interno bianco.

Dimensioni 364x530 mm.

Rectangular porthole. Smooth finish. External colour: grey RAL 7016.

Internal colour: white. Dimensions: 364x530 mm.

Oblò tondo. Diametro 330 mm. Round porthole. Diameter 330 mm.

Oblò quadrato cornice esterno ALLUMINIO SPAZZOLATO, interno bianco con vetro opaco di sicurezza 3+3 mm.

Dimensioni 290x290 mm. Square porthole.

External colour: BRUSHED ALUMINUM. Internal colour: white.

Opaque safety glass 3 + 3 mm. Dimensions: 290x290 mm.

Oblò quadrato colore esterno quercia chiaro, interno bianco con tamponamento esterno trasparente in APET e interno opaco in CIPET dimensioni 290x290 mm o con vetro esterno di sicurezza 3+3 mm.

Square porthole. external colour: light oak. Internal colour: white.

External finish in APET and opaque internal finish in CIPET.

Dimensions 290x290 mm. Security glass 3+3 mm available.

Oblò quadrato colore esterno quercia scuro, interno bianco con tamponamento esterno trasparente in APET e interno opaco in CIPET dimensioni 290x290 mm o con vetro esterno di sicurezza 3+3 mm. Square porthole. external colour: light oak. Internal colour: white.

External finish in APET and opaque internal finish in CIPET.

Dimensions 290x290 mm. Security glass 3+3 mm available.

Areation grid. Colours: black or white. Dimensions: 132x338 mm.

Guide verniciate bianco RAL 9016, da richiedere espressamente in fase d’ordine: migliorano l’aspetto estetico della porta vista internamente.

White RAL 9016 guides, to be required when ordering: improves the internal aesthetic of the door.

Areation metal grid for replacing the tubular lintel.

Colours: painted RAL9010 or other RAL on request.

Maniglia con pomolo esterno nera per porte manuali o come sblocco motore nel caso di porte motorizzate. External black handle for manual doors or used as unlocking device for motorized doors.

51 50

SISTEMI DI APERTURA E CHIUSURA SMART SMART OPENING AND CLOSING SYSTEMS

DISPOSITIVO ELETTRONICO MT600 MT600 ELECTRONIC DEVICE

MT600 è il dispositivo elettronico che consente l’azionamento di un cancello o una porta da garage, utilizzando uno smartphone. MT600 è in grado di copiare il radiocomando di una automazione e quindi di controllarla comportandosi come un radiocomando. Può essere utilizzato installato fisso all’esterno del proprio portone o può essere portato con se in auto e memorizzare fino a 4 chiusure in luoghi differenti.

Il dispositivo si collega allo smartphone con connessione Bluetooth 4 LE. Compatibile con il 90% dei telecomandi a codifica fissa e rolling code. Controlla fino a 4 chiusure (cancelli, porte per garage, etc).

MT600 is the electronic device that allows the operation of a gate or a garage door by using the smartphone. MT600 is able to copy the remote control of an automation and therefore to control it by behaving like a radio control. It can be installed outside your door or it can be taken with you in the car and store up to 4 locks in different places. The device connects to the smartphone with Bluetooth 4 LE connection. Compatible with 90% of fixed and rolling code remote controls. Control up to 4 locks (gates, garage doors, etc).

MOTORIZZAZIONE MOTORIZATION

APP SILVELOX

App dedicata al cliente finale per l’apertura della porta tramite smartphone. Module for automation control from smartphone.

Motore elettrico HALO 24Vdc a profilo ribassato, adatto per portoni basculanti fino a 14 m2 e sezionali fino a 16 m2. Dotato di encoder, centrale di comando e ricevitore a 4 canali guida preassemblata a cinghia o catena, in pezzo unico o 3 pezzi. Dotato di speciale guida in alluminio di serie, verniciata a polveri con led integrati, permette l’illuminazione del garage sia durante la movimentazione che in qualsiasi altro momento. Conformazione appiattita del corpo motore. Disponibile anche con guida zincata.

HALO 24Vdc electric motor with low profile, suitable for overhead doors up to 14 m2 and sectional doors up to 16 m2. Equipped with encoder, control unit and 4-channel preassembled guide with belt or chain, in one piece or 3 pieces. Equipped with a powder painted standard aluminium guide with LED, allows the lighting inside the garage during the operation of the door as well as in any other moment. Flattened shape of the motor body. available Also with galvanized guides.

Selettore HALO con tastierino numerico. Selettore digitale via radio da abbinare a tutti i ricevitori rolling code con batterie incluse.

HALO selector with numeric keypad. Digital radio selector to combine with all rolling code receivers with batteries included.

Apertura e chiusura della porta attraverso il cellulare oppure con radiocomando XR Rolling Code e XR Rolling Code con ricevente e bordo, IP68 resistente all’acqua 4 canali 433 MHz. Semplice, funzionale, ergonomico. Diverse colorazioni intercambiabili. Opening and closing the door through the mobile phone or with XR Rolling Code radio transmitter with receiver and edge, IP68 water-proof, 4 channels, 433MHz. Easy use, functional, ergonomic. Different interchangeable colors.

1. Centrale domotica di comando miniaturizzata. Programmazione con LED+BUZZER. Memorizzazione di 30 trasmettitori. Spegnimento automatico. Punti di comando luci via cavo.

2. Trasmettitore da incasso 2 canali. Batteria al litio CR2032.

1. Control unit with miniaturized control. Programming with LED + BUZZER. Storage of 30 transmitters. Automatic switch-off.

2. Cable lights control points. 2-channel built-in transmitter. CR2032 lithium battery.

Telecomando touch un canale da incasso sul pannello della porta (fresata da 35 mm). Remote control with touch technology 1 channel for door panel recess.

Lampeggiante Eclipse con antenna integrata. Eclipse flashing with integrated antenna.

Telecomando touch 1 canale da parete. Remote control with touch technology 1 channel for wall.

53 52

STRUTTURE PORTANTI IN ALLUMINIO ALUMINUM STRUCTURES

Per garantire un buon impatto estetico ottenendo al tempo stesso maggiore facilità nelle movimentazioni e nelle lavorazioni, si propone tubolari per le spalle laterali e per l’architrave in alluminio con trattamento superficiale innovativo, che dona alla struttura lo stesso grado di finitura del manto.

To ensure a great aesthetic impact, gaining at the same time ease in handling, aluminum tubular products to be fixed on the sides and on the lintel are proposed. Their surface has been treated with an innovative system that gives the structure the same accurate finishing as the sectional door.

Disponibili coprifili di finitura 50x30 mm in tinta RAL e effetto legno. L-shape profil covers 50x30 mm painted in RAL or wooden effect.

Disponibili in tutte le finiture del catalogo pannelli, sia in tinta legno che tinte RAL della porta.

Misure spalla 100x30x2 mm Misure architrave 150x30x1,5 mm

Available in all colours of the panel catalogue, wood effect or RAL. Lateral measure 100x3x2 mm Lintel measure 150x30x1,5 mm

Esempi di realizzazione con struttura in alluminio tinta RAL o effetto legno Samples of installations with aluminum structure, painted in RAL or wood effect.

Maniglia esclusiva Silvelox con sblocco motore come optional. Exclusive Silvelox handle with engine release as an option.

Grey Silver Bronze
55 54 SEZIONI VERTICALI SERIE SR VERTICAL SECTIONS SR SERIES VERSIONE | VERSION WA - WM Scorrimento superiore con architrave 150 mm. Superior sliding with 150 mm lintel VERSIONE | VERSION WC - WN Scorrimento superiore inclinato con architrave 150 mm MAX 12° Superior sliding with 150 mm lintel max 12° VERSIONE | VERSION WB Scorrimento superiore con architrave 250 mm. Superior sliding with 250 mm lintel VERSIONE | VERSION WD Scorrimento superiore inclinato con architrave 250 mm MAX 22° Superior sliding with 250 mm lintel MAX 22° architrave 150 mm 150 mm lintel architrave 150 mm 150 mm lintel Altezza luce passaggio 3100 mm MAX Passage height 3100 mm MAX Altezza luce passaggio 3100 mm MAX Passage height 3100 mm MAX architrave 250 mm 250 mm lintel architrave 250 mm 250 mm lintel Altezza luce passaggio 3250 mm MAX Passage height 3250 mm MAX Altezza luce passaggio 3250 mm MAX Passage height 3250 mm MAX INGOMBRI E TIPI DI INSTALLAZIONE DIMENSIONS AND METHODS OF INSTALLATION

SEZIONI ORIZZONTALI SERIE SR HORIZONTAL SECTIONS SR SERIES

VERSIONE | VERSION ST

Portone installabile con battuta destra e sinistra già esistenti. In questo caso non sono necessarie strutture in tubolare extra per il fissaggio.

It can be installed on a structure with already existing left/right jambs. In this case, extra tubular structures to fix are not necessary.

VERSIONE | VERSION

TS

Portone installabile su struttura con battuta destra mancante e sinistra esistente. In questo caso è necessaria una struttura in tubolare per il fissaggio.

It can be installed on a structure with only the left jamb. One tubular structure to fix is necessary.

VERSIONE | VERSION TD

Portone installabile con battuta destra esistente e sinistra mancante. In questo caso è necessaria una struttura in tubolare per il fissaggio.

It can be installed on a structure with only the right jamb. One tubular structure to fix is necessary.

VERSIONE | VERSION DS

Portone installabile su struttura con battuta destra e sinistra mancante. In questo caso è necessaria una struttura in tubolare per il fissaggio.

it can be installed on a structure without left and right jambs. One tubular structure to fix is necessary.

Sono disponibili tubolari in alluminio in tinte RAL oppure effetto legno da 150x30x2.5 mm e da 100x30x2 mm per realizzare le battute mancanti. AlumInum tubulars to create the missing jambs are available in RAL colours or wood-effect 150x30x2.5 mm or 100x30x2 mm.

VERSIONE ST: Portone installabile su struttura con battuta destra e sinistra già esistenti. In questo caso non sono necessarie strutture in tubolare extra per il fissaggio.

VERSIONE TD: Portone installabile su struttura con battuta destra esisten te e sinistra mancante. In questo caso è necessaria una struttura in tubolare per il fissaggio.

VERSIONE TS: Portone installabile su struttura con battuta destra mancan te e sinistra esistente. In questo caso è necessaria una struttura in tubolare per il fissaggio.

VERSIONE DS: Portone installabile su struttura con battuta destra e sinistra mancante. In questo caso sono previsti due afferraggi.

ST version: it can be installed on a structure with already existing left/ right jambs. In this case, extra tubular structures to fix are not necessary.

TD version: it can be installed on a structure with only the right jamb. One tubular structure to fix is necessary.

TS version: It can be installed on a structure with only the left jamb. One tubular structure to fix is necessary.

DS Version: it can be installed on a structure without left and right jambs. One tubular structure to fix is necessary.

57 56
VERTICALI E ORIZZONTALI
HORIZONTAL VIEWS SRV SERIES VERSIONE | VERSION WO (SRV) Scorrimento superiore architrave 150 mm Superior sliding with 150 mm lintel
SEZIONI
SERIE SRV
Sono disponibili tubolari in alluminio in tinte RAL oppure effetto legno da 150x30x2.5 mm e da 100x30x2 mm per realizzare le battute mancanti. AlumInum tubulars to create the missing jambs are available in RAL colours or wood-effect 150x30x2.5 mm or 100x30x2 mm. VERSIONE ST ST VERSION VERSIONE TS TS VERSION VERSIONE TD TD VERSION VERSIONE DS DS VERSION

SEZIONI VERTICALI SERIE SLD-SLS SLD-SLS SERIES VERTICAL VIEWS

VERSIONE A VERSION A

Non necessita di tubolare per architrave. No tubolar needed for lintel.

VERSIONE B

VERSION B

Prevede tubolare per architrave 100x30x2 mm. Lintel tubolar 100x30x2 mm is required.

SEZIONI ORIZZONTALI SERIE SLD-SLS SLS-SLD SERIES HORIZONTAL VIEWS

59 58

CAPITOLATO PORTE SEZIONALI RESIDENZIALI LATERALI

Pannello coibentato in doppia lamiera

Le porte sezionali residenziali laterali, sono costruite nelle seguenti configu razioni d’apertura:

• SLS_dx_90°

• SLS_sx_90°

• SLS_dx_0°

• SLS_sx_0°

• SLD_dx_90°_sx_90°

• SLD_dx_90°_sx_0°

• SLD_dx_0°_sx_90°

• SLD_dx_0°_sx_0°

• SAO PAOLO = bidoga – finitura liscia;

• TOCANTINS = bidoga – finitura preverniciato/plastificato finto legno;

• GOIAS = bidoga – finitura goffrato legno;

• AMAPÀ= multidoga – finitura liscia;

• SERGIPE = multidoga – finitura preverniciato/plastificato finto legno;

• PARANÀ = multidoga – finitura goffrato legno

• RONDONIA = piana – finitura liscia;

• AMAZONAS = piana – finitura preverniciato/plastificato finto legno;

• BAHIA = piana – goffrato legno

• PARÀ = veneziana – finitura liscia di spessore 40 mm, h=500 o 610mm, tipologia antipizzico, realizzati con la miera in acciaio preverniciato o plastificato, di spessore 0,5 mm e coibentati con poliuretano espanso di densità 35/40 kg/mc, esente da CFC (trasmittan za termica dichiarata nella tabella DATI TECNICI);

Profilo cornice pannelli in alluminio verniciato nero opaco ral 9004; profilo telaio perimetrale in alluminio verniciato ral 9004; profilo di battuta in alluminio anodizzato nero; profilo guida inferiore alluminio anodizzato nero; profilo guida superiore in alluminio grezzo; profilo soglia in alluminio nero anodizzato; cerniere intermedie in acciaio di colore bianco; carrelli di scorrimento superiori con vite per regolazione in altezza ; curva iniettata grigio ral 7038 in plastica formata da n°2 curve uguali a 45°; braccio multiposizione grezzo sp.6 mm per chiusura ultimo pannello; maniglia in nylon o zama, installati sul pannello in chiusura.

Su richiesta: oblò ovali, rettangolari, quadrati, tondi o griglie di areazione; pannelli in alluminio PANORAMA tamponati con metacrilato singolo o doppio, rete stirata romboidale o quadrata da 2 o 3 mm con areazione 50/81% Conforme ai requisiti di sicurezza del CPR 305-2011, UNI EN 13241-1 e direttiva macchine 2006/42/CE. Prestazioni come da tabella DATI TECNICI

Pannello coibentato in legno

Le porte sezionali residenziali laterali, sono costruite nelle seguenti configu razioni d’apertura:

• SLS_dx_90°

• SLS_sx_90°

• SLS_dx_0°

• SLS_sx_0°

• SLD_dx_90°_sx_90°

• SLD_dx_90°_sx_0°

• SLD_dx_0°_sx_90°

• SLD_dx_0°_sx_0°

• MADEIRA = estetica 1 - piana;

• MADEIRA = estetica 2 - quadra;

• MADEIRA = estetica 3 - multidoga verticale passo 100; di spessore 40 mm, h=variabile da 400mm a 550mm, in base all’altezza del Manto, tipologia antipizzico, realizzati con legno di Okumè, multistrato di 5 mm e coibentati con nido d’ape continuo tipo KH 30, esente da CFC (trasmit tanza termica dichiarata nella tabella DATI TECNICI); Profilo cornice pannelli in alluminio verniciato nero opaco ral 9004; profilo telaio perimetrale in alluminio verniciato ral 9004; profilo di battuta in alluminio anodizzato nero; profilo guida inferiore alluminio anodizzato nero; profilo guida superiore in alluminio grezzo; profilo soglia in alluminio nero anodizzato; cerniere intermedie a scomparsa in PA6 di colore nero; carrelli di scorrimento superiori con vite per regolazione in altezza; curva iniettata grigio ral 7038 in plastica formata da n°2 curve uguali a 45°; braccio multiposizione grezzo sp.6 mm per chiusura ultimo pannello; maniglia in nylon o zama installati sul pannello in chiusura.

Su richiesta: oblò quadrati o griglie di areazione. Conforme ai requisiti di sicurezza del CPR 305-2011, UNI EN 13241-1 e direttiva macchine 2006/42/CE. Prestazioni come da tabella DATI TECNICI

ANTA MOBILE COMPOSTA DA PANNELLI COIBENTATI NELLA TIPOLOGIA: ANTA MOBILE COMPOSTA DA PANNELLI COIBENTATI NELLA TIPOLOGIA:

Resistenza al carico del vento EN 12424

• Manto senza porta pedonale inserita, classe (a) 2 2 2 2 2 2 2

• Manto con porta pedonale Standard 800x1867, LP≤ 4000, classe (b) 3 3 3 3 3 3 3

• Manto con porta pedonale Standard 800x1867, LP> 4000 e <=5000, classe 2 2 2 2 2 2 2

Tenuta all’acqua EN 12425

• Manto senza porta pedonale inserita, classe 30 (70 Pa) 30 (70 Pa) 30 (70 Pa) 30 (70 Pa) 30 (70 Pa) 30 (70 Pa) 30 (70 Pa)

Permeabilità all’aria EN 12426

• Manto senza porta pedonale inserita, classe 2 2 2 2 2 2 2

• Manto con porta pedonale inserita, classe (c) 1 1 1 1 1 1 1

Insonorizzazione EN 717-1

• Manto senza

• Manto con porta pedonale inserita R = . . . dB (d)

Isolamento Termico EN 13241:2016

Manto coibentato, senza porta pedonale, U = W/ (m²·K)

• Manto coibentato con pannello da 40 senza porta (e)

Dimensioni LxH 5500x5500 1.1 1.1 1.1 1.1 1.1 1.1 1.1

Dimensioni LxH 3500x3500 1.3 1.3 1.3 1.3 1.3 1.3 1.3

Dimensioni LxH 3500x2500 1.5 1.5 1.5 1.5 1.5 1.5 1.5

• Differenza con Oblò U = W/ (m²·K) (incrementare) +0.1 +0.1 +0.1 +0.1 +0.1 +0.1 +0.1

• Pannello da 40, U = W/ (m²·K) (f) 0.48 0.48 0.48 0.48 0.48 0.48 0.48

• Pannello da 50 = W/ (m²·K) (f) 0.39 0.39 0.39 0.39 0.39 0.39 0.39

• Pannello da 60 = W/ (m²·K) (f) 0.33 0.33 0.33 0.33 0.33 0.33 0.33

• Pannello da 80 = W/ (m²·K) (f) 0.25 0.25 0.25 0.25 0.25 0.25 0.25

Manto senza porta pedonale inserita, U = W/ (m²·K)

• Vetro metacrilato singolo, U = W/ (m²·K) (g) 5,6 5,6 5,6 5,6 5,6 5,6 5,6

• Vetro metacrilato doppio U = W/ (m²·K) (h) 3,4 3,4 3,4 3,4 3,4 3,4 3,4

Struttura Tubolare

• Tubolare in alluminio per architrave (mm) 150x30 150x30 150x30 150x30 150x30 150x30 150x30

• Tubolare in alluminio per spalle (mm) 100x30 100x30 100x30 100x30 100x30 100x30 100x30

Dimensioni Manto

• Larghezza max. mm, L

• Altezza max. mm, H

Composizione del manto

• Acciaio a doppia parete 40 mm

• Acciaio a doppia parete 50 mm

• Acciaio a doppia parete 60 mm

• Acciaio a doppia parete 80 mm

• Alluminio, profilo da 40 mm

Superficie del manto

• Acciaio zincato, pre-verniciato RAL 9010

• Acciaio zincato, pre-verniciato RAL a scelta Rinforzo manto per resistenza al vento (cl.2)

WA WB WC WD WM
WO
WN
porta pedonale inserita R = . . . dB (d) 22 22 22 22 22 22 22
20 20 20 20 20 20 20
6500
6500 6500 6500 3500
6500 6500
3100 3250 3100 3250 3100 3100 2500
\\ \\ \\ \\ \\ \\ \\
<=5000 <=5000 <=5000 <=5000 <=5000 <=5000 <=5000
Pannello da 500/610x40 - Senza omega
<=7500 <=7500 <=7500 <=7500 <=7500 <=7500 <=7500 Rinforzo manto per colori scuri (irraggiamento)
Pannello da 500/610x40 - Senza omega <=5000 <=5000 <=5000 <=5000 <=5000 <=5000 <=5000
Pannello da 500/610x40 - Con 1 omega <=7500 <=7500 <=7500 <=7500 <=7500 <=7500 <=7500 Sono da evitare i colori scuri nei portoni in acciaio a doppia parete esposti al sole, perché la flessione dei pannelli può compromettere la funzionalità del manto. Silvelox consiglia per questo tipo di porte l’inserimento di un omega aggiuntivo per pannello da 4000 mm (opzionale su richiesta del cliente). Porta pedonale inserita
Con soglia ribassata \\
Con zoccolo standard 130 mm \\ Porta pedonale laterale TABELLA DATI TECNICI
• Pannello da 500/610x40 - Con 1 omega

Finestrature

• Rettangolare 324x490

• Rettangolare 322x488 con inglesina

• Rettangolare 364x530

• Rettangolare antieffrazione 146x609

• Quadrato 290x290

• Ovale 340x660

• Tondo Ø330

• Tondo Ø330 in alluminio spazzolato

• Griglia di areazione 132x338

• Una o più sezioni panorama con vetro singolo o doppio

• Una o più sezioni panorama con rete metallica Guarnizioni

• Perimetrale su 4 lati

• Guarnizione intermedia tra gli elementi del Manto Sistemi di chiusura

• Catenaccio con pomello

• Maniglia serratura con pomolo con chiusura laterale Sicurezze

• Protezione salva dita su pannello

• Protezione anti-convogliamento laterale – su ruote

• Sicurezza contro rottura sistema di sospensione

• Sicurezza contro rottura molle

Possibilità di fissaggio

• Calcestruzzo

• Acciaio

• Muratura

• Altre possibilità su richiesta

NOTE:

= Standard

= Su richiesta

(a) Misurata su una porta 6500x3500

(b) Testata anta 3280x2550 (con porta pedonale 800x1800 su 4 pannelli con zoccolo ribassato) (c) Misurata su una porta 6500x3500

(d) Misurata su una porta 3760x3000

(e) Valore calcolato su una porta coibentata 6500x3500, con pannello da 40, senza porta pedonale

(f) Valore dichiarato dal produttore dei pannelli

(g) Valore calcolato su un Manto completo 6000x5500

(h) Valore calcolato su un Manto completo 4000x3400

63 62

Wind resistance EN 12424

• Door without pedestrian door, class (a) 2 2 2 2 2 2 2

• Door with Standard pedestrian door 800x1867, LP≤ 4000, class (b) 3 3 3 3 3 3 3

• Door with Standard pedestrian door 800x1867, LP> 4000 e <=5000, classe 2 2 2 2 2 2 2

Water resistance EN 12425

• Door without pedestrian door, class 30 (70 Pa) 30 (70 Pa) 30 (70 Pa) 30 (70 Pa) 30 (70 Pa) 30 (70 Pa) 30 (70 Pa)

Air permeability EN 12426

• Door without pedestrian door, class 2 2 2 2 2 2 2

• Door with pedestrian door, class (c) 1 1 1 1 1 1 1

Insonorization EN 717-1

• Door without pedestrian door R = . . . dB (d) 22 22 22 22 22 22 22

• Door with pedestrian door R = . . . dB (d) 20 20 20 20 20 20 20

Thermal insulation EN 13241:2016

Insulated panel, without pedestrian door, U = W/ (m²·K)

• Insulated panel 40 mm thick without pedestrian door (e)

Dimensions WxH 5500x5500 1.1 1.1 1.1 1.1 1.1 1.1 1.1

Dimensions WxH 3500x3500 1.3 1.3 1.3 1.3 1.3 1.3 1.3

Dimensions WxH 3500x2500 1.5 1.5 1.5 1.5 1.5 1.5 1.5

• Difference with a portholeU = W/ (m²·K) (increasing) +0.1 +0.1 +0.1 +0.1 +0.1 +0.1 +0.1

• Panel 40, U = W/ (m²·K) (f) 0.48 0.48 0.48 0.48 0.48 0.48 0.48

• Panel 50 = W/ (m²·K) (f) 0.39 0.39 0.39 0.39 0.39 0.39 0.39

• Panel 60 = W/ (m²·K) (f) 0.33 0.33 0.33 0.33 0.33 0.33 0.33

• Panel 80 = W/ (m²·K) (f) 0.25 0.25 0.25 0.25 0.25 0.25 0.25

Panel without pedestrian door, U = W/ (m²·K)

• Single methacrylate panel, U = W/ (m²·K) (g)

• Double methacrylate panel U = W/ (m²·K) (h) 3,4 3,4 3,4 3,4 3,4 3,4 3,4

Tubukar structure

• Tubolare in alluminio per architrave (mm)

• Tubolare in alluminio per spalle (mm)

WA
WM
WB WC WD
WN WO
5,6 5,6 5,6 5,6 5,6 5,6 5,6
150x30
150x30
150x30 150x30 150x30
150x30 150x30
100x30 100x30 100x30 100x30 100x30
Width
6500 6500 6500 6500 6500 6500 3500
3100 3250 3100 3250 3100 3100 2500
\\ \\ \\ \\ \\ \\ \\
pre-painted RAL at choice Panel reinforcing for wind resistance (cl.2) • Panel 500/610x40 - Without omega <=5000 <=5000 <=5000 <=5000 <=5000 <=5000 <=5000 • Panel 500/610x40 - With 1 omega <=7500 <=7500 <=7500 <=7500 <=7500 <=7500 <=7500 Panel reinforcing for dark colors (irradiation) • Panel 500/610x40 - Without omega <=5000 <=5000 <=5000 <=5000 <=5000 <=5000 <=5000 • Panel 500/610x40 - With 1 omega <=7500 <=7500 <=7500 <=7500 <=7500 <=7500 <=7500 It is suggested to avoid dark colors when ordering steel panels which will be directly exposed to the sun, as the bending of the panels would compromise the operation of the door. Silvelox suggests in case of order to add 1 omega each panel (optionl, on customer request). Pedestrian door • With lowered threshold \\ • With standard threshold 130 mm \\ Lateral pedetsrian door TECHNICAL DATA TABLE
100x30 100x30
Panel dimensions •
max. mm, W
• Height max. mm, H
Panel composition • Double-walled steel 40 mm • Double-walled steel 50 mm • Double-walled steel 60 mm • Double-walled steel 80 mm
• Aluminum, profile 40 mm Panel surface • Galvanized steel, pre-painted RAL 9010 • Galvanized steel,

65 64
Windows
Rectangular 324x490
Rectangular 322x488 with Georgian bar
Rectangular 364x530
Rectangular anti-intrusion 146x609
Square 290x290
Oval 340x660
Round Ø330
Round Ø330 in brushed aluminium
Ventilation grille 132x338
One or more panorama sections with single or double glazing
One or more panorama sections with metal net
Seals
Perimeter seal on 4 sides
Intermediate seal between the door leaf elements Closure system
Security chain with knob
Handle lock with knob and side closure Safety devices
Finger guard on panel
Side movement prevention – on wheels
Suspension system safety break device
Spring break safety device Anchoring options
Concrete
Steel
Masonry
Other options on request NOTES: = Standard = On request (a) Measured on one door 6500x3500 (b) Door head 3280x2550 (with wicket door 800x1800 on 4 panels with lowered plinth) (c) Measured on one door 6500x3500 (d) Measured on one door 3760x3000 (e) Value calculated on one insulated door 6500x3500, with panel 40, with no wicket door (f) Value declared by panel manufacturer (g) Value calculated on complete door leaf 6000x5500 (h) Value calculated on complete door leaf 4000x3400

PROCESSI INDUSTRIALI

ALL’AVANGUARDIA INDUSTRIA 4.0 ADVANCED INDUSTRIAL PROCESSES

Profilatura lamiera per produzione strutture metalliche per porte. Profiling department for door metal trackset production. Impianto lavorazione pannelli. Panel processing plant. Sistema di controllo automatizzato. Automated control system. Robot di montaggio strutture metalliche porte sezionali. Robot for assembling metal structures for sectional doors. Magazzino pannelli semilavorati. Semi-finished panels warehouse.

Stazione di controllo qualità estetica. Aesthetic quality control station.

Stazione automatica pannelli semilavorati. Automatic station for semi-finished panels.

Le condizioni di vendita e certificazioni sono visibili sul sito www.silvelox.it General sales conditions and certifications available on our website www.silvelox.it

66 67

SILVELOX GROUP SPA www.silvelox.it P.IVA 02381120225

Headquarters and Production plant: Viale Venezia, 37 I-38050 Castelnuovo - Trento - Italy Tel. (+39) 0461 755 755 - Fax (+39) 0461 752 466 info@silvelox.it - silvelox@cgn.legalmail.it - www.silvelox.it

Production plant: Via Rossi, 14 I-25010 Remedello - Brescia - Italy Tel. (+39) 030 258 5500 - Fax (+39) 030 258 2537 seip@silvelox.it - www.seipdoors.it

SILVELOX GROUP S.p.A. nell’intento di migliorare la qualità delle proprie porte, si riserva il diritto di apportare in qualsiasi momento modifiche al prodotto, a tutela della soddisfazione dei propri clienti. SILVELOX GROUP S.p.A.
reserves the right to modify its products
at any
time to improve
the
quality of said products
and
better
satisfy
customers. Cod. DO0008 Rev. 4 del 01/08/2022 I nostri cataloghi sono stampati su carta ecologica certificata FSC Our catalogs are printed on FSC certified ecological paper
GROUP SPA

Turn static files into dynamic content formats.

Create a flipbook
Issuu converts static files into: digital portfolios, online yearbooks, online catalogs, digital photo albums and more. Sign up and create your flipbook.
Iseofinestre - Catalogo-istituzionale-SEZIONALI by Makemedia Studios S.a.s. - Issuu