Mai Bandem | Architectural Portfolio 2023

Page 1

portfolio. Bachelor of Architecture and Environments '23 Mai Bandem | University of Sydney selected works 2021-2022

mai bandem.

Forest Lodge, Sydney, Australia

maithilabandem@gmail.com

+61 422 207 793

Education

2021-2023

Bachelors of Architecture and Environments

2014-2020

The University of Sydney 88.4 Annual Average Mark

Dyatmika International School Bali

AS/A Level in Business, Literature, Art, Maths Straight A's for A level Subjects

Certificates

2022

Super Studio National Competition NSW Runner Up

In recognition of contribution to a Super Studio 2022 design concept as awarded by the state jury of sustainable and regenerative design techniques This competition is supported by Australian Institute of Architects and SONA

2022

Atelier Bali Competition 2nd Place Winner

In recognition of contribution to Atelier Bali's Home of Tomorrow design concept.

2021

Dean's List of Excellence in Academic Performance

Award annually on recommendation by the Deans, this prize recognizes high performing students in each faculty based on annual average marks and enrolment, on advice from Faculty.

2021

Sydney International Student Award

Award recognizing Academic Achievements of Applicants in Central Asia

Languages

English

Indonesian

Bali, Indonesia

Work Experience

2019-2022

Mania Clothing Label

2022

The Ayana Resort and Spa

Skills

Public Relation Assistant

Social Media Manager of Mania Clothing Label based in Bali especially Instagram @mania80361.

Commission Work

"The Energy of Silence" - Site Specific Multimedia Installation as part of the storytelling of Nyepi (Silent Day) at Ayana Art Gallery.

Self-portrait Realism Paintings (Oil Paint on Canvas) Private Collectors

2018-Present

MS Office

Adobe CC

CAD/ Render

Word | PowerPoint | Excel

Photoshop | InDesign | Lightroom | Illustrator

Rhino | Grasshopper | Enscape | Lumion

architectural portfolio p r e f a c e

Nook's Alcove

Exploring surrealism within residential spaces in Darlington

Cove Apartments

A parametric modelling project maximizing efficiency of residential towers in the CBD

Tug-of-Theatres

Two theatre design in contrasting architectural styles

Crafted Models

An curated assemblage of handcrafted forms and models.

contents. 01 02 03 04 1-6 7-10 11-20
2021-2022 selected works m a i b a n d e m
21-26

Nook's Alcove

Ranked 3rd Best amongst Cohort

Year: 2021

Type: Residential Building Project

Tutor: Maria Dominquez

Role: Individual Work

Comfort in Eccentricity | Integrating surrealistic elements within the confines of home, Nook's Alcove encourages residents to embrace their individuality and revel in the unexpected. As an extension of its client - a passionate painter and a , the design envisages to create a semi-open space adorned by unconventional furniture and installations, regardless of the confines of the site. With unusual positioned structures to cater for programs, Nook's alcove creates a unique and memorable experience for incoming clients, patrons, and homeowners - one that is visually appealing and emotionally liberating.

01
architectural portfolio n o o k ' s a l c o v e 1
2021-2022 selected works m a i b a n d e m 2

A Leap into New Living | The design encourages the use of abstract elements including the placements of lavatory and waiting quarters in the backyard. Furthermore, the skylight and glass installation spanning down the house ensures that sunlight is able to bleed from the top story to the basement. Thus, becoming the link and facilitator between the various floor levels.

architectural portfolio n o o k ' s a l c o v e 3
m a i b a n d e m 4

Eccentric edifices and custom furnitures become the building block that foster unique experiences within Nook's Alcove The terrace house design aims to create meaningful interactions between interior space, patrons, and homeowners

architectural portfolio n o o k ' s a l c o v e 5
2021-2022 selected works m a i b a n d e m 6

Year: 2022

Type: Grasshopper

Tutor: Jordan Lattouf

Role: Individual Work

architectural portfolio
02 Cove Apartments
Parametric Modelling 1 4 5 6 7 9 7
Preliminary

final output

vertical columns subtract extrusions with external sheathe to create façade

create and trim an array of circles along the base outline and extrude upwards

rectangular windows

bass mass and outline

base can be constructed from two circles; with intersecting lines

façade

balcony surface

elliptical chimneys

using the points located at the building summit, use array to create chimney pipes

create balcony curve with thickness extrude in correlation to floor level

detailing foundation

railing and vertical sunshades

offset

balcony curvature to create glass panels and extrude sub components

external sheathe floor-level geometry

create external sheathe by offsetting base outline and extruding in the Z direction

use base boundary to create a brep with appropriate thickness

roof trim

subtract main structure with two mirrored shapes to create roof

2021-2022 selected works m a i b a n d e m
1 2 3 4 5 6 7 8 9
8

As a property which serves as a residential space built at the core of the CBD, views and solar access become vital parameters in determining the tower's functionality The successful integration of windows and building orientation can yield higher property value for Cove Apartments which is further analyzed and tested within the project

r Surface Area: 195 8 m ²
9
m a i b a n d e m 10
View maximization result using Galapagos and Genomes measuring Form Rotation, Distance Between Floors and Floor Shape.

03

Tug-of-Theatres

Grade Awarded: Full-Marks

Year: 2022

Type: Performance Space

Tutor: Adrian Taylor

Role: Individual Work

11
architectural portfolio t u go ft h e a t r e s

Black box theatres, functioning as a cultural hub for art and performances, provide a space to celebrate the essence of creativity and human expression in an immersive manner.

2021-2022 selected works m a i b a n d e m 12

This project investigates the polarizing architectural style between minimalist and maximalist design. Each theatre explores the transformation, application, and manifestation of architectural materials in the performance space. The first theatre aims to emulate the aesthetic of tropical modern architecture through tactful use of wide-gauge glass, organic materials and lush vegetation - to which contrasts the second theatre's strong focus on faux and superficial materials.

architectural portfolio t u go ft h e a t r e s 13
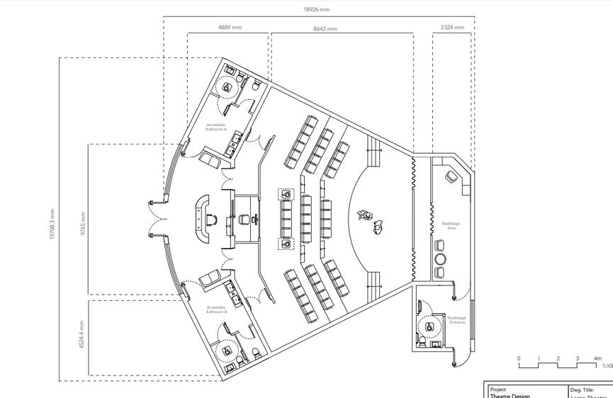
2021-2022 selected works m a i b a n d e m
Timber Theatre Floor Plan
14
Glass Theatre Floor Plan
architectural portfolio t u go ft h e a t r e s
15
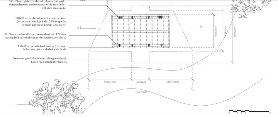
Rendered Section and Elevation of Timber Theatre
2021-2022 selected works m a i b a n d e m
16
Rendered Section and Elevation of Glass Theatre
architectural portfolio t u go ft h e a t r e s 17

Timber Theatre Perspective Render | Once patrons enter the main entrance, the light is blocked by the array of vertical timber beams, projecting shadows to set the mood of the ensuing entertainment inside the open foyer.

2021-2022 selected works m a i b a n d e m 18

Glass Theatre Perspective Render | The green-room represents a chic immersive cubicle for performers to transform oneself into character, amassing creative zest within a faux, superficial room.

19
20

03

Crafted Models

96% Overall Grade

Year: 2021

Type: Architectural Communications

Tutor: Dr Anastasia Globa

Role: Individual Work

Inspired by the interactive forces between dancer and ribbon, this paper model physically embodies the dynamics of twisting and twirling.

architectural portfolio c r a f t e d m o d e l s
21
2021-2022 selected works m a i b a n d e m 22

Moving Meditation | Motion as an arousing quality becomes the premise of this architectural exploration, especially to decipher how bodily experience can be dissected or constructed as contemplating edifices or thought-provoking landscapes. The progression induces new information, which is exchanged, carried, and transformed as physical paper models.

architectural portfolio c r a f t e d m o d e l s
23
2021-2022 selected works m a i b a n d e m 24

Sangeh Shelter | Located in the temperate region of Bali only 8 degrees South of the equator, Sangeh Shelter aims to provide walkers and passerby with sufficient protection from harsh weather Design elements focused on sun and rain protection becomes a strong point of reference to consider throughout the design process Through multiple shelter iteration, different roofing styles, technique and functionality have been explored The final design adopts a butterfly roofing with open sides and an elevated deck, echoing the traditional Balinese designs of gateways and huts

architectural portfolio c r a f t e d m o d e l s
25
2021-2022 selected works m a i b a n d e m 26
maithilabandem@gmail.com mai bandem selected works 2021-2022

Turn static files into dynamic content formats.

Create a flipbook
Issuu converts static files into: digital portfolios, online yearbooks, online catalogs, digital photo albums and more. Sign up and create your flipbook.