MEDORA Brochure

Page 1

VIllA�ANDlAYOUTDE�IGN Plot €2058, 062,06�,06t,,065
01
02
PRIVATEVILLAS
RESIDENCEHOTEL
HOTEL LAPEROUSEHOTEL LAYOUT 03
KLIONVILLAS MEDORA
CALLIDORA

Greek Hotel

French Hotel
House Resident Hotel
A A’ B C D’ D D TYPEA’ 360SQM TYPEB 364SQM TYPEC 718.5SQM TYPED 718.9SQM TYPEA 360SQM TYPED’ 718.9SQM 05
Bungalows Club
MASTERPLAN

BUILDINGTYPES

06
07

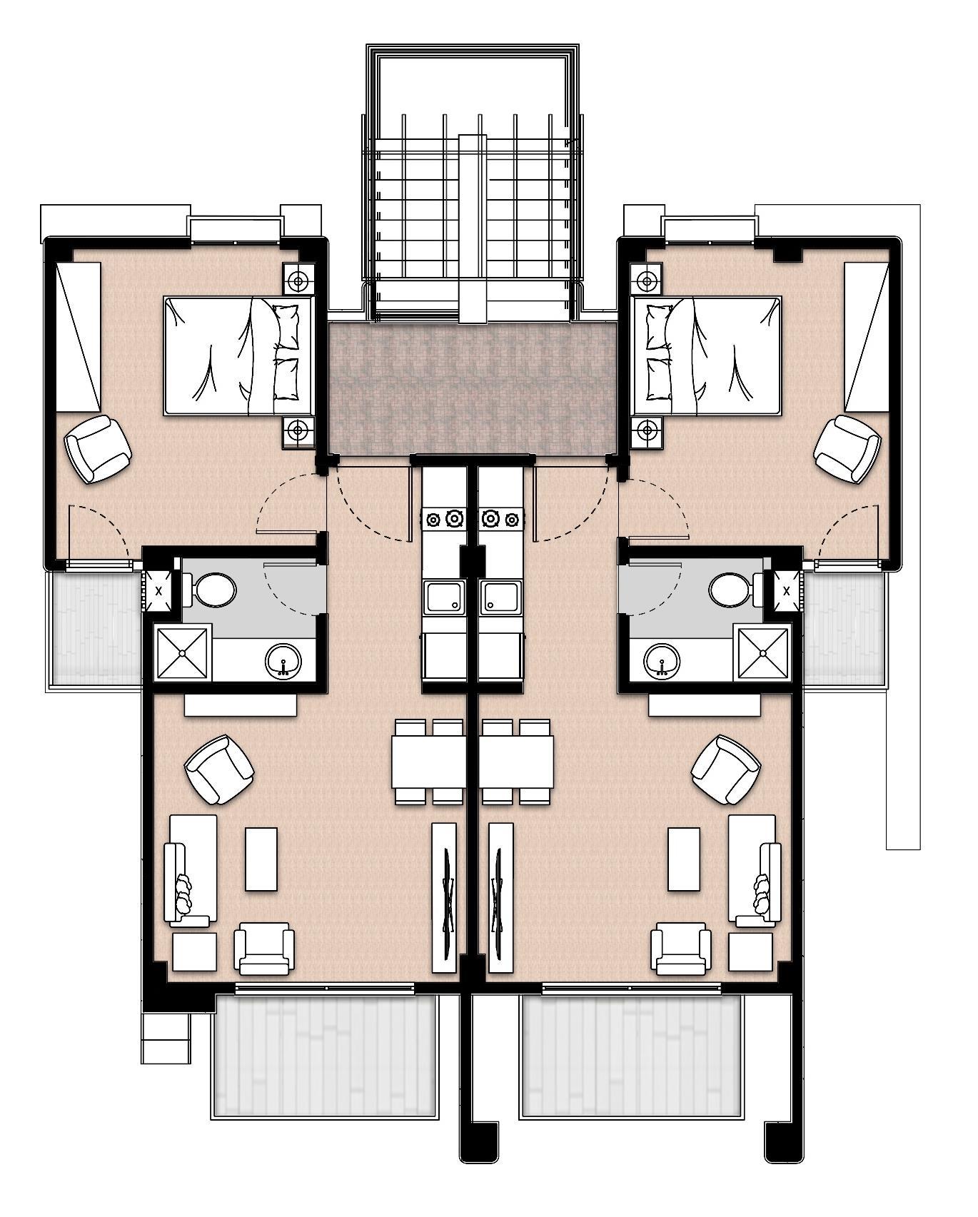
BUILDINGTYPE-A

Two units

FoeEachUnit:

STUDIO (1UNIT) CHALETA (1UNITS) CHALETB (4UNITS)

08

Bedroom

Entrance

Kitchen Kitchen

Bathroom

TYPE A GROUND FLOOR

TOTAL FLOOR AREA = 132.14 SQM INCLUDING TERRACES

GROUND FLOOR PLAN CONSISTS OF :

CHALET A (1 UNIT)

STUDIO (1 UNIT)

Bathroom

Terrace

Living Area

Bedroom + Living Area

Landscape Terrace

Landscape Terrace

09

TYPE A FIRST FLOOR

TOTAL FLOOR AREA = 122.71 SQM INCLUDING TERRACES

FIRST FLOOR PLAN CONSISTS OF :

CHALET B (2 UNITS)

Kitchen Bathroom Living Area Bedroom Terrace Entrance Kitchen Bedroom Living Area Bathroom Terrace Terrace Terrace 10

TYPE A SECOND FLOOR

TOTAL FLOOR AREA = 126.11 SQM INCLUDING TERRACES

SECOND FLOOR PLAN CONSISTS OF :

CHALET B (2 UNITS)

Kitchen Bathroom Living Area Bedroom Terrace Entrance Kitchen Bathroom Terrace Bedroom Living Area Terrace Terrace 11
12

BUILDINGTYPE-B

One unit

FOREACHUNIT:

STUDIO (1UNIT)

CHALETA (1UNIT)

CHALETB (3UNITS)

CHALETC (1UNIT)

13

Bedroom

TYPE B

GROUND FLOOR

TOTAL FLOOR AREA = 147.57 SQM INCLUDING TERRACES

Entrance

Kitchen Kitchen

Bathroom

GROUND FLOOR PLAN CONSISTS OF :

CHALET A (1 UNIT)

STUDIO (1 UNIT)

Terrace

Bathroom

Living Area

Bedroom + Living Area

Landscape Terrace

Landscape Terrace

14

TYPE B

FIRST FLOOR

TOTAL FLOOR AREA = 139.84 SQM INCLUDING TERRACES

FIRST FLOOR PLAN CONSISTS OF :

CHALET B (1 UNIT)

CHALET C (2 UNITS)

Kitchen Bathroom Living Area Bedroom Terrace Entrance Kitchen Bedroom Living Area Bathroom Terrace Terrace Terrace 15

TYPE B

SECOND FLOOR

TOTAL FLOOR AREA = 121.28 SQM INCLUDING TERRACES

SECOND FLOOR PLAN CONSISTS OF :

CHALET B (2 UNITS)

Kitchen Bathroom Living Area Bedroom Terrace Entrance Kitchen Bedroom Living Area Bathroom Terrace Terrace Terrace 16
17

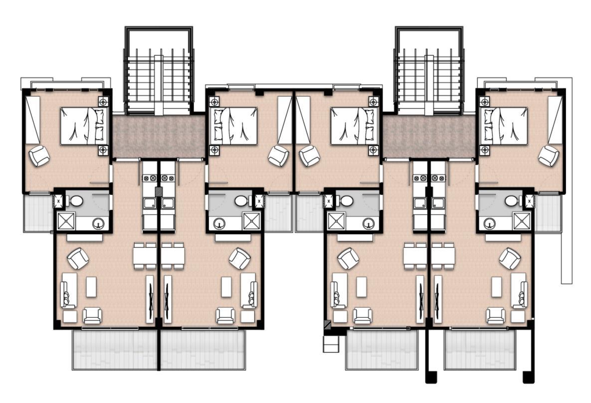
BUILDINGTYPE-C

One unit

STUDIO (2UNITS)

CHALETA (2UNITS)

CHALETB (7UNITS)

CHALETC (1UNIT)

18

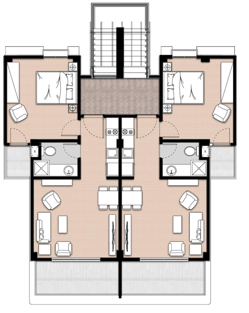
TYPE C GROUND FLOOR

TOTAL FLOOR AREA = 305.34 SQM INCLUDING TERRACES

GROUND FLOOR PLAN CONSISTS OF :

CHALET A (2 UNITS)

STUDIO (2 UNITS)

Bedroom + Living Area Bathroom Kitchen Kitchen Bathroom Living Area Bedroom Landscape Terrace Landscape Terrace Entrance
Bedroom Bathroom Kitchen Bedroom + Living Area Living Area Bathroom Kitchen Landscape Terrace Landscape Terrace Terrace Terrace 19

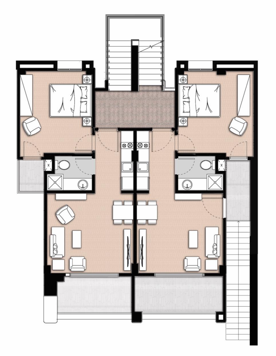
TYPE C FIRST FLOOR

TOTAL FLOOR AREA = 264.79 SQM INCLUDING TERRACES

FIRST FLOOR PLAN CONSISTS OF :

CHALET B (3 UNITS)

CHALET C (1 UNIT)

Kitchen Bathroom Living Area Bedroom Terrace Entrance Kitchen Bedroom Living Area Bathroom Terrace Entrance Living Area Bathroom Kitchen Bedroom Bathroom Living Area Terrace Terrace Bedroom Kitchen Terrace Terrace Terrace Terrace 20

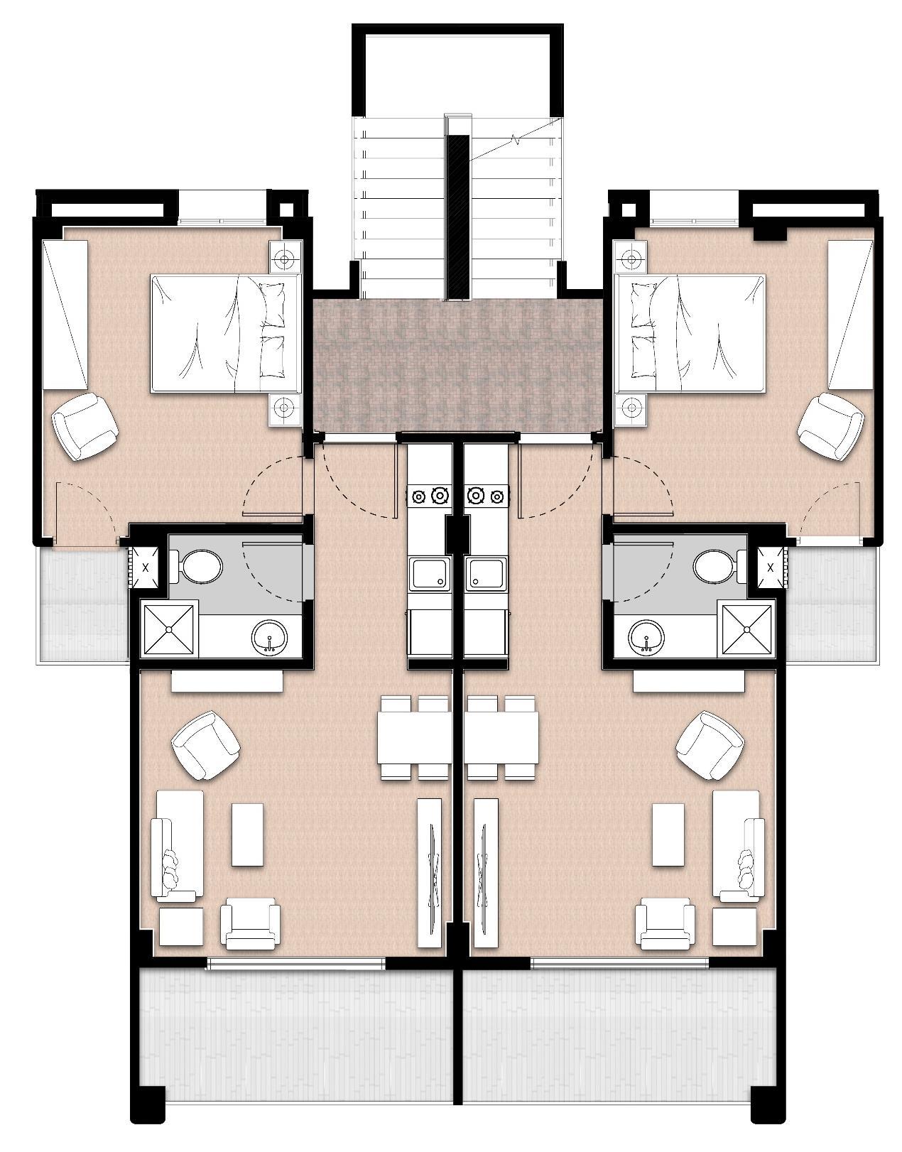
TYPE C

SECOND FLOOR

TOTAL FLOOR AREA = 247.12 SQM INCLUDING TERRACES

SECOND FLOOR PLAN CONSISTS OF : CHALET B (4 UNITS)

Kitchen Bathroom Living Area Bedroom Terrace Entrance Kitchen Bedroom Living Area Bathroom Terrace Terrace Terrace Bathroom Bathroom Living Area Living Area Entrance Bedroom Bedroom Kitchen Kitchen Terrace Terrace Terrace Terrace 21
22

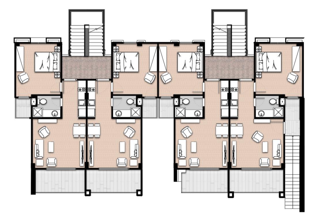
BUILDINGTYPE-D

Three unit

FOREACHUNIT:

STUDIO (2UNITS)

CHALETA (2UNITS)

CHALETB (7UNITS)

CHALETC (1UNIT)

23

TYPE D GROUND FLOOR

TOTAL FLOOR AREA = 306.10 SQM INCLUDING TERRACES

GROUND FLOOR PLAN CONSISTS OF :

CHALET A (2 UNITS)

STUDIO (2 UNITS)

Bedroom + Living Area Bathroom Kitchen Kitchen Bathroom Living Area Landscape Terrace Landscape Terrace Entrance
Bathroom Kitchen Bedroom + Living Area Living Area Bathroom Kitchen Landscape Terrace Landscape Terrace Bedroom Bedroom Terrace Terrace 24

TYPE D FIRST FLOOR

TOTAL FLOOR AREA = 265.62 SQM INCLUDING TERRACES

FIRST FLOOR PLAN CONSISTS OF :

CHALET B (3 UNITS)

CHALET C (1 UNIT)

Kitchen Bathroom Living Area Bedroom Terrace Entrance Kitchen Bedroom Living Area Bathroom Terrace Entrance Living Area Bathroom Kitchen Bedroom Bathroom Living Area Terrace Terrace Bedroom Kitchen Terrace Terrace Terrace Terrace 25

TYPE D

SECOND FLOOR

TOTAL FLOOR AREA = 245.91 SQM INCLUDING TERRACES

SECOND FLOOR PLAN CONSISTS OF :

CHALET B (4 UNIT)

Kitchen Bathroom Living Area Bedroom Terrace Entrance Kitchen Bedroom Living Area Bathroom Terrace Terrace Terrace Bathroom Bathroom Living Area Living Area Entrance Bedroom Bedroom Kitchen Kitchen Terrace Terrace 26

UNITSANALYSIS

27
28

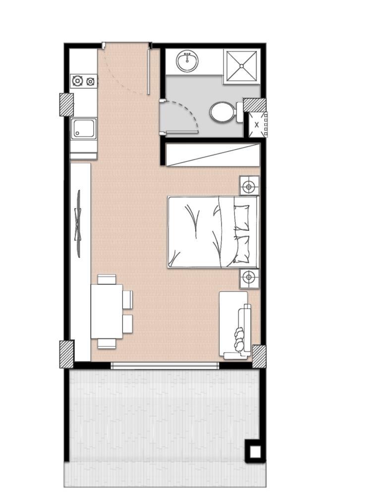
STUDIO

Inner area = 31.5 m² & Terrace = 11.5 m²

TOTAL AREA FOR STUDIO = 43 m²

Components per unit: Basement Floor

RECEPTION

TERRACE

ENTRANCE

KITCHEN TOILET
29
30
31
32

CHALET A 01BedRoom

Inner unit area = 44.60 m² & Terrace = 13 m²

TOTAL AREA FOR CHALET A = 57.60 m²

Components per unit: Basement Floor

RECEPTION

TERRACE

ENTRANCE

KITCHEN TOILET
BEDROOM 33
34
35
36

CHALET B 01BedRoom

Inner area = 45.10 m² & Terrace = 10.32 m²

TOTAL AREA FOR CHALET B = 55.50 m²

Components per unit: Basement Floor

KITCHEN TOILET
RECEPTION
TERRACE ENTRANCE
BEDROOM
37
38
39
41

CHALET C 01BedRoom

Basement floor unit area = 45.60m² & Terrace = 11.50 m²

TOTAL AREA FOR CHALET C = 57.10 m²

Components per unit: Basement Floor

TERRACE

ENTRANCE

KITCHEN TOILET
RECEPTION
BEDROOM 42
43
44

DESIGNSHOW

45
46
47

THANKYOU

Turn static files into dynamic content formats.

Create a flipbook
Issuu converts static files into: digital portfolios, online yearbooks, online catalogs, digital photo albums and more. Sign up and create your flipbook.