Project-1 Hospice in Chinatown
Location: Chinatown, Boston, America
Time: 2024.04-2025.01
Individual Project
Competition: Home for the Terminally Ill - Buildner





































Elevation
The facade shows most of the materials used in the house from the south side of the house, such as rammed earth exterior walls and french window. And you can see a main entrance of the building, which leads directly to the central circular area.

Section
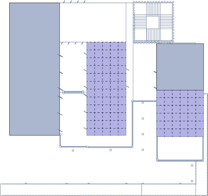
This figure shows the layout of the

L1
floor plan
The first floor plan displays the roads around the building, as well as the distribution of surrounding vegetation and parking lots. The leftmost part of the first floor indoor area is the public cafeteria and gathering area, where people can come and play mahjong. At the same time, when there are major Chinese festivals (such as the Spring Festival), the circular square in the center will be used to open various activities. The dimensions indicated in this figure are all in millimeters.





L2 floor plan
The










































































































































